Скачать Типовой проект 902-2-347 Альбом VII. Нестандартизированное оборудование. Затворы щитовые, установка сигнализатора уровня осадка и фасонные частиДата актуализации: 01.01.2021
|
| Обозначение: | Типовой проект 902-2-347 |
| Обозначение англ: | 902-2-347 |
| Статус: | не действует |
| Название рус.: | Альбом VII. Нестандартизированное оборудование. Затворы щитовые, установка сигнализатора уровня осадка и фасонные части |
| Дата добавления в базу: | 01.09.2013 |
| Дата актуализации: | 01.01.2021 |
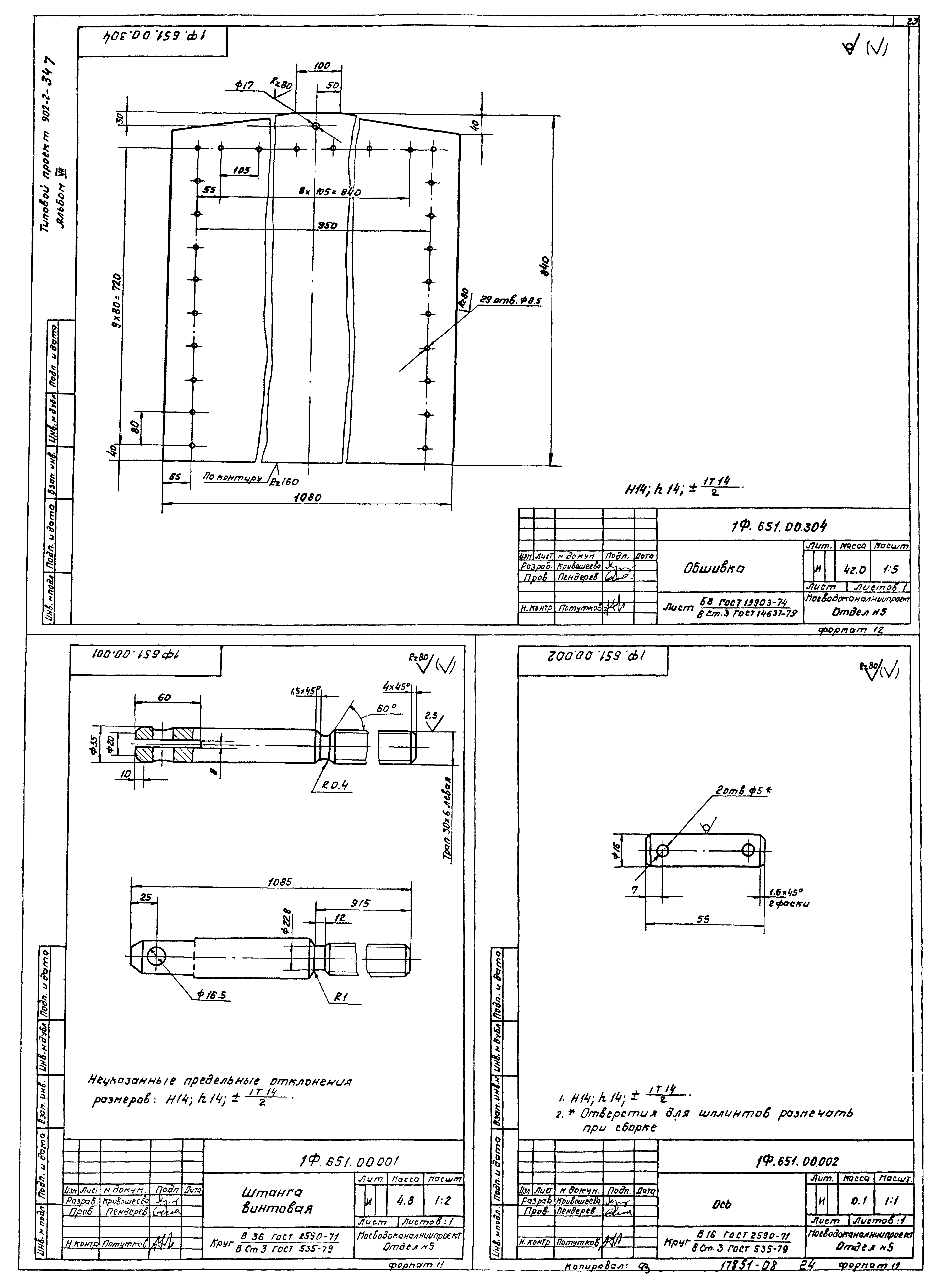
| Оглавление: | ТП 902-2-347 Титульный лист ТП 902-2-347 Содержание альбома ТП 902-2-347 1Ф.650.00.000 СБ Затвор плоский регулирующий с водосливом шириной 500 мм. Лист 1 ТП 902-2-347 1Ф.650.00.000 СБ Затвор плоский регулирующий с водосливом шириной 500 мм. Лист 2 ТП 902-2-347 1Ф.650.00.000 Затвор плоский регулирующий с водосливом шириной 500 мм. Спецификация. Лист 1-2 ТП 902-2-347 1Ф.650.00.100 СБ Подпятник ТП 902-2-347 1Ф.650.00.100 Подпятник. Спецификация. Лист 1-2 ТП 902-2-347 1Ф.650.00.110 СБ Основание ТП 902-2-347 1Ф.650.00.110 Основание. Спецификация ТП 902-2-347 1Ф.650.00.120 Корпус. Спецификация ТП 902-2-347 1Ф.650.00.120 СБ Корпус ТП 902-2-347 1Ф.650.00.121 Фланец ТП 902-2-347 1Ф.650.00.122 Фланец ТП 902-2-347 1Ф.650.00.001 Втулка кулачковая ТП 902-2-347 1Ф.650.00.102 Гайка ТП 902-2-347 1Ф.650.00.103 Кольцо ТП 902-2-347 1Ф.650.00.200 СБ Рама затвора ТП 902-2-347 1Ф.650.00.200 Рама затвора. Спецификация. Лист 1-2 ТП 902-2-347 1Ф.650.00.210 СБ Корпус рамы ТП 902-2-347 1Ф.650.00.210 Корпус рамы. Спецификация ТП 902-2-347 1Ф.650.00.211 Стенка ТП 902-2-347 1Ф.650.00.212 Направляющая ТП 902-2-347 1Ф.650.00.213 Анкер ТП 902-2-347 1Ф.650.00.201 Анкер ТП 902-2-347 1Ф.650.00.202 Поперечина ТП 902-2-347 1Ф.650.00.203 Вставка ТП 902-2-347 1Ф.650.00.300 Щит с водосливом ТП 902-2-347 1Ф.650.00.301 Лист ТП 902-2-347 1Ф.650.00.302 Ребро ТП 902-2-347 1Ф.650.00.303 Полоса ТП 902-2-347 1Ф.650.00.304 Ушко ТП 902-2-347 1Ф.650.00.400 Колпак ТП 902-2-347 1Ф.650.00.401 Фланец ТП 902-2-347 1Ф.650.00.001 Штанга винтовая ТП 902-2-347 1Ф.650.00.002 Ось ТП 902-2-347 1Ф.651.00.000 СБ Затвор плоский поверхностный 1000х800 с ручным приводом. Лист 1 ТП 902-2-347 1Ф.651.00.000 СБ Затвор плоский поверхностный 1000х800 с ручным приводом. Лист 2 ТП 902-2-347 1Ф.651.00.000 Затвор плоский поверхностный 1000х800 с ручным приводом. Спецификация ТП 902-2-347 1Ф.651.00.003 Ограждение ТП 902-2-347 1Ф.651.00.100 СБ Привод ручной ТП 902-2-347 1Ф.651.00.100 Привод ручной. Спецификация ТП 902-2-347 1Ф.651.001001 Гайка подъемная ТП 902-2-347 1Ф.651.00.102 Шпилька ТП 902-2-347 1Ф.651.00.103 Пластина ТП 902-2-347 1Ф.651.00.200 Рама затвора. Спецификация. Лист 1-2 ТП 902-2-347 1Ф.651.00.200 СБ Рама затвора ТП 902-2-347 1Ф.651.00.201 Угольник ТП 902-2-347 1Ф.651.00.202 Направляющая ТП 902-2-347 1Ф.651.00.203 Полоса анкерная ТП 902-2-347 1Ф.651.00.204 Поперечина ТП 902-2-347 1Ф.651.00.205 Уплотнение ТП 902-2-347 1Ф.651.00.206 Полоса ТП 902-2-347 1Ф.651.00.300 СБ Щит ТП 902-2-347 1Ф.651.00.300 Щит. Спецификация ТП 902-2-347 1Ф.651.00.301 Полоса ТП 902-2-347 1Ф.651.00.302 Уплотнение ТП 902-2-347 1Ф.651.00.303 Стойка ТП 902-2-347 1Ф.651.00.304 Обшивка ТП 902-2-347 1Ф.651.00.001 Штанга винтовая ТП 902-2-347 1Ф.651.00.002 Ось ТП 902-2-347 3Р.72.000 СБ Установка сигнализатора уровня ила с фотосопротивлением ТП 902-2-347 3Р.72.000 Установка сигнализатора уровня ила с фотосопротивлением. Спецификация. Лист 1-2 ТП 902-2-347 3Р.72.100 СБ Корпус ТП 902-2-347 3Р.72.100 Корпус. Спецификация ТП 902-2-347 3Р.72.101 Труба ТП 902-2-347 3Р.72.102 Конус ТП 902-2-347 3Р.72.200 Скоба закладная ТП 902-2-347 3Р.72.201 Шпилька ТП 902-2-347 3Р.72.202 Упор ТП 902-2-347 3Р.72.203 Скоба ТП 902-2-347 3Р.72.300 Прижим ТП 902-2-347 3Р.72.301 Полоса ТП 902-2-347 3Р.72.001 Пластина опорная ТП 902-2-347 6С.53.126.000 Тройник 630х10-530х9, L=45º. Спецификация ТП 902-2-347 6С.53.126.000 СБ Тройник 630х10-530х9, L=45º ТП 902-2-347 6С.53.126.001 Патрубок |
| Разработан: | МосводоканалНИИпроект |
| Утверждён: | 01.10.1981 МосводоканалНИИпроект (204) |





























