Скачать Типовой проект 902-2-418.86 Альбом II. Технология производства. Конструкции железобетонные. Конструкции металлические. Силовое электрооборудованиеДата актуализации: 01.01.2021
|
| Обозначение: | Типовой проект 902-2-418.86 |
| Обозначение англ: | 902-2-418.86 |
| Статус: | заменен |
| Название рус.: | Альбом II. Технология производства. Конструкции железобетонные. Конструкции металлические. Силовое электрооборудование |
| Дата добавления в базу: | 01.09.2013 |
| Дата актуализации: | 01.01.2021 |
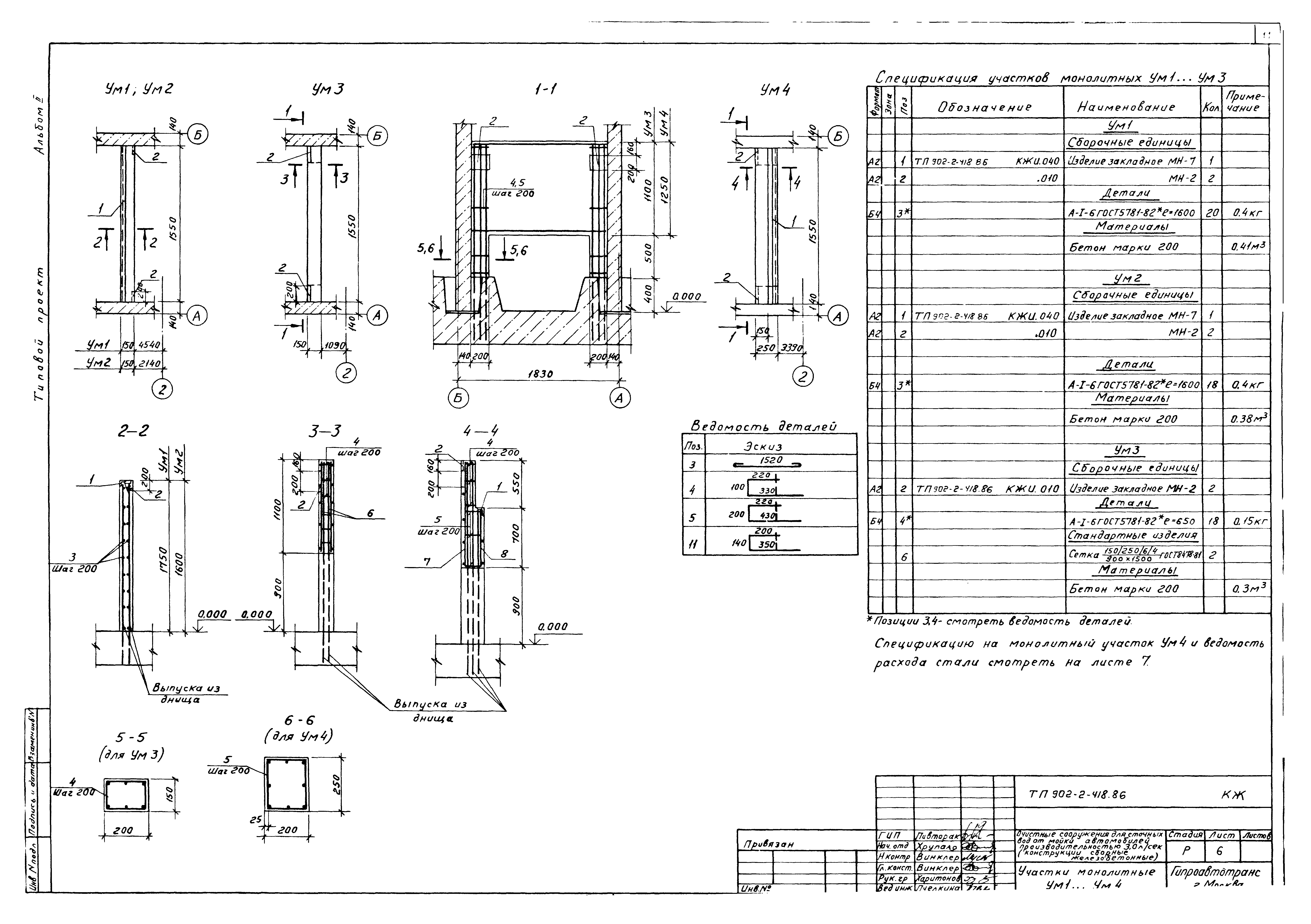
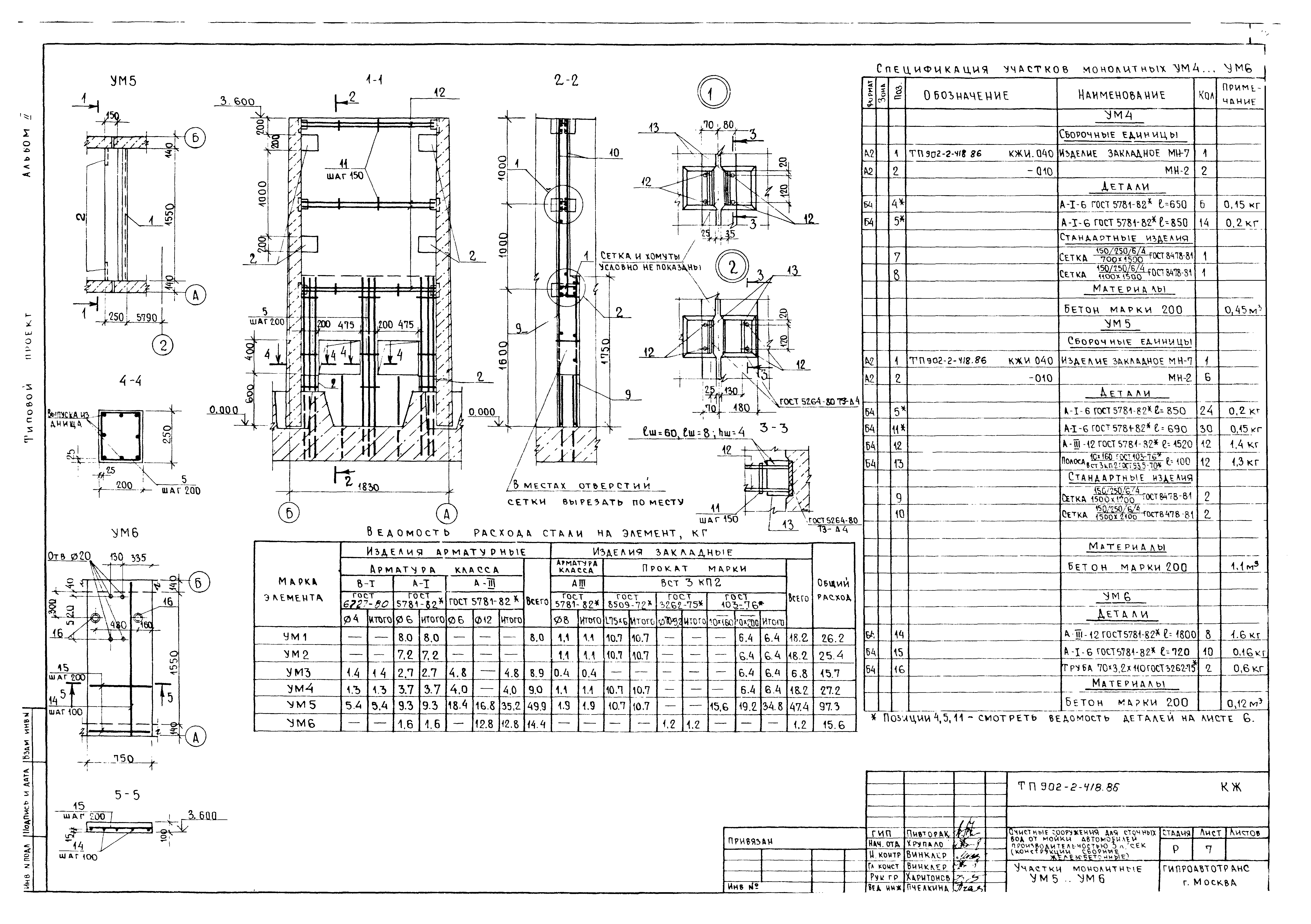
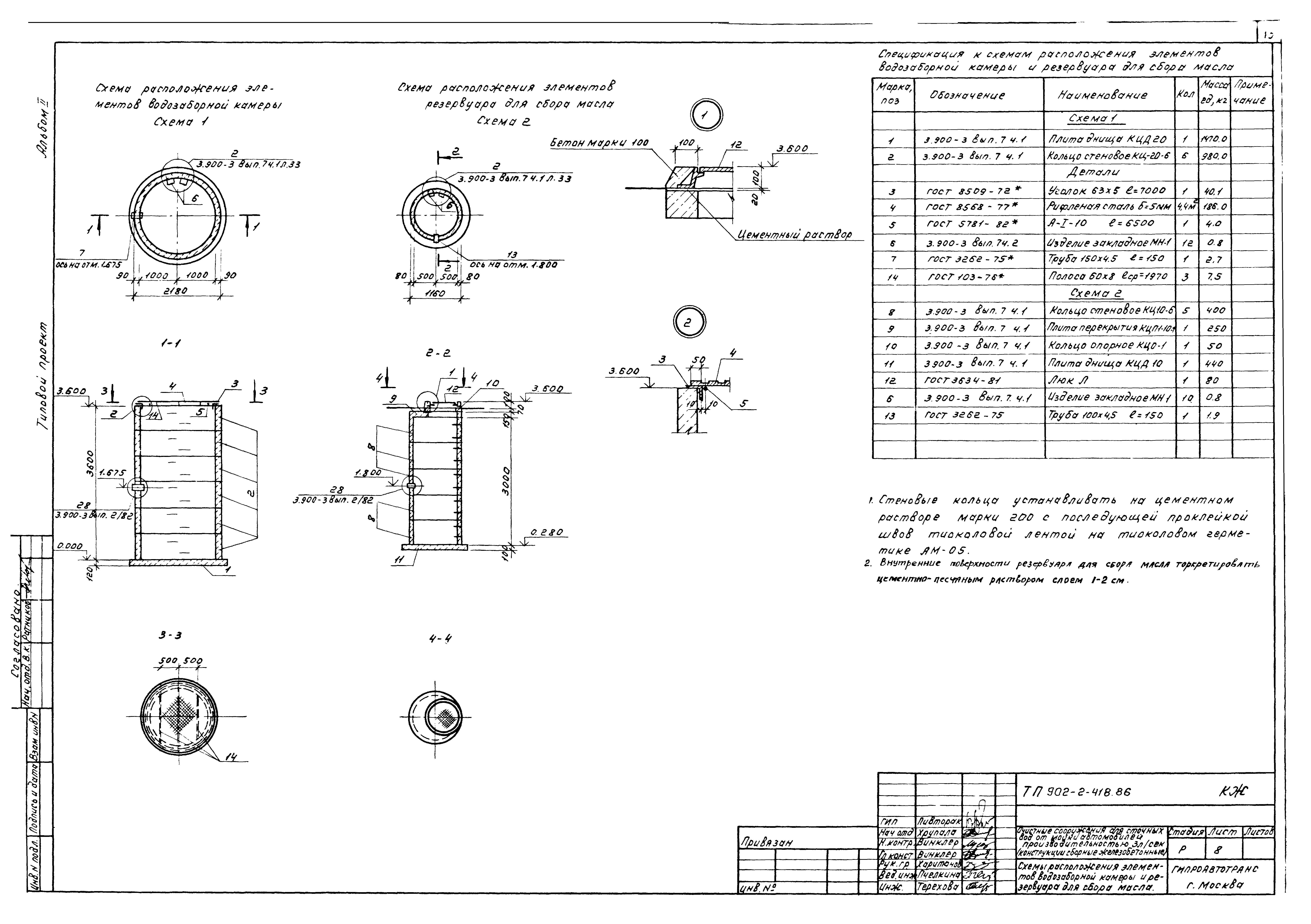
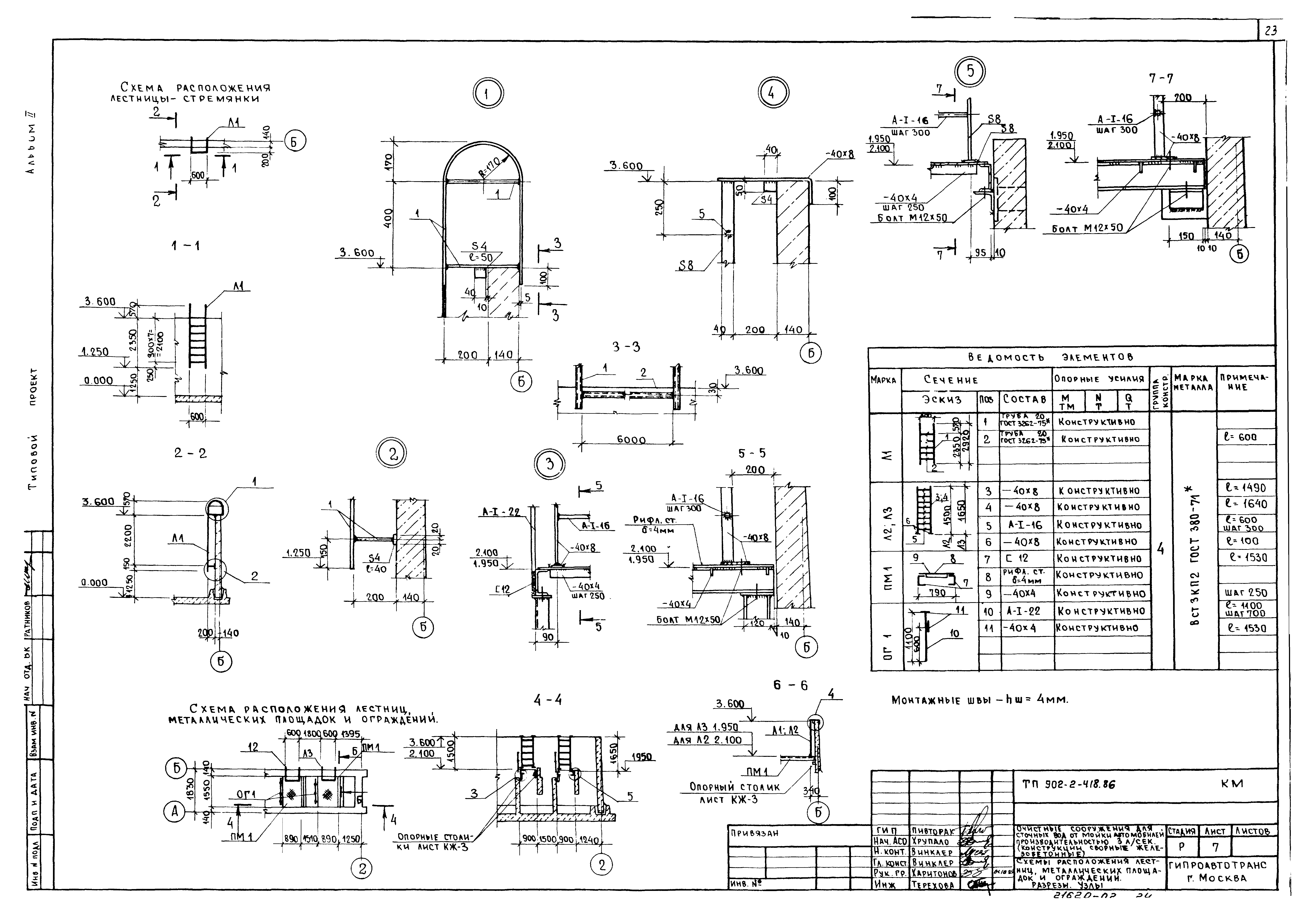
| Оглавление: | ТП 902-2-418.86 Титульный лист ТП 902-2-418.86 Содержание альбома ТП 902-2-418.86-ТХ Технология производства ТХ ТП 902-2-418.86-ТХ-1 Общие данные ТП 902-2-418.86-ТХ-2 Схемы расположения очистных сооружений в системе оборотного водоснабжения мойки автомобилей. Технологическая схема очистки сточной воды ТП 902-2-418.86-ТХ-3 Планы на отм. 0.000;3.740. Разрезы 1-1;2-2;3-3;4-4 ТП 902-2-418.86-КЖ Конструкции железобетонные КЖ ТП 902-2-418.86-КЖ-1 Общие данные ТП 902-2-418.86-КЖ-2 Схема расположения очистных сооружений. Сечения 1-1...4-4. Узел 1 ТП 902-2-418.86-КЖ-3 Схема расположения очистных сооружений. Сечения 5-5...9-9. Узлы 2...6 ТП 902-2-418.86-КЖ-4 Схемы расположения щитов перекрытия, стеновых панелей и монолитных участков ТП 902-2-418.86-КЖ-5 Днище монолитное ДМ-1 ТП 902-2-418.86-КЖ-6 Участки монолитные УМ1...УМ4 ТП 902-2-418.86-КЖ-7 Участки монолитные УМ5...УМ6 ТП 902-2-418.86-КЖ-8 Схемы расположения элементов водозаборной камеры и резервуара для сбора масла ТП 902-2-418.86-КЖИ.000 Изделие закладное МН-1 ТП 902-2-418.86-КЖИ.010 Изделие закладное МН-2 ТП 902-2-418.86-КЖИ.020 Изделие закладное МН-3 ТП 902-2-418.86-КЖИ.030 Изделие закладное МН-5 ТП 902-2-418.86-КЖИ.040 Изделие закладное МН-4, МН-7 ТП 902-2-418.86-КЖИ.050 Изделие закладное МН-6 ТП 902-2-418.86-КЖИ.060 Сетка арматурная С-1 ТП 902-2-418.86-КЖИ.070 Каркас плоский КР-1 ТП 902-2-418.86-КЖИ.080 Решетка Р-1 ТП 902-2-418.86-КЖИ.090 Щит деревянный ЩД-1 ТП 902-2-418.86-КМ Конструкции металлические КМ ТП 902-2-418.86-КМ-1 Общие данные (начало) ТП 902-2-418.86-КМ-2 Общие данные (продолжение) ТП 902-2-418.86-КМ-3 Общие данные (продолжение) ТП 902-2-418.86-КМ-4 Общие данные (окончание) ТП 902-2-418.86-КМ-5 Схема расположения подвесного транспорта. Разрезы. Узел 1 ТП 902-2-418.86-КМ-6 Схема расположения подвесного транспорта. Узлы 2-7 ТП 902-2-418.86-КМ-7 Схемы расположения лестниц, металлических площадок и ограждений. Разрезы. Узлы ТП 902-2-418.86-ЭМ Силовое электрооборудование ЭМ ТП 902-2-418.86-ЭМ-1 Общие данные. Схема принципиальная однолинейная. План |
| Разработан: | Гипроавтотранс |
| Утверждён: | 10.06.1986 Минавтотранс РСФСР (Russian Federation Minavtotrans 14) |

























