Скачать Типовой проект 705-1-196.85 Альбом I. Пояснительная записка. Технология производства. Архитектурные решения. Конструкции железобетонные. Конструкции металлические. Отопление и вентиляция. Силовое электрооборудование. Связь и сигнализацияДата актуализации: 01.01.2021
|
| Обозначение: | Типовой проект 705-1-196.85 |
| Обозначение англ: | 705-1-196.85 |
| Статус: | действует |
| Название рус.: | Альбом I. Пояснительная записка. Технология производства. Архитектурные решения. Конструкции железобетонные. Конструкции металлические. Отопление и вентиляция. Силовое электрооборудование. Связь и сигнализация |
| Дата добавления в базу: | 01.09.2013 |
| Дата актуализации: | 01.01.2021 |
| Дата введения: | 12.11.1985 |
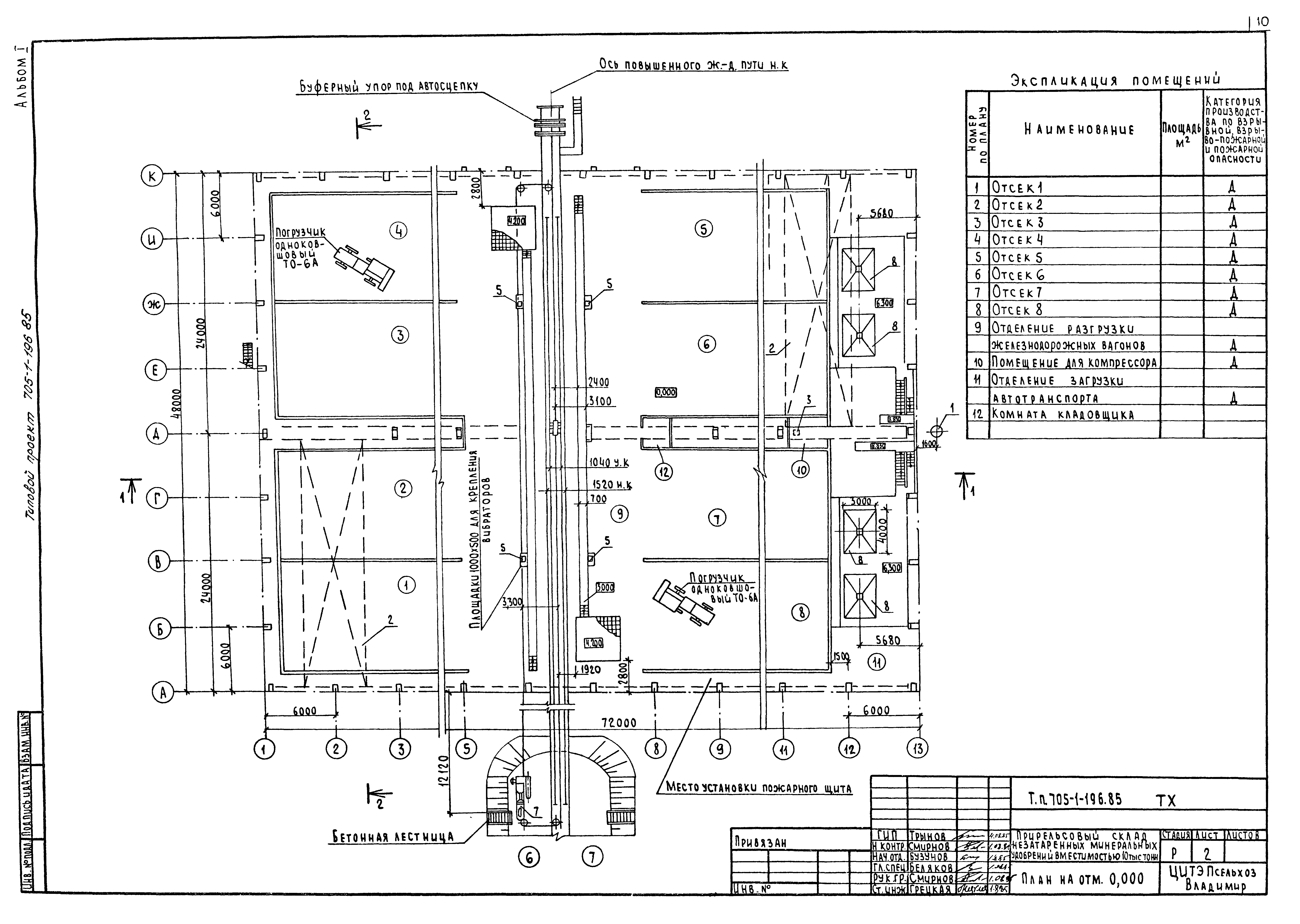
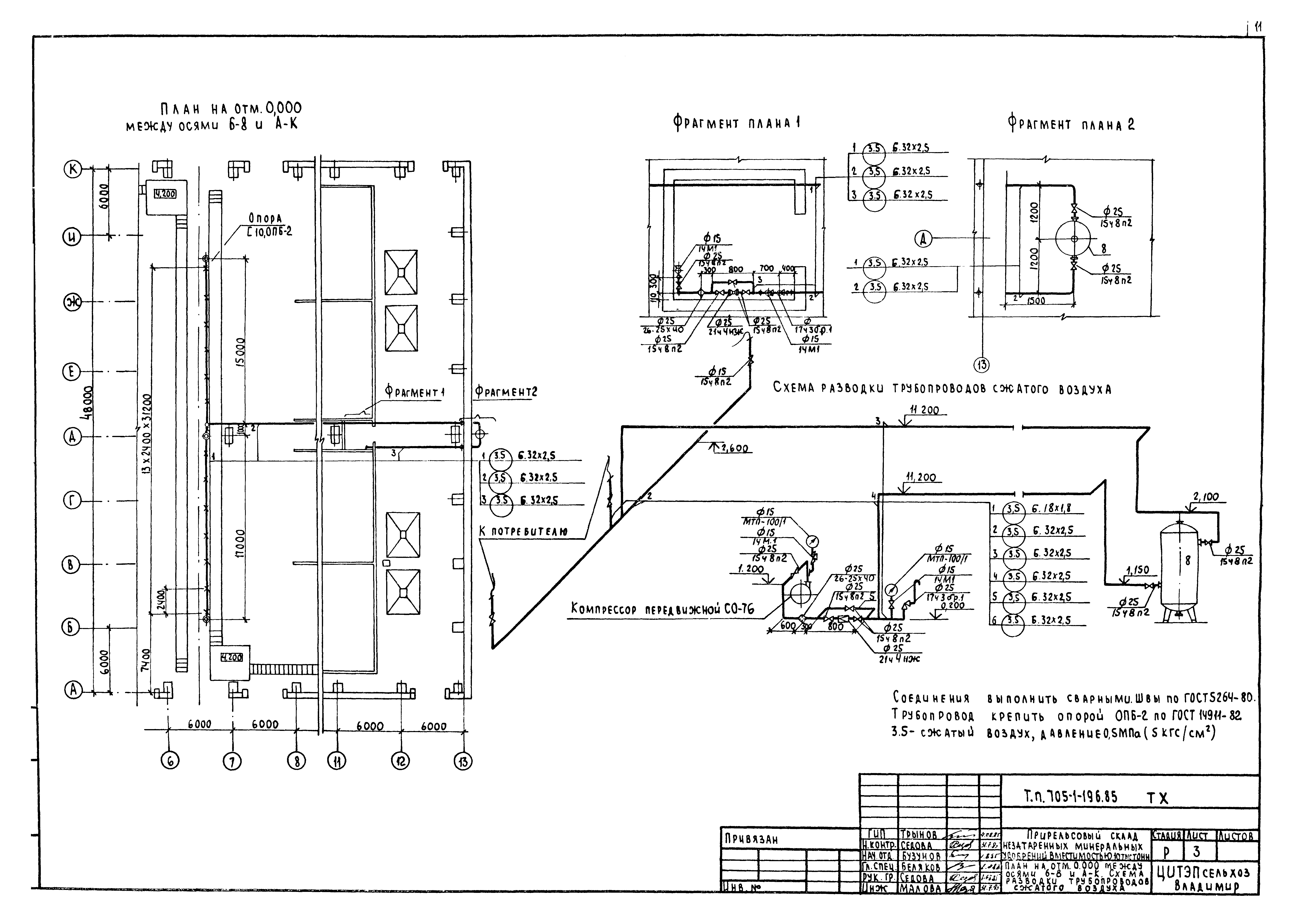
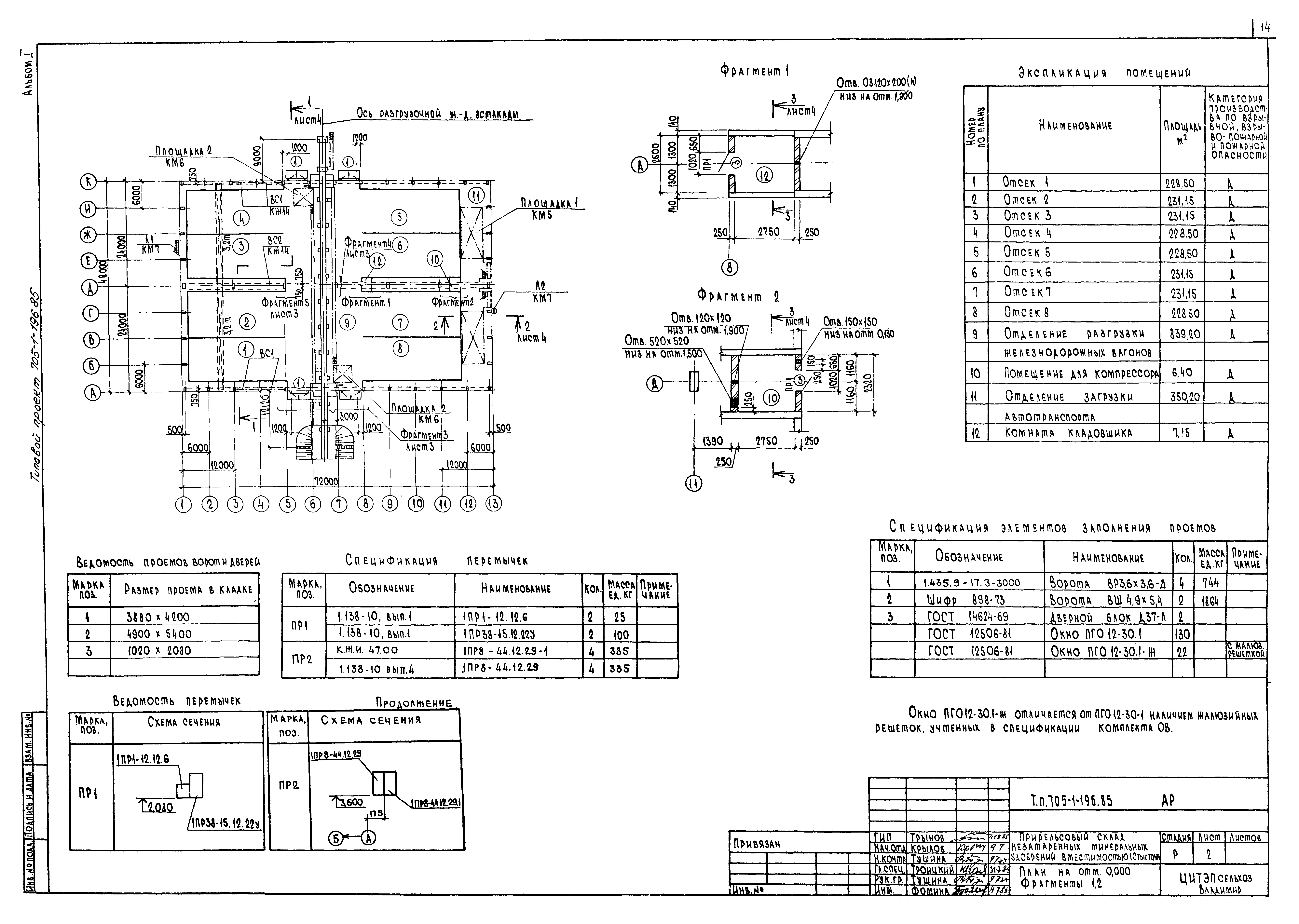
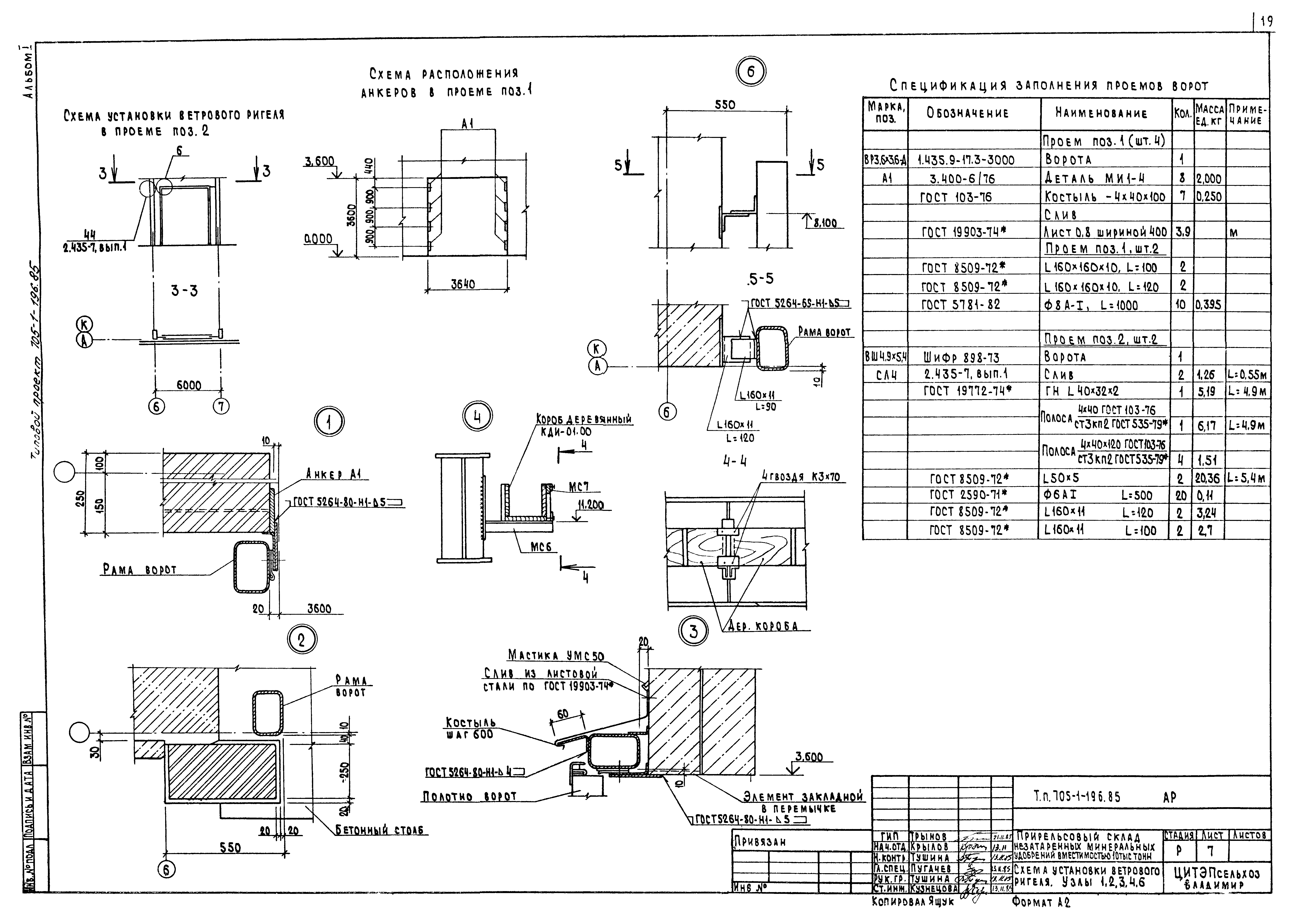
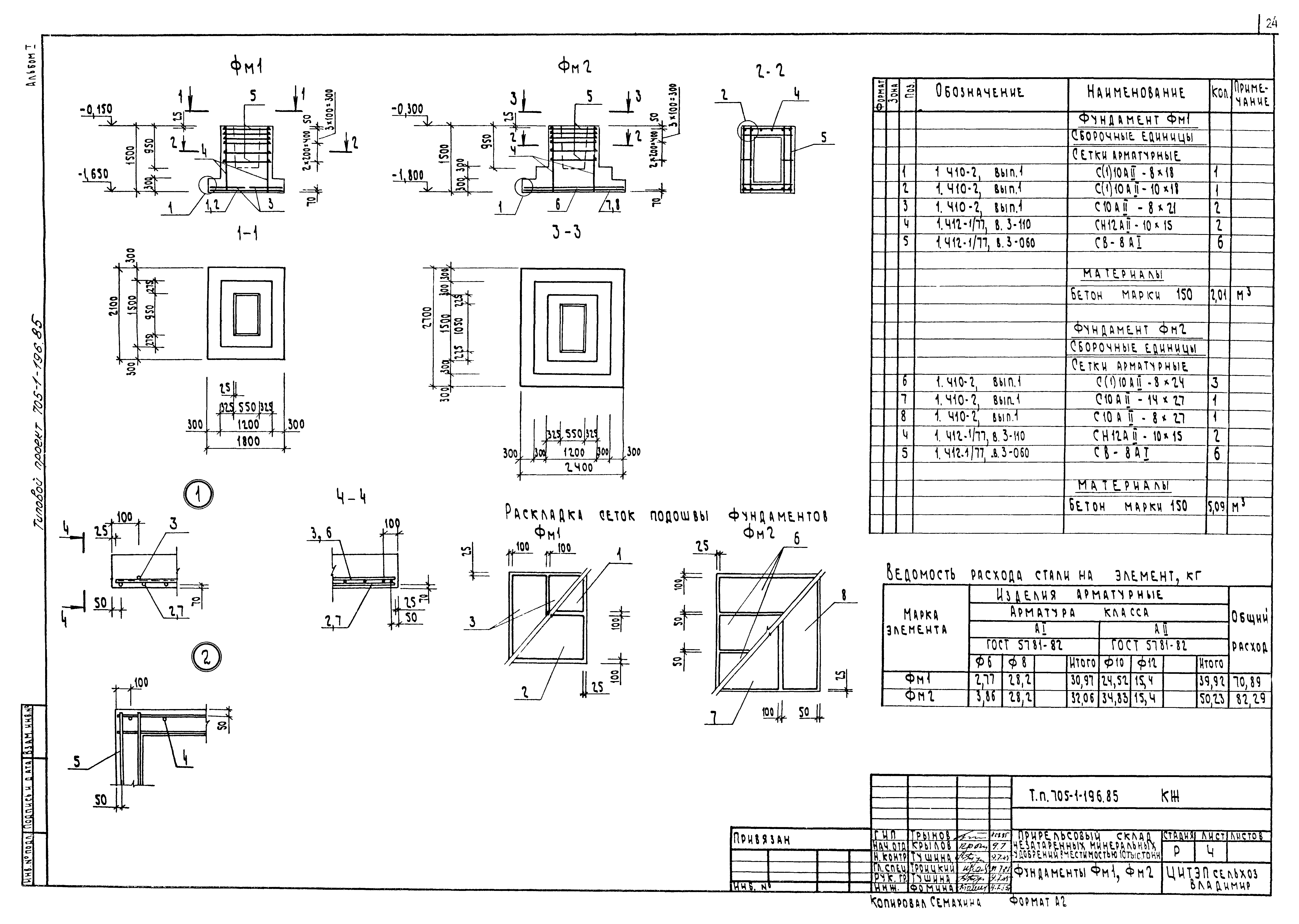
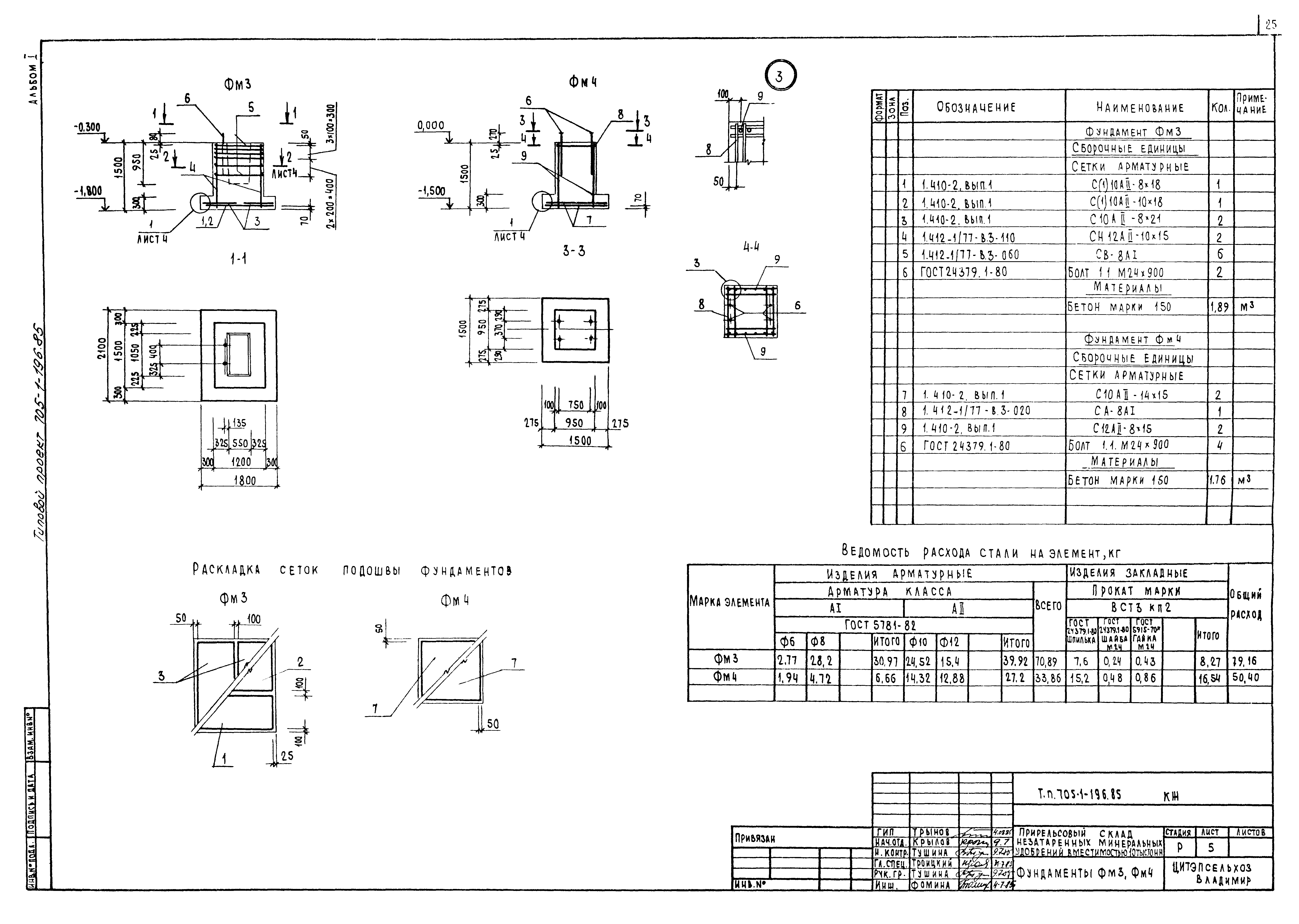
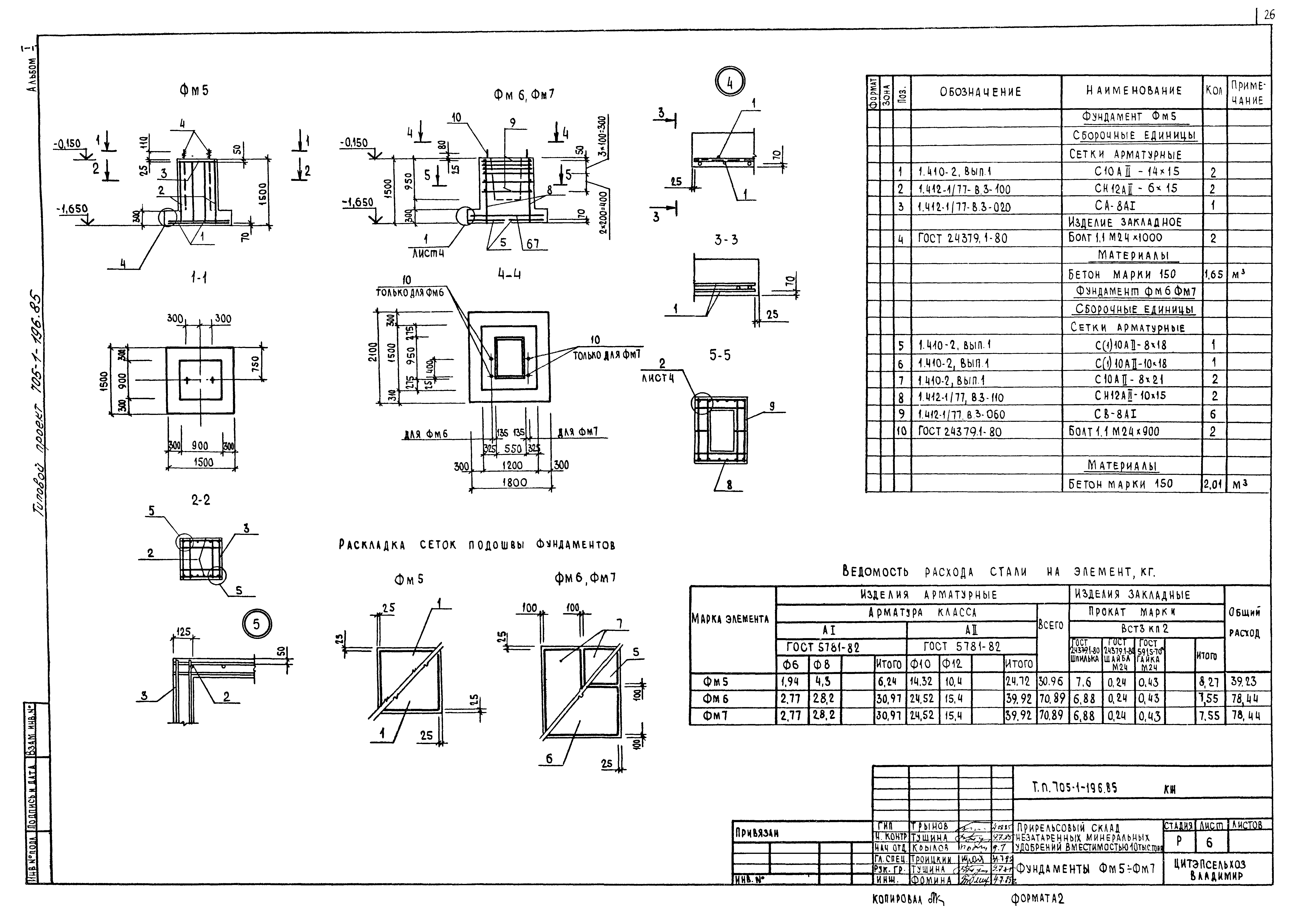
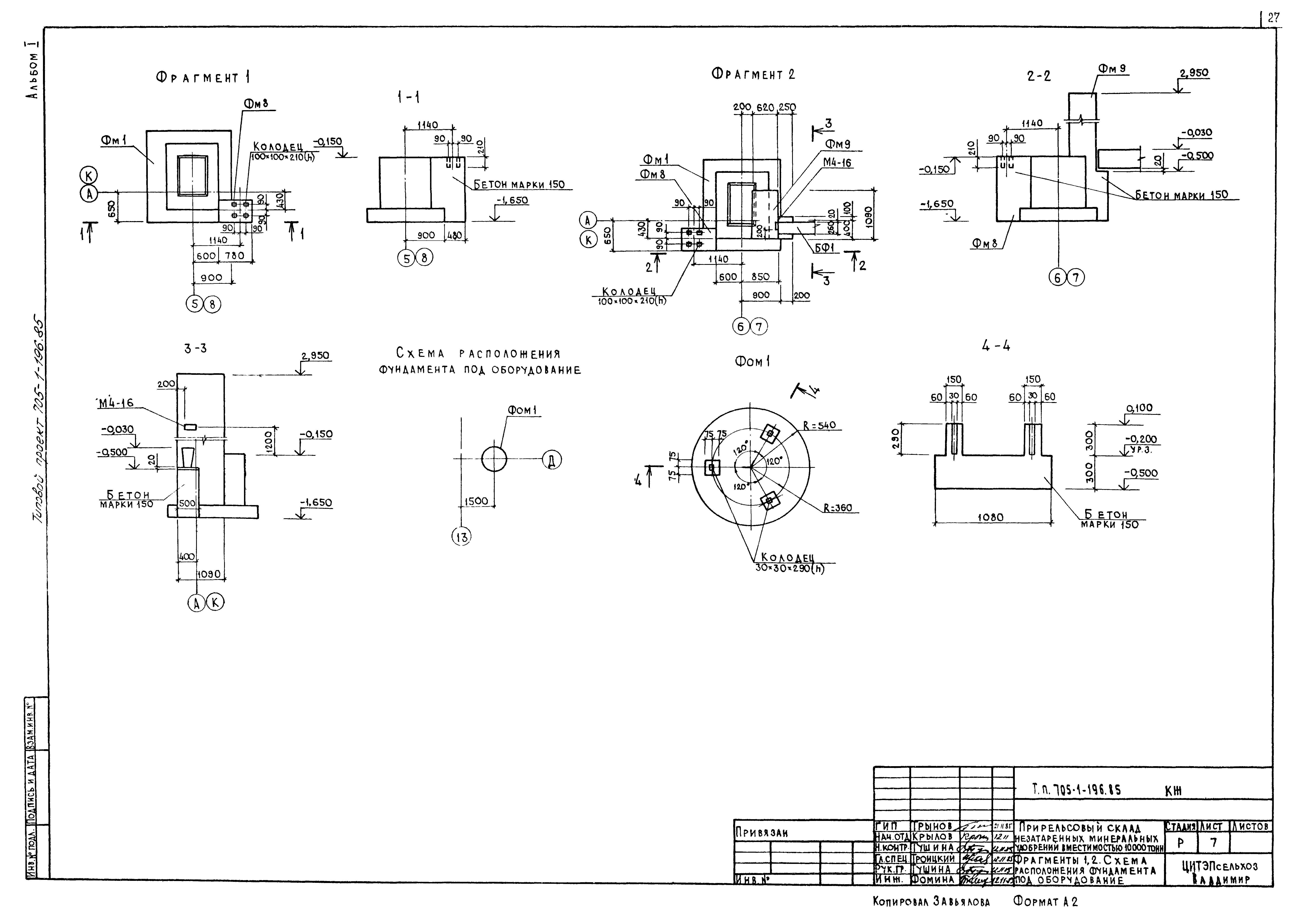
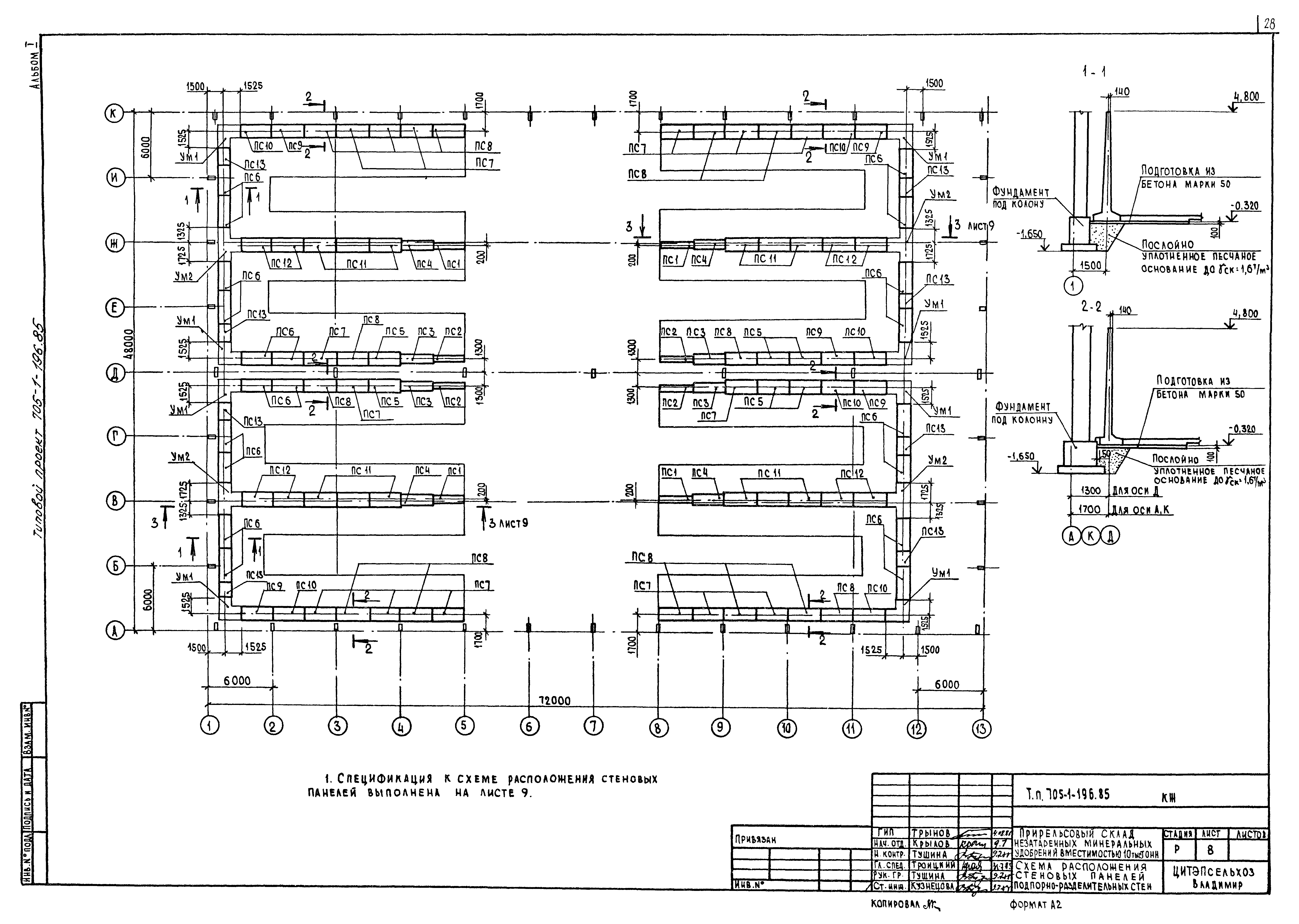
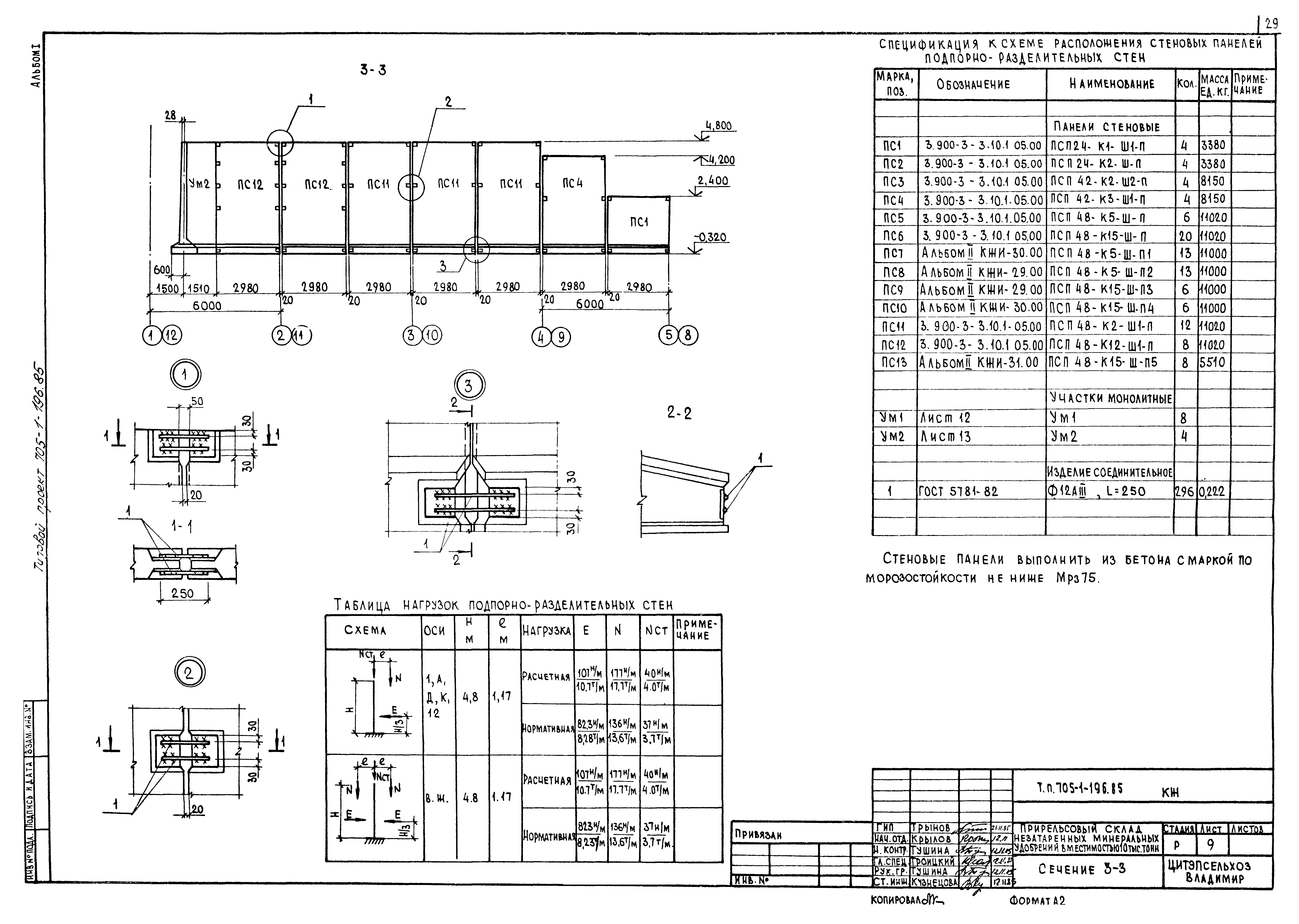
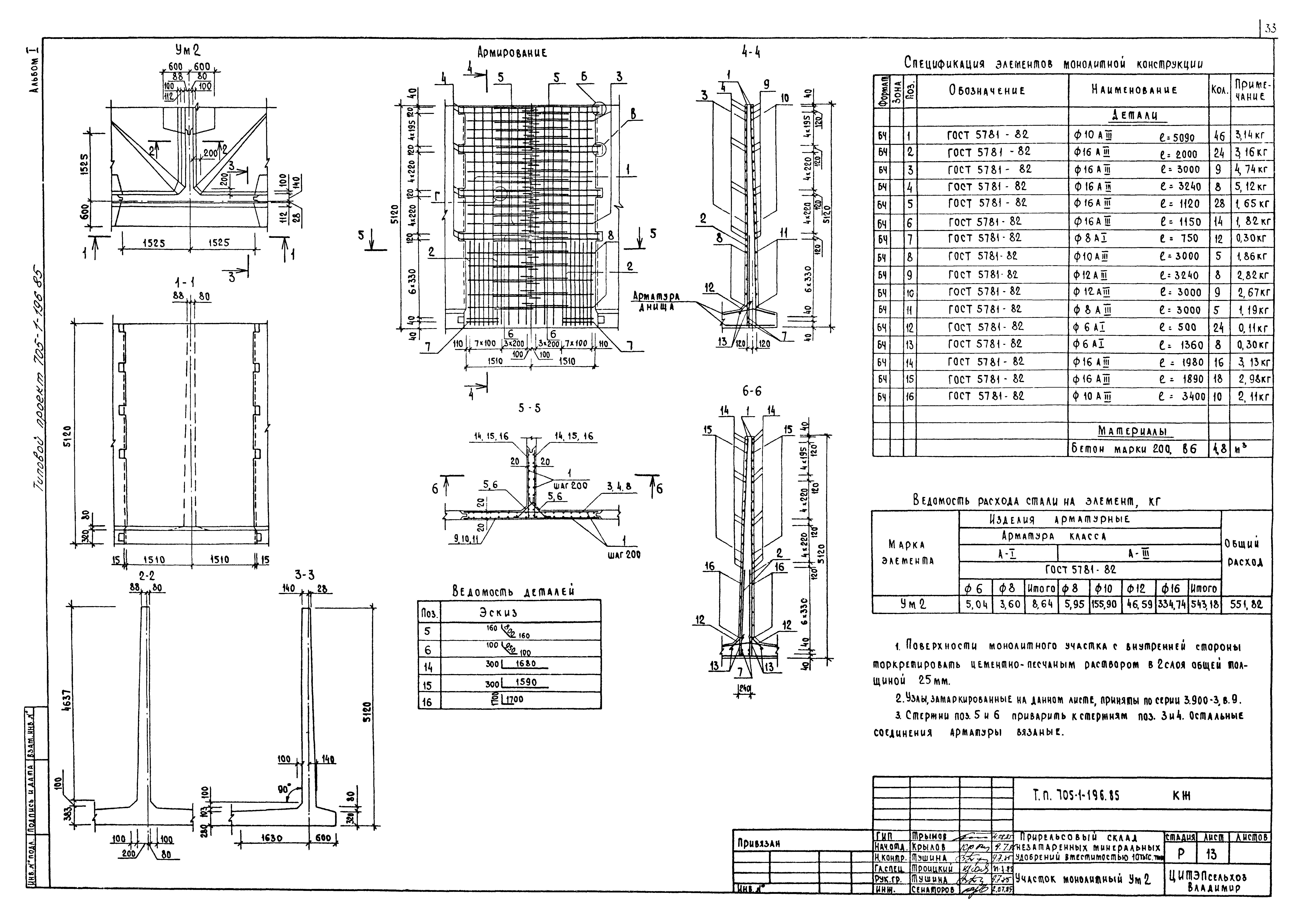
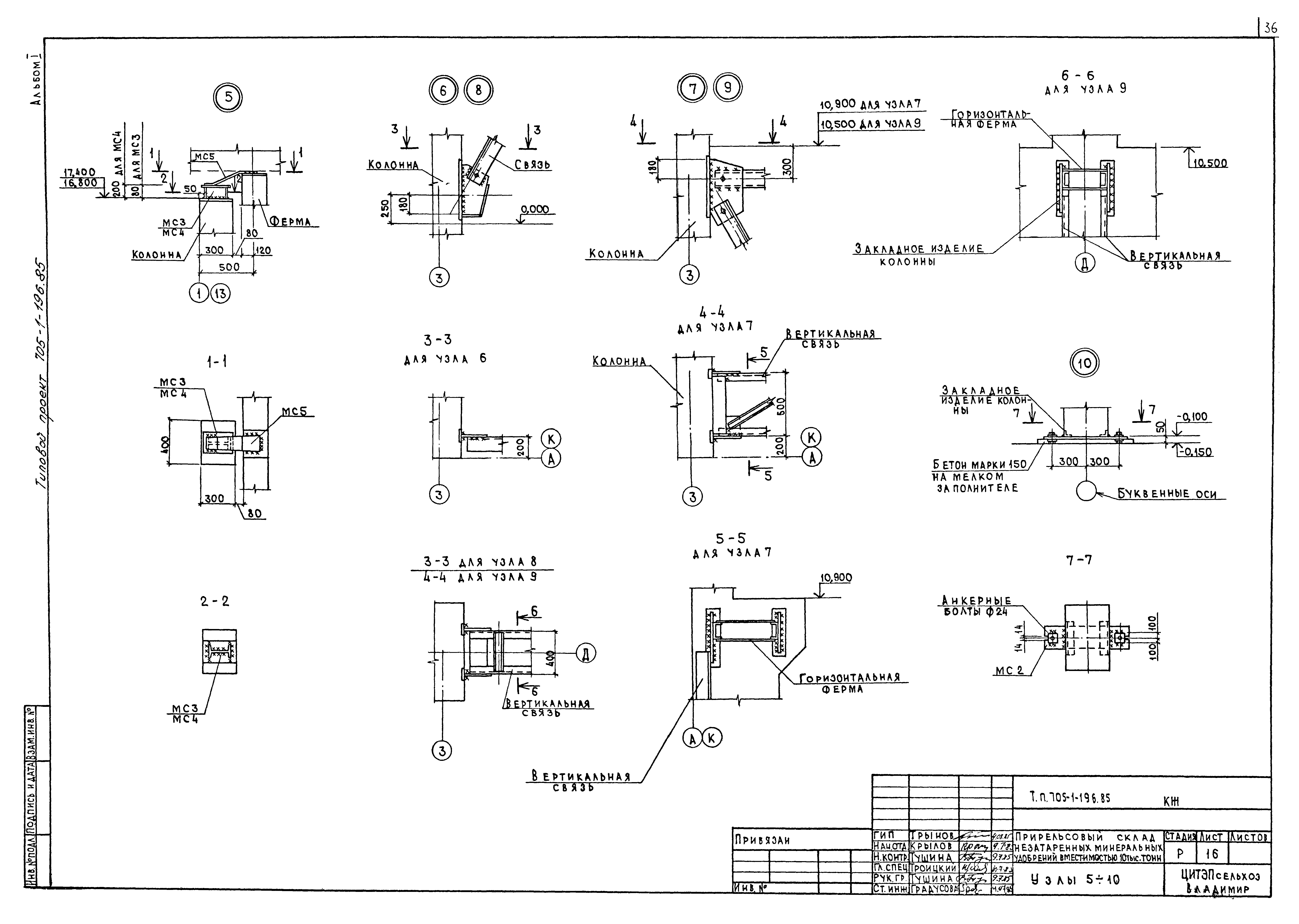
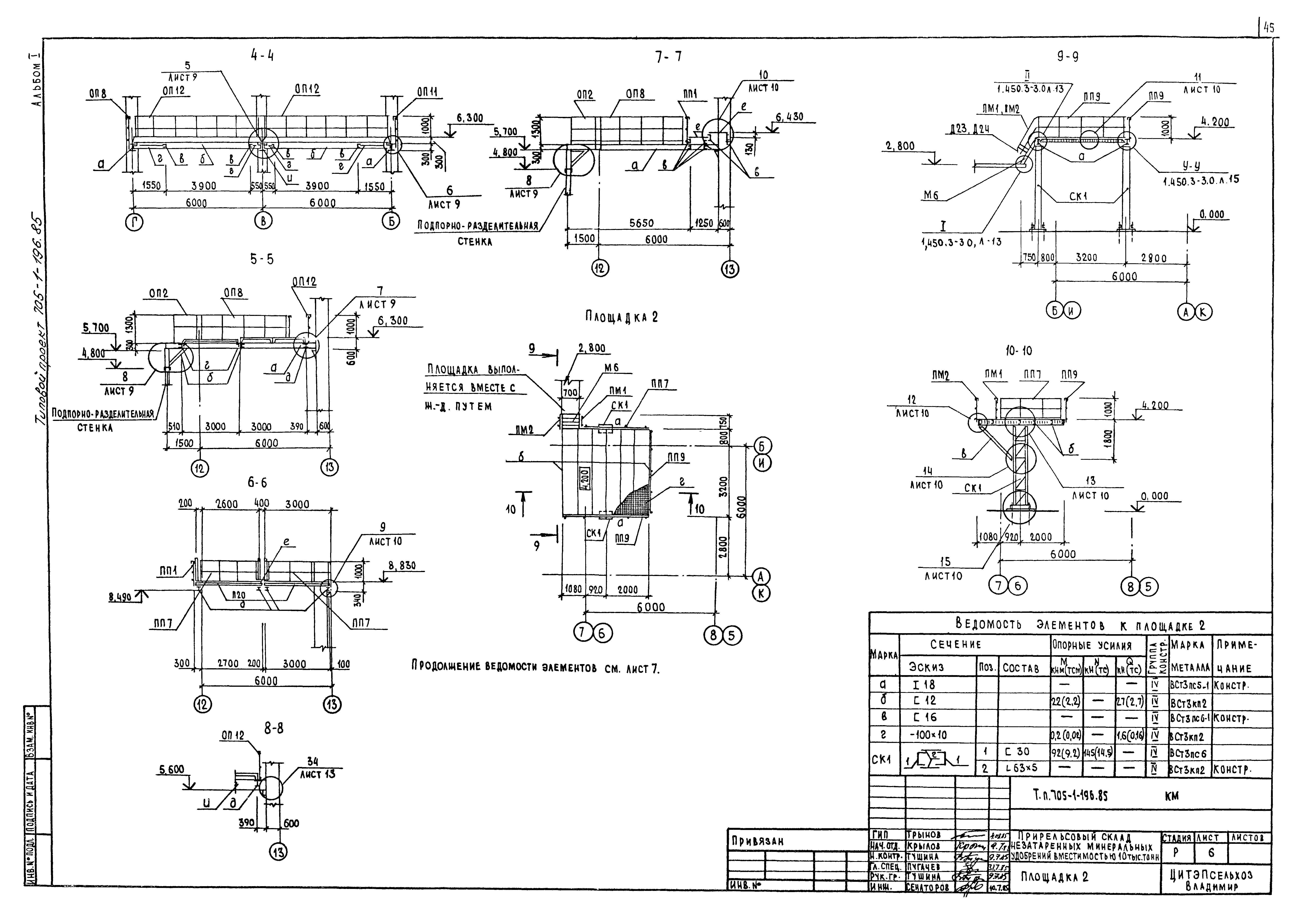
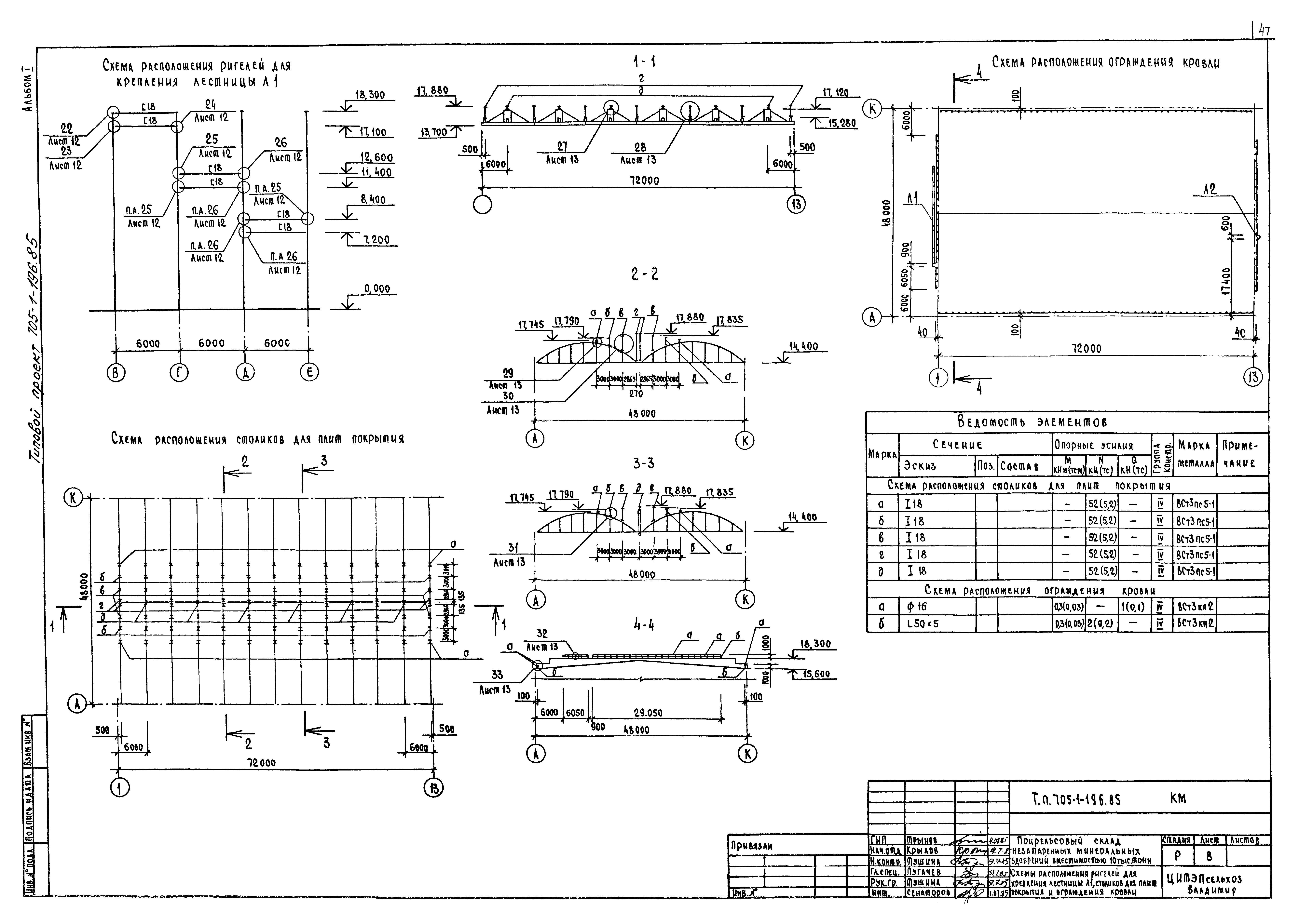
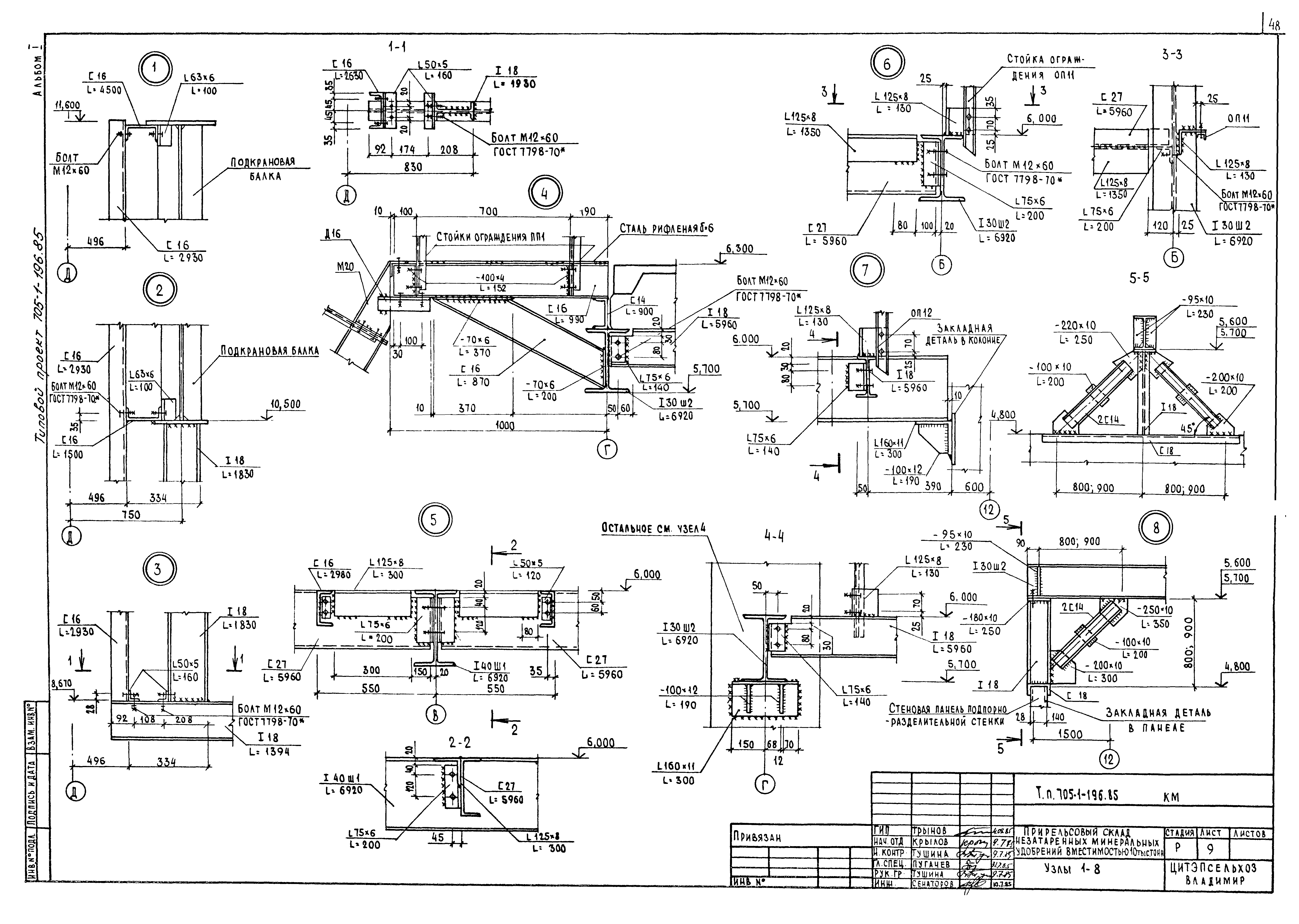
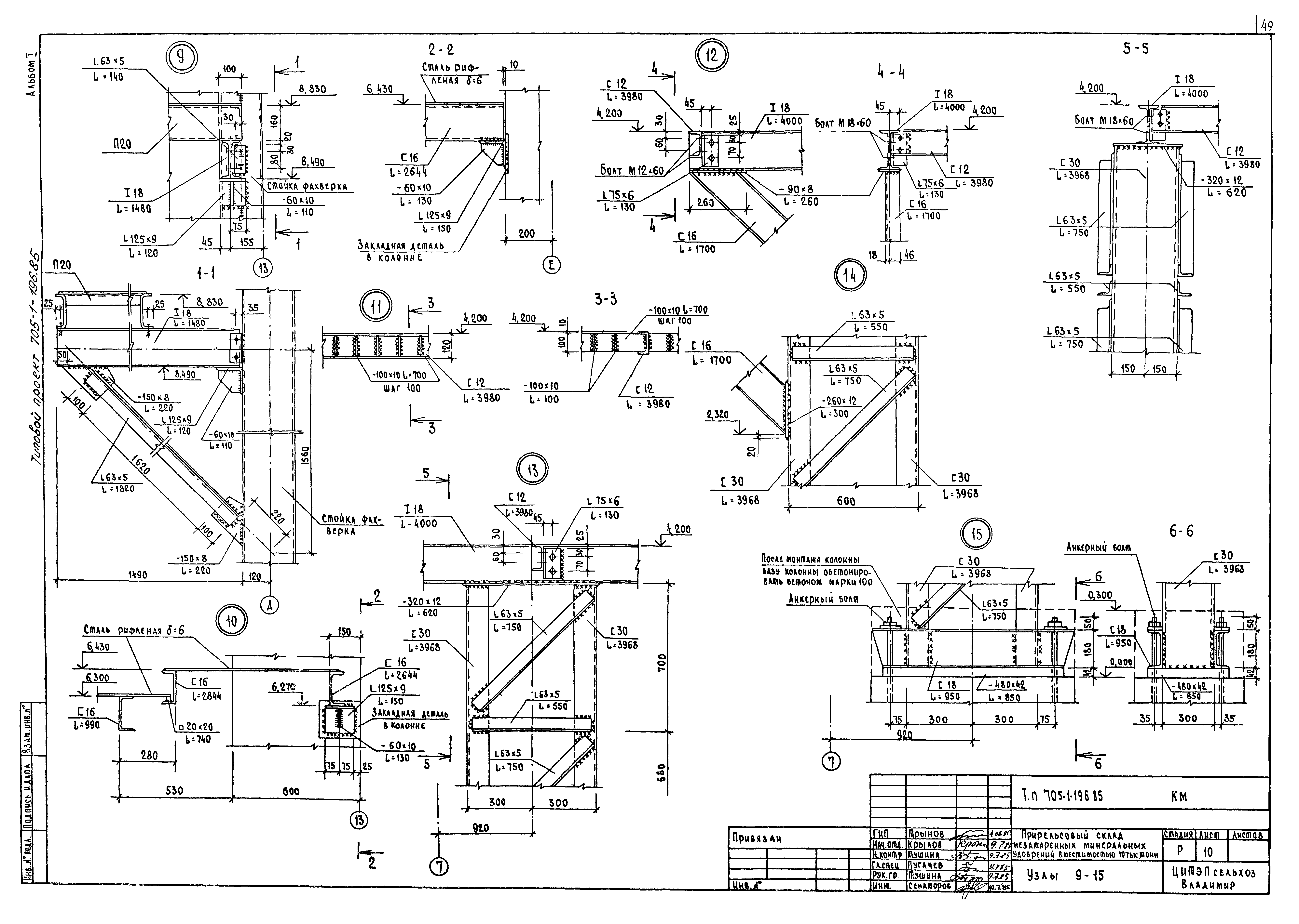
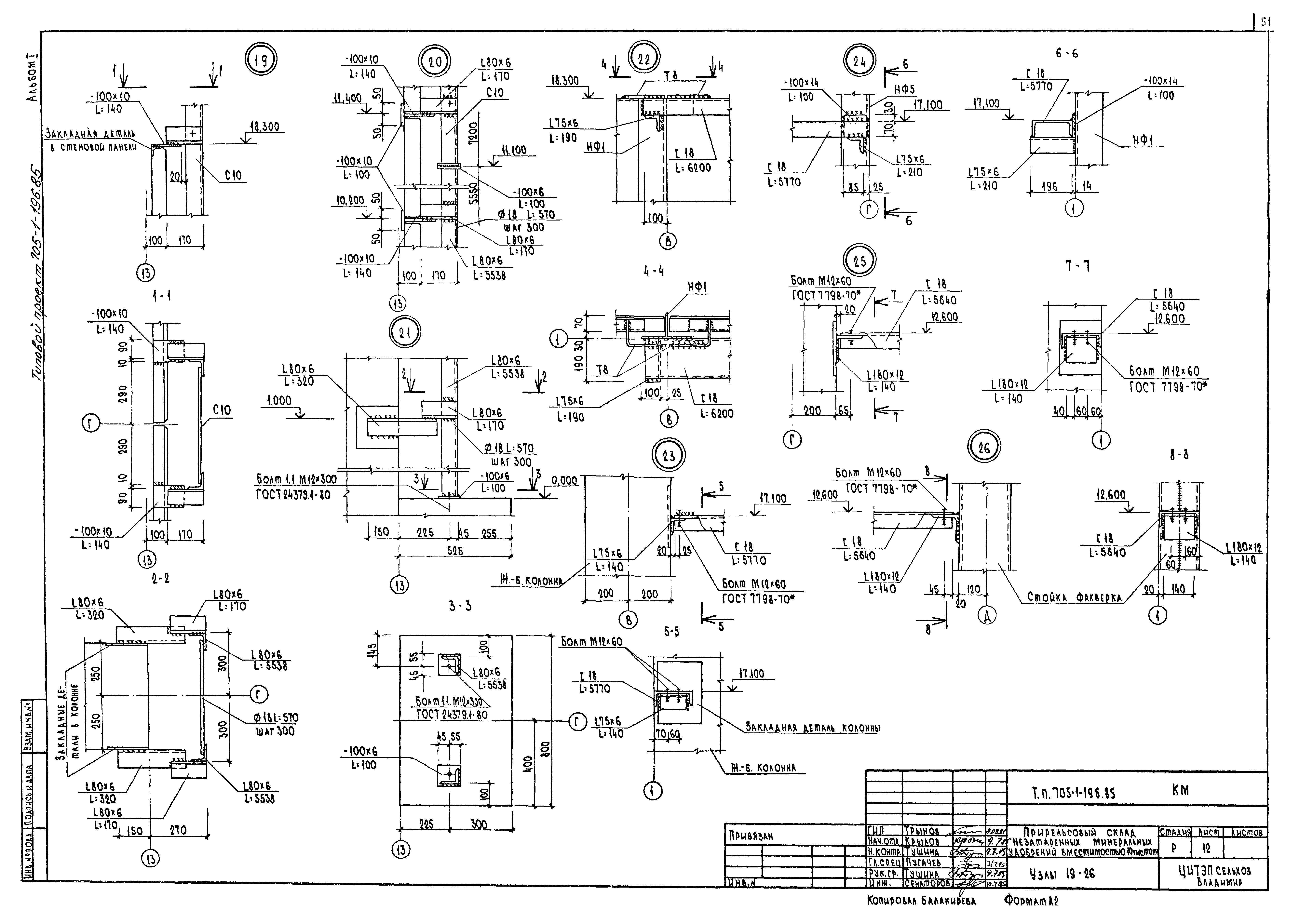
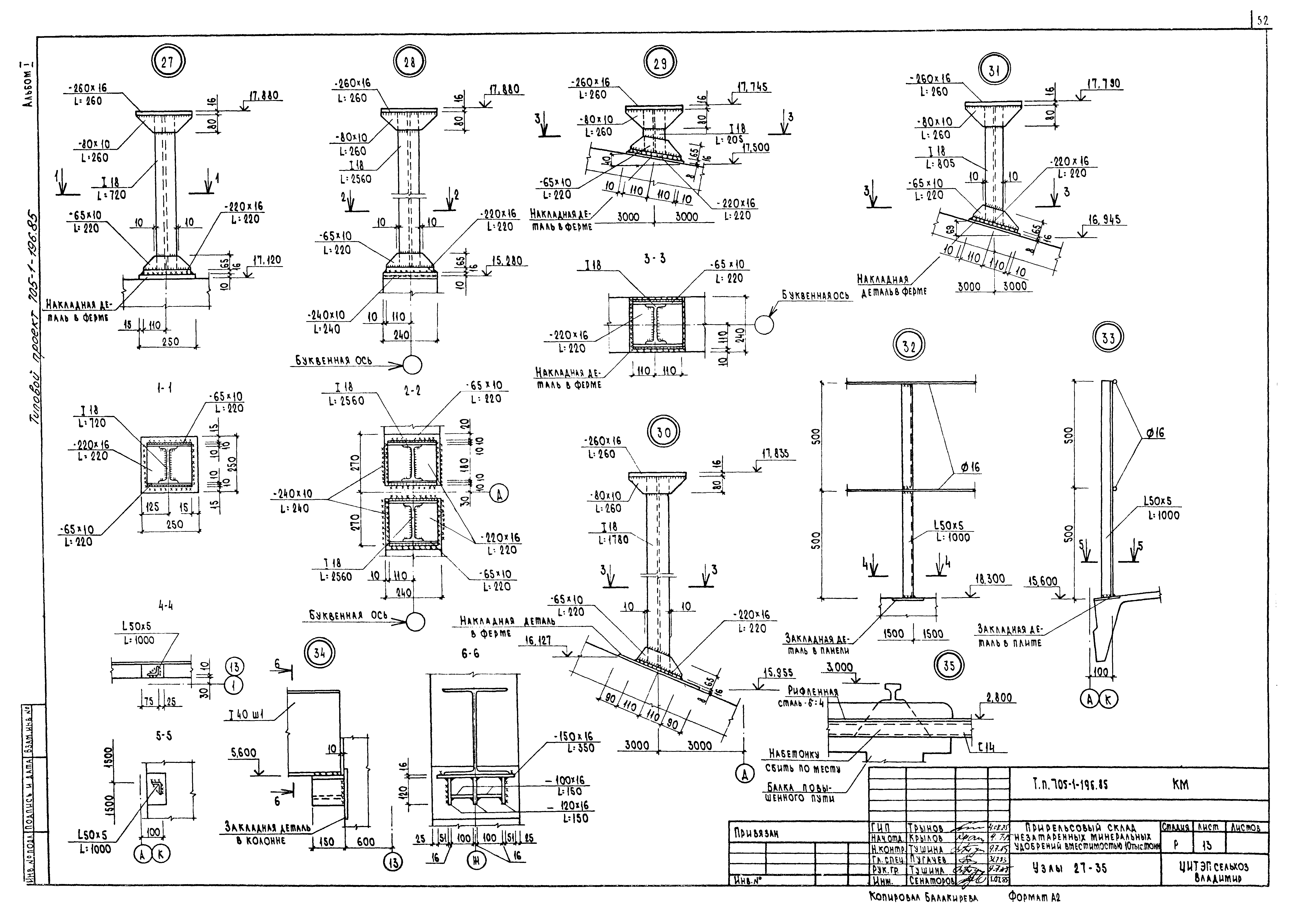
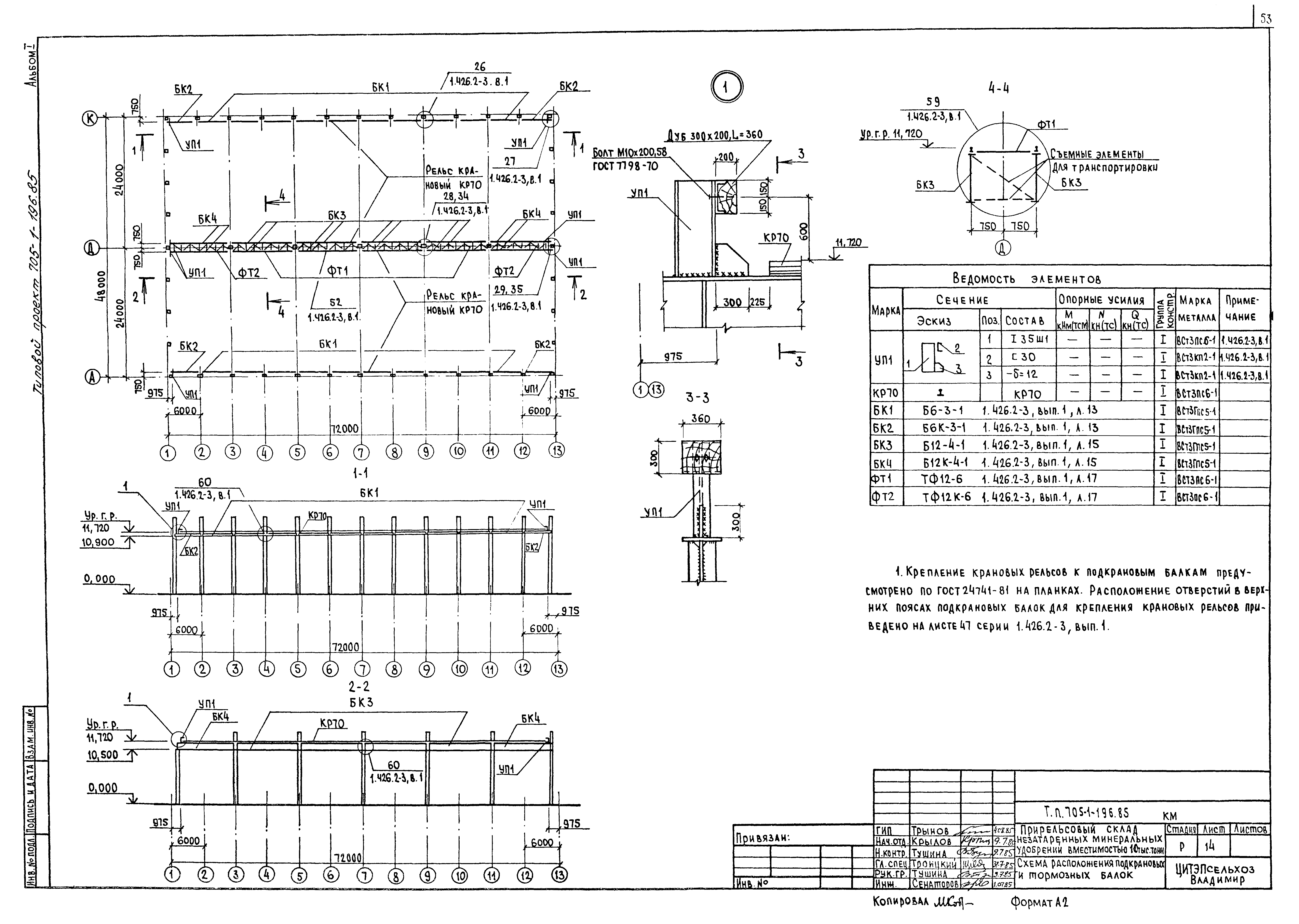
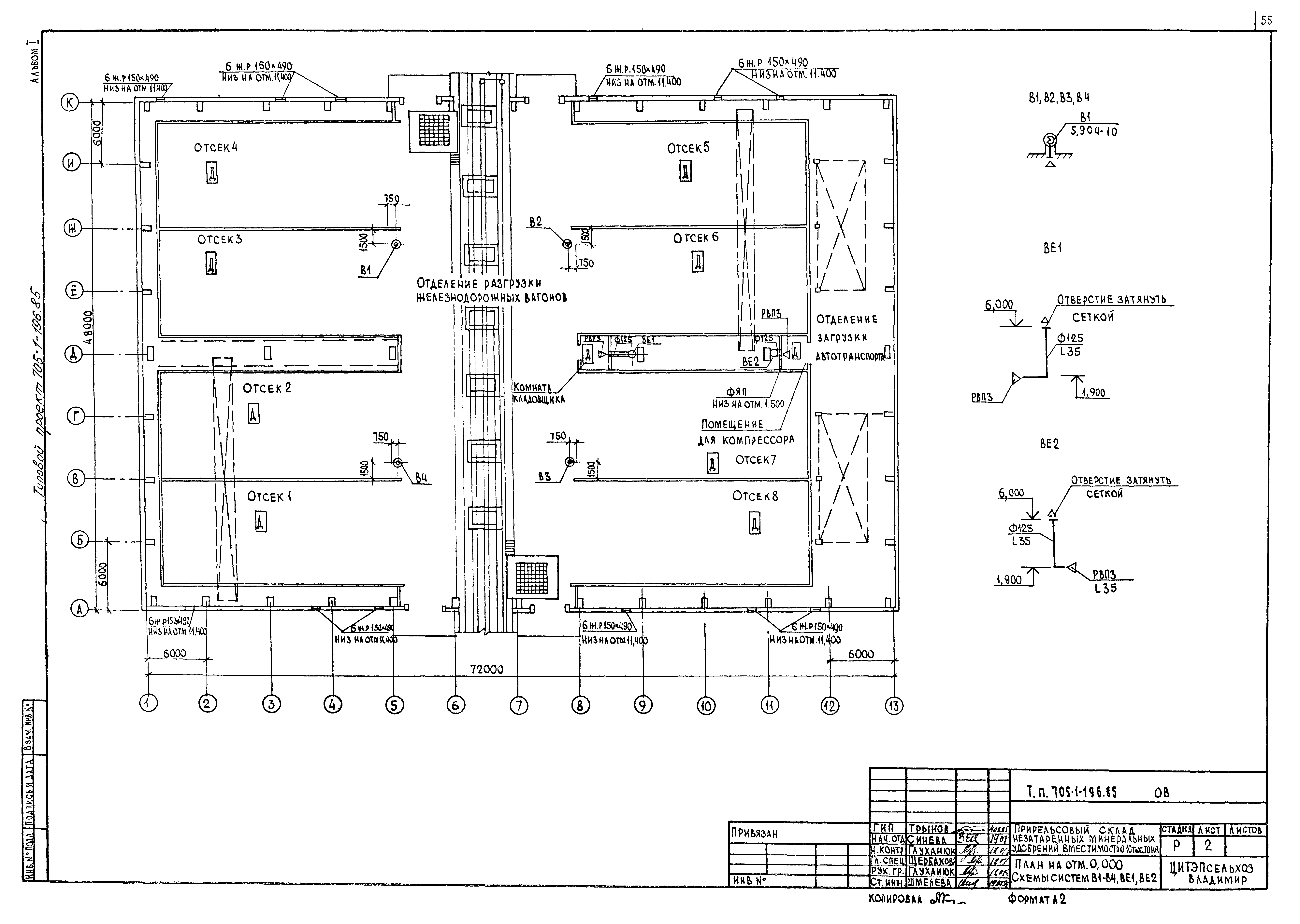
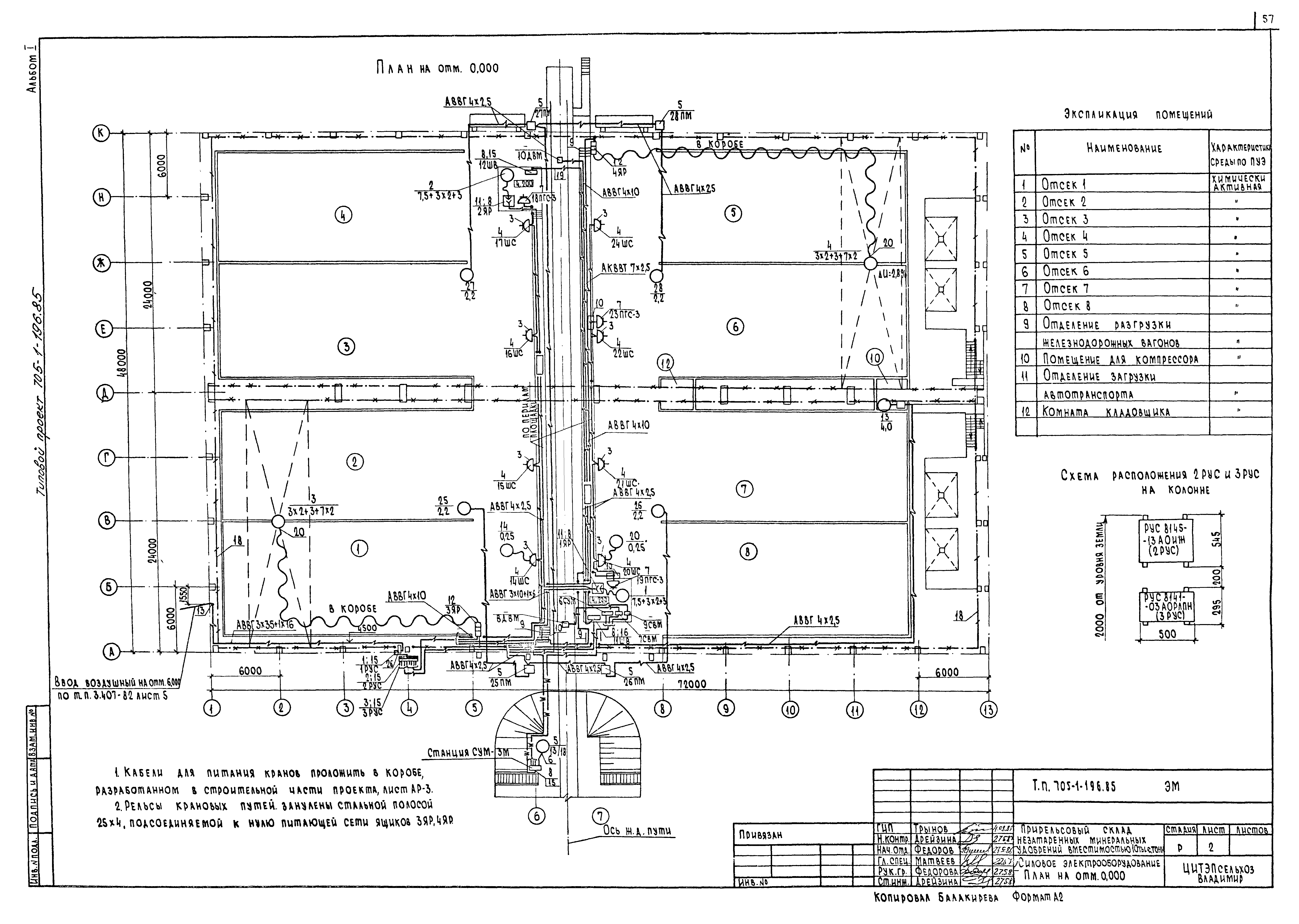
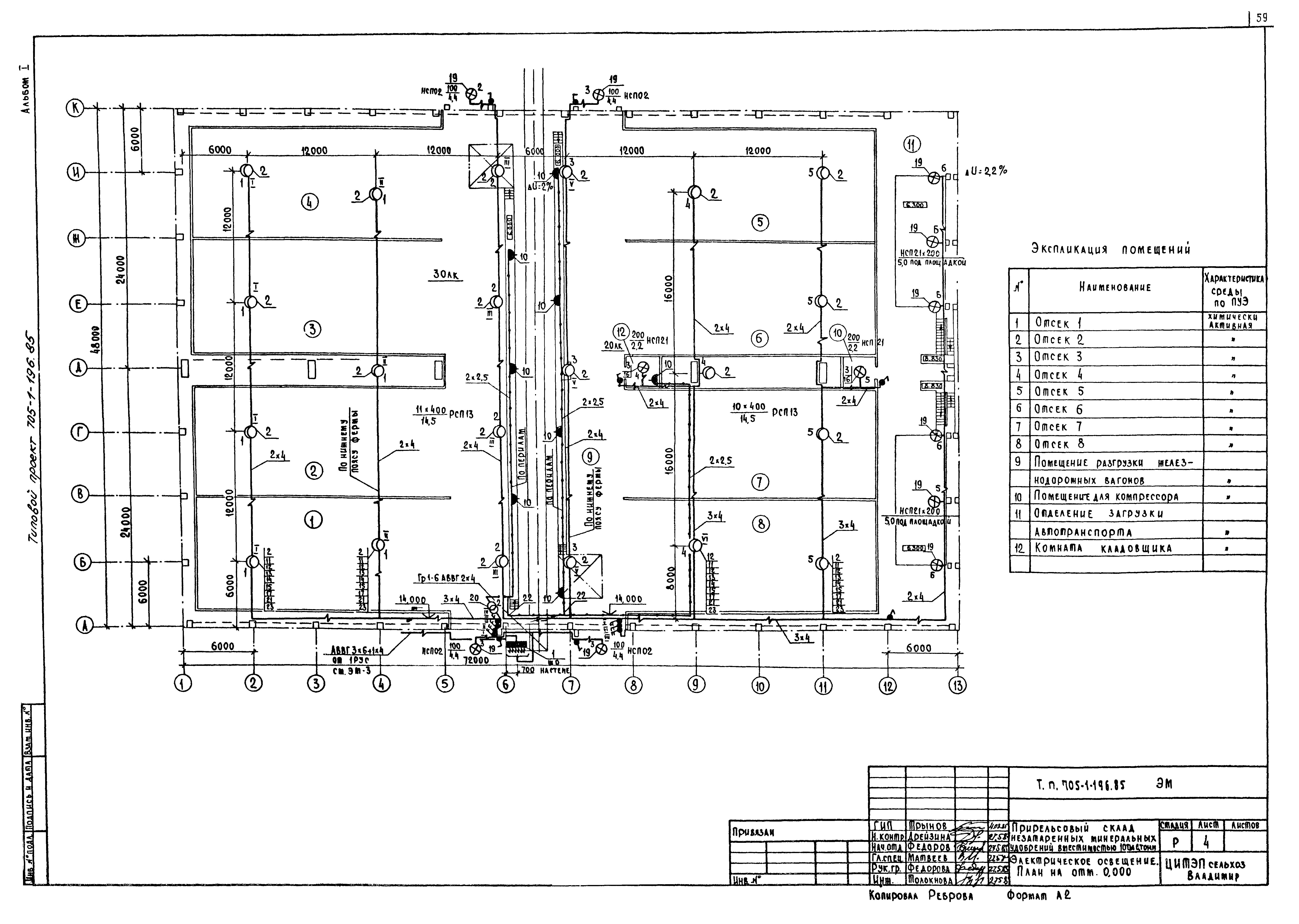
| Оглавление: | ТП 705-1-196.85 Содержание альбома ТП 705-1-196.85-ПЗ-1 Пояснительная записка ТП 705-1-196.85-ПЗ-2 Пояснительная записка ТП 705-1-196.85-ПЗ-3 Пояснительная записка ТП 705-1-196.85-ПЗ-4 Пояснительная записка ТП 705-1-196.85-ПЗ-5 Пояснительная записка ТП 705-1-196.85-ПЗ-6 Пояснительная записка ТП 705-1-196.85-ТХ-1 Общие данные. Разрез 1-1 и 2-2 ТП 705-1-196.85-ТХ-2 План на отм. 0.000 ТП 705-1-196.85-ТХ-3 Воздухоснабжение ТП 705-1-196.85-ТХН-1 Бункер стационарный вместимостью 10 м³. Эскизный чертеж общего вида ТП 705-1-196.85-АР-1 Общие данные ТП 705-1-196.85-АР-2 План на отм. 0.000. Фрагменты 1,2 ТП 705-1-196.85-АР-3 Фрагменты 3,4,5 ТП 705-1-196.85-АР-4 Фасады 1-13,А-К,К-А. Разрезы 1-1,2-2,3-3. Узел 3 ТП 705-1-196.85-АР-5 Схема заполнения оконных проемов ТП 705-1-196.85-АР-6 Планы полов, кровли ТП 705-1-196.85-АР-7 Схема установки ветрового ригеля. Узлы 1,2,4,6 ТП 705-1-196.85-АР-8 Схема расположения деревянных щитов ТП 705-1-196.85-КЖ-1 Общие данные ТП 705-1-196.85-КЖ-2 Общие данные (окончание) ТП 705-1-196.85-КЖ-3 Схема расположения фундаментов ТП 705-1-196.85-КЖ-4 Фундаменты ФМ1,ФМ2 ТП 705-1-196.85-КЖ-5 Фундаменты ФМ3,ФМ4 ТП 705-1-196.85-КЖ-6 Фундаменты ФМ5-ФМ7 ТП 705-1-196.85-КЖ-7 Фрагменты 1,2. Схема расположения фундамента под оборудование ТП 705-1-196.85-КЖ-8 Схема расположения стеновых панелей подпорно-разделительных стен ТП 705-1-196.85-КЖ-9 Сечение 3-3 ТП 705-1-196.85-КЖ-10 Схема расположения верхних и нижних сеток ТП 705-1-196.85-КЖ-11 Сечения 1-1÷3-3 ТП 705-1-196.85-КЖ-12 Участок монолитный УМ1 ТП 705-1-196.85-КЖ-13 Участок монолитный УМ2 ТП 705-1-196.85-КЖ-14 Схема расположения колонн ТП 705-1-196.85-КЖ-15 Разрезы 1-1÷8-8 ТП 705-1-196.85-КЖ-16 Узлы 5-10 ТП 705-1-196.85-КЖ-17 Схемы расположения стропильных и подстропильных ферм, плит перекрытий и покрытий ТП 705-1-196.85-КЖ-18 Схемы расположения стеновых панелей по осям А,К ТП 705-1-196.85-КЖ-19 Схемы расположения стеновых панелей по осям 1,13 ТП 705-1-196.85-КМ-1 Общие данные (начало) ТП 705-1-196.85-КМ-2 Общие данные (продолжение) ТП 705-1-196.85-КМ-3 Общие данные (продолжение) ТП 705-1-196.85-КМ-4 Общие данные (окончание) ТП 705-1-196.85-КМ-5 Площадка 1,3 ТП 705-1-196.85-КМ-6 Площадка 2 ТП 705-1-196.85-КМ-7 Лестница Л1. Лестница Л2. Схема расположения лестниц Л3 ТП 705-1-196.85-КМ-8 Схемы расположения ригелей для крепления лестницы Л1, столиков для плит покрытия и ограждения кровли ТП 705-1-196.85-КМ-9 Узлы 1-8 ТП 705-1-196.85-КМ-10 Узлы 9-15 ТП 705-1-196.85-КМ-11 Узлы 16-18 ТП 705-1-196.85-КМ-12 Узлы 19-26 ТП 705-1-196.85-КМ-13 Узлы 27-36 ТП 705-1-196.85-КМ-14 Схема расположения подкрановых и тормозных балок ТП 705-1-196.85-ОВ-1 Общие данные ТП 705-1-196.85-ОВ-2 План на отм. 0.000. Схемы систем В1-В4,ВЕ1,ВЕ2 ТП 705-1-196.85-ЭМ-1 Общие данные ТП 705-1-196.85-ЭМ-2 Силовое электрооборудование. План на отм. 0.000 ТП 705-1-196.85-ЭМ-3 Силовое электрооборудование. Принципиальная расчетная схема ТП 705-1-196.85-ЭМ-4 Электрическое освещение. План на отм. 0.000 ТП 705-1-196.85-ЭМ-5 Силовое электрооборудование. Электрическое освещение. Спецификации ТП 705-1-196.85-ЭМ.ВИ Ведомость изделий мастерских электромонтажных заготовок МЭЗ ТП 705-1-196.85-ЭМ.ВИМ Ведомость изделий и материалов для изготовления изделий МЭЗ ТП 705-1-196.85-ЭМ.ВР Ведомость объемов строительных и монтажных работ по чертежам ТП 705-1-196.85-СС-1 Общие данные. План |
| Разработан: | ЦИТЭПсельхозпром |
| Утверждён: | 06.06.1985 Минсельхоз СССР (USSR Minselkhoz 41-ЭГ) |































































