Скачать Типовой проект 705-1-197.86 Альбом 1. Пояснительная записка. Технология производства. Нетиповые технологические конструкции. Эскизные чертежи. Воздухоснабжение. Связь и сигнализация. Конструкции металлические покрытия. Антикоррозийная защита строительных конструкцийДата актуализации: 01.01.2021
|
| Обозначение: | Типовой проект 705-1-197.86 |
| Обозначение англ: | 705-1-197.86 |
| Статус: | действует |
| Название рус.: | Альбом 1. Пояснительная записка. Технология производства. Нетиповые технологические конструкции. Эскизные чертежи. Воздухоснабжение. Связь и сигнализация. Конструкции металлические покрытия. Антикоррозийная защита строительных конструкций |
| Дата добавления в базу: | 01.09.2013 |
| Дата актуализации: | 01.01.2021 |
| Дата введения: | 25.10.1985 |
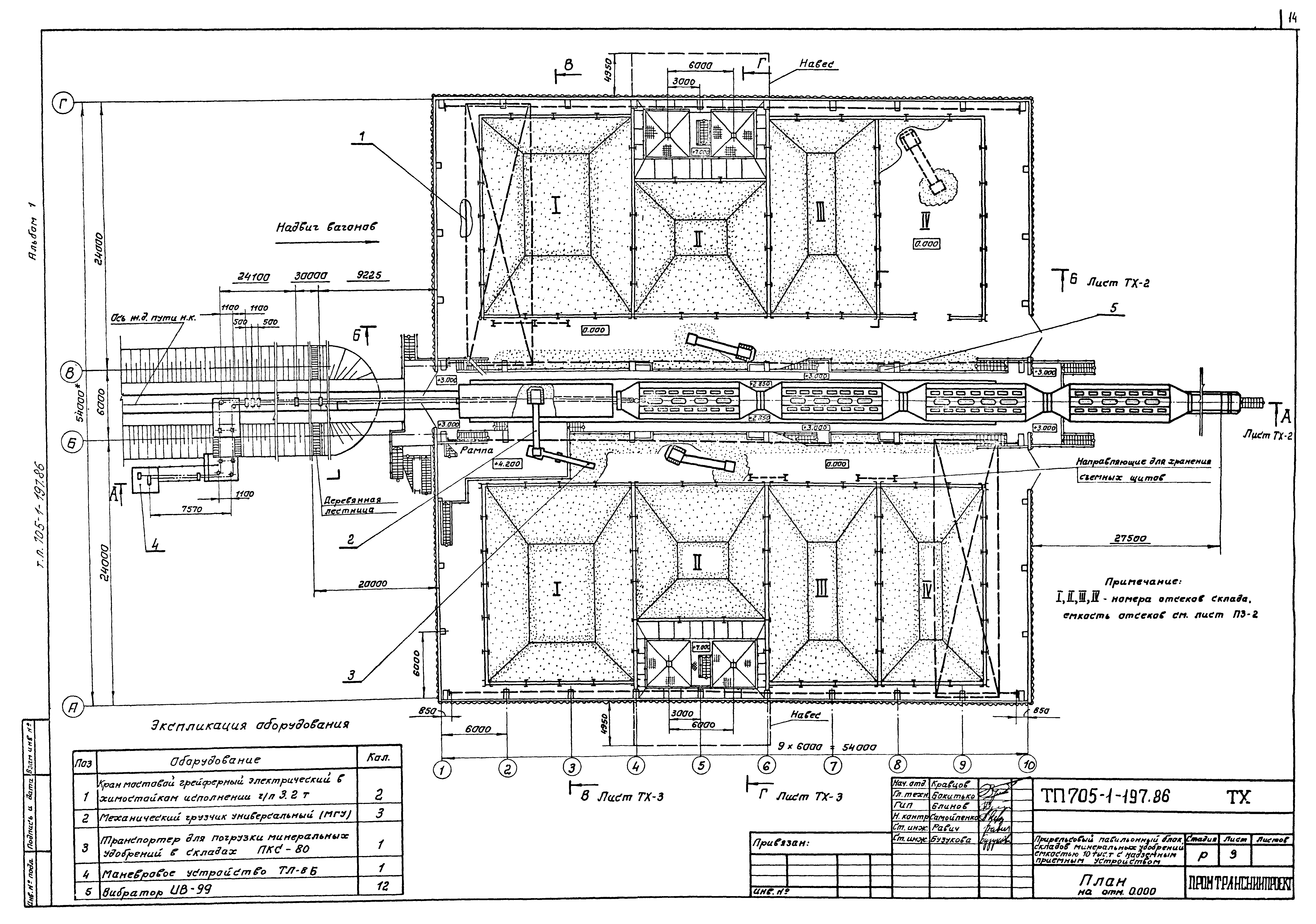
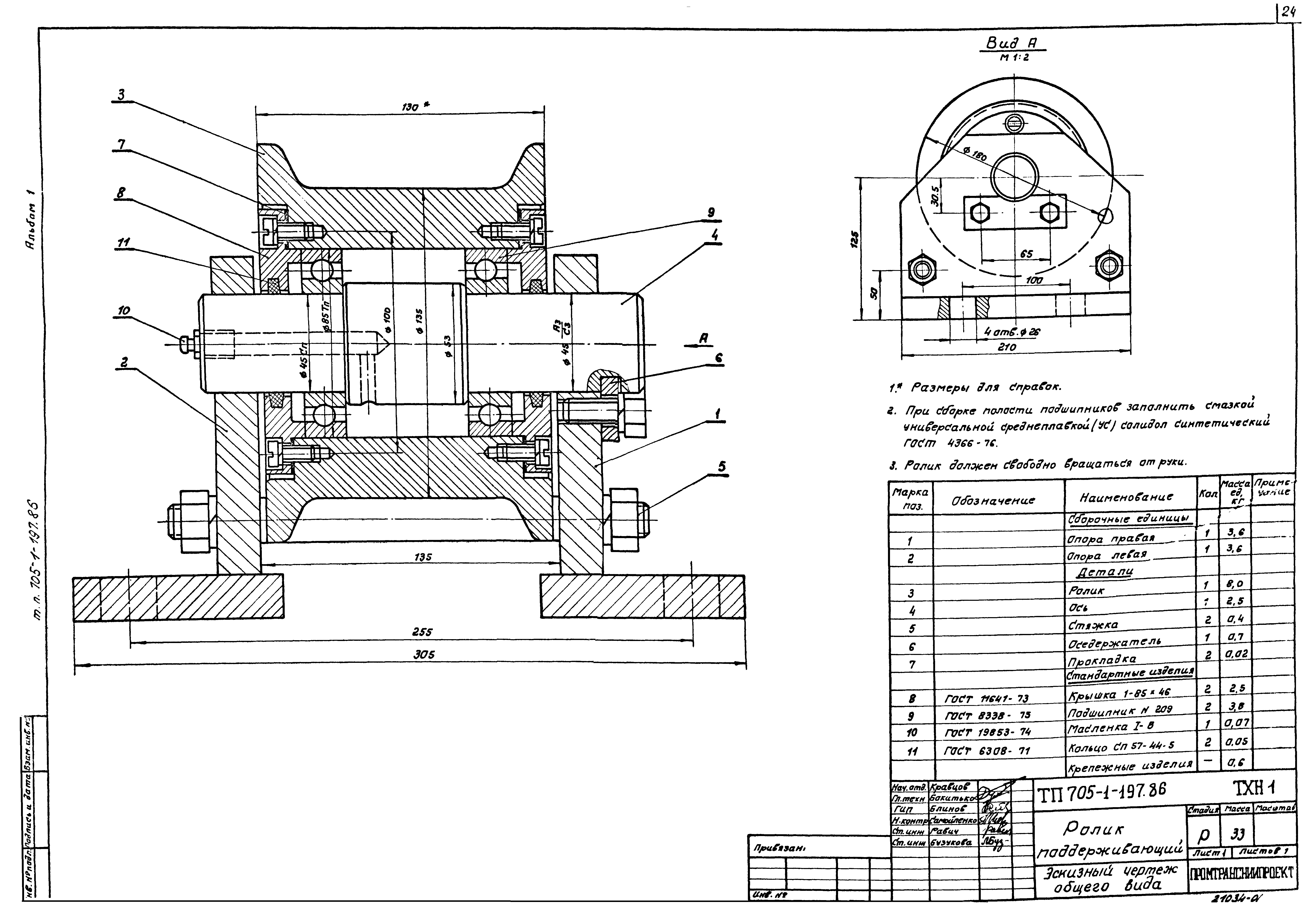
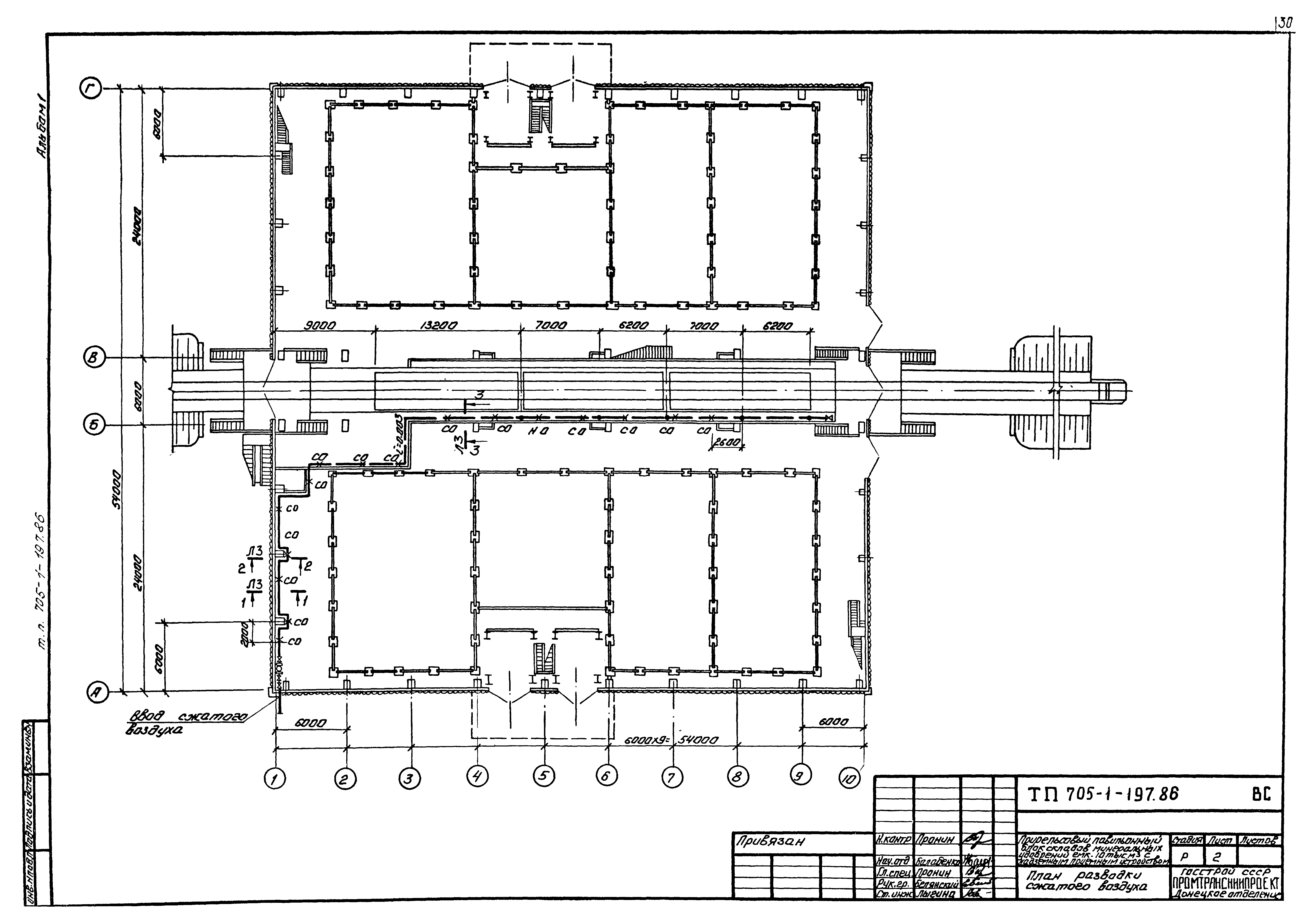
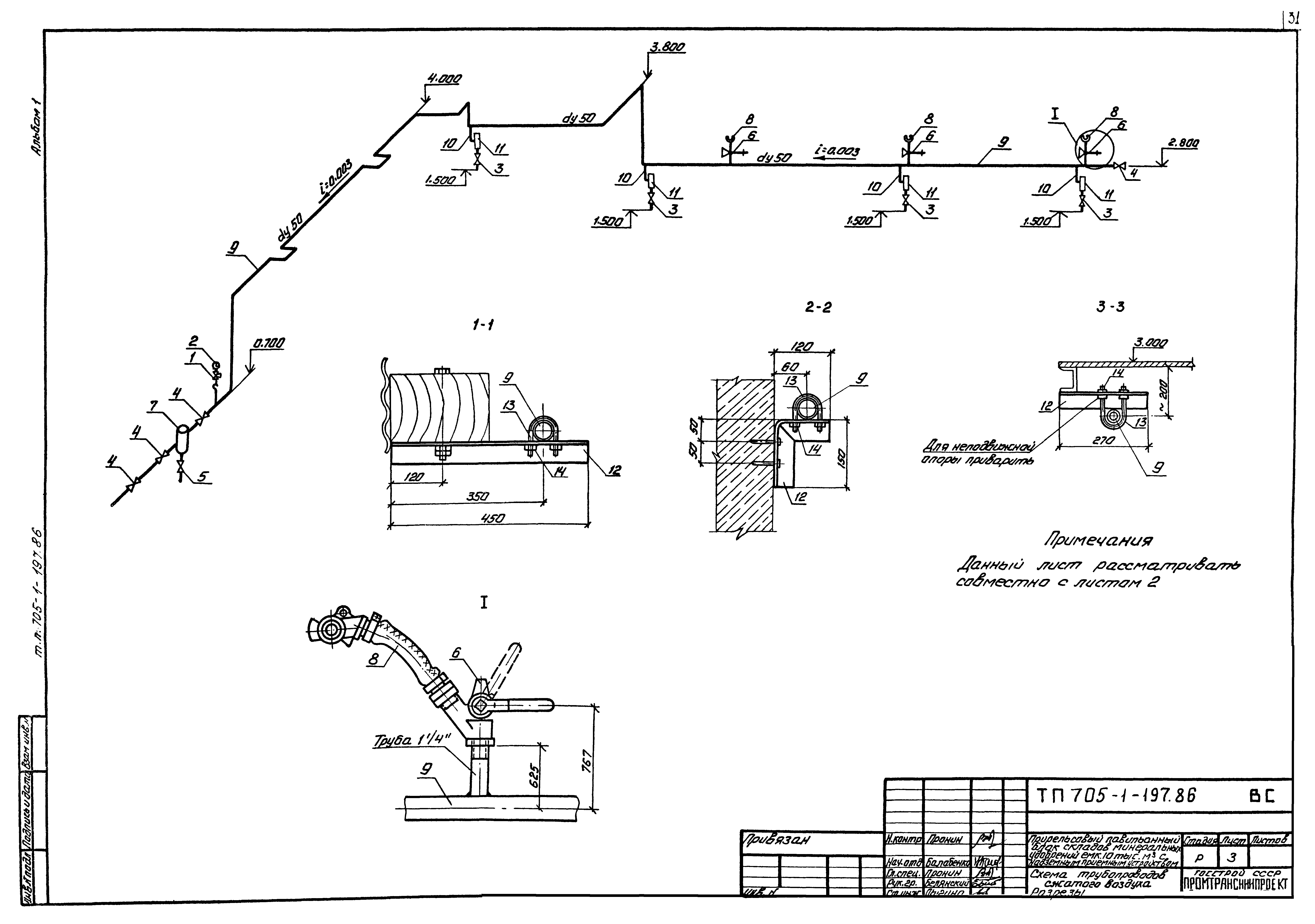
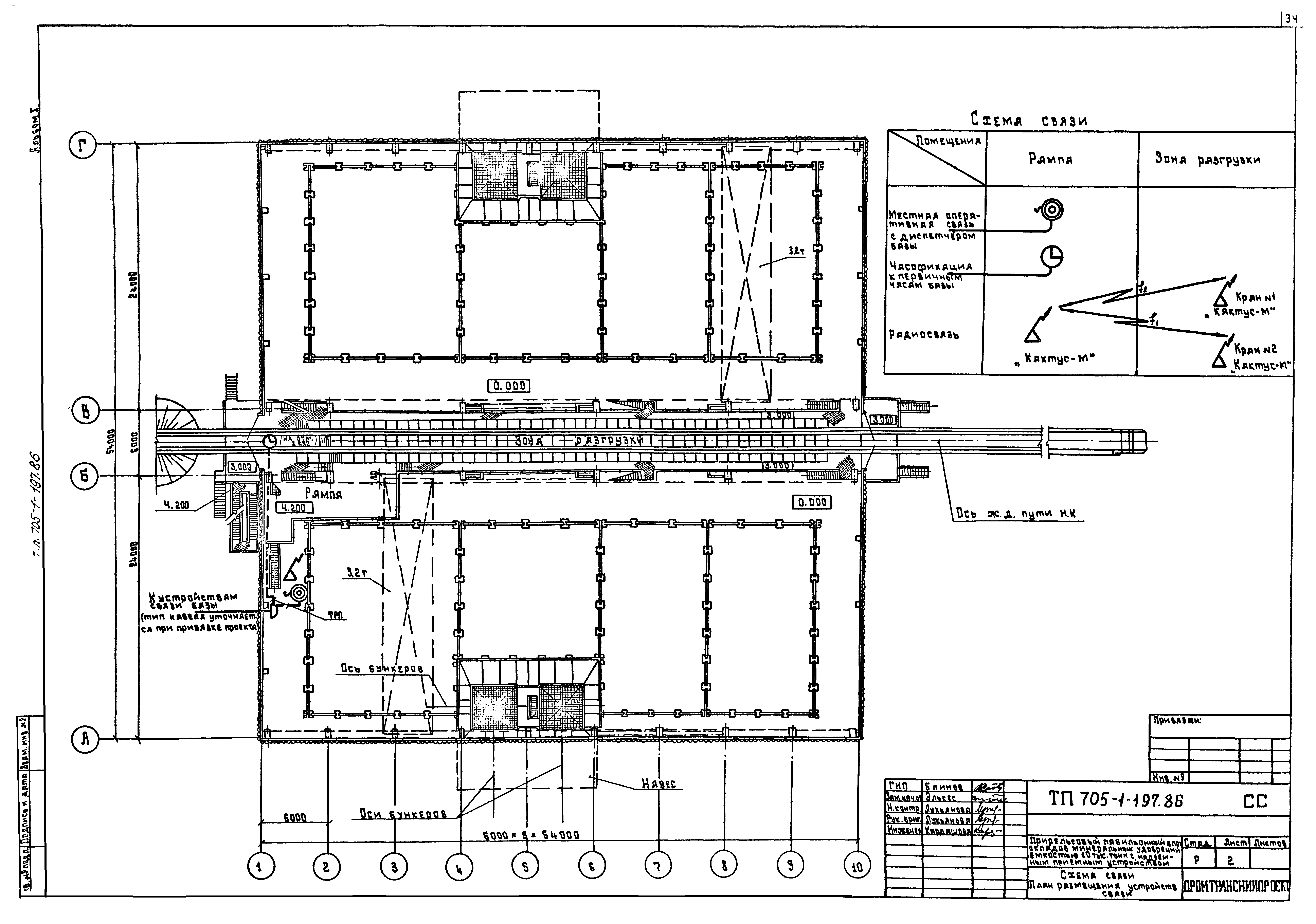
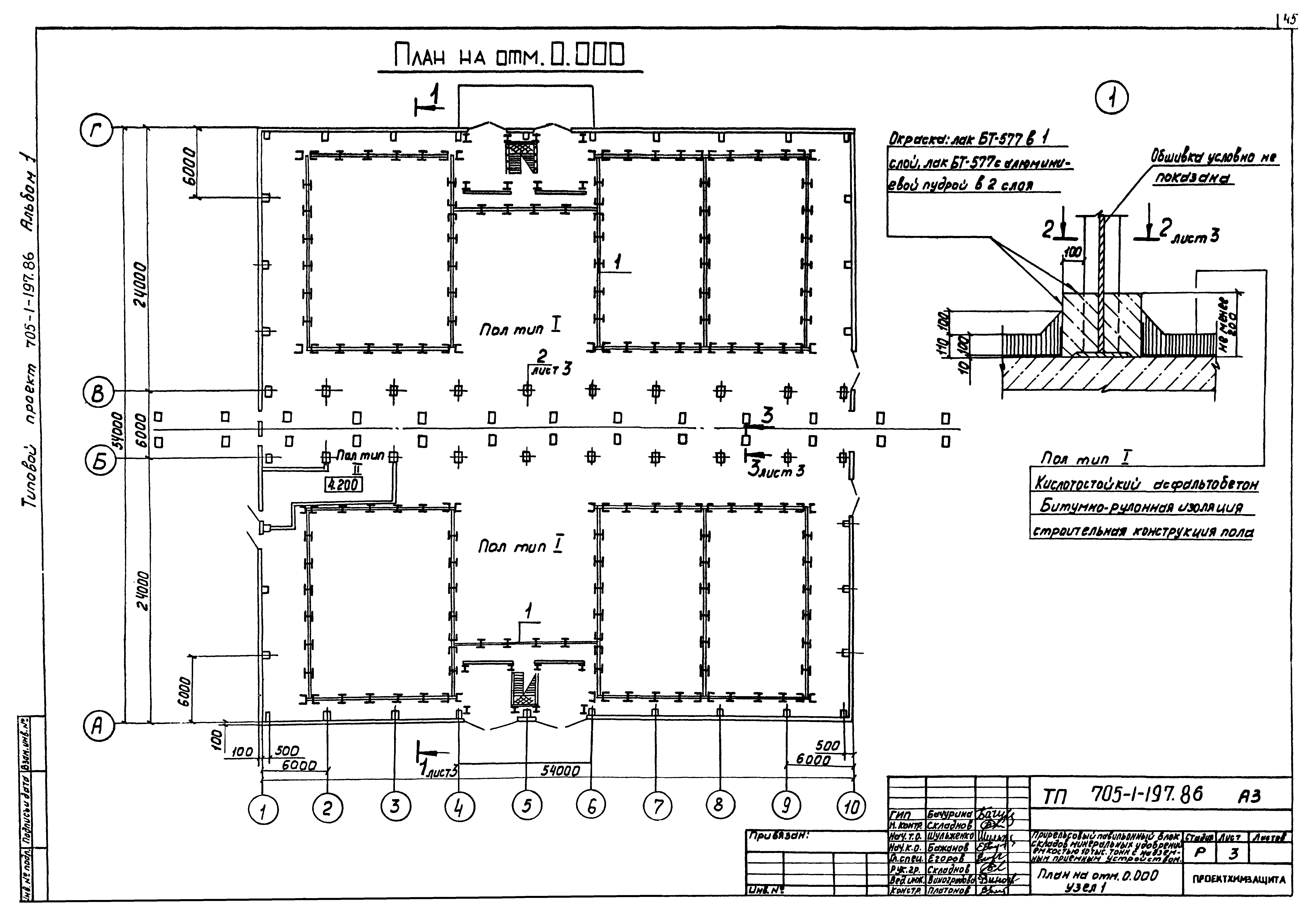
| Оглавление: | ТП 705-1-197.86 Содержание альбома ТП 705-1-197.86-ПЗ Пояснительная записка ТП 705-1-197.86-ТХ Технологические чертежи ТП 705-1-197.86-ТХ-1 Общие данные (начало) ТП 705-1-197.86-ТХ-1 Общие данные (окончание) ТП 705-1-197.86-ТХ-1 План ТП 705-1-197.86-ТХ-1 Разрезы А-А;Б-Б ТП 705-1-197.86-ТХ-1 Разрезы В-В;Г-Г ТП 705-1-197.86-ТХ-1 Схема установки первой группы вагонов бункерного типа под разгрузку ТП 705-1-197.86-ТХ-1 Схема установки второй группы вагонов бункерного типа под разгрузку ТП 705-1-197.86-ТХ-1 Схема образования отвалов при разгрузке вагонов на повышенном ж.д. пути ТП 705-1-197.86-ТХ-1 Схема расположения технологических зон и участков ТП 705-1-197.86-ТХ-1 Установка крана мостового грейферного г/п 3.2 т в химстойком исполнении ТП 705-1-197.86-ТХ-1 Устройство маневровое ТП 705-1-197.86-ТХ-1 Разрезы А-А;Б-Б;В-В,Г-Г. Вид Д ТП 705-1-197.86-ТХН-1 Нетиповые технологические конструкции. Эскизные чертежи ТП 705-1-197.86-ТХН-1 Ролик поддерживающий ТП 705-1-197.86-ТХН-1 Ролик поддерживающий сдвоенный ТП 705-1-197.86-ТХН-1 Петля ТП 705-1-197.86-ТХН-1 Блок ø 450 ТП 705-1-197.86-ТХН-1 Блок хвостовой ТП 705-1-197.86-ТХН-1 Ограждение лебедки ТП 705-1-197.86-ВС Чертежи воздухоснабжения ТП 705-1-197.86-ВС-1 Общие данные ТП 705-1-197.86-ВС-2 План разводки сжатого воздуха ТП 705-1-197.86-ВС-3 Схема трубопроводов сжатого воздуха. Разрезы ТП 705-1-197.86-ВСН Нетиповые конструкции воздухоснабжения. Эскизные чертежи ТП 705-1-197.86-ВСН1 Водоотделитель ТП 705-1-197.86-ВСН2 Рукав резинотекстильный в сборе ТП 705-1-197.86-СС Чертежи связи и сигнализации ТП 705-1-197.86-СС-1 Общие данные ТП 705-1-197.86-СС-2 Схема связи. План размещения устройств связи ТП 705-1-197.86-КМ1 Чертежи конструкций металлических покрытия ТП 705-1-197.86-КМ1-1 Общие данные (начало) ТП 705-1-197.86-КМ1-2 Общие данные (продолжение) ТП 705-1-197.86-КМ1-3 Общие данные (продолжение) ТП 705-1-197.86-КМ1-4 Общие данные (окончание) ТП 705-1-197.86-КМ1-5 План покрытия. Разрезы 1-1...6-6 ТП 705-1-197.86-КМ1-6 Б1. Узел 10...12 ТП 705-1-197.86-КМ1-7 Узел 1...3 ТП 705-1-197.86-КМ1-8 Узел 4...9 ТП 705-1-197.86-АЗ Чертежи антикоррозионной защиты строительных конструкций ТП 705-1-197.86-АЗ-1 Общие данные (начало) ТП 705-1-197.86-АЗ-2 Общие данные (окончание) ТП 705-1-197.86-АЗ-3 План на отм. 0.000. Узел 1 ТП 705-1-197.86-АЗ-4 Разрезы 1-1,2-2,3-3,4-4. Узлы 2,3 |
| Разработан: | Промтрансниипроект |
| Утверждён: | 09.11.1982 Минсельхоз СССР (USSR Minselkhoz 70) |















































