Скачать Типовой проект 705-1-197.86 Альбом 2. Архитектурные решения. Конструкции железобетонные. Конструкции металлические. Отопление и вентиляцияДата актуализации: 01.01.2021
|
| Обозначение: | Типовой проект 705-1-197.86 |
| Обозначение англ: | 705-1-197.86 |
| Статус: | действует |
| Название рус.: | Альбом 2. Архитектурные решения. Конструкции железобетонные. Конструкции металлические. Отопление и вентиляция |
| Дата добавления в базу: | 01.09.2013 |
| Дата актуализации: | 01.01.2021 |
| Дата введения: | 25.10.1985 |
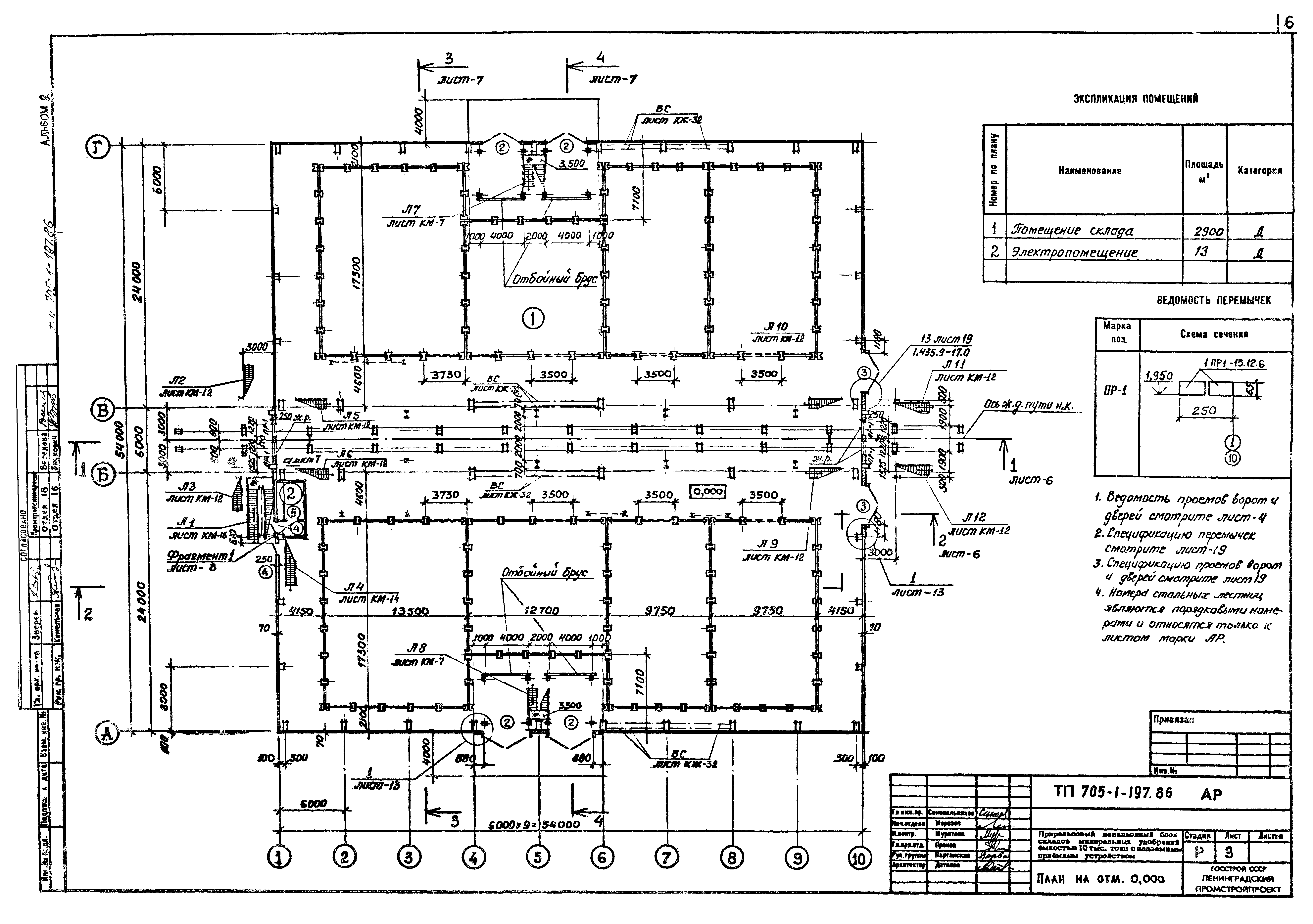
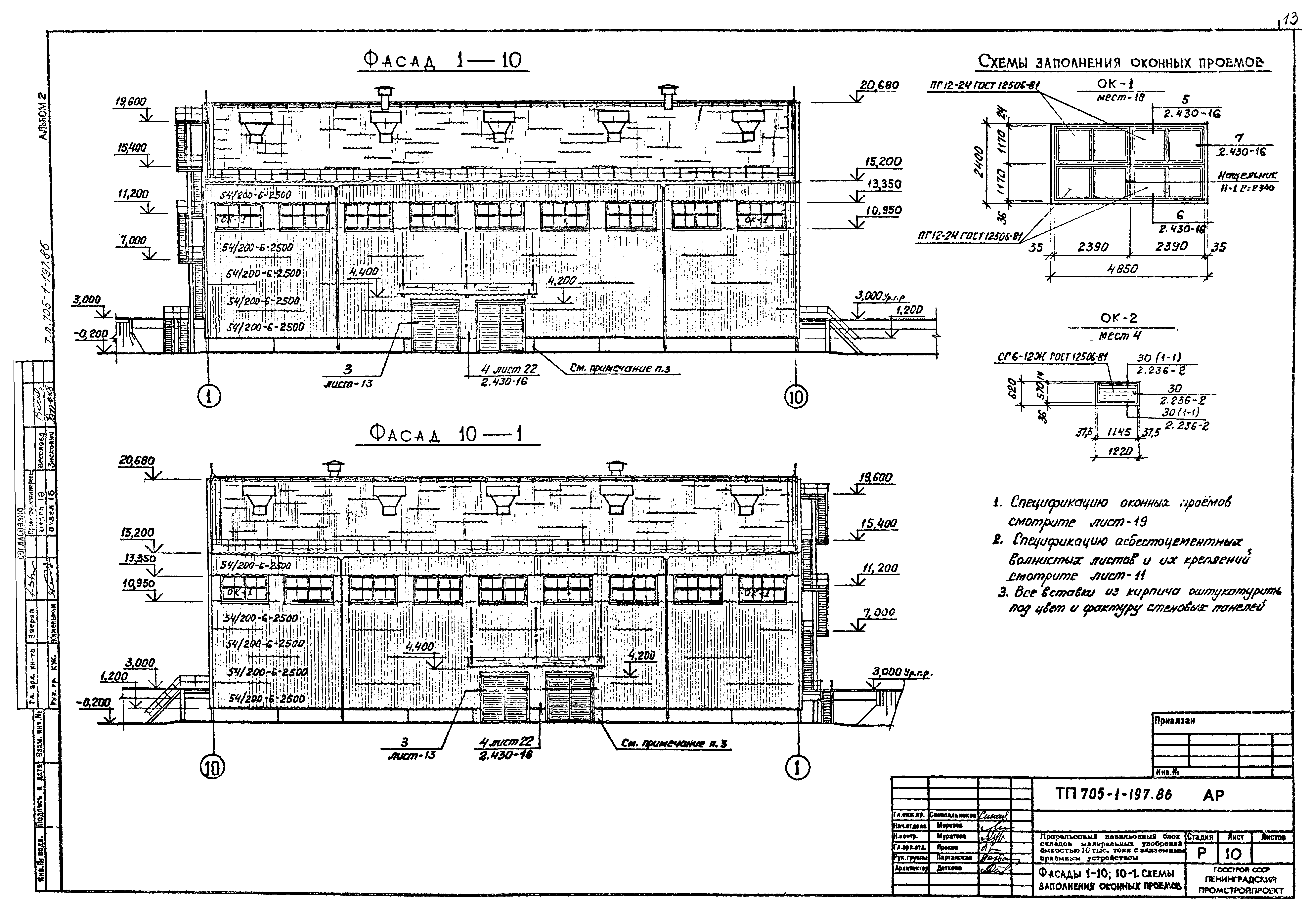
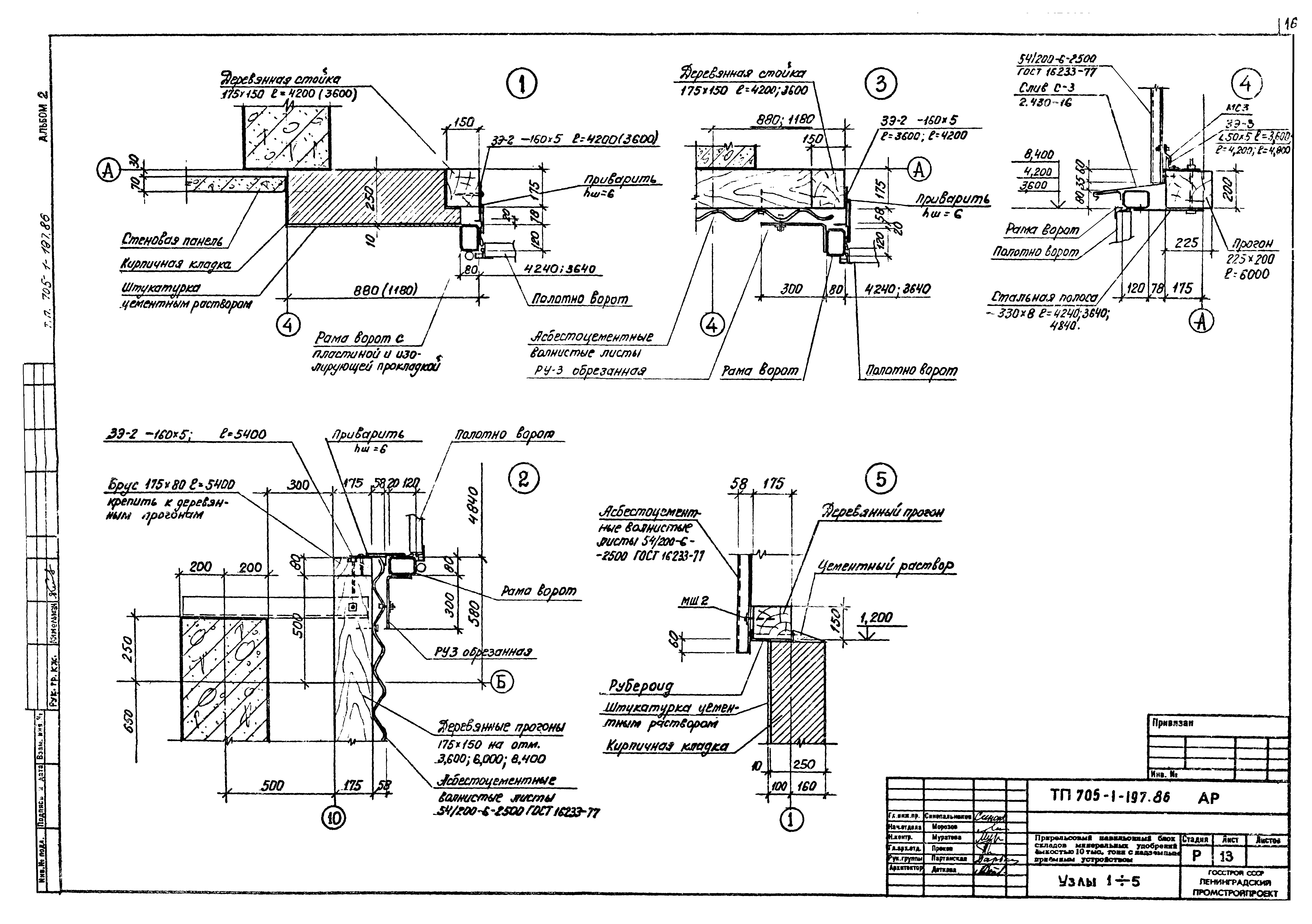
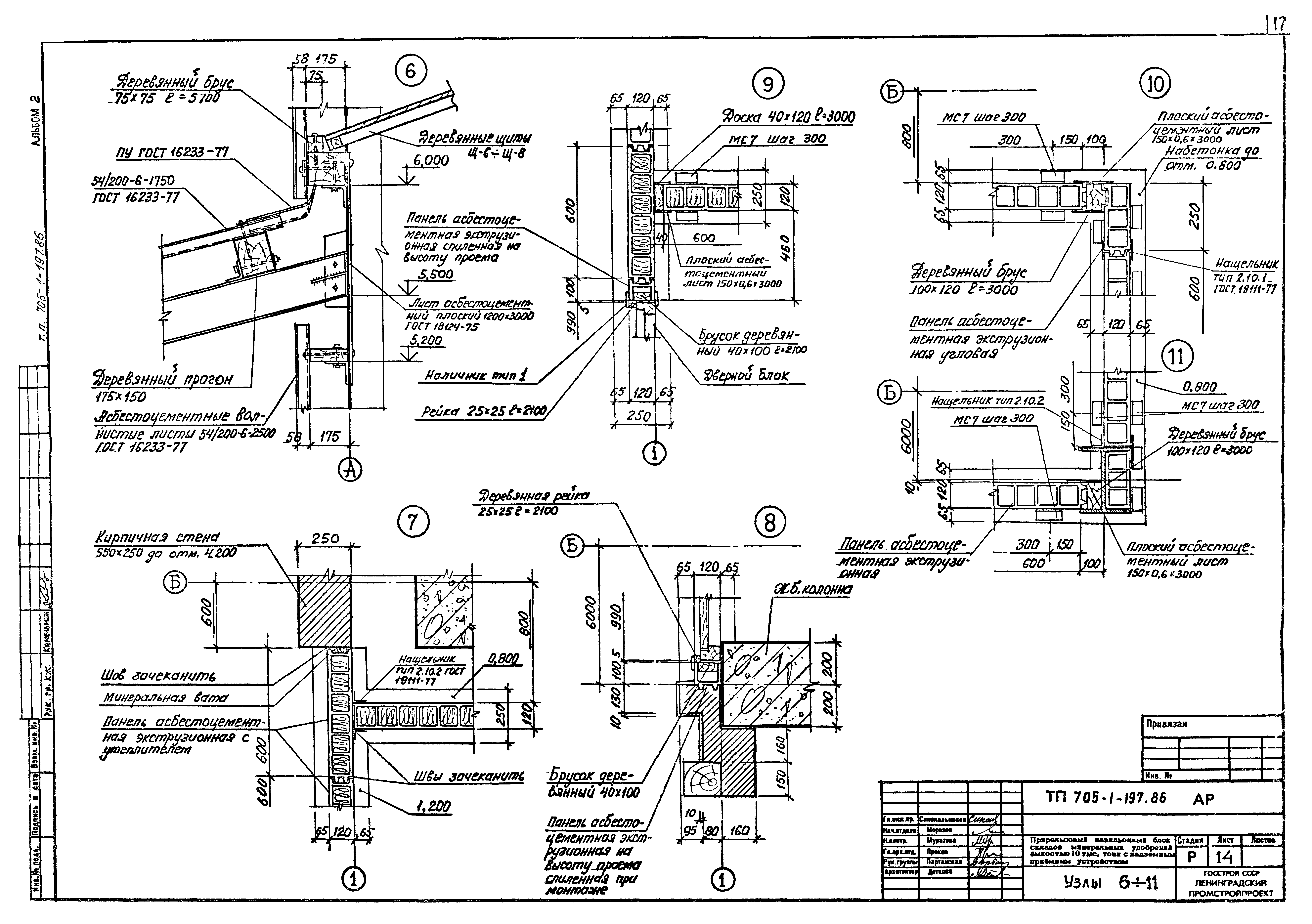
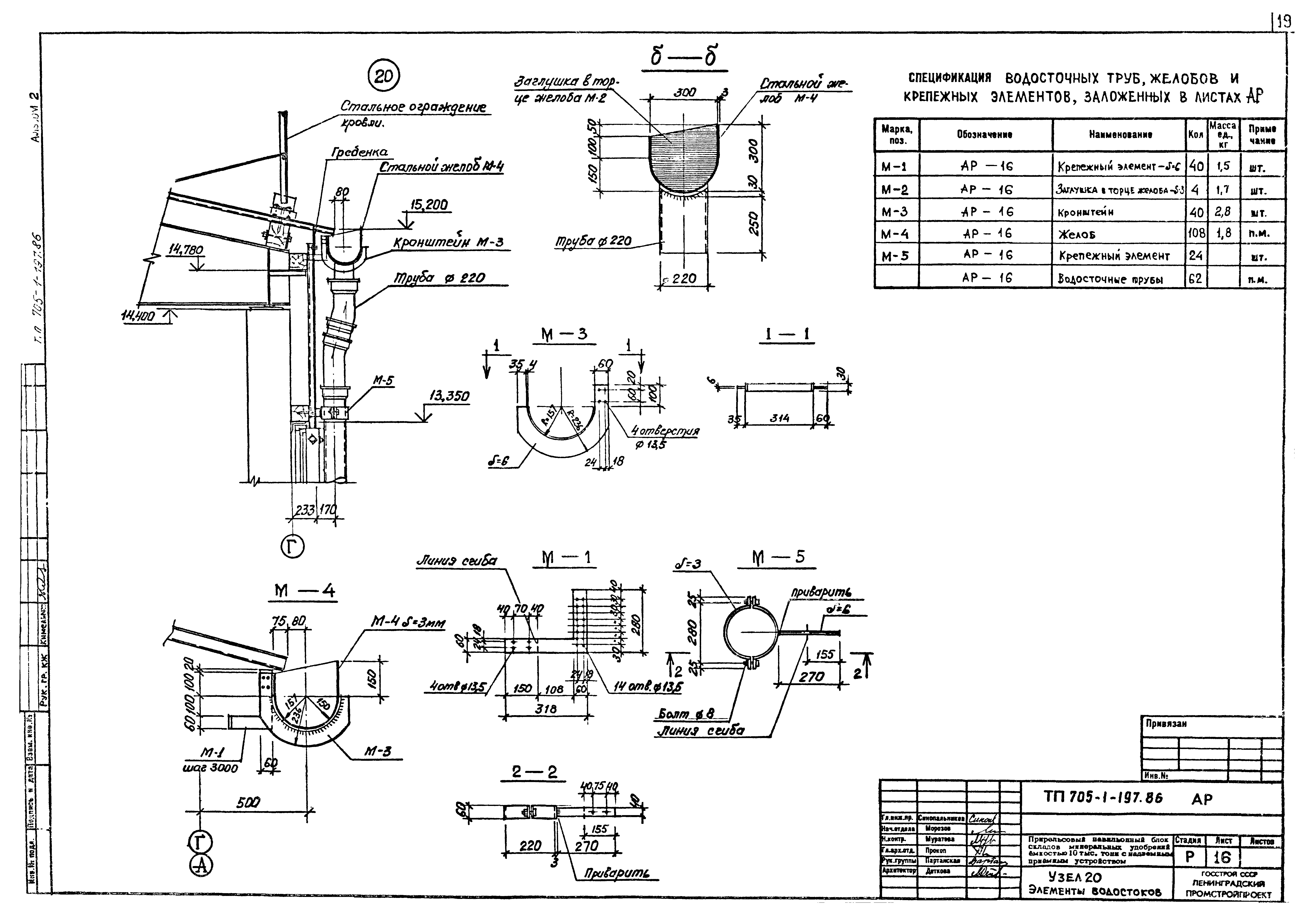
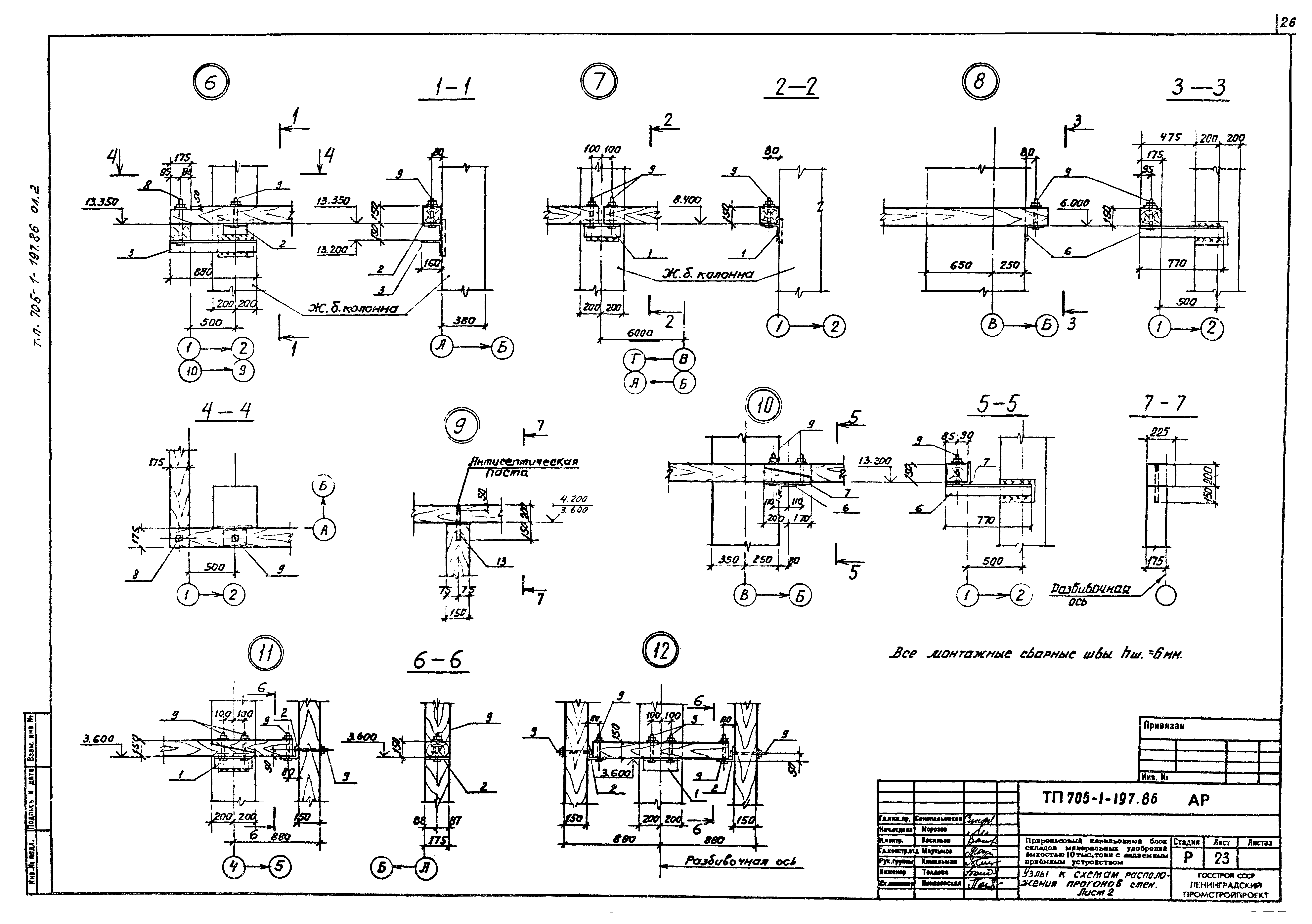
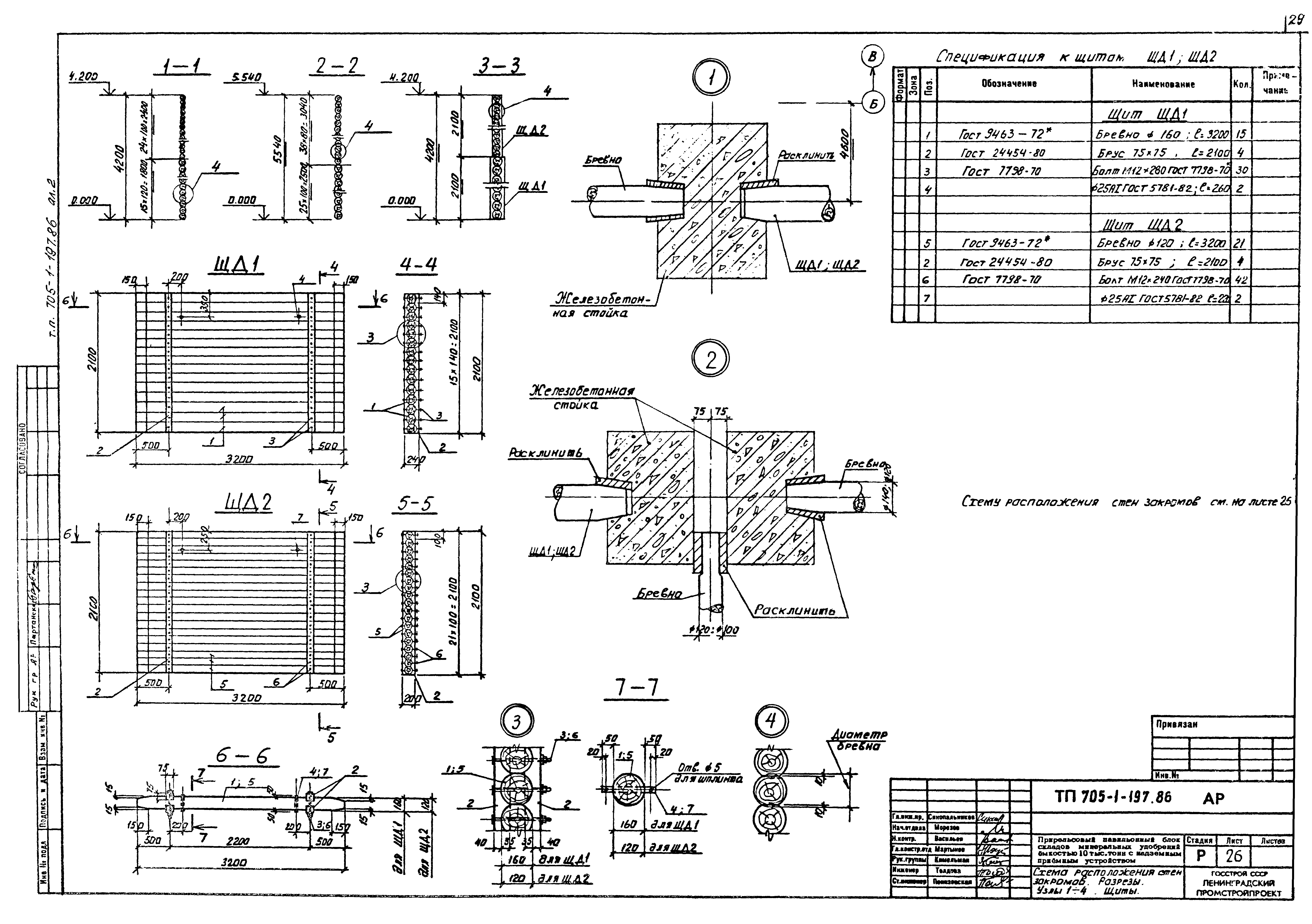
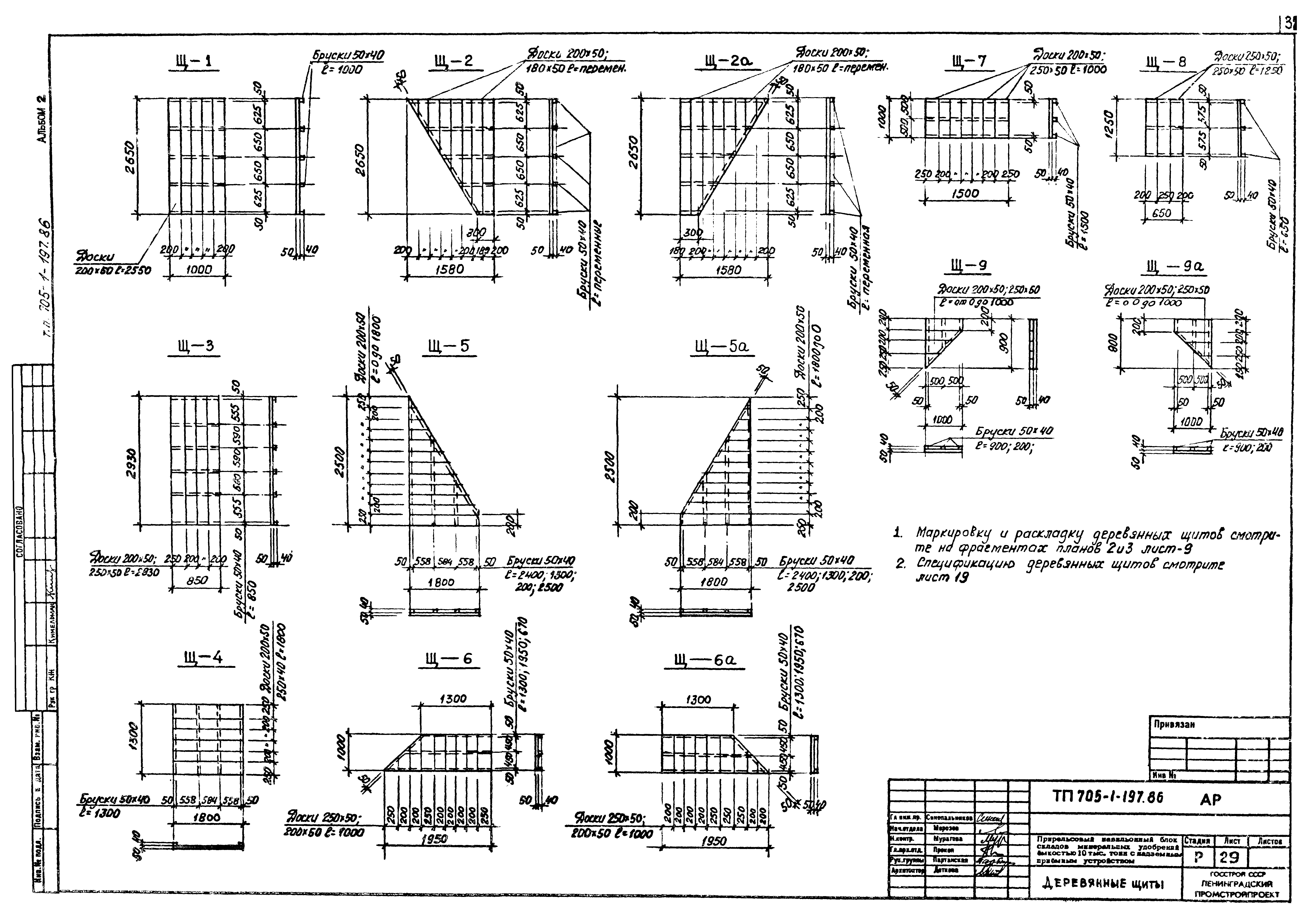
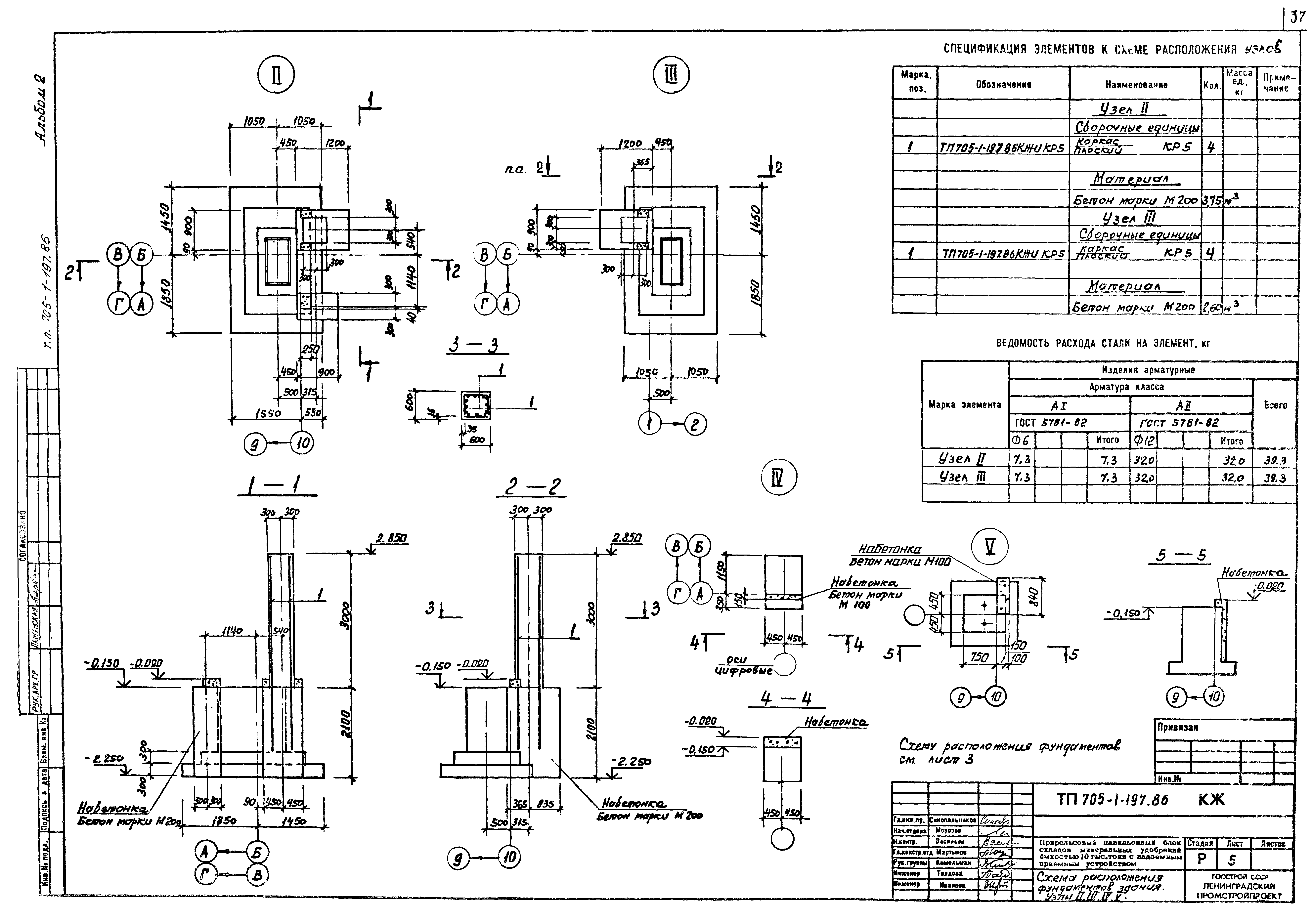
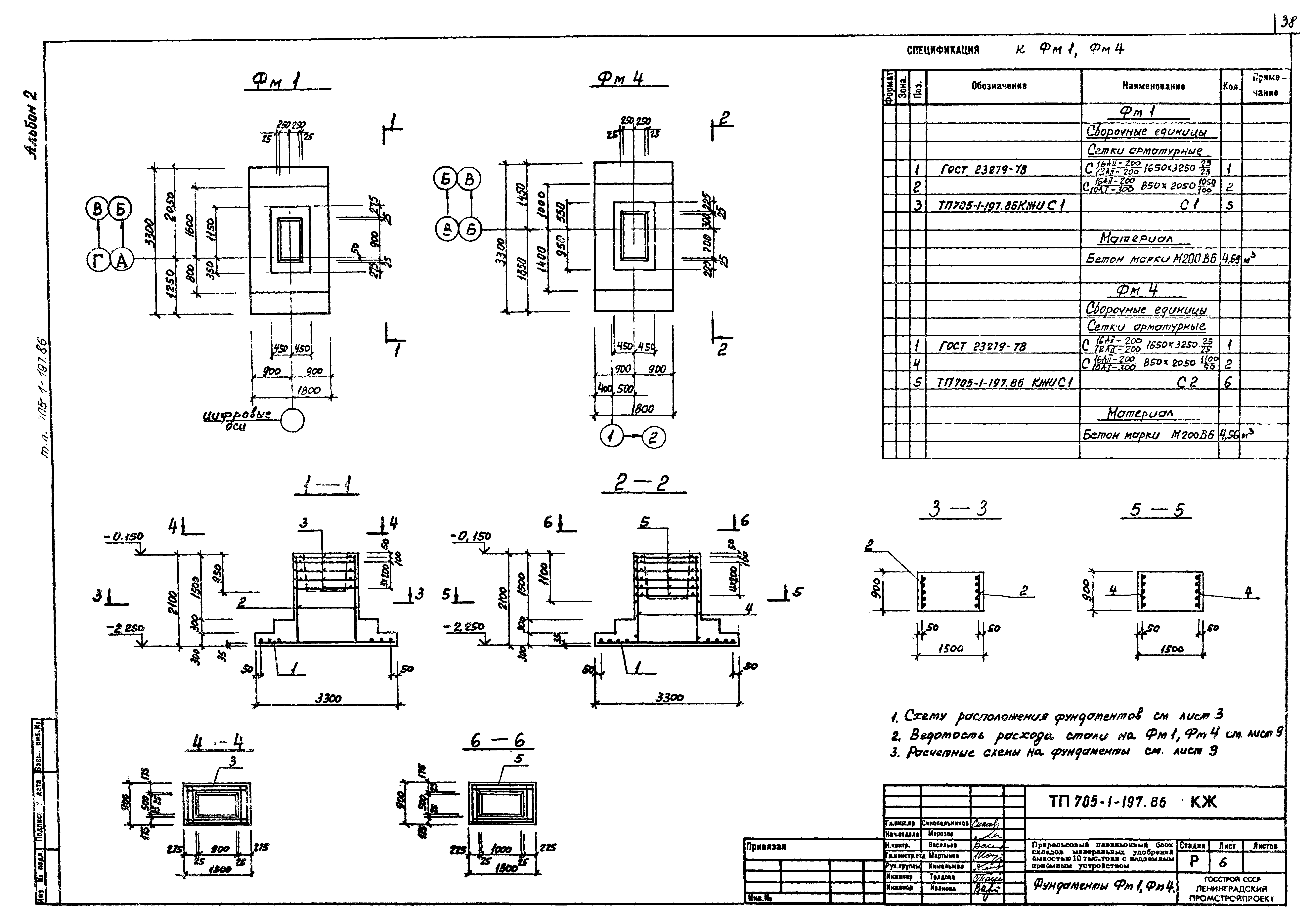
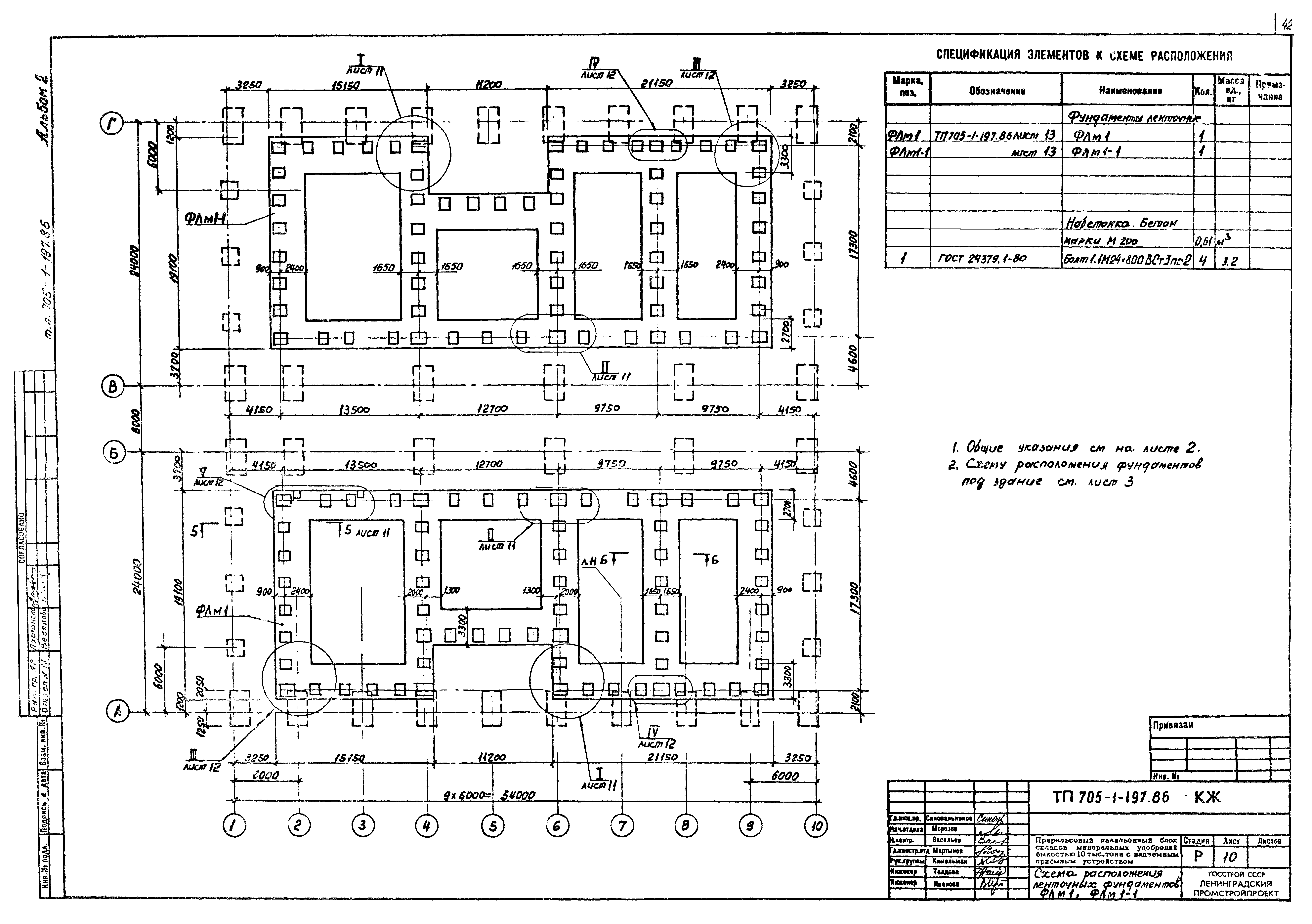
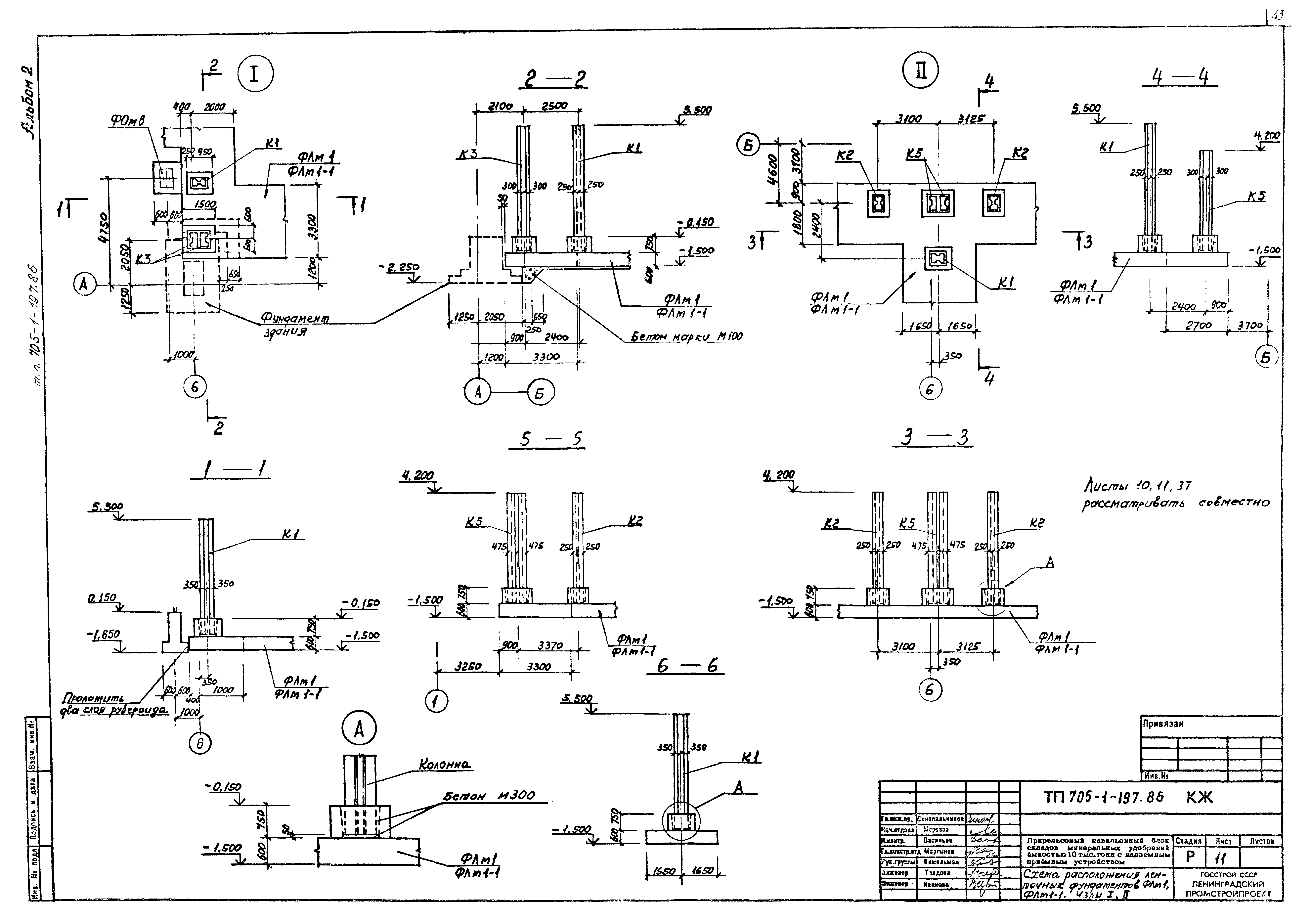
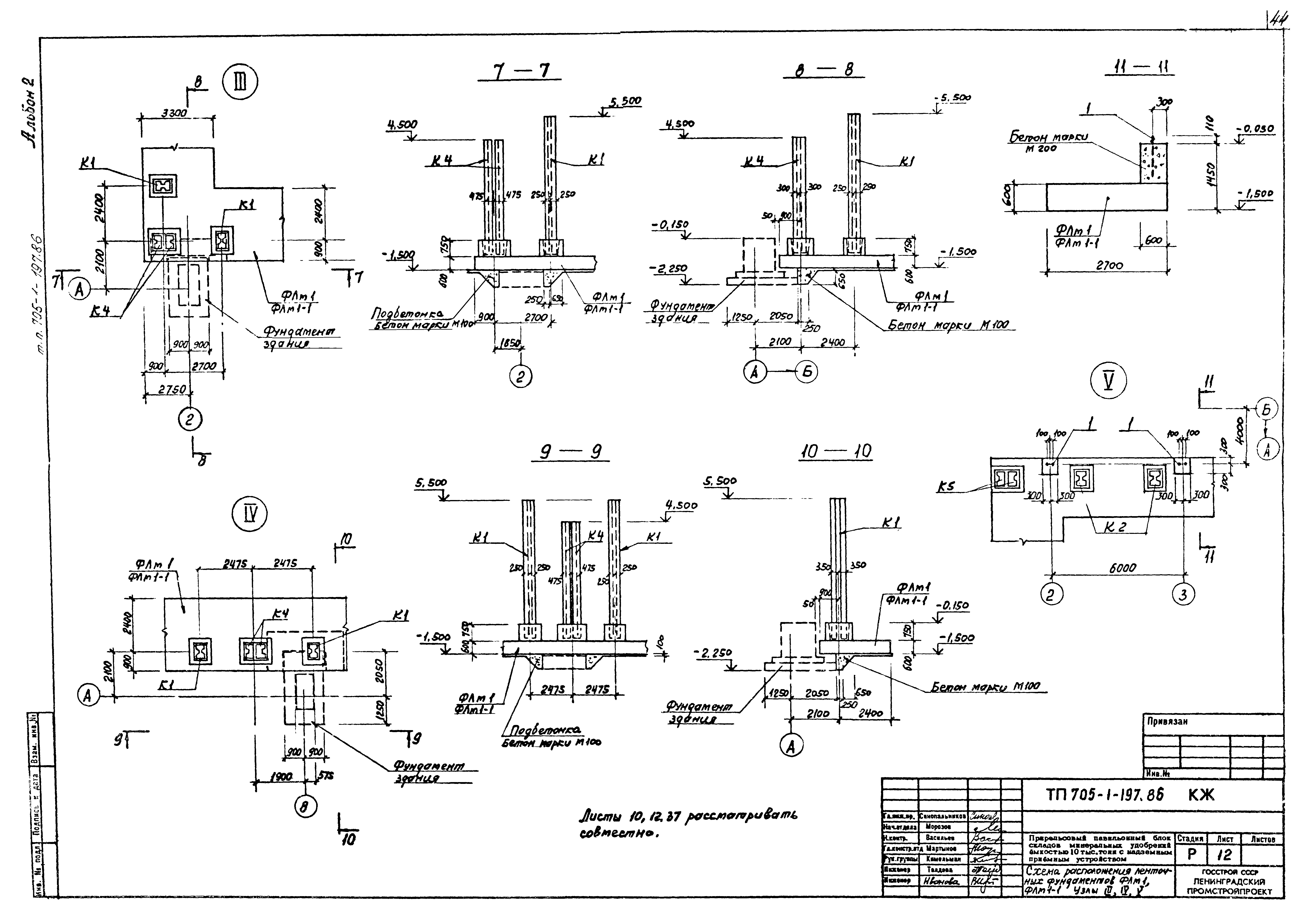
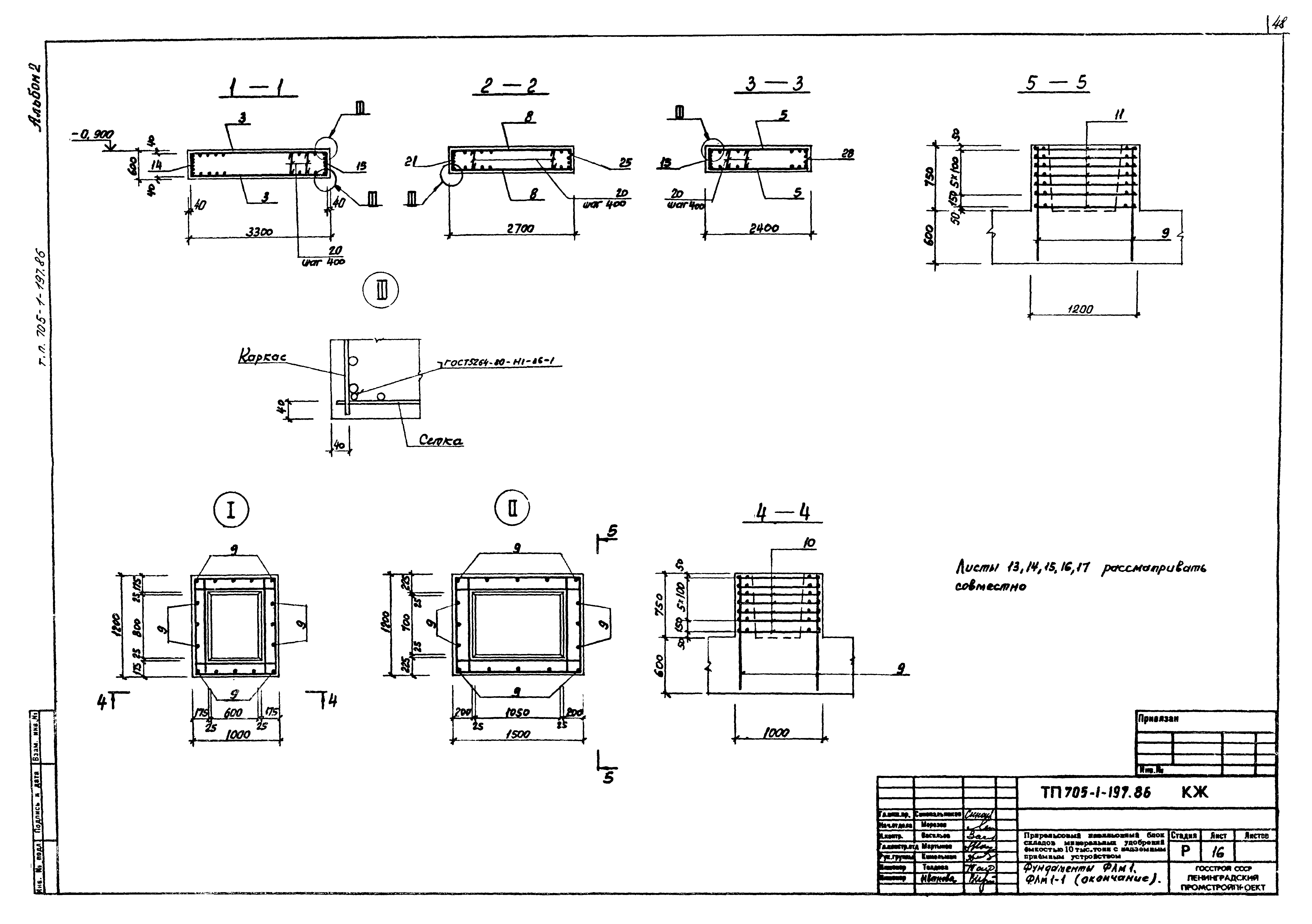
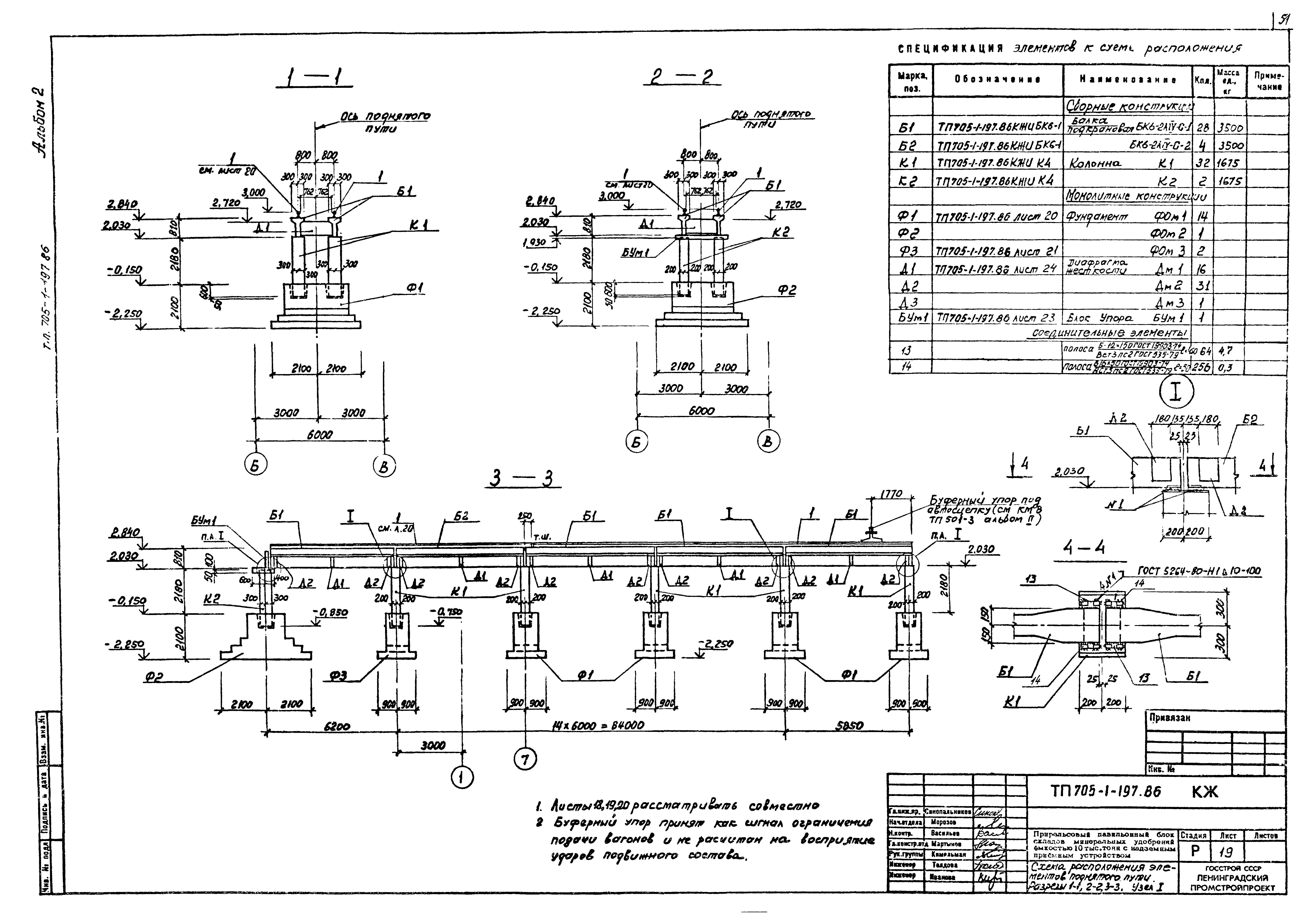
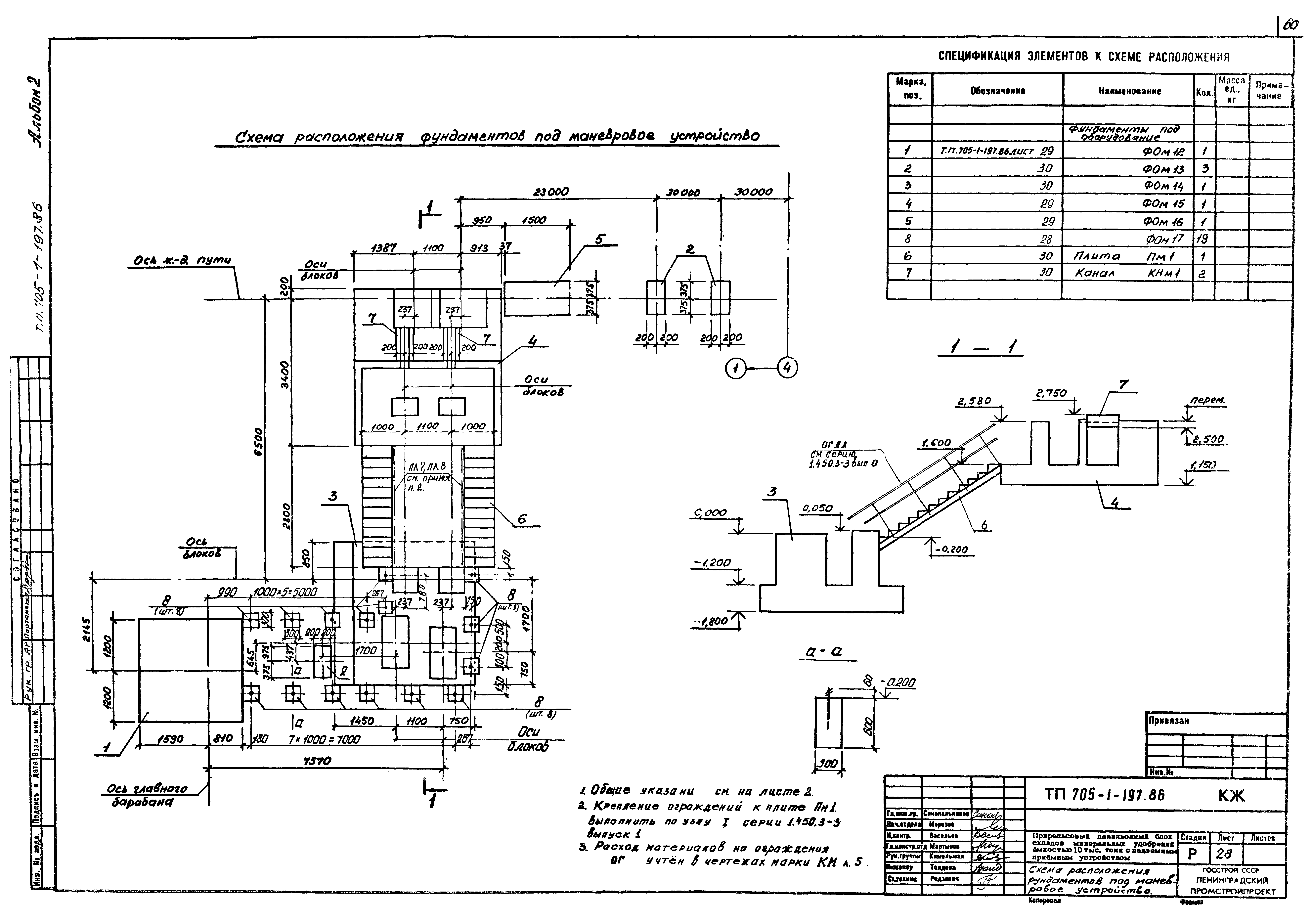
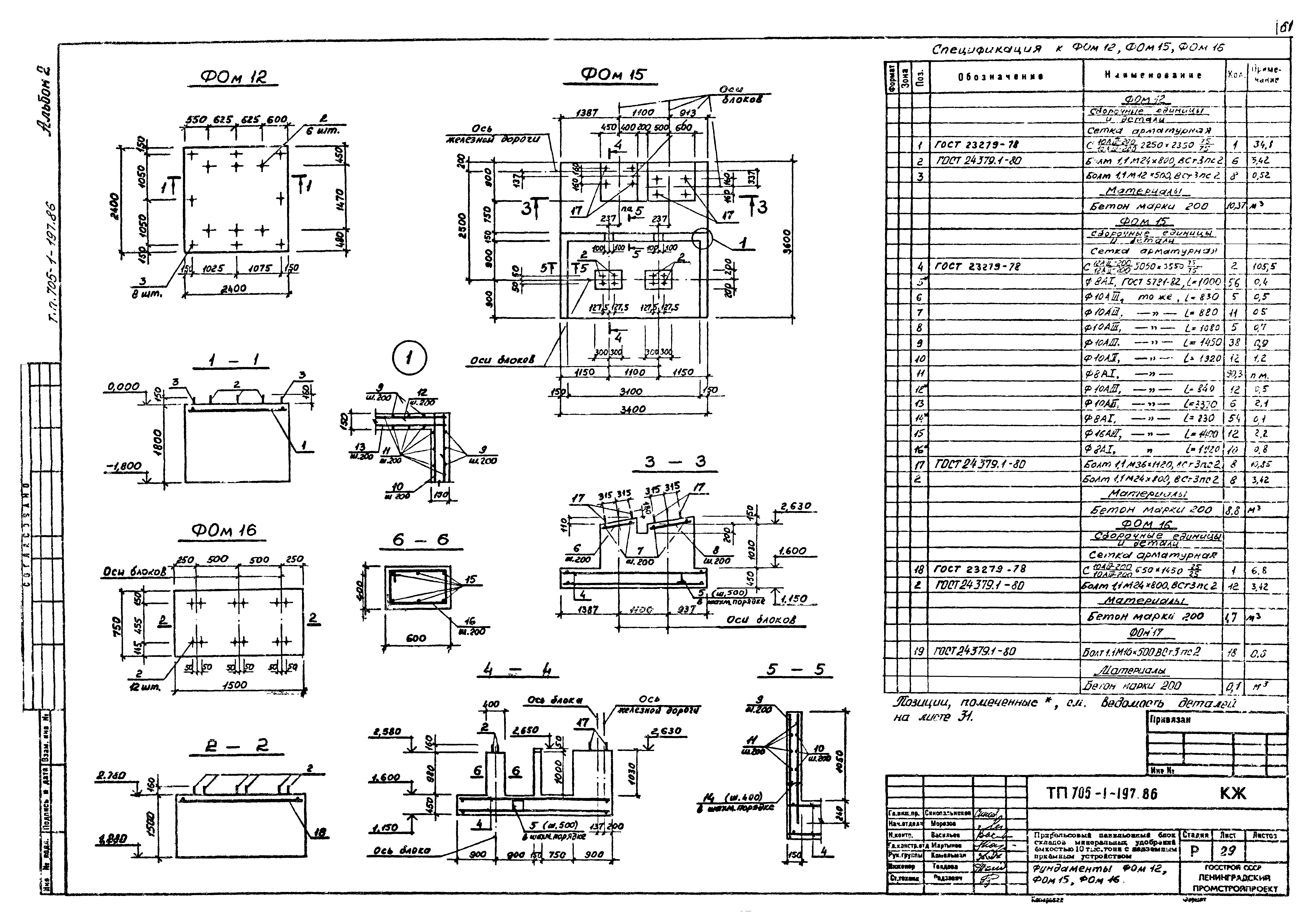
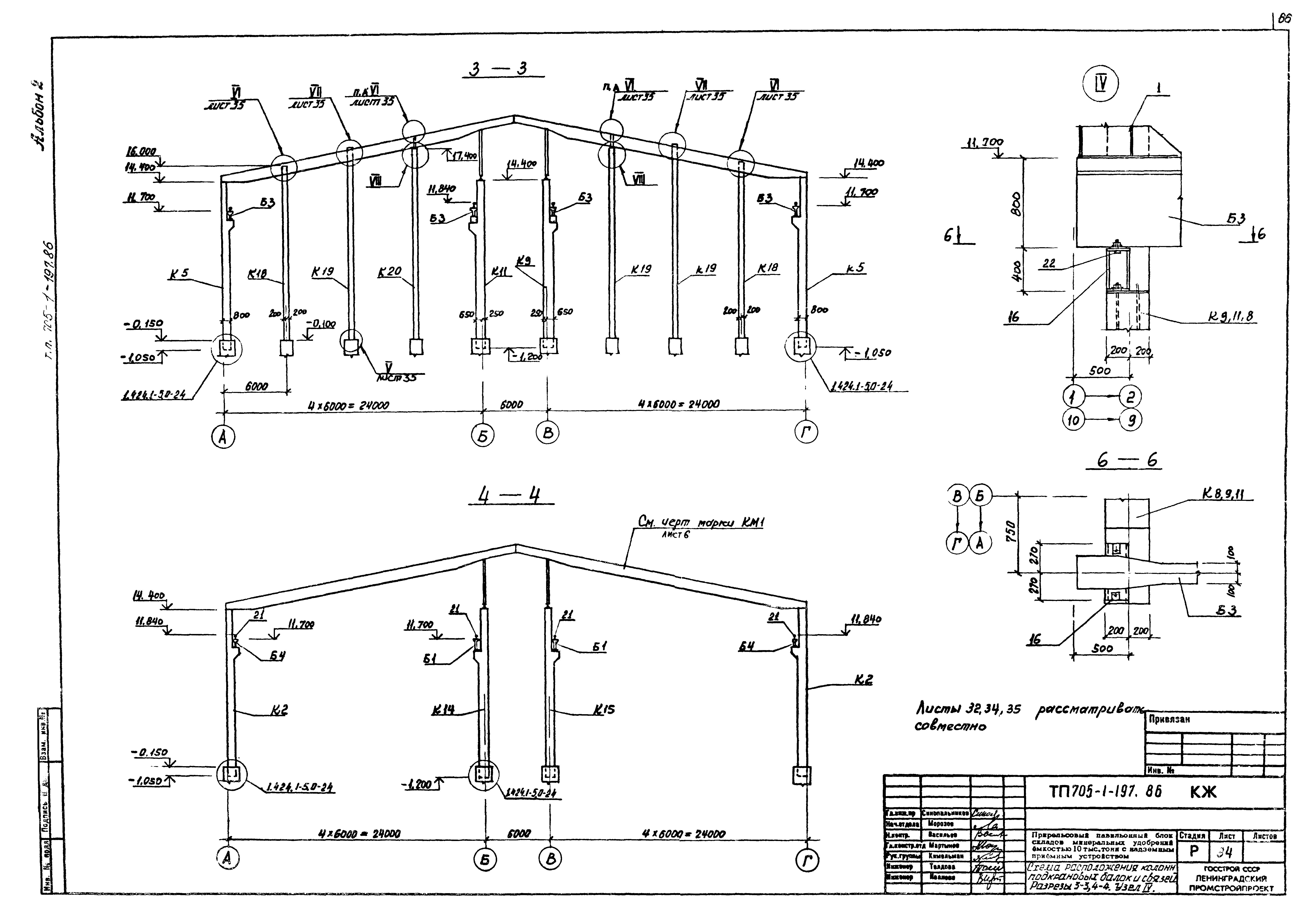
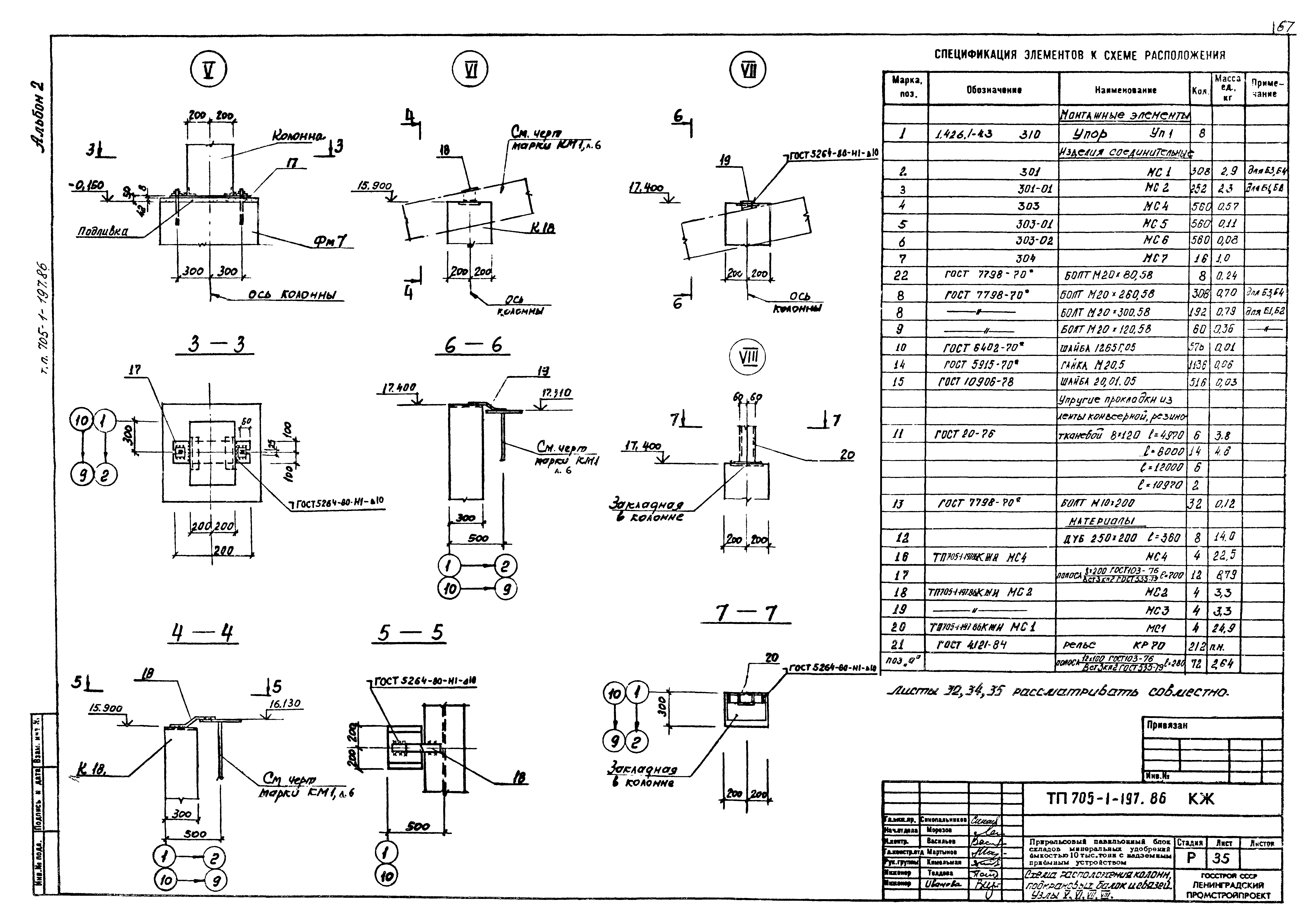
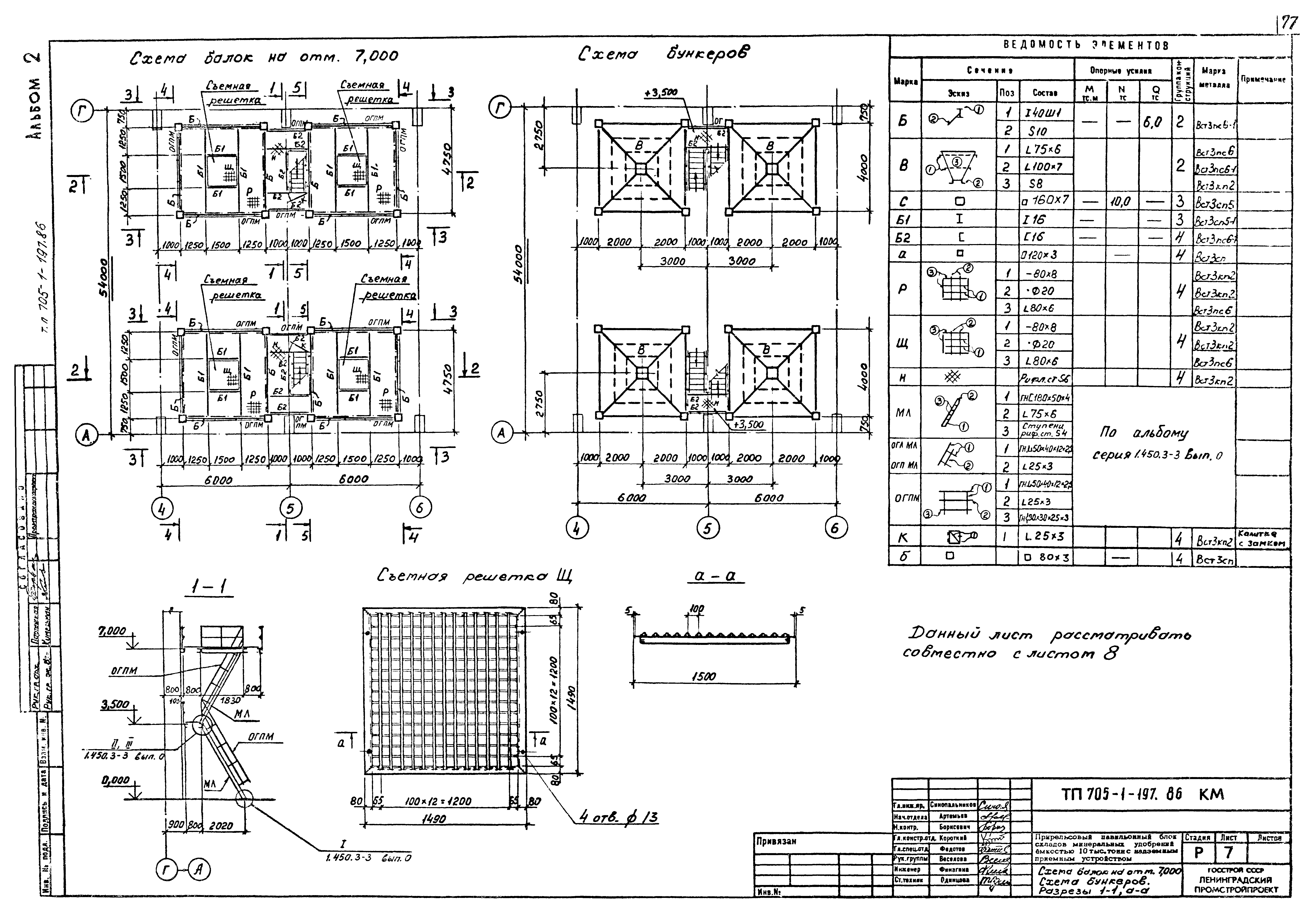
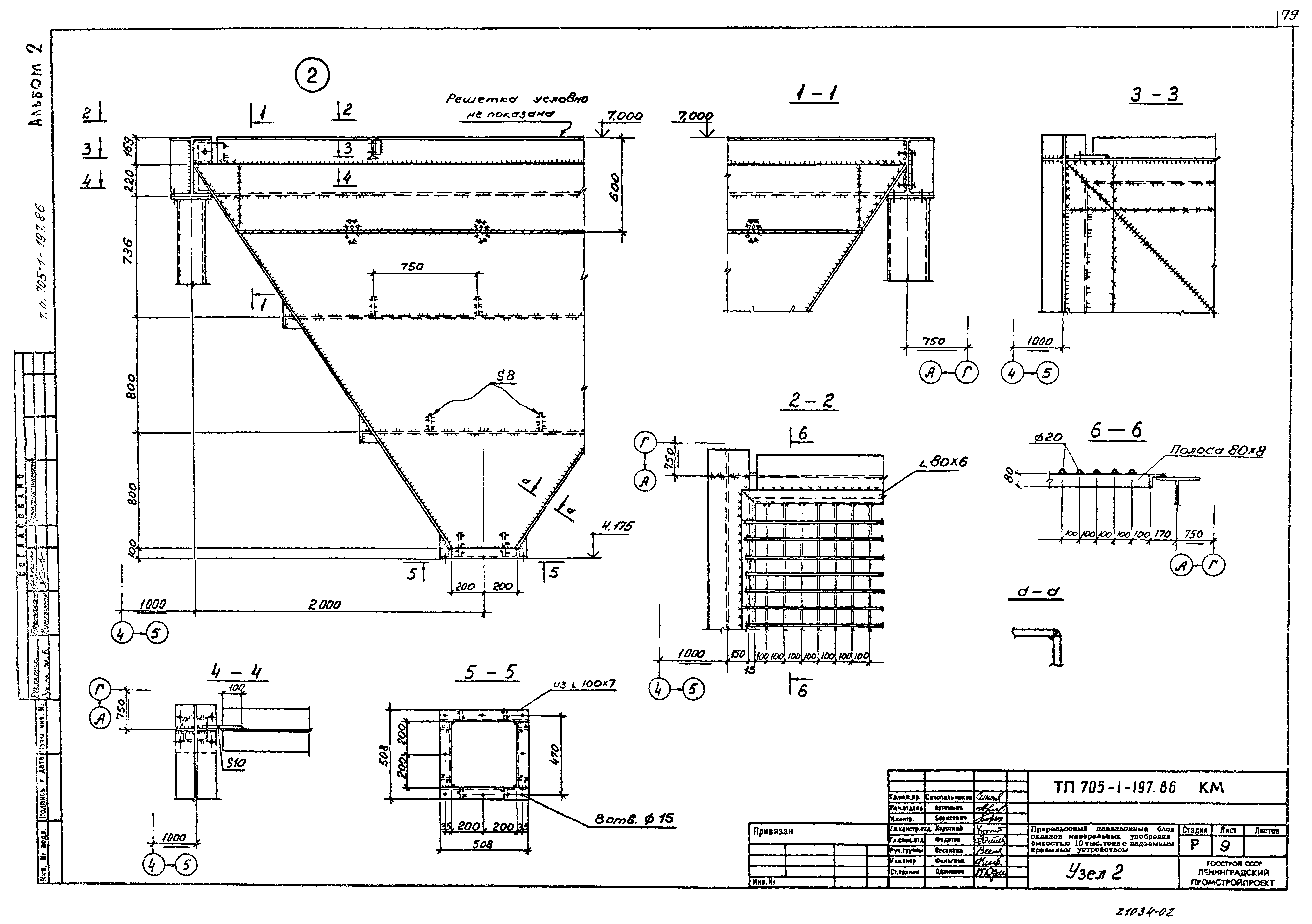
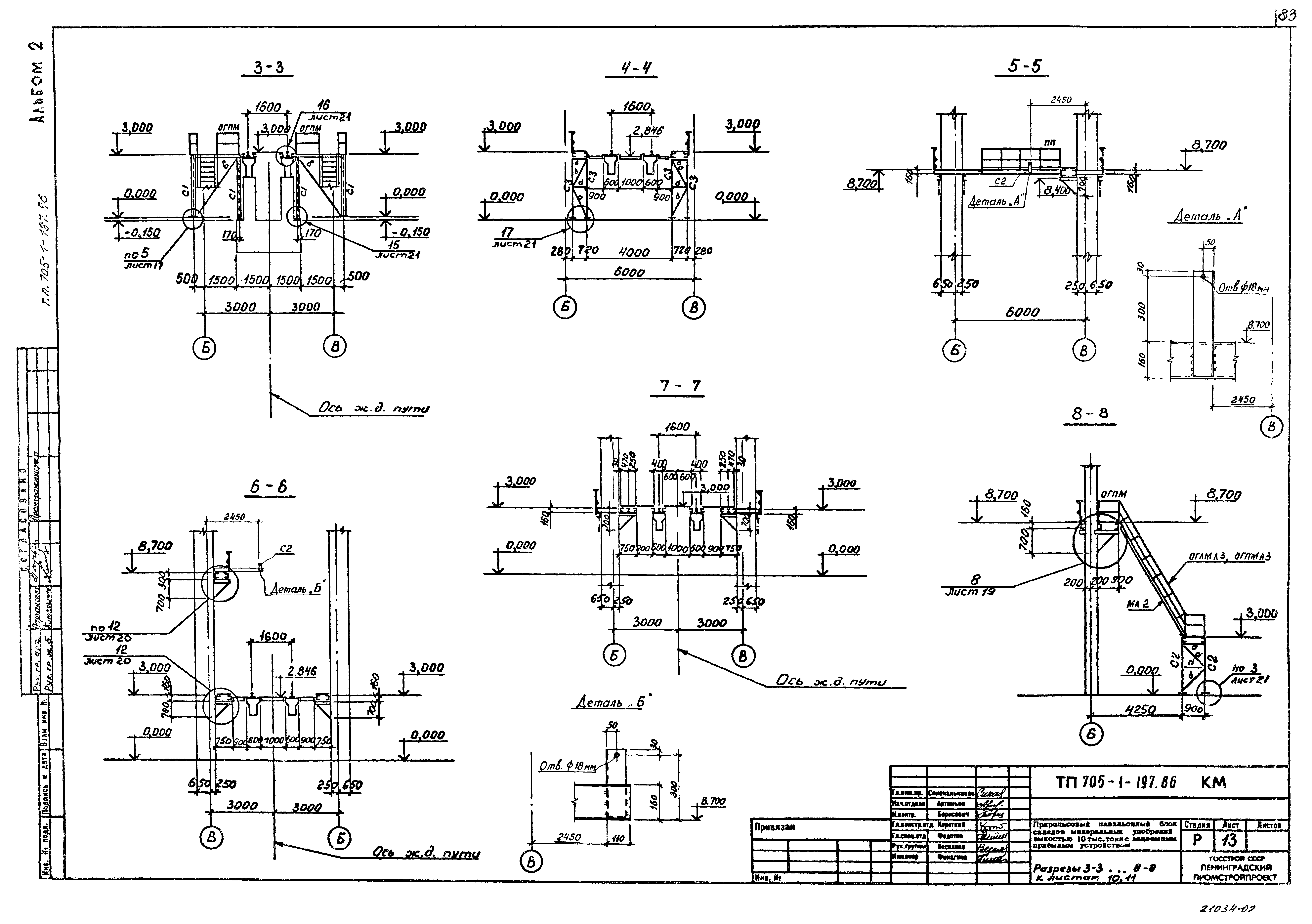
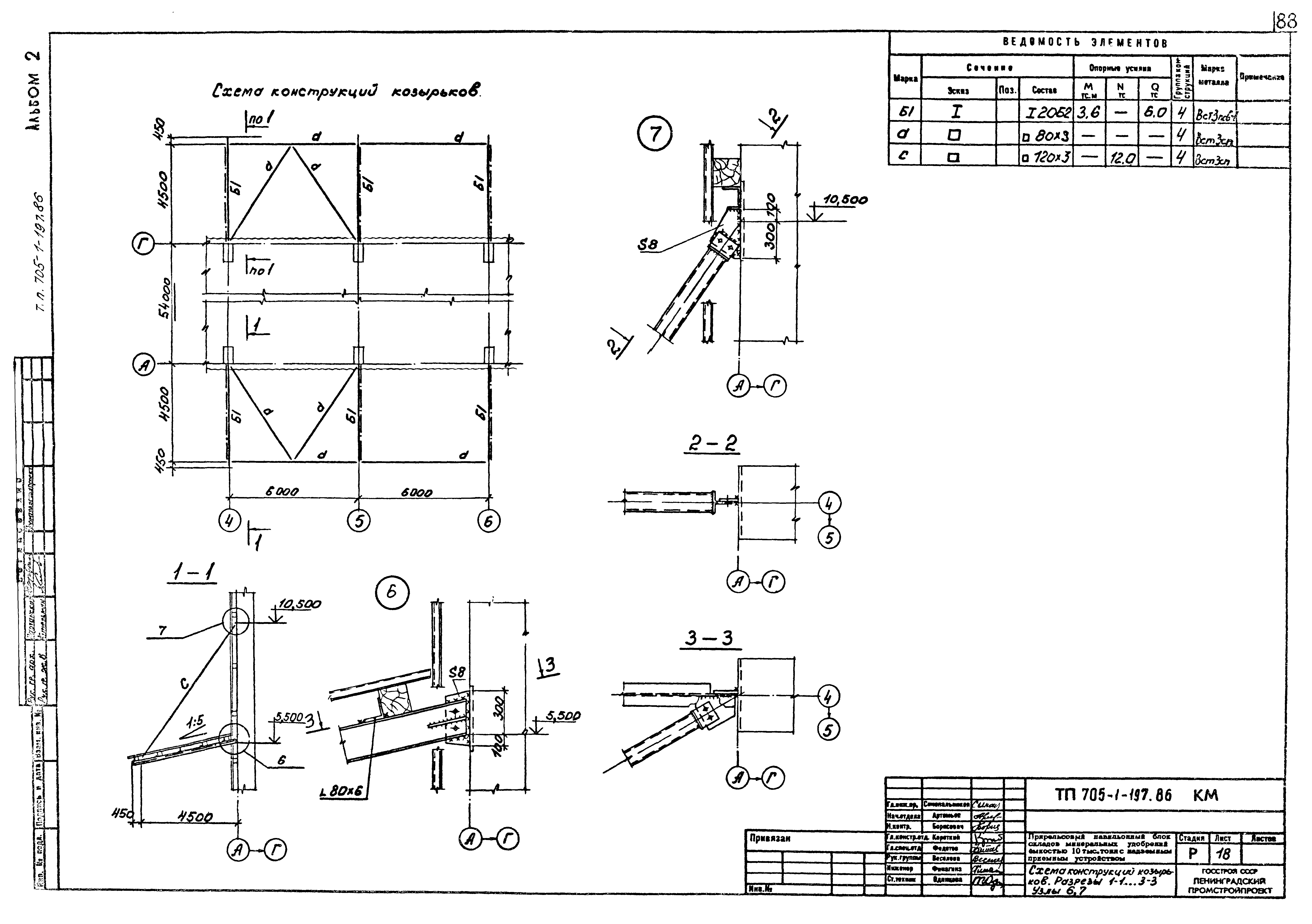
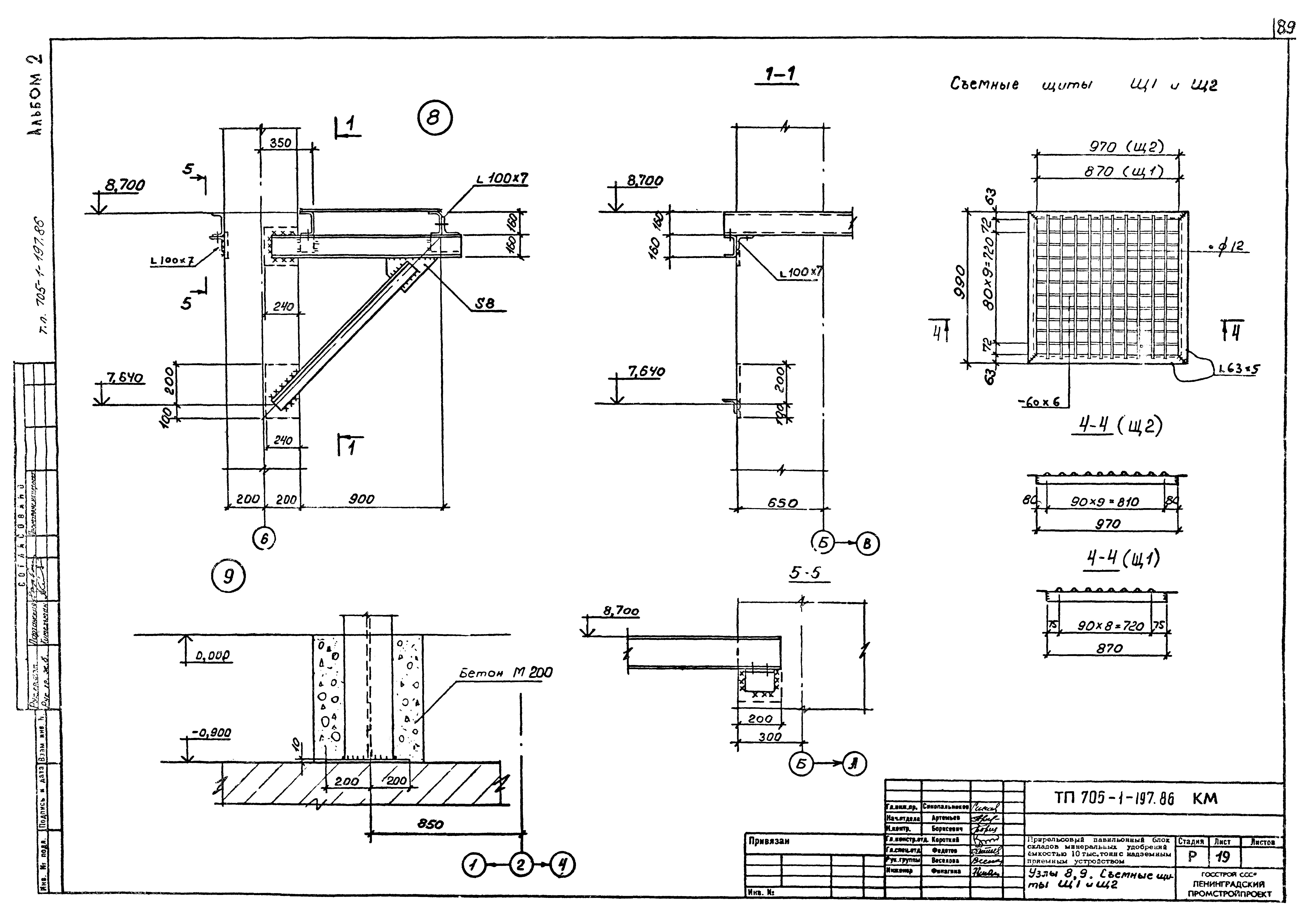
| Оглавление: | ТП 705-1-197.86-АР Ведомость чертежей основного комплекта АР ТП 705-1-197.86-АР-1 Общие данные (начало) ТП 705-1-197.86-АР-2 Общие данные (окончание) ТП 705-1-197.86-АР-3 План на отм. 0.000 ТП 705-1-197.86-АР-4 План на отм. 3.000;4.200;7.000 ТП 705-1-197.86-АР-5 План на отм. 2.850;3.000;8.700 ТП 705-1-197.86-АР-6 Разрезы 1-1;2-2 ТП 705-1-197.86-АР-7 Разрезы 3-3;4-4. Сечение а-а ТП 705-1-197.86-АР-8 Фрагмент плана 1. Разрез 6-6. План посадочных площадок. Сечение б-б ТП 705-1-197.86-АР-9 Фрагменты планов 2 и 3. Разрез ТП 705-1-197.86-АР-10 Фасады 1-10;10-1. Схемы заполнения оконных проемов ТП 705-1-197.86-АР-11 Фасады А-Г;Г-А ТП 705-1-197.86-АР-12 План кровли. Планы полов. Экспликация полов ТП 705-1-197.86-АР-13 Узлы 1...5 ТП 705-1-197.86-АР-14 Узлы 6...11 ТП 705-1-197.86-АР-15 Узлы 12...19 ТП 705-1-197.86-АР-16 Узел 20. Элементы водостоков ТП 705-1-197.86-АР-17 Установка крышных вентиляторов. Узел 21 ТП 705-1-197.86-АР-18 Установка вентшахт. Узел 22 ТП 705-1-197.86-АР-19 Спецификации ТП 705-1-197.86-АР-20 Схемы расположения прогонов стен в осях 1-10;10-1 ТП 705-1-197.86-АР-21 Схемы расположения прогонов стен в осях А-Г;Г-А и прогонов козырьков ТП 705-1-197.86-АР-22 Узлы к схемам расположения прогонов стен (Лист 1) ТП 705-1-197.86-АР-23 Узлы к схемам расположения прогонов стен (Лист 2) ТП 705-1-197.86-АР-24 Узлы к схемам расположения прогонов стен (Лист 3) ТП 705-1-197.86-АР-25 Схема расположения стен закромов ТП 705-1-197.86-АР-26 Схема расположения стен закромов. Разрезы. Узлы 1...4. Щиты ТП 705-1-197.86-АР-27 Схема расположения рассекателя ТП 705-1-197.86-АР-28 Схема расположения прогонов покрытия ТП 705-1-197.86-АР-29 Деревянные щиты ТП 705-1-197.86-КЖ Ведомость чертежей основного комплекта КЖ ТП 705-1-197.86-КЖ-1 Общие данные (начало) ТП 705-1-197.86-КЖ-2 Общие данные (окончание) ТП 705-1-197.86-КЖ-3 Схема расположения фундаментов под здание ТП 705-1-197.86-КЖ-4 Схема расположения фундаментов под здание. Узел 1. Узел 6 ТП 705-1-197.86-КЖ-5 Схема расположения фундаментов под здание. Узлы 2,3,4,5 ТП 705-1-197.86-КЖ-6 Фундаменты ФМ1,ФМ4 ТП 705-1-197.86-КЖ-7 Фундаменты ФМ2,ФМ6 ТП 705-1-197.86-КЖ-8 Фундаменты ФМ3,ФМ5 ТП 705-1-197.86-КЖ-9 Фундамент Ф7. Расчетные схемы ТП 705-1-197.86-КЖ-10 Схема расположения ленточных фундаментов ФЛМ1,ФЛМ1-1 ТП 705-1-197.86-КЖ-11 Схема расположения ленточных фундаментов ФЛМ1,ФЛМ1-1. Узлы 1,2 ТП 705-1-197.86-КЖ-12 Схема расположения ленточных фундаментов. Узлы 3,4 ТП 705-1-197.86-КЖ-13 Фундаменты ФЛМ1,ФЛМ1-1 (начало) ТП 705-1-197.86-КЖ-14 Фундаменты ФЛМ1,ФЛМ1-1 (продолжение) ТП 705-1-197.86-КЖ-15 Фундаменты ФЛМ1,ФЛМ1-1 (продолжение) ТП 705-1-197.86-КЖ-16 Фундаменты ФЛМ1,ФЛМ1-1 (окончание) ТП 705-1-197.86-КЖ-17 Спецификация к фундаментам ФЛМ1,ФЛМ1-1. Расчетная схема ТП 705-1-197.86-КЖ-18 Схема расположения фундаментов поднятого пути ТП 705-1-197.86-КЖ-19 Схема расположения фундаментов поднятого пути. Разрезы 1-1;2-2;3-3. Узел 1 ТП 705-1-197.86-КЖ-20 Схема расположения элементов крепления рельсов ТП 705-1-197.86-КЖ-21 Фундаменты поднятого пути ФОМ1,ФОМ2 ТП 705-1-197.86-КЖ-22 Фундаменты поднятого пути ФОМ3 ТП 705-1-197.86-КЖ-23 Блок упора БУМ1 ТП 705-1-197.86-КЖ-24 Диафрагмы жесткости ДМ1,ДМ2,ДМ3 ТП 705-1-197.86-КЖ-25 Схема расположения фундаментов под оборудование ТП 705-1-197.86-КЖ-26 Фундаменты под оборудование ФОМ4,ФОМ5,ФОМ6,ФОМ10. Узлы 1,2 ТП 705-1-197.86-КЖ-27 Фундаменты под оборудование ФОМ7,ФОМ8,ФОМ9,ФОМ11 ТП 705-1-197.86-КЖ-28 Схема расположения фундаментов под маневровое устройство ТП 705-1-197.86-КЖ-29 Фундаменты ФОМ12,ФОМ15,ФОМ16 ТП 705-1-197.86-КЖ-30 Фундаменты ФОМ13,ФОМ14. Плита ПМ1. Канал КНм1 ТП 705-1-197.86-КЖ-31 Ведомость расхода стали к фундаментам маневрового устройства. Расчетные схемы ТП 705-1-197.86-КЖ-32 Схема расположения колонн, подкрановых балок и связей ТП 705-1-197.86-КЖ-33 Схема расположения колонн, подкрановых балок и связей. Разрезы 1-1;2-2 ТП 705-1-197.86-КЖ-34 Схема расположения колонн, подкрановых балок и связей. Разрезы 3-3;4-4 ТП 705-1-197.86-КЖ-35 Узлы 5,6,3,4 ТП 705-1-197.86-КЖ-36 Схема расположения стеновых панелей ТП 705-1-197.86-КЖ-37 Схема расположения стоек закрамов ТП 705-1-197.86-КЖ-38 Плита ПМ2 ТП 705-1-197.86-КМ Ведомость чертежей основного комплекта КМ ТП 705-1-197.86-КМ-1 Общие данные (начало) ТП 705-1-197.86-КЖ-2 Общие данные (окончание) ТП 705-1-197.86-КМ-3 Техническая спецификация стали (начало) ТП 705-1-197.86-КМ-4 Техническая спецификация стали (продолжение) ТП 705-1-197.86-КМ-5 Техническая спецификация стали (окончание) ТП 705-1-197.86-КМ-6 Ведомость металлоконструкций по видам профилей ТП 705-1-197.86-КМ-7 Схема балок на отм. 7.000. Схема бункеров. Разрезы 1-1,а-а ТП 705-1-197.86-КМ-8 Разрезы 2-2...6-6. Узел 1 ТП 705-1-197.86-КМ-9 Узел 2 ТП 705-1-197.86-КМ-10 Схема площадки на отм. 3.000 и съемных щитов на отм. 2.846 ТП 705-1-197.86-КМ-11 Схема площадки на отм. 8.700. Разрез 1-1 ТП 705-1-197.86-КМ-12 Разрез 2-2;9-9;10=-10 к листам 10;11 ТП 705-1-197.86-КМ-13 Разрезы 3-3...8-8 к листам 10,11 ТП 705-1-197.86-КМ-14 Схема балок рампы. Разрезы 1-1...6-6 ТП 705-1-197.86-КМ-15 Схема посадочных площадок на кран в осях Б-В. Разрезы 1-1;2-2 ТП 705-1-197.86-КМ-16 Схема наружной лестницы у оси 1. Схема опоры лестницы. Разрез 1-1 ТП 705-1-197.86-КМ-17 Разрезы 2-2...7-7 к листу 16. Узлы 4,5 ТП 705-1-197.86-КМ-18 Схема конструкций козырьков. Разрезы 1-1...3-3. Узлы 6,7 ТП 705-1-197.86-КМ-19 Узлы 8,9. Съемные щиты Щ1 и Щ2 ТП 705-1-197.86-КМ-20 Узлы 10,11,12,13 ТП 705-1-197.86-КМ-21 Узлы 14,15,16,17,3 ТП 705-1-197.86-ОВ Ведомость чертежей основного комплекта ОВ ТП 705-1-197.86-ОВ-1 Общие данные ТП 705-1-197.86-ОВ-2 План на отм. 0.000 ТП 705-1-197.86-ОВ-3 Разрез 1-1. Схемы систем В1;В2;ВЕ1-ВЕ10 |
| Разработан: | Промтрансниипроект |
| Утверждён: | 09.11.1982 Минсельхоз СССР (USSR Minselkhoz 70) |































































































