Скачать Типовой проект 903-1-153 Альбом III.82. Сооружения топливоподачиДата актуализации: 01.01.2021
|
| Обозначение: | Типовой проект 903-1-153 |
| Обозначение англ: | 903-1-153 |
| Статус: | заменен |
| Название рус.: | Альбом III.82. Сооружения топливоподачи |
| Дата добавления в базу: | 01.09.2013 |
| Дата актуализации: | 01.01.2021 |
| Дата введения: | 13.08.1982 |
| Дата окончания срока действия: | 01.01.1990 |
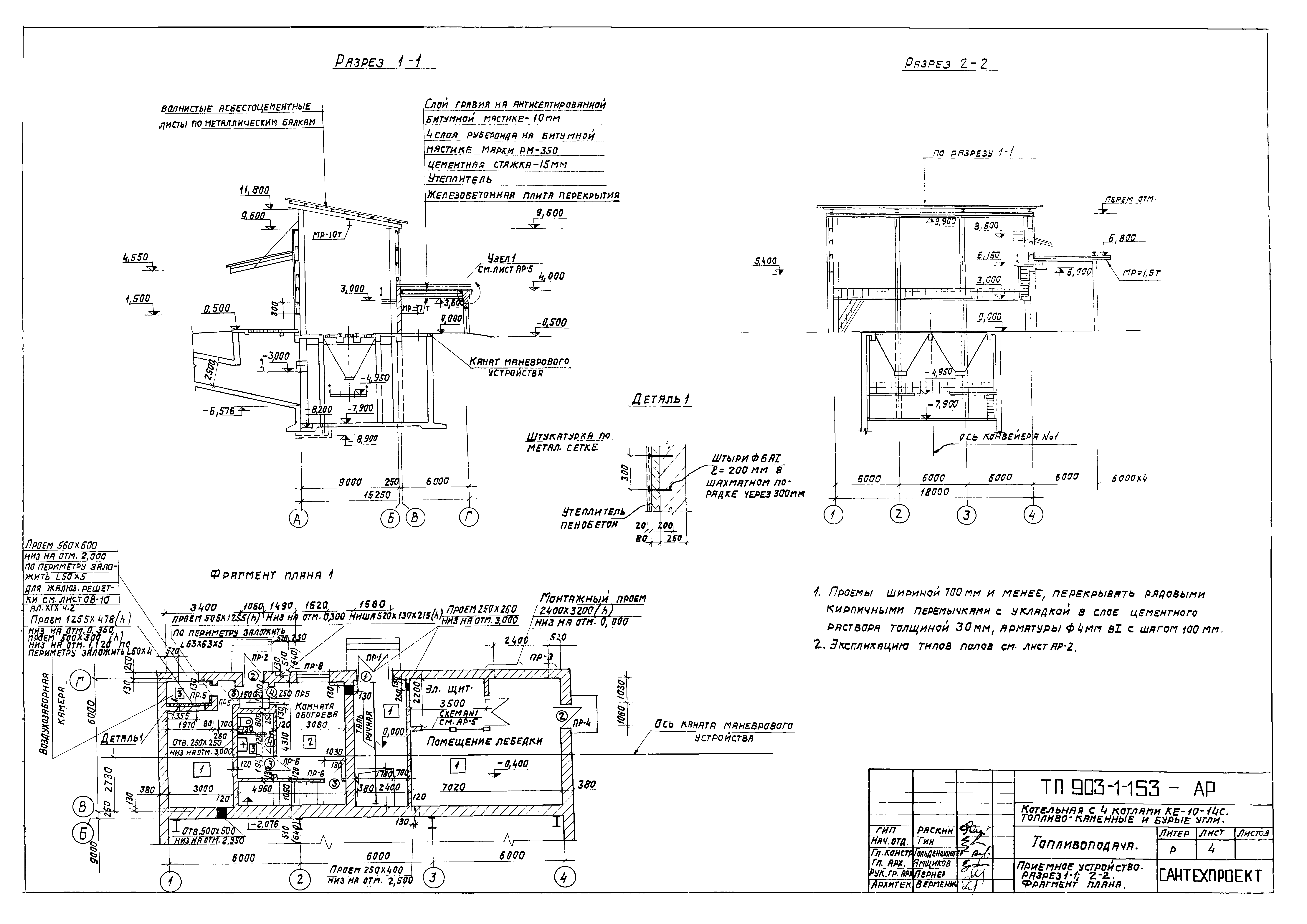
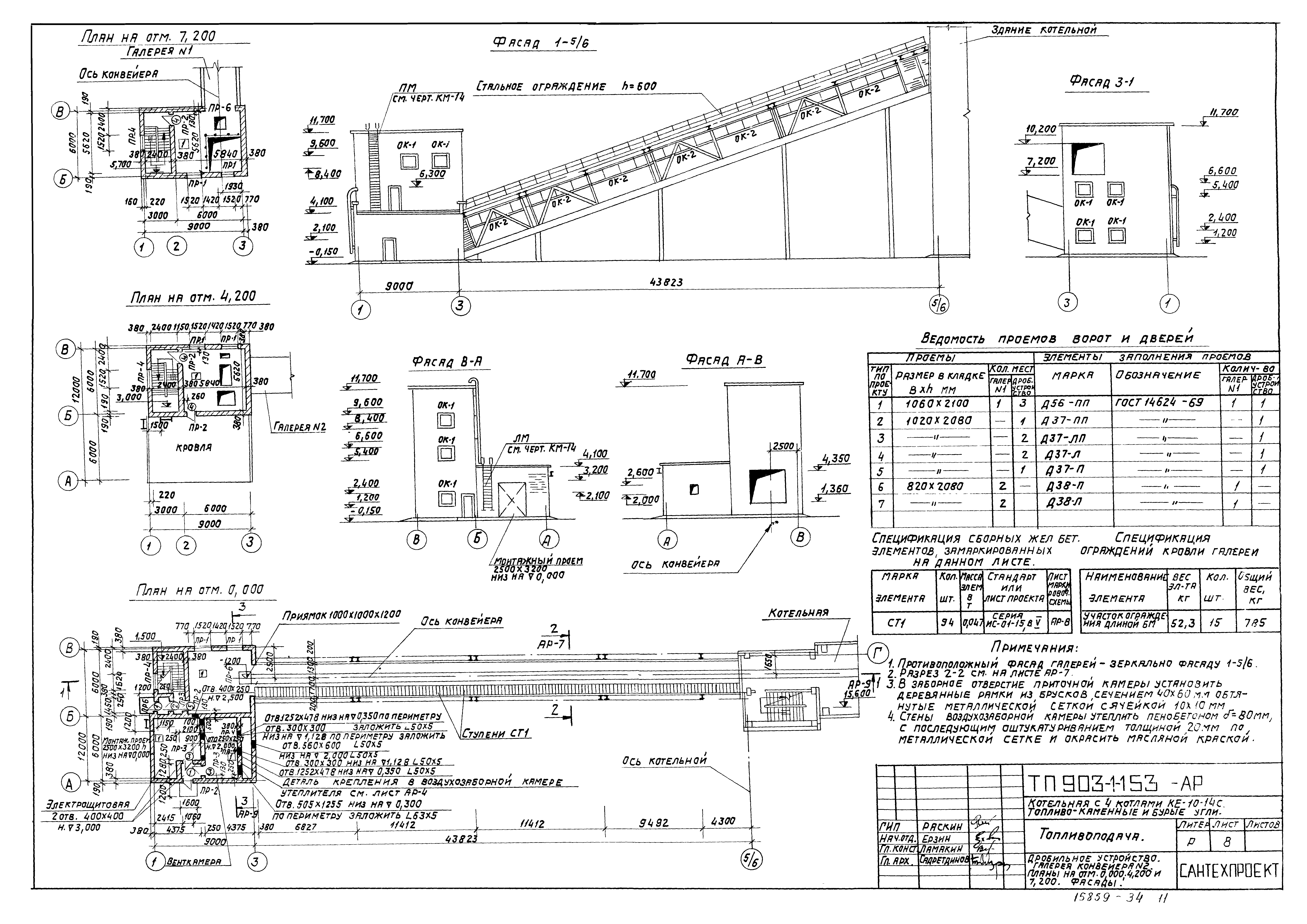
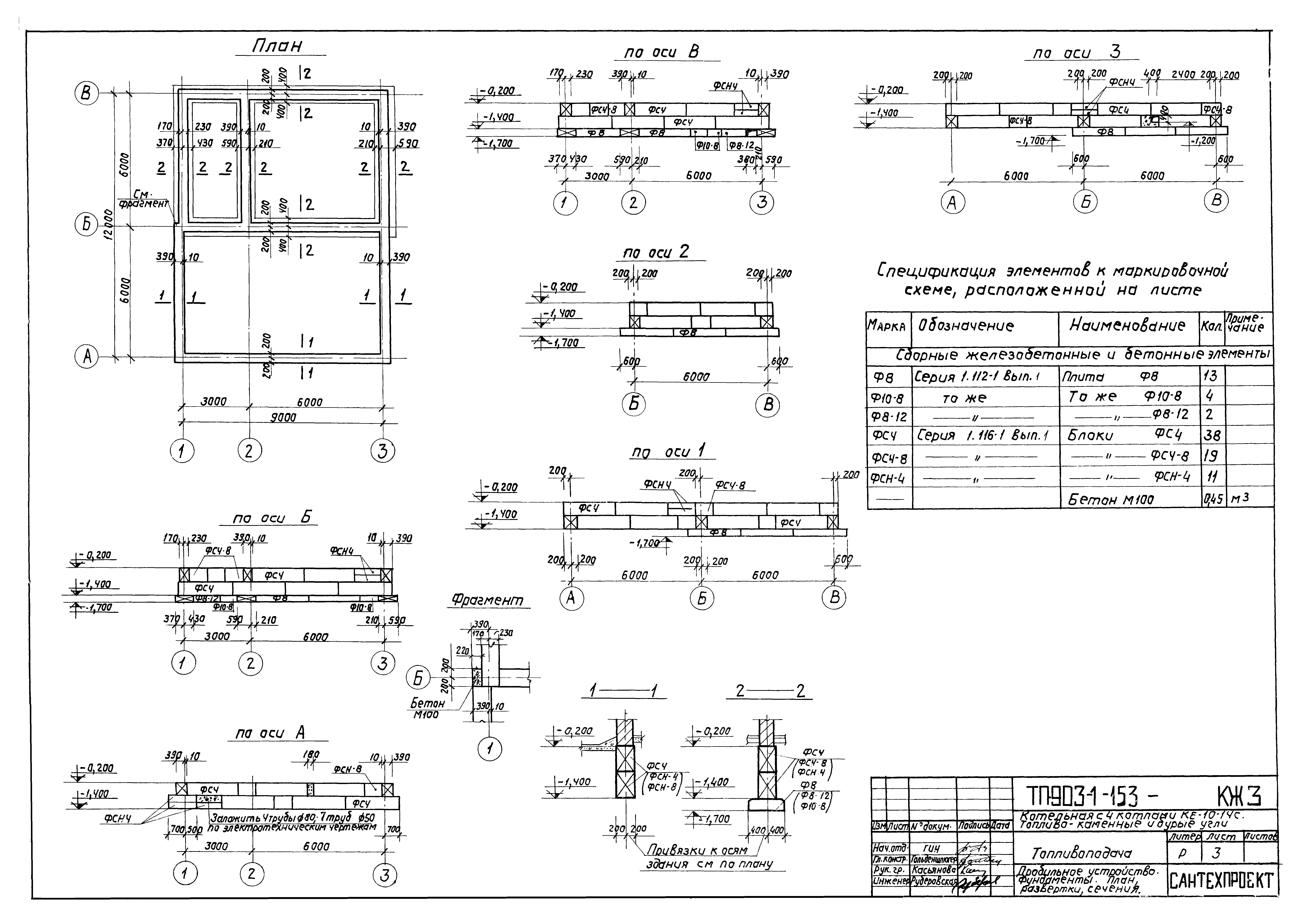
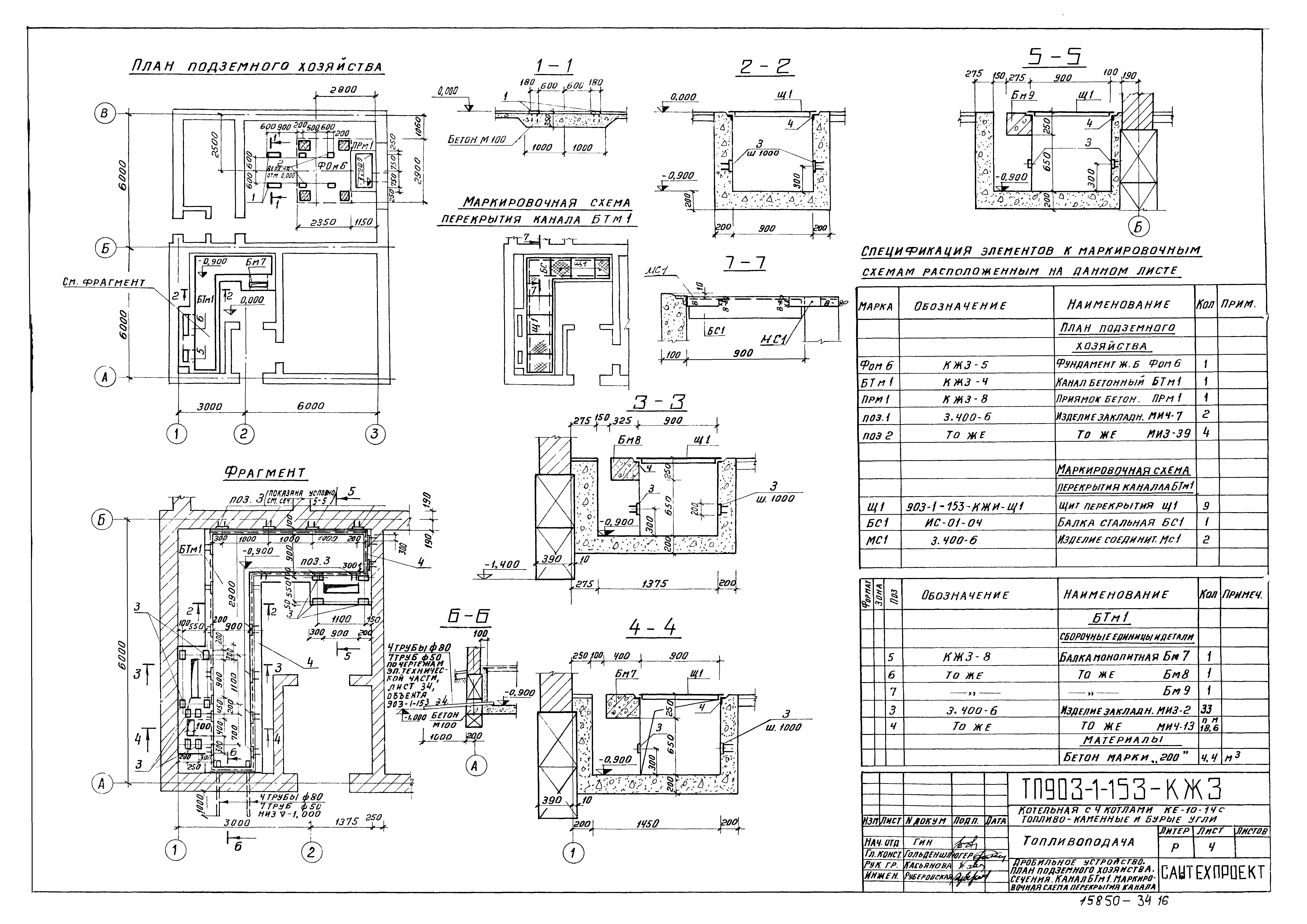
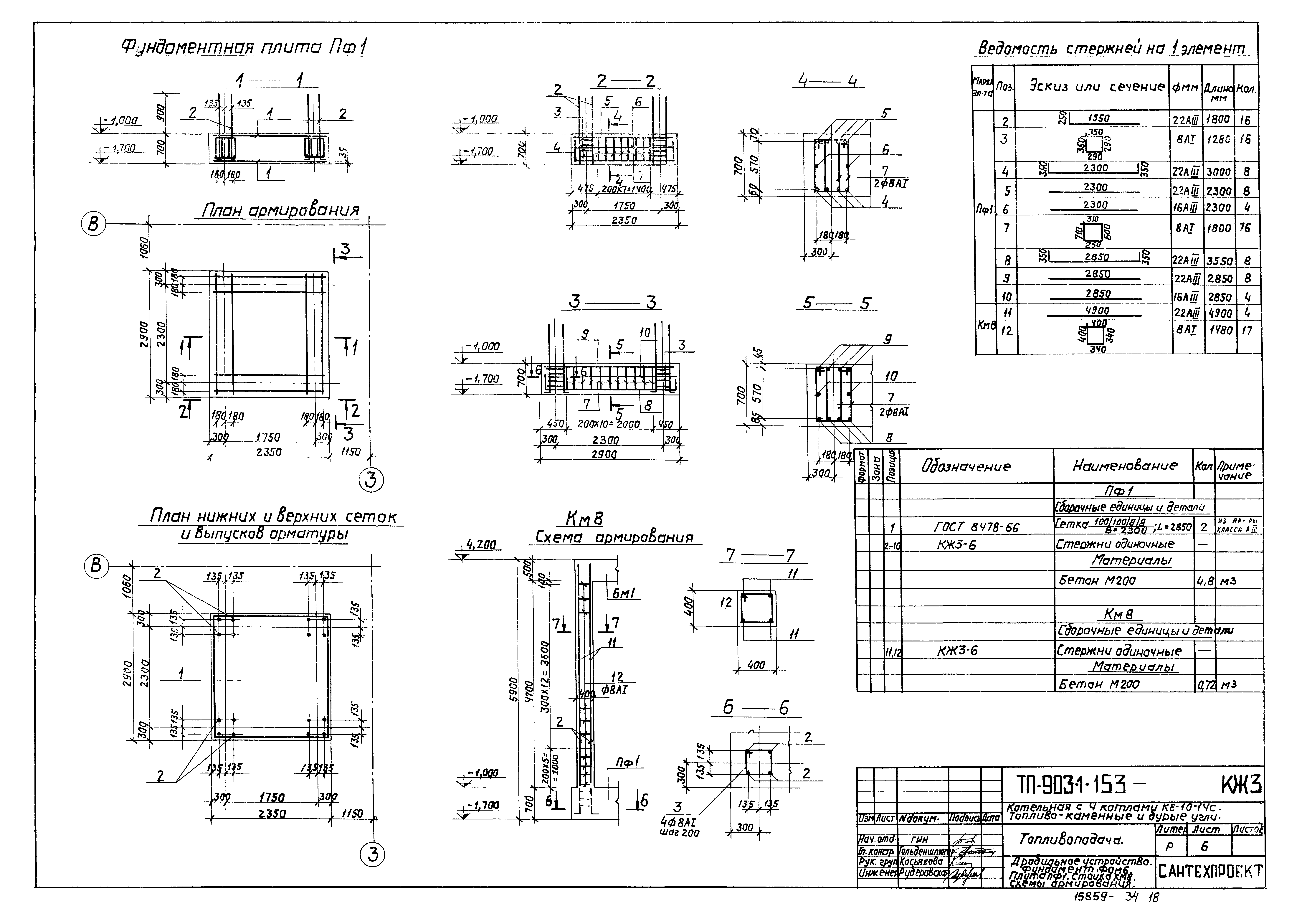
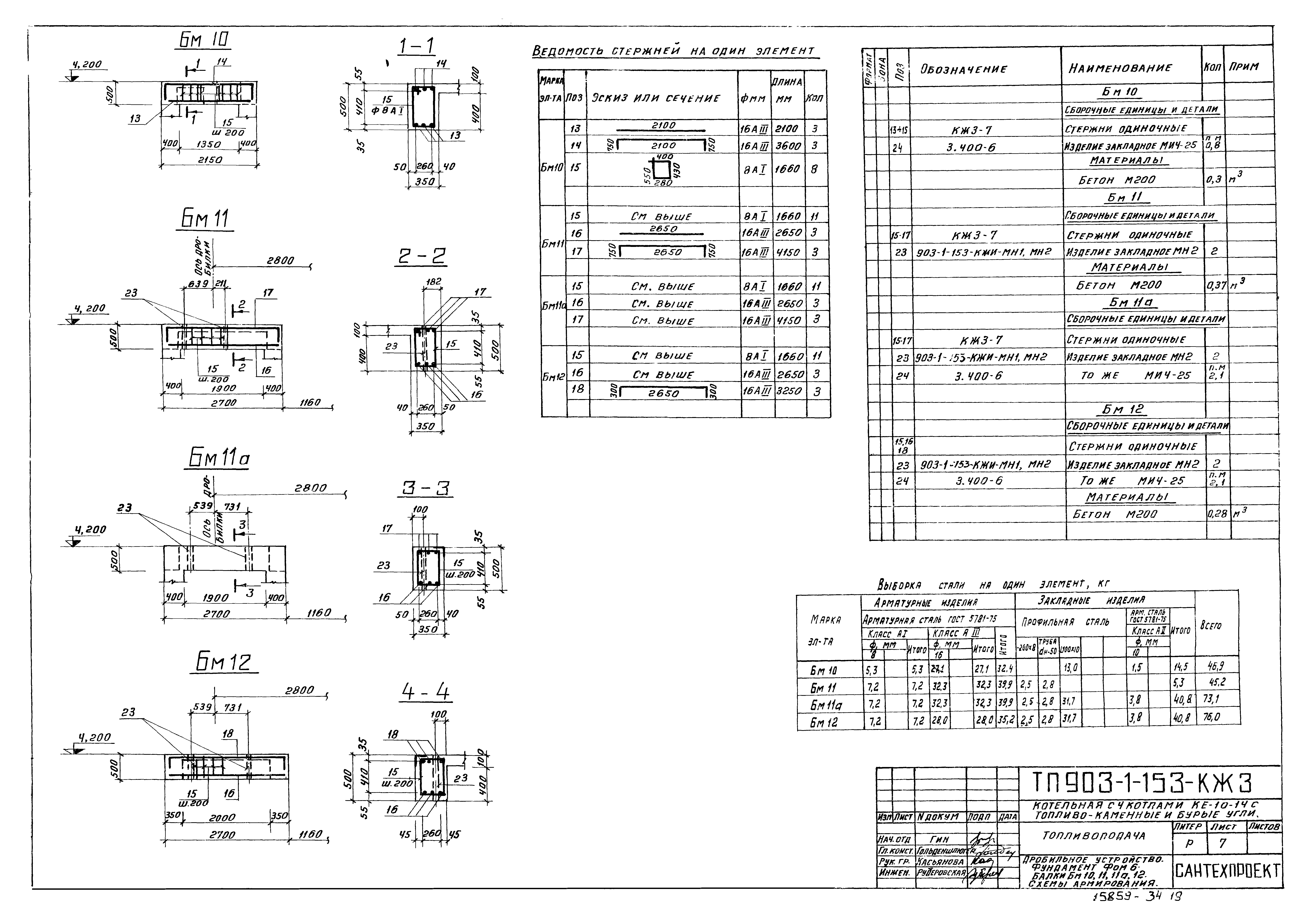
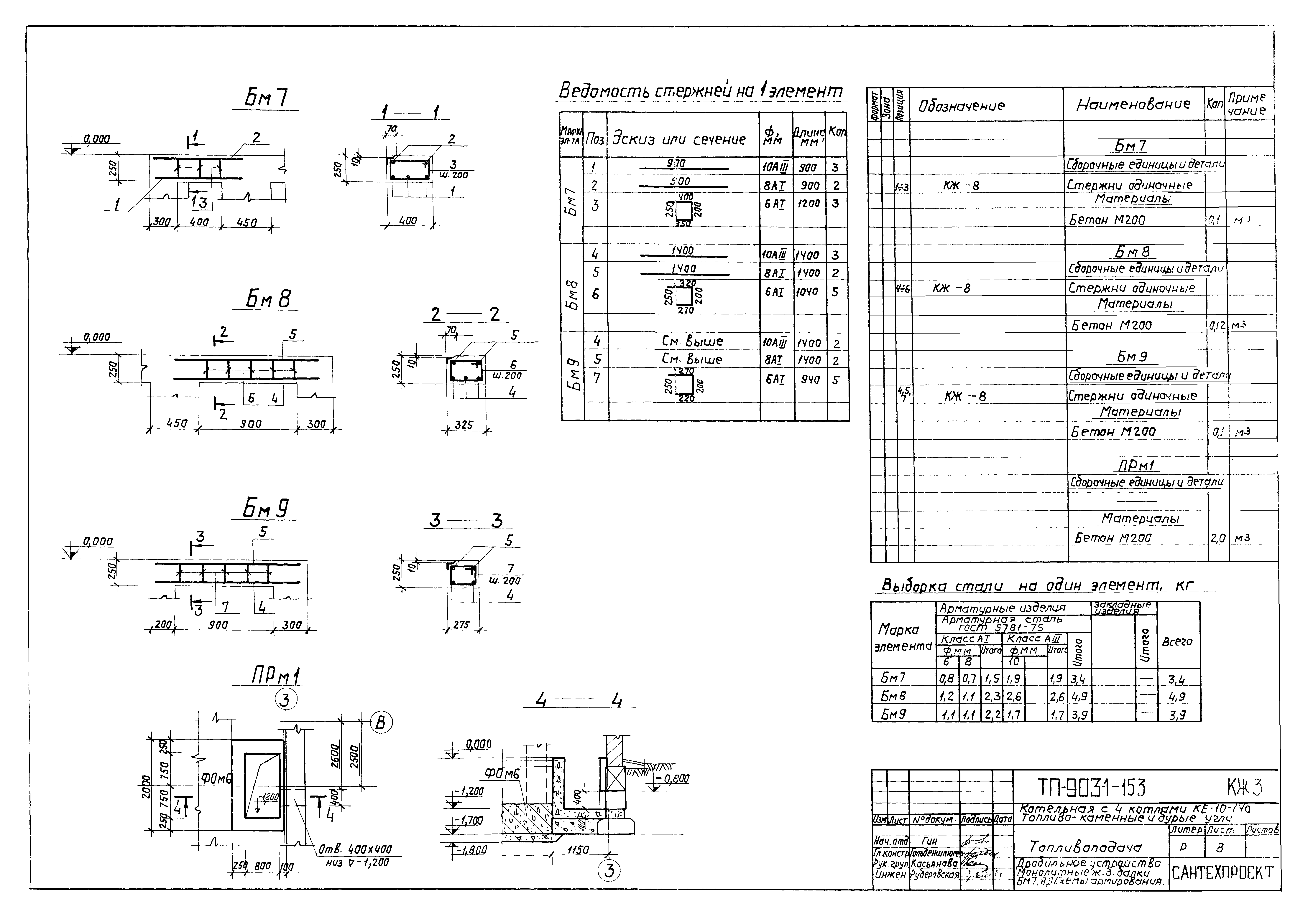
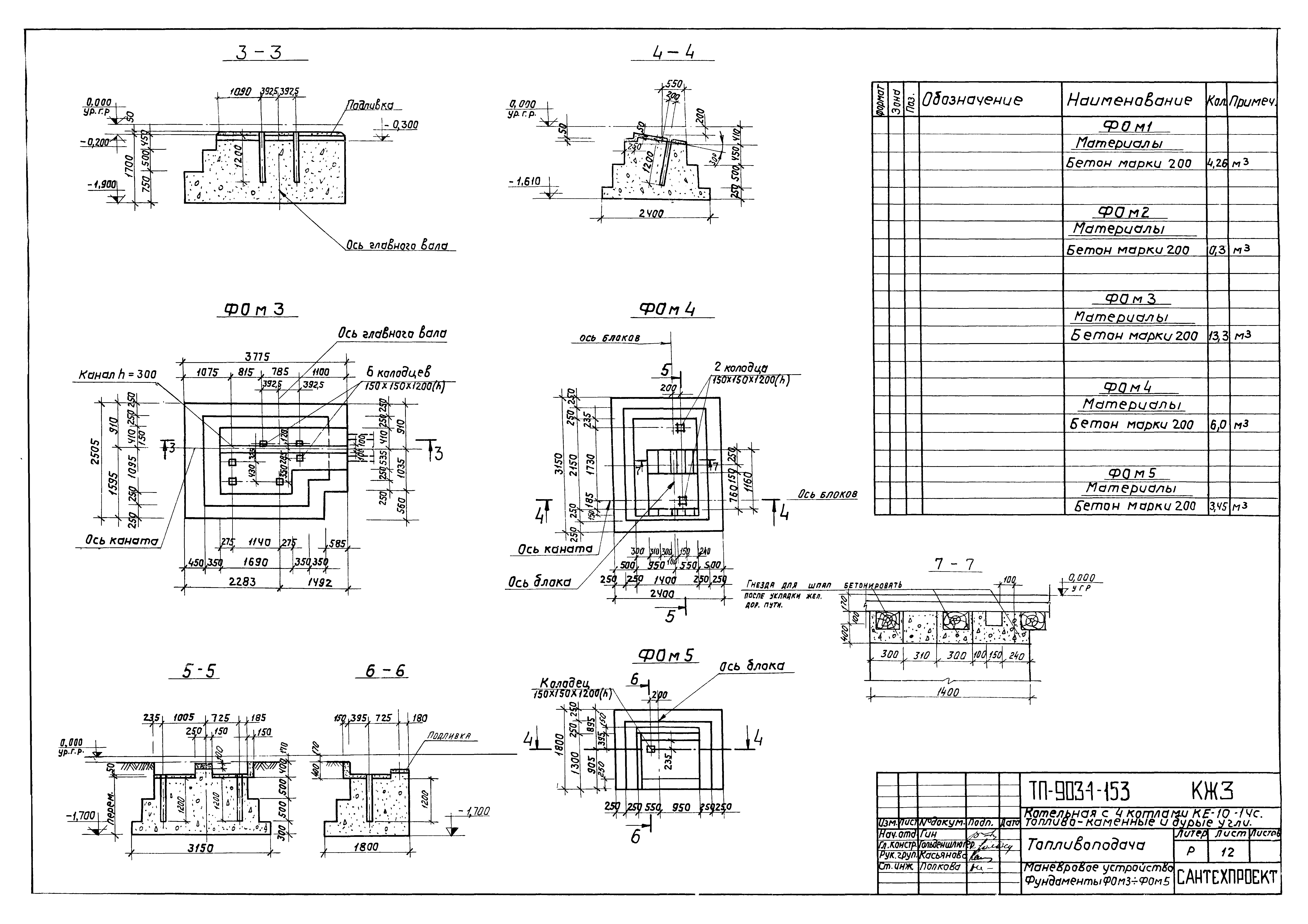
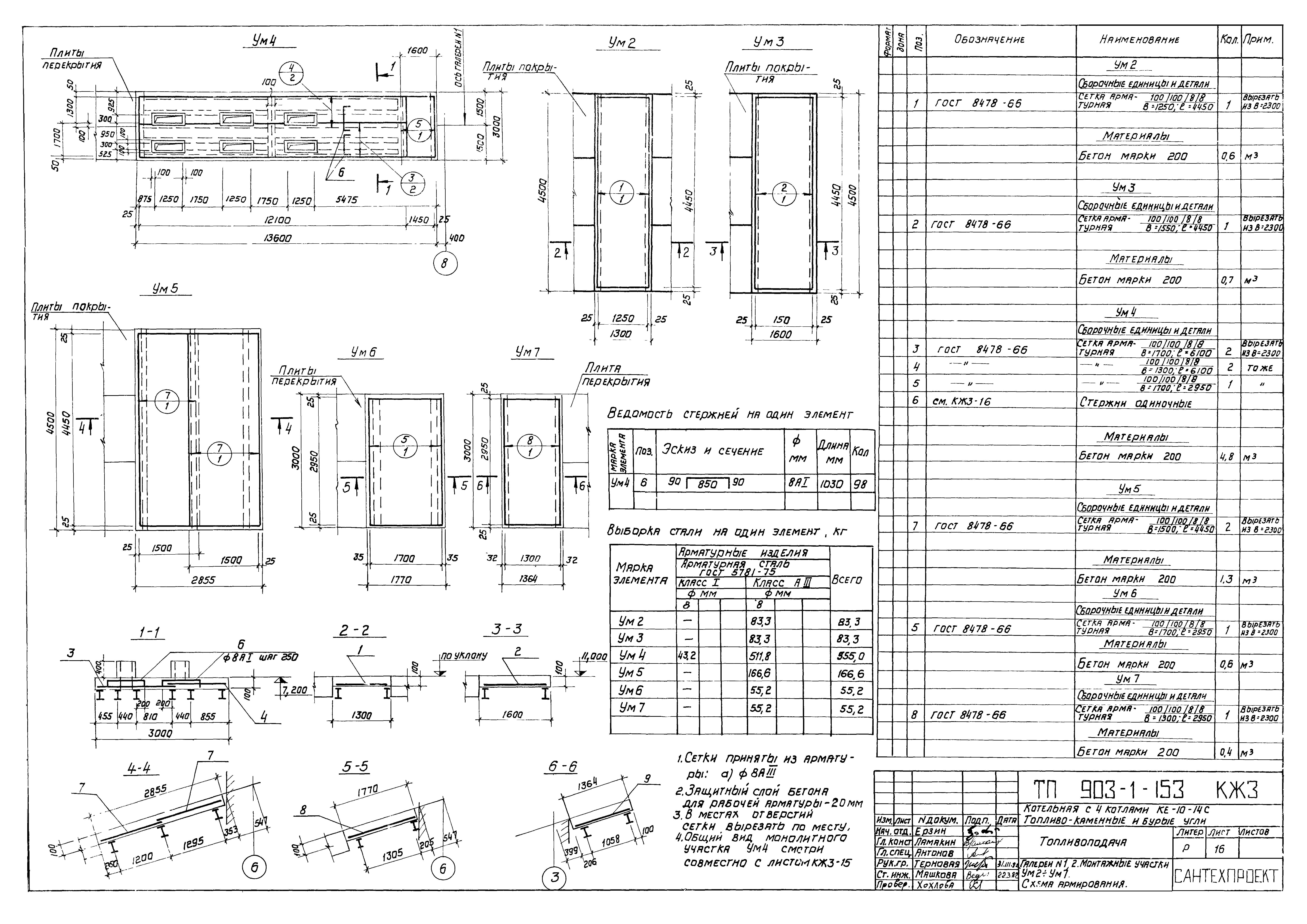
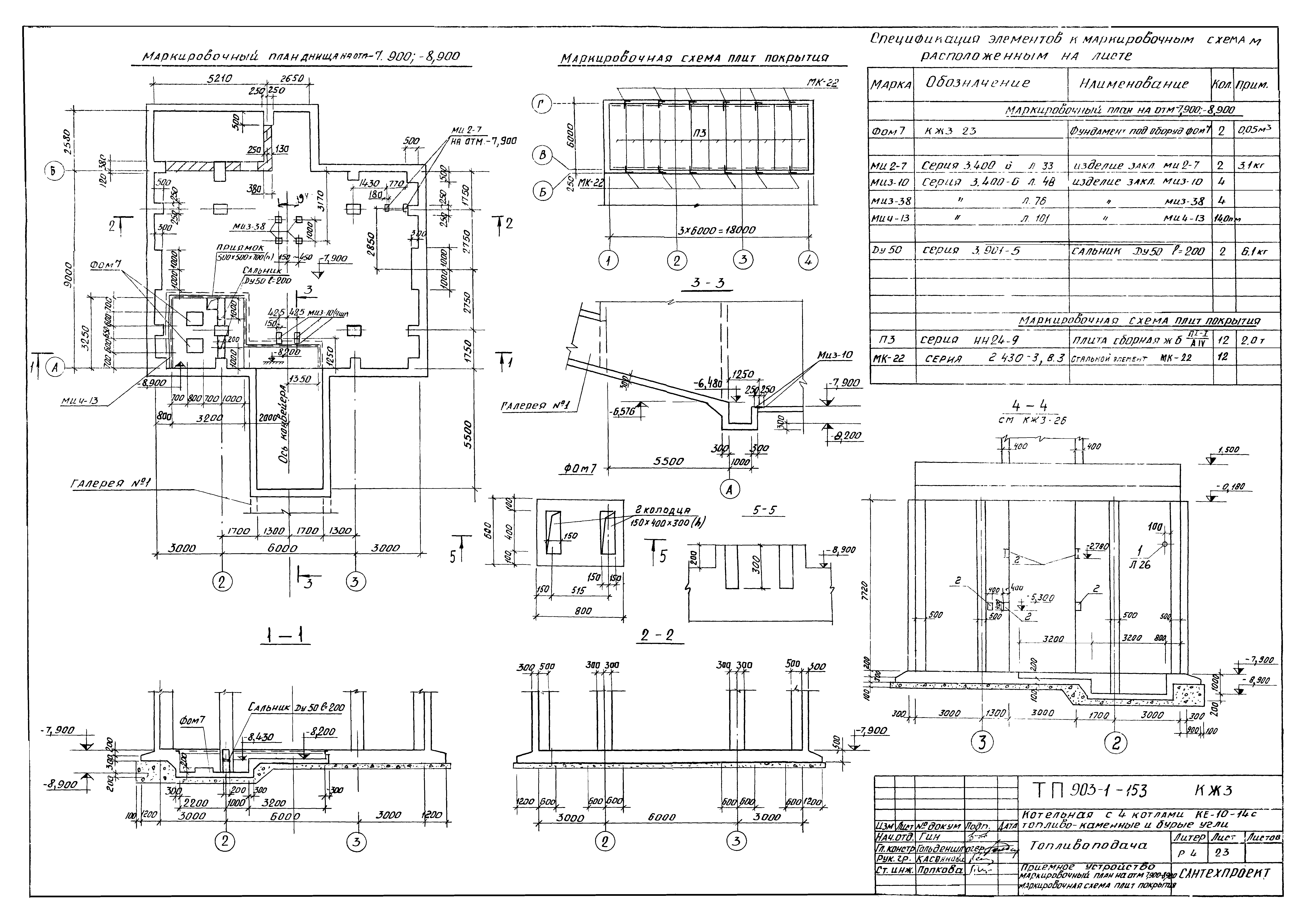
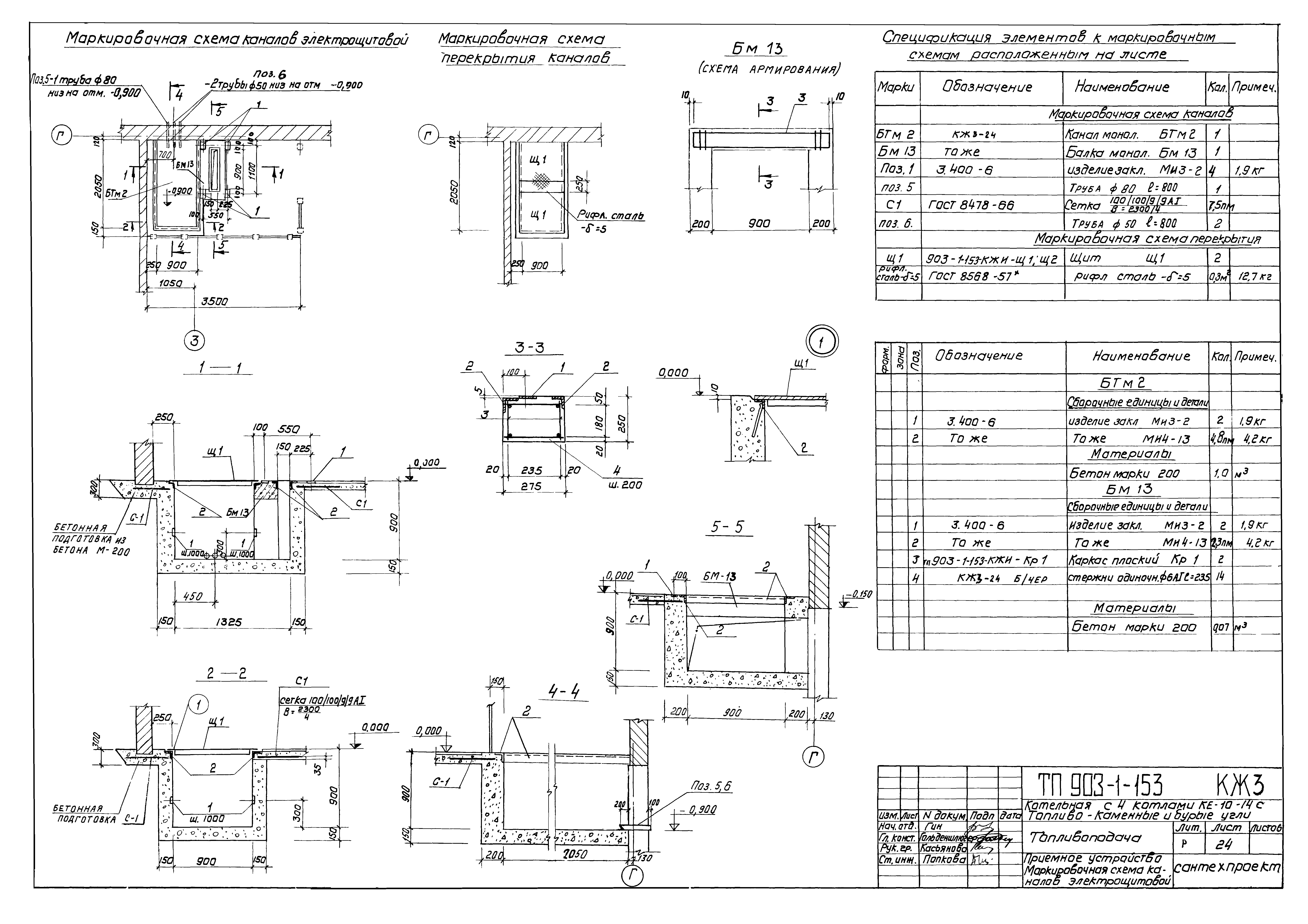
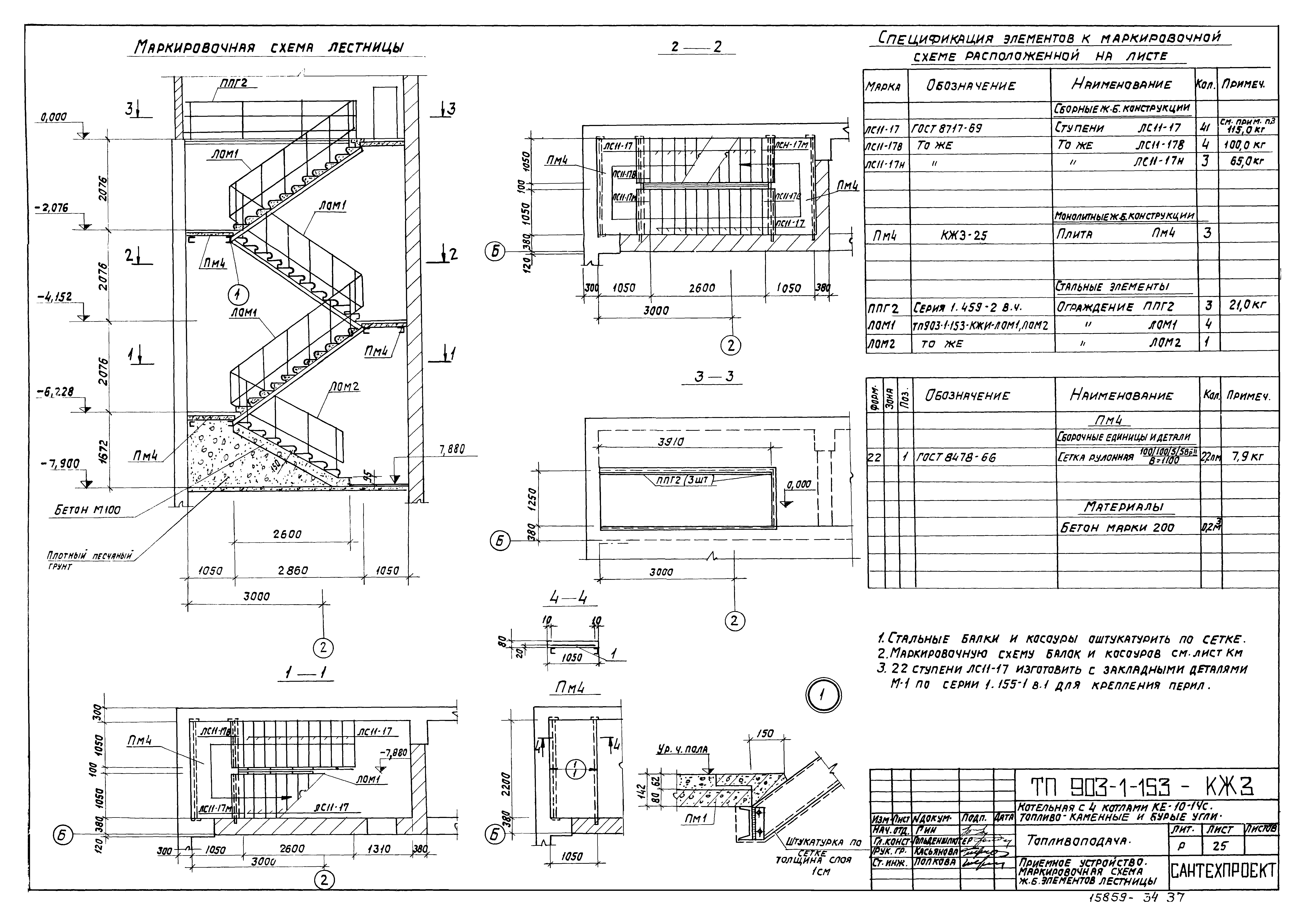
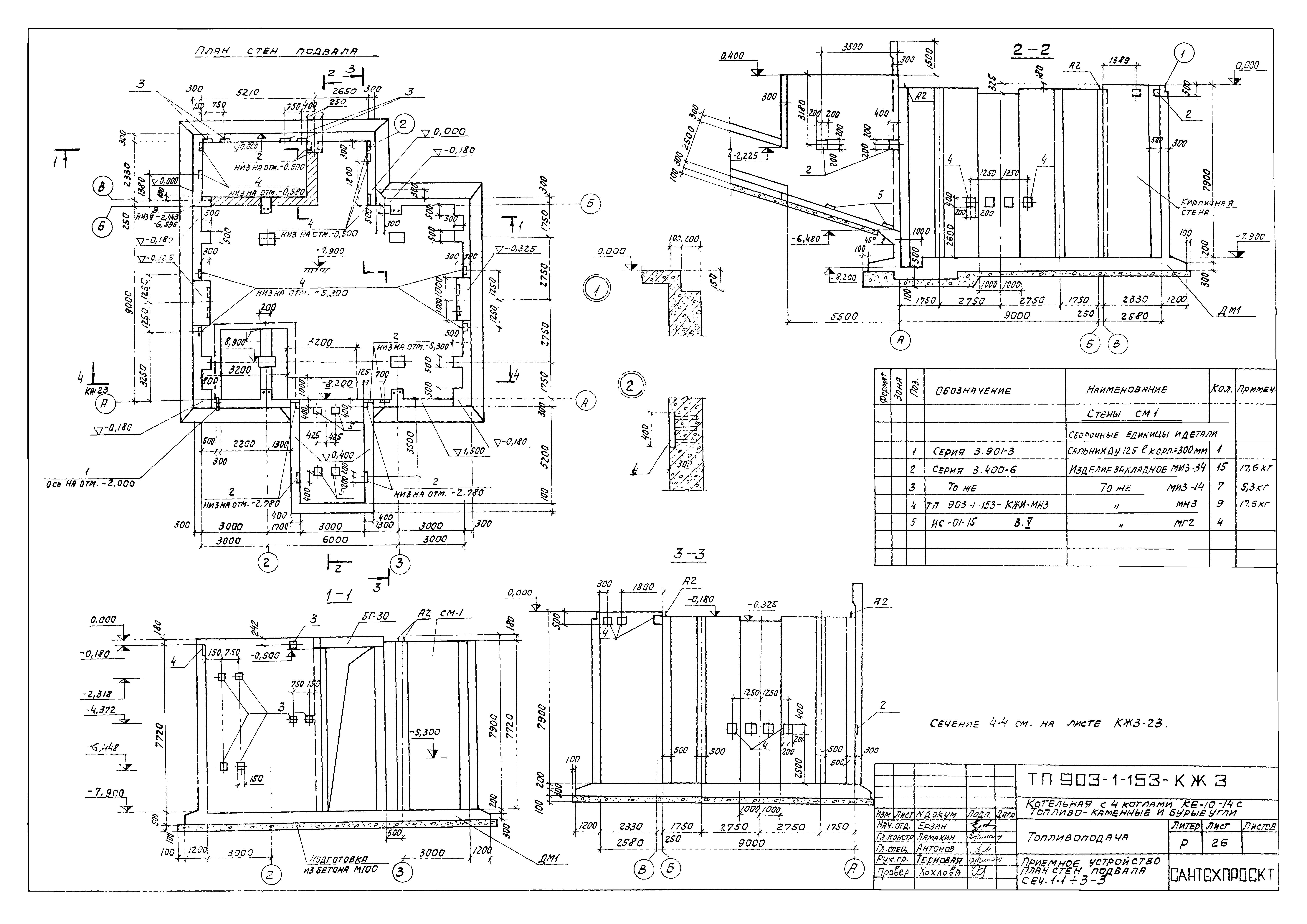
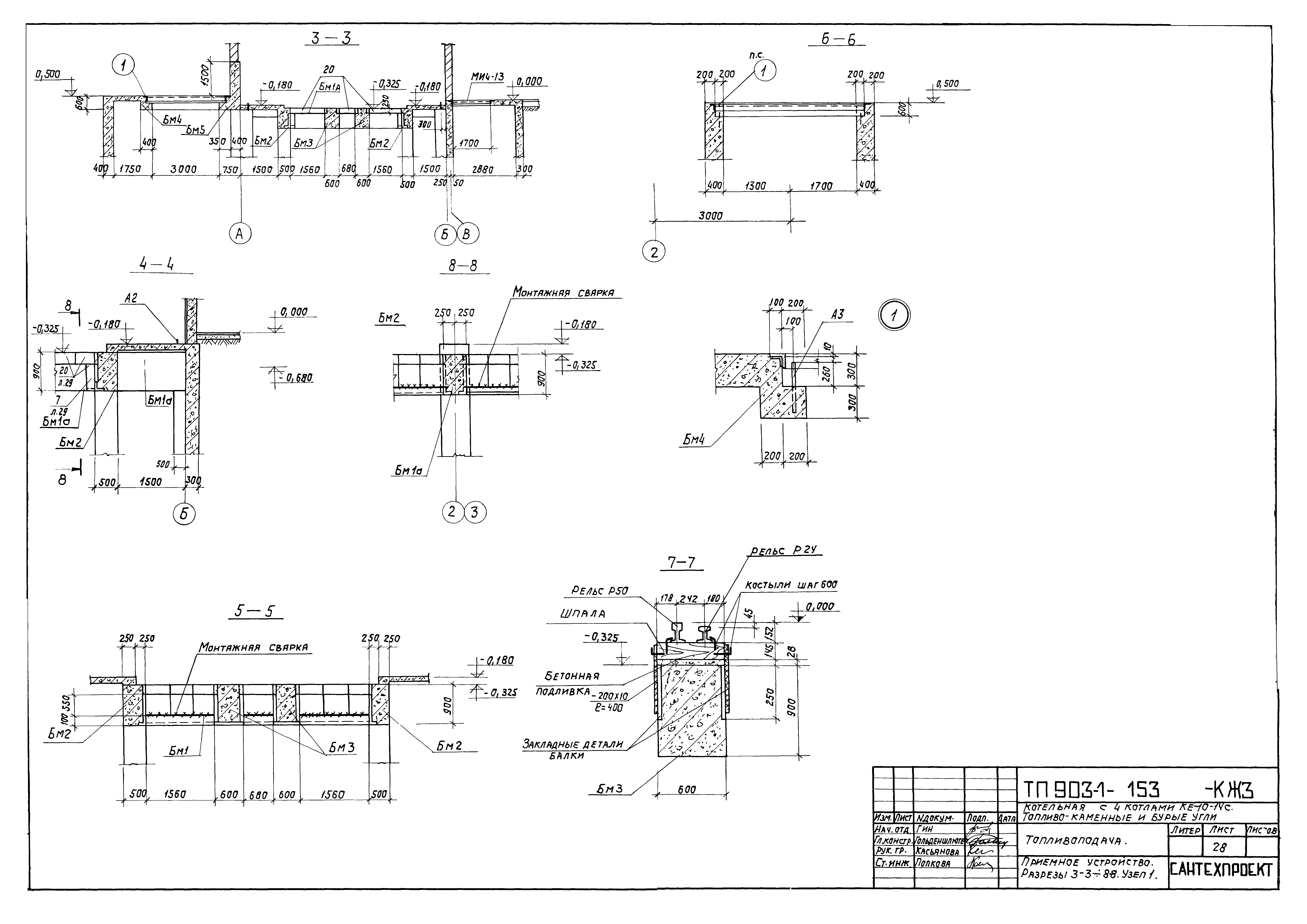
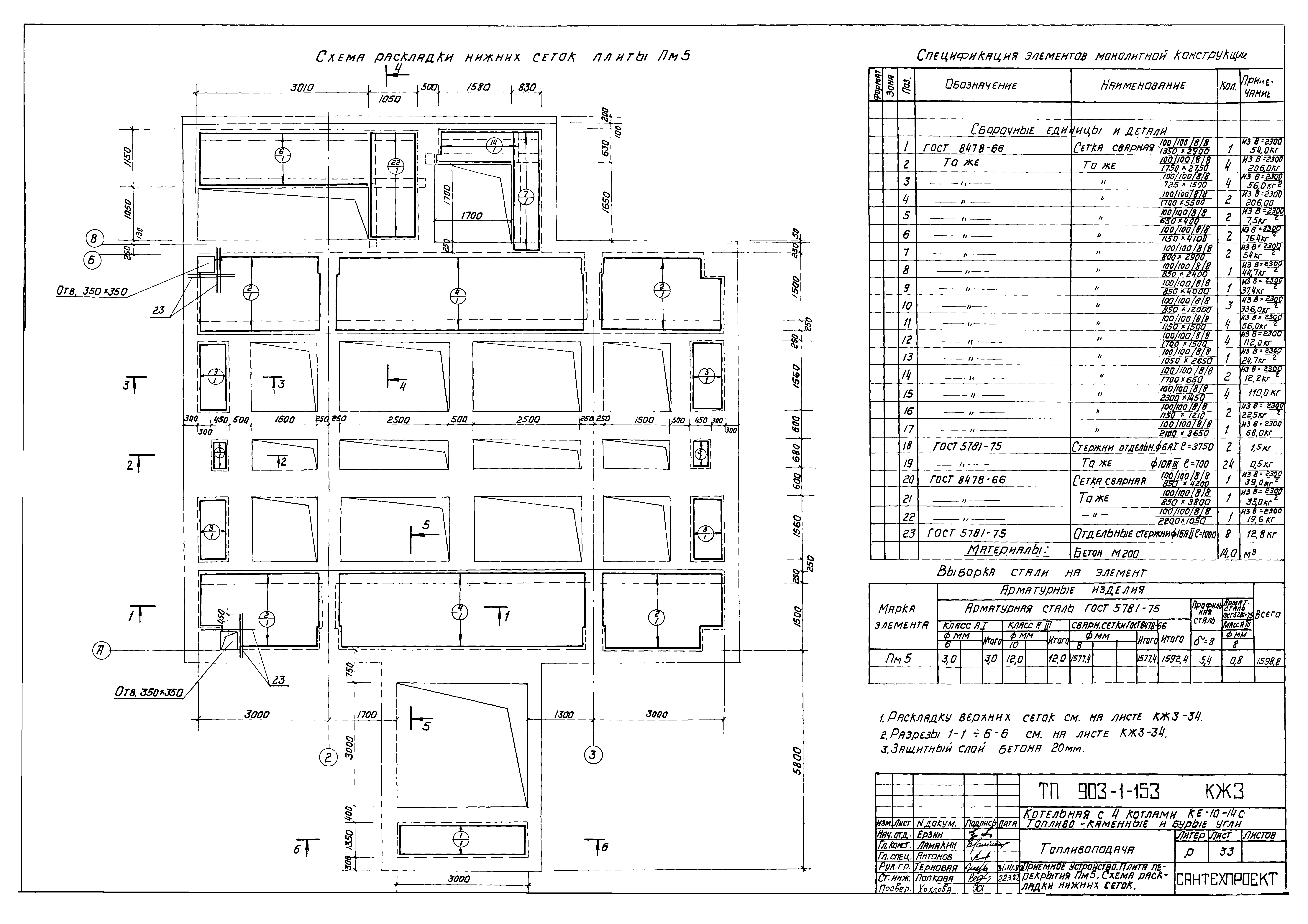
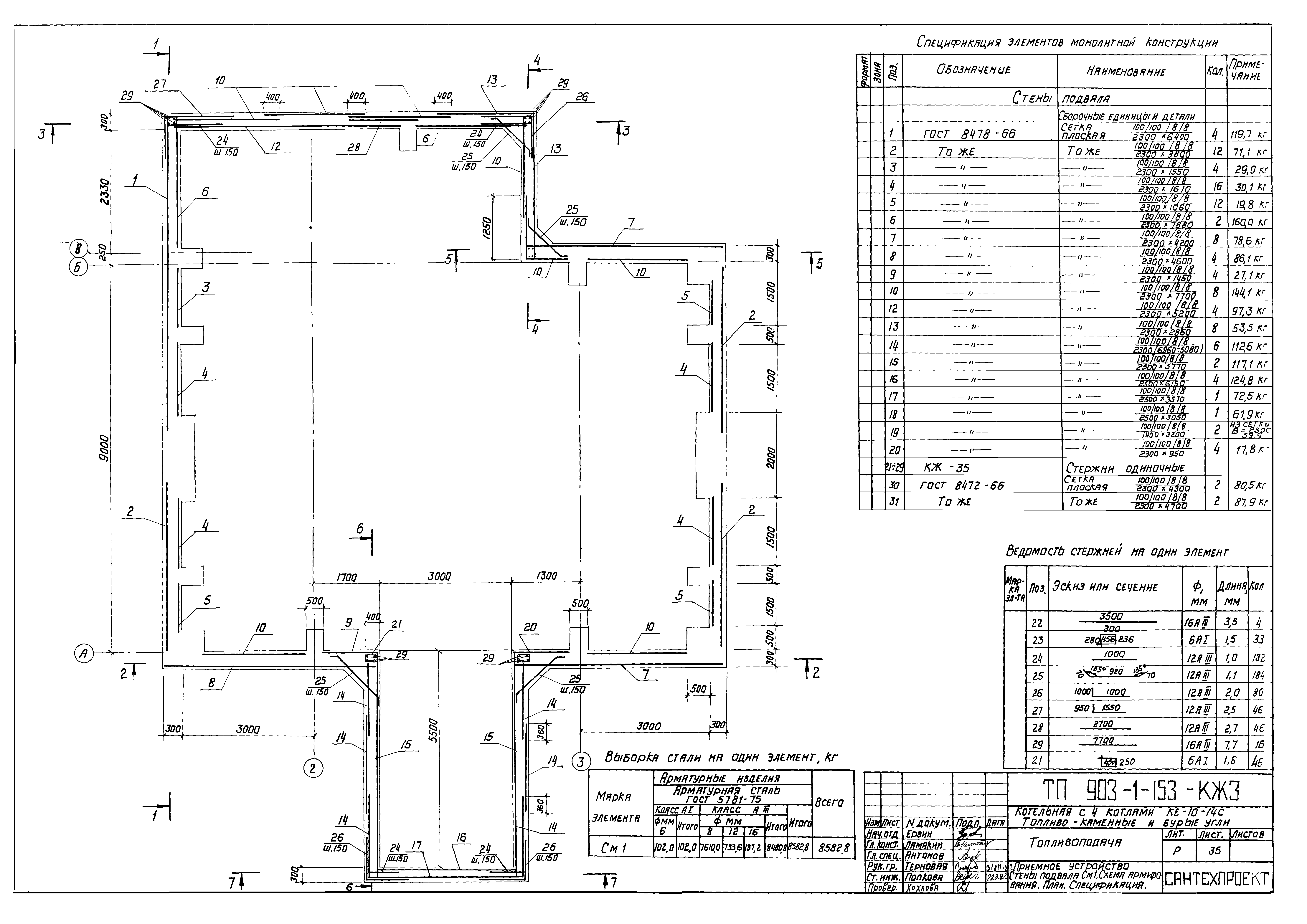
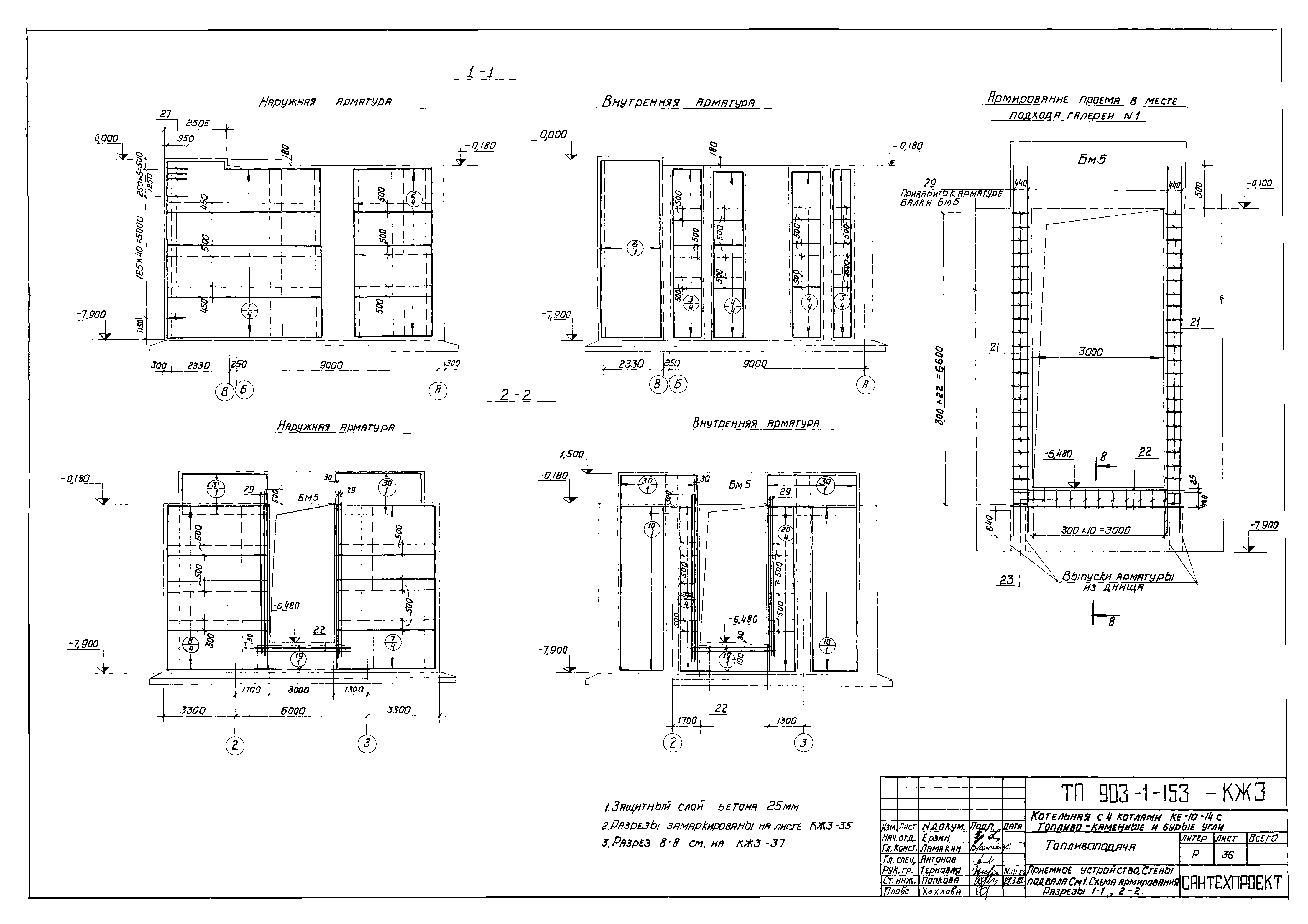
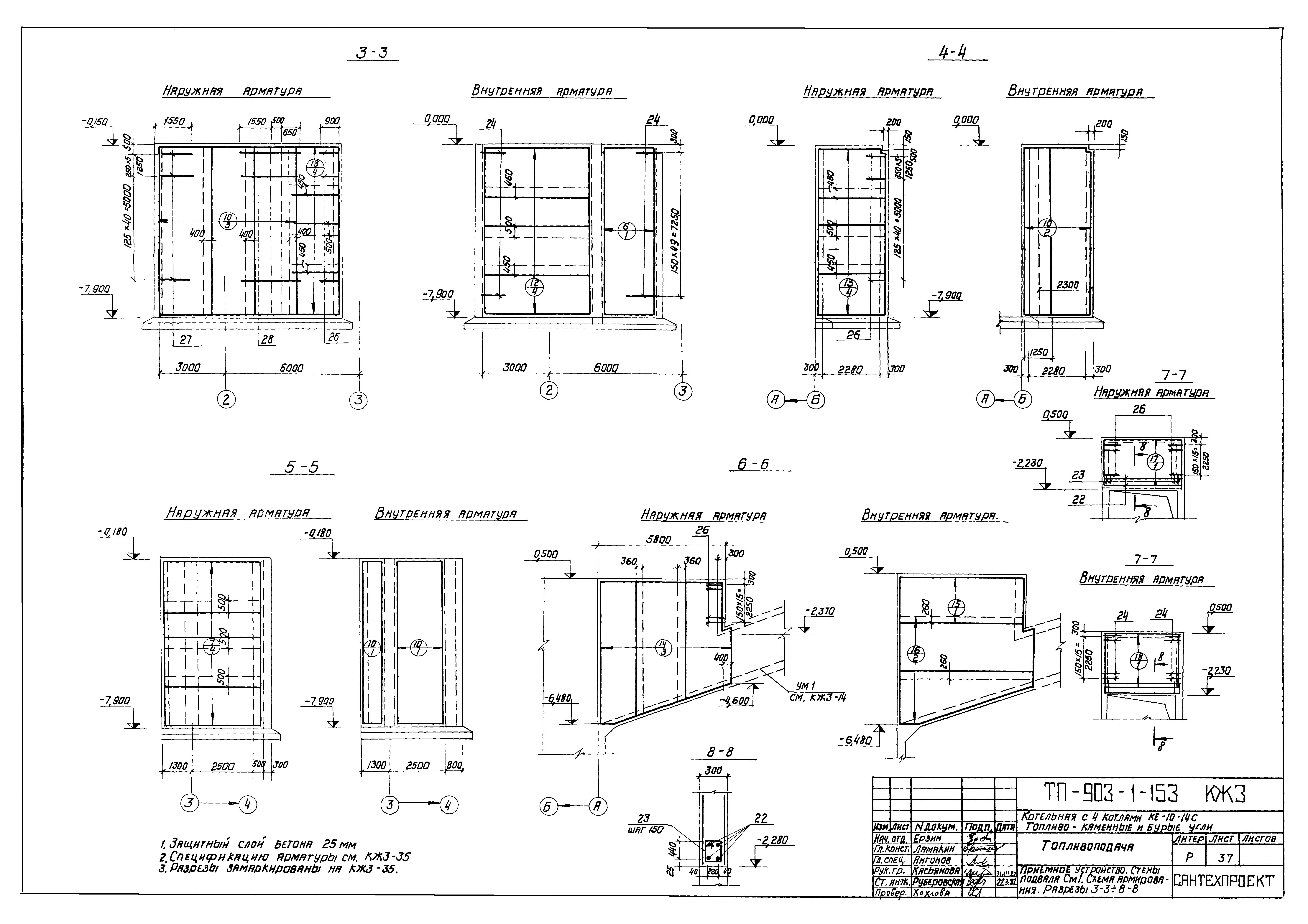
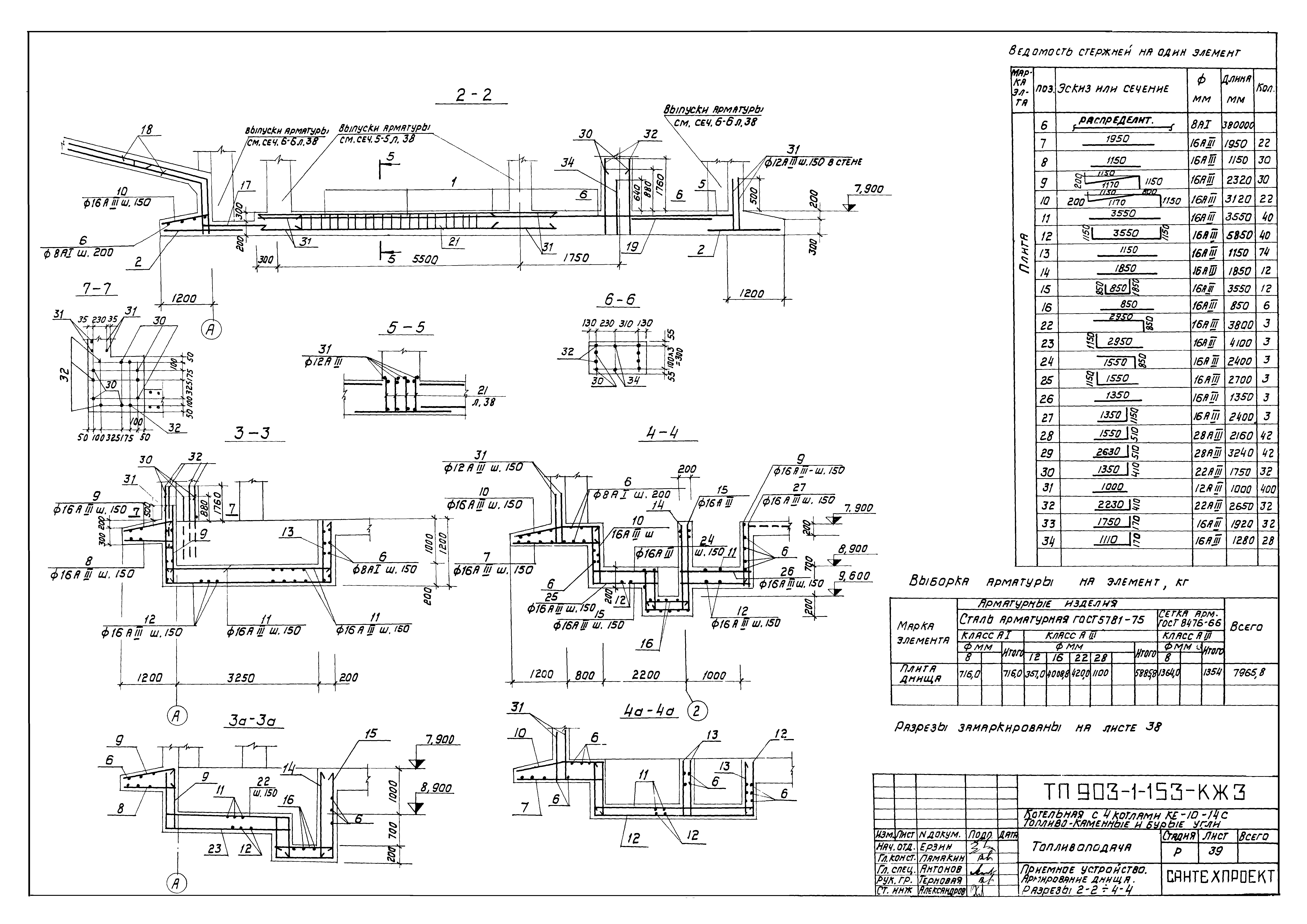
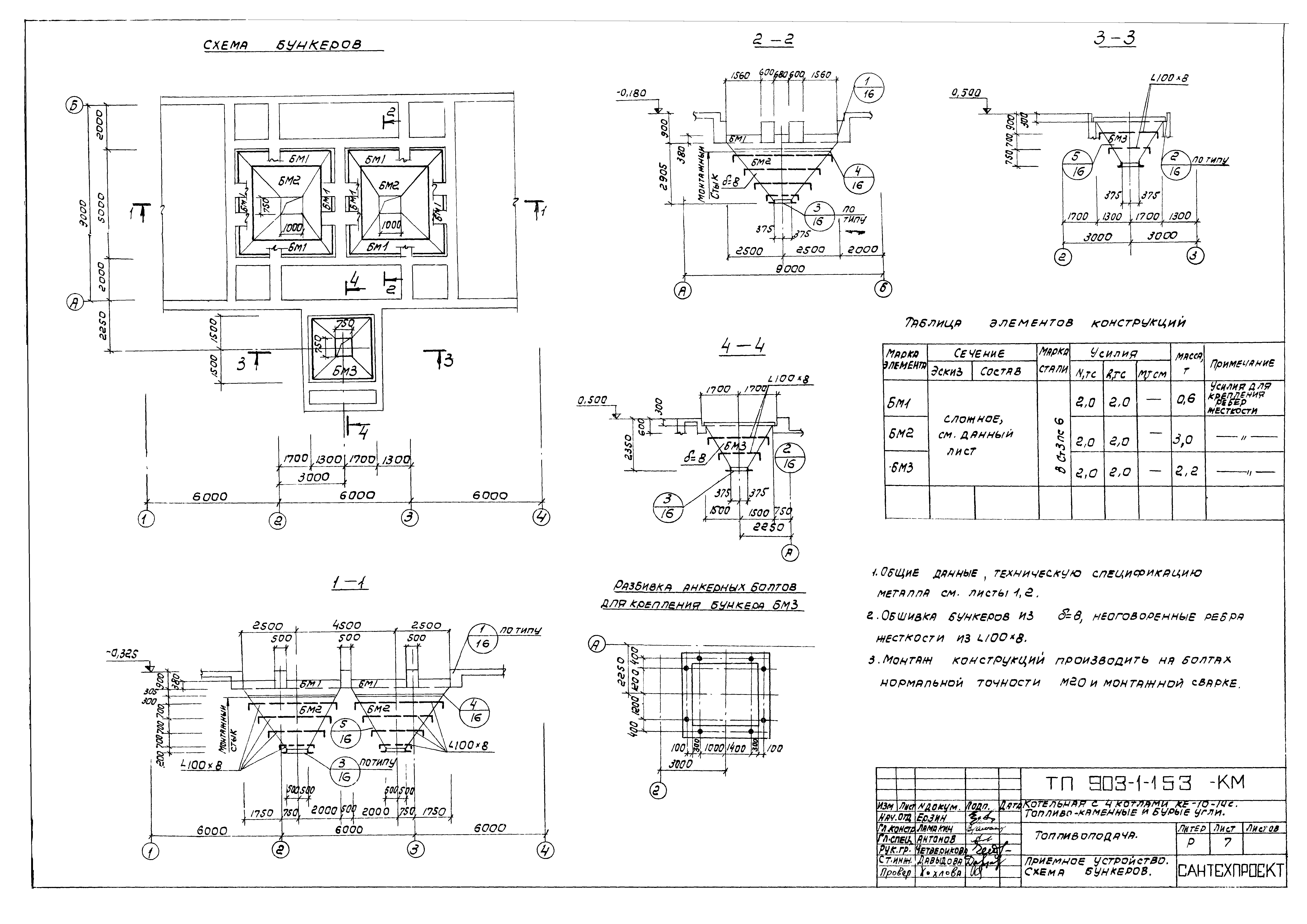
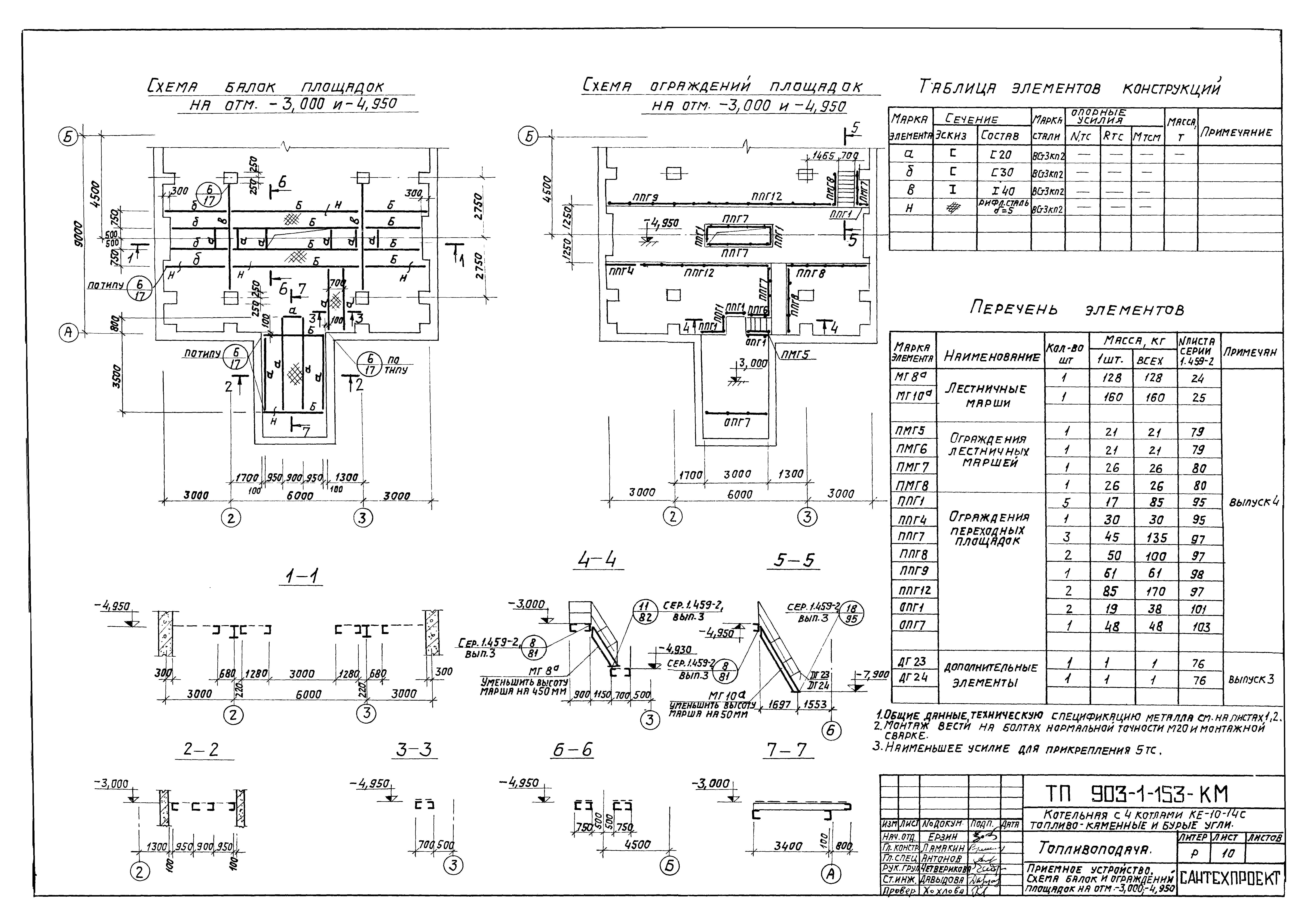
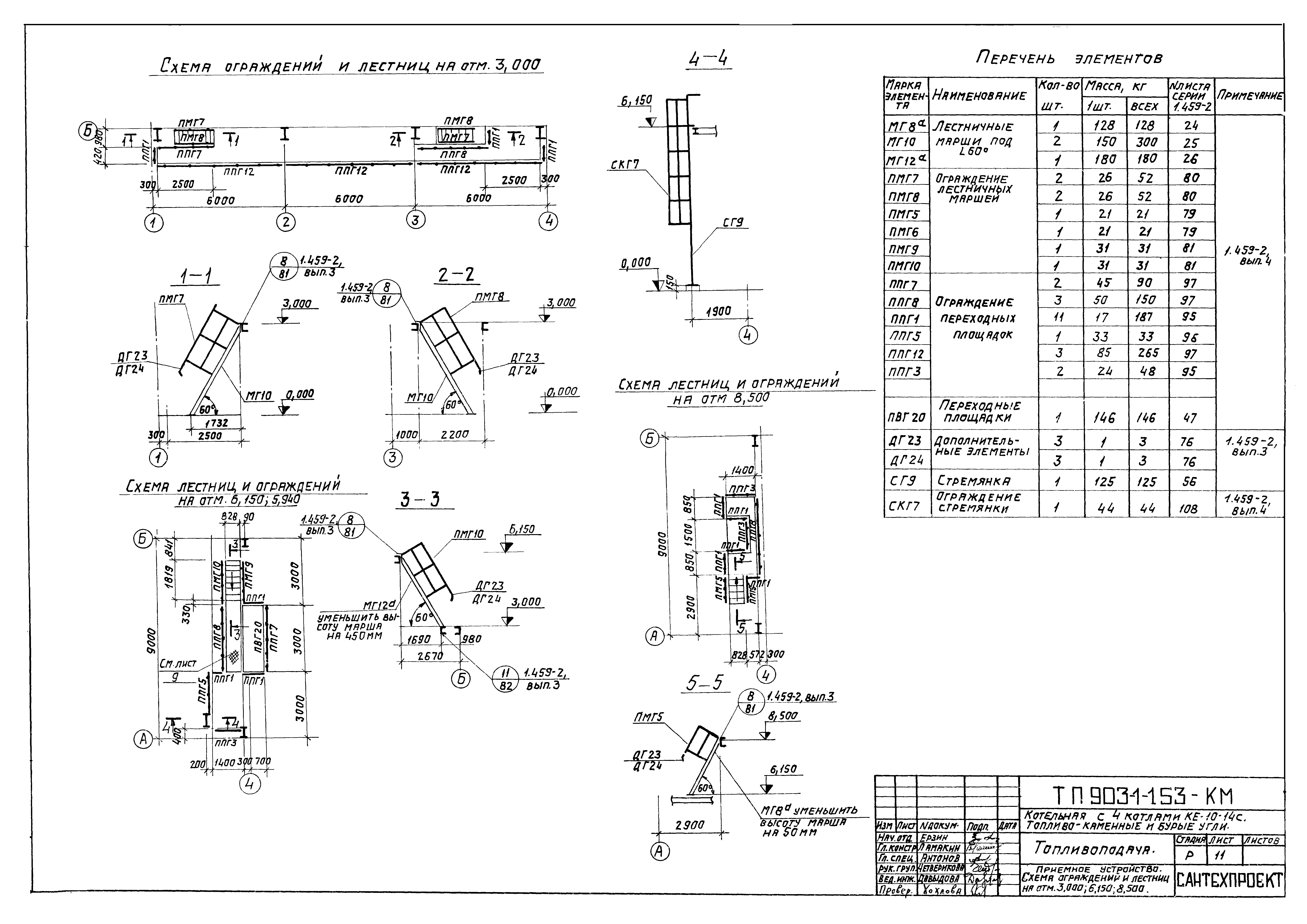
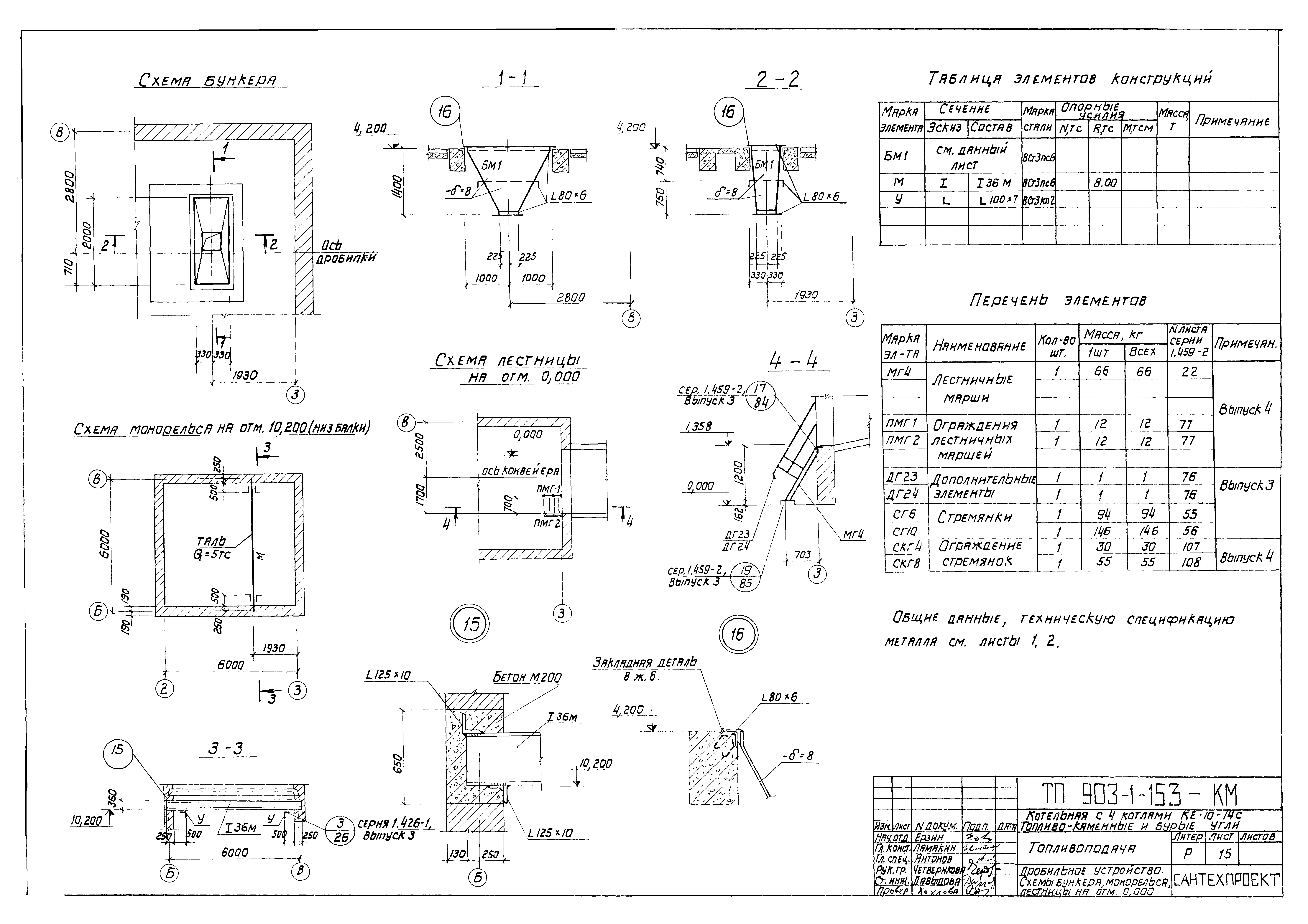
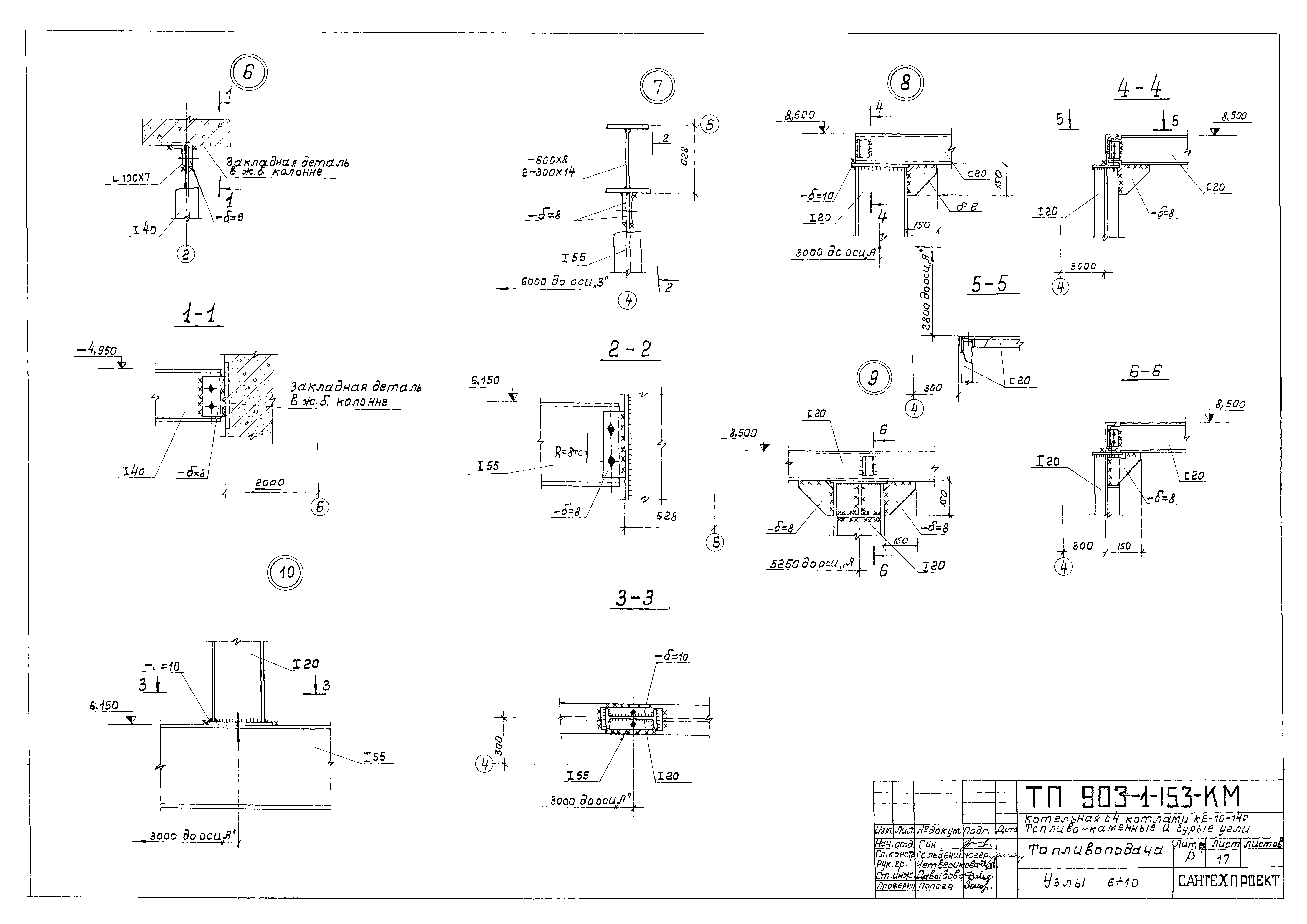
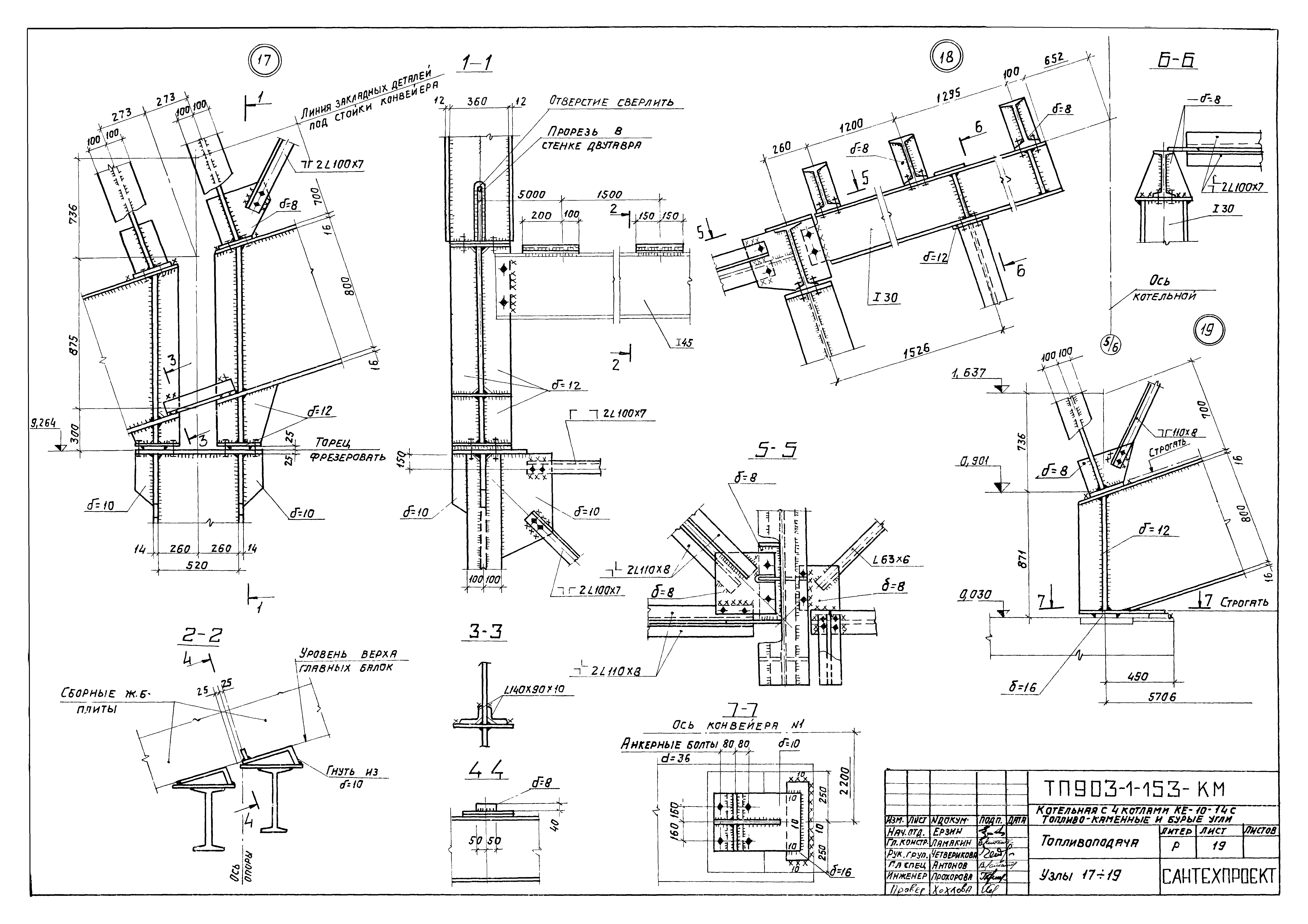
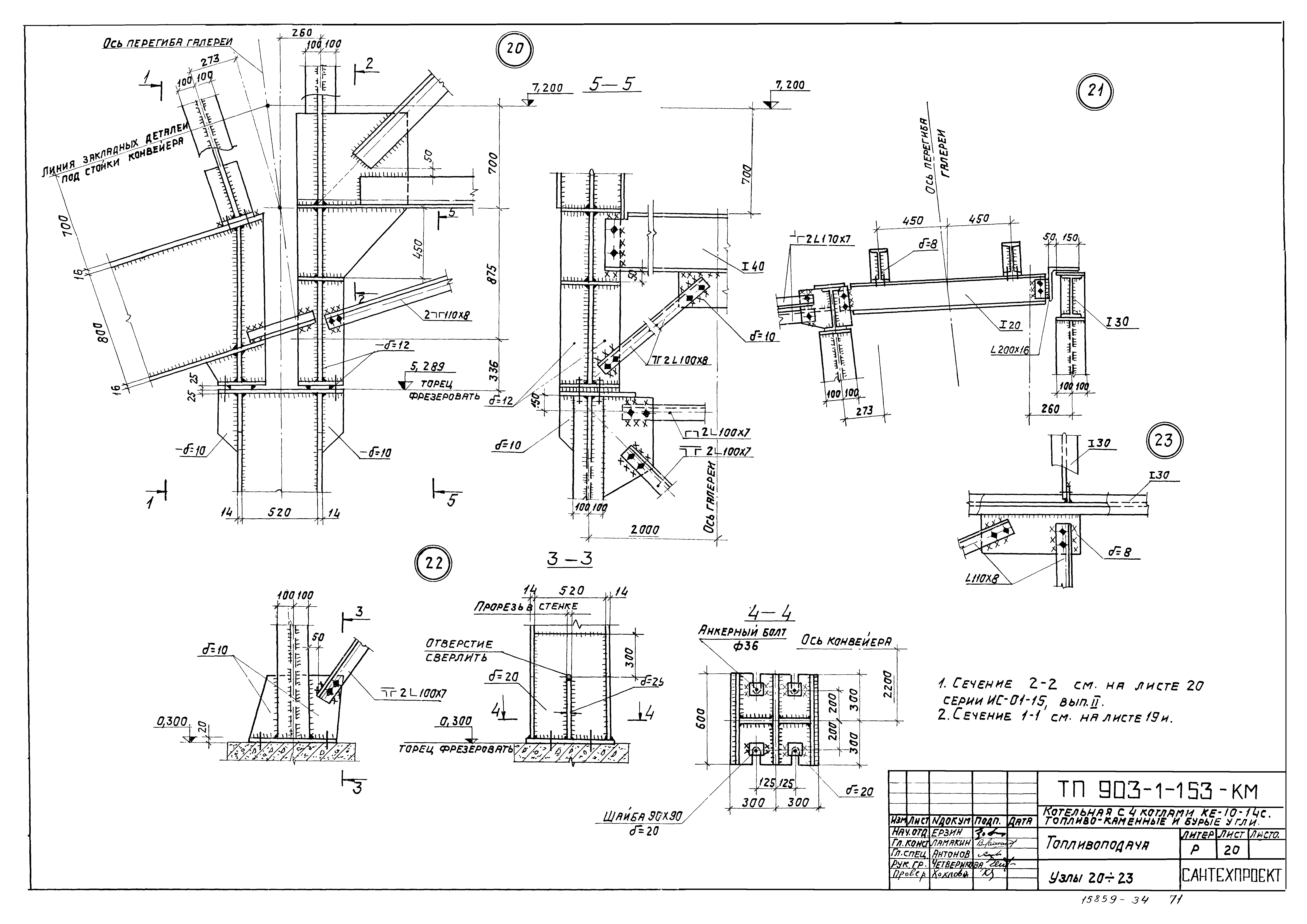
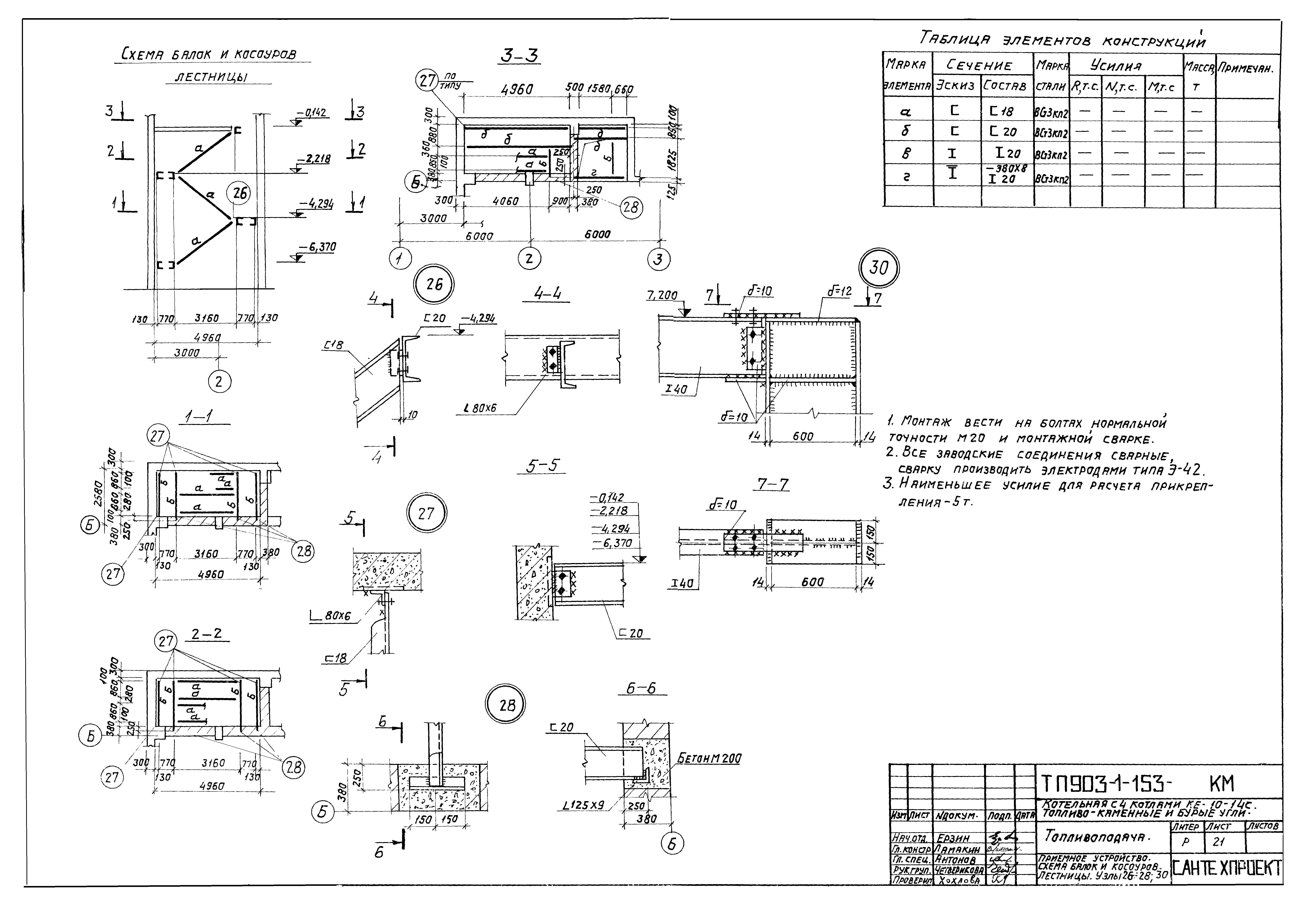
| Оглавление: | ТП 903-1-153 Титульный лист ТП 903-1-153 Содержание альбома ТП 903-1-153-АР-1 Общие данные (начало) ТП 903-1-153-АР-2 Общие данные (окончание) ТП 903-1-153-АР-3 План на отм. 0.000;3.600;-3.000;-5.350 и 7.900 ТП 903-1-153-АР-4 Разрез 1-1;2-2. Фрагменты плана ТП 903-1-153-АР-5 Фасады 1-4;4-1;А-Г и Г-А. Узел 1. Схема № 1 ТП 903-1-153-АР-6 План. Разрез 1-1 ТП 903-1-153-АР-7 Фасад. Сечение и детали галереи ТП 903-1-153-АР-8 Планы на отм. 0.000;4.200 и 7.200. Фасады ТП 903-1-153-АР-9 Разрезы 1-1;2-2. План кровли ТП 903-1-153-КЖ3 Железобетонные конструкции ТП 903-1-153-КЖ3-1 Общие данные (начало) ТП 903-1-153-КЖ3-2 Общие данные (окончание) ТП 903-1-153-КЖ3-3 Дробильное устройство. Фундаменты. План развертки, сечения ТП 903-1-153-КЖ3-4 Дробильное устройство. План подземного хозяйства. Сечения. Канал БТМ1. Маркировочная схема. Перекрытие канала ТП 903-1-153-КЖ3-5 Дробильное устройство. Фундамент ФОМ6. Общие виды. Плита ПМ1. Схема армирования ТП 903-1-153-КЖ3-6 Дробильное устройство. Фундамент ФОМ6. Плита ПФ1. Стойка КМ8. Схемы армирования ТП 903-1-153-КЖ3-7 Дробильное устройство. Фундамент ФОМ6. Балки БМ10,11,11а,12. Схемы армирования ТП 903-1-153-КЖ3-8 Дробильное устройство. Монтажные железобетонные балки БМ7,8,9. Схемы армирования ТП 903-1-153-КЖ3-9 Дробильное устройство. Перекрытие на отм. 4.200 и 7.200. Схемы армирования ТП 903-1-153-КЖ3-10 Дробильное устройство. Маркировочные схемы плит покрытия и закладных элементов в карнизной кладке на отм. 3,7 и 10,9 ТП 903-1-153-КЖ3-11 Маневровое устройство. Маркировочная схема фундаментов. Фундаменты ФОМ1 и ФОМ2 ТП 903-1-153-КЖ3-12 Маневровое устройство. Фундаменты ФОМ3-ФОМ5 ТП 903-1-153-КЖ3-13 Галерея № 1. План фундаментов. Разрезы ТП 903-1-153-КЖ3-14 Галерея № 1. Фундаменты ФМ1,1а,ФМ2,УМ1. Схема армирования ТП 903-1-153-КЖ3-15 Галерея № 1. Маркировочные схемы покрытия, перекрытия и стеновых панелей ТП 903-1-153-КЖ3-16 Галерея № 1,2. Монолитные участки УМ2-УМ7. Схема армирования ТП 903-1-153-КЖ3-17 Галерея № 1. Маркировочная схема фундаментов. Фундаменты ФМ3,ФМ4 ТП 903-1-153-КЖ3-18 Галерея № 1. Маркировочные схемы покрытия, перекрытия и стеновых панелей ТП 903-1-153-КЖ3-19 Галерея № 1,2. Маркировочные схемы лестницы в осях 1-2,Б-В. Разрезы 1-1÷3-3 ТП 903-1-153-КЖ3-20 Приемное устройство. План фундаментов ТП 903-1-153-КЖ3-21 Приемное устройство. План фундаментов. Фундамент ФМ5 ТП 903-1-153-КЖ3-22 Приемное устройство. Развертки стен фундаментов. Фундамент ФМ6 ТП 903-1-153-КЖ3-23 Приемное устройство. Маркировочный план на отм. -7.900;-8.900. Маркировочная схема плит покрытия ТП 903-1-153-КЖ3-24 Приемное устройство. Маркировочная схема каналов электрощитовой ТП 903-1-153-КЖ3-25 Приемное устройство. Маркировочная схема железобетонных элементов лестницы ТП 903-1-153-КЖ3-26 Приемное устройство. План стоек днища подвала ТП 903-1-153-КЖ3-27 Приемное устройство. Маркировочный план на отм. -0.325;-0.180;0.000;0.500 ТП 903-1-153-КЖ3-28 Приемное устройство. Разрезы 3-3÷8-8. Узел 1 ТП 903-1-153-КЖ3-29 Приемное устройство. Балки монолитные БМ1-БМ3. Схема армирования ТП 903-1-153-КЖ3-30 Приемное устройство. Балки монолитные БМ3-БМ5. Схема армирования ТП 903-1-153-КЖ3-31 Приемное устройство. Маркировочная схема стоек. Колонны КМ1-КМ3. Схема армирования ТП 903-1-153-КЖ3-32 Конечное устройство. Монолитные колонны КМ4-КМ7. Схема армирования ТП 903-1-153-КЖ3-33 Приемное устройство. Плита перекрытия ПМ5. Схемы армирования ТП 903-1-153-КЖ3-34 Приемное устройство. Плита перекрытия ПМ5. Схемы армирования. Разрезы ТП 903-1-153-КЖ3-35 Приемное устройство. Стены подвала СМ1. Схема армирования. План. Спецификация ТП 903-1-153-КЖ3-36 Приемное устройство. Стены подвала СМ7. Схема армирования. Разрезы 1-1;2-2 ТП 903-1-153-КЖ3-37 Приемное устройство. Стены подвала СМ7. Схема армирования. Разрезы 3-3÷7-7 ТП 903-1-153-КЖ3-38 Приемное устройство. Армирование днища. Разрез 1-1 ТП 903-1-153-КЖ3-39 Приемное устройство. Армирование днища. Разрезы 2-2÷4-4 ТП 903-1-153-КМ Металлические конструкции ТП 903-1-153-КМ-1 Заглавный лист ТП 903-1-153-КМ-2 Приемное устройство. Дробильное устройство. Техническая спецификация металла ТП 903-1-153-КМ-3 Галерея № 1. Галерея № 2. Техническая спецификация металла ТП 903-1-153-КМ-4 Приемное устройство. Схема колонн на отм. 0.000 балок покрытия, прогонов кровли, козырька ТП 903-1-153-КМ-5 Приемное устройство. Схема фахверка по осям А,Б,1,4. Узлы 24,25 ТП 903-1-153-КМ-6 Приемное устройство. Схема стоек на отм. 0.000, балок на отм. 7.200, монорельсов на отм. 6.510;10.100;3.100 ТП 903-1-153-КМ-7 Приемное устройство. Схема бункеров ТП 903-1-153-КМ-8 Приемное устройство. Схема решеток бункеров ТП 903-1-153-КМ-9 Приемное устройство. Схема балок, площадок на отм. 3.000;6.150;8.500 ТП 903-1-153-КМ-10 Приемное устройство. Схема балок и ограждений площадок на отм. -3.000;-4.950 ТП 903-1-153-КМ-11 Приемное устройство. Схема лестниц и ограждений на отм. 3.000;6.150;8.500 ТП 903-1-153-КМ-12 Галерея № 1. Схема несущих конструкций ТП 903-1-153-КМ-13 Галерея № 2. Схема несущих конструкций ТП 903-1-153-КМ-14 Дробильное устройство. Схема балок перекрытий на отм. 4.200 и 7.200 ТП 903-1-153-КМ-15 Дробильное устройство. Схема бункера монорельса, лестницы на отм. 0.000 ТП 903-1-153-КМ-16 Узлы 1-5 ТП 903-1-153-КМ-17 Узлы 6-10 ТП 903-1-153-КМ-18 Узлы 11-14 ТП 903-1-153-КМ-19 Узлы 17-19 ТП 903-1-153-КМ-20 Узлы 20-23 ТП 903-1-153-КМ-21 Приемное устройство. Схема балок и косоуров на отм. -0.142. Узлы 26-28 |
| Разработан: | ГПИ Сантехпроект Госстроя СССР Минтяжмаш СССР Союзпроммеханизация |
| Утверждён: | 13.08.1982 ГПИ Сантехпроект (119) |
| Заменяет собой: | |
| Чем заменён: |




































































