Скачать Типовой проект 903-1-153 Альбом XV. Схемы функциональные и внешних проводок. Планы расположения. Блоки местных приборовДата актуализации: 01.01.2021
|
| Обозначение: | Типовой проект 903-1-153 |
| Обозначение англ: | 903-1-153 |
| Статус: | заменен |
| Название рус.: | Альбом XV. Схемы функциональные и внешних проводок. Планы расположения. Блоки местных приборов |
| Дата добавления в базу: | 01.09.2013 |
| Дата актуализации: | 01.01.2021 |
| Дата введения: | 23.03.1979 |
| Дата окончания срока действия: | 01.01.1990 |
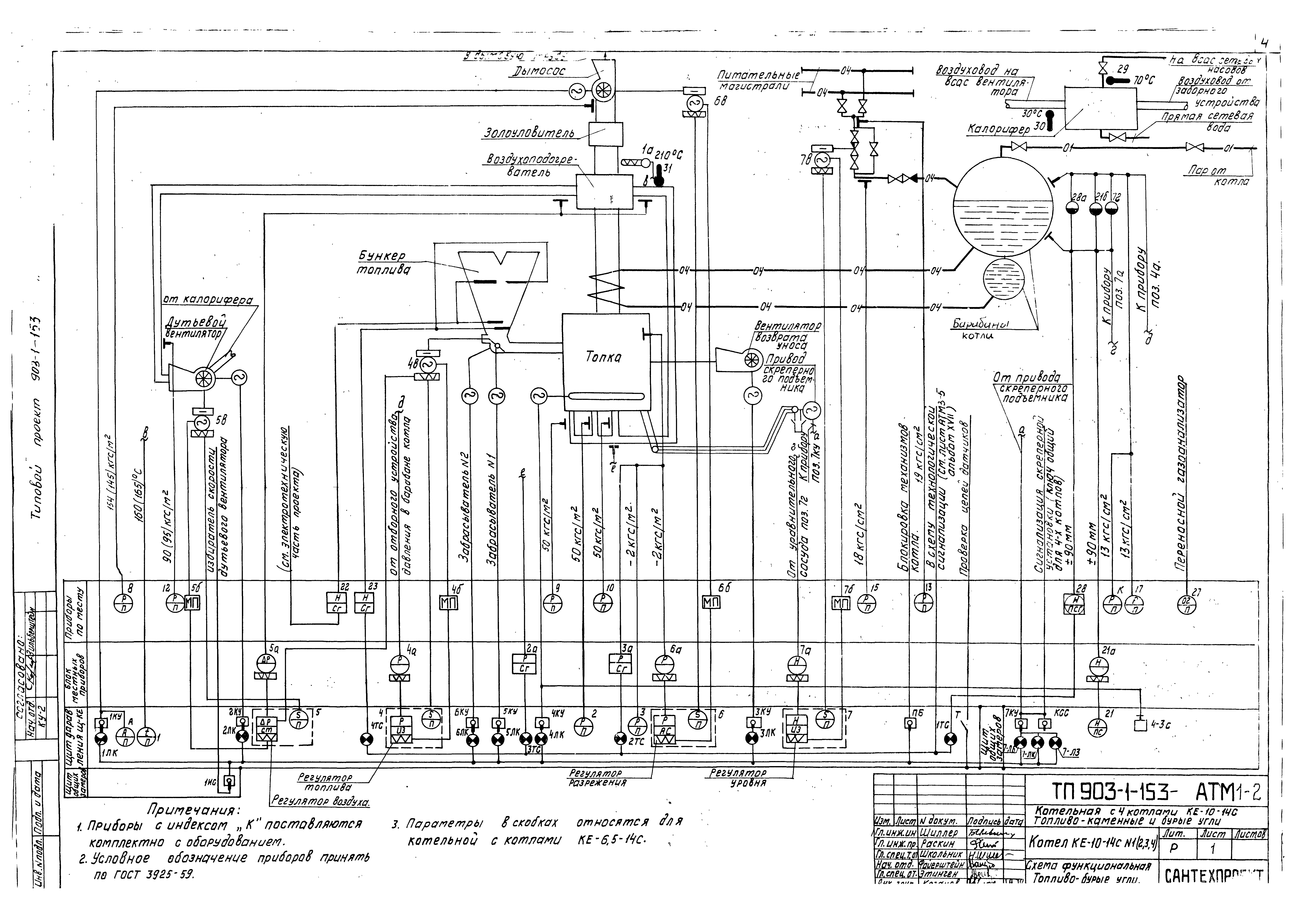
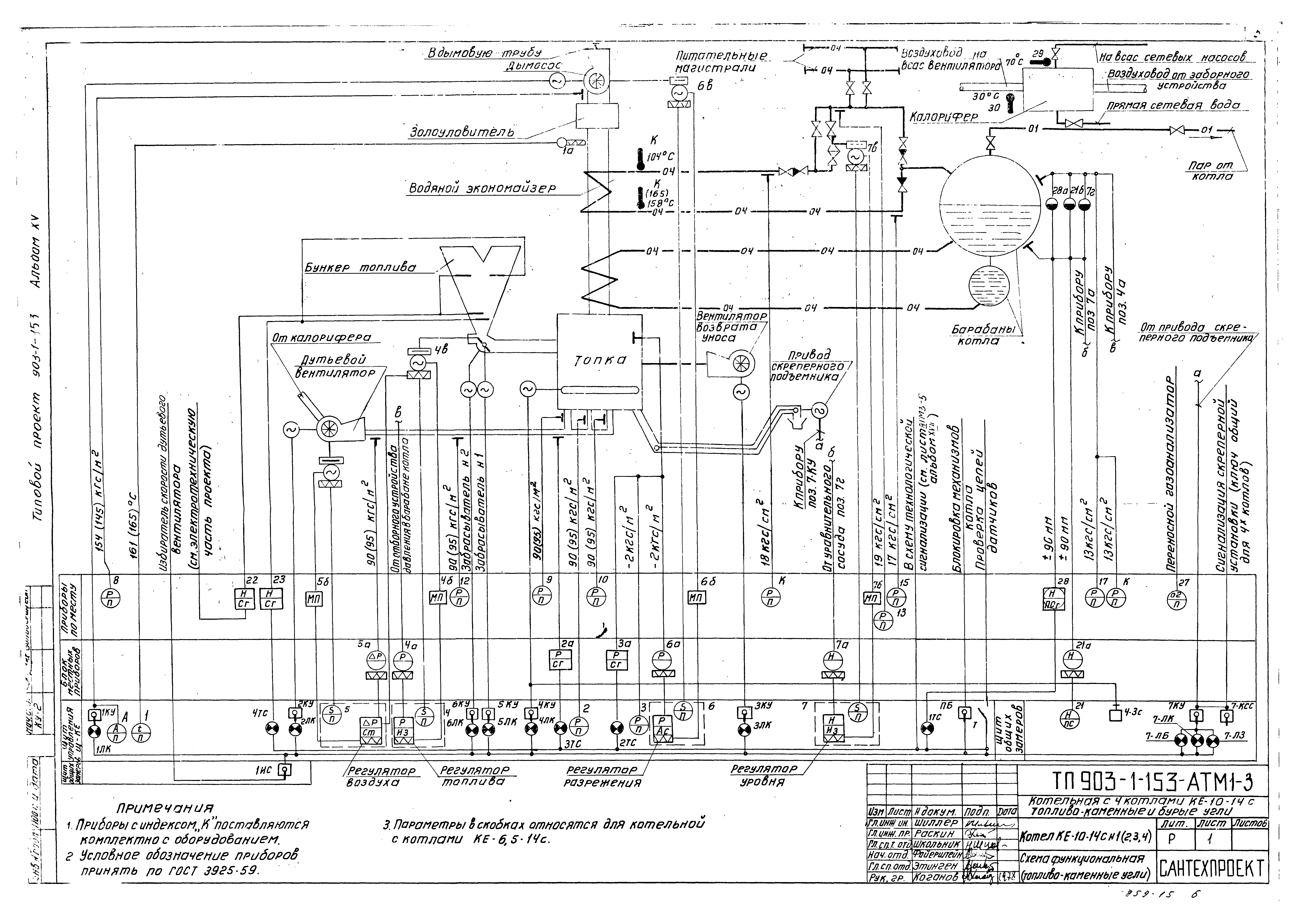
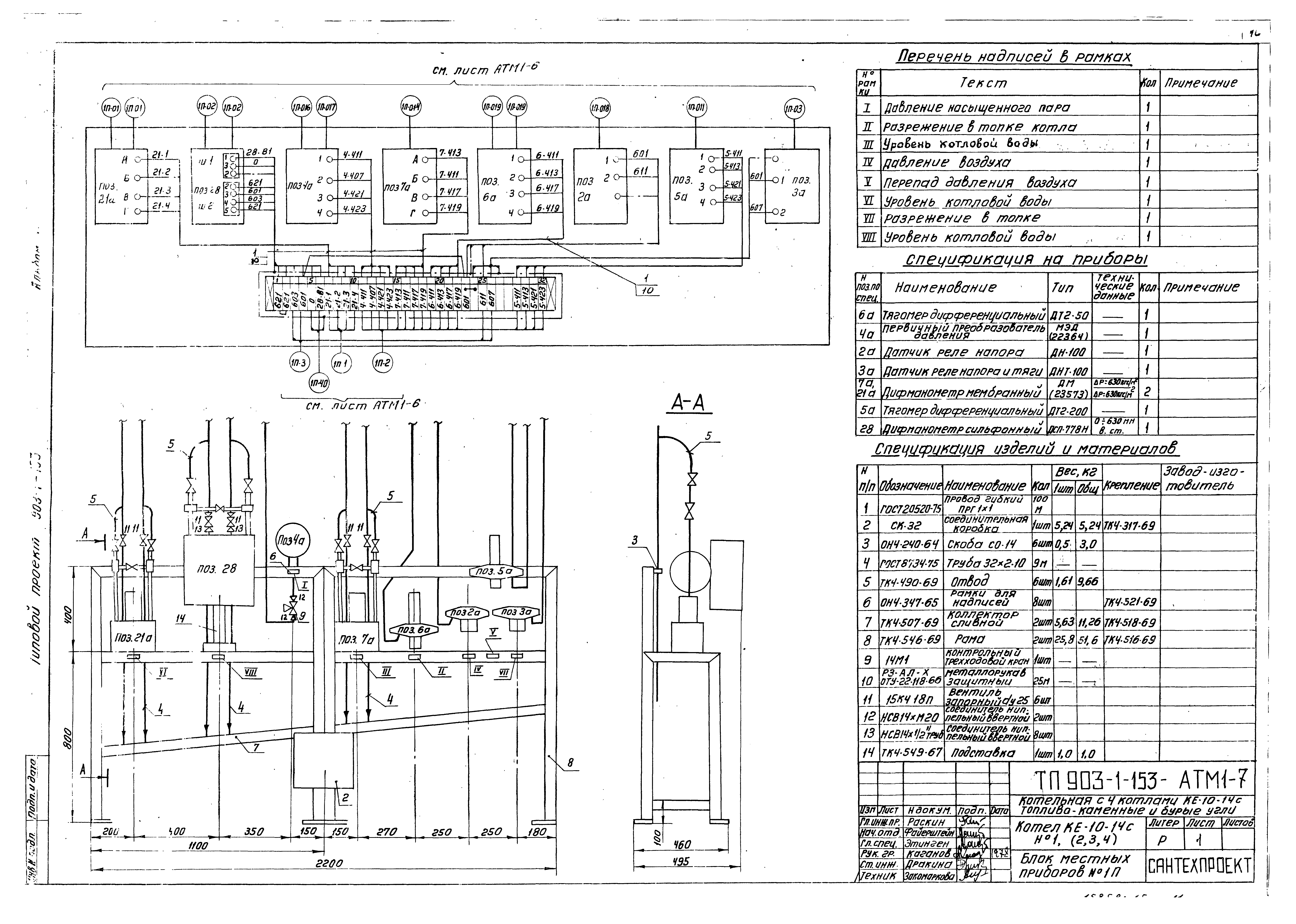
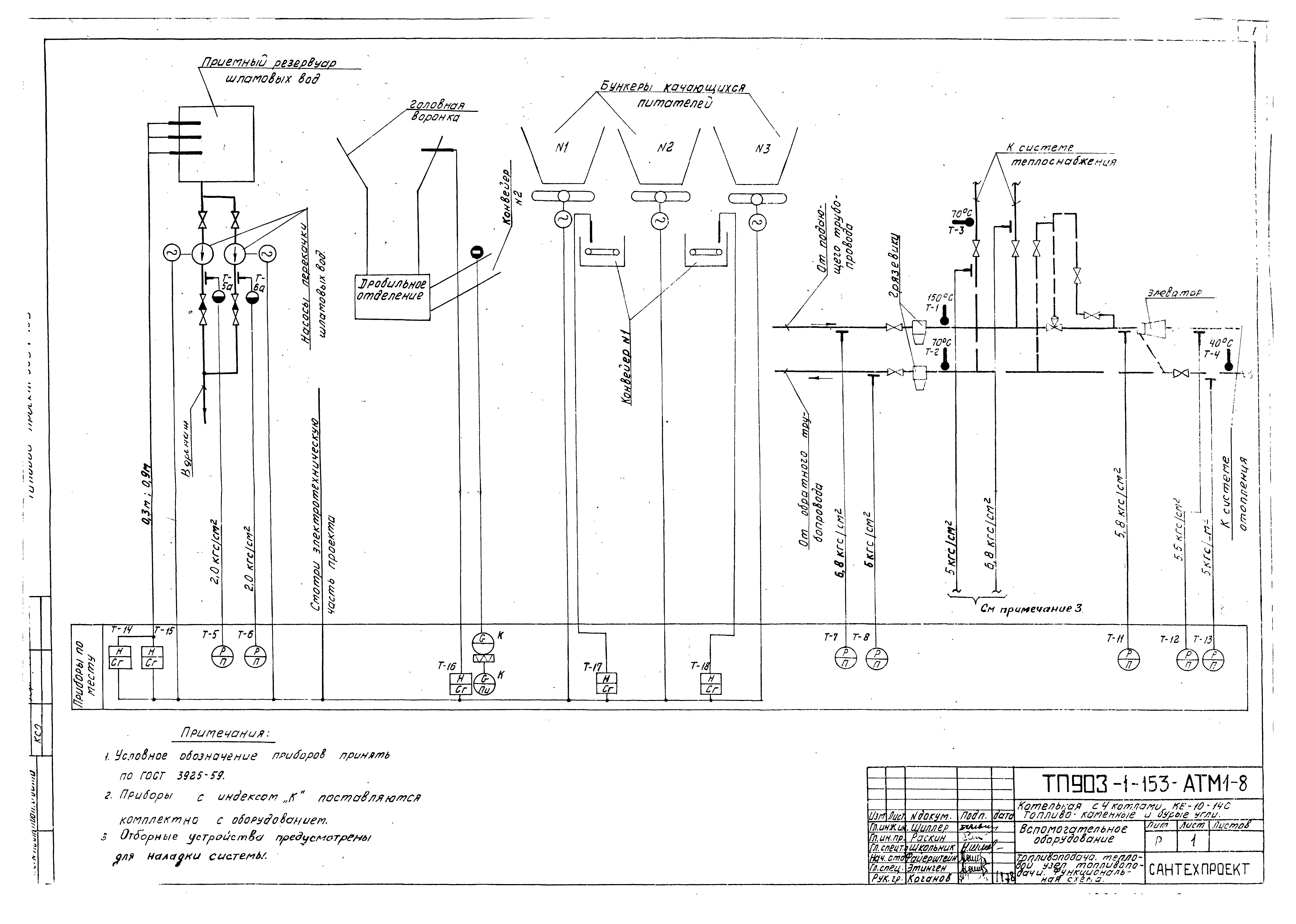
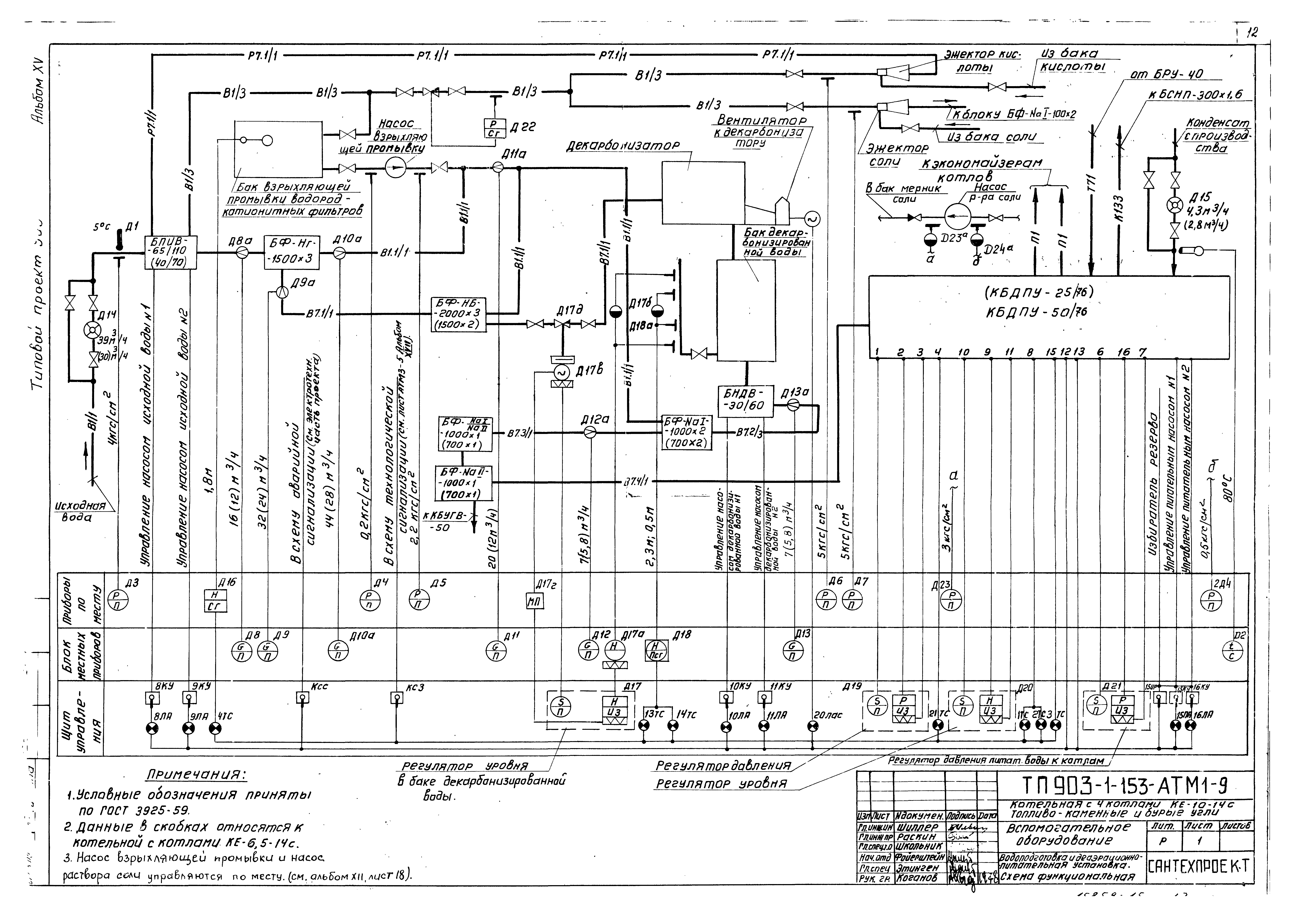
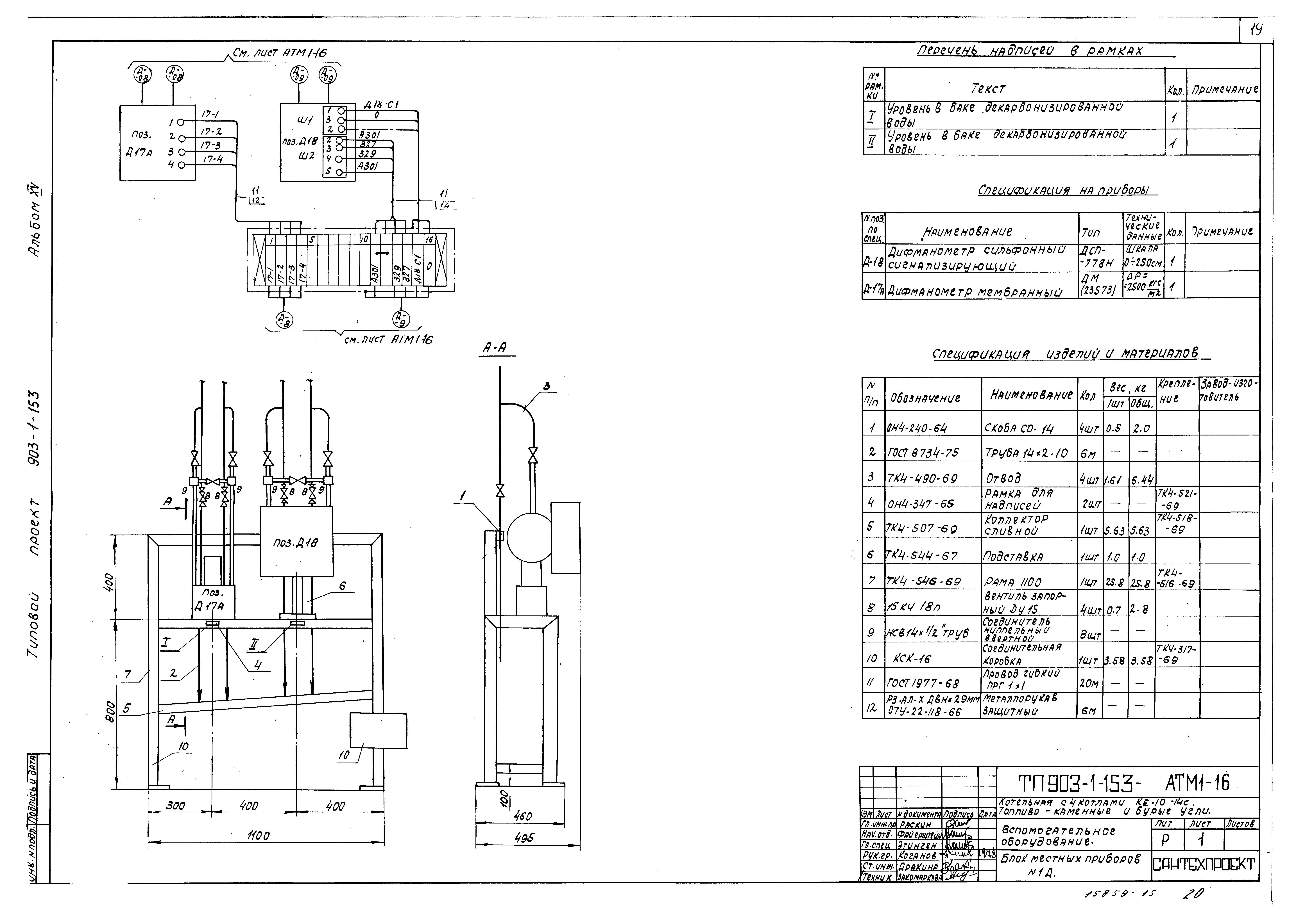
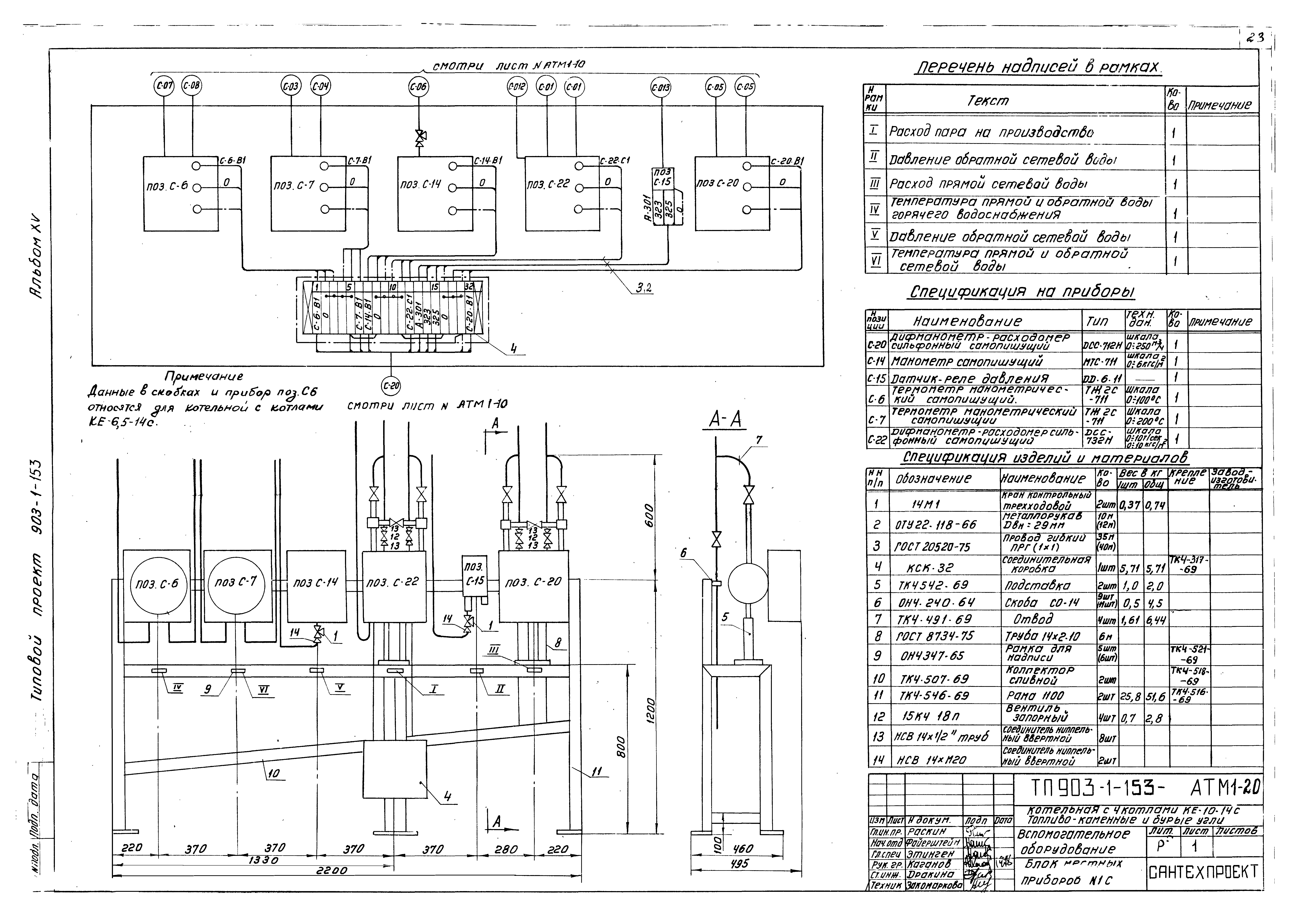
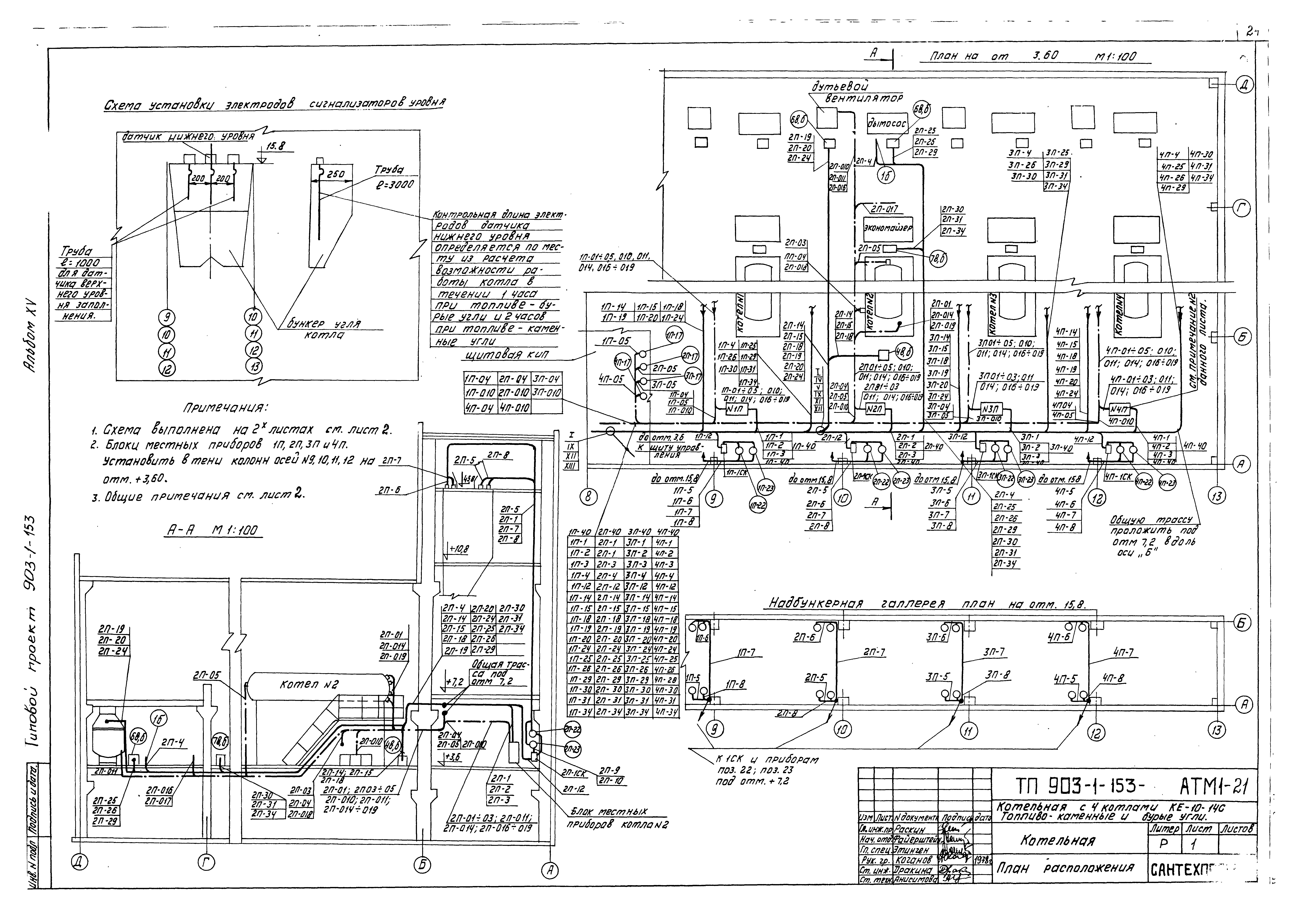
| Оглавление: | Титульный лист Общие данные Котел КЕ-10-14С №1 (2, 3, 4). Схема функциональная (топливо - бурые угли) Котел КЕ-10-14С №1 (2, 3, 4). Схема функциональная (топливо - каменные угли) Котел КЕ-10-14С №1 (2, 3, 4). Щит Щ-КЕ. Общий вид Котел КЕ-10-14С №1 (2, 3, 4). Клеммные ряды щита Щ-КЕ Котел КЕ-10-14С №1 (2, 3, 4). Схема внешних проводок Котел КЕ-10-14С №1 (2, 3, 4). Блок местных приборов №1П Вспомогательное оборудование. Топливоподача, тепловой узел топливоподачи. Функциональная схема Вспомогательное оборудование. Водоподготовка. Деаэрационно-питательная установка. Функциональная схема Вспомогательное оборудование. Сетевая установка. Установка горячего водоснабжения. Функциональная схема Вспомогательное оборудование. Оборотное водоснабжение и тепловой узел котельной. Функциональная схема Вспомогательное оборудование. Топливоподача и тепловой узел. Схема внешних проводок Вспомогательное оборудование. Водоподготовка и деаэрационно-питательная установка. Схема внешних проводок Вспомогательное оборудование. Сетевая установка и установка горячего водоснабжения. Схема внешних проводок Вспомогательное оборудование. Оборотное водоснабжение и тепловой узел котельной. Схема внешних проводок Вспомогательное оборудование. Блок местных приборов №1Д Вспомогательное оборудование. Блок местных приборов №2Д Вспомогательное оборудование. Блок местных приборов №3Д Вспомогательное оборудование. Блок местных приборов №4Д Вспомогательное оборудование. Блок местных приборов №1С План расположения Схемы сочленений Вспомогательное оборудование. Клеммные ряды щитов |
| Разработан: | ГПИ Сантехпроект Госстроя СССР Минтяжмаш СССР Союзпроммеханизация |
| Утверждён: | 23.03.1979 ГПИ Сантехпроект (47) |
| Заменяет собой: |
|
| Чем заменён: |






























