Скачать Типовой проект 903-1-153 Альбом XIX. Часть 1. Механизация топливоподачи и шлакоудаления. СантехникаДата актуализации: 01.01.2021
|
| Обозначение: | Типовой проект 903-1-153 |
| Обозначение англ: | 903-1-153 |
| Статус: | заменен |
| Название рус.: | Альбом XIX. Часть 1. Механизация топливоподачи и шлакоудаления. Сантехника |
| Дата добавления в базу: | 01.09.2013 |
| Дата актуализации: | 01.01.2021 |
| Дата введения: | 23.03.1979 |
| Дата окончания срока действия: | 01.01.1990 |
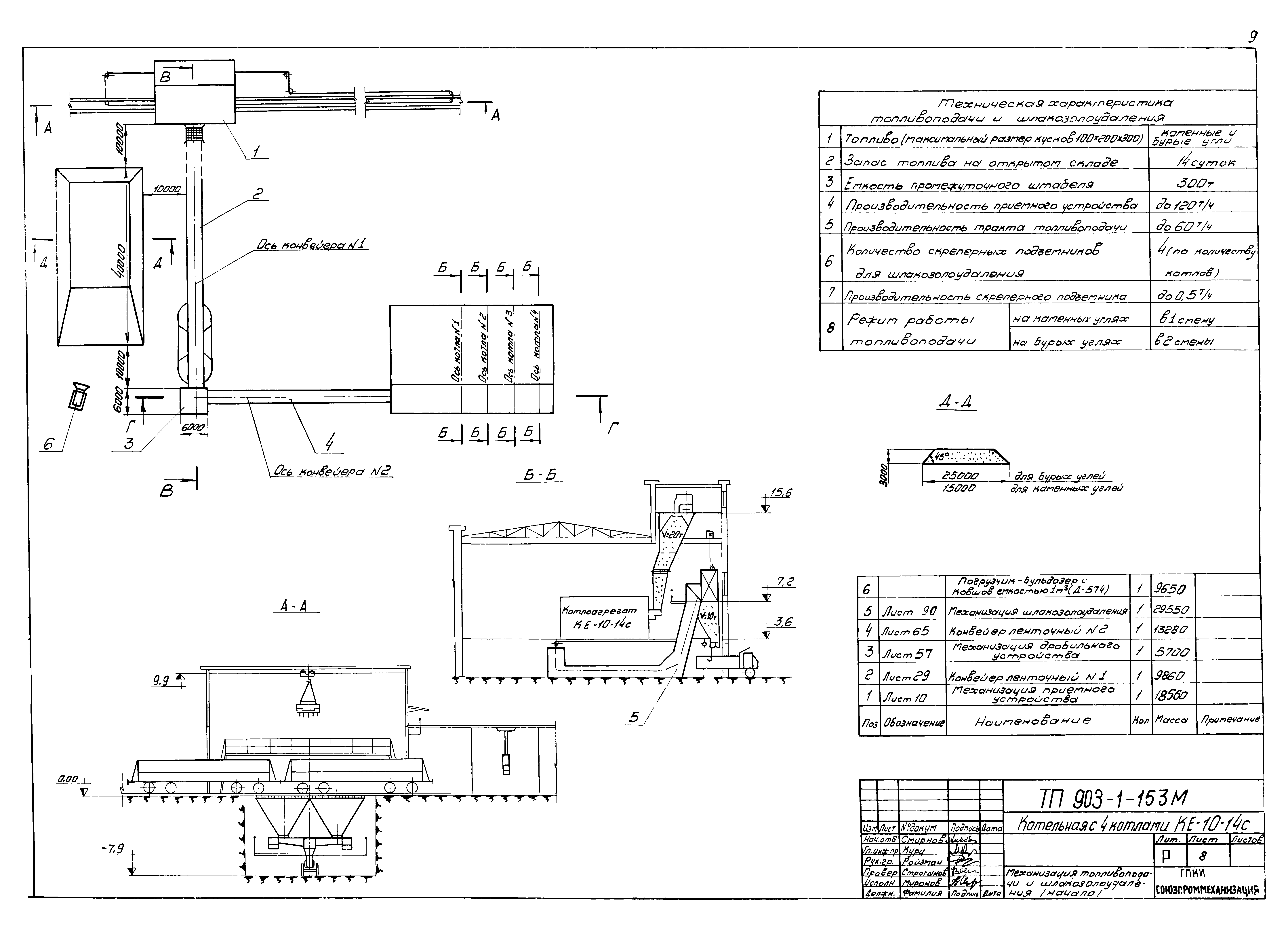
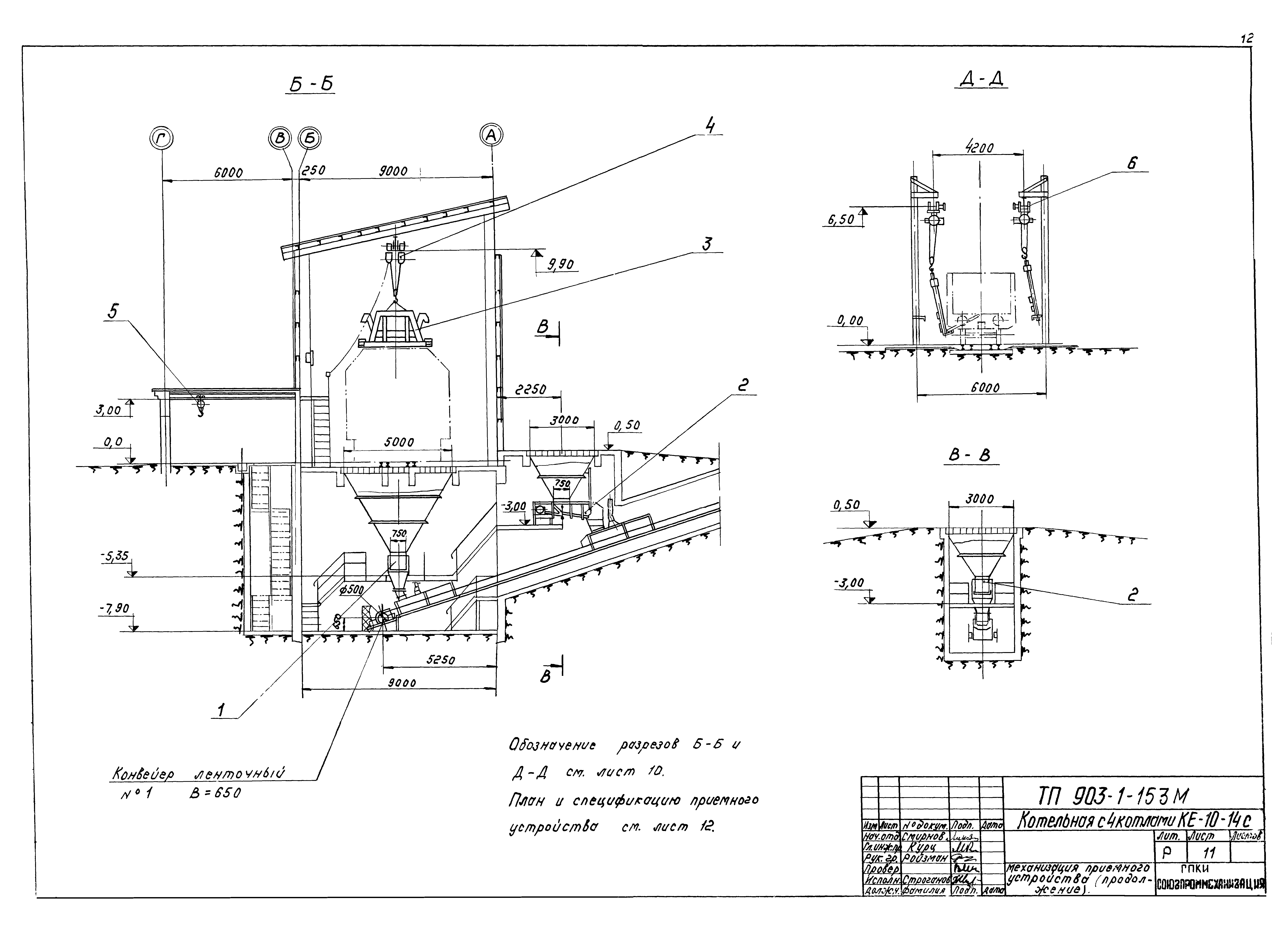
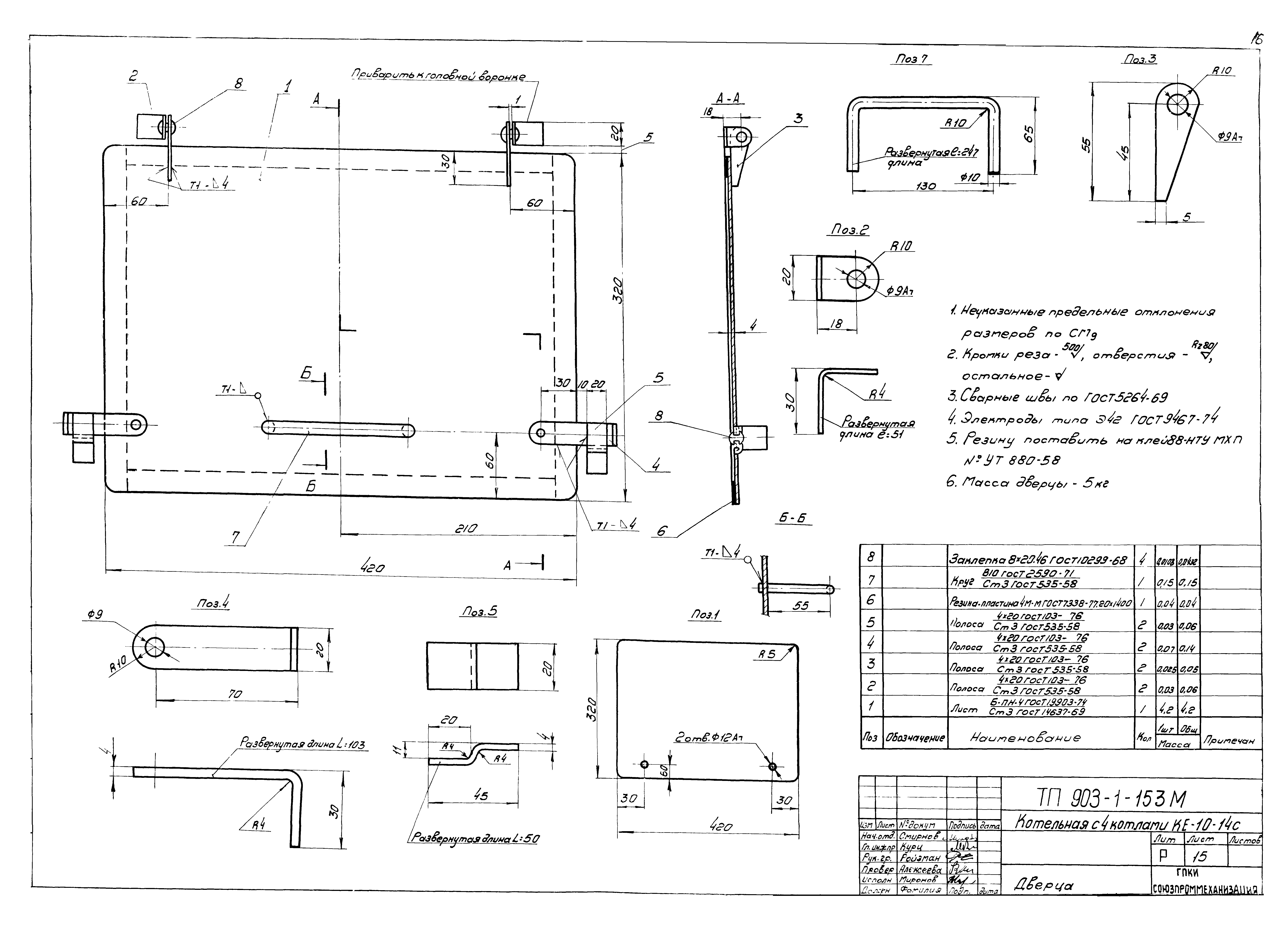
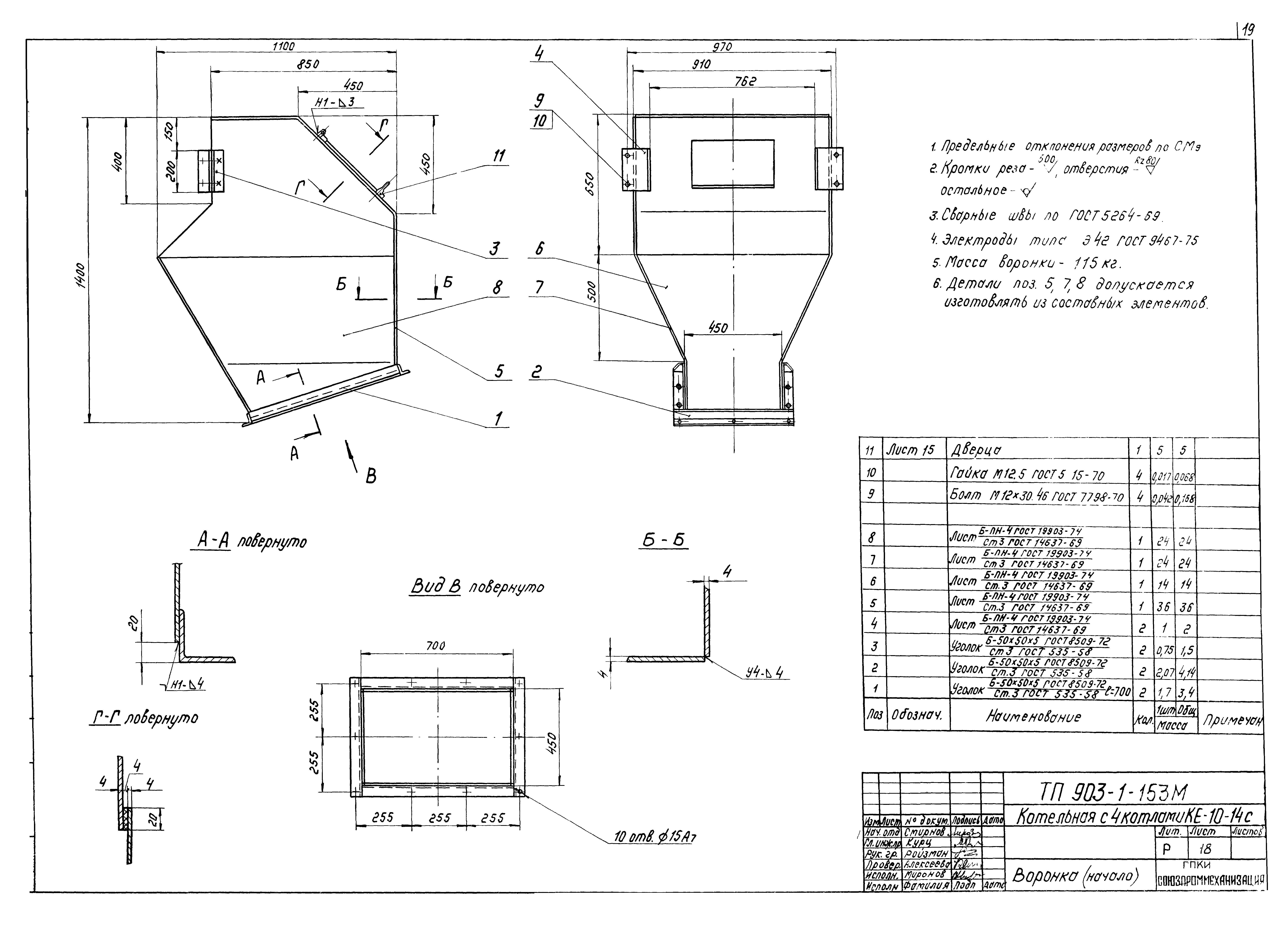
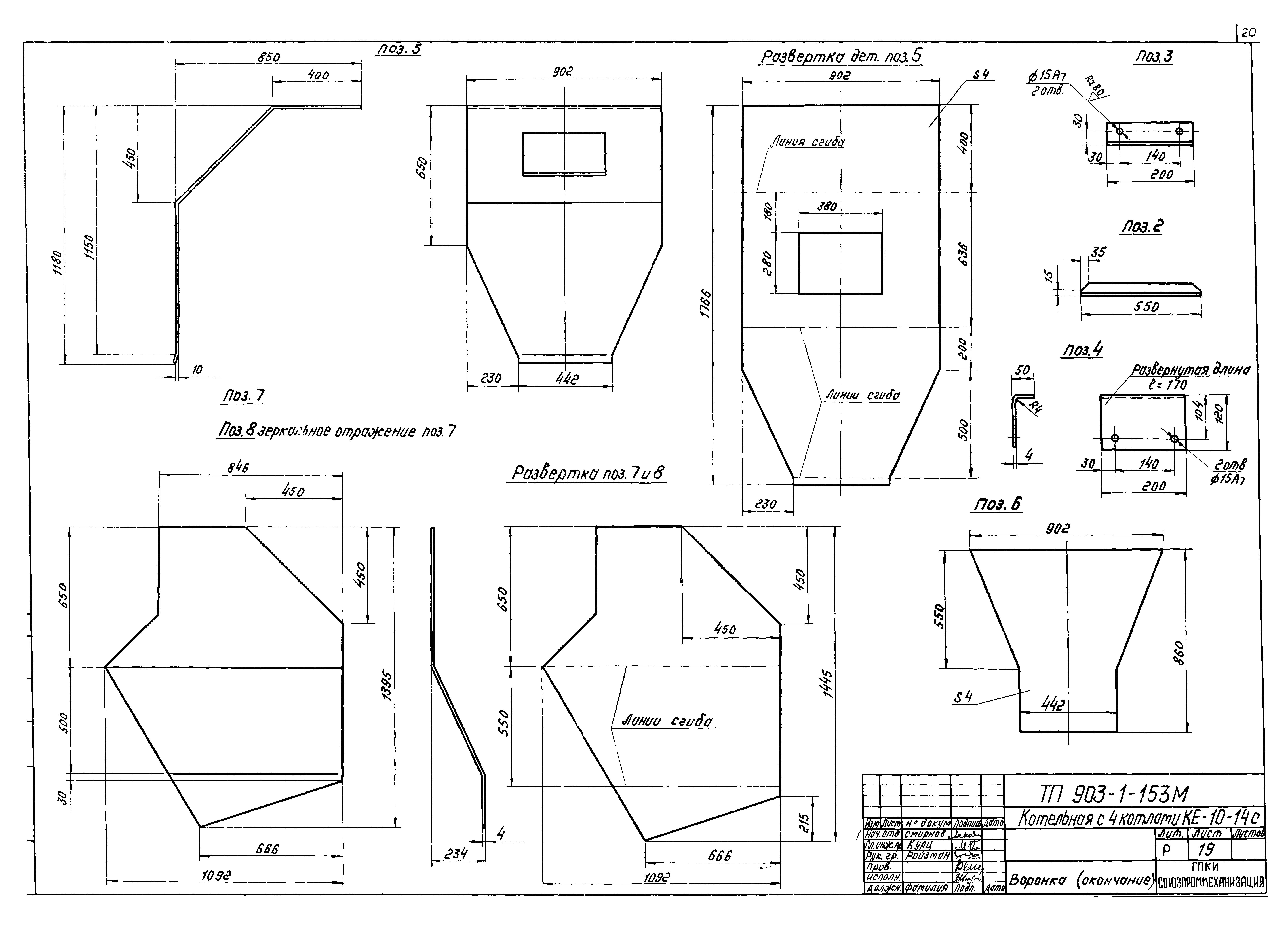
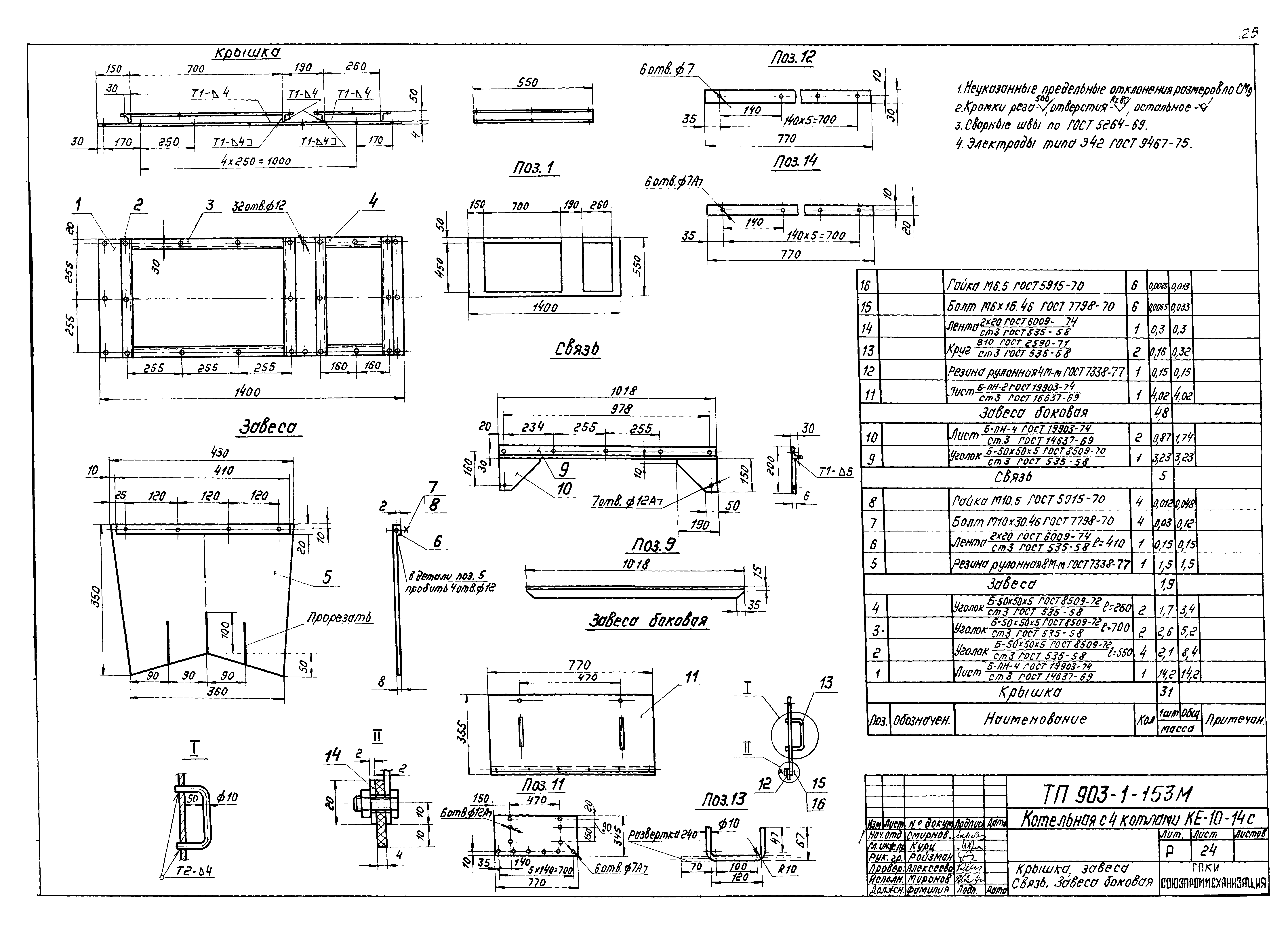
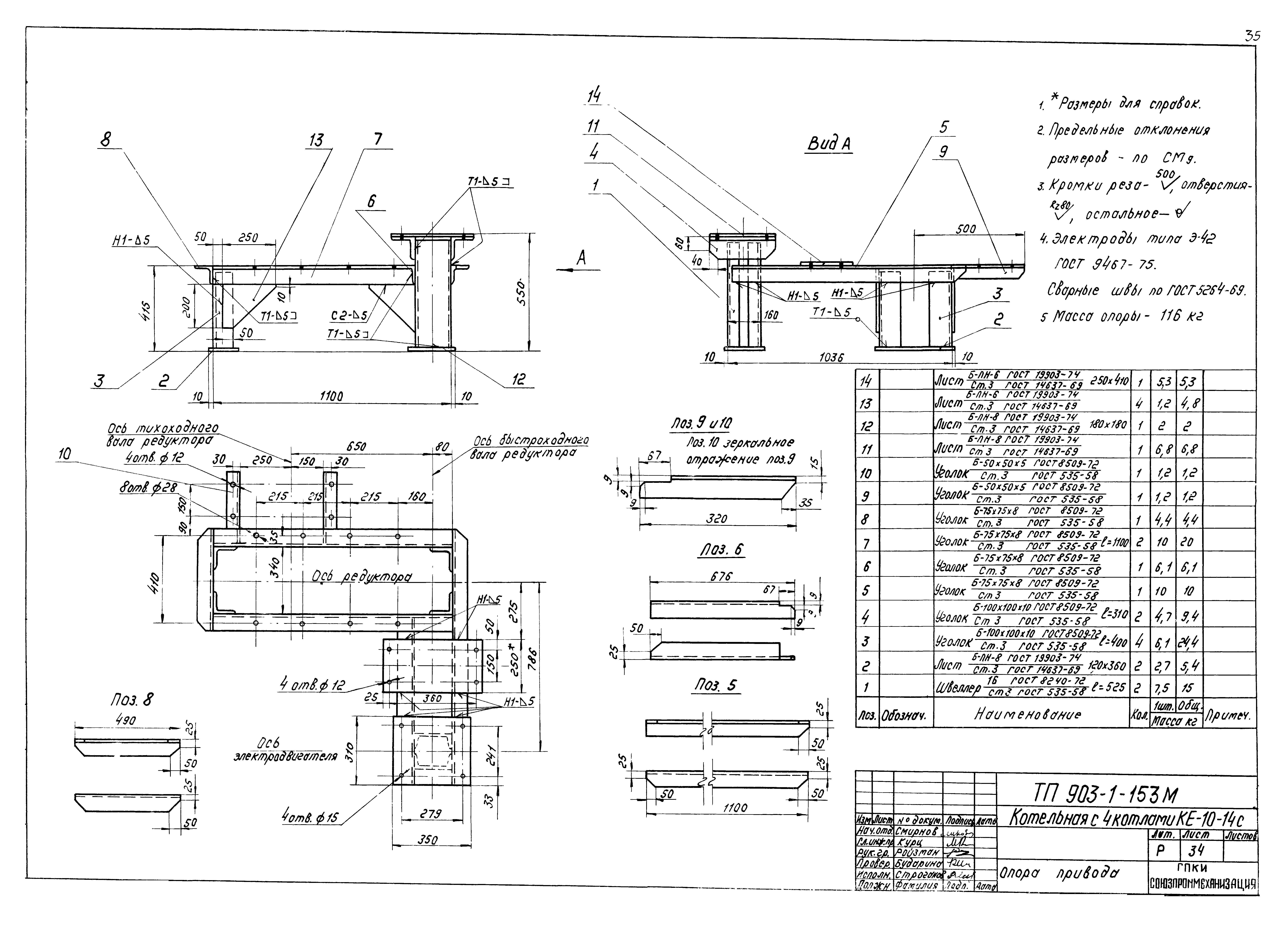
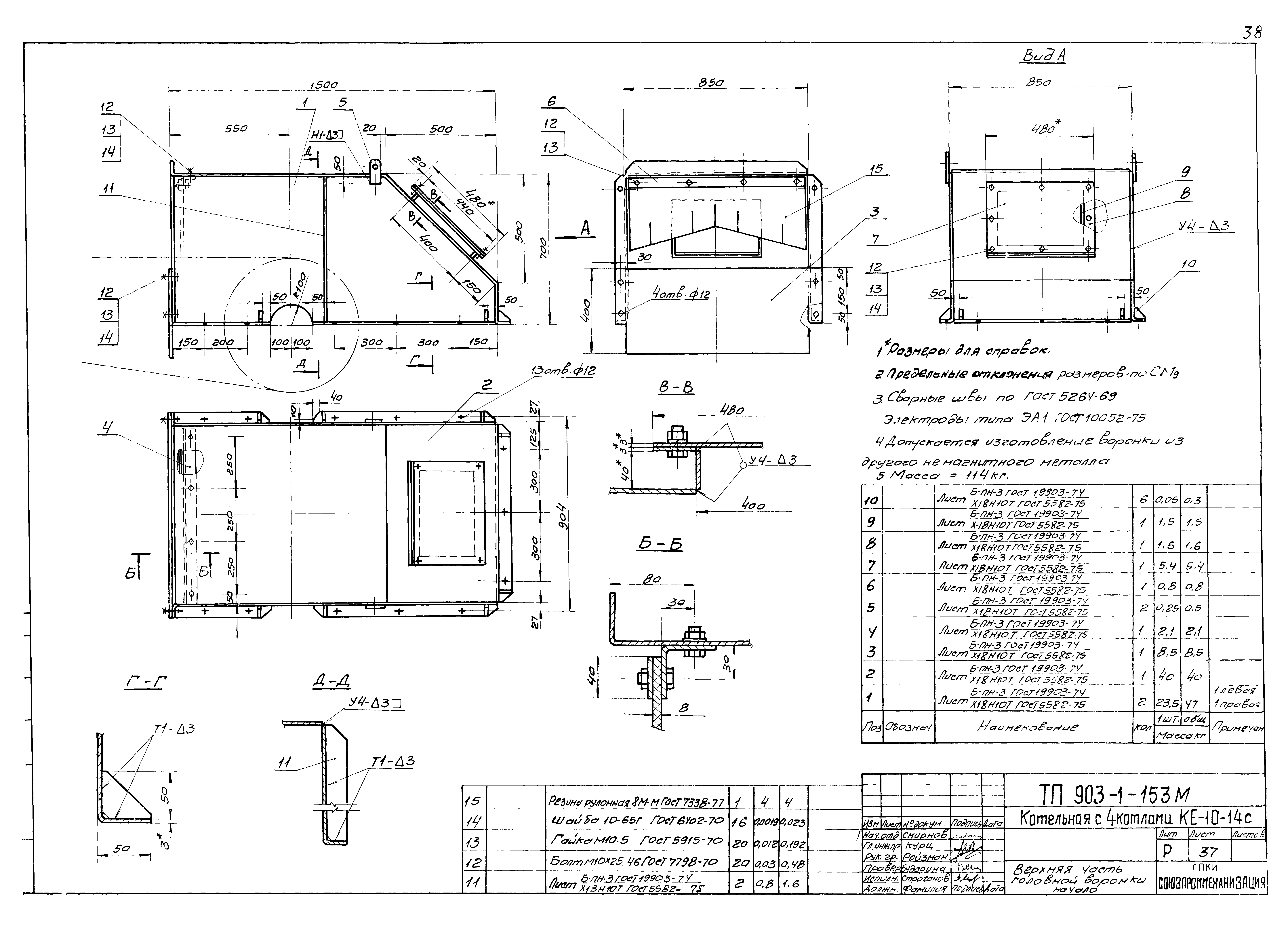
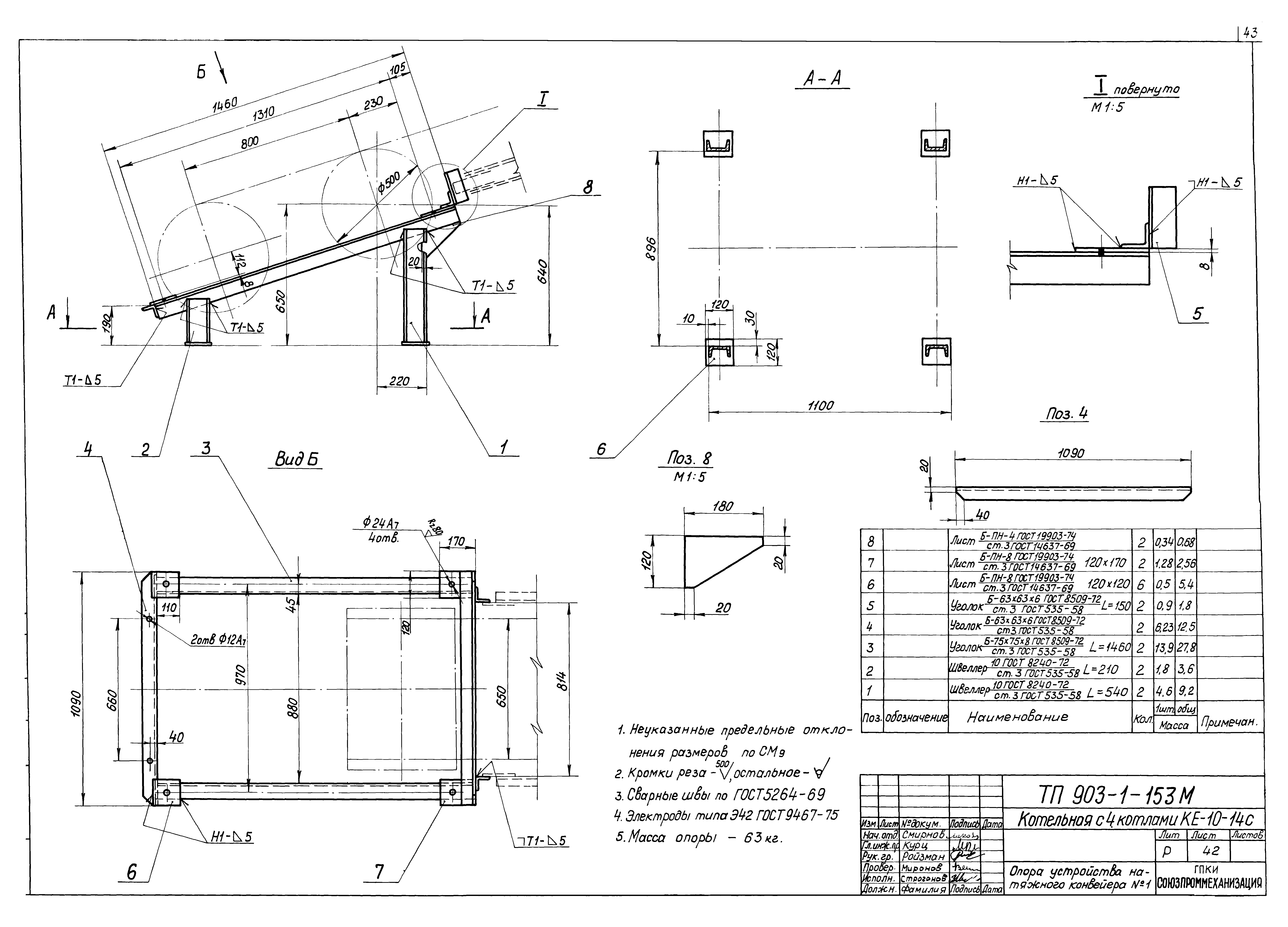
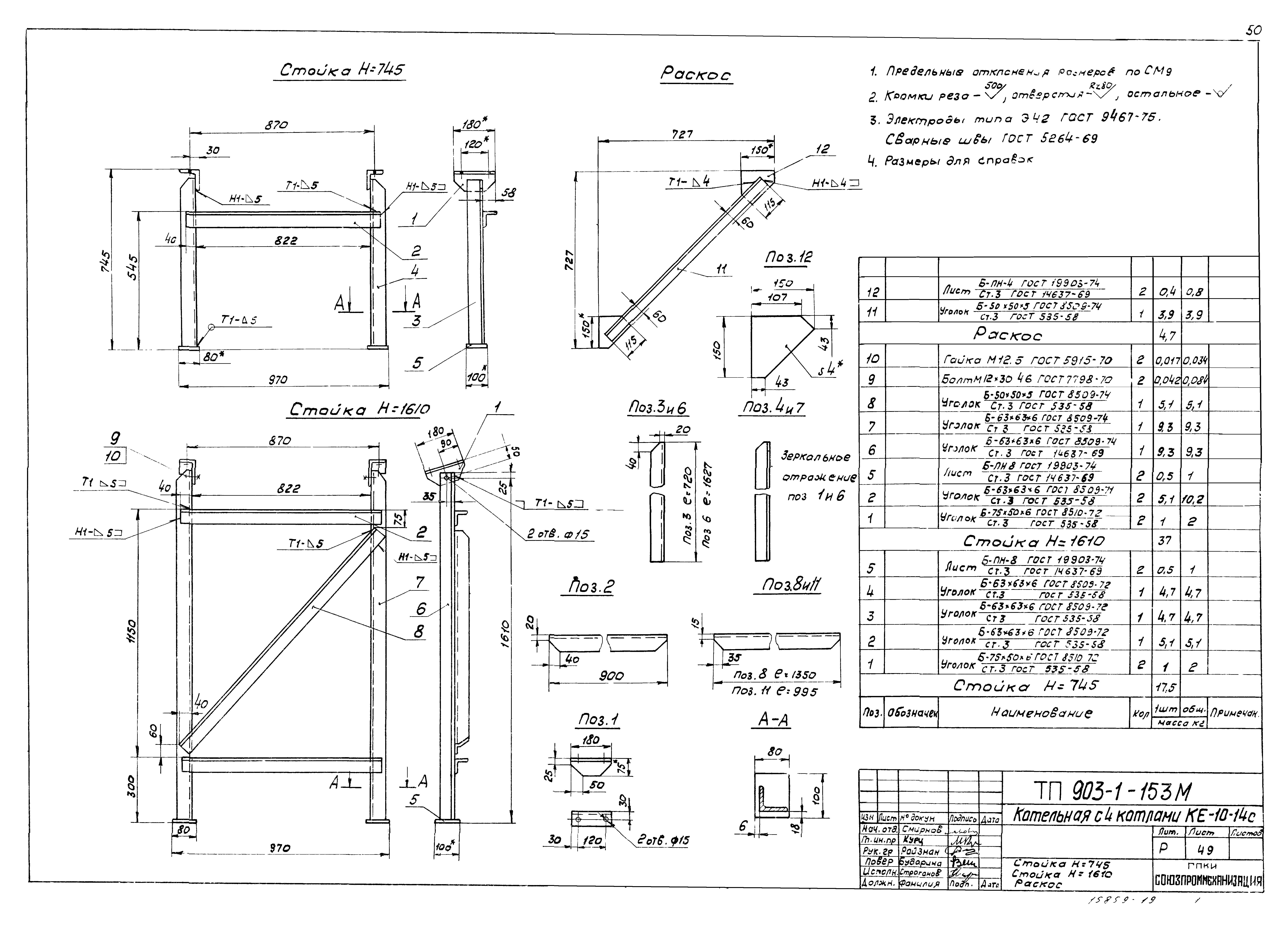
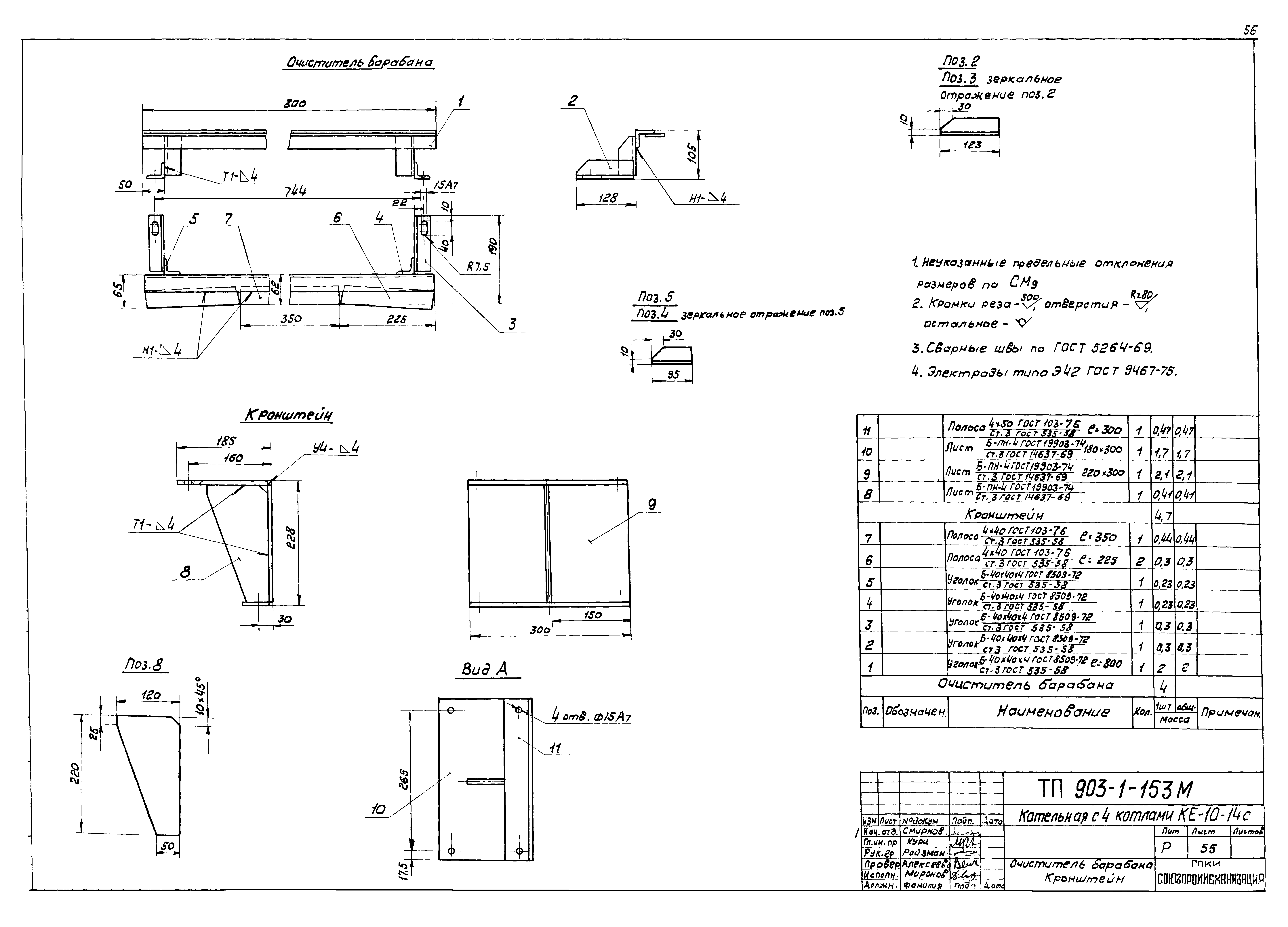
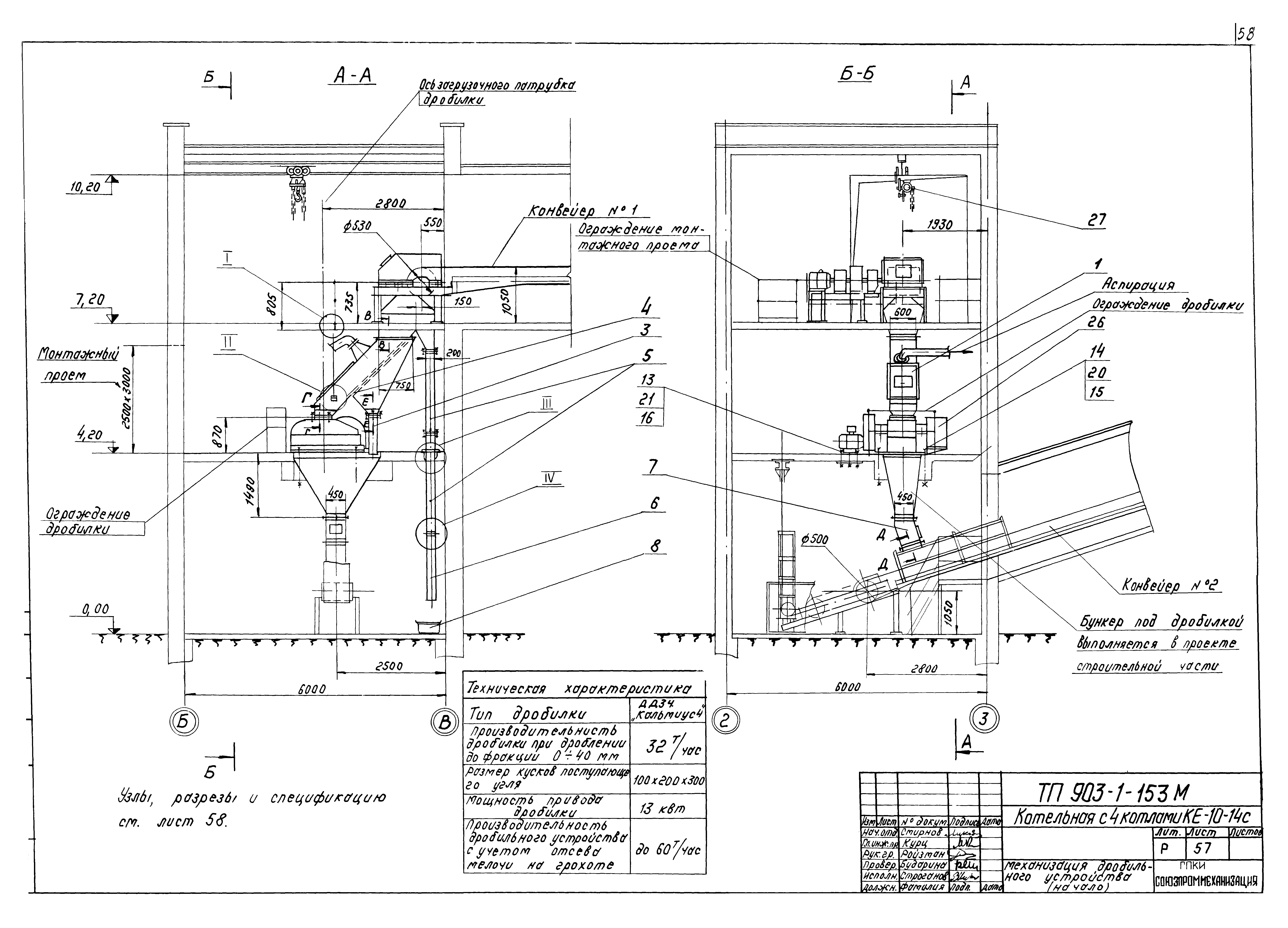
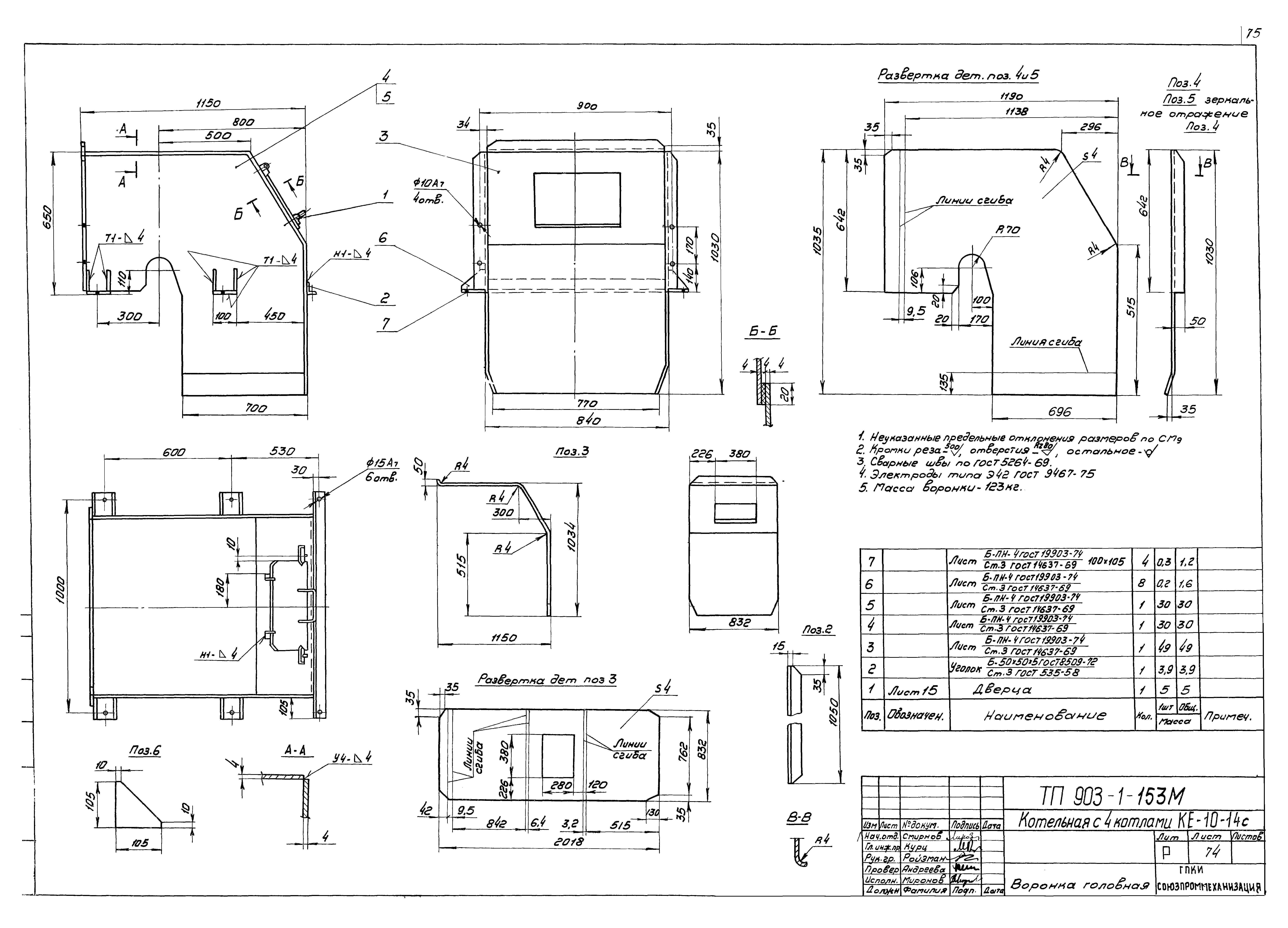
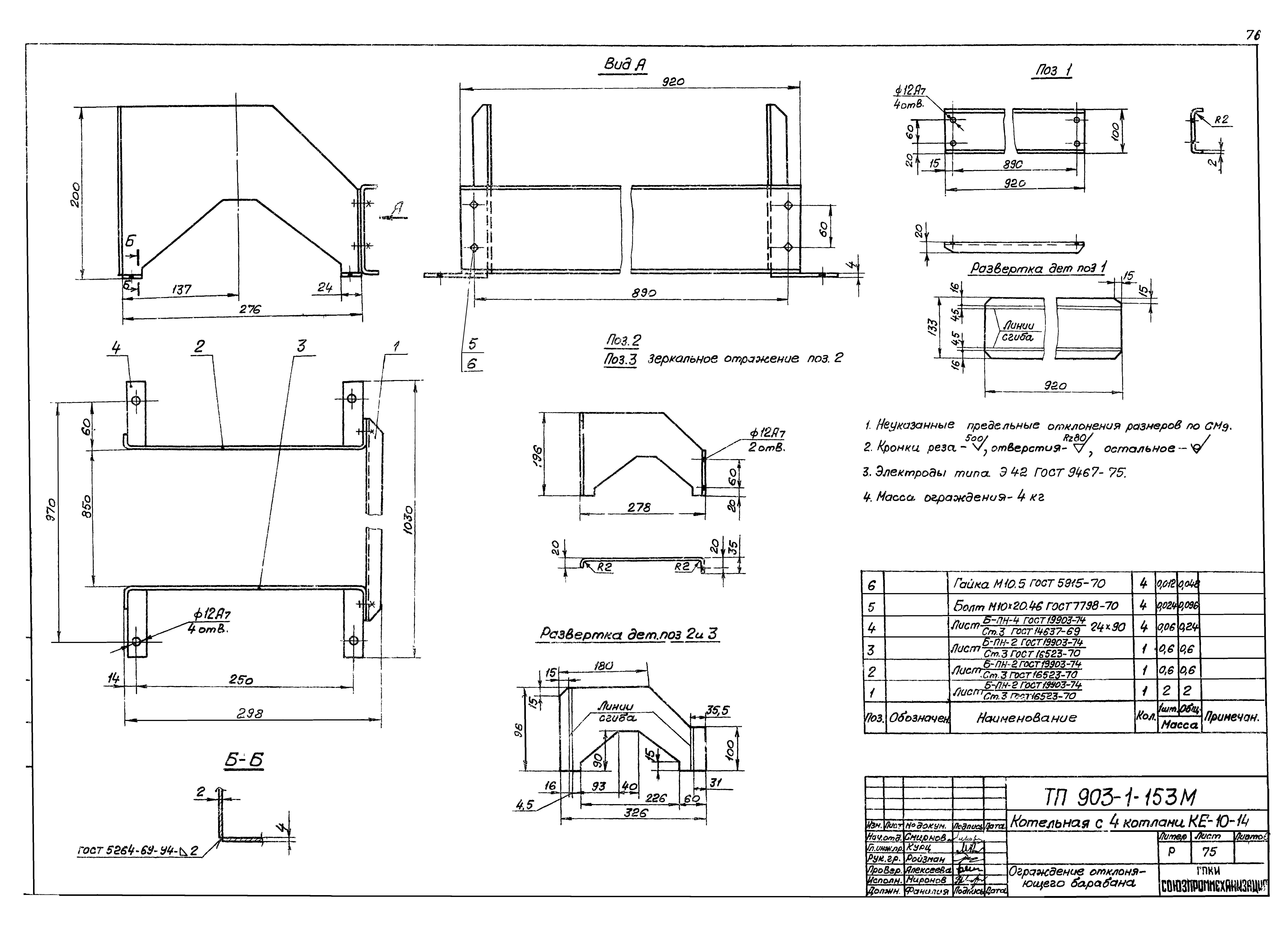
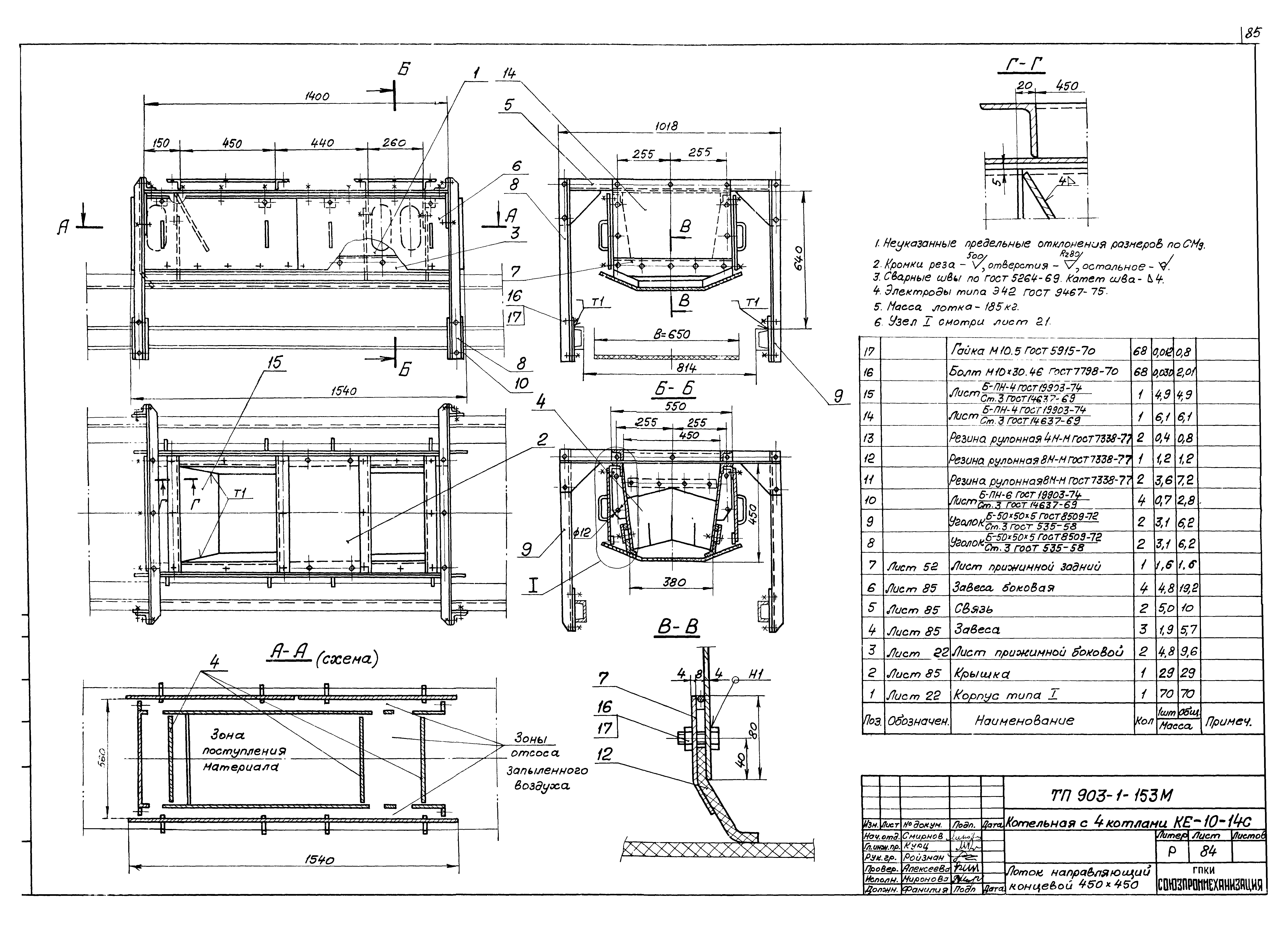
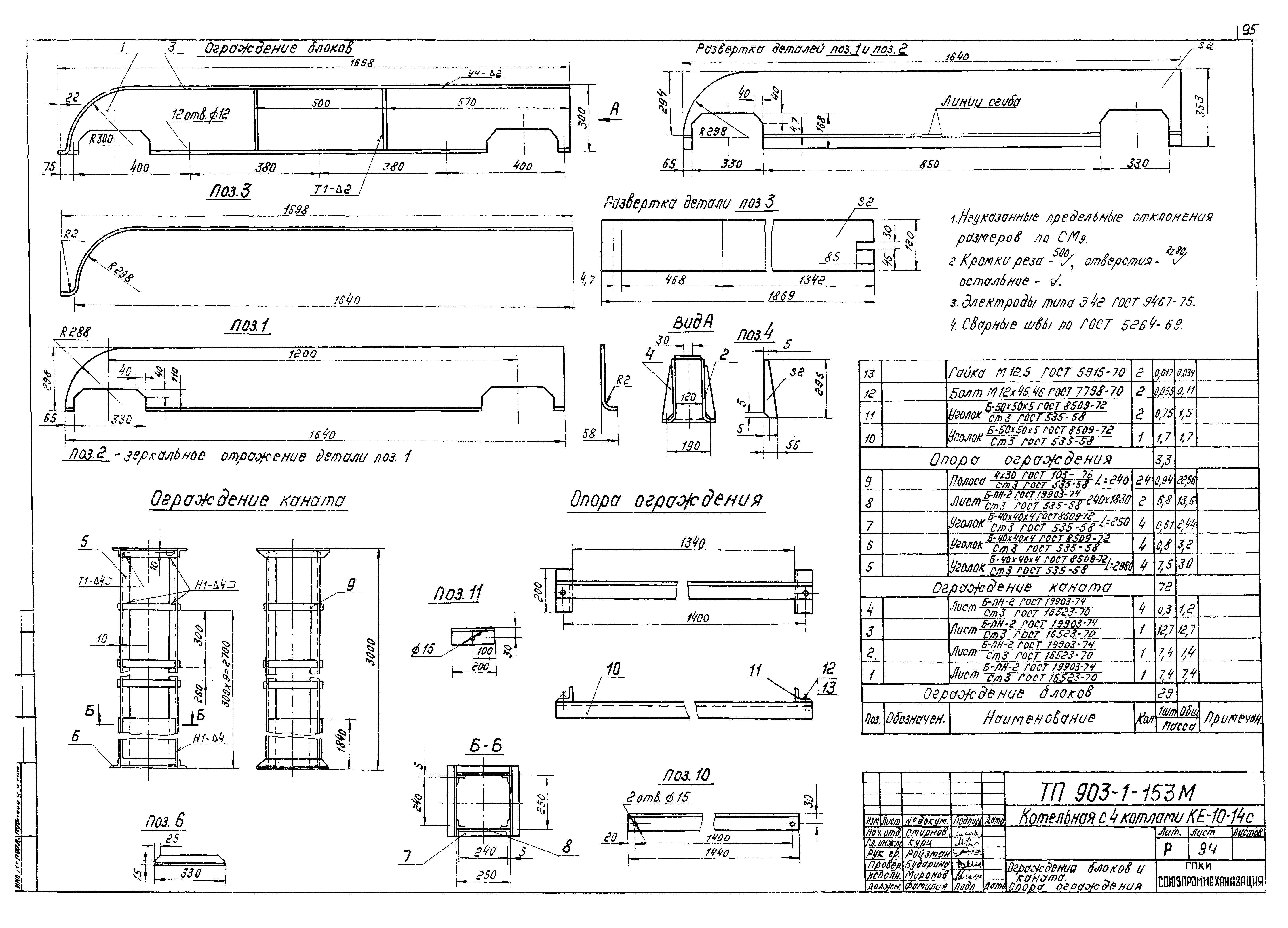
| Оглавление: | ТП 903-1-153М-1-3 Общие данные ТП 903-1-153М-4-6 Пояснительная записка ТП 903-1-153М-7 Ведомость оборудования ТП 903-1-153М-8-9 Механизация топливоподачи и шлакозолоудаления ТП 903-1-153М-10-12 Механизация приемного устройства ТП 903-1-153М-13 Установка качающихся питателей КЛ-8-1-I ТП 903-1-153М-14 Воронка ТП 903-1-153М-15 Дверца ТП 903-1-153М-16 Патрубок ТП 903-1-153М-17 Установка качающегося питателя КЛ-8-0-I ТП 903-1-153М-18-19 Воронка ТП 903-1-153М-20-21 Лоток направляющий концевой (проходной) ТП 903-1-153М-22 Корпус типа 1. Корпус типа 2. Лист прижимной боковой ТП 903-1-153М-23 Лоток направляющий промежуточный ТП 903-1-153М-24 Крышка. Завеса. Связь. Завеса боковая ТП 903-1-153М-25 Закрылки В=650 ТП 903-1-153М-26 Корпус закрылков. Прижим боковой прямой. Прижим боковой наклонный ТП 903-1-153М-27-28 Установка маневрового устройства МУ-12М2 ТП 903-1-153М-29-31 Конвейер ленточный № 1 ТП 903-1-153М-32 Устройство приводное конвейера № 1 ТП 903-1-153М-33 Привод N=17 кВт ТП 903-1-153М-34 Опора привода ТП 903-1-153М-35 Ограждения муфт МУВП и КДН ТП 903-1-153М-36 Опора электромагнитного шкива ТП 903-1-153М-37-38 Верхняя часть головной воронки ТП 903-1-153М-39-40 Нижняя часть головной воронки ТП 903-1-153М-41 Металлоконструкция конвейера № 1 ТП 903-1-153М-42 Опора устройства натяжного конвейера № 1 ТП 903-1-153М-43 Секция загрузочная L=6000 ТП 903-1-153М-44 Секция загрузочная L=6000 специальная ТП 903-1-153М-45 Секция L=6000 ТП 903-1-153М-46 Секция гнутая α=18º ТП 903-1-153М-47 Секция L=3000. Кронштейн ТП 903-1-153М-48 Секции L=3000 типа 1,2,3 ТП 903-1-153М-49 Стойка Н=745. Стойка Н=1610. Раскос ТП 903-1-153М-50 Стойка Н=545. Патрубок переходной ТП 903-1-153М-51 Установка сбрасывателя двухстороннего ТП 903-1-153М-52 Установка лотков. Лист прижимной задний. Лист прижимной боковой ТП 903-1-153М-53-54 Установка аварийных выключателей и ограждений конвейера № 1 ТП 903-1-153М-55 Очиститель барабана. Кронштейн ТП 903-1-153М-56 Ограждение барабана натяжного ТП 903-1-153М-57-58 Механизация дробильного устройства ТП 903-1-153М-59-60 Короб колосникового грохота ТП 903-1-153М-61 Воронка ТП 903-1-153М-62 Грохот колосниковый. Ящик для металлических отходов ТП 903-1-153М-63 Воронка типа 1 и 2 ТП 903-1-153М-64 Воронка ТП 903-1-153М-65-68 Конвейер ленточный № 2 ТП 903-1-153М-69 Устройство приводное конвейера № 2 ТП 903-1-153М-70 Привод N=10 кВт ТП 903-1-153М-71 Рама ТП 903-1-153М-72 Ограждение муфт МУВП и КДН ТП 903-1-153М-73 Опора приводного барабана ТП 903-1-153М-74 Воронка головная ТП 903-1-153М-75 Ограждение отклоняющегося барабана ТП 903-1-153М-76 Металлоконструкция конвейера ленточного № 2 ТП 903-1-153М-77 Опора тележки устройства натяжного ТП 903-1-153М-78 Секция средней части L=6000,t=1000 ТП 903-1-153М-79-81 Установка аварийных выключателей и ограждений ТП 903-1-153М-82 Панель ограждения ТП 903-1-153М-83 Установка автоматических весов ТП 903-1-153М-84 Лоток направляющий концевой 450х450 ТП 903-1-153М-85 Крышка. Завеса. Связь. Завеса боковая ТП 903-1-153М-86 Ограждение натяжного барабана конвейера № 2 ТП 903-1-153М-87 Ограждение катков натяжки ТП 903-1-153М-88 Ограждение груза. Ограждение каната ТП 903-1-153М-89 Установка сбрасывателя одностороннего ТП 903-1-153М-90-93 Механизация шлакозолоудаления ТП 903-1-153М-94 Ограждения блоков и каната. Опора ограждения ТП 903-1-153М-95 Рамы типа 1,2 и 3. Скоба ТП 903-1-153М-96 Рама типа 4. Ограждение рамы типа 4 |
| Разработан: | ГПИ Сантехпроект Госстроя СССР Минтяжмаш СССР Союзпроммеханизация |
| Утверждён: | 23.03.1979 ГПИ Сантехпроект (47) |
| Заменяет собой: |
|
| Чем заменён: |


































































































