Скачать Типовой проект 903-1-153 Альбом XIX. Часть 2. Механизация топливоподачи и шлакоудаления. СантехникаДата актуализации: 01.01.2021
|
| Обозначение: | Типовой проект 903-1-153 |
| Обозначение англ: | 903-1-153 |
| Статус: | заменен |
| Название рус.: | Альбом XIX. Часть 2. Механизация топливоподачи и шлакоудаления. Сантехника |
| Дата добавления в базу: | 01.09.2013 |
| Дата актуализации: | 01.01.2021 |
| Дата введения: | 23.03.1979 |
| Дата окончания срока действия: | 01.01.1990 |
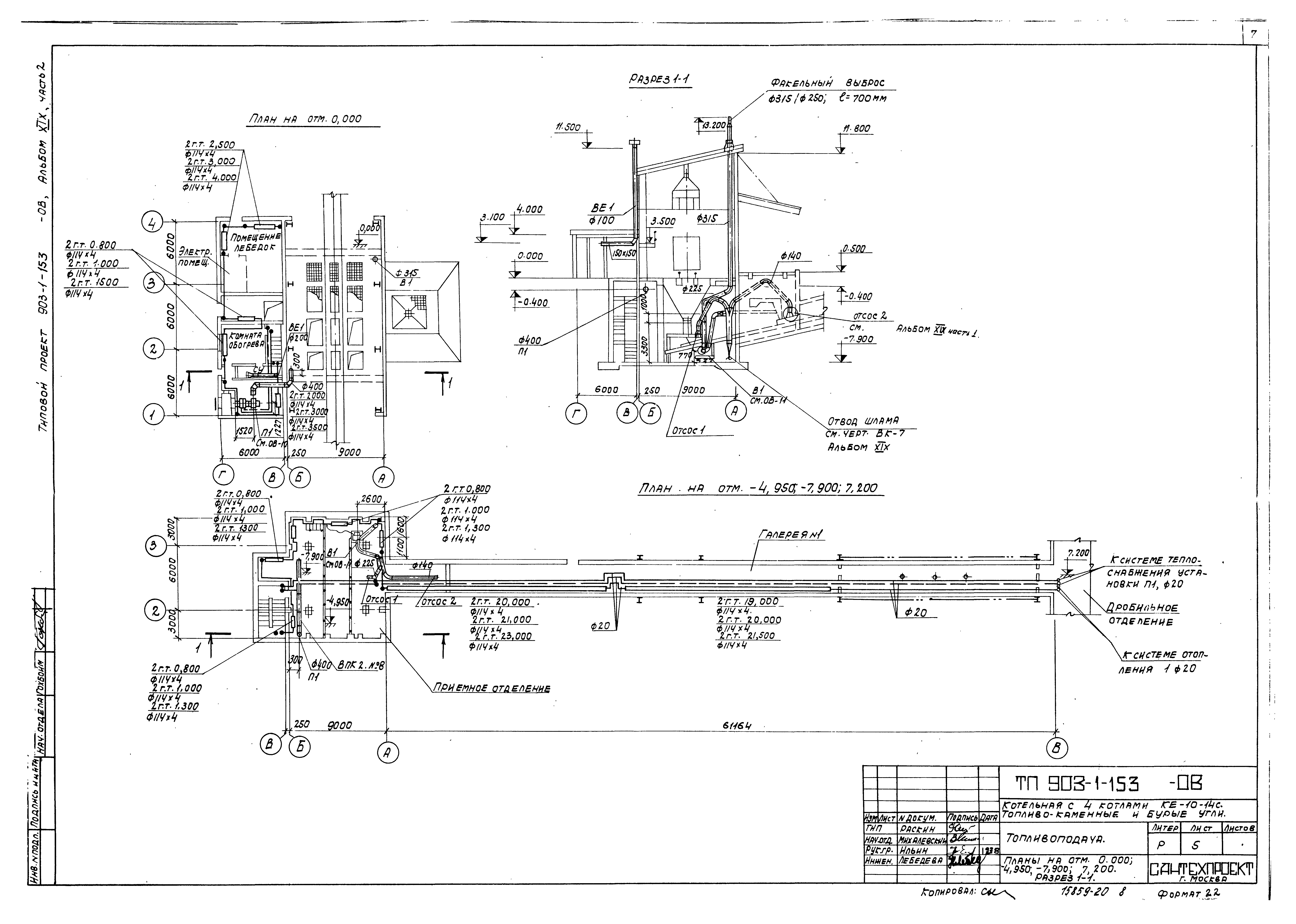
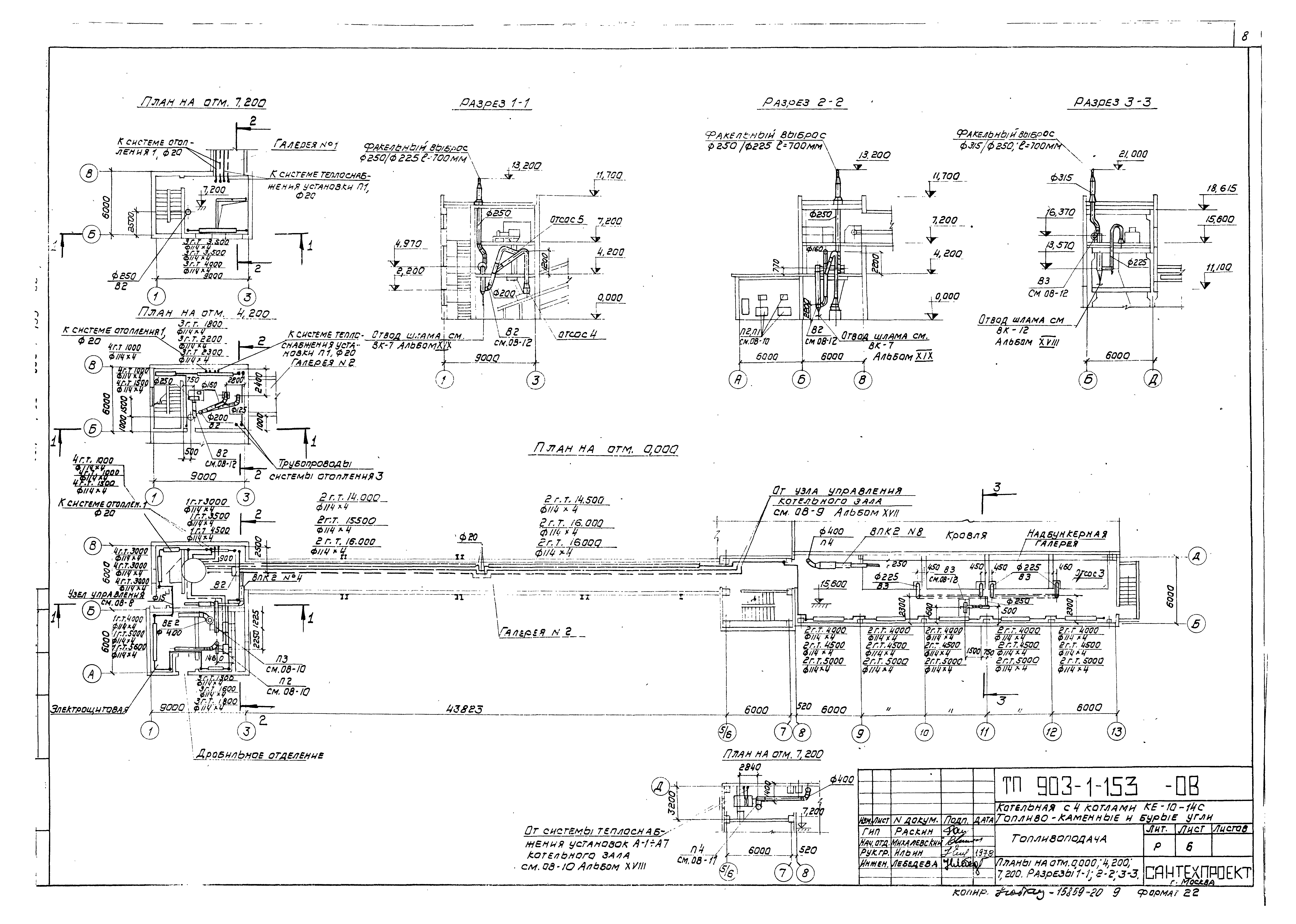
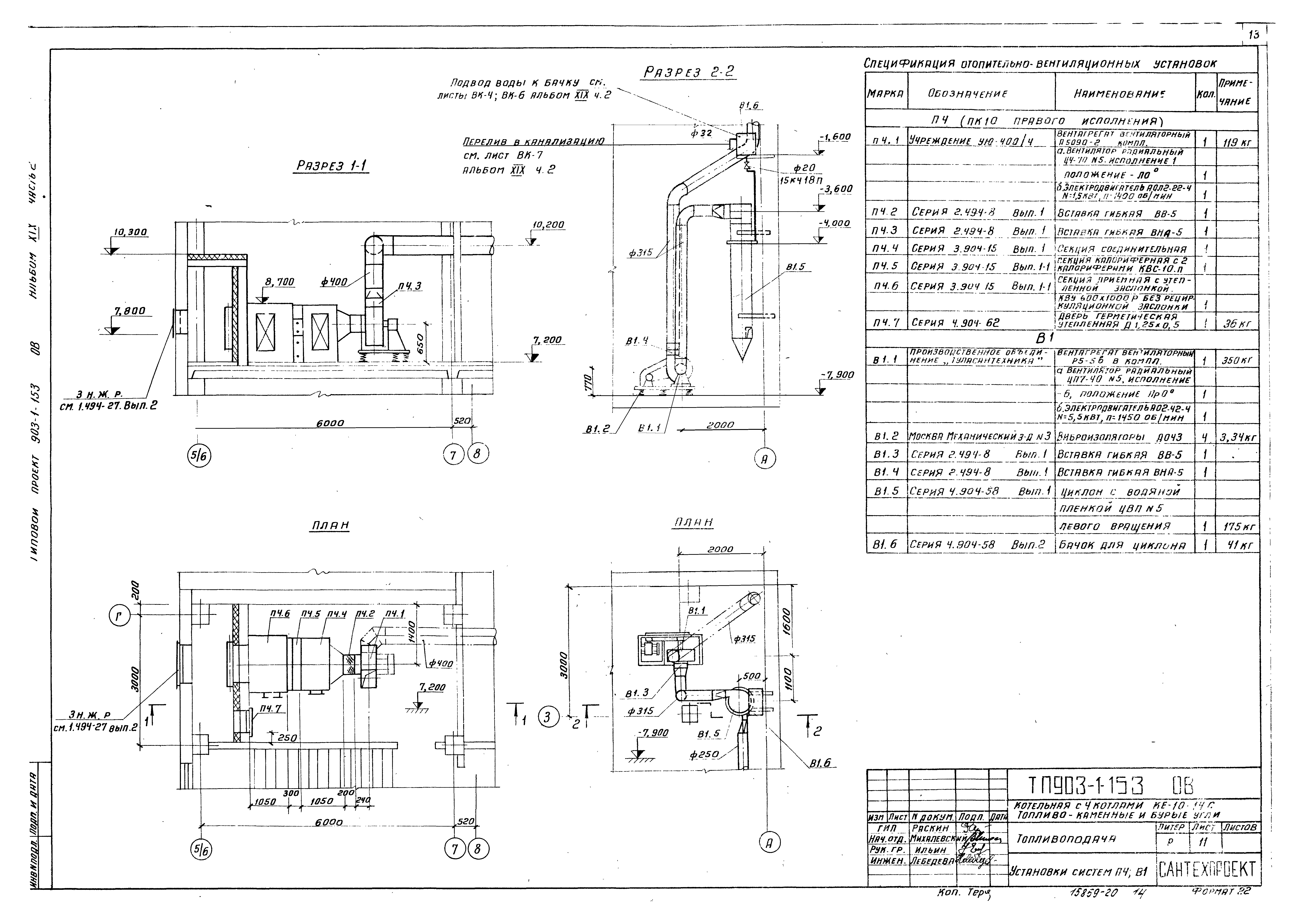
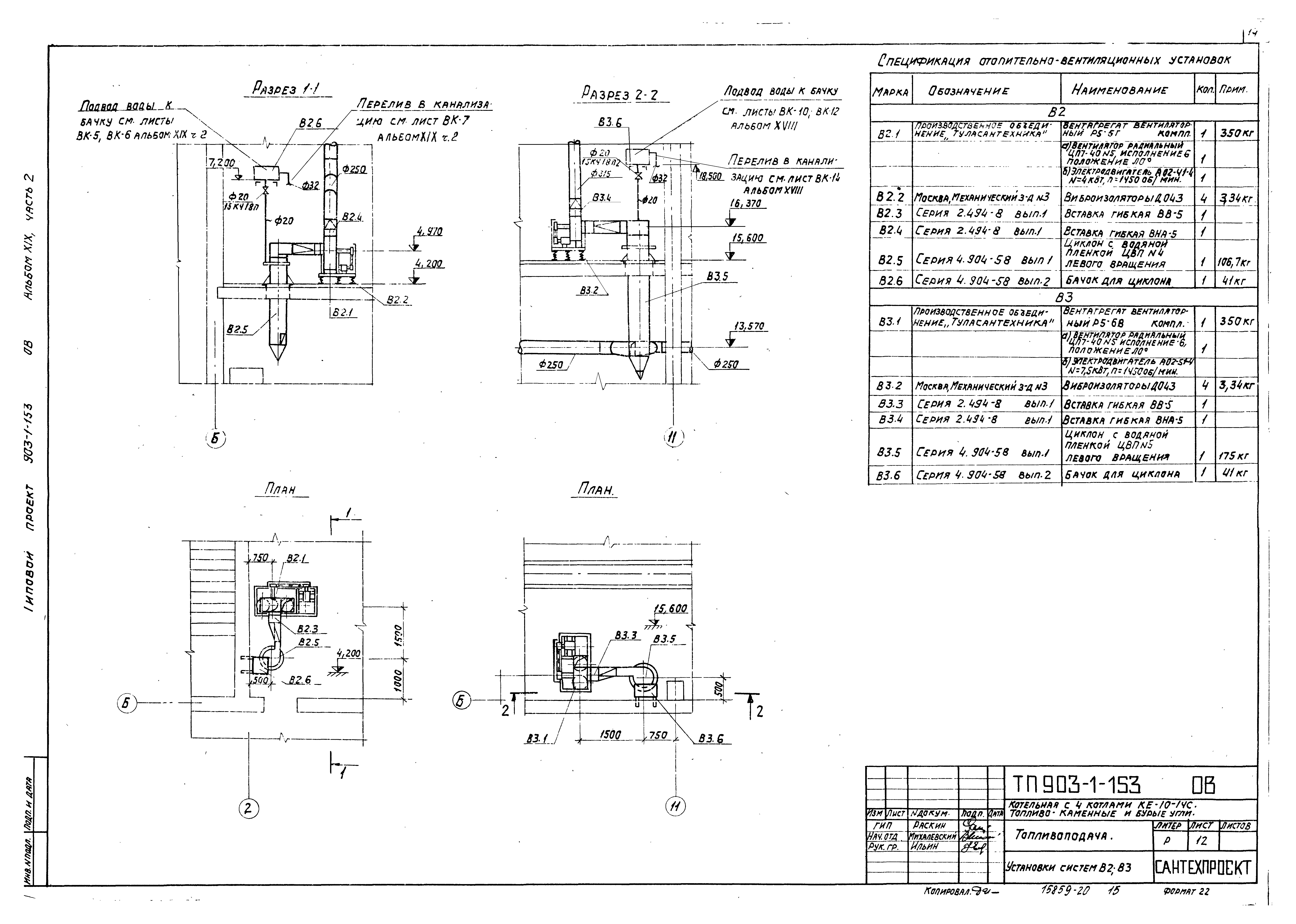
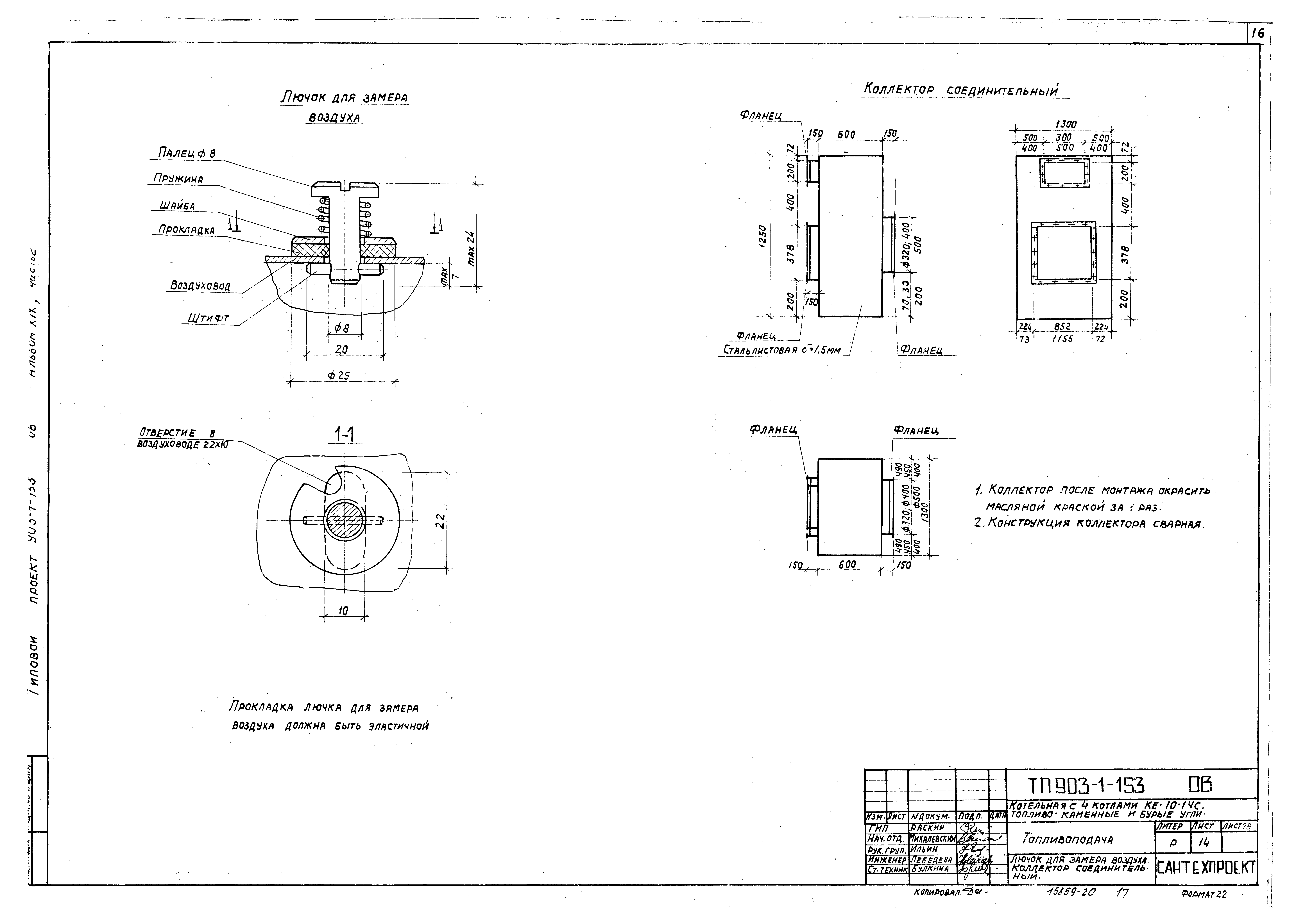
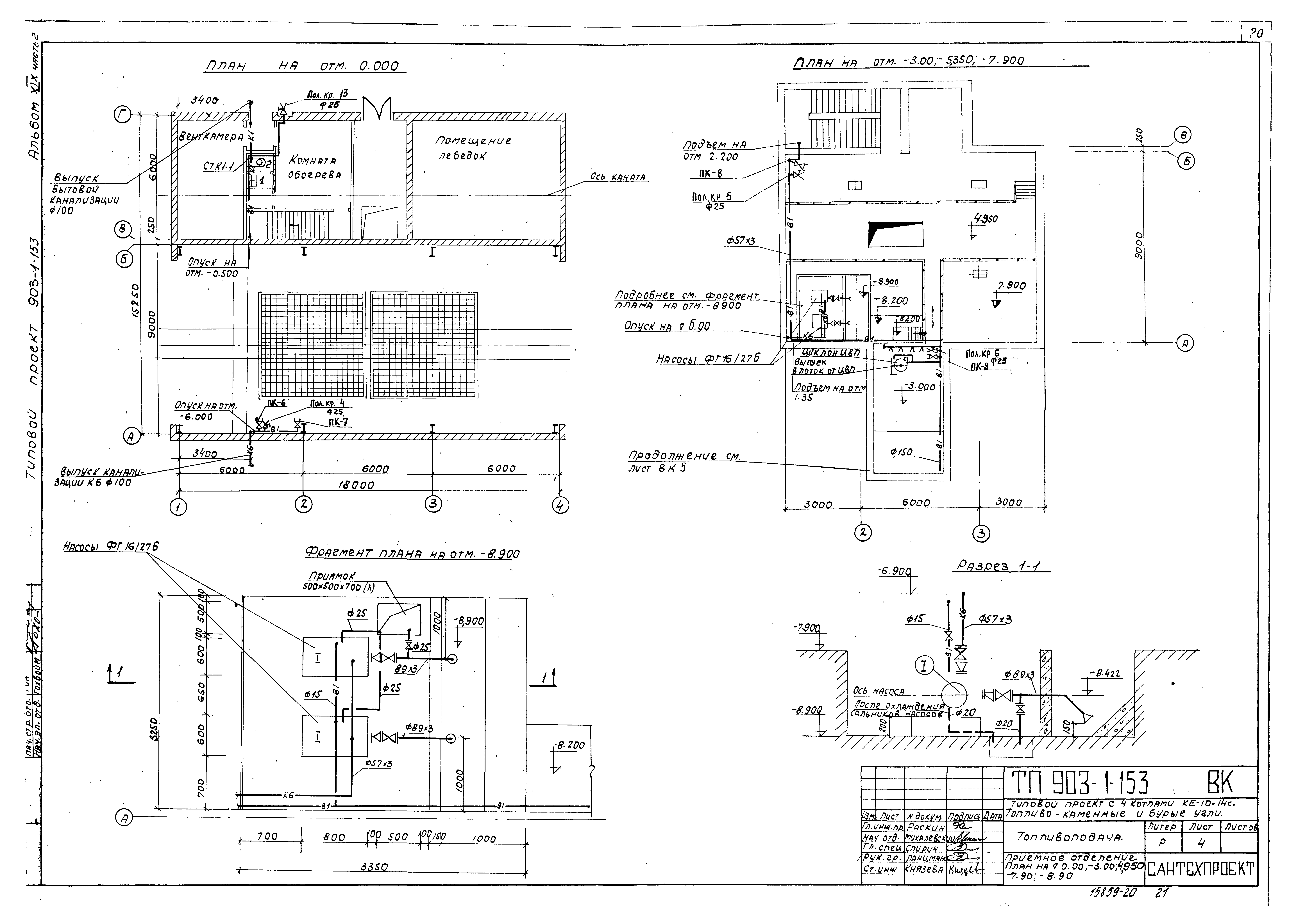
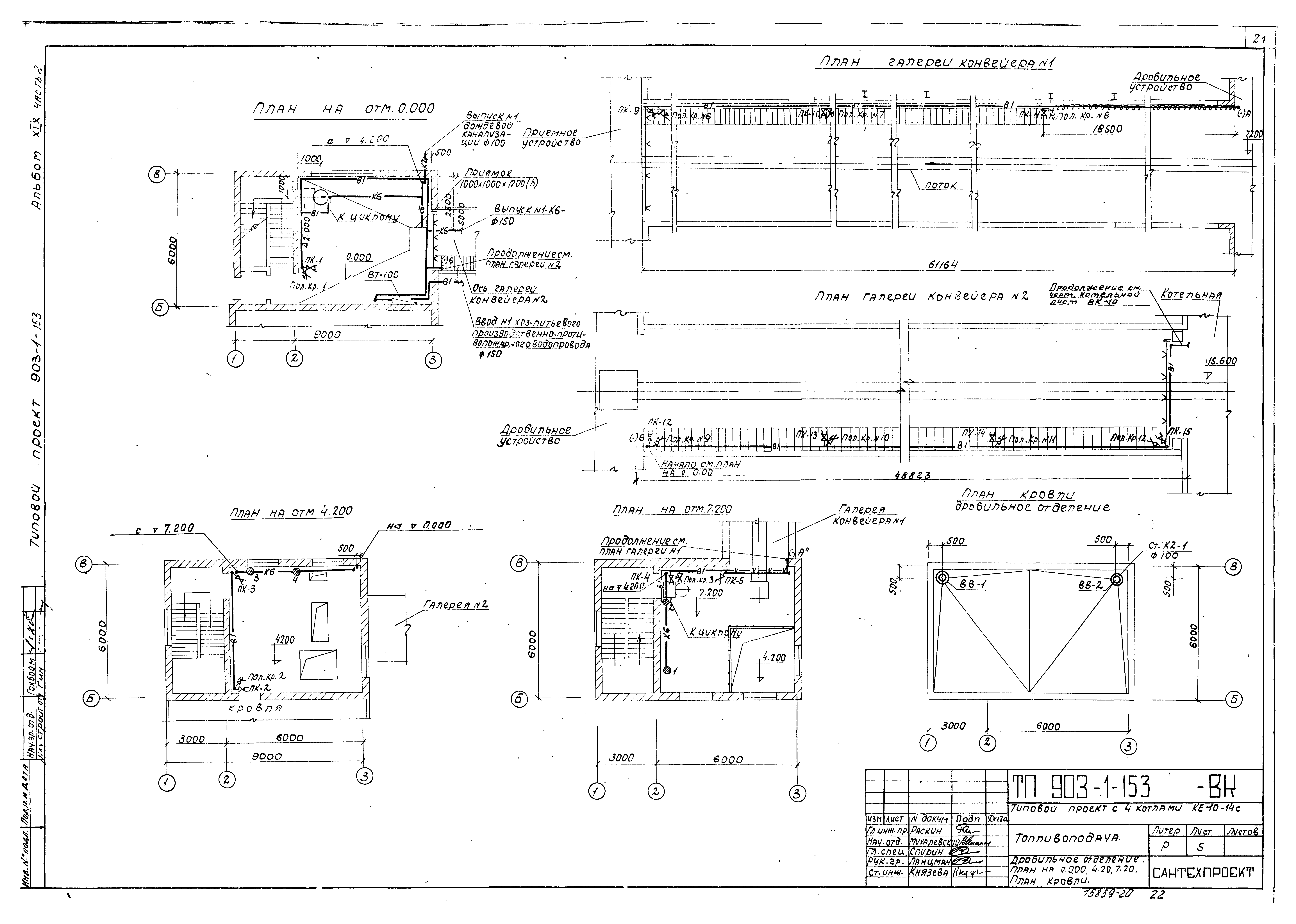
| Оглавление: | Содержание Чертежи основного комплекта марки ОВ Общие данные Планы на отм. 0.000; - 4.950; - 7.900; 7.200. разрез 1-1 Планы на отм. 0.000; 4.200; 7.200. Разрезы 1-1, 2-2, 3-3 Схемы систем П1 - П4; В1 - В3; ВЕ1; ВЕ2 Системы отопления 1 и теплоснабжения установки П1. Узел управления. Узлы 1 - 3 Системы отопления 2, 3 и теплоснабжения установок П2 - П4. Узлы 4 - 7 Установки систем П1 - П3. Спецификация отопительно-вентиляционных установок П1 - П3 Установки систем П4, В1. Спецификация отопительно-вентиляционных установок П4, В1 Установки систем В2, В3. Спецификация отопительно-вентиляционных установок В2, В3 Воздухосборник горизонтальный. Лючок для чистки воздуховодов Лючок для замера воздуха. Коллектор соединительный Чертежи основного комплекта марки ВК Общие данные Генплан с сетями водопровода и канализации Приемное отделение. План на отм. 0.000; - 3.000; - 5.350; - 7.900; - 8.900 Дробильное отделение. План на отм. 0.000; 4.200; 7.200. План кровли Схема В1 Схемы К1, К2, К6 |
| Разработан: | ГПИ Сантехпроект Госстроя СССР Минтяжмаш СССР Союзпроммеханизация |
| Утверждён: | 23.03.1979 ГПИ Сантехпроект (47) |
| Заменяет собой: |
|
| Чем заменён: |























