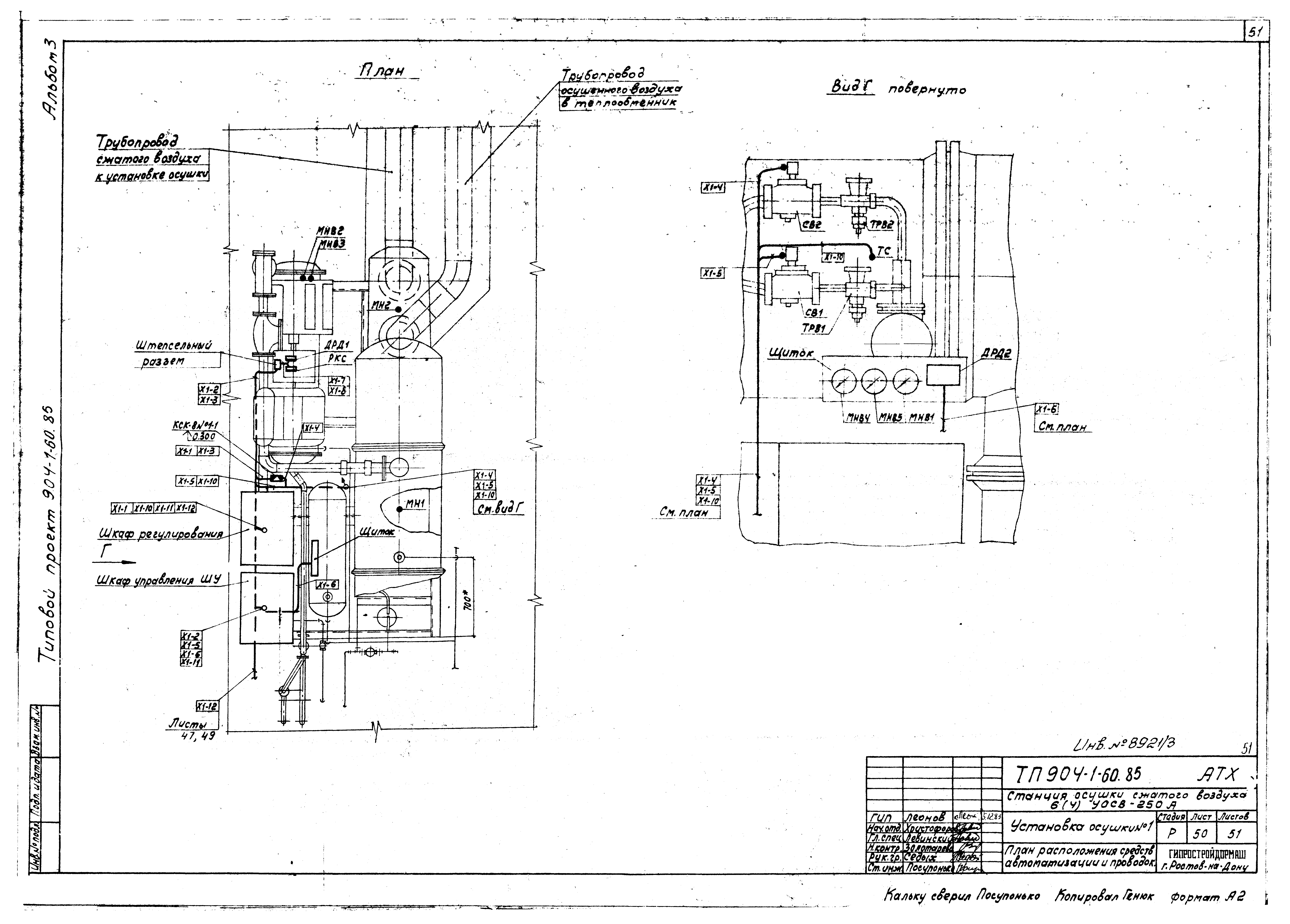
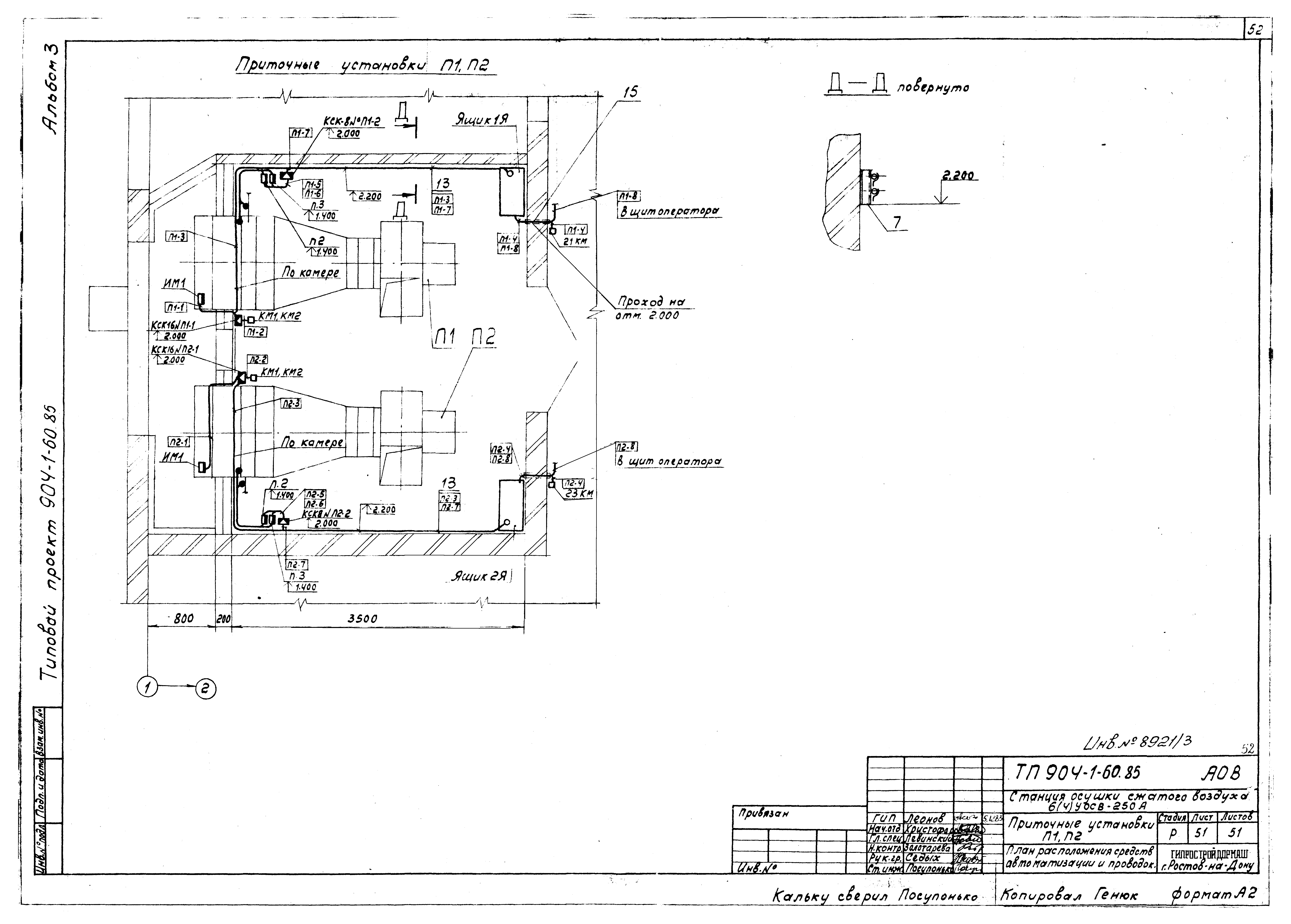
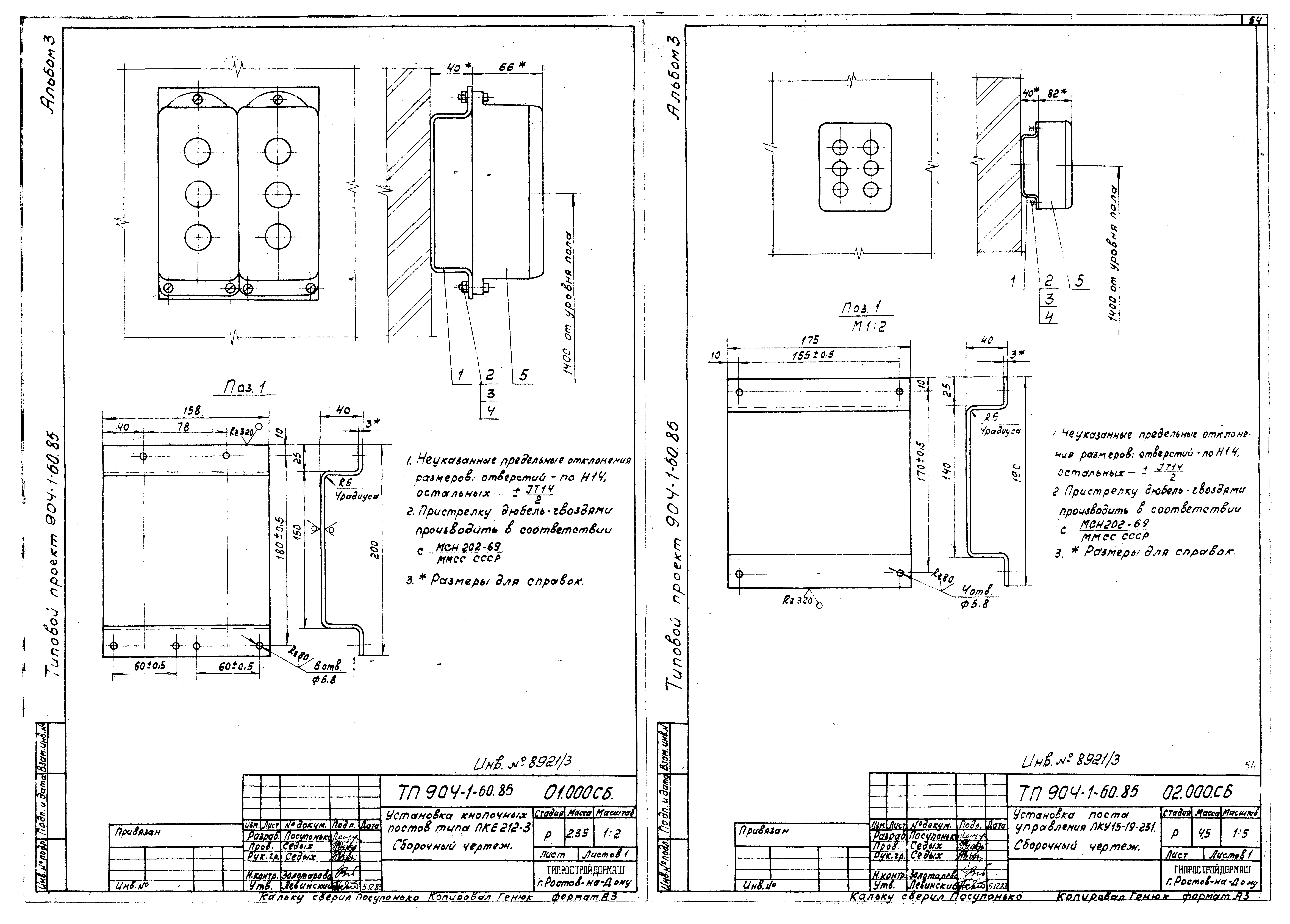
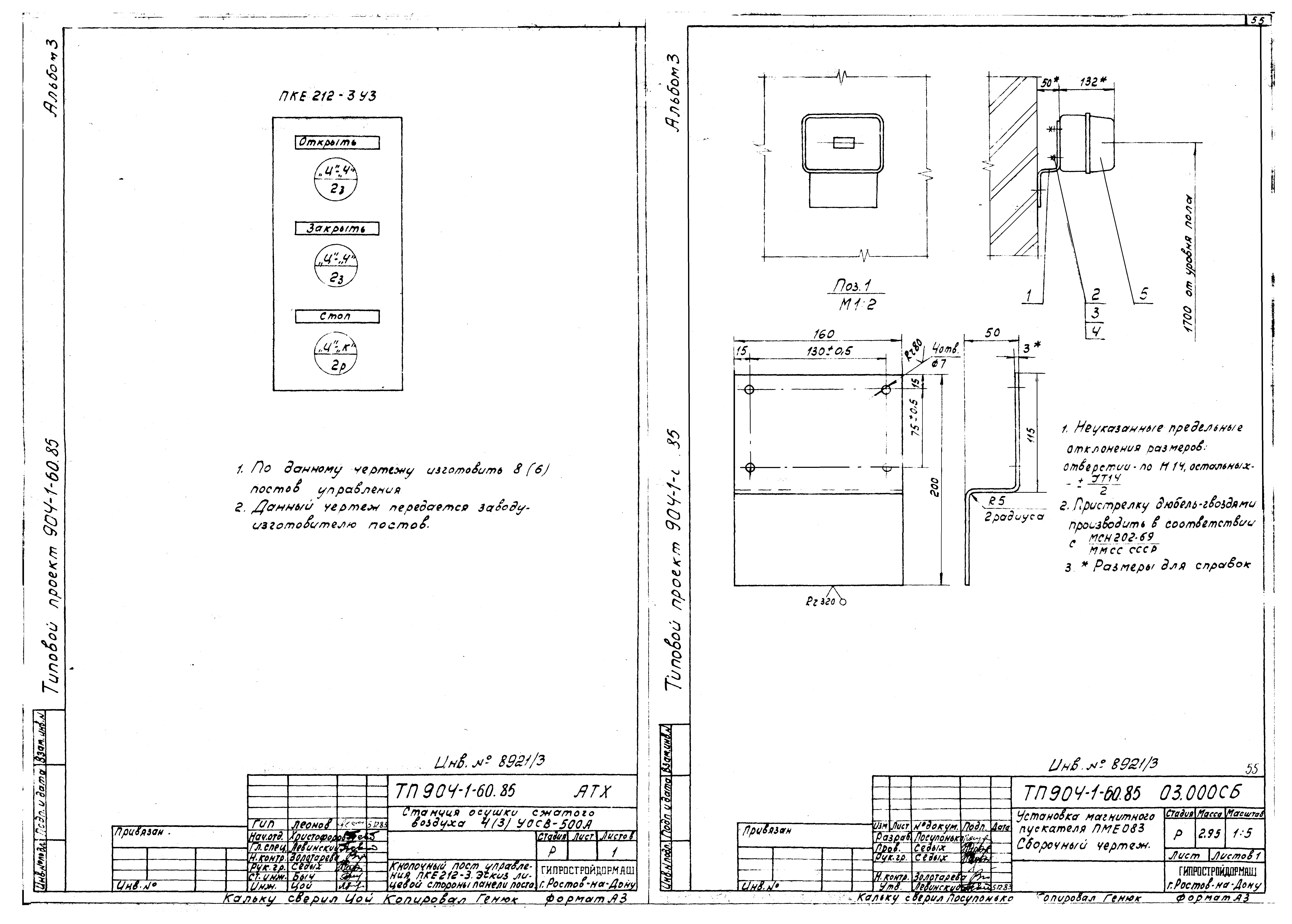
Скачать Типовой проект 904-1-60.85 Альбом 3. Автоматизация и КИПДата актуализации: 01.01.2021
|
| Обозначение: | Типовой проект 904-1-60.85 |
| Обозначение англ: | 904-1-60.85 |
| Статус: | действует |
| Название рус.: | Альбом 3. Автоматизация и КИП |
| Дата добавления в базу: | 01.09.2013 |
| Дата актуализации: | 01.01.2021 |
| Дата введения: | 30.07.1984 |
| Разработан: | Гипростройдормаш |
| Утверждён: | 19.04.1984 Минстройдормаш (Minstroydormash 4/84) |






























































































