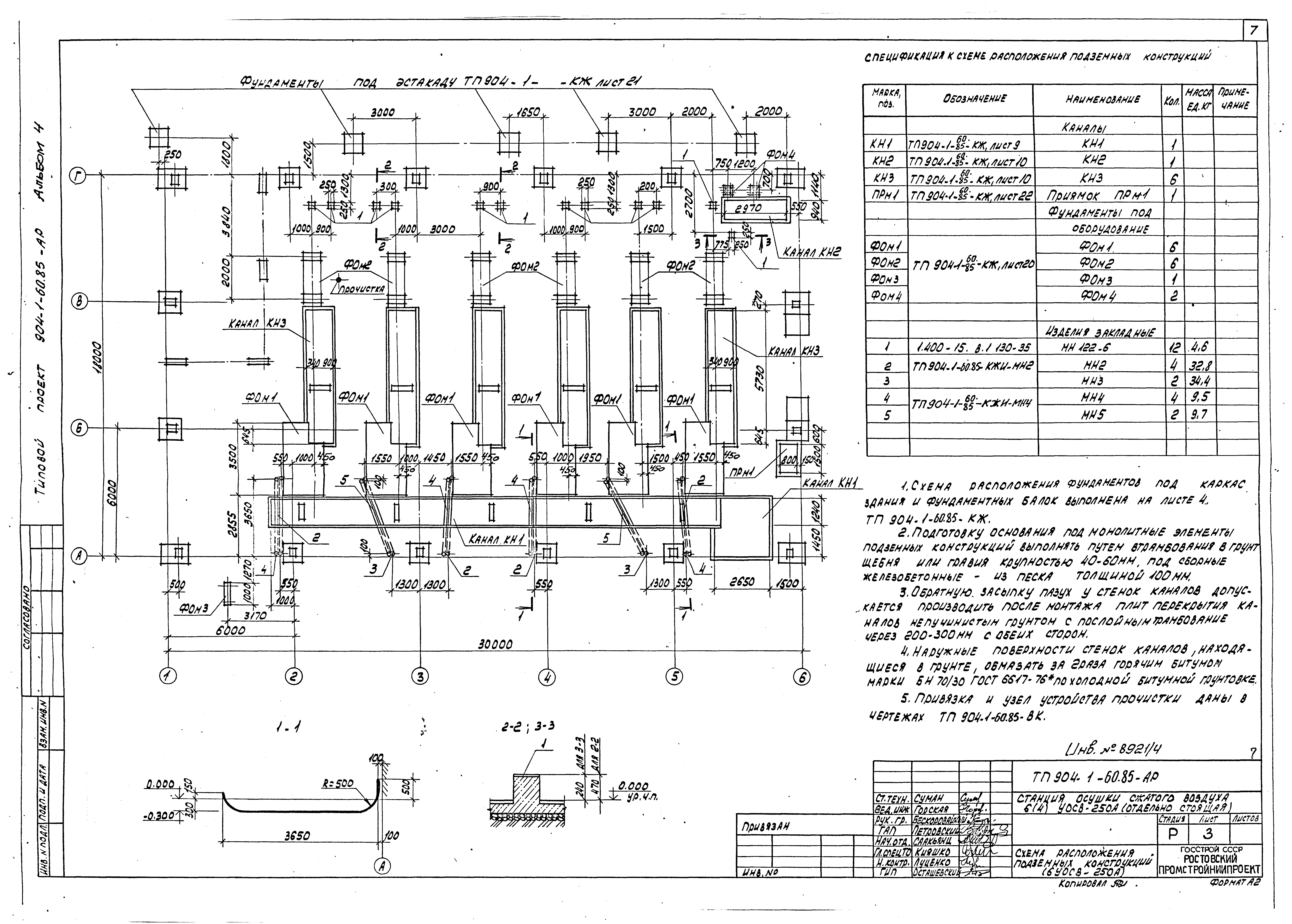
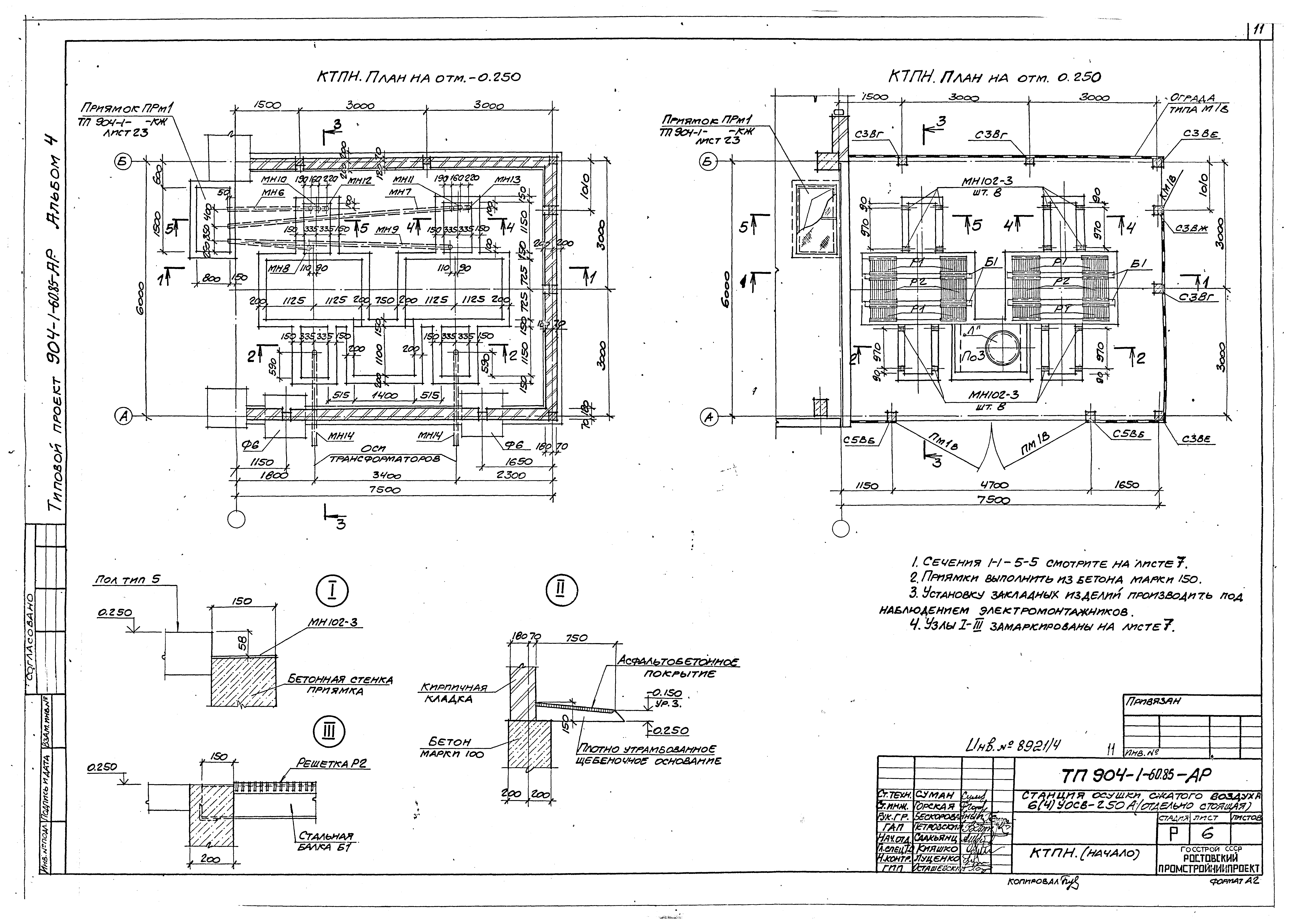
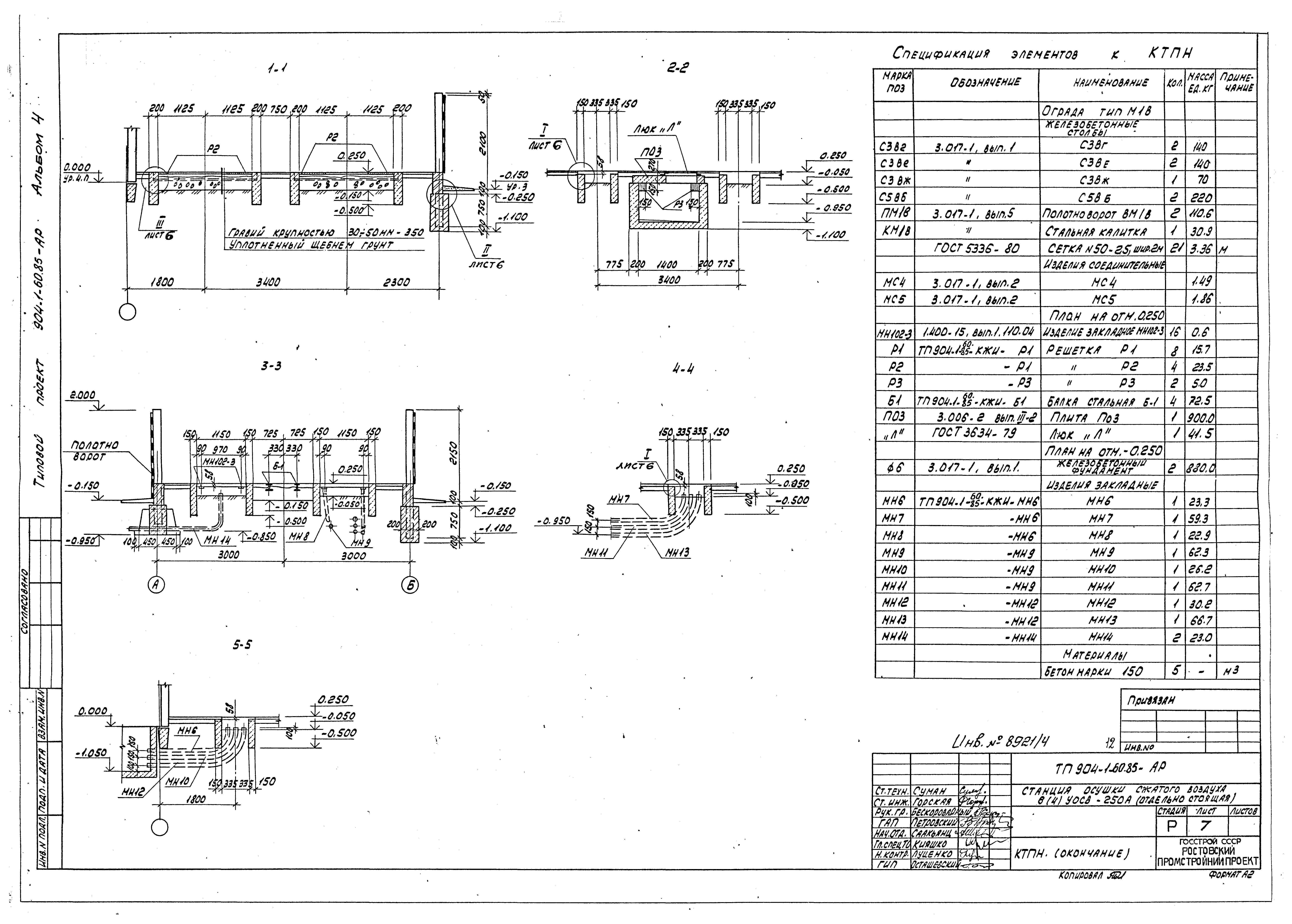
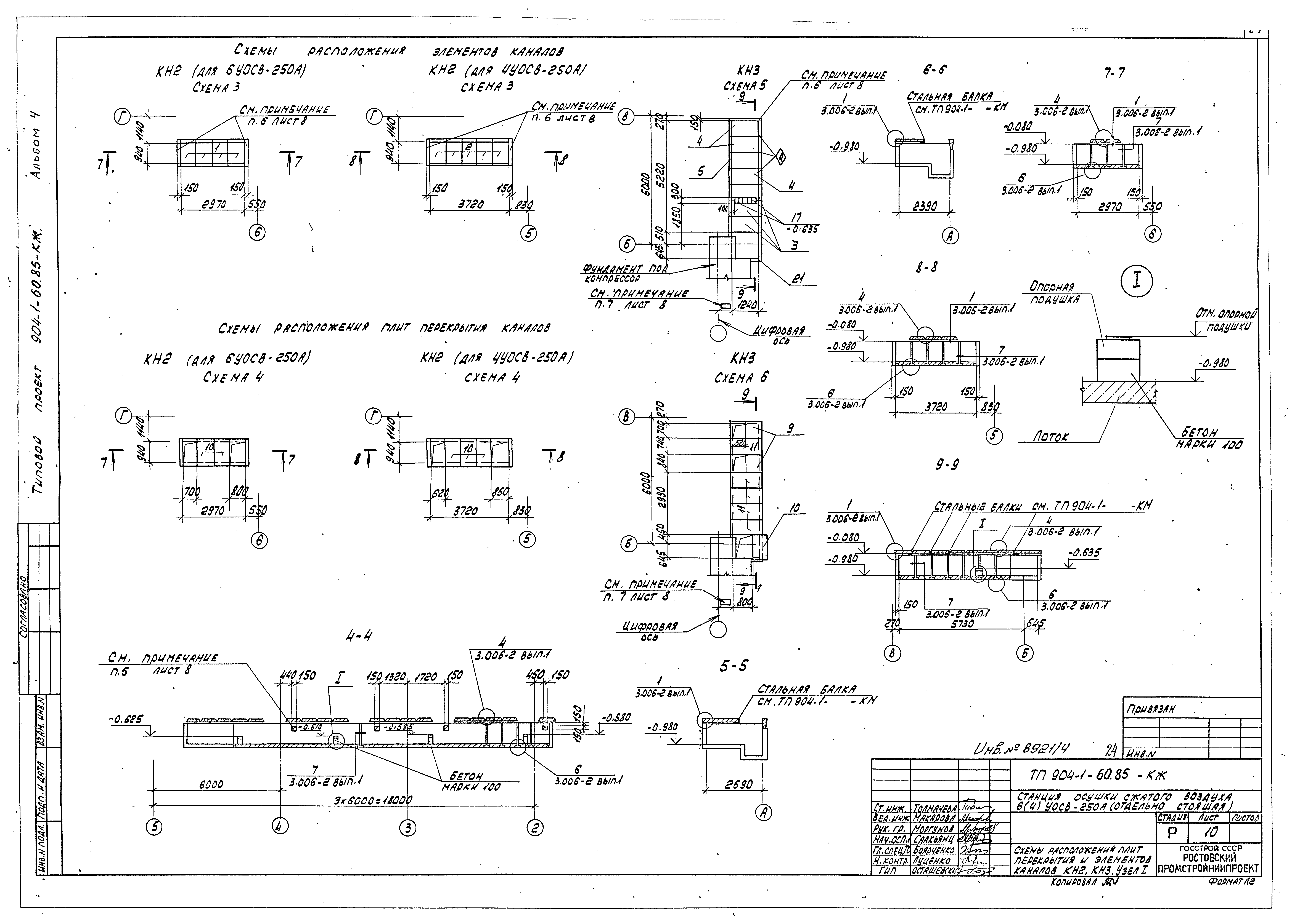
Скачать Типовой проект 904-1-60.85 Альбом 4. Архитектурно-строительные решения, отопление и вентиляция, внутренний водопровод и канализация для отдельно стоящей станцииДата актуализации: 01.01.2021 Типовой проект 904-1-60.85
Альбом 4. Архитектурно-строительные решения, отопление и вентиляция, внутренний водопровод и канализация для отдельно стоящей станции| Обозначение: | Типовой проект 904-1-60.85 | | Обозначение англ: | 904-1-60.85 | | Статус: | действует | | Название рус.: | Альбом 4. Архитектурно-строительные решения, отопление и вентиляция, внутренний водопровод и канализация для отдельно стоящей станции | | Дата добавления в базу: | 01.09.2013 | | Дата актуализации: | 01.01.2021 | | Дата введения: | 30.07.1984 | | Разработан: | Ростовский Промстройниипроект Госстроя СССР
| | Утверждён: | 19.04.1984 Минстройдормаш (Minstroydormash 4/84)
|
                                                         
|