Скачать Типовой проект 902-2-330 Альбом VI. Тип II. Первичный отстойник двухсекционный L = 24 м; h = 2 м из сборного железобетонаДата актуализации: 01.01.2021
|
| Обозначение: | Типовой проект 902-2-330 |
| Обозначение англ: | 902-2-330 |
| Статус: | не действует |
| Название рус.: | Альбом VI. Тип II. Первичный отстойник двухсекционный L = 24 м; h = 2 м из сборного железобетона |
| Дата добавления в базу: | 01.09.2013 |
| Дата актуализации: | 01.01.2021 |
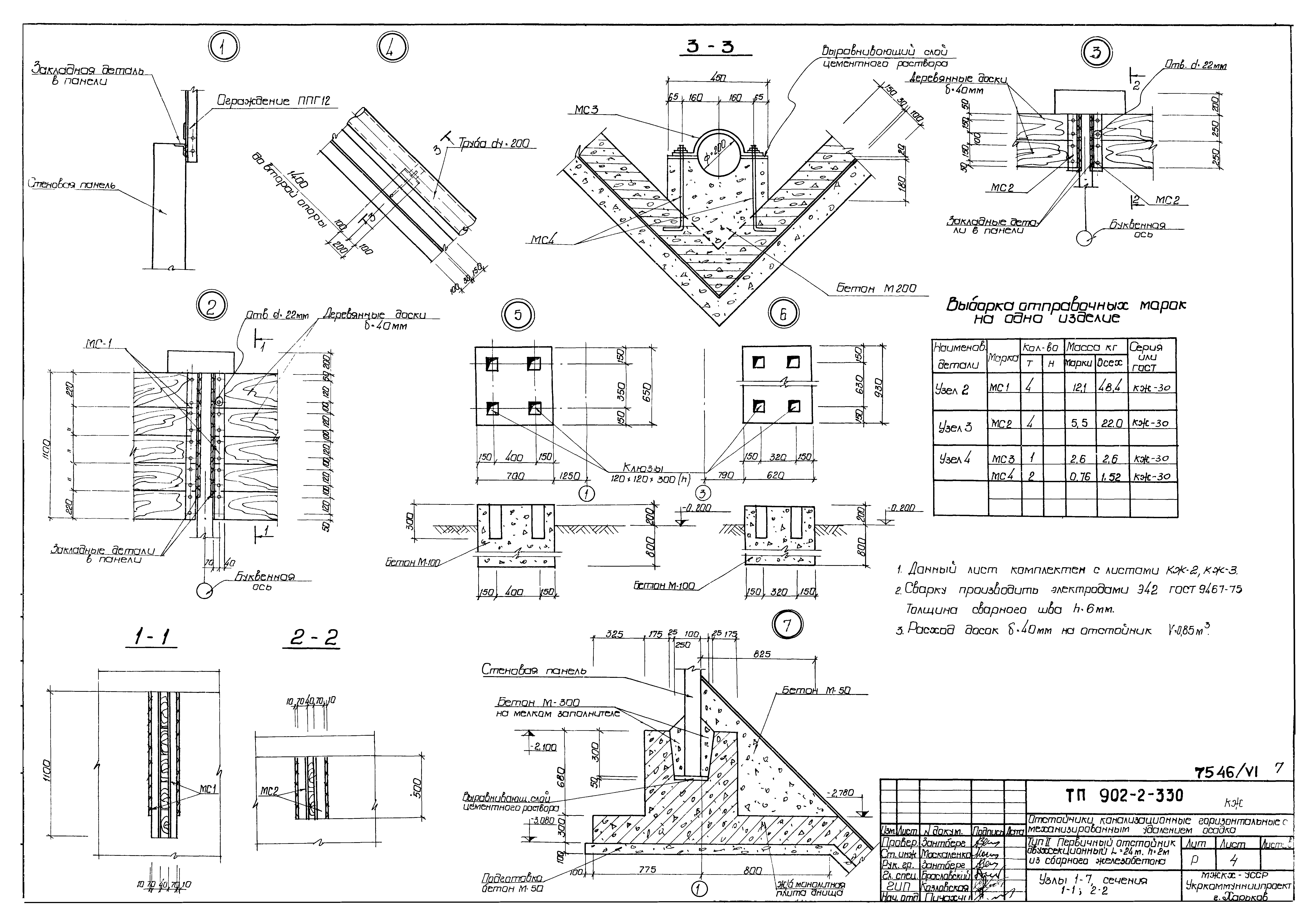
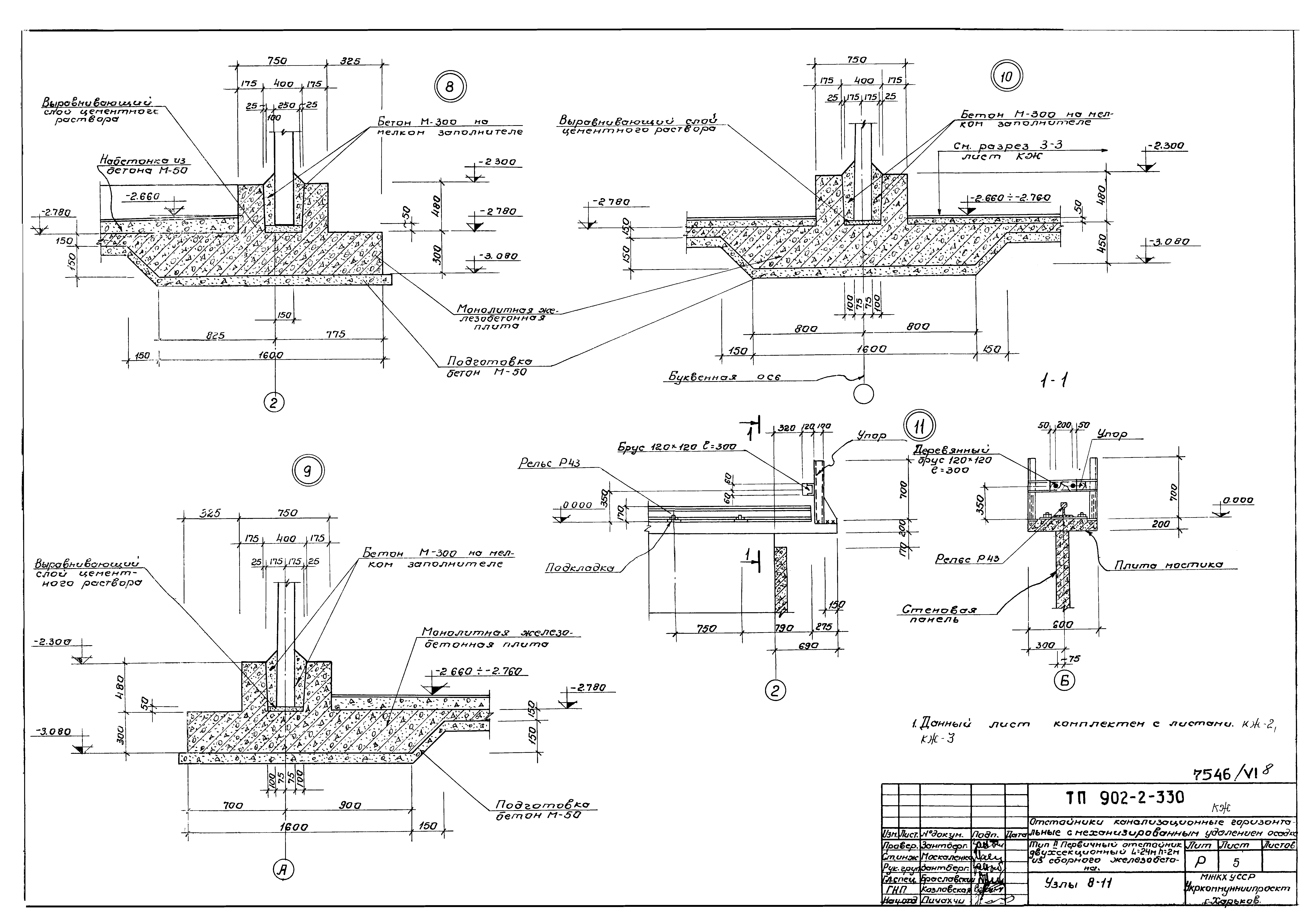
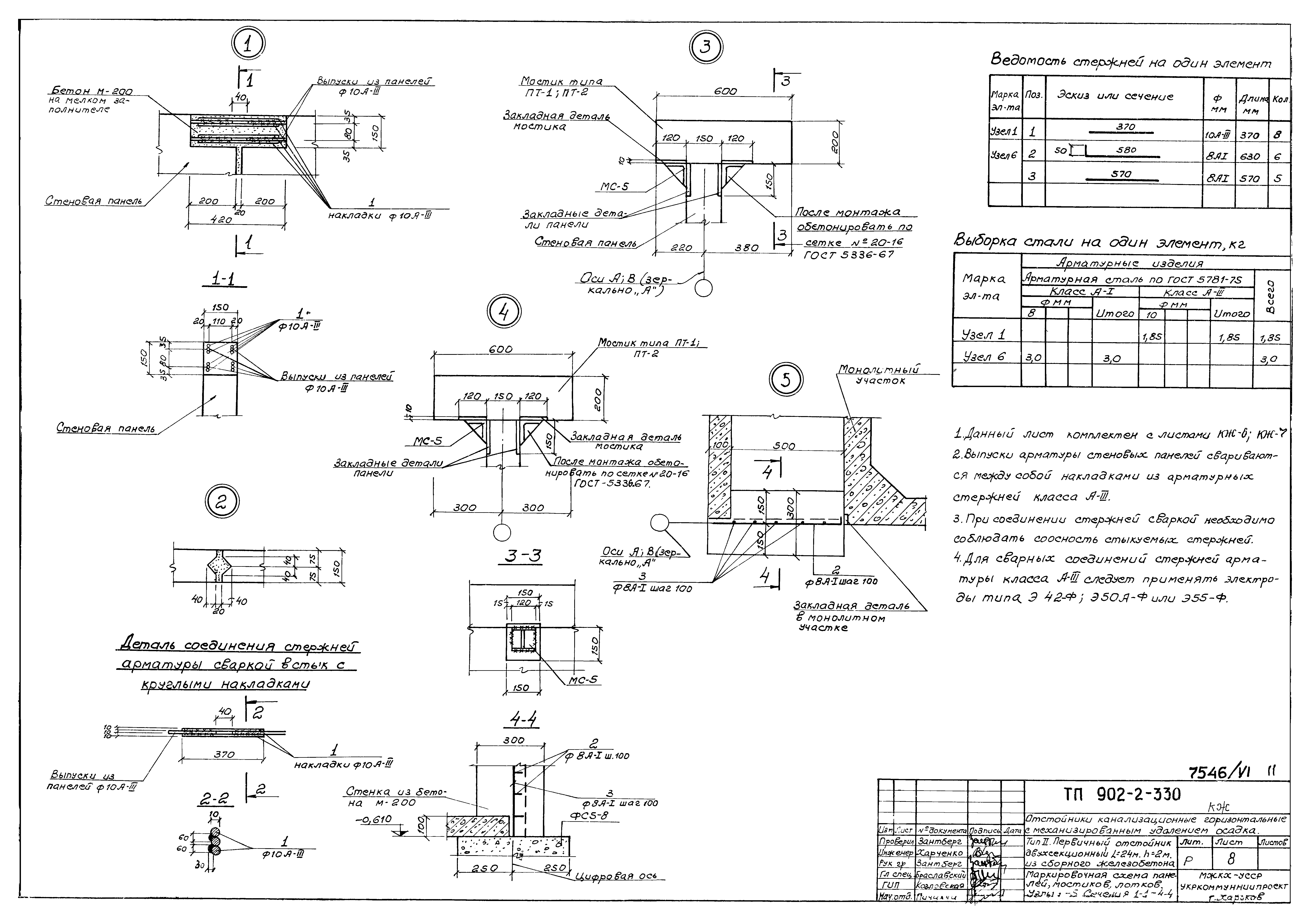
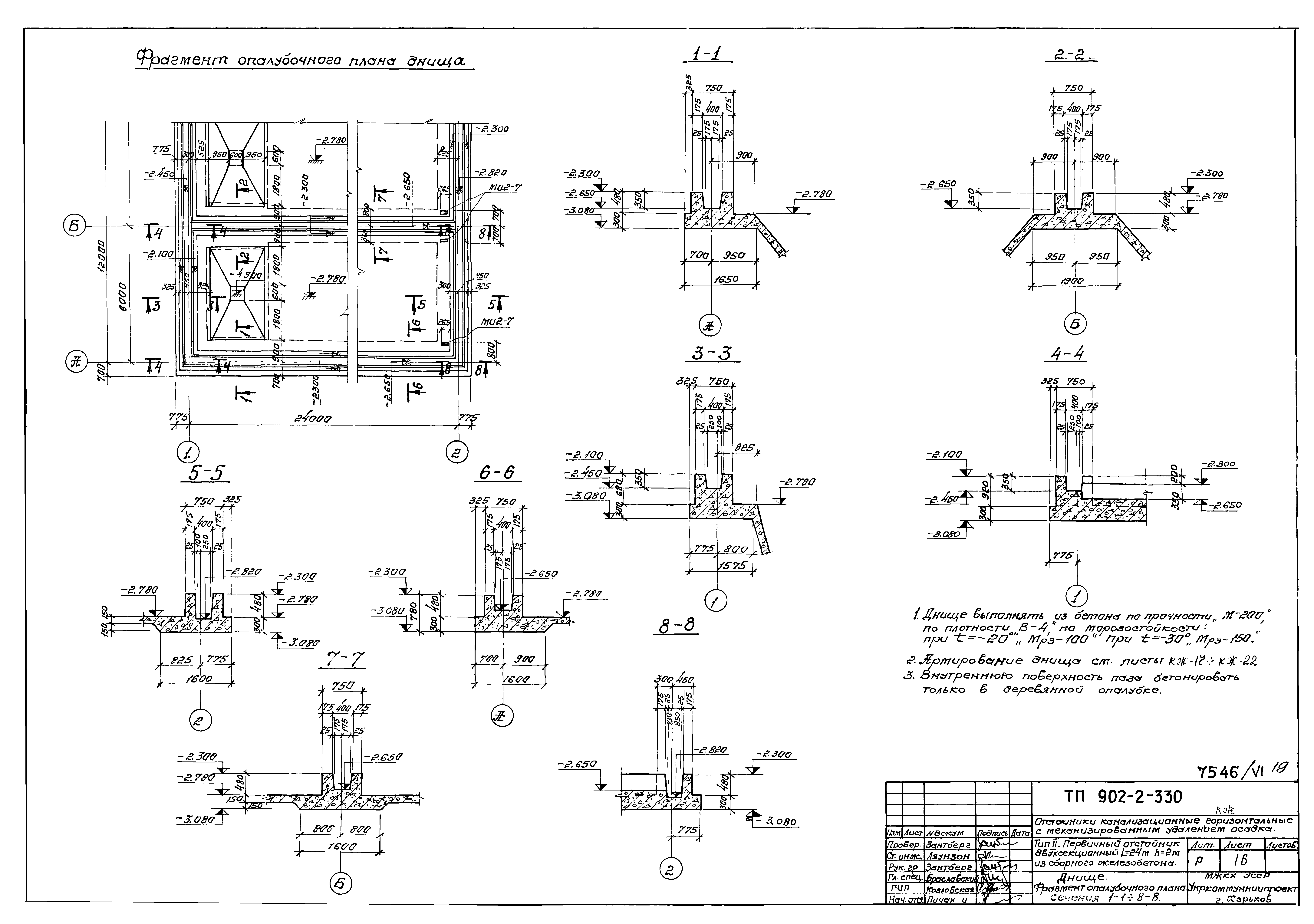
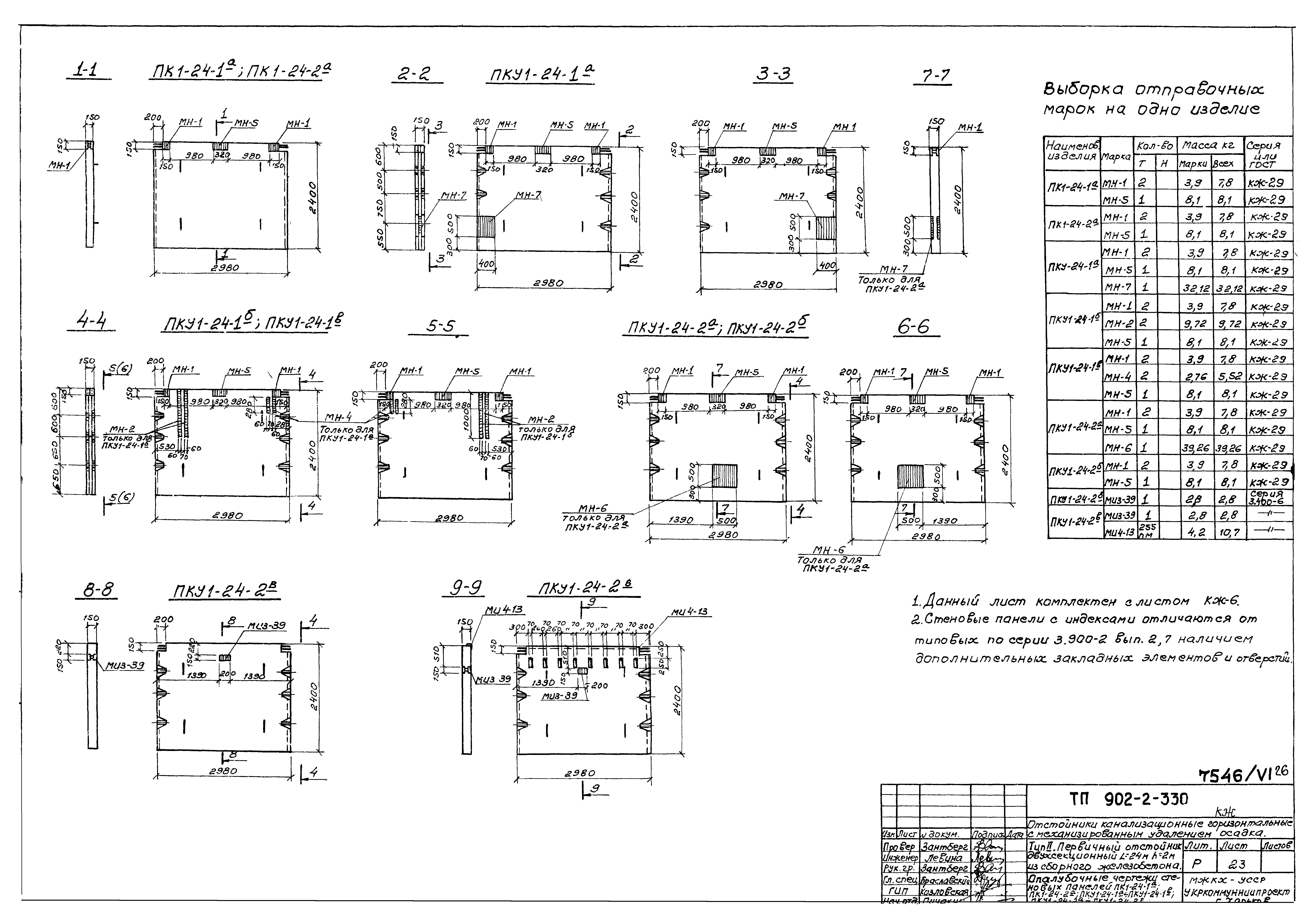
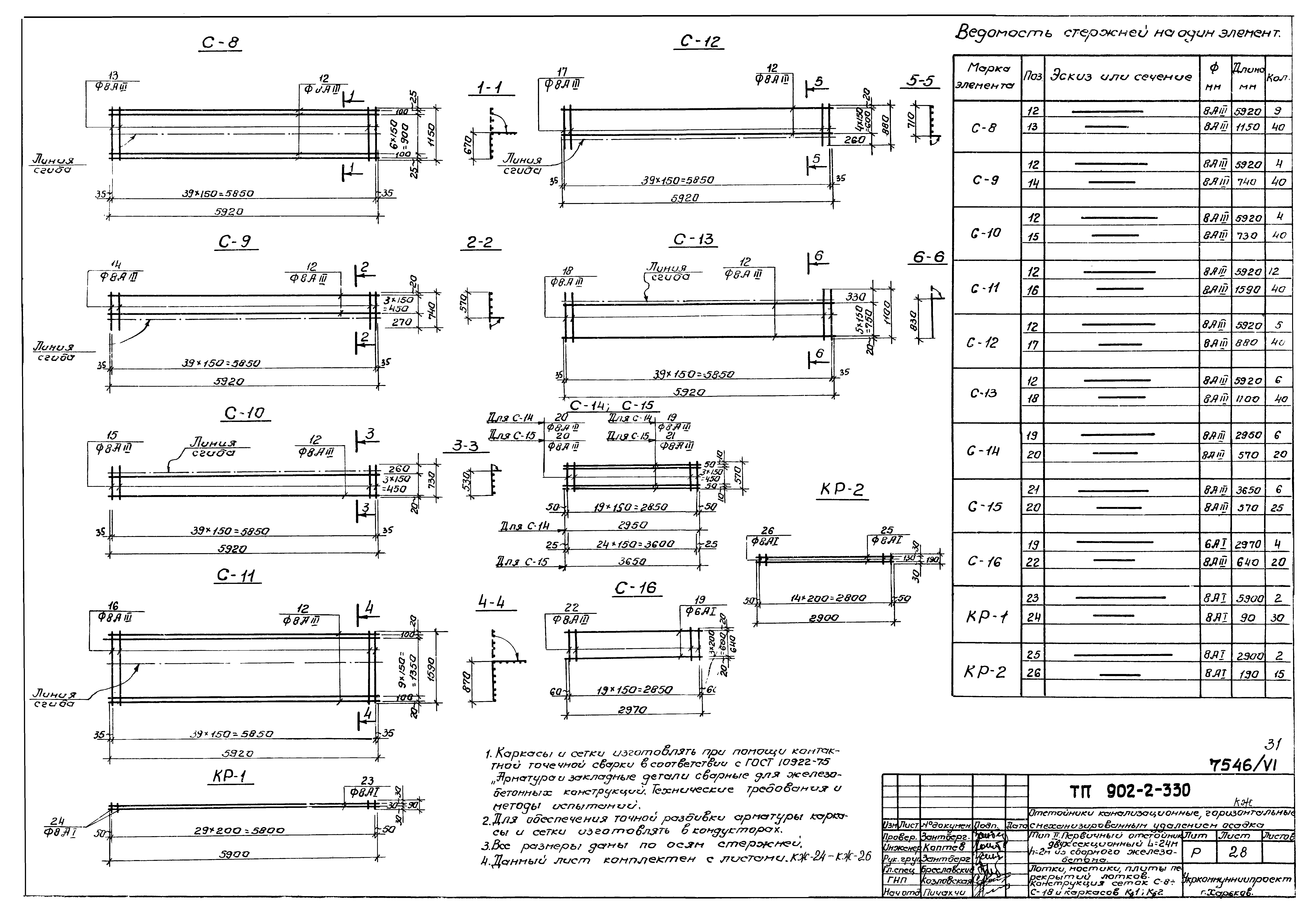
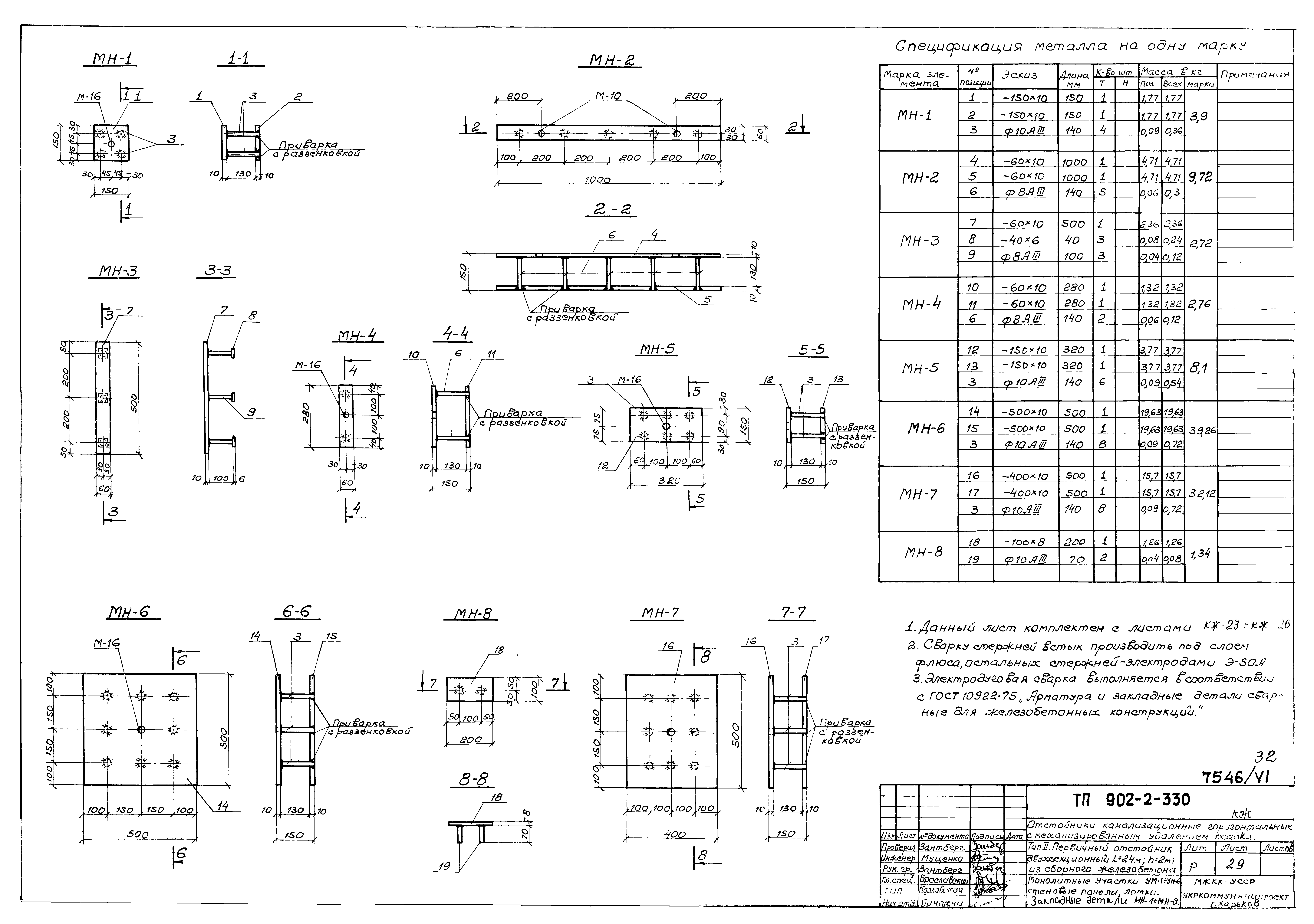
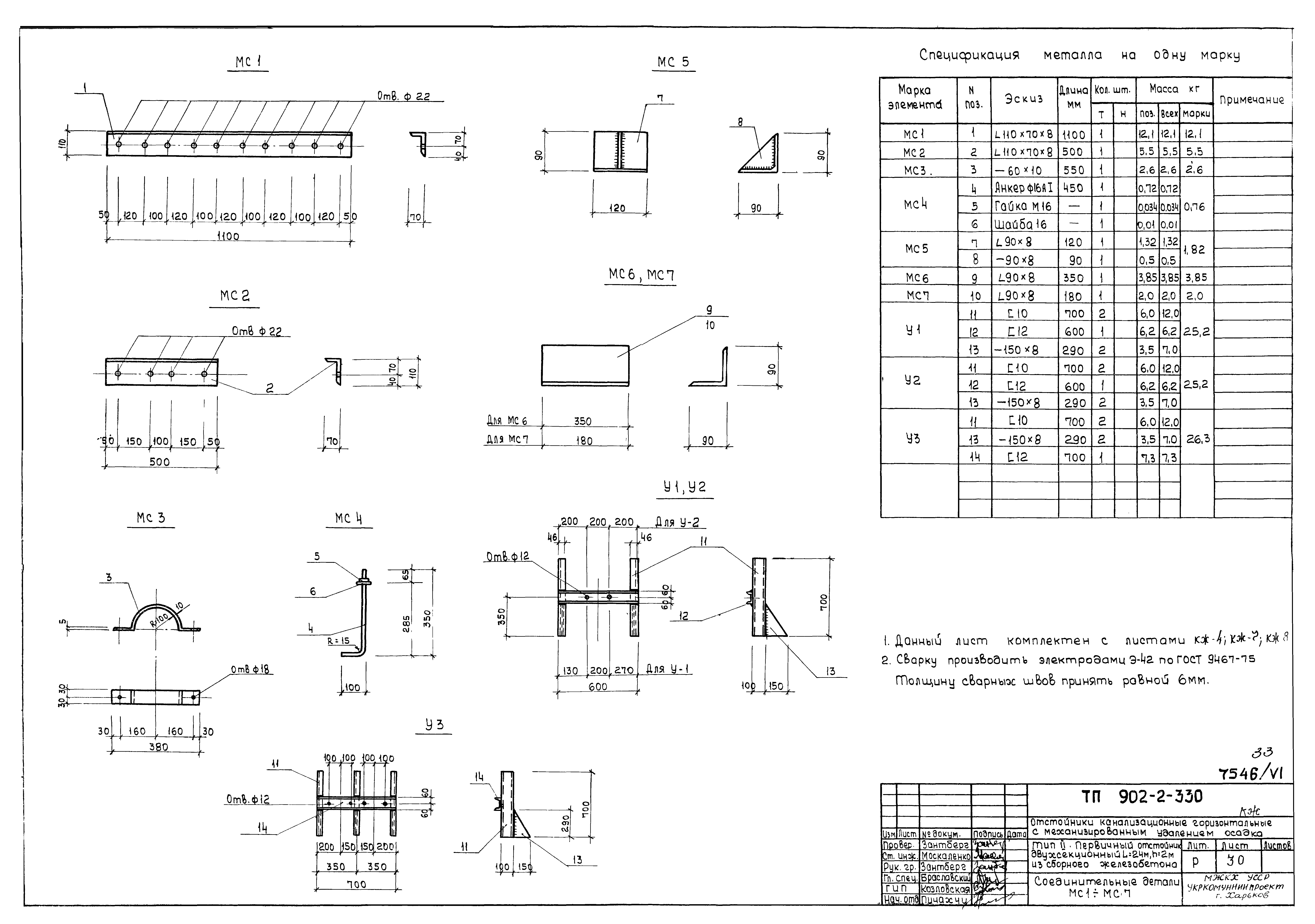
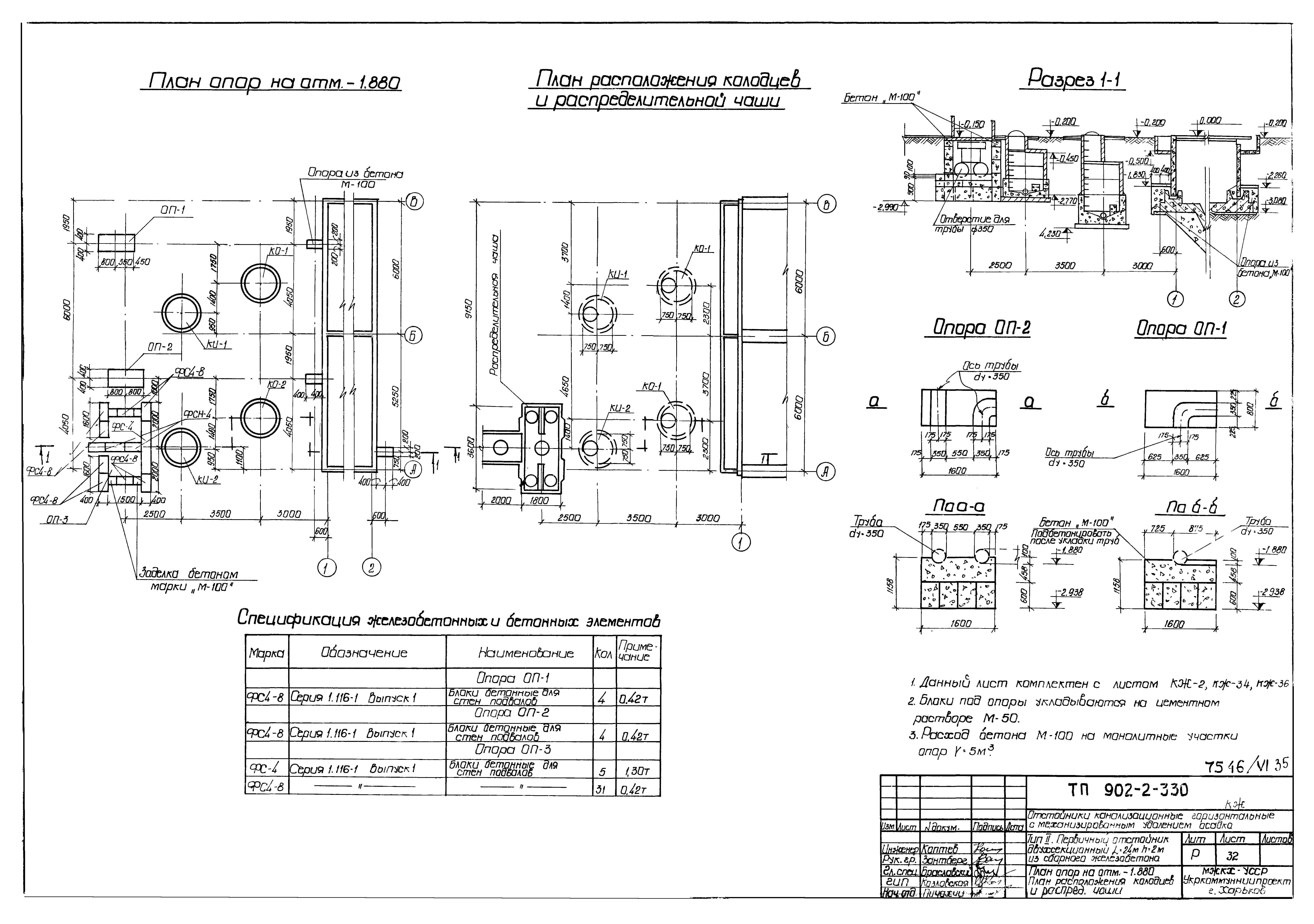
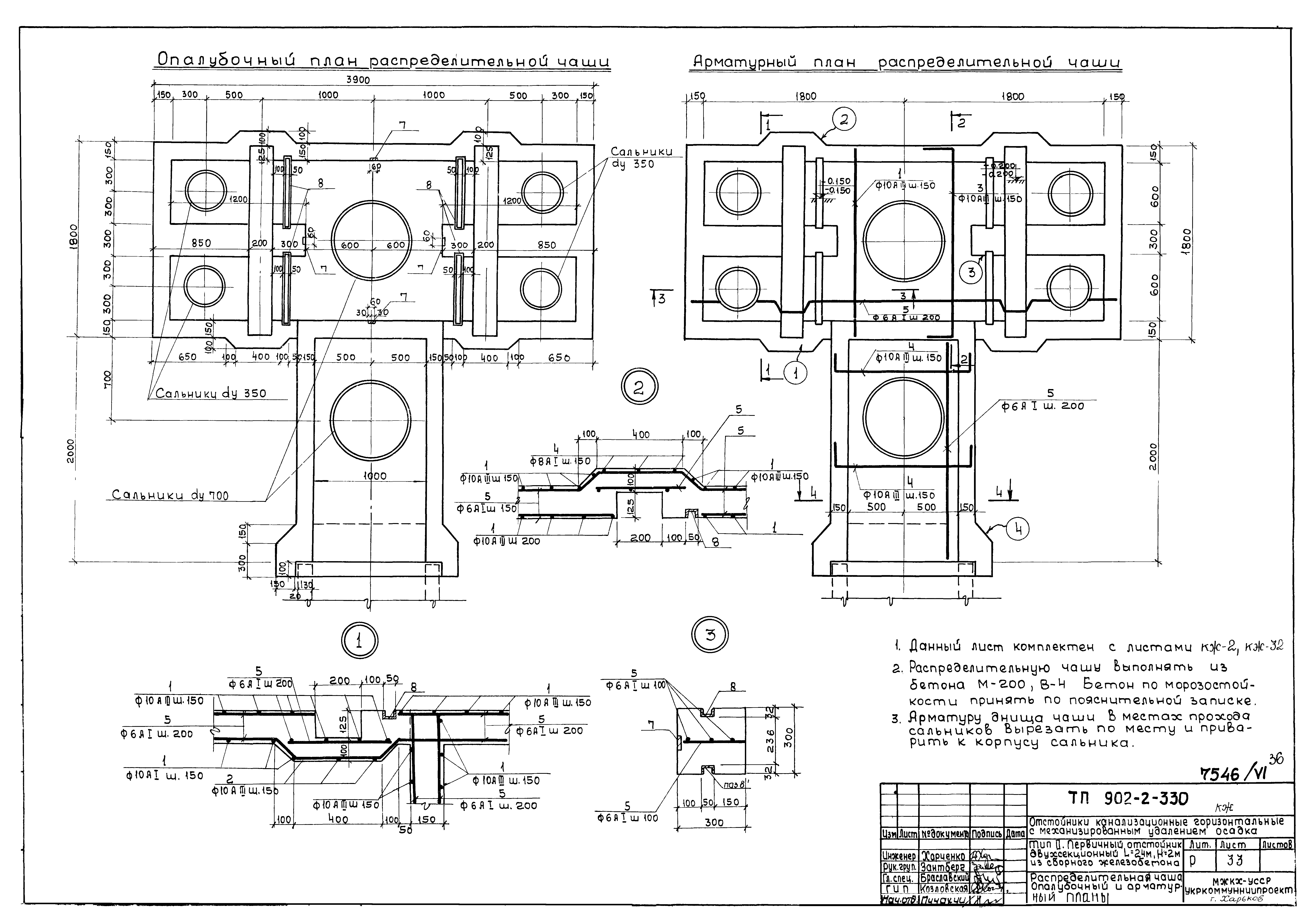
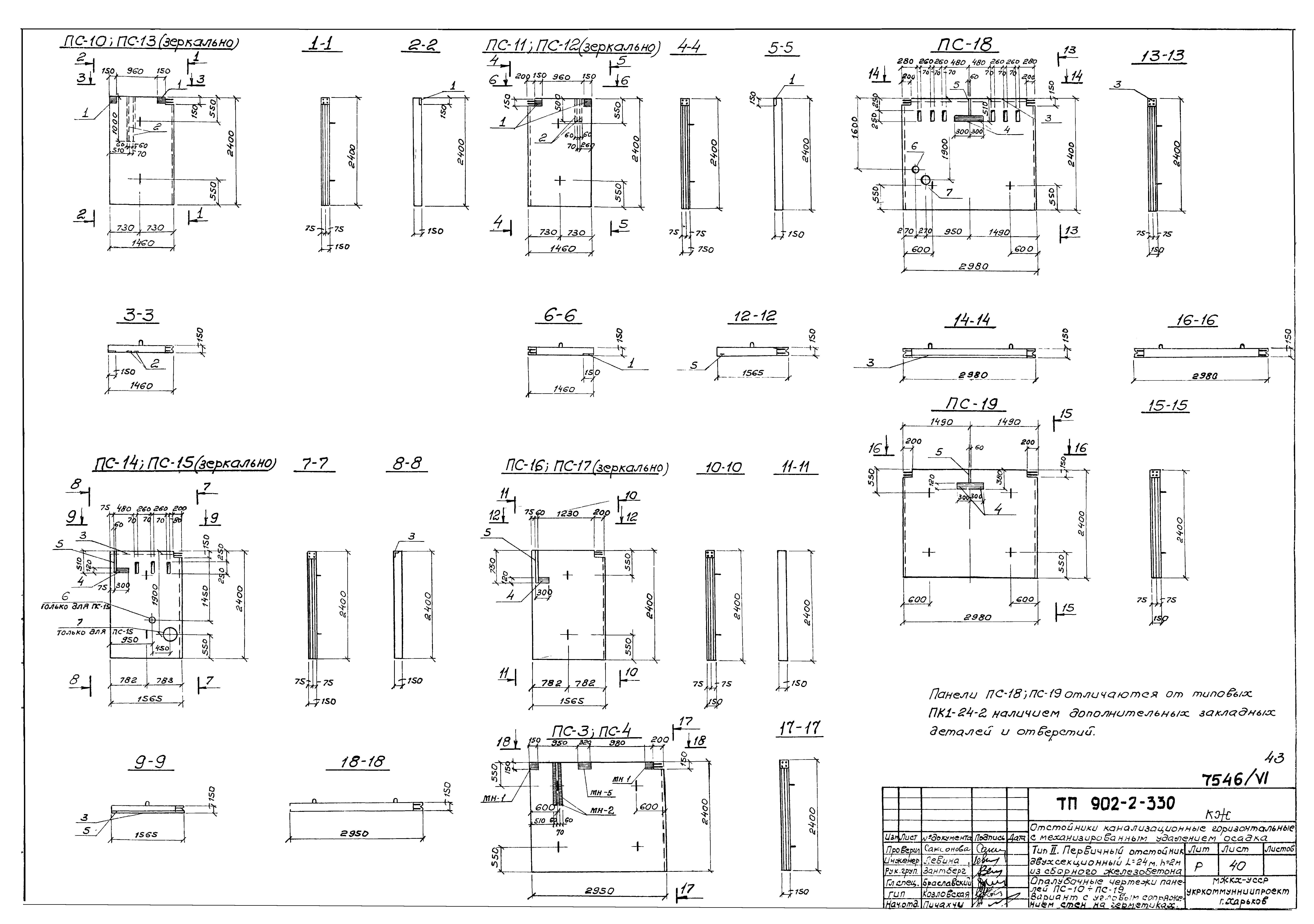
| Оглавление: | ТП 902-2-330 Обложка ТП 902-2-330 Титульный лист ТП 902-2-330 Содержание альбома ТП 902-2-330-КЖ-1 Общие данные (Заглавный лист) ТП 902-2-330-КЖ-2 План на отм. 0.000. Разрез 1-1 ТП 902-2-330-КЖ-3 Разрезы 2-2,3-3 ТП 902-2-330-КЖ-4 Узлы 1-7. Сечения ТП 902-2-330-КЖ-5 Узлы 8-11 ТП 902-2-330-КЖ-6 Маркировочная схема стеновых панелей Виды 1-1÷5-5 ТП 902-2-330-КЖ-7 Маркировочные схемы мостиков, лотков, плит перекрытия лотков. Сечения 6-6÷10-10 ТП 902-2-330-КЖ-8 Маркировочные схемы стеновых панелей, лотков и мостиков. Узлы 1-5 ТП 902-2-330-КЖ-9 Маркировочные схемы стеновых панелей, лотков и мостиков. Узлы 6-8 ТП 902-2-330-КЖ-10 Монолитный участок УМ-1. Опалубочные чертежи и армирование ТП 902-2-330-КЖ-11 Монолитные участки УМ-2,УМ-5. Опалубочные чертежи и армирование ТП 902-2-330-КЖ-12 Монолитный участок УМ-3. Опалубочные чертежи и армирование ТП 902-2-330-КЖ-13 Монолитные участки УМ-4,УМ-6. Опалубочные чертежи и армирование ТП 902-2-330-КЖ-14 Опалубочные чертежи и армирование монолитных участков УМ-1÷УМ-6. Ведомость стержней на один элемент ТП 902-2-330-КЖ-15 Опалубочные чертежи и армирование монолитных участков УМ-1÷УМ-6. Спецификация марок арматурных изделий на 1 элемент. Выборка стали ТП 902-2-330-КЖ-16 Днище, фрагмент опалубочного плана. Сечения 1-1÷8-8 ТП 902-2-330-КЖ-17 Днище. Армирование. План раскладки нижних и верхних сеток ТП 902-2-330-КЖ-18 Днище. Армирование. План раскладки каркасов ТП 902-2-330-КЖ-19 Днище. Армирование. Сечения 1-1÷8-8 ТП 902-2-330-КЖ-20 Днище. Армирование. Узлы 1-6 ТП 902-2-330-КЖ-21 Днище. Армирование бункерной части ТП 902-2-330-КЖ-22 Днище. Армирование. Спецификации ТП 902-2-330-КЖ-23 Опалубочные чертежи стеновых панелей ПК1-24-1а,ПК1-24-2а,ПКУ1-24-1а,ПКУ1-24-2б,ПКУ1-24-2а÷ПКУ1-24-2г ТП 902-2-330-КЖ-24 Плиты мостиков ПТ-1а÷ПТ-1г. Плита перекрытия П1а. Опалубочные чертежи и армирование ТП 902-2-330-КЖ-25 Плиты мостиков ПТ-2÷ПТ-2б. Опалубочные чертежи и армирование ТП 902-2-330-КЖ-26 Опалубочные чертежи и армирование сборных железобетонных лотков ЛТ1-ЛТ3 ТП 902-2-330-КЖ-27 Днище. Армирование. Сетки С-1÷С-7, КП-1÷КП-2 ТП 902-2-330-КЖ-28 Лотки, мостики. Плиты перекрытий лотков. Конструкция сеток С-8÷С16 и каркасов КР-1÷КР-2 ТП 902-2-330-КЖ-29 Монолитные участки УМ-1÷УМ-6. Стеновые панели. Лотки. Закладные детали МН-1÷МН-8 ТП 902-2-330-КЖ-30 Соединительные детали МС-1÷МС-7 ТП 902-2-330-КЖ-31 Маркировочные схемы рельсовых путей под скребковый механизм ТП 902-2-330-КЖ-32 План опор на отм. -1.880. План расположения колодцев и распределительной чаши ТП 902-2-330-КЖ-33 Распределительная чаша. Опалубочный и арматурный планы ТП 902-2-330-КЖ-34 Распределительная чаша. Сечения 1-1÷5-5 ТП 902-2-330-КЖ-35 Конструкция колодцев КИ-1÷КИ-2, КО-1÷КО-2 ТП 902-2-330-КЖ-36 Помещение привода скребкового механизма. План на отм. 0.000. Разрезы 1-1÷2-2. Фасады. План кровли ТП 902-2-330-КЖ-37 Помещение привода скребкового механизма. Маркировочные схемы фундаментов и плит покрытия ТП 902-2-330-КЖ-38 Маркировочная схема стеновых панелей. Виды по 1-1÷5-5 ТП 902-2-330-КЖ-39 Опалубочные чертежи панелей ТП 902-2-330-КЖ-40 Опалубочные чертежи панелей ТП 902-2-330-КЖ-41 Армирование стеновых панелей ТП 902-2-330-КЖ-42 Армирование панелей. Спецификация марок арматурных изделий на 1 элемент ТП 902-2-330-КЖ-43 Армирование панелей. Сетки и каркасы панелей |
| Разработан: | УкркоммунНИИпроект Минжилкомхоза УССР |
| Утверждён: | 15.06.1979 УкркоммунНИИпроект (315) |














































