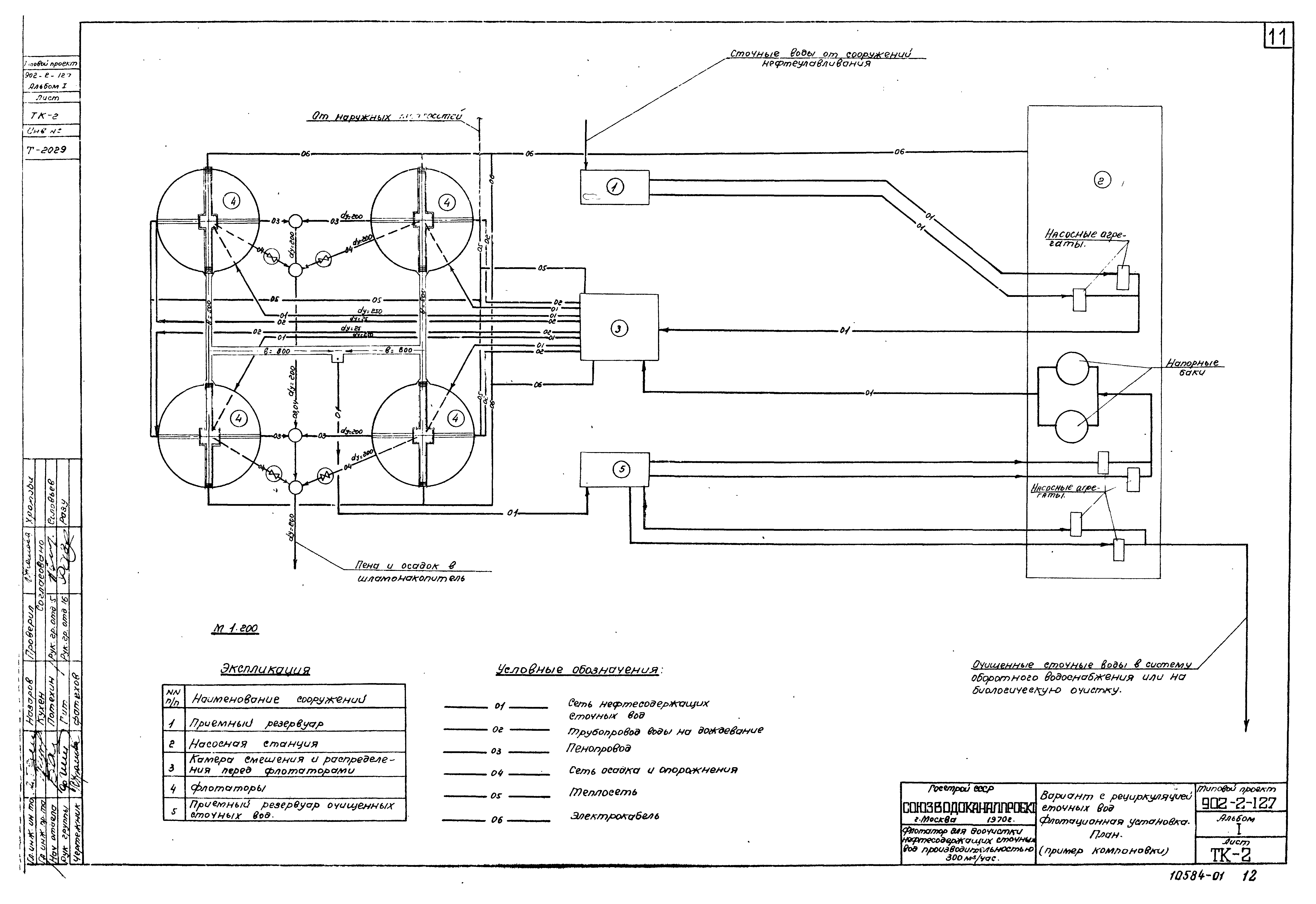
Скачать Типовой проект 902-2-127 Альбом I. Технологическая, строительная и электротехническая частиДата актуализации: 01.01.2021 Типовой проект 902-2-127
Альбом I. Технологическая, строительная и электротехническая части| Обозначение: | Типовой проект 902-2-127 | | Обозначение англ: | 902-2-127 | | Статус: | не действует | | Название рус.: | Альбом I. Технологическая, строительная и электротехническая части | | Дата добавления в базу: | 01.09.2013 | | Дата актуализации: | 01.01.2021 | | Разработан: | Союзводоканалниипроект
| | Утверждён: | 27.08.1970 СоюзводоканалНИИпроект (SoyuzvodokanalNIIproject 194)
|
                         
|