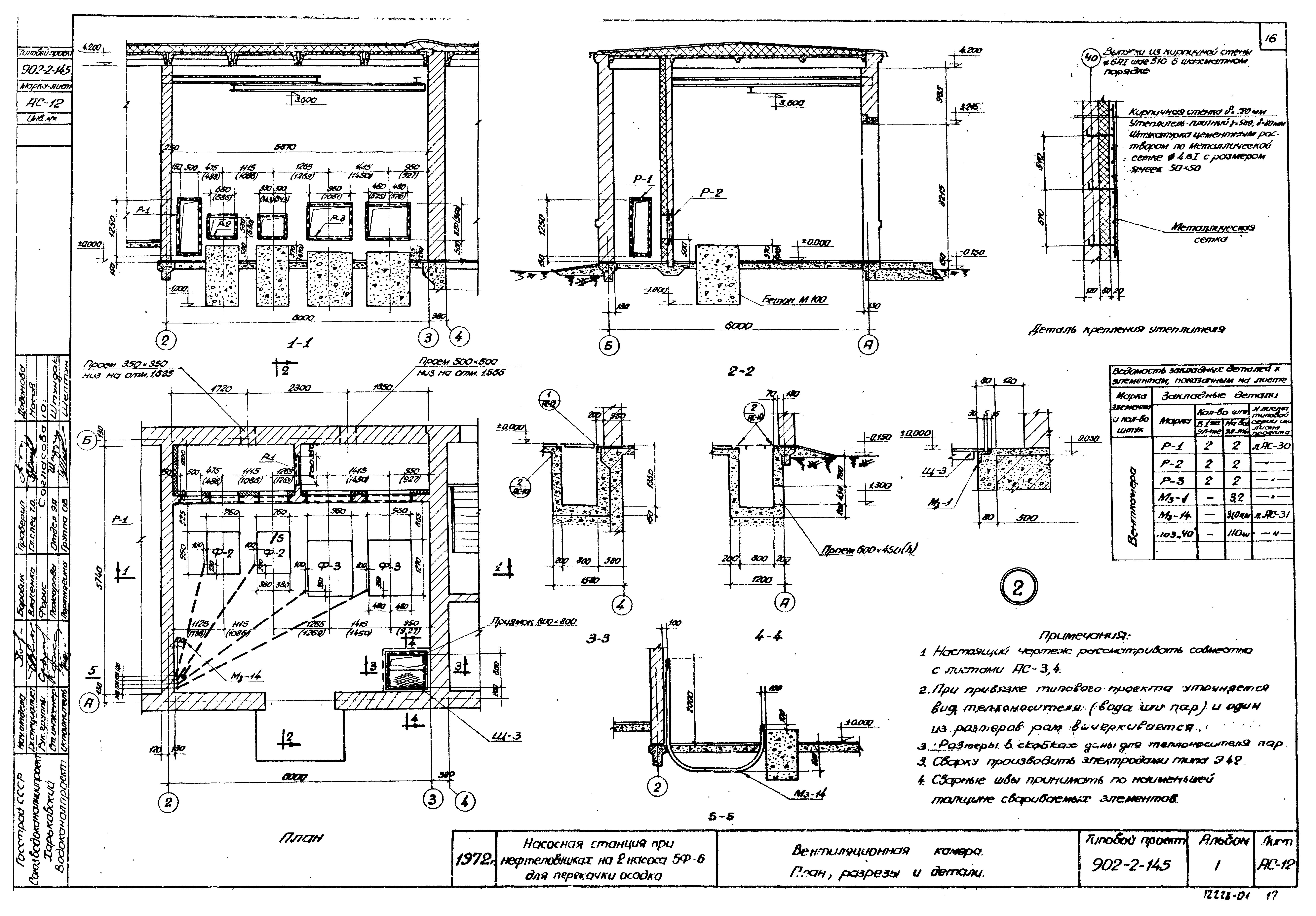
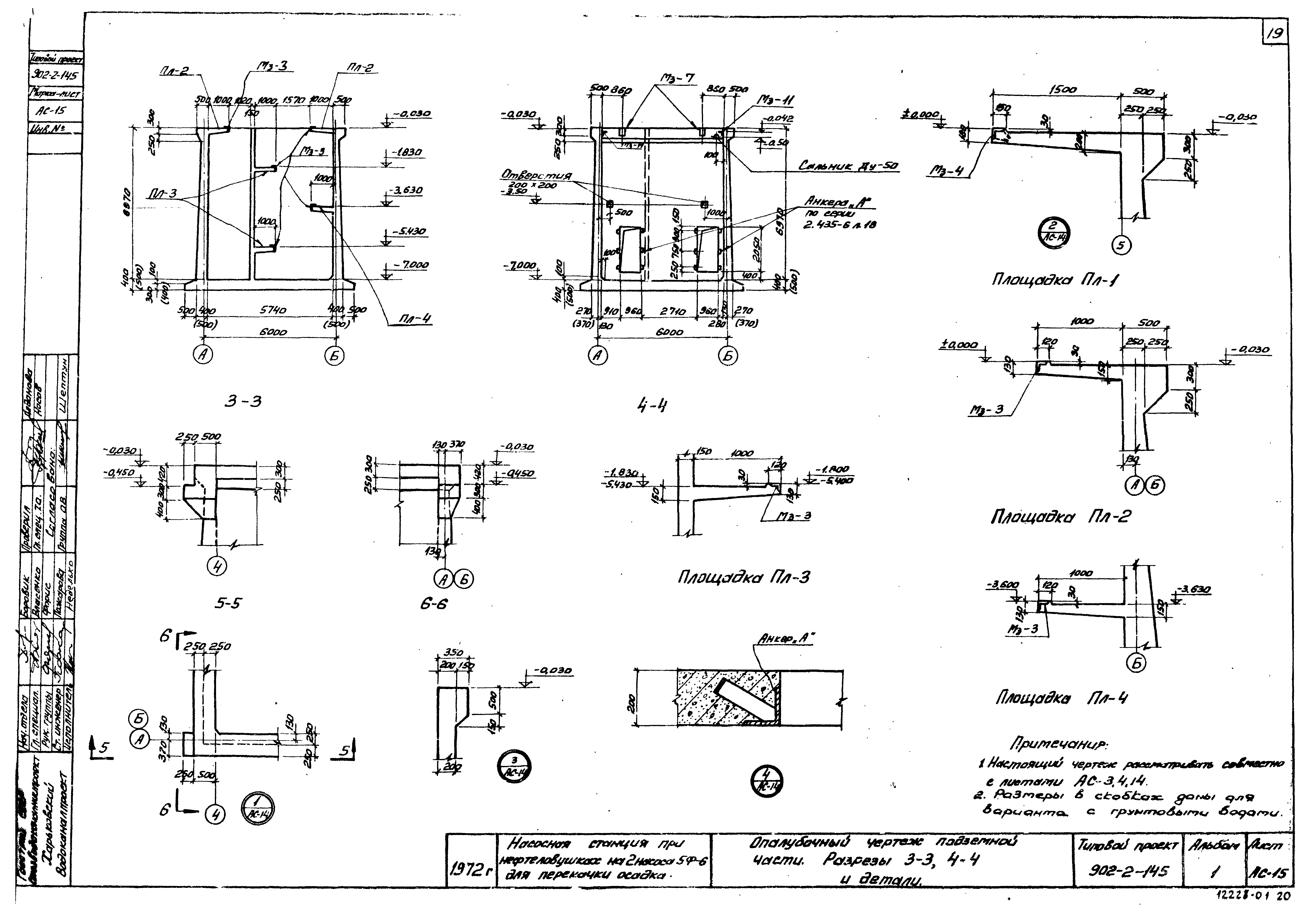
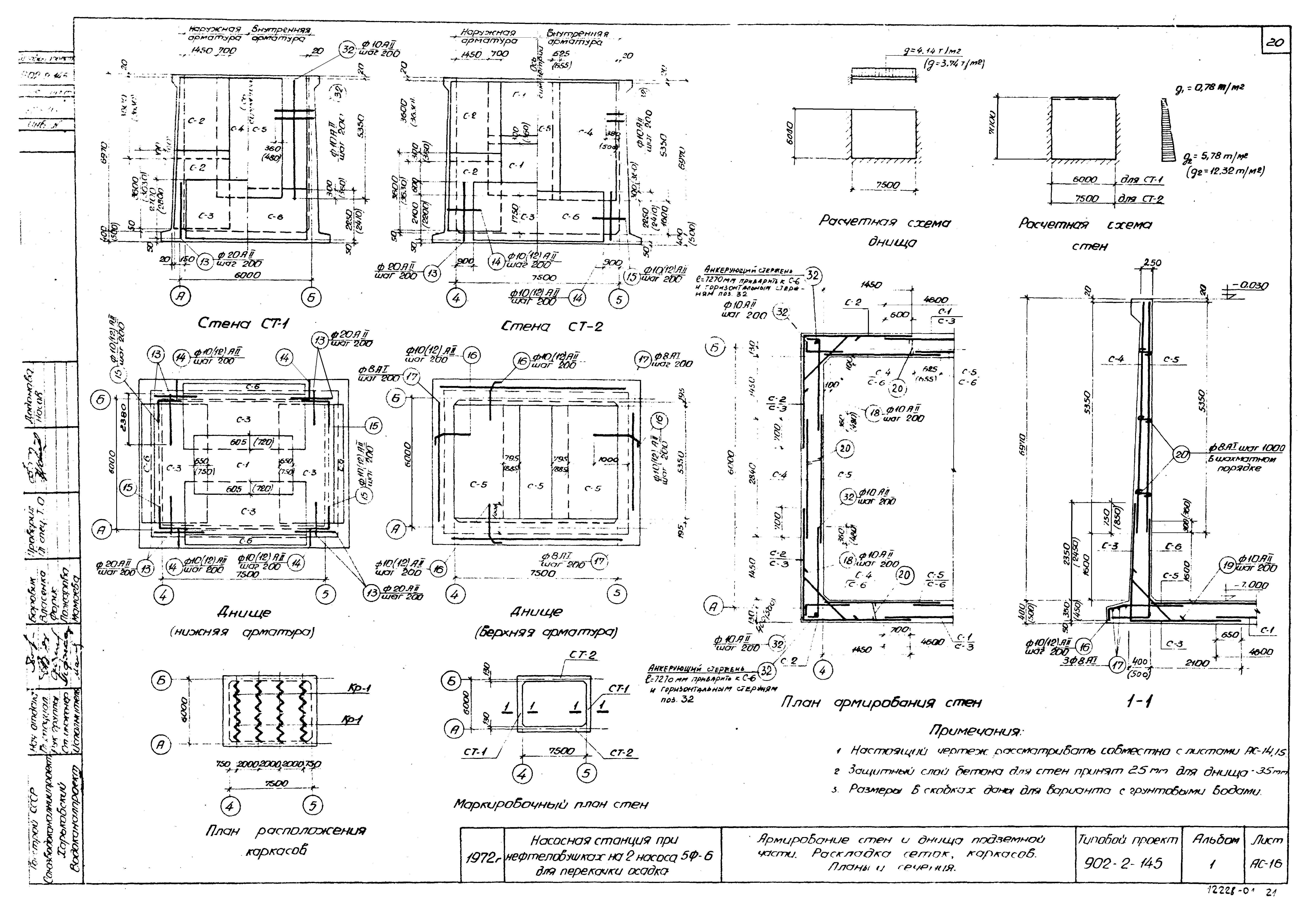
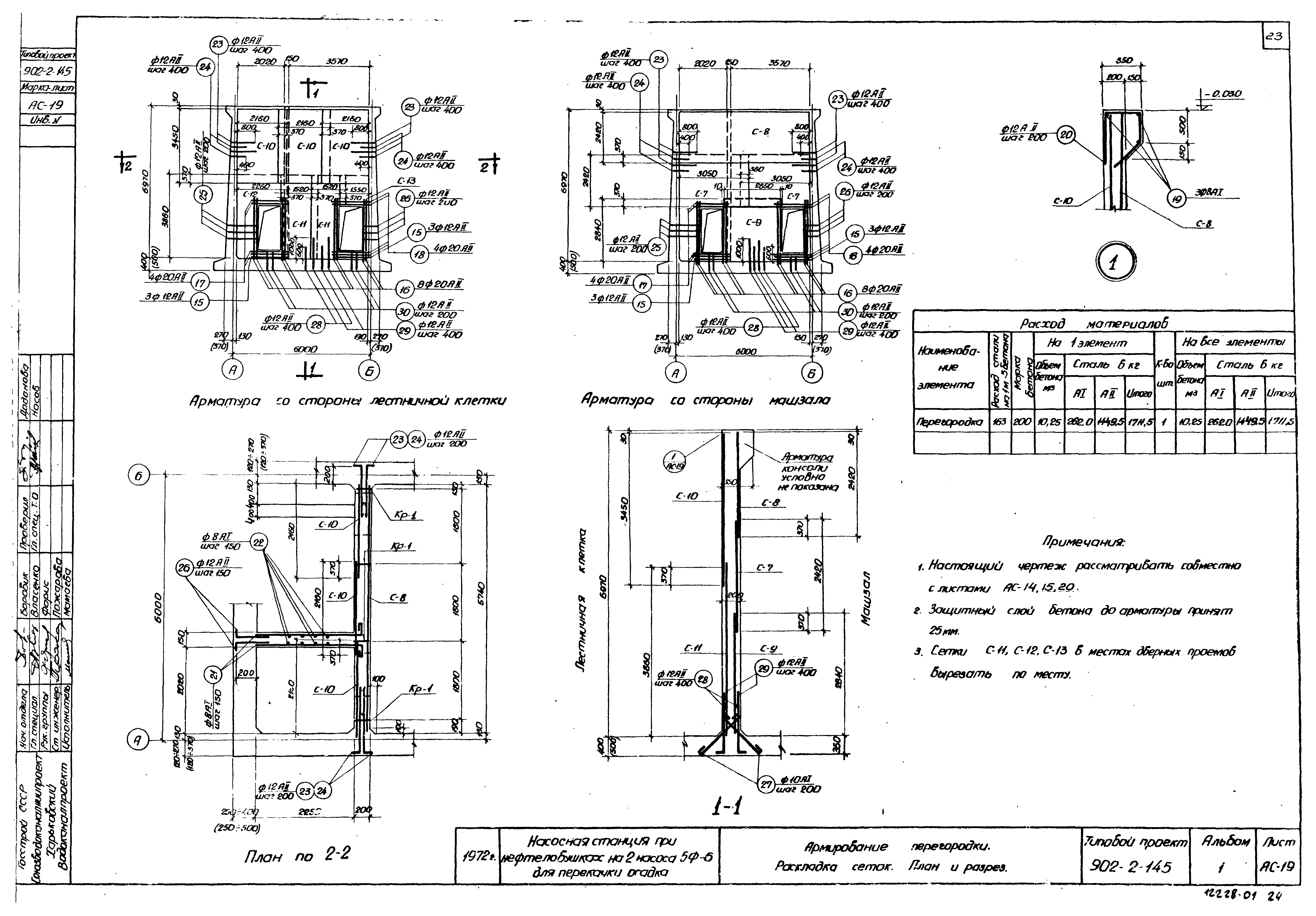
Скачать Типовой проект 902-2-145 Альбом 1. Архитектурно-строительная часть при открытом способе производства работДата актуализации: 01.01.2021 Типовой проект 902-2-145
Альбом 1. Архитектурно-строительная часть при открытом способе производства работ| Обозначение: | Типовой проект 902-2-145 | | Обозначение англ: | 902-2-145 | | Статус: | не действует | | Название рус.: | Альбом 1. Архитектурно-строительная часть при открытом способе производства работ | | Дата добавления в базу: | 01.09.2013 | | Дата актуализации: | 01.01.2021 | | Дата введения: | 15.05.1973 | | Дата окончания срока действия: | 01.02.1984 | | Разработан: | Харьковский Водоканалпроект
| | Утверждён: | 23.04.1973 СоюзводоканалНИИпроект (SoyuzvodokanalNIIproject 95)
|
                                    
|