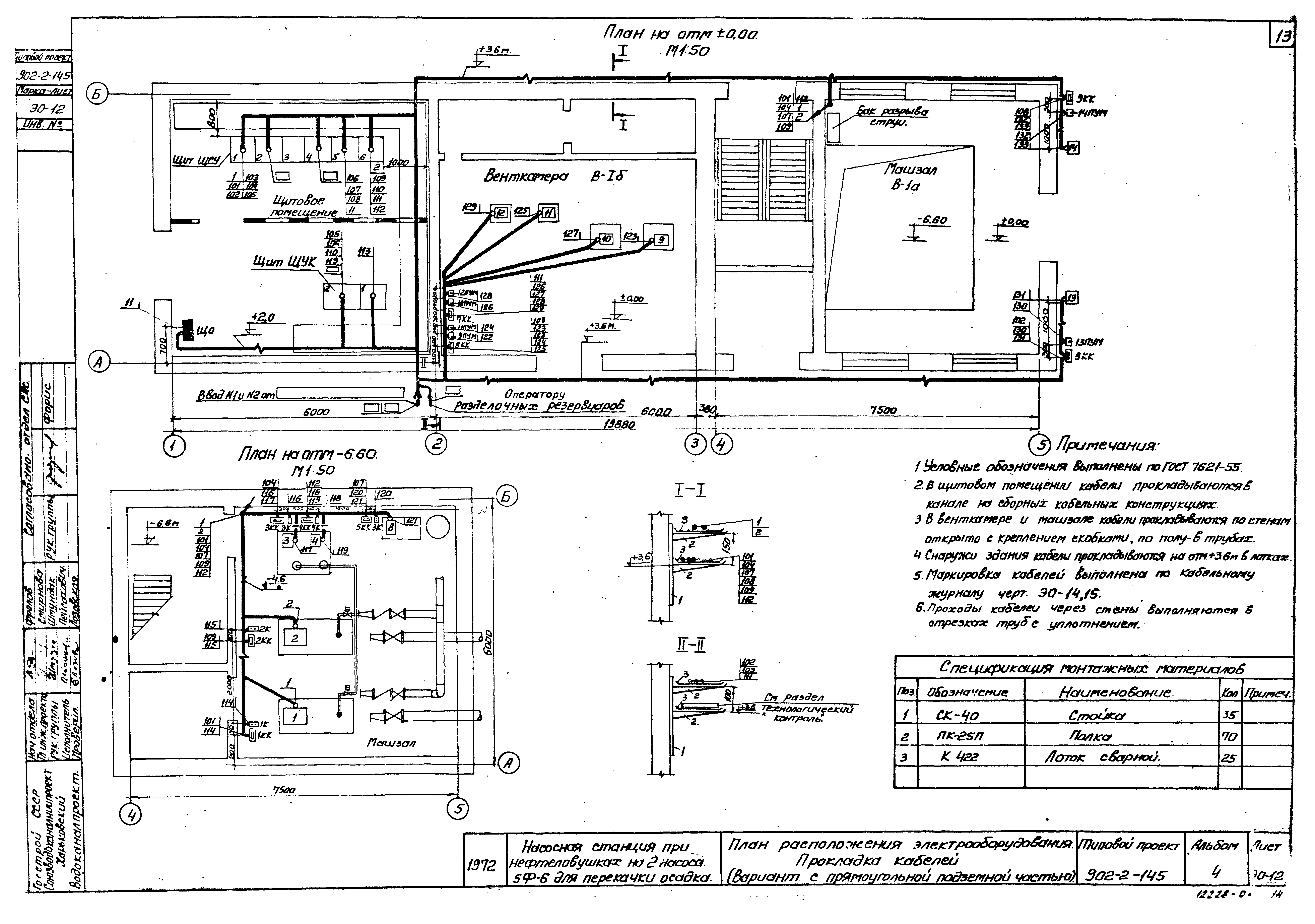
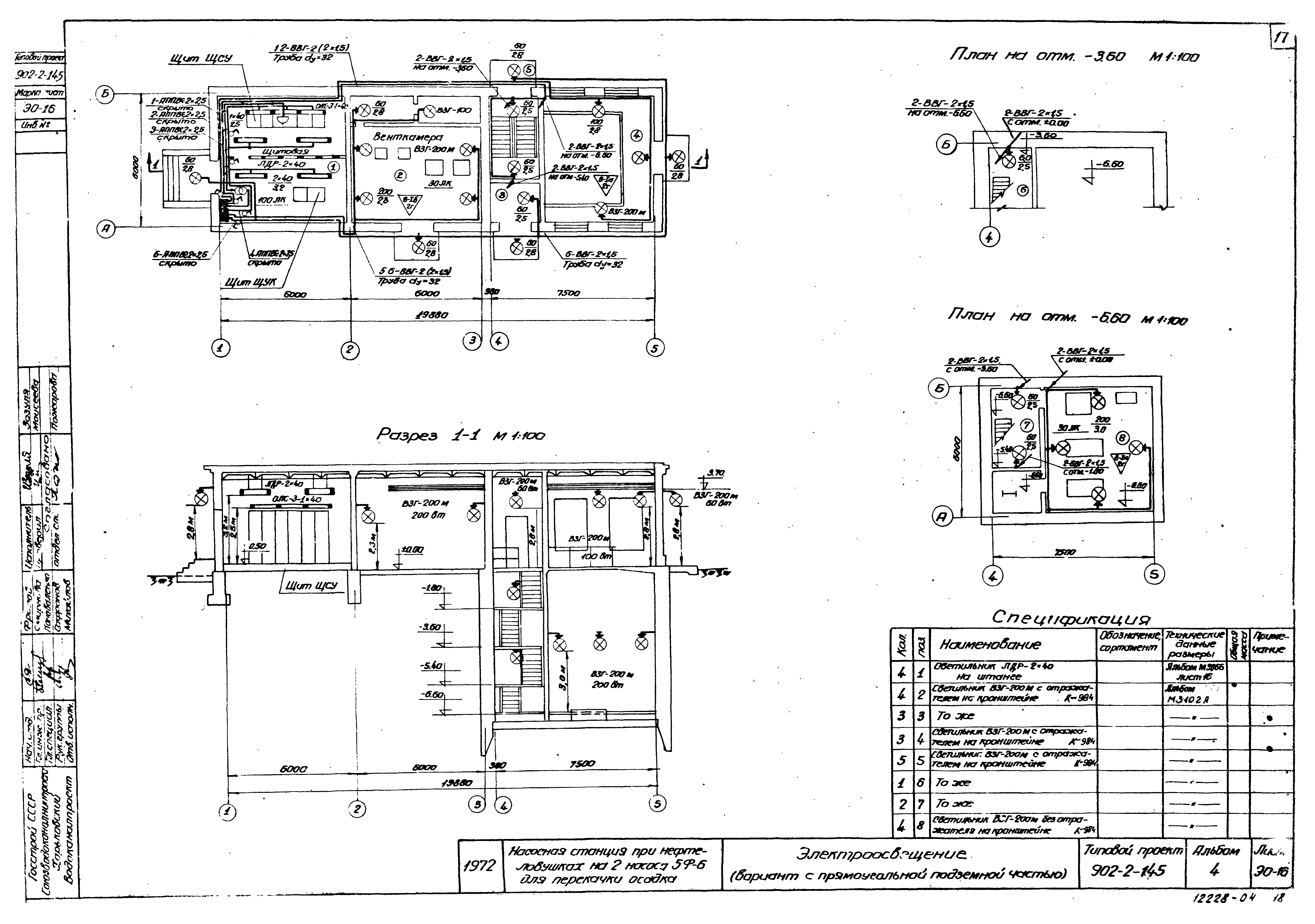
Скачать Типовой проект 902-2-145 Альбом 4. Электрооборудование, автоматика и технологический контроль (чертежи монтажной зоны)Дата актуализации: 01.01.2021 Типовой проект 902-2-145
Альбом 4. Электрооборудование, автоматика и технологический контроль (чертежи монтажной зоны)| Обозначение: | Типовой проект 902-2-145 | | Обозначение англ: | 902-2-145 | | Статус: | не действует | | Название рус.: | Альбом 4. Электрооборудование, автоматика и технологический контроль (чертежи монтажной зоны) | | Дата добавления в базу: | 01.09.2013 | | Дата актуализации: | 01.01.2021 | | Дата введения: | 15.05.1973 | | Дата окончания срока действия: | 01.02.1984 | | Разработан: | Харьковский Водоканалпроект
| | Утверждён: | 23.04.1973 СоюзводоканалНИИпроект (SoyuzvodokanalNIIproject 95)
|
                           
|