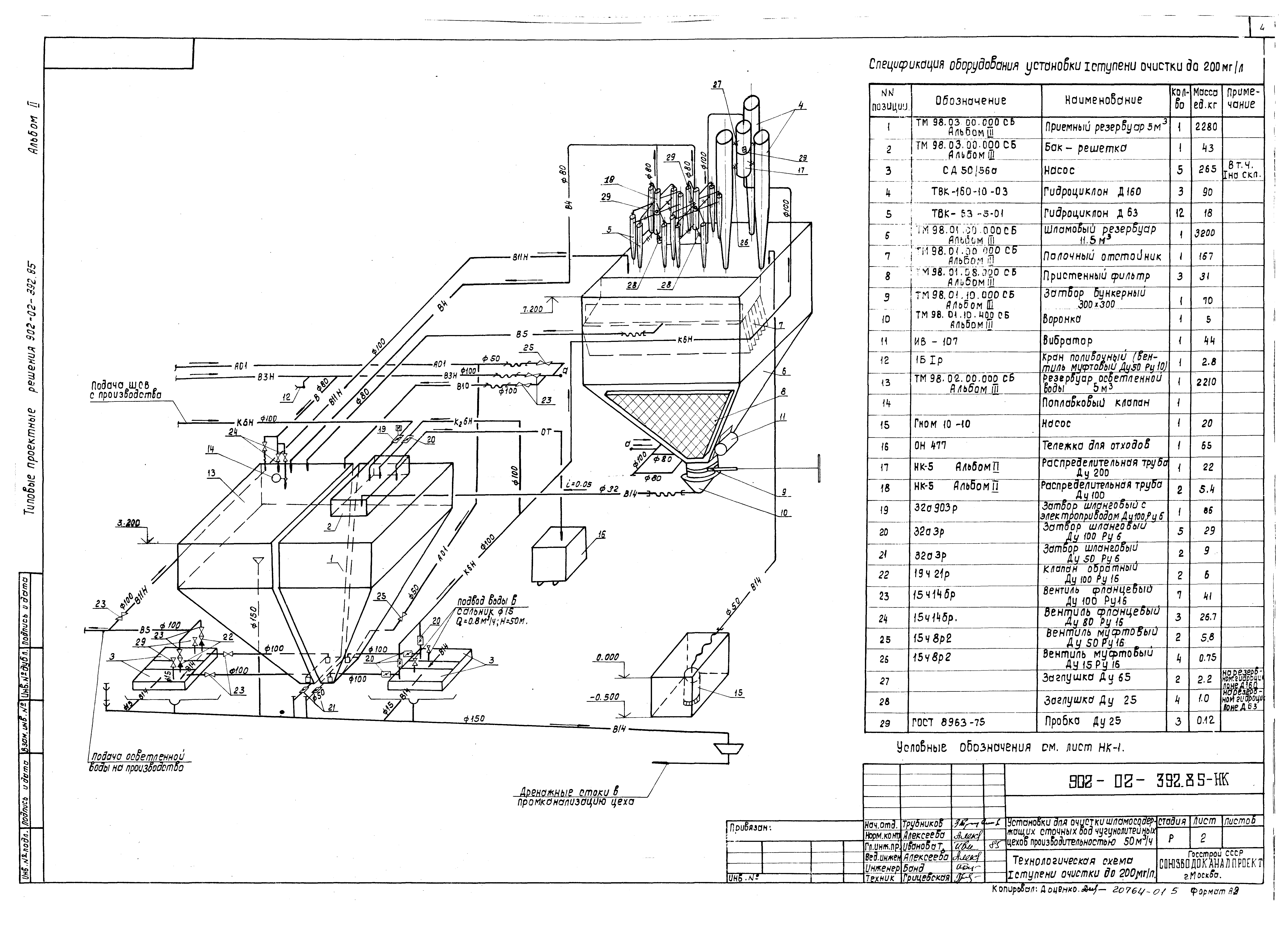
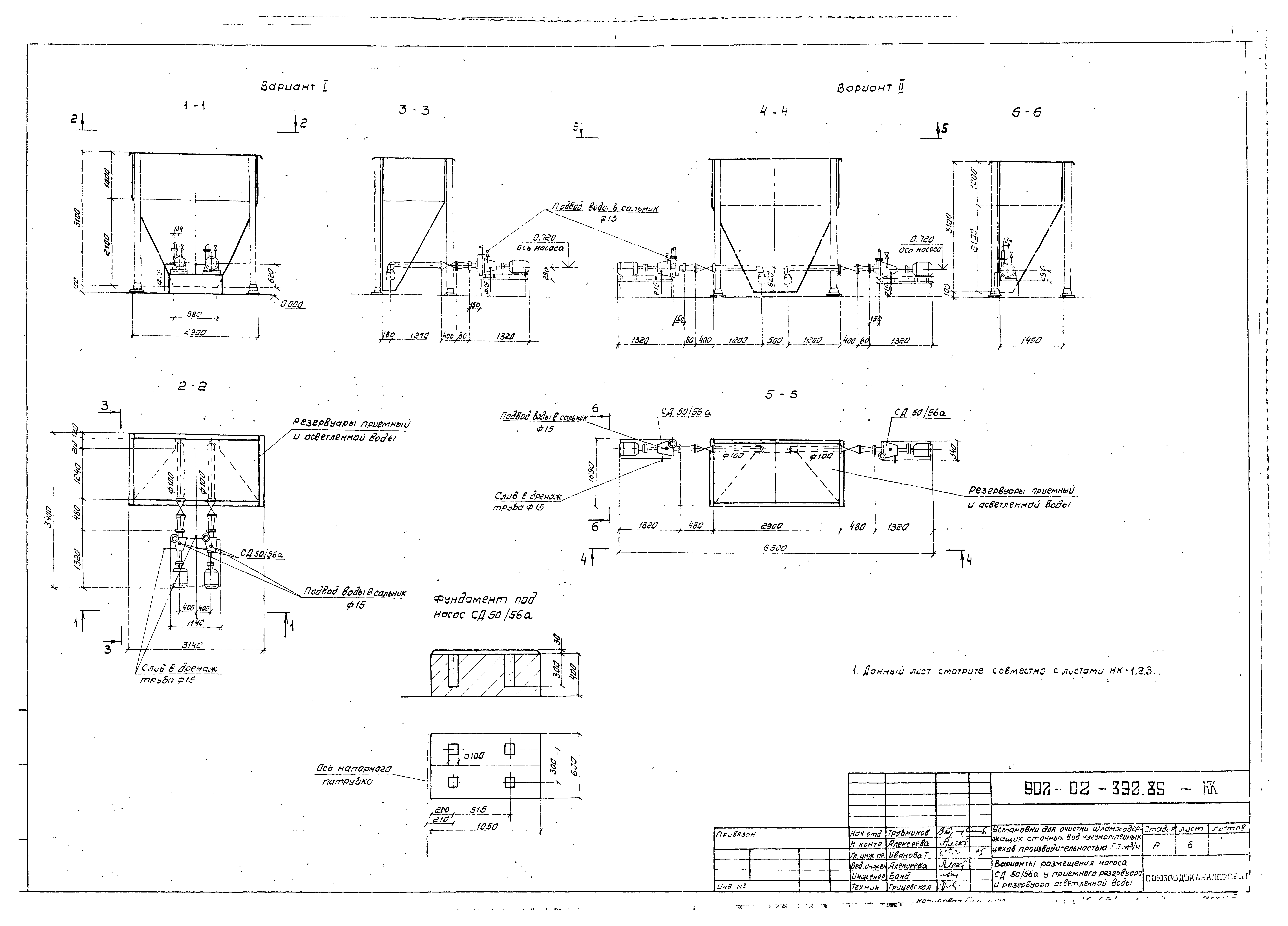
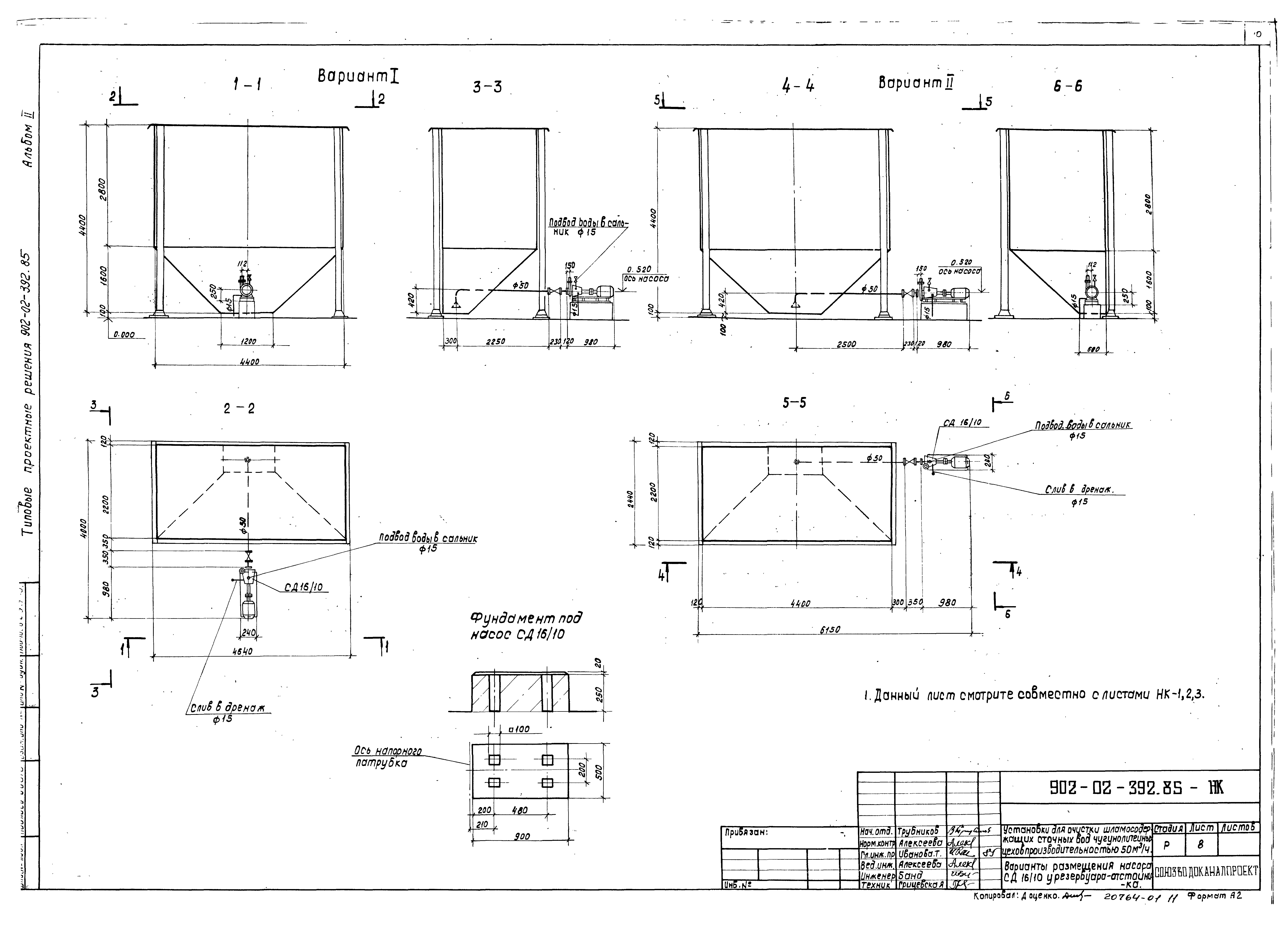
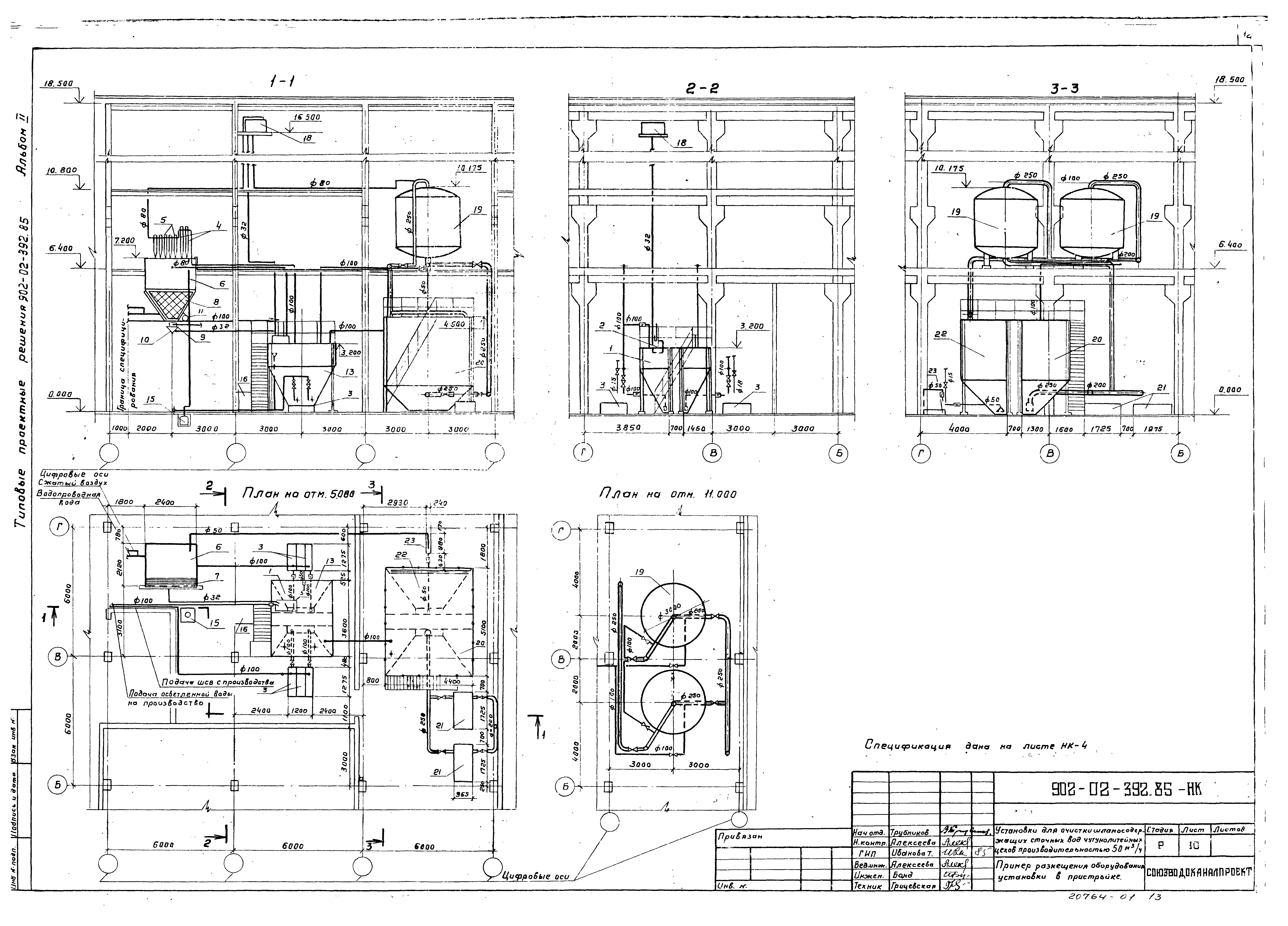
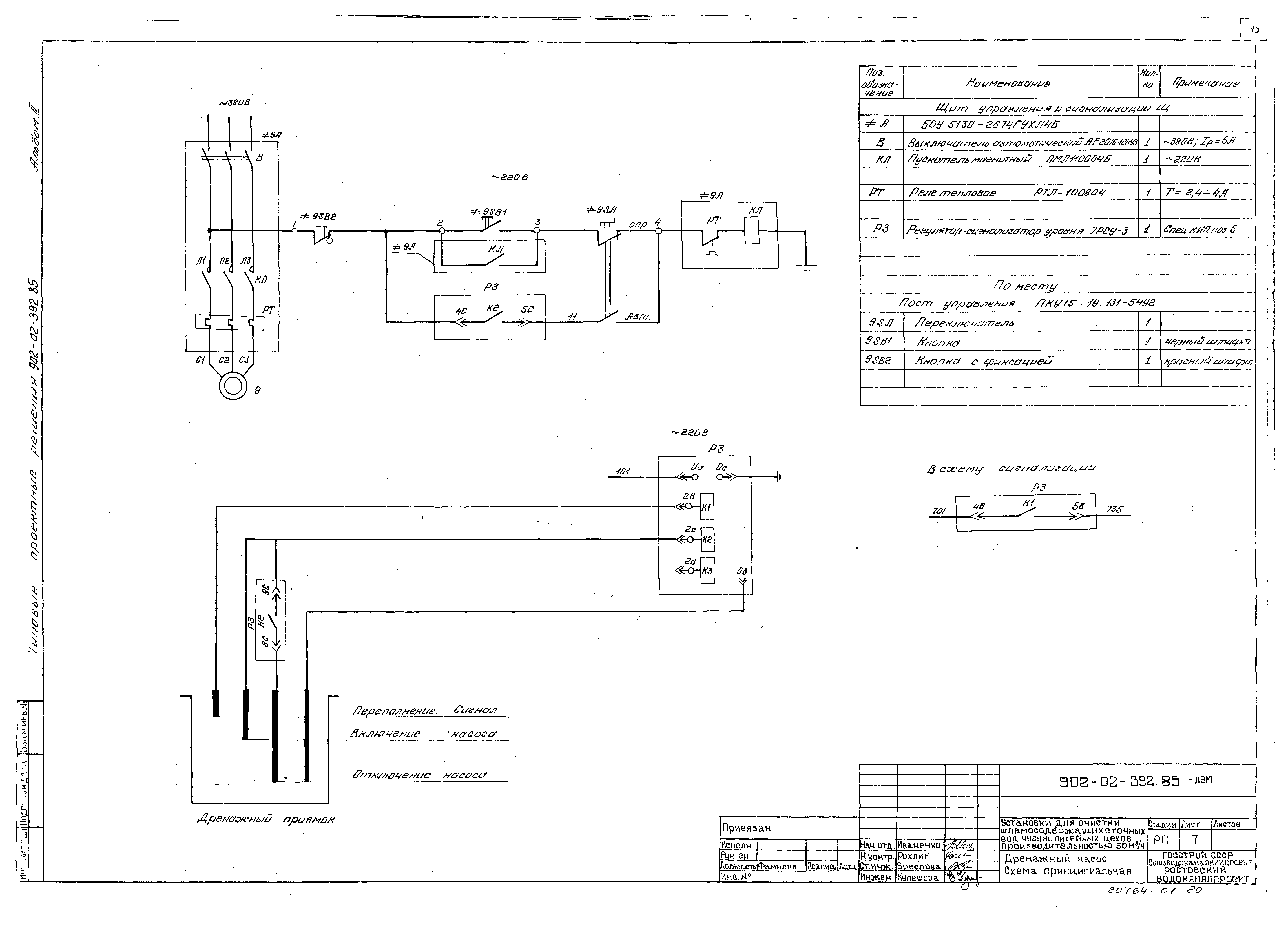
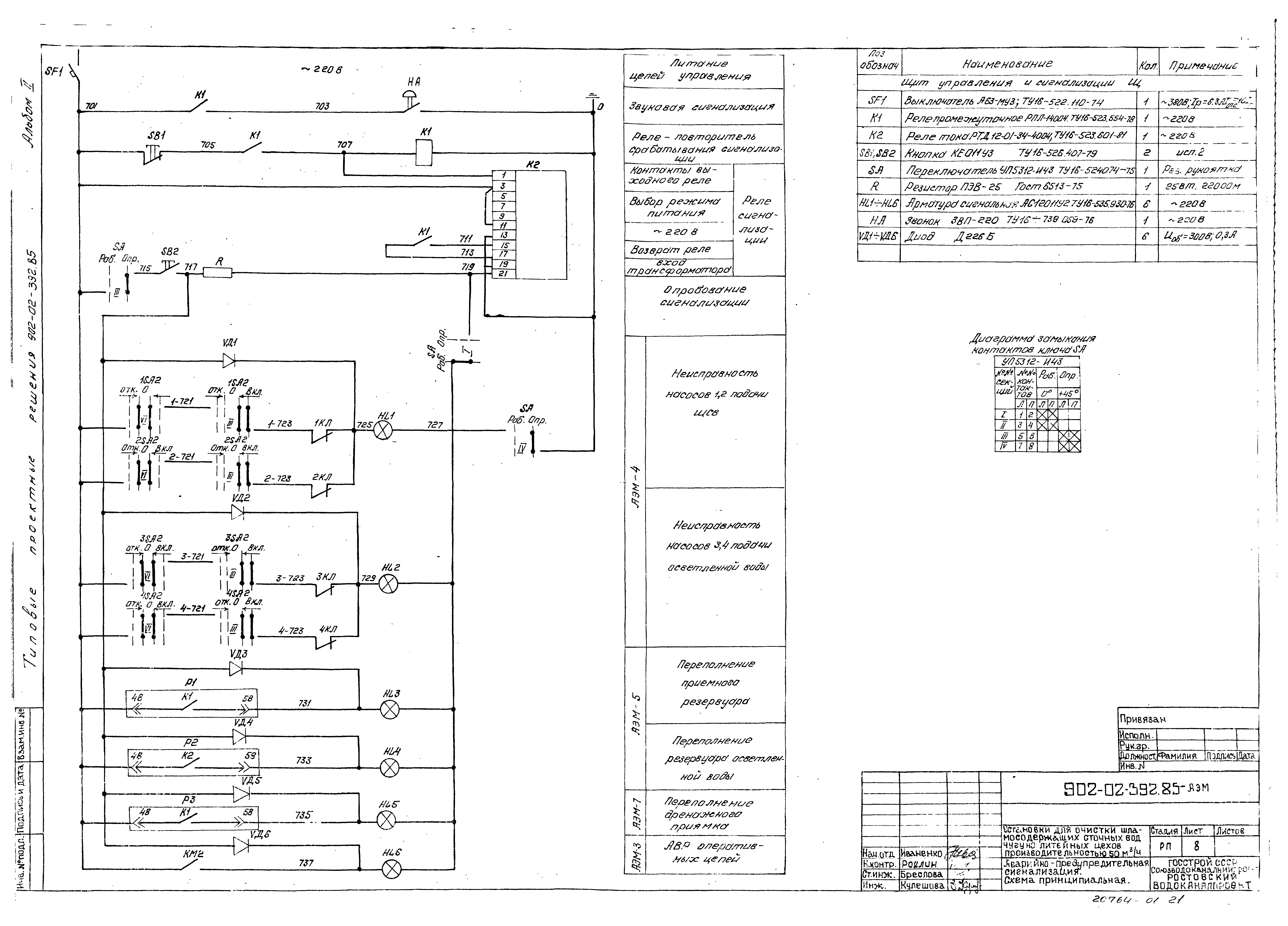
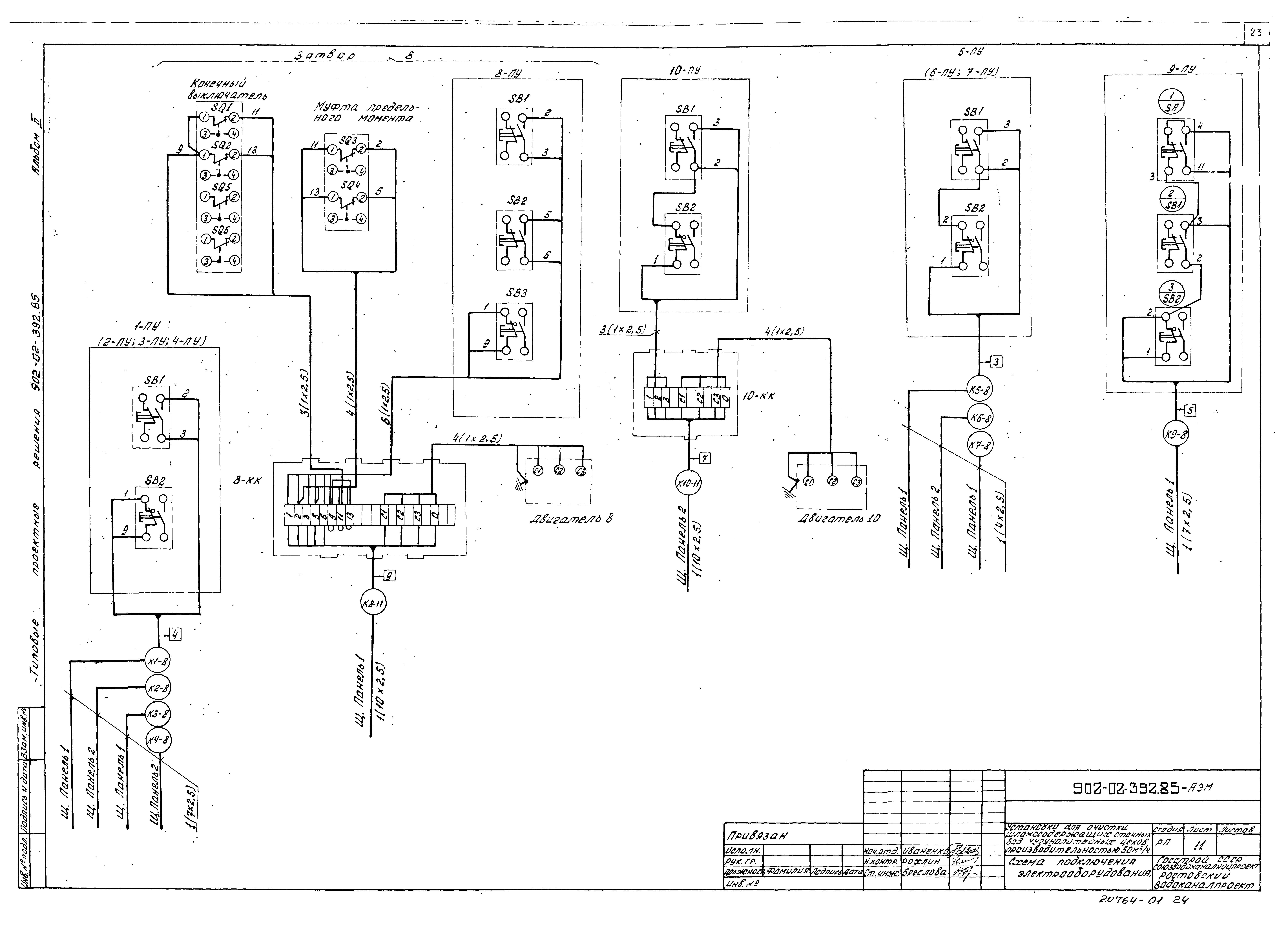
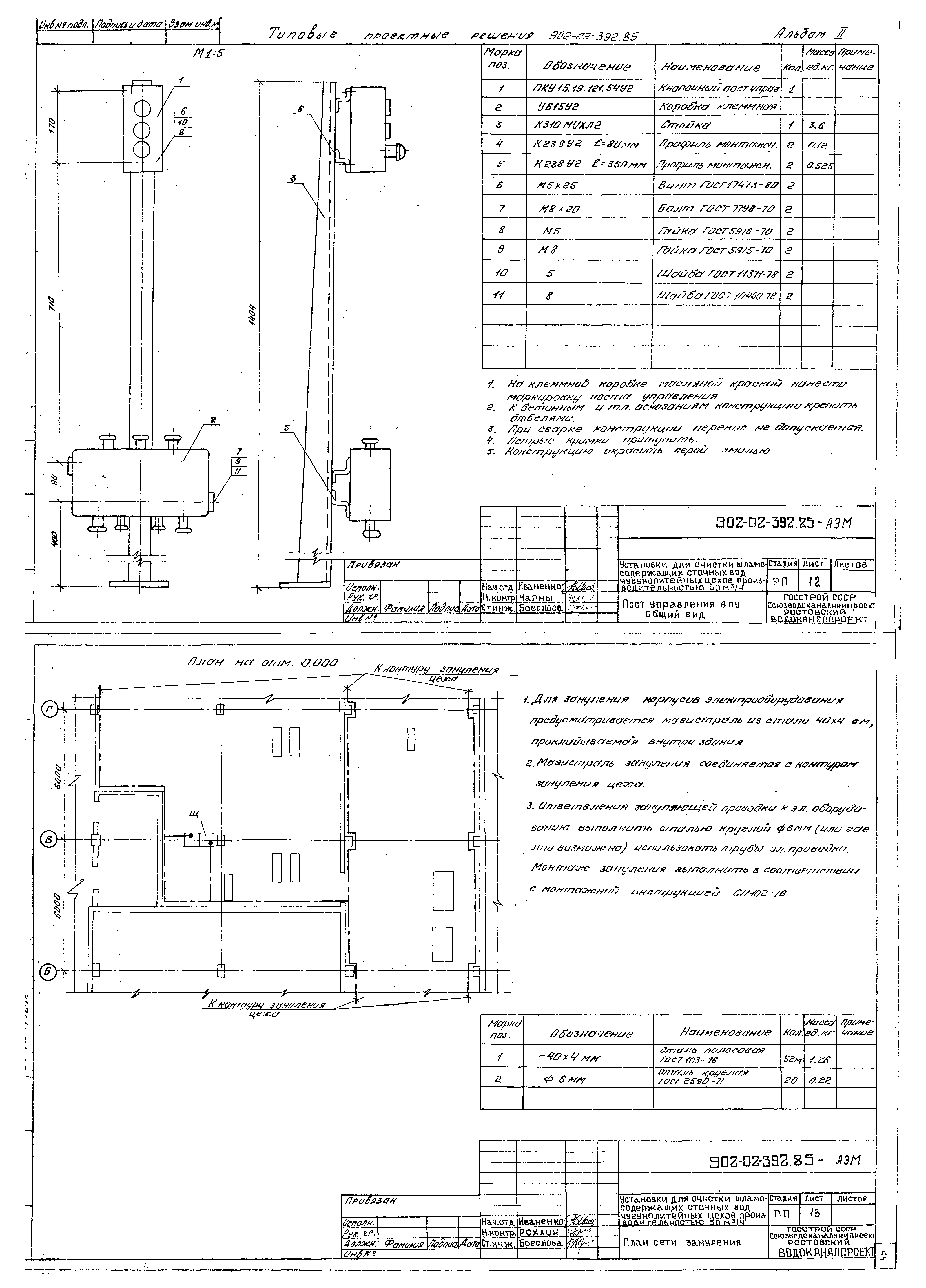
Скачать Типовые проектные решения 902-02-392.85 Альбом II. Технологические и электротехнические решения. Ведомости потребности в материалах. Задание заводу-изготовителю на электротехнические щитыДата актуализации: 01.01.2021
|
| Обозначение: | Типовые проектные решения 902-02-392.85 |
| Обозначение англ: | 902-02-392.85 |
| Статус: | заменен |
| Название рус.: | Альбом II. Технологические и электротехнические решения. Ведомости потребности в материалах. Задание заводу-изготовителю на электротехнические щиты |
| Дата добавления в базу: | 01.09.2013 |
| Дата актуализации: | 01.01.2021 |
| Дата окончания срока действия: | 26.04.1988 |
| Разработан: | Союзводоканалниипроект |
| Утверждён: | 22.07.1985 Главстройпроект Госстроя СССР (АЧ-27) |
| Чем заменён: |

































