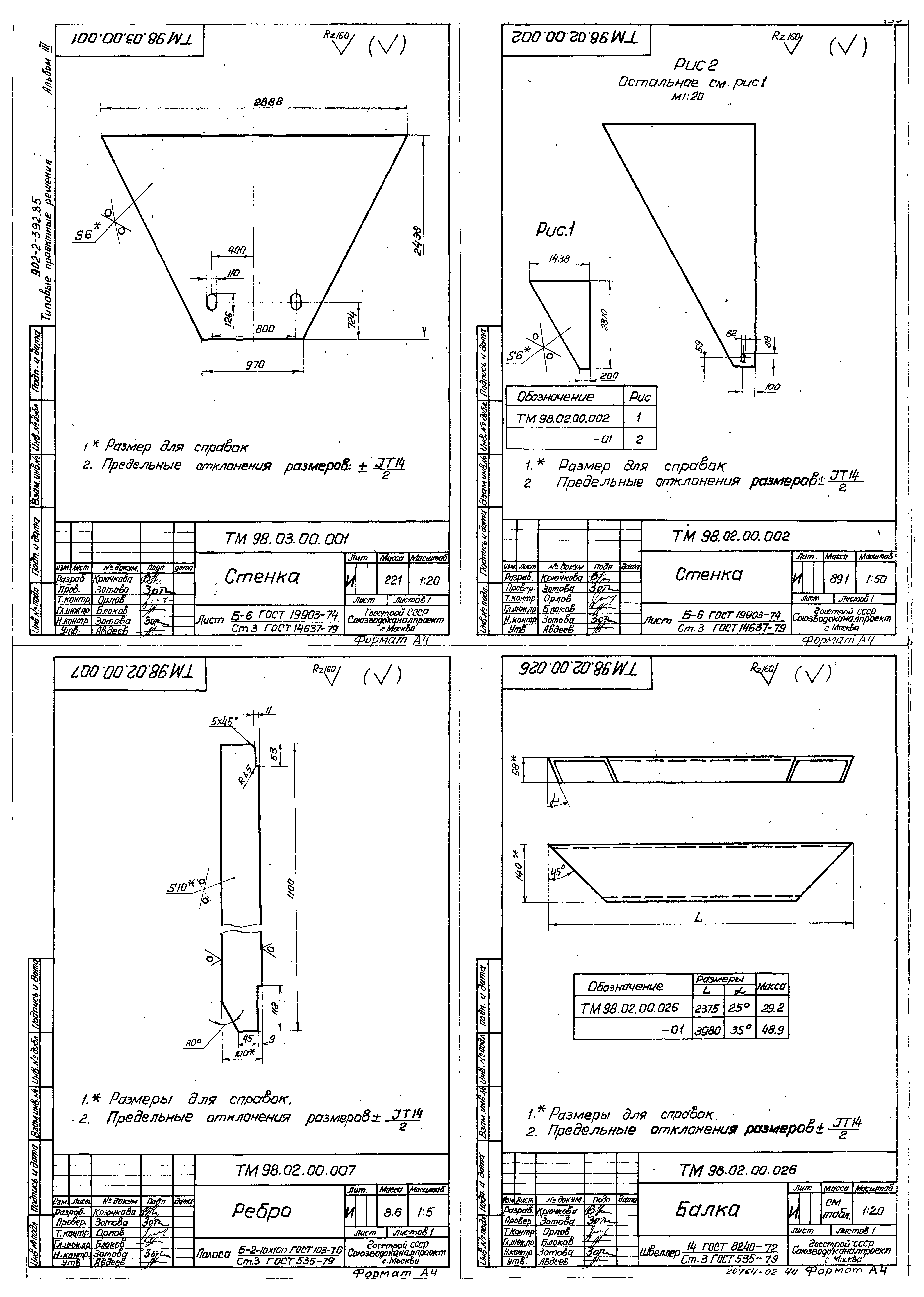
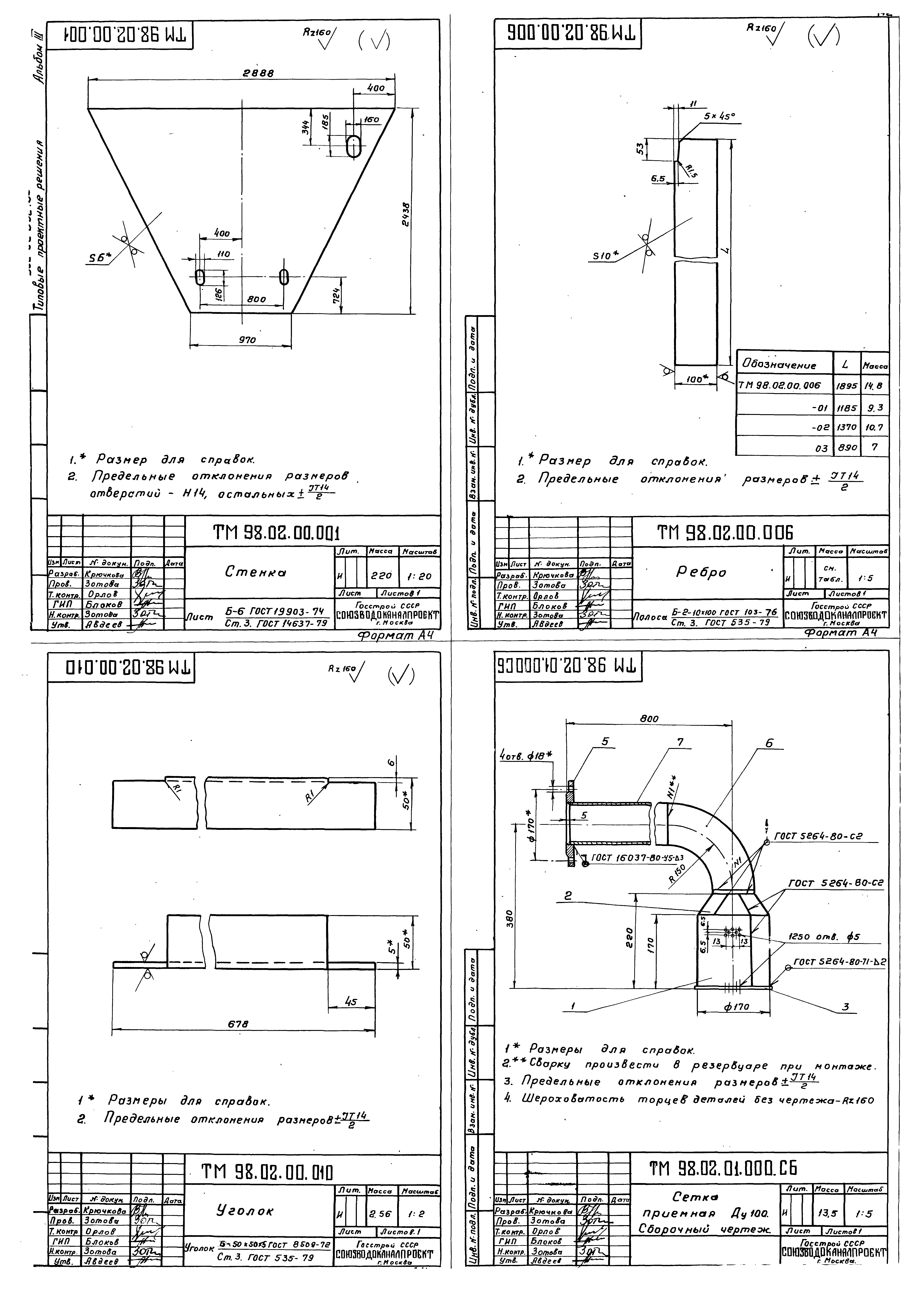
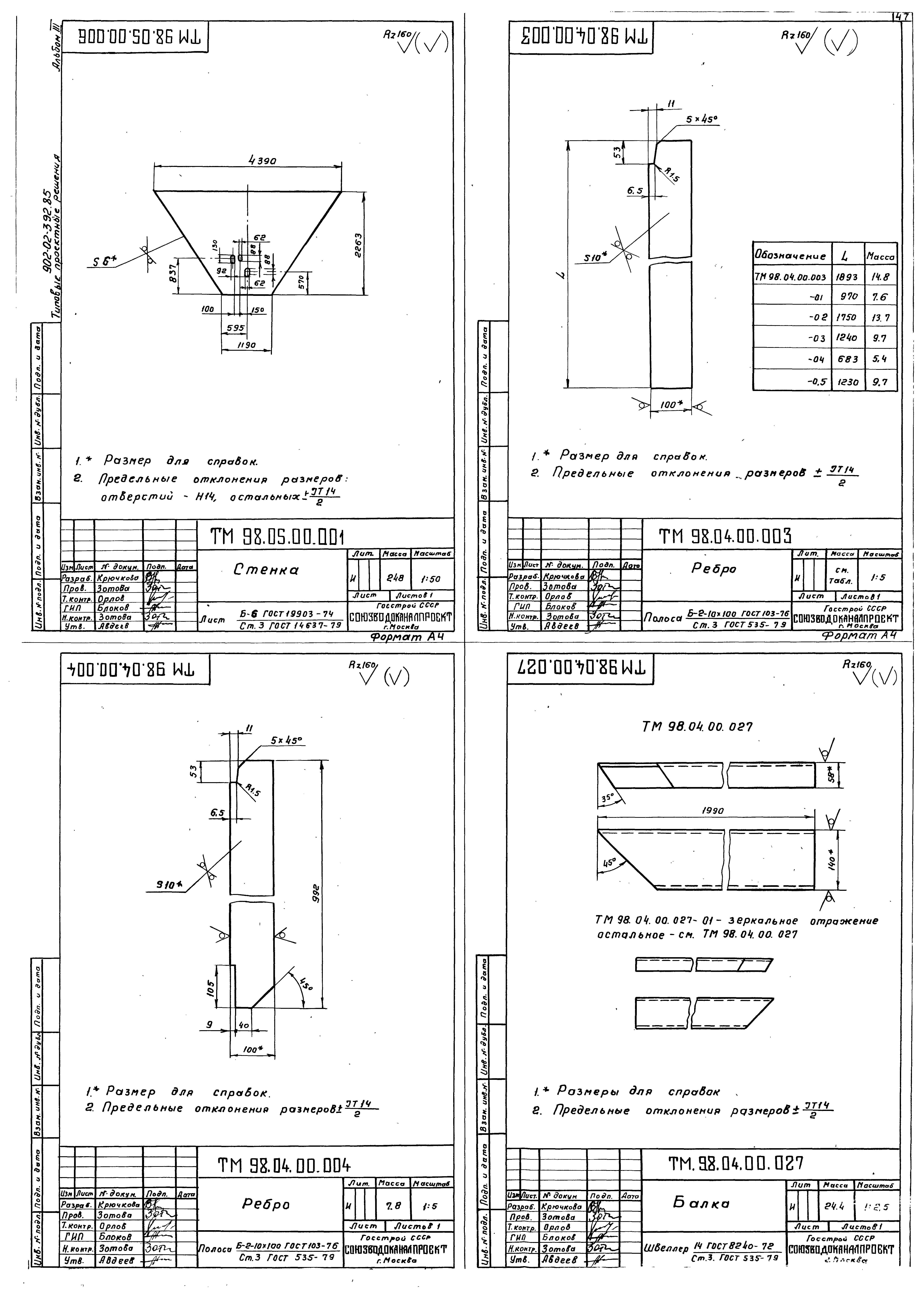
Скачать Типовые проектные решения 902-02-392.85 Альбом III. Нестандартизированное оборудованиеДата актуализации: 01.01.2021
|
| Обозначение: | Типовые проектные решения 902-02-392.85 |
| Обозначение англ: | 902-02-392.85 |
| Статус: | заменен |
| Название рус.: | Альбом III. Нестандартизированное оборудование |
| Дата добавления в базу: | 01.09.2013 |
| Дата актуализации: | 01.01.2021 |
| Дата окончания срока действия: | 26.04.1988 |
| Разработан: | Союзводоканалниипроект |
| Утверждён: | 22.07.1985 Главстройпроект Госстроя СССР (АЧ-27) |
| Чем заменён: |



















































