Скачать Типовой проект КС-160.4.1 Контактная подвеска КС-160-3 постоянного тока. Консоли неизолированные наклонные. Фиксаторы. Схемы установки, типоразмеры и таблицы примененияДата актуализации: 01.01.2021
|
| Обозначение: | Типовой проект КС-160.4.1 |
| Обозначение англ: | КС-160.4.1 |
| Статус: | не определен законодательством |
| Название рус.: | Контактная подвеска КС-160-3 постоянного тока. Консоли неизолированные наклонные. Фиксаторы. Схемы установки, типоразмеры и таблицы применения |
| Дата добавления в базу: | 01.09.2013 |
| Дата актуализации: | 01.01.2021 |
| Дата введения: | 05.08.2002 |
| Дата окончания срока действия: | 30.06.2003 |
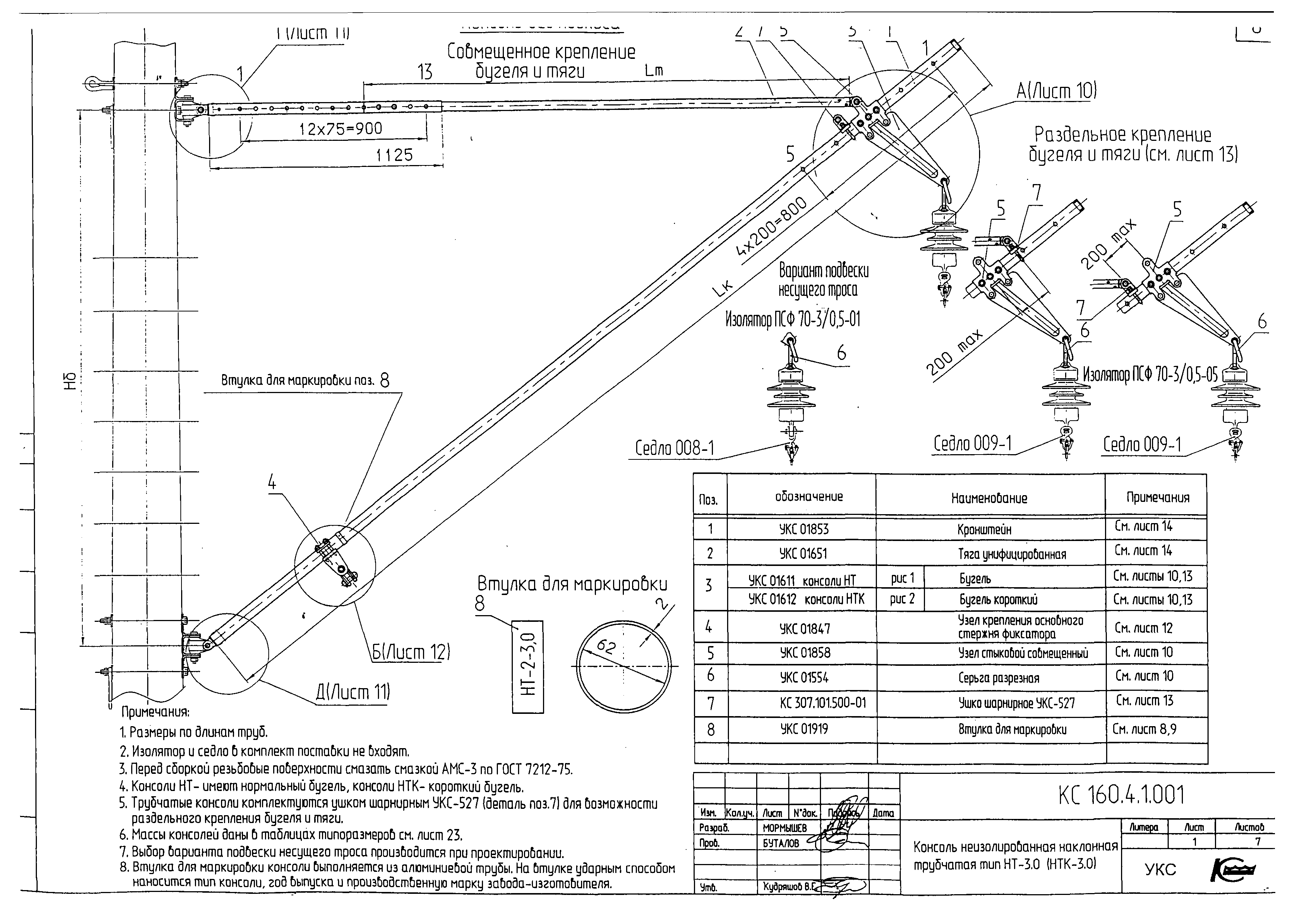
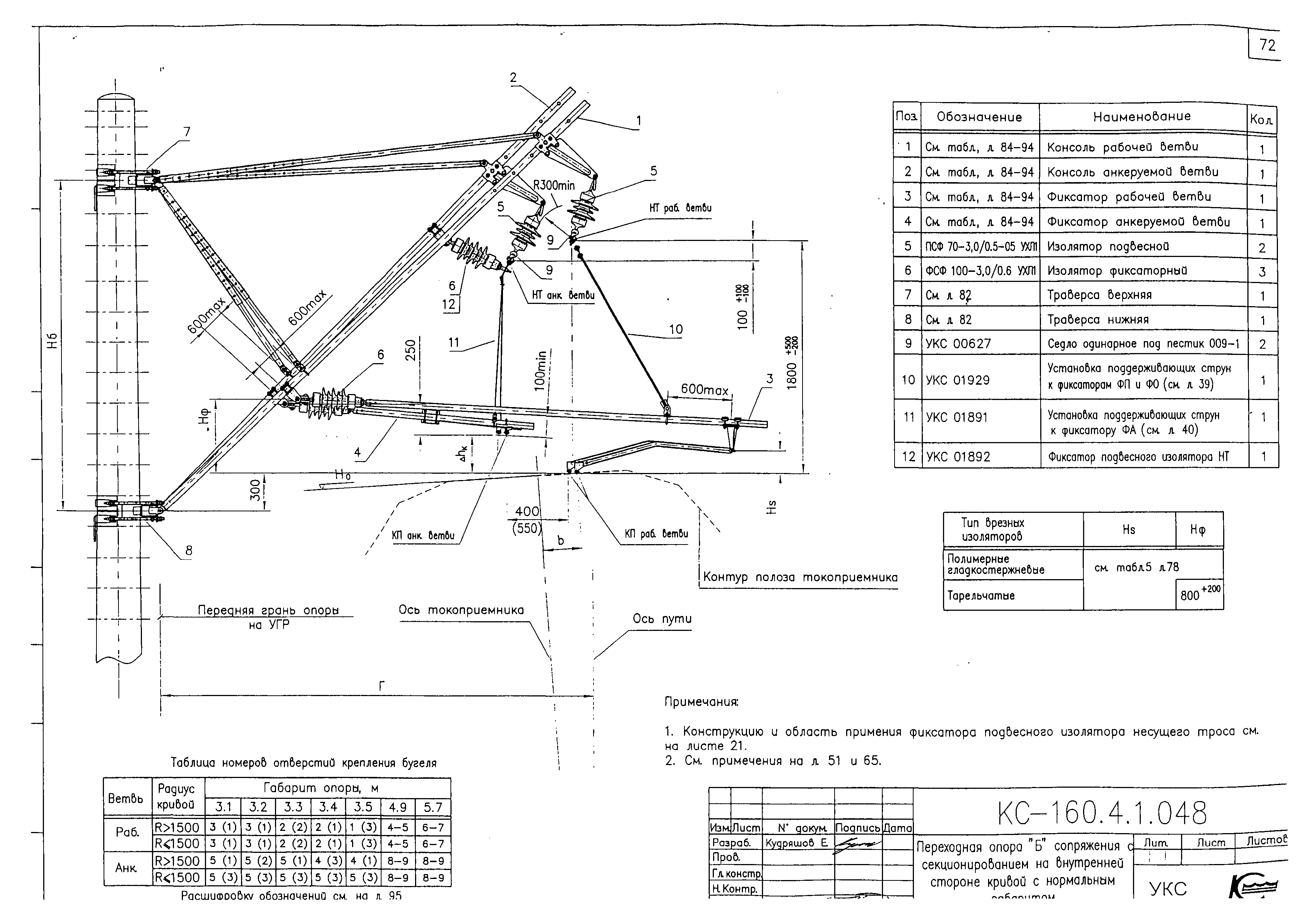
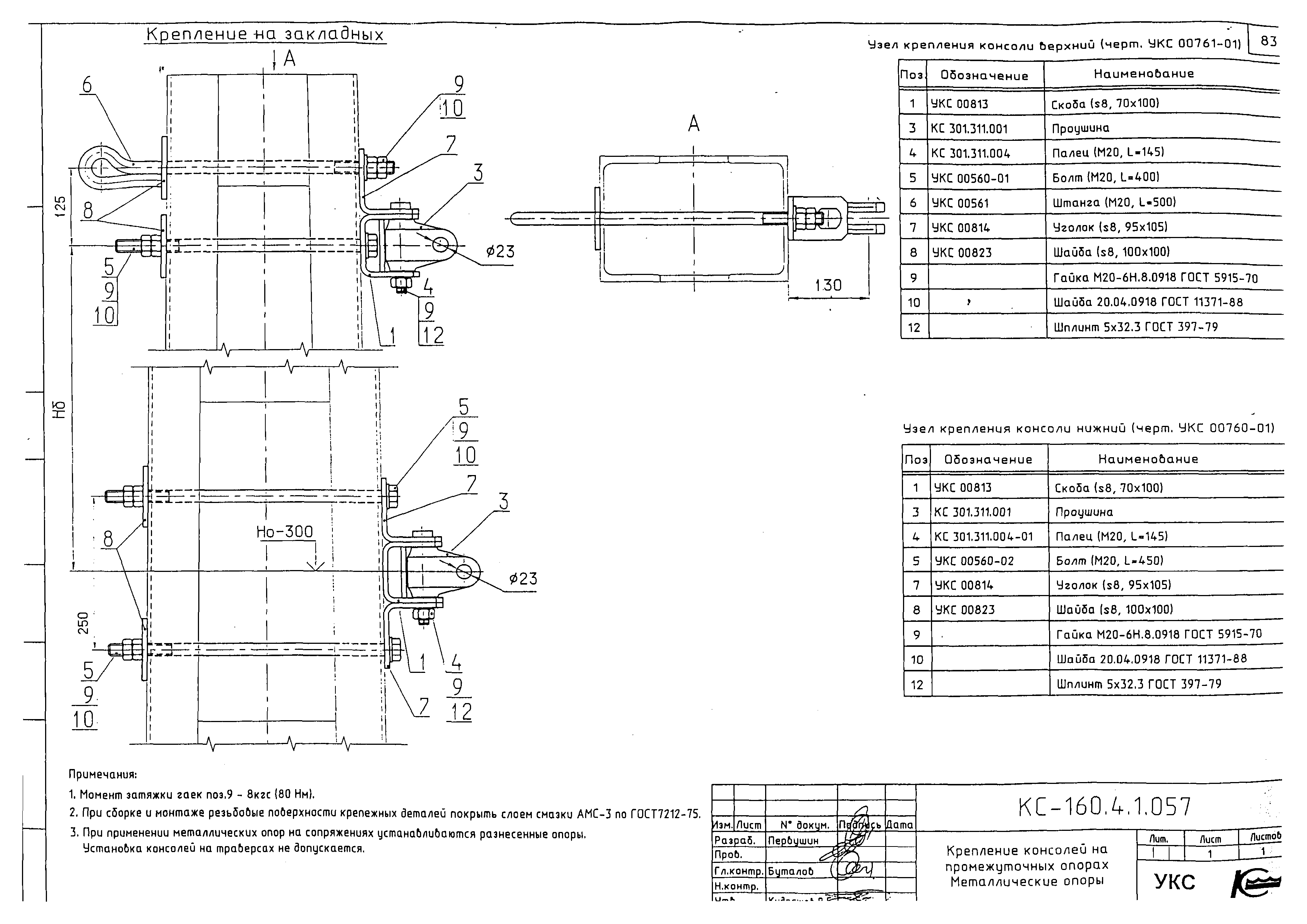
| Оглавление: | КС-160.4.1.ПЗ Пояснительная записка 1. Конструктивные решения КС-160.4.1.001 Консоль неизолированная наклонная трубчатая, тип НТ-3.0 (НТК-3.0) КС-160.4.1.002 Консоль неизолированная наклонная швеллерная, тип Н (НК) КС-160.4.1.003 Фиксатор подвесного изолятора несущего троса КС-160.4.1.004 Таблица типоразмеров консолей. Обозначение консолей. КС-160.4.1.005 Фиксатор сочлененный прямой, тип ФП-3.0 Обозначение фиксаторов. КС-160.4.1.006 Фиксатор сочлененный обратный, тип ФО-3.0 КС-160.4.1.007 Фиксатор сочлененный прямой с ветровой струной, тип ФП-в-3.0 КС-160.4.1.008 Фиксатор сочлененный обратный с ветровой струной, тип ФО-в-3.0 КС-160.4.1.009 Фиксатор Г-обраэный сочлененный прямой, тип ФПГ-3.0 КС-160.4.1.010 Фиксатор Г-образный сочлененный обратный, тип ФОГ-3.0 КС-160.4.1.011 Фиксатор ромбовидной подвески тип ФР-3.0 КС-160.4.1.012 Фиксатор гибкий, тип ФГ-3.0 КС-160.4.1.013 Фиксатор контактных проводов анкеруемой ветви, тип ФА-3.0 КС-160.4.1.014 Фиксатор троса анкеруемой ветви, тип ФТ-3.0 КС-160.4.1.015 Узлы, арматура фиксаторов КС-160.4.1.016 Стойки дополнительного фиксатора КС-160.4.1.017 Фиксатор дополнительный 109-2. Фиксатор дополнительный 109-3. Фиксатор дополнительный 109-4. КС-160.4.1.018 Струна ветровая КС-160.4.1.019 Седло одинарное под серьгу 008-1. Седло одинарное под пестик 009-1. Седло двойное под серьгу 011-1. Седло двойное под пестик 011-1. Вкладыш медный УКС-547 КС-160.4.1.020 Поддерживающие струны КС-160.4.1.021 Жесткие распорки КС-160.4.1.022 Страхующая струна КС-160.4.1.023 Узлы изоляции струн и жестких распорок КС-160.4.1.024 Зажим соединительный контактных проводов ромбовидной подвески 2. Допустимые расчетные нагрузки КС-160.4.1.025 Допустимые расчетные нагрузки на консоли КС-160.4.1.026 Допустимые расчетные нагрузки на фиксаторы 3. Схемы установки консолей и фиксаторов КС-160.4.1.027 Промежуточная опора на прямой с нормальным габаритом. Зигзаг к опоре. КС-160.4.1.028 Промежуточная опора на прямой с нормальным габаритом. Зигзаг от опоры. КС-160.4.1.029 Опора средней анкеровки КС-160.4.1.030 Промежуточная опора на внешней стороне кривой с нормальным габаритом КС-160.4.1.031 Промежуточная опора на внутренней стороне кривой с нормальным габаритом КС-160.4.1.032 Переходная опора "А" сопряжения без секционирования на прямой с нормальным габаритом КС-160.4.1.033 Переходная опора "Б" сопряжения без секционирования на прямой с нормальным габаритом КС-160.4.1.034 Переходная опора "В" 4-х пролетного сопряжения без секционирования на прямой с нормальным габаритом КС-160.4.1.035 Переходная опора "А" сопряжения без секционирования на внешней стороне кривой с нормальным габаритом КС-160.4.1.036 Переходная опора "Б" сопряжения без секционирования на внешней стороне кривой с нормальным габаритом. КС-160.4.1.037 Переходная опора "В" 4-х пролетного сопряжения без секционирования на внешней стороне кривой с нормальным габаритом. КС-160.4.1.038 Переходная опора "А" сопряжения без секционирования на внутренней стороне кривой с нормальным габаритом. КС-160.4.1.039 Переходная опора "Б" сопряжения без секционирования на внутренней стороне кривой с нормальным габаритом. КС-160.4.1.040 Переходная опора "В" 4-х пролетного сопряжения без секционирования на внутренней стороне кривой с нормальным габаритом. КС-160.4.1.041 Переходная опора "А" сопряжения с секционированием на прямой с нормальным габаритом. КС-160.4.1.042 Переходная опора "Б" сопряжения с секционированием на прямой с нормальным габаритом. КС-160.4.1.043 Переходная опора "В" 4-х пролетного сопряжения с секционированием на прямой с нормальным габаритом. КС-160.4.1.044 Переходная опора "А" сопряжения с секционированием на внешней стороне кривой с нормальным габаритом. КС-160.4.1.045 Переходная опора "Б" сопряжения с секционированием на внешней стороне кривой с нормальным габаритом КС-160.4.1.046 Переходная опора "В" 4-х пролетного сопряжения с секционированием на внешней стороне кривой с нормальным габаритом КС-160.4.1.047 Переходная опора "А" сопряжения с секционированием на внутренней стороне кривой с нормальным габаритом. КС-160.4.1.048 Переходная опора "Б" сопряжения с секционированием на внутренней стороне кривой с нормальным габаритом. КС-160.4.1.049 Переходная опора "В" 4-х пролетного сопряжения с секционированием на внутренней стороне кривой с нормальным габаритом. КС-160.4.1.050 Промежуточная опора на прямой с увеличенным габаритом. Зигзаг к опоре. КС-160.4.1.051 Промежуточная опора на прямой с увеличенным габаритом. Зигзаг от опоры. КС-160.4.1.052 Опора на участке ромбовидной подвески КС-160.4.1.053 Основные установочные параметры при монтаже КС-160.4.1.054 Варианты установки консолей на железобетонных опорах 4. Узлы крепления консолей на железобетонных опорах КС-160.4.1.055 Крепление консолей на промежуточных опорах. Железобетонные опоры. КС-160.4.1.056 Крепление консолей на переходных опорах сопряжений. Железобетонные опоры. 5. Узлы крепления консолей на металлических опорах КС-160.4.1.057 Крепление консолей на промежуточных .опорах. Металлические опоры. 6. Таблицы применения консолей и фиксаторов КС-160.4.1.058 Таблица применения консолей для типовых габаритов опор КС-160.4.1.059 Области применения основных конструктивных решений для консолей КС-160.4.1.060 Таблица применения фиксаторов для типовых габаритов опор КС-160.4.1.061 Области применения основных конструктивных решений для фиксаторов КС-160.4.1.062 Таблица применения консолей на прямых участках пути для всего диапазона габаритов опор , КС-160.4.1.063 Определение типов консолей в кривых для всего диапазона габаритов опор КС-160.4.1.064 Таблица применения фиксаторов на прямых участках пути для всего диапазона габаритов опор КС-160.4.1.065 Определение типов фиксаторов в кривых для всего диапазона габаритов опор КС-160.4.1.066 Нумерация регулировочных отверстий в кронштейнах и тягах консолей КС-160.4.1.067 Таблица номеров отверстий для установки регулировочных элементов консолей на прямых участках пути для всего диапазона габаритов опор 7. Приложение КС-160.4.1.068 Заказная спецификация поддерживающих конструкций контактной подвески КС-160-3 с наклонными неизолированными консолями на перегон ________ по анкерным участкам |
| Разработан: | ЗАО УКС |
| Утверждён: | 05.08.2002 МПС РФ (Russian Federation Ministry of Railroads ) |
| Принят: | ОАО Трансэлектромонтаж |

































































































