Скачать Типовой проект КС-160.4.0-09 Узлы контактной подвески КС-160-3 постоянного тока. Схемы подвески, сопряжений, узлы контактной сети неизолированными наклонными консолямиДата актуализации: 01.01.2021
|
| Обозначение: | Типовой проект КС-160.4.0-09 |
| Обозначение англ: | КС-160.4.0-09 |
| Статус: | не определен законодательством |
| Название рус.: | Узлы контактной подвески КС-160-3 постоянного тока. Схемы подвески, сопряжений, узлы контактной сети неизолированными наклонными консолями |
| Дата добавления в базу: | 01.09.2013 |
| Дата актуализации: | 01.01.2021 |
| Дата введения: | 31.07.2009 |
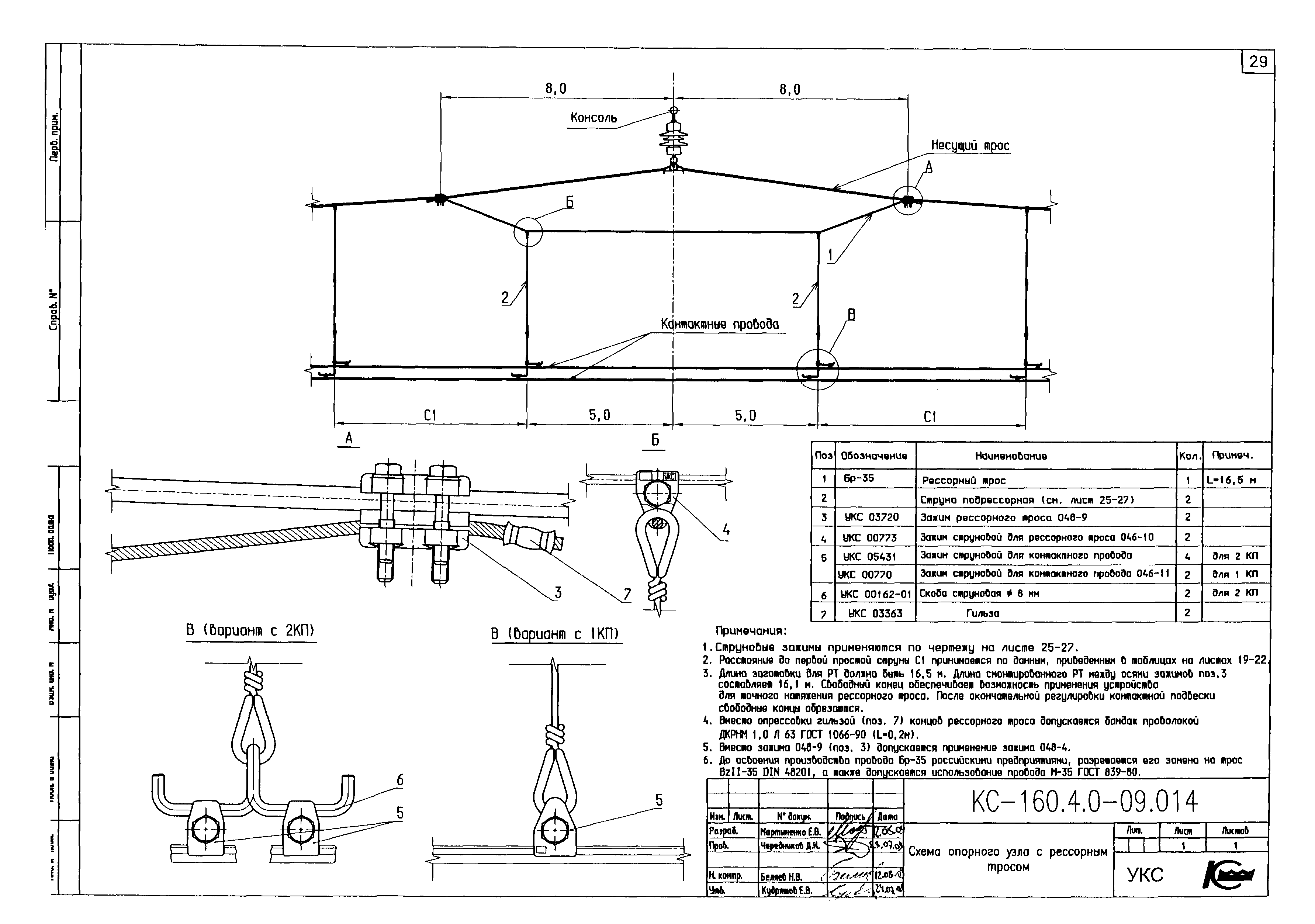
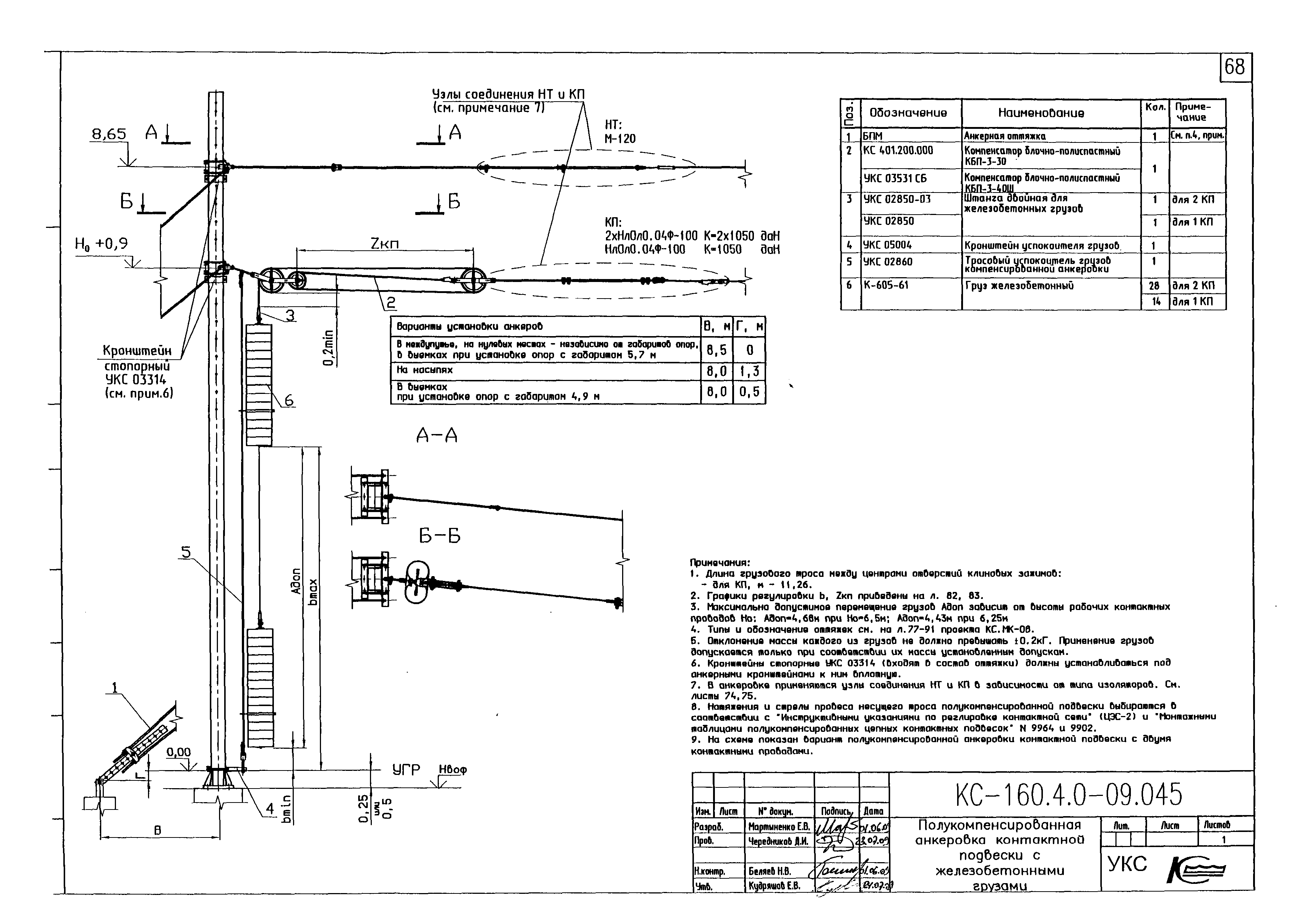
| Оглавление: | КС-160.4.0-09.ПЗ Пояснительная записка КС-160.4.0-09.001 Основные технические характеристики компенсированной рессорной контактной подвески постоянного тока 3 кВ с неизолированными наклонными консолями КС-160.4.0-09.002 Статические и физические параметры контактной подвески КС-160.4.0-09.003 Условные схемы анкерных участков контактной подвески на перегоне КС-160.4.0-09.004 Условные схемы стыкования полукомпенсированной и компенсированной контактных подвесок КС-160.4.0-09.005 Таблица оптимальных зигзагов контактных проводов для промежуточных опор КС-160.4.0-09.006 Таблица допустимых зигзагов контактных проводов для промежуточных опор КС-160.4.0-09.007 Схемы расположения струн и вертикальная регулировка контактных подвесок в промежуточных пролетах КС-160.4.0-09.008 Схемы расположения струн и вертикальная регулировка контактных подвесок в пролетах со средней анкеровкой контактных проводов КС-160.4.0-09.009 Стрелы провеса контактных проводов компенсированной контактной подвески КС-160.4.0-09.010 Струна полимерная КС-160.4.0-09.011 Струна звеньевая из сталемедной проволоки КС-160.4.0-09.012 Струна токопроводящая регулируемая КС-160.4.0-09.013 Струны приемные (поддерживающие) специальные КС-160.4.0-09.014 Схема опорного узла с рессорным тросом КС-160.4.0-09.015 Средняя анкеровка компенсированной контактной подвески КС-160.4.0-09.016 Монтажные кривые троса средней анкеровки несущего троса КС-160.4.0-09.017 Таблицы стрел провеса троса средней анкеровки несущего троса КС-160.4.0-09.018 Поперечные электрические соединители (ПСП) КС-160.4.0-09.019 Продольные электрические соединители на сопряжениях анкерных участков без секционирования (ПРС) КС-160.4.0-09.020 Поперечные электрические соединители на сопряжениях анкерных участков с секционированием (ПСИ) КС-160.4.0-09.021 Узлы соединений проводов КС-160.4.0-09.022 Схемы трехпролетных сопряжений анкерных участков без секционирования КС-160.4.0-09.023 Схема пролета ℓa1 трехпролетных и четырехпролетных сопряжений анкерных участков без секционирования КС-160.4.0-09.024 Схема переходного пролета трехпролетных сопряжений анкерных участков без секционирования КС-160.4.0-09.025 Схема переходного пролета минимально допускаемой длины трехпролетных сопряжении анкерных участков без секционирования КС-160.4.0-09.026 Схема пролета ℓa2 трехпролетных и четырехпролетных сопряжений анкерных участков без секционирования КС-160.4.0-09.027 Схемы четырехпролетных сопряжений анкерных участков без секционирования КС-160.4.0-09.028 Схема переходных пролетов четырехпролетных сопряжений анкерных участков без секционирования КС-160.4.0-09.029 Схемы трехпролетных сопряжений анкерных участков с секционированием КС-160.4.0-09.030 Схема пролета ℓa1 трехпролетных и четырехпролетных сопряжений анкерных участков с секционированием КС-160.4.0-09.031 Схема переходного пролета трехпролетных сопряжений анкерных участков с секционированием КС-160.4.0-09.032 Схема пролета ℓa2 трехпролетных и четырехпролетных сопряжений анкерных участков с секционированием КС-160.4.0-09.033 Схемы четырехпролетных сопряжений анкерных участков с секционированием КС-160.4.0-09.034 Схема переходных пролетов четырехпролетных сопряжений анкерных участков с секционированием КС-160.4.0-09.035 Схемы подъемов контактных проводов в переходном пролете трехпролетных сопряжений без секционирования КС-160.4.0-09.036 Схемы подъемов контактных проводов в переходном пролете четырехлролетных сопряжений без секционирования КС-160.4.0-09.037 Схемы подъемов контактных проводов в переходном пролете трехпролетных сопряжений с секционированием КС-160.4.0-09.038 Схемы подъемов контактных проводов в переходном пролете четырехпролетных сопряжений с секционированием КС-160.4.0-09.039 Врезка изоляторов в несущий трос, усиливающие и контактные провода анкеруемой подвески на сопряжениях с секционированием КС-160.4.0-09.040 Подключение продольного разъединителя к контактной сети КС-160.4.0-09.041 Компенсатор блочно-полиспастный КБП-3-30 (КБП-3-40Ш) КС-160.4.0-09.042 Компенсированная раздельная анкеровка контактной подвески с чугунными грузами КС-160.4.0-09.043 Компенсированная раздельная анкеровка контактной подвески с железобетонными грузами КС-160.4.0-09.044 Полукомпенсированная анкеровка контактной подвески с чугунными грузами КС-160.4.0-09.045 Полукомпенсированная анкеровка контактной подвески с железобетонными грузами КС-160.4.0-09.046 Жесткая анкеровка контактной подвески КС-160.4.0-09.047 Анкеровка троса средней анкеровки несущего троса компенсированной контактной подвески КС-160.4.0-09.048 Разанкеровка и обвод усиливающих проводов на отдельно стоящей опоре КС-160.4.0-09.049 Компенсированная анкеровка несущего троса. Узлы соединения КС-160.4.0-09.050 Жесткая анкеровка несущего троса. Узлы соединения КС-160.4.0-09.051 Компенсированная анкеровка контактных проводов. Узлы соединения КС-160.4.0-09.052 Жесткая анкеровка контактных проводов. Узлы соединения КС-160.4.0-09.053 Анкеровка троса средней анкеровки несущего троса. Узлы соединения КС-160.4.0-09.054 Графики положения грузов компенсированной анкеровки контактной подвески постоянного тока. Чугунные грузы КС-160.4.0-09.055 Графики положения грузов компенсированной анкеровки контактной подвески постоянного тока. Железобетонные грузы КС-160.4.0-09.056 Графики положения грузов полукомпенсированной анкеровки контактной подвески постоянного тока. Чугунные грузы КС-160.4.0-09.057 Графики положения грузов полукомпенсированной анкеровки контактной подвески постоянного тока. Железобетонные грузы КС-160.4.0-09.058 Таблицы расстояний между блоками компенсатора КБП-3-30 (КБП-3-40Ш) КС-160.4.0-09.059 Графики регулировки положения консолей на промежуточных опорах КС-160.4.0-09.060 Таблица регулировки положения консолей на промежуточных опорах (при нагруженном несущем тросе) КС-160.4.0-09.061 Регулировка положения консолей на переходных опорах КС-160.4.0-09.062 Положение переходных опор сопряжений на двухпутных участках пути КС-160.4.0-09.063 Армировка промежуточной опоры с нормальным габаритом на однопутном участке. Нулевое место, насыпь КС-160.4.0-09.064 Армировка промежуточных опор с нормальным габаритом на двухпутном участке. Нулевое место, насыпь. Прямая КС-160.4.0-09.065 Армировка промежуточных опор с увеличенным габаритом на двухпутном участке. Нулевое место. Прямая КС-160.4.0-09.066 Армировка промежуточной опоры с увеличенным габаритом на однопутном участке. Выемка КС-160.4.0-09.067 Армировка промежуточных опор с увеличенным габаритом на двухпутном участке. Выемка. Прямая КС-160.4.0-09.068 Установка и подключение ограничителя перенапряжений к контактной сети КС-160.4.0-09.069 Заземление опор КС-160.4.0-09.070 Спецификация изделий на средний анкерный участок длиной 1400 м |
| Разработан: | Универсал-контактные сети |
| Утверждён: | 31.07.2009 ОАО РЖД |








































































































