Скачать Типовой проект 902-2-360 Альбом 2. Технологическая и строительная части. Заказные спецификацииДата актуализации: 01.01.2021
|
| Обозначение: | Типовой проект 902-2-360 |
| Обозначение англ: | 902-2-360 |
| Статус: | не определен законодательством |
| Название рус.: | Альбом 2. Технологическая и строительная части. Заказные спецификации |
| Дата добавления в базу: | 01.09.2013 |
| Дата актуализации: | 01.01.2021 |
| Дата введения: | 27.01.1983 |
| Дата окончания срока действия: | 30.06.2003 |
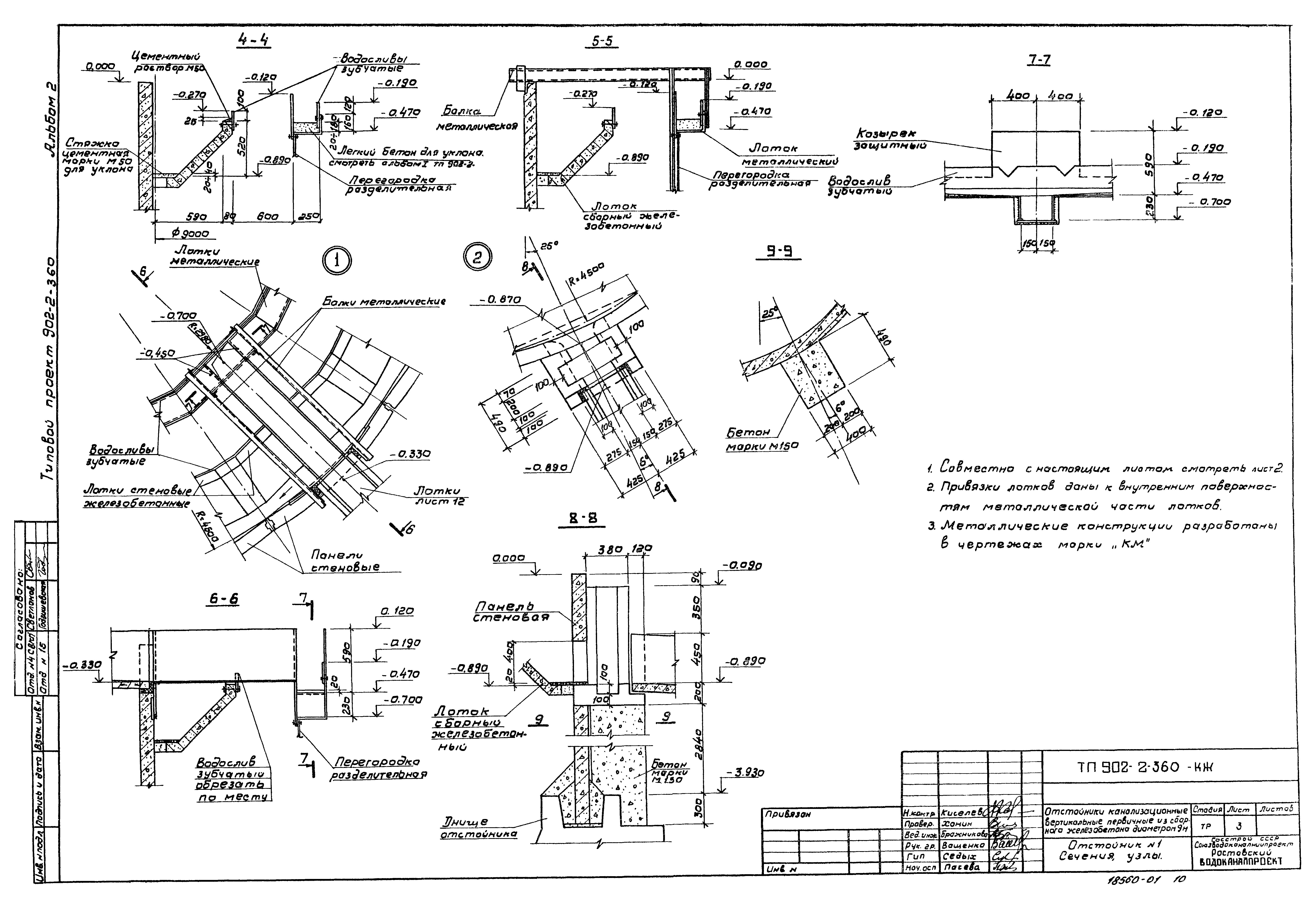
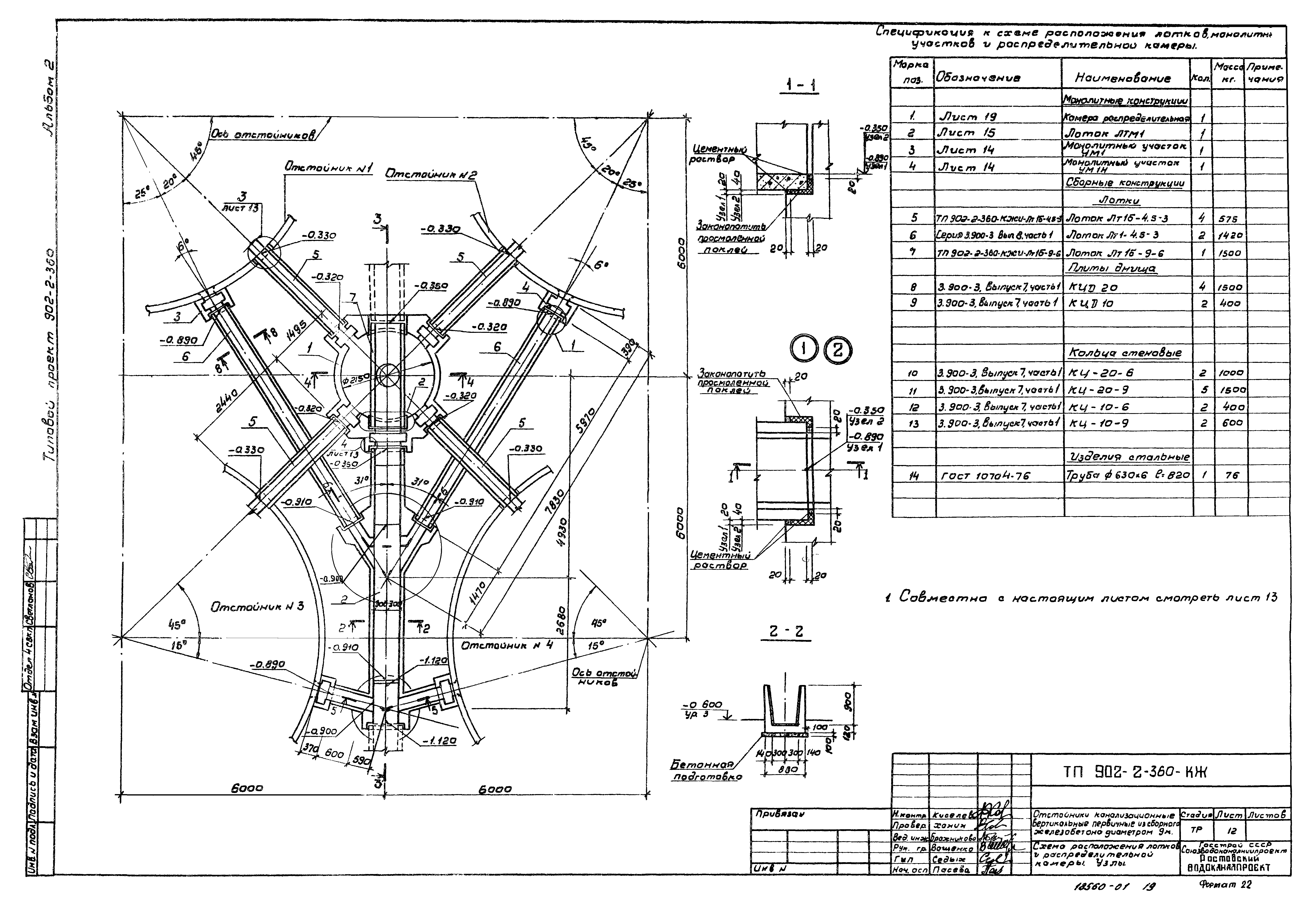
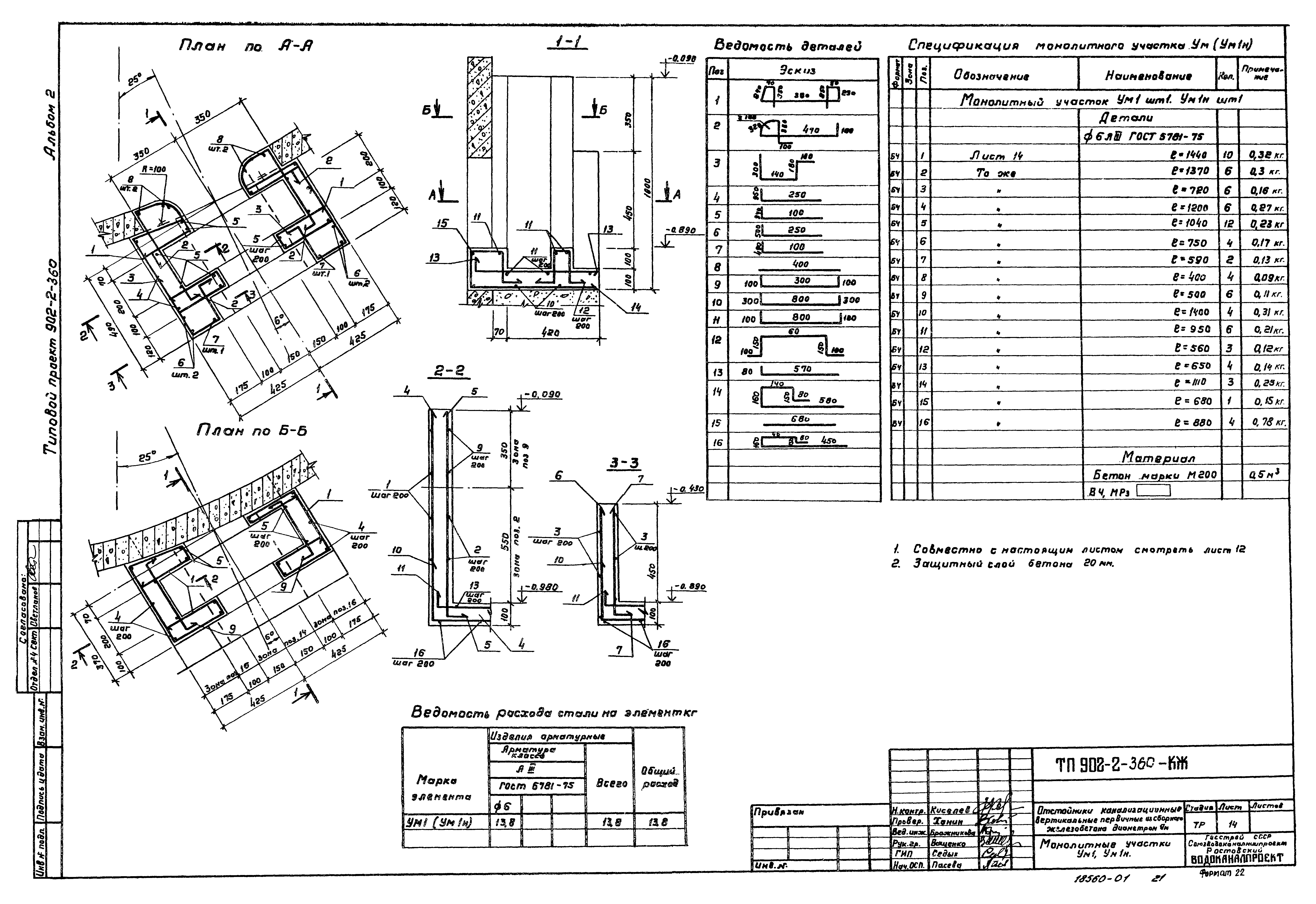
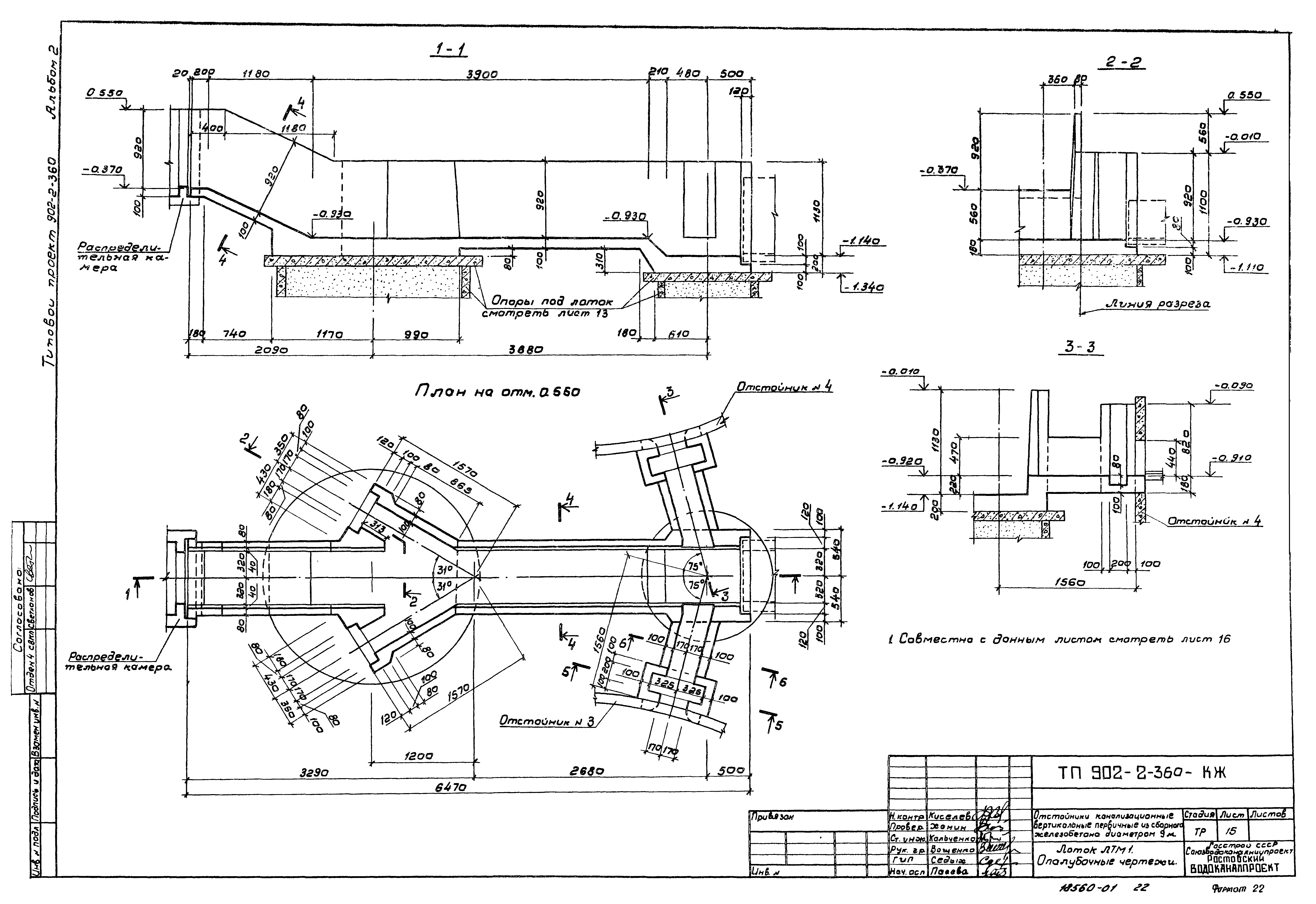
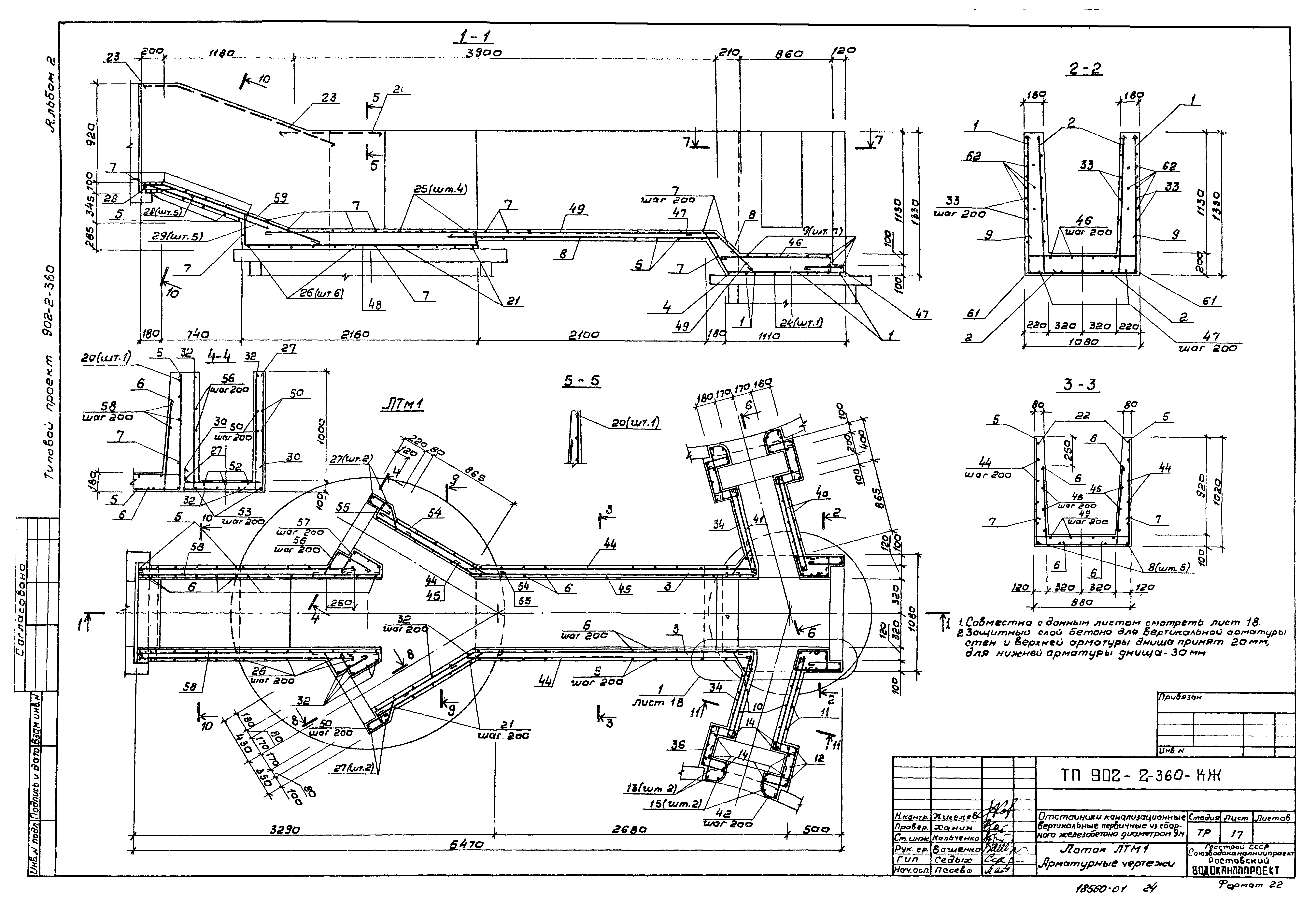
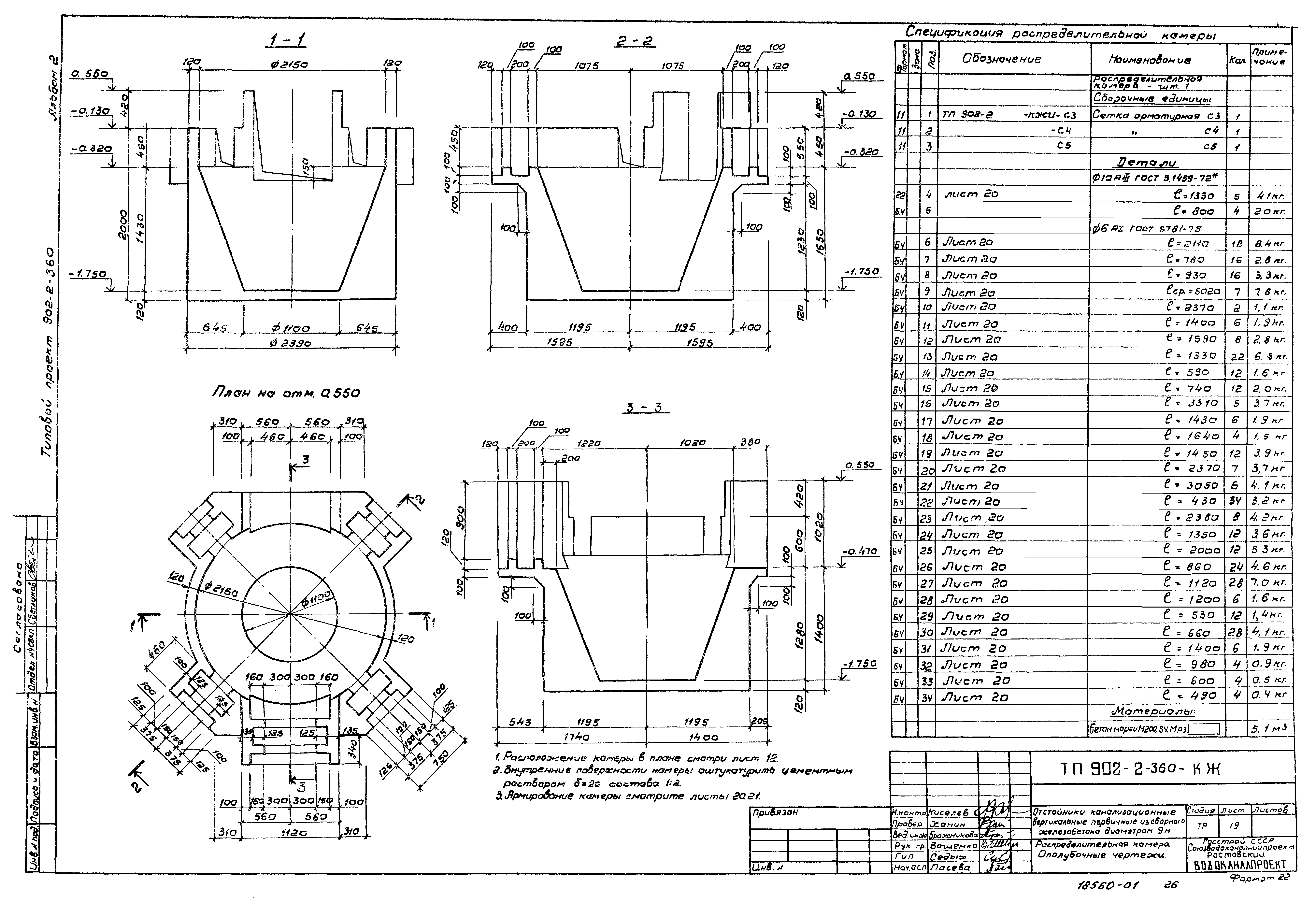
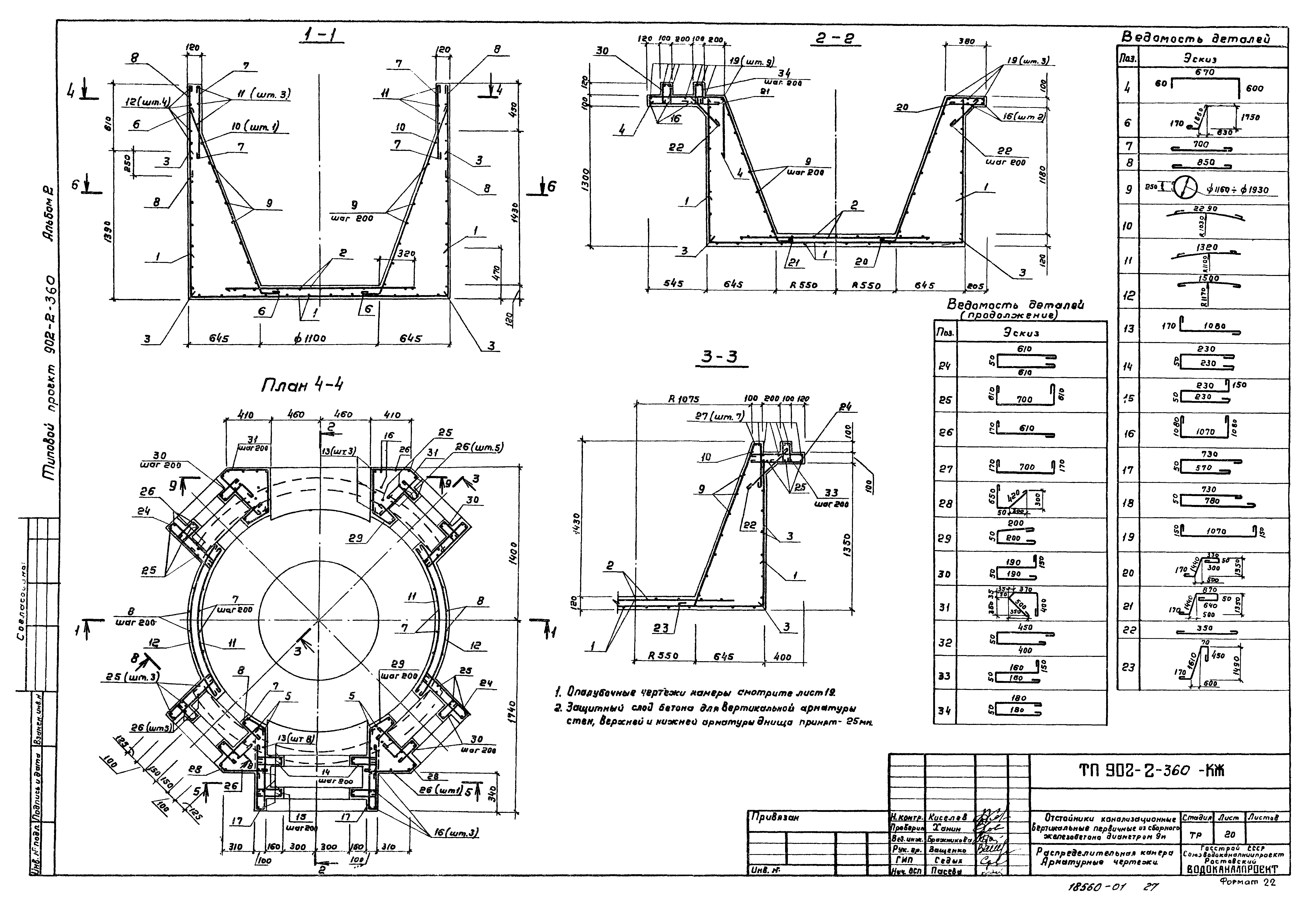
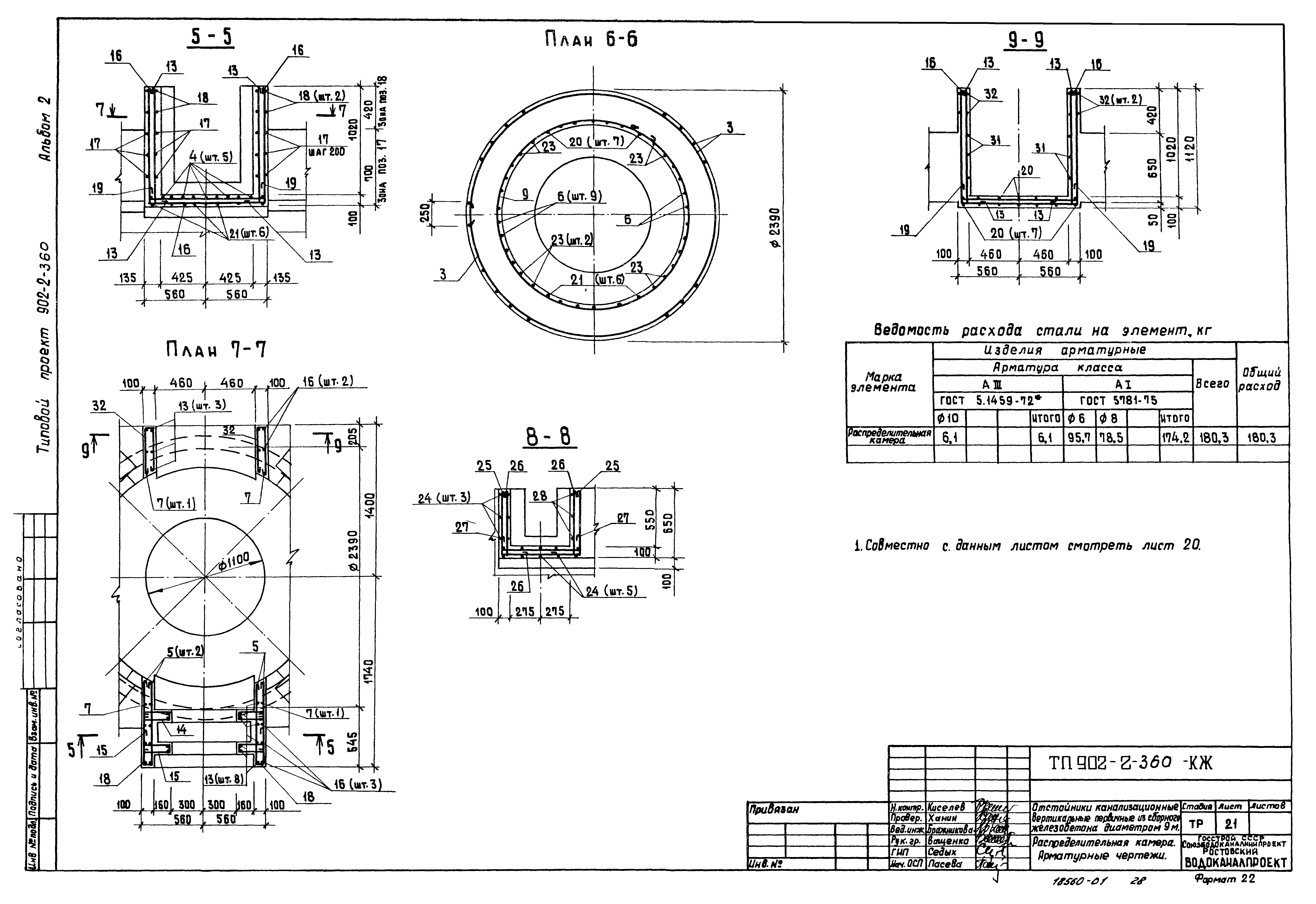
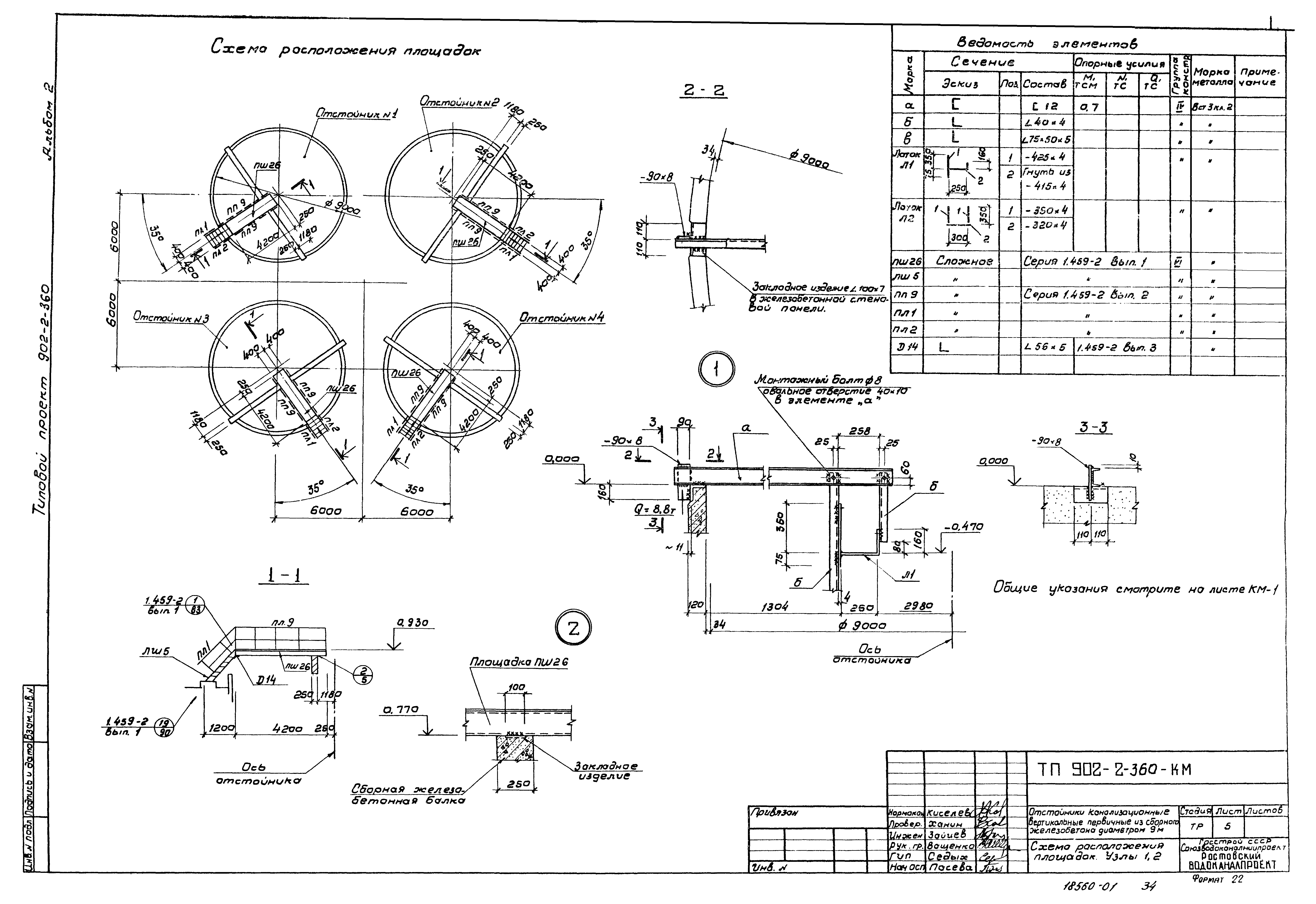
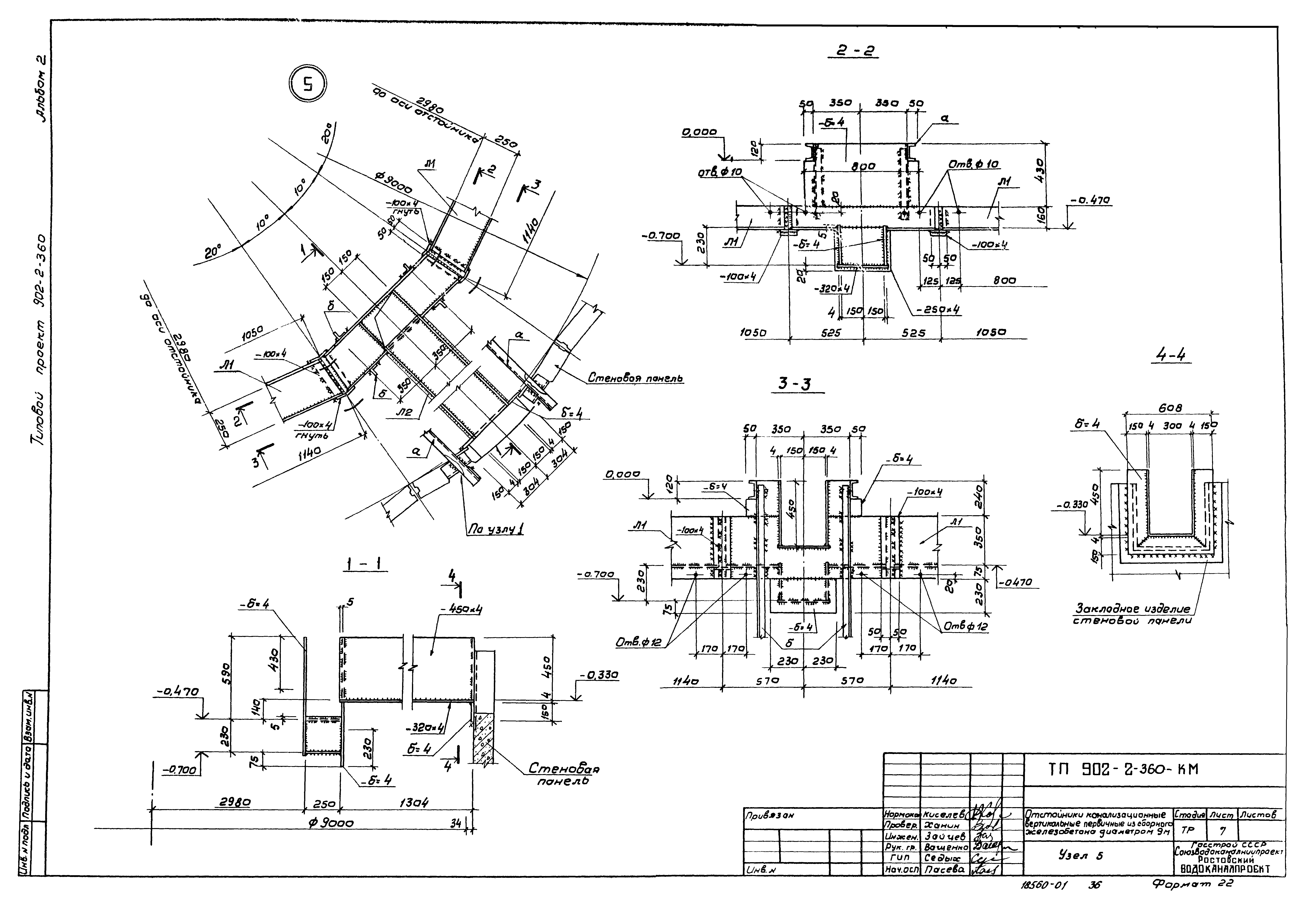
| Оглавление: | ТП 902-2-360 Титульный лист ТП 902-2-360 Содержание альбома ТП 902-2-360-НК Технологическая часть ТП 902-2-360-НК-1 Общие данные ТП 902-2-360-НК-2 Компоновка узла из 4х отстойников ТП 902-2-360-НК-3 Иловые колодцы № 1 и № 2 ТП 902-2-360-НК-4 Монтажный чертеж. План, разрезы, узлы ТП 902-2-360 Строительная часть ТП 902-2-360-КЖ Конструкции железобетона ТП 902-2-360-КЖ-1 Общие данные ТП 902-2-360-КЖ-2 Отстойник № 1. План. Разрезы ТП 902-2-360-КЖ-3 Отстойник № 1. Сечения. Узлы ТП 902-2-360-КЖ-4 Примеры устройства основания отстойников для различных гидрогеологических условий ТП 902-2-360-КЖ-5 Днище (вариант в сухих грунтах) ТП 902-2-360-КЖ-6 Днище (вариант в сухих грунтах) ТП 902-2-360-КЖ-7 Днище (вариант в обводненных грунтах) ТП 902-2-360-КЖ-8 Днище (вариант в обводненных грунтах) ТП 902-2-360-КЖ-9 Схема расположения сборных железобетонных элементов и фундаментов ФМ1 ТП 902-2-360-КЖ-10 Узлы, сечения к схеме расположения сборных железобетонных элементов. Напрягаемая арматура стен. Фундамент ФМ1 ТП 902-2-360-КЖ-11 Отстойник № 1. Схемы расположения асбестоцементных листов разделительной перегородки и водосливов ТП 902-2-360-КЖ-12 Схема расположения лотков и распределительной камеры. Узлы ТП 902-2-360-КЖ-13 Схема расположения лотков и распределительной камеры. Разрезы. Сечения. Узлы ТП 902-2-360-КЖ-14 Монолитные участки УМ1,УМ1н ТП 902-2-360-КЖ-15 Лоток ЛТМ1. Опалубочные чертежи ТП 902-2-360-КЖ-16 Лоток Л1. Опалубочные чертежи ТП 902-2-360-КЖ-17 Лоток Л1. Арматурные чертежи ТП 902-2-360-КЖ-18 Лоток Л1. Арматурные чертежи ТП 902-2-360-КЖ-19 Распределительная камера. Опалубочные чертежи ТП 902-2-360-КЖ-20 Распределительная камера. Арматурные чертежи ТП 902-2-360-КЖ-21 Распределительная камера. Арматурные чертежи ТП 902-2-360-КЖ-22 Колодцы иловые №1, №2 ТП 902-2-360-КМ Конструкции металлические ТП 902-2-360-КМ-1 Общие данные ТП 902-2-360-КМ-2 Техническая спецификация металла. Ведомость металлоконструкций по видам профилей ТП 902-2-360-КМ-3 Техническая спецификация металла на площадки, лестницы и ограждения ТП 902-2-360-КМ-4 Схема балок и лотков. Схема каркаса перегородок ТП 902-2-360-КМ-5 Схема расположения площадок. Узлы 1,2 ТП 902-2-360-КМ-6 Узлы 3,4 ТП 902-2-360-КМ-7 Узел 5 ТП 902-2-360 Заказные спецификации ТП 902-2-360-НК-С1 Заказная спецификация на оборудование для 4-х отстойников ТП 902-2-360-НК-С2 Заказная спецификация на трубопроводную арматуру для 4-х отстойников |
| Разработан: | Союзводоканалниипроект Ростовский Водоканалпроект |
| Утверждён: | 25.08.1982 Главпромстройпроект Госстроя СССР (32) |
| Заменяет собой: |






































