Скачать Типовой проект 904-1-84.90 Альбом 3. Архитектурно-строительные решения. Отопление и вентиляцияДата актуализации: 01.01.2021
|
| Обозначение: | Типовой проект 904-1-84.90 |
| Обозначение англ: | 904-1-84.90 |
| Статус: | справочные материалы, мп, тпр |
| Название рус.: | Альбом 3. Архитектурно-строительные решения. Отопление и вентиляция |
| Дата добавления в базу: | 01.09.2013 |
| Дата актуализации: | 01.01.2021 |
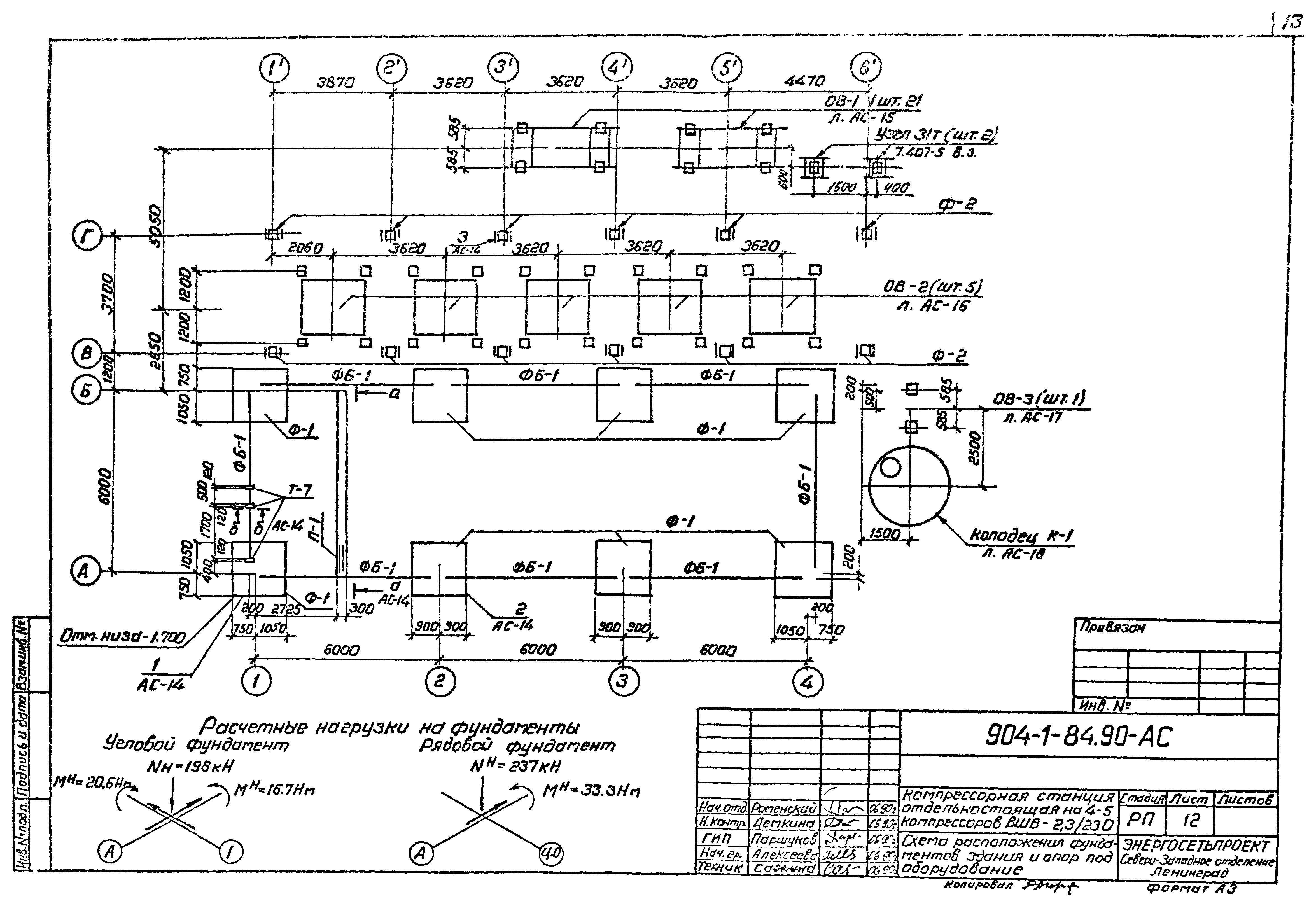
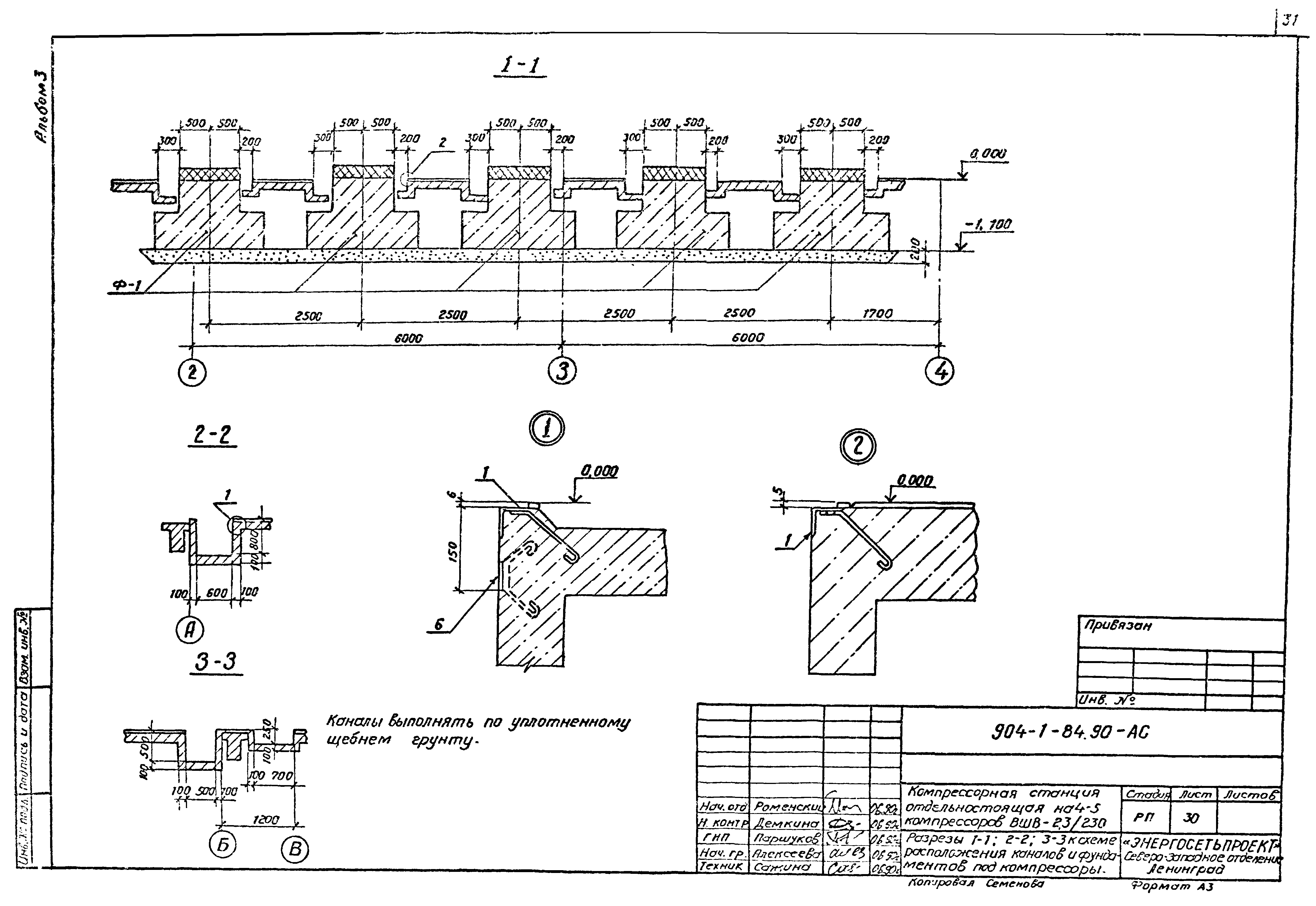
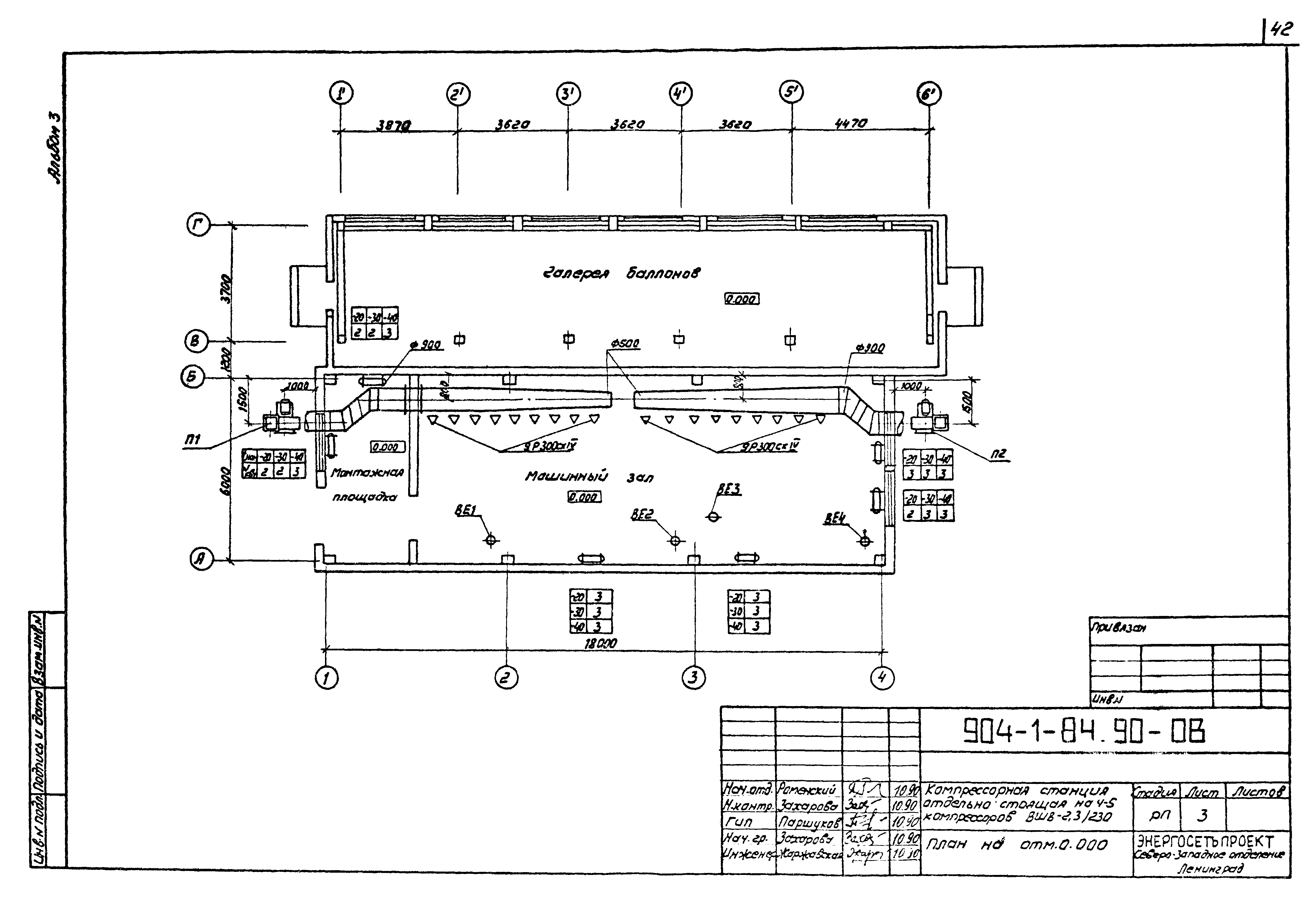
| Оглавление: | ТП 904-1-84.90-АС-1 Общие данные (начало) ТП 904-1-84.90-АС-2 Общие данные (продолжение) ТП 904-1-84.90-АС-3 Общие данные (продолжение) ТП 904-1-84.90-АС-4 Общие данные (продолжение) ТП 904-1-84.90-АС-5 Общие данные (окончание) ТП 904-1-84.90-АС-6 План на отм. 0.000 ТП 904-1-84.90-АС-7 Спецификации к плану на отм. 0.000 ТП 904-1-84.90-АС-8 Разрезы 1-1;2-2 ТП 904-1-84.90-АС-9 Узлы А и Б ТП 904-1-84.90-АС-10 Фасады ТП 904-1-84.90-АС-11 Фрагмент фасада 1 ТП 904-1-84.90-АС-12 Схема расположения фундаментов здания и опор под оборудование ТП 904-1-84.90-АС-13 Спецификация к схеме расположения фундаментов здания и опор под оборудование ТП 904-1-84.90-АС-14 Узлы 1...3 к схеме расположения фундаментов здания ТП 904-1-84.90-АС-15 Схема расположения элементов опоры ОВ-1 ТП 904-1-84.90-АС-16 Схема расположения элементов опоры ОВ-2 ТП 904-1-84.90-АС-17 Схема расположения элементов опоры ОВ-3 ТП 904-1-84.90-АС-18 Колодец для слива конденсата V=5,6 м³ ТП 904-1-84.90-АС-19 Узлы 1...4 колодца для слива конденсата V=5,6 м³ ТП 904-1-84.90-АС-20 Схема расположения колонн и балок ТП 904-1-84.90-АС-21 Схема расположения плит покрытия ТП 904-1-84.90-АС-22 Схема расположения стеновых панелей ТП 904-1-84.90-АС-23 Спецификация к схемам расположения стеновых панелей (начало) ТП 904-1-84.90-АС-24 Спецификация к схемам расположения стеновых панелей (продолжение) ТП 904-1-84.90-АС-25 Спецификация к схемам расположения стеновых панелей (окончание) ТП 904-1-84.90-АС-26 Узлы 1...5 к схемам расположения стеновых панелей ТП 904-1-84.90-АС-27 Схема расположения подвесных путей кранбалки ТП 904-1-84.90-АС-28 Техническая спецификация металла ТП 904-1-84.90-АС-29 Схема расположения каналов и фундаментов под компрессоры ТП 904-1-84.90-АС-30 Разрезы 1-1;2-2;3-3 к схеме расположения каналов и фундаментов под компрессоры ТП 904-1-84.90-АС-31 Разрезы 4-4;5-5 к схеме расположения каналов и фундаментов под компрессоры ТП 904-1-84.90-АС-32 Разрезы 1...3 к схеме расположения закладных в каналах ТП 904-1-84.90-АС-33 Фрагменты 1 и 2 к схеме расположения каналов и фундаментов под компрессоры ТП 904-1-84.90-АС-34 Фрагмент 3 к схеме расположения фундаментов под компрессоры и каналов ТП 904-1-84.90-АС-35 Фундамент Ф-1 под компрессор ТП 904-1-84.90-АС-36 Приямок ПМ-1 ТП 904-1-84.90-АС-37 Схема расположения наружных лотковых каналов ТП 904-1-84.90-АС-38 Схема перекрытия каналов ТП 904-1-84.90-ОВ-1 Общие данные (начало) ТП 904-1-84.90-ОВ-2 Общие данные (окончание) ТП 904-1-84.90-ОВ-3 План на отм. 0.000 ТП 904-1-84.90-ОВ-4 Разрез 1-1 ТП 904-1-84.90-ОВ-5 Схемы систем П1;П2;ВЕ1-ВЕ4 ТП 904-1-84.90-ОВ-6 Установка 2х электропечей. Установка 3х электропечей МР-2;МР-3 |
| Разработан: | Северо-западное отделение института Энергосетьпроект |
| Утверждён: | 16.08.1990 Минэнерго СССР (USSR Minenergo 47) |
| Заменяет собой: |














































