Скачать Типовой проект 902-2-289 Альбом III. Аэробные минерализаторы осадка сточных вод длиной секции 60 - 84 м (тип II). Технологическая и строительные частиДата актуализации: 01.01.2021
|
| Обозначение: | Типовой проект 902-2-289 |
| Обозначение англ: | 902-2-289 |
| Статус: | действует |
| Название рус.: | Альбом III. Аэробные минерализаторы осадка сточных вод длиной секции 60 - 84 м (тип II). Технологическая и строительные части |
| Дата добавления в базу: | 01.09.2013 |
| Дата актуализации: | 01.01.2021 |
| Дата введения: | 25.03.1977 |
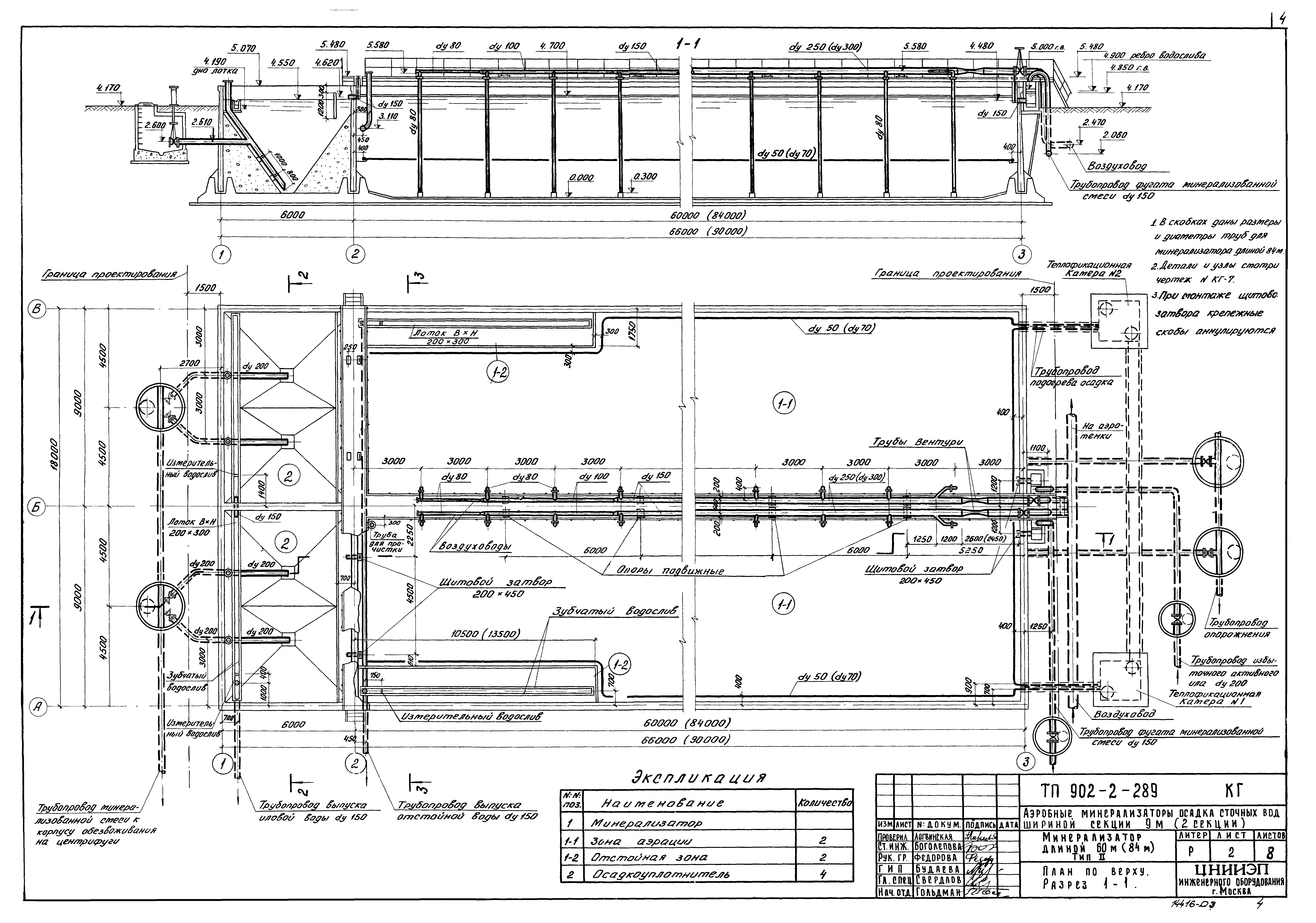
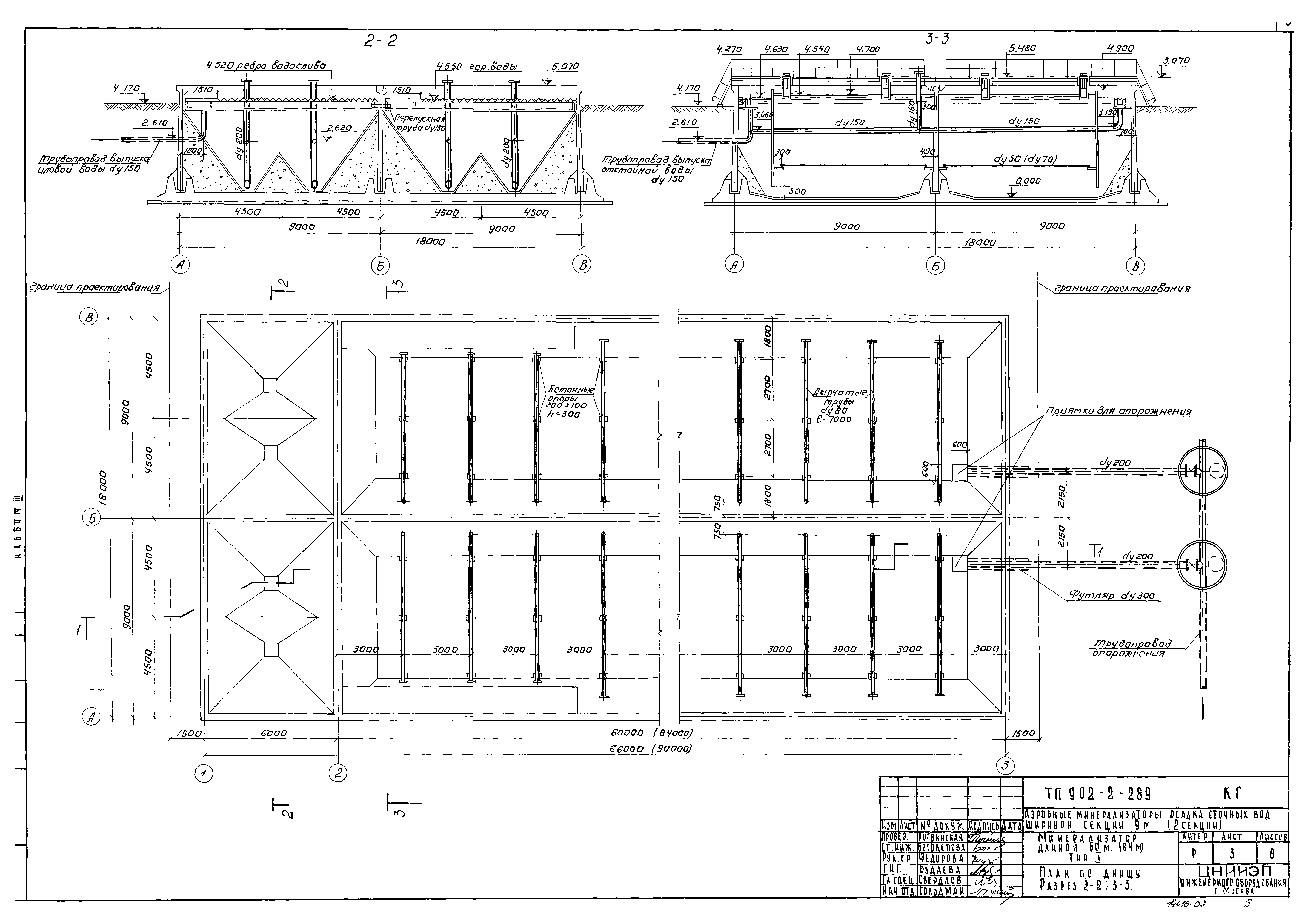
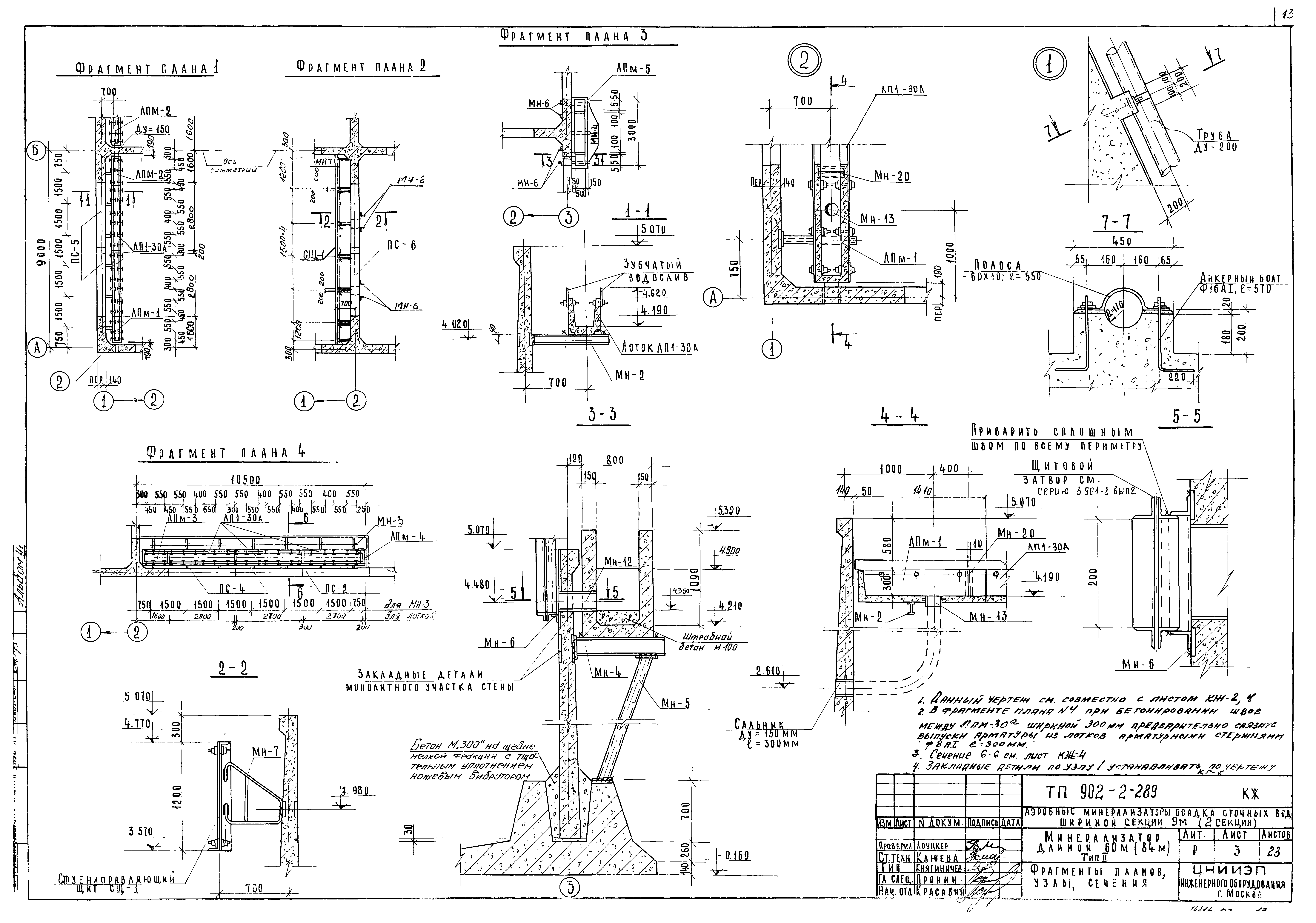
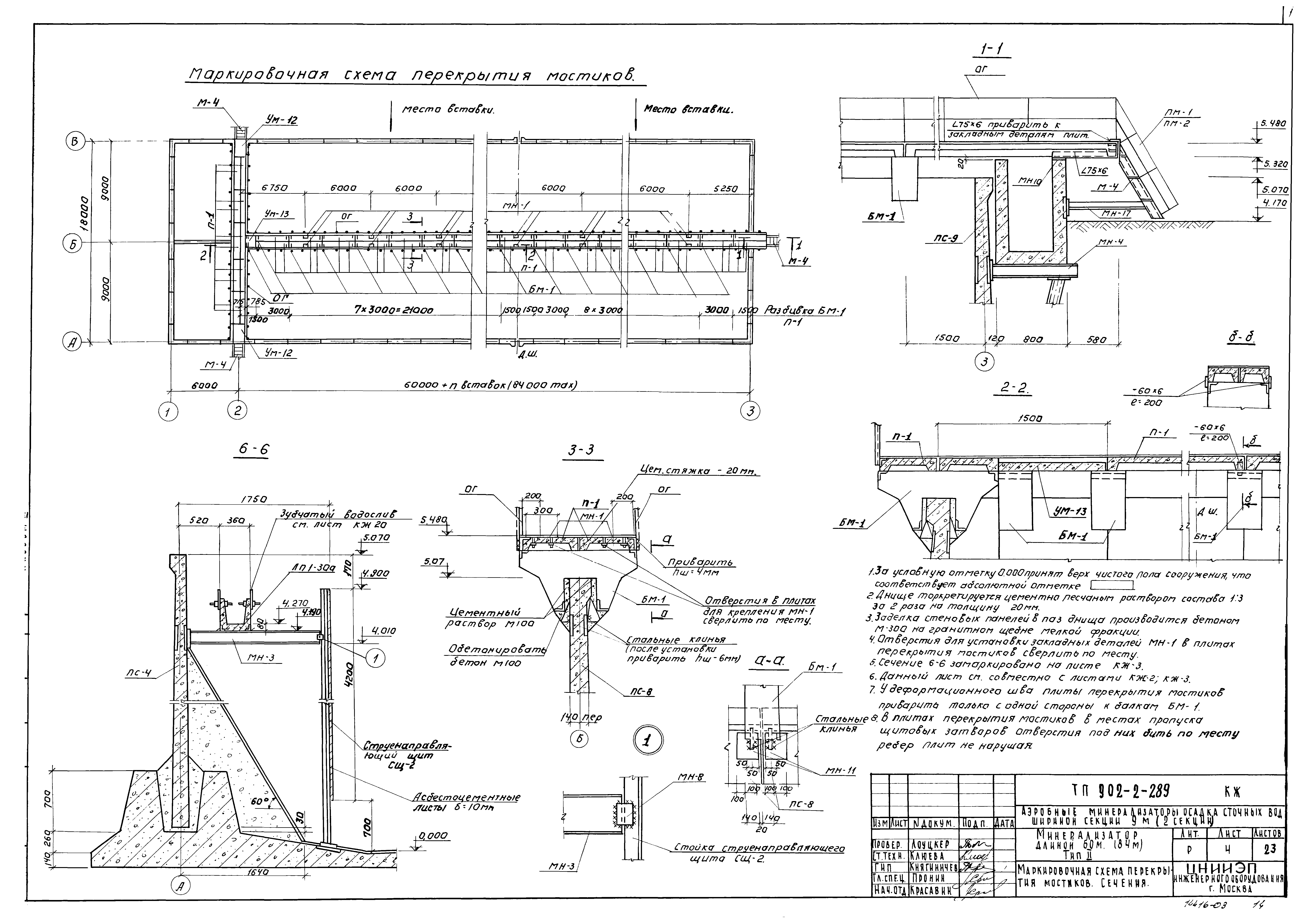
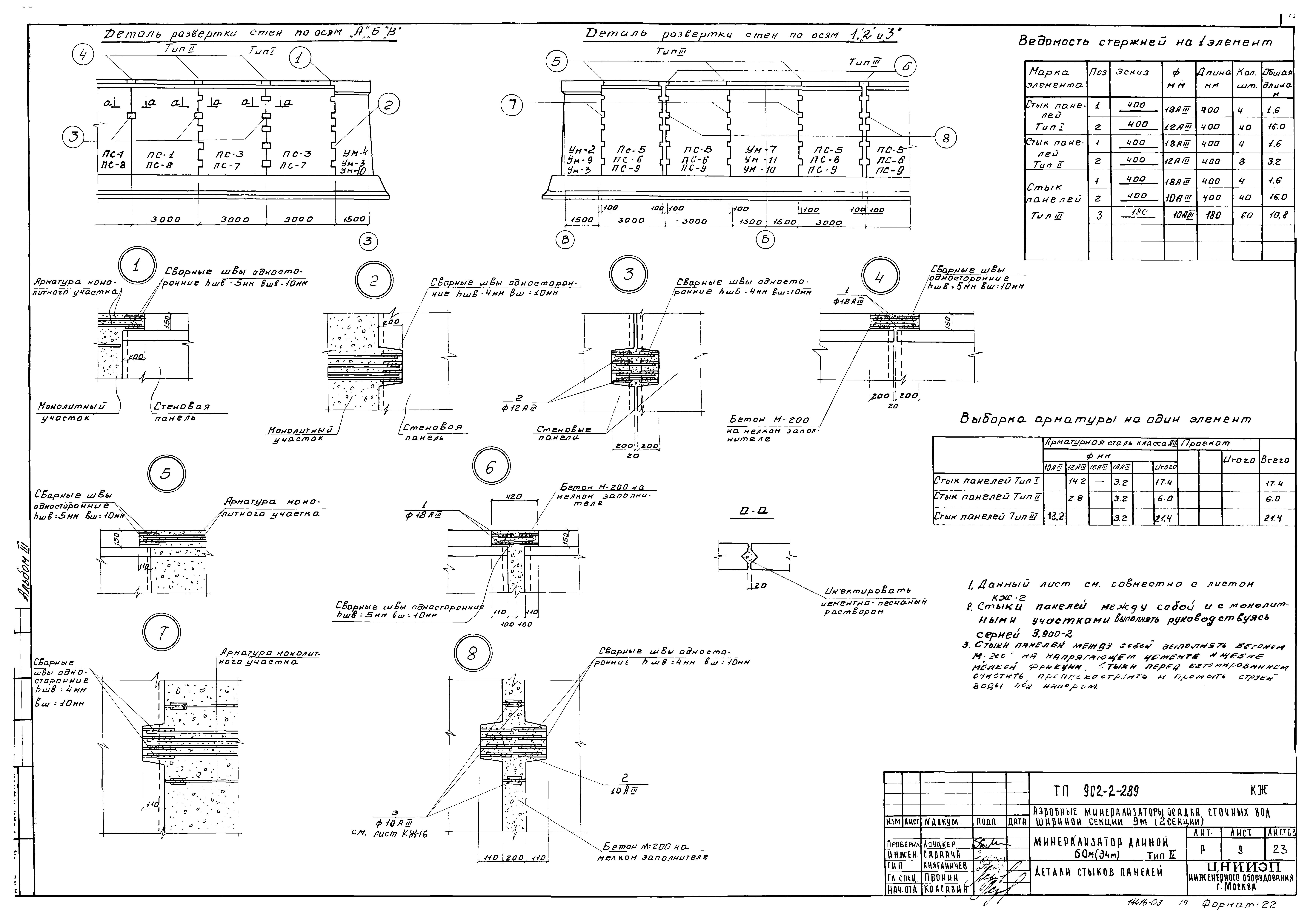
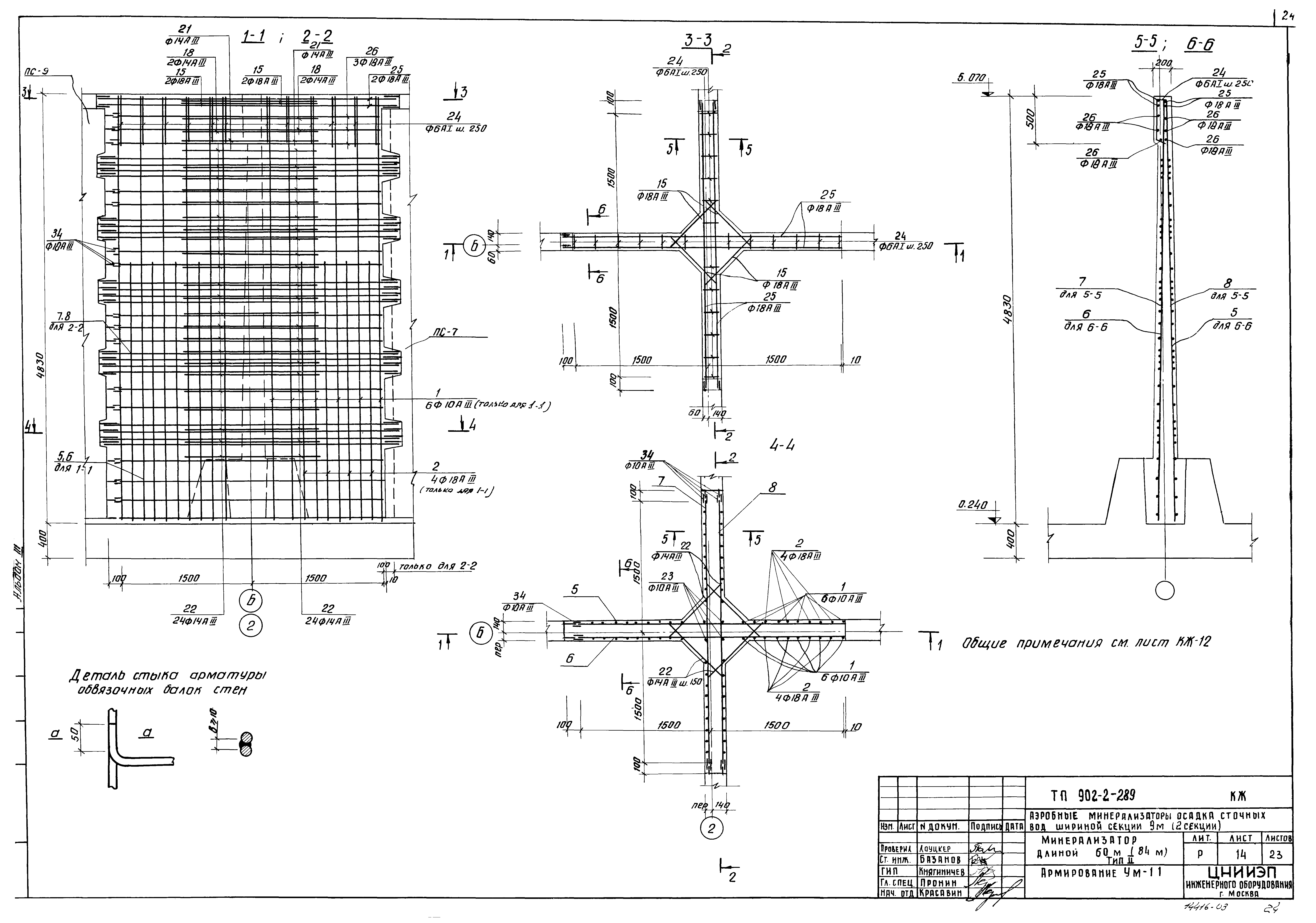
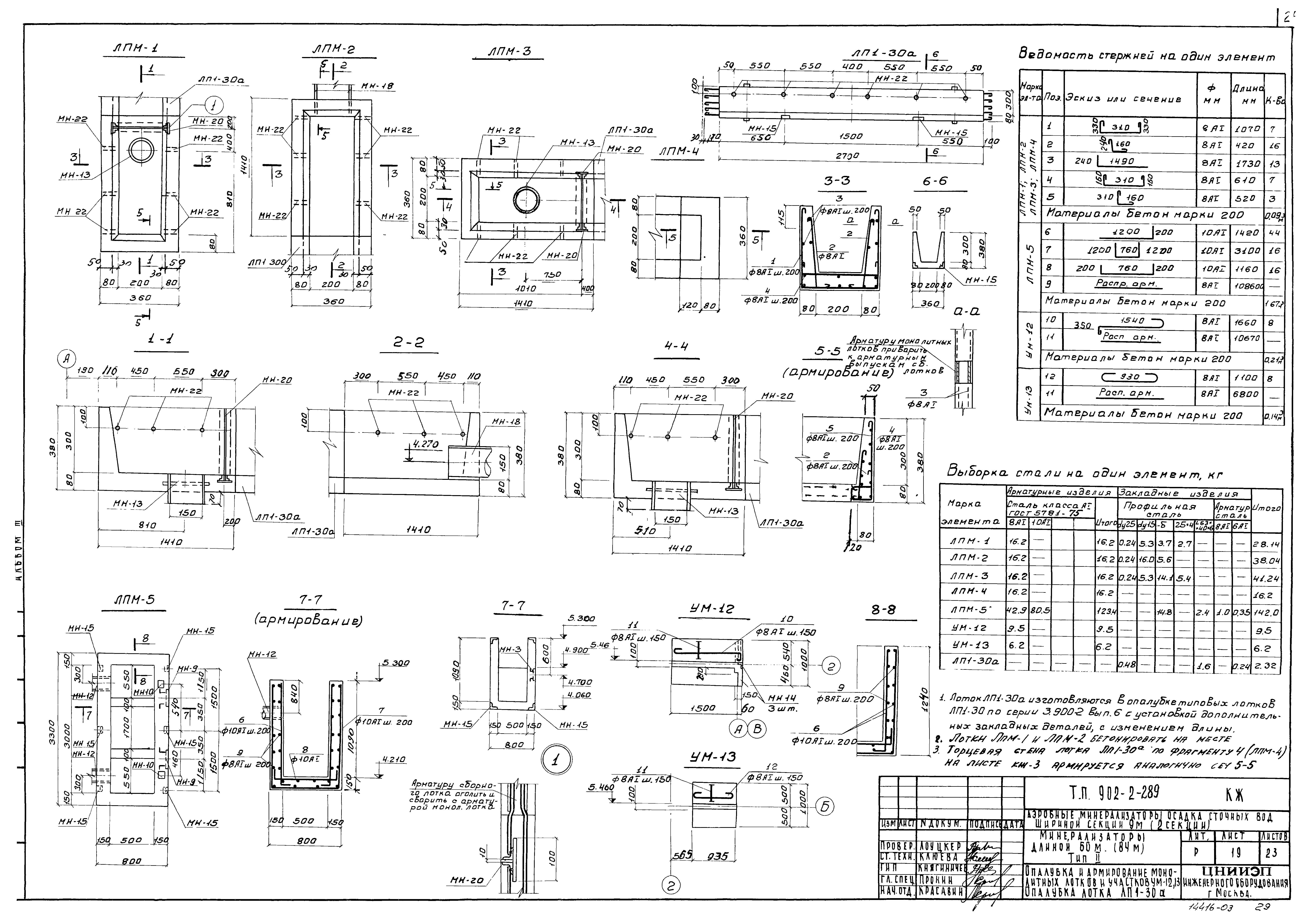
| Оглавление: | ТП 902-2-289-КГ-1 Заглавный лист ТП 902-2-289-КГ-2 План по верху. Разрез 1-1 ТП 902-2-289-КГ-3 План по днищу. Разрезы 2-2,3-3 ТП 902-2-289-КГ-4 Схемы воздуховодов ТП 902-2-289-КГ-5 Схемы трубопроводы для подогрева осадка в минерализаторе ТП 902-2-289-КГ-6 Монтажные схемы теплофикационных камер №№1,2 ТП 902-2-289-КГ-7 Узлы и детали ТП 902-2-289-КГ-8 Ведомость материалов, трубопроводной арматуры и оборудования ТП 902-2-289-КЖ-1 Выборка материалов ТП 902-2-289-КЖ-2 Общий вид. План. Разрезы. Спецификация ТП 902-2-289-КЖ-3 Фрагменты планов. Узлы. Сечения ТП 902-2-289-КЖ-4 Маркировочная схема перекрытия мостиков. Сечения ТП 902-2-289-КЖ-5 Опалубка днища. План. Разрезы. Армирование ТП 902-2-289-КЖ-6 Армирование днища. Планы раскладки сеток и каркасов ТП 902-2-289-КЖ-7 Армирование днища. Узлы ТП 902-2-289-КЖ-8 Сетки арматурные и каркасы. Ведомость стержней ТП 902-2-289-КЖ-9 Детали стыков панелей ТП 902-2-289-КЖ-10 Развертки монолитных участков по осям 1,2 ТП 902-2-289-КЖ-11 Развертки монолитных участков по оси 3АВ ТП 902-2-289-КЖ-12 Армирование УМ-1÷УМ-6 ТП 902-2-289-КЖ-13 Армирование УМ-7÷УМ-11 ТП 902-2-289-КЖ-14 Армирование УМ-11 ТП 902-2-289-КЖ-15 Армирование монолитных участков стен. Сетки С-1÷С-10 ТП 902-2-289-КЖ-16 Монолитные участки стен. Спецификации ТП 902-2-289-КЖ-17 Монолитные участки стен, выборки и спецификации ТП 902-2-289-КЖ-18 Опалубка стеновых панелей. Плиты ПЖ1-3А. Армирование балки БМ-1. Спецификации ТП 902-2-289-КЖ-19 Опалубка и армирование монолитных лотков и участков УМ-12;13. Опалубка лотка ЛП-1-30а ТП 902-2-289-КЖ-20 Струенаправляющий щит СЩ-1. Водосливы из оргстекла ТП 902-2-289-КЖ-21 Струенаправляющий щит СЩ-2 ТП 902-2-289-КЖ-22 Закладные детали ТП 902-2-289-КЖ-23 Вставка |
| Разработан: | ЦНИИЭП |
| Утверждён: | 22.07.1974 Госгражданстрой (Gosgrazhdanstroy 164) |

































