Скачать Типовой проект 904-1-78.87 Альбом 5. Строительные решенияДата актуализации: 01.01.2021
|
| Обозначение: | Типовой проект 904-1-78.87 |
| Обозначение англ: | 904-1-78.87 |
| Статус: | не действует |
| Название рус.: | Альбом 5. Строительные решения |
| Дата добавления в базу: | 01.09.2013 |
| Дата актуализации: | 01.01.2021 |
| Дата введения: | 11.09.1987 |
| Дата окончания срока действия: | 01.01.1990 |
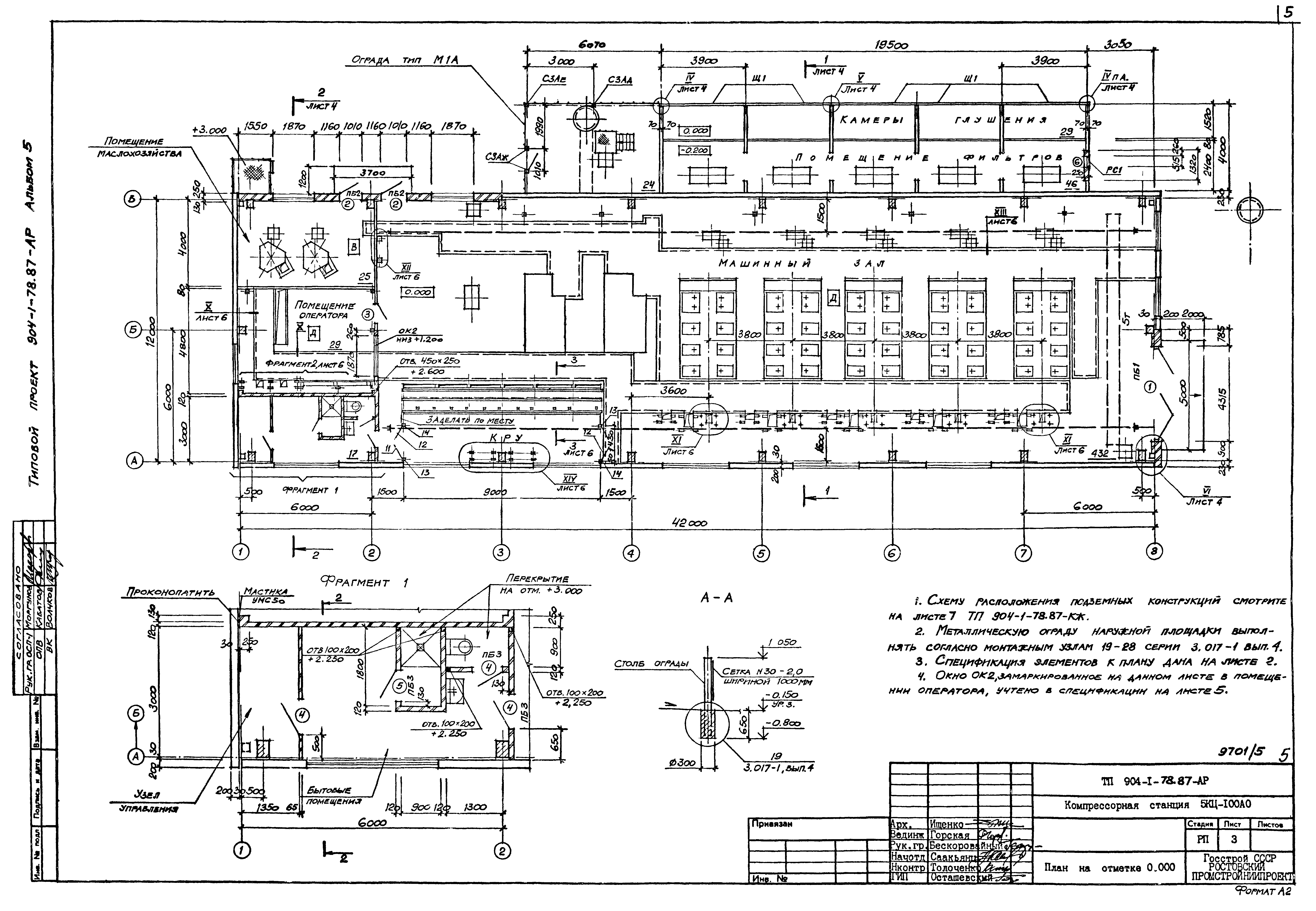
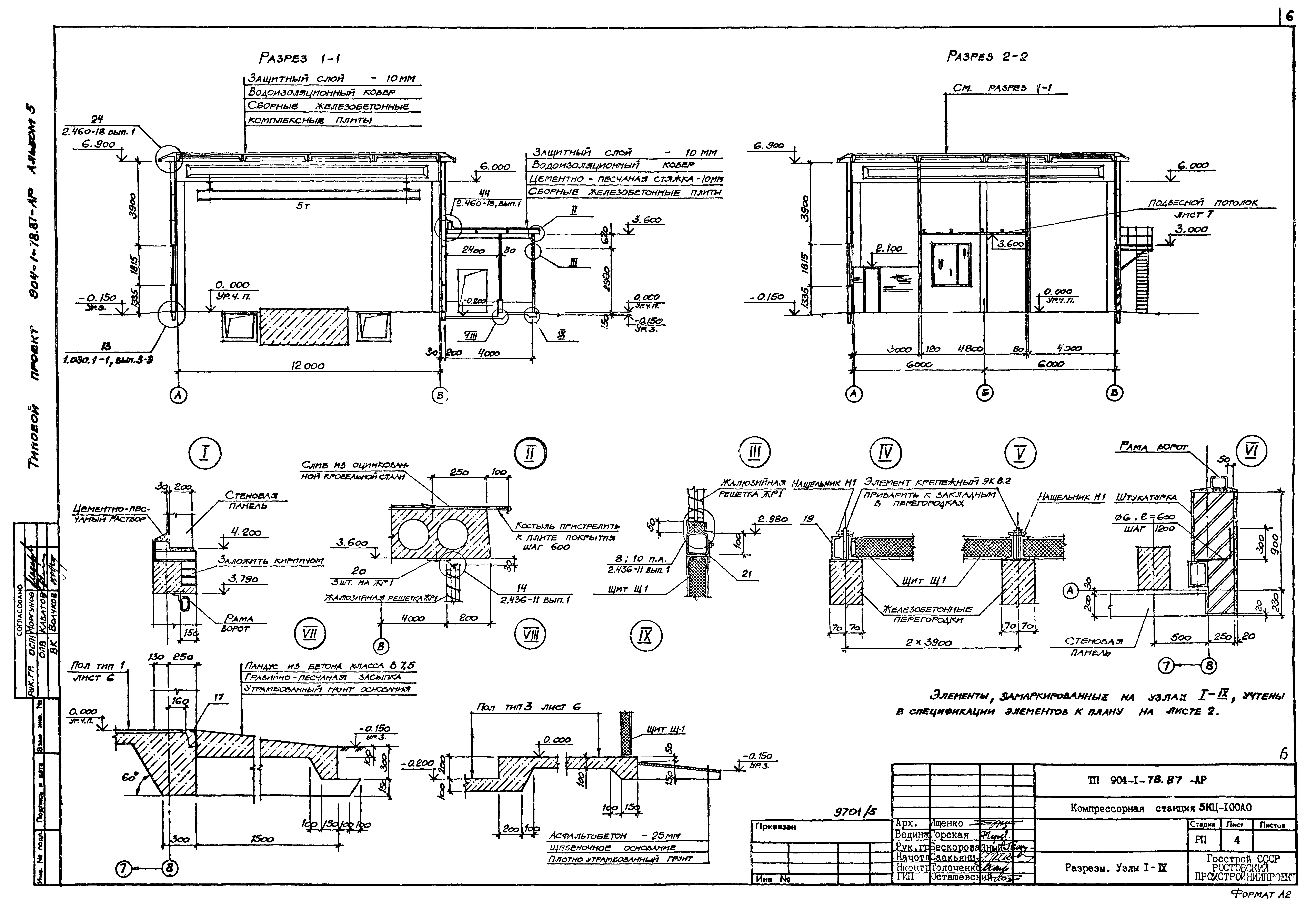
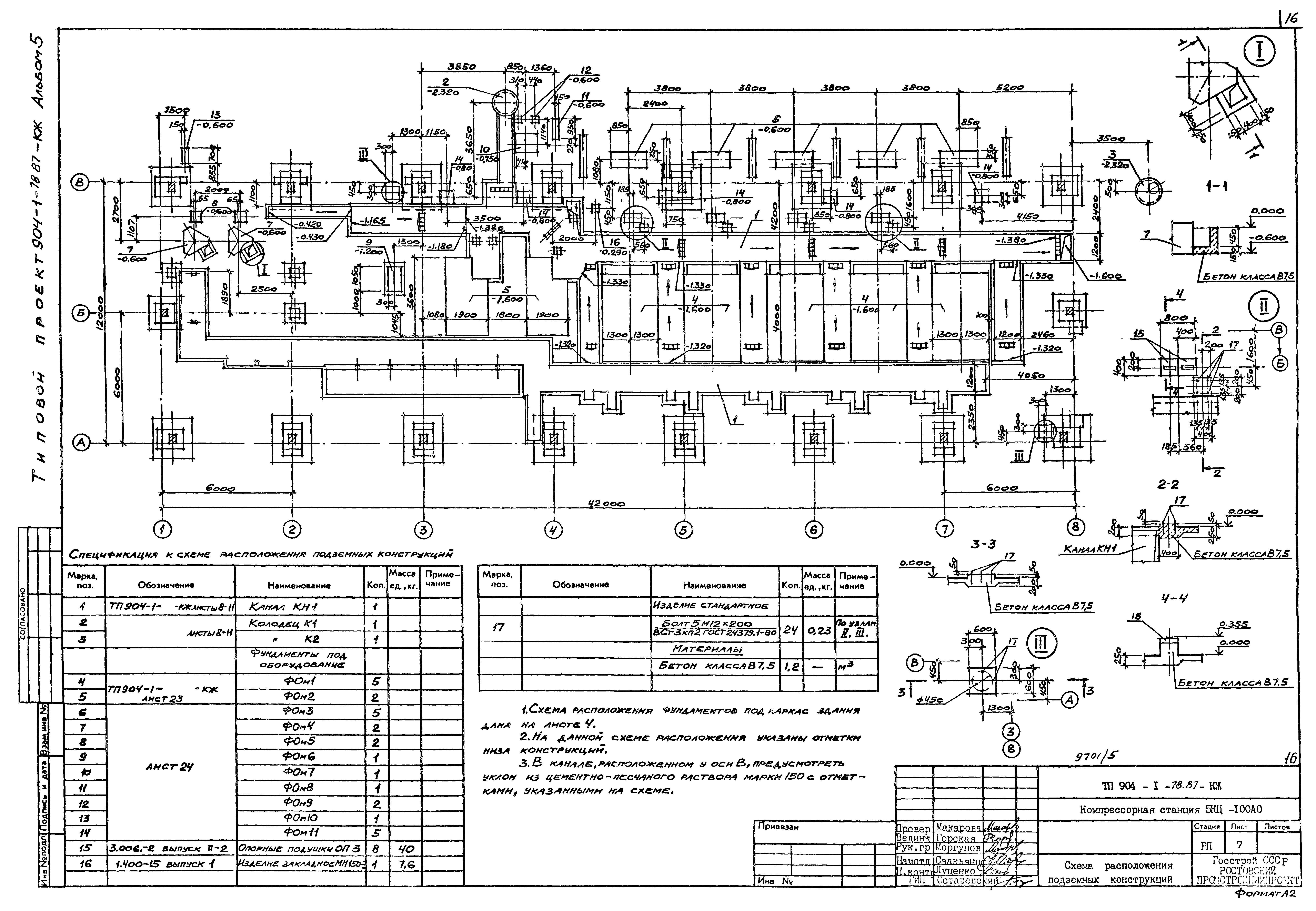
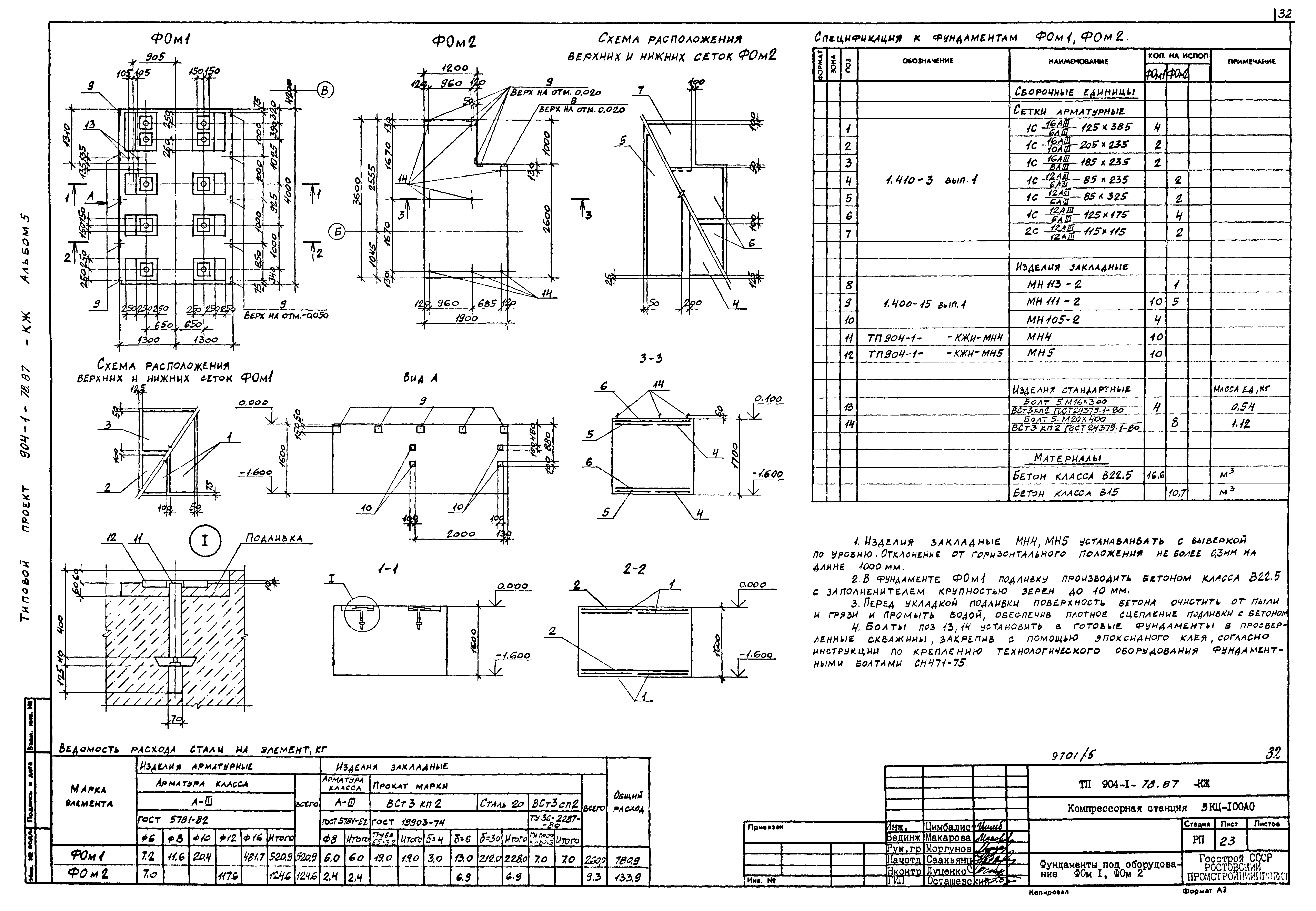
| Оглавление: | ТП 904-1-78.87 Содержание альбома ТП 904-1-78.87-АР Архитектурные решения ТП 904-1-78.87-АР-1 Общие данные (начало) ТП 904-1-78.87-АР-2 Общие данные (окончание) ТП 904-1-78.87-АР-3 План на отметке 0.000 ТП 904-1-78.87-АР-4 Разрезы. Узлы I - IX ТП 904-1-78.87-АР-5 Фасады. План кровли ТП 904-1-78.87-АР-6 План полов. Узлы X - XV ТП 904-1-78.87-АР-7 Подвесной потолок ТП 904-1-78.87-КЖ Конструкции железобетонные ТП 904-1-78.87-КЖ-1 Общие данные (начало) ТП 904-1-78.87-КЖ-2 Общие данные (продолжение) ТП 904-1-78.87-КЖ-3 Общие данные (окончание) ТП 904-1-78.87-КЖ-4 Схема расположения элементов фундаментов ТП 904-1-78.87-КЖ-5 Фундаменты Фм1 - Фм3 ТП 904-1-78.87-КЖ-6 Фундаменты Фм4 - Фм6 ТП 904-1-78.87-КЖ-7 Схема расположения подземных конструкций ТП 904-1-78.87-КЖ-8 Канал КН1, колодцы К1, К2 (начало) ТП 904-1-78.87-КЖ-9 Канал КН1, колодцы К1, К2 (продолжение) ТП 904-1-78.87-КЖ-10 Канал КН1, колодцы К1, К2 (продолжение) ТП 904-1-78.87-КЖ-11 Канал КН1, колодцы К1, К2 (окончание) ТП 904-1-78.87-КЖ-12 Участки монолитные Ум1 - Ум6 (начало) ТП 904-1-78.87-КЖ-13 Участки монолитные Ум1 - Ум6 (продолжение) ТП 904-1-78.87-КЖ-14 Участки монолитные Ум1 - Ум6 (продолжение) ТП 904-1-78.87-КЖ-15 Участки монолитные Ум1 - Ум6 (продолжение) ТП 904-1-78.87-КЖ-16 Участки монолитные Ум1 - Ум6 (продолжение) ТП 904-1-78.87-КЖ-17 Участки монолитные Ум1 - Ум6 (окончание) ТП 904-1-78.87-КЖ-18 Схемы расположения элементов каркаса (начало) ТП 904-1-78.87-КЖ-19 Схемы расположения элементов каркаса (продолжение) ТП 904-1-78.87-КЖ-20 Схемы расположения элементов каркаса (окончание) ТП 904-1-78.87-КЖ-21 Схемы расположения перегородок, стеновых и карнизных панелей (начало) ТП 904-1-78.87-КЖ-22 Схемы расположения перегородок, стеновых и карнизных панелей (окончание) ТП 904-1-78.87-КЖ-23 Фундаменты под оборудование ФОм1, ФОм2 ТП 904-1-78.87-КЖ-24 Фундаменты под оборудование ФОм3 - ФОм11 ТП 904-1-78.87-КМ Конструкции металлические ТП 904-1-78.87-КМ-1 Общие данные ТП 904-1-78.87-КМ-2 Техническая спецификация металла на объект (начало) ТП 904-1-78.87-КМ-3 Техническая спецификация металла на объект (окончание) ТП 904-1-78.87-КМ-4 Техническая спецификация металла на лестницы ТП 904-1-78.87-КМ-5 Схемы расположения подвесных путей, балок на отметке 0.000 ТП 904-1-78.87-КМ-6 Схемы расположения балок на отметке 3.660, площадки на отметке 3.000 ТП 904-1-78.87-КМ-7 Схемы расположения балок на отметке 2.980, жалюзийных решеток и опор ТП 904-1-78.87-КМ-8 Схемы расположения кронштейнов ТП 904-1-78.87-ОВ Отопление и вентиляция ТП 904-1-78.87-ОВ-1 Общие данные ТП 904-1-78.87-ОВ-2 План отопления и вентиляции. Характеристика оборудования ТП 904-1-78.87-ОВ-3 Схемы систем отопления, теплоснабжения, вентиляции ТП 904-1-78.87-ВК Внутренние водопровод и канализация ТП 904-1-78.87-ВК-1 Общие данные ТП 904-1-78.87-ВК-2 План на отметке 0.000. Сечения 1-1, 2-2 ТП 904-1-78.87-ВК-3 Схемы систем B1,B4,B5,T3,T4,К1,К13 |
| Разработан: | Ростовский Промстройниипроект Госстроя СССР |
| Утверждён: | 11.09.1987 Минстройдормаш (Minstroydormash 518) |
















































