Скачать Серия 3.904-15 Выпуск 1-3. Часть I. Конструкции камер. Рабочие чертежи. Приточная вентиляционная камера типа 1ПК50 производительностью от 25 до 50 тыс. куб. м/чДата актуализации: 01.01.2021
|
| Обозначение: | Серия 3.904-15 |
| Обозначение англ: | Series 3.904-15 |
| Статус: | не действует |
| Название рус.: | Выпуск 1-3. Часть I. Конструкции камер. Рабочие чертежи. Приточная вентиляционная камера типа 1ПК50 производительностью от 25 до 50 тыс. куб. м/ч |
| Дата добавления в базу: | 01.09.2013 |
| Дата актуализации: | 01.01.2021 |
| Дата введения: | 01.10.1974 |
| Дата окончания срока действия: | 01.10.1982 |
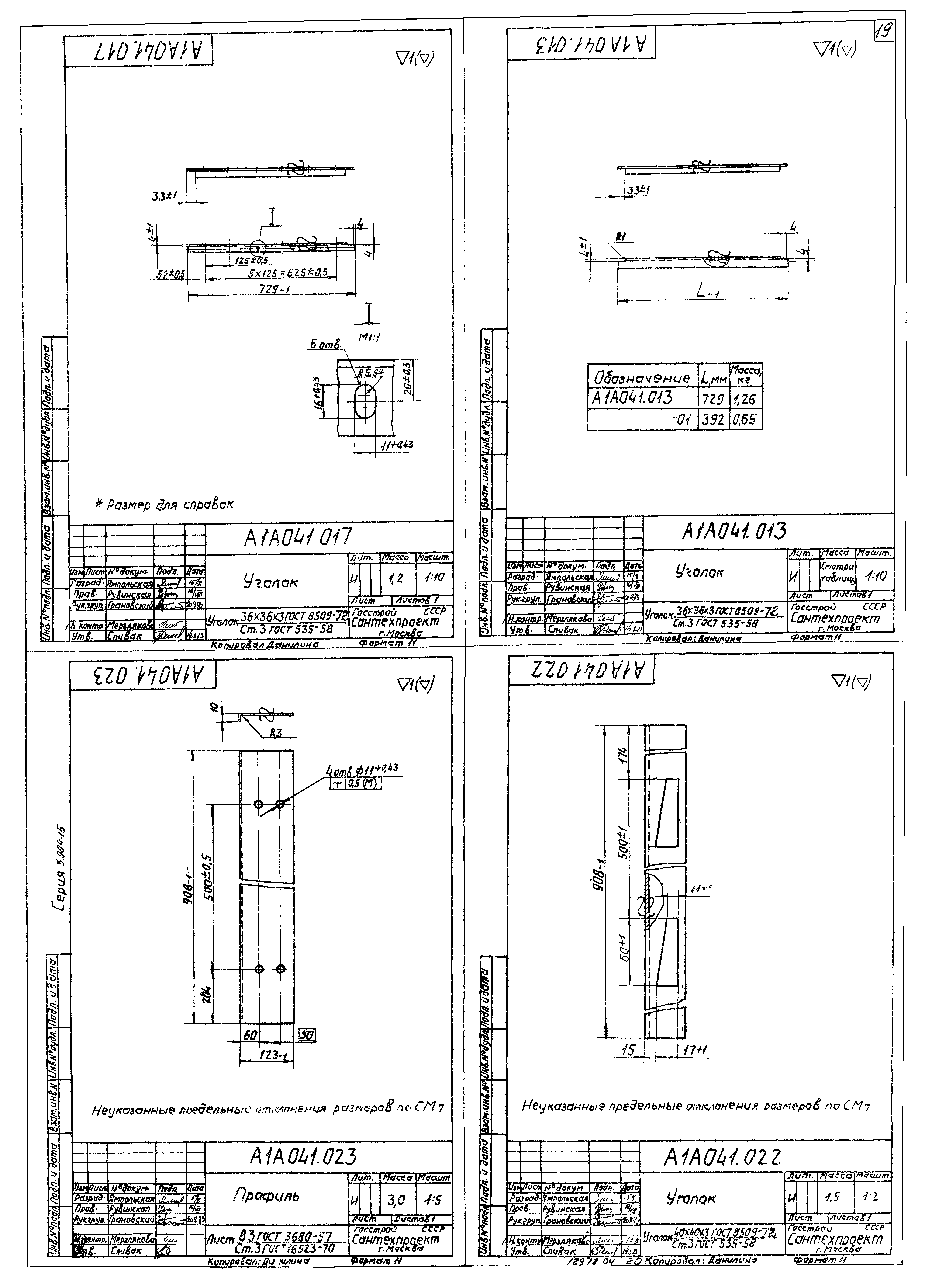
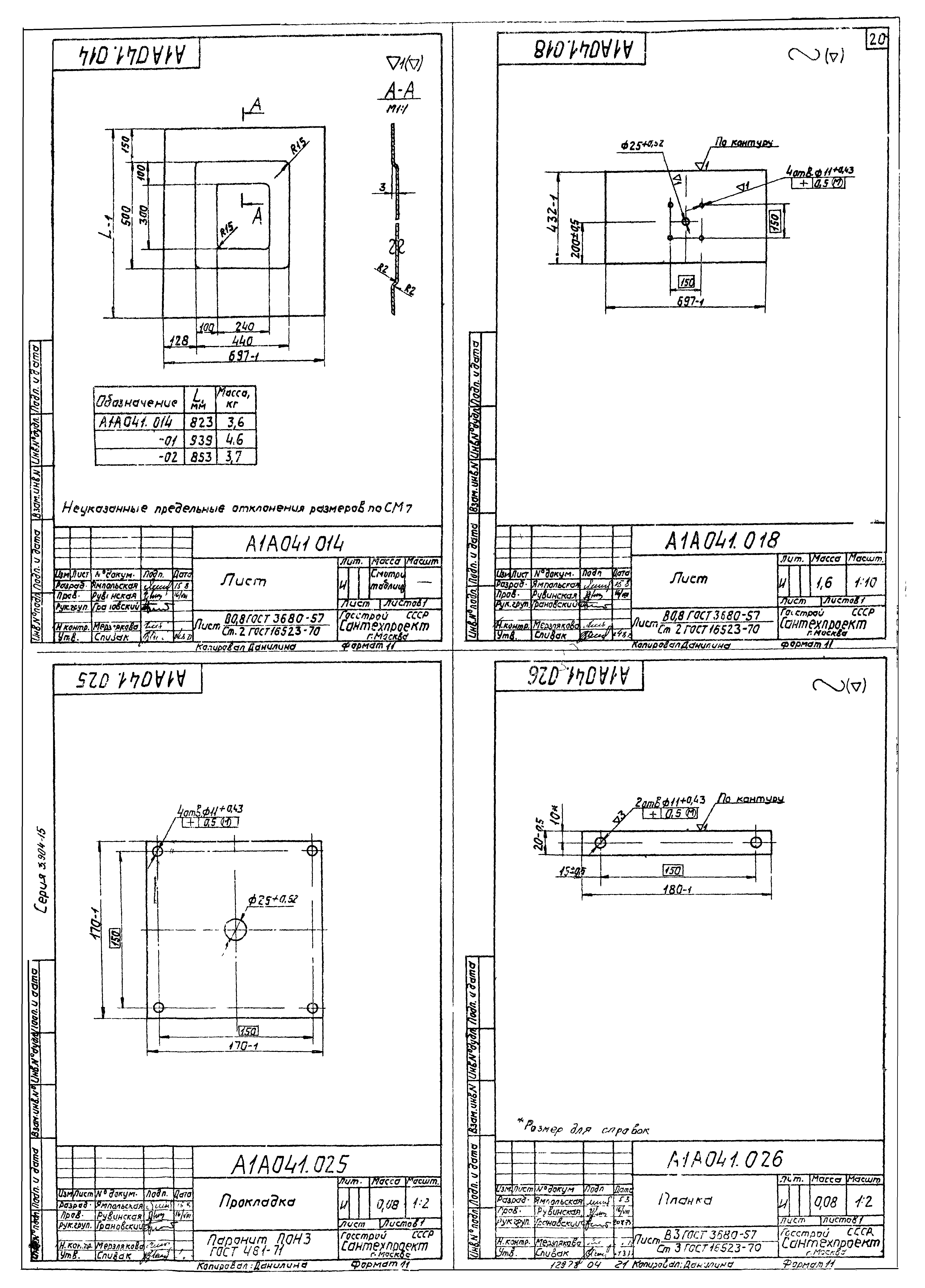
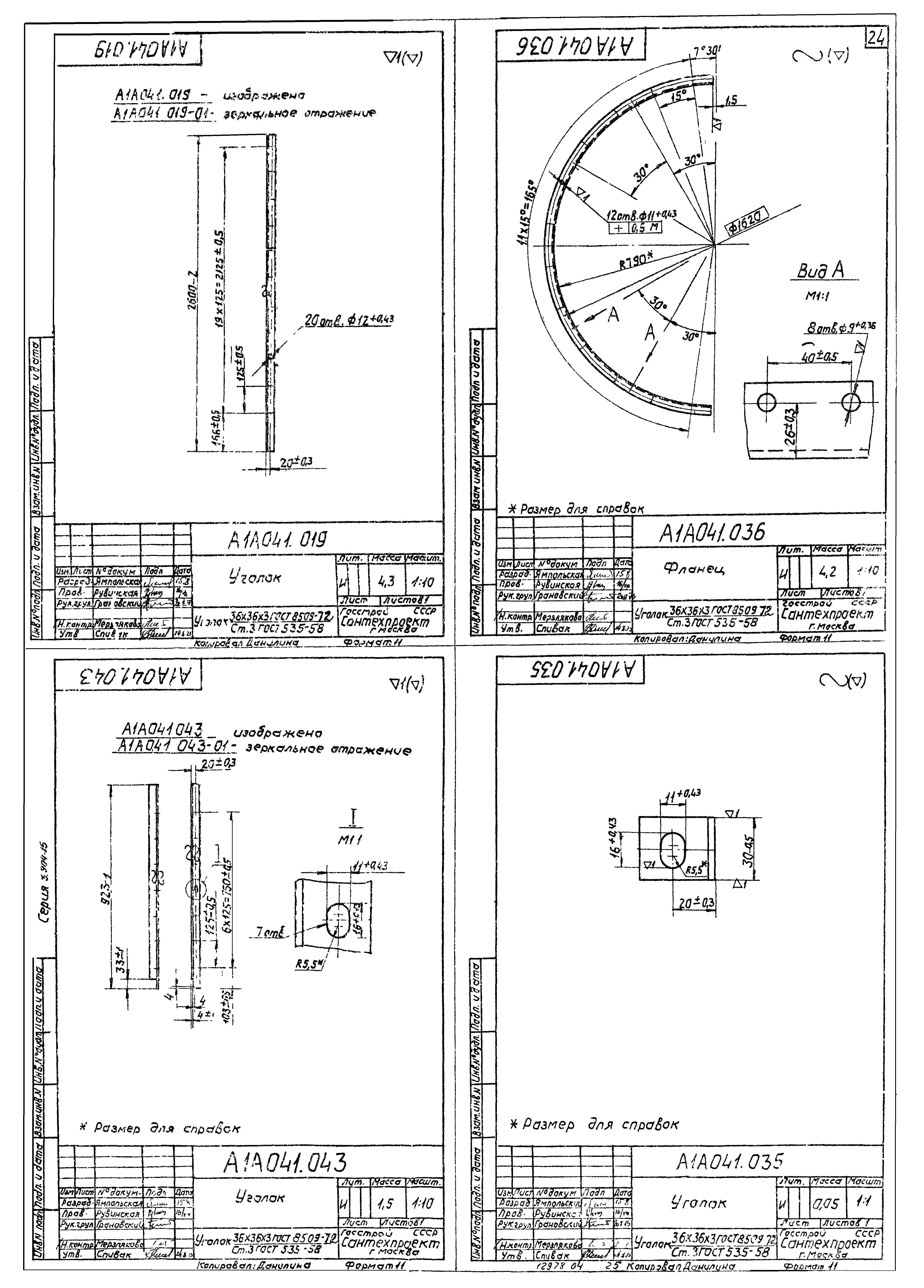
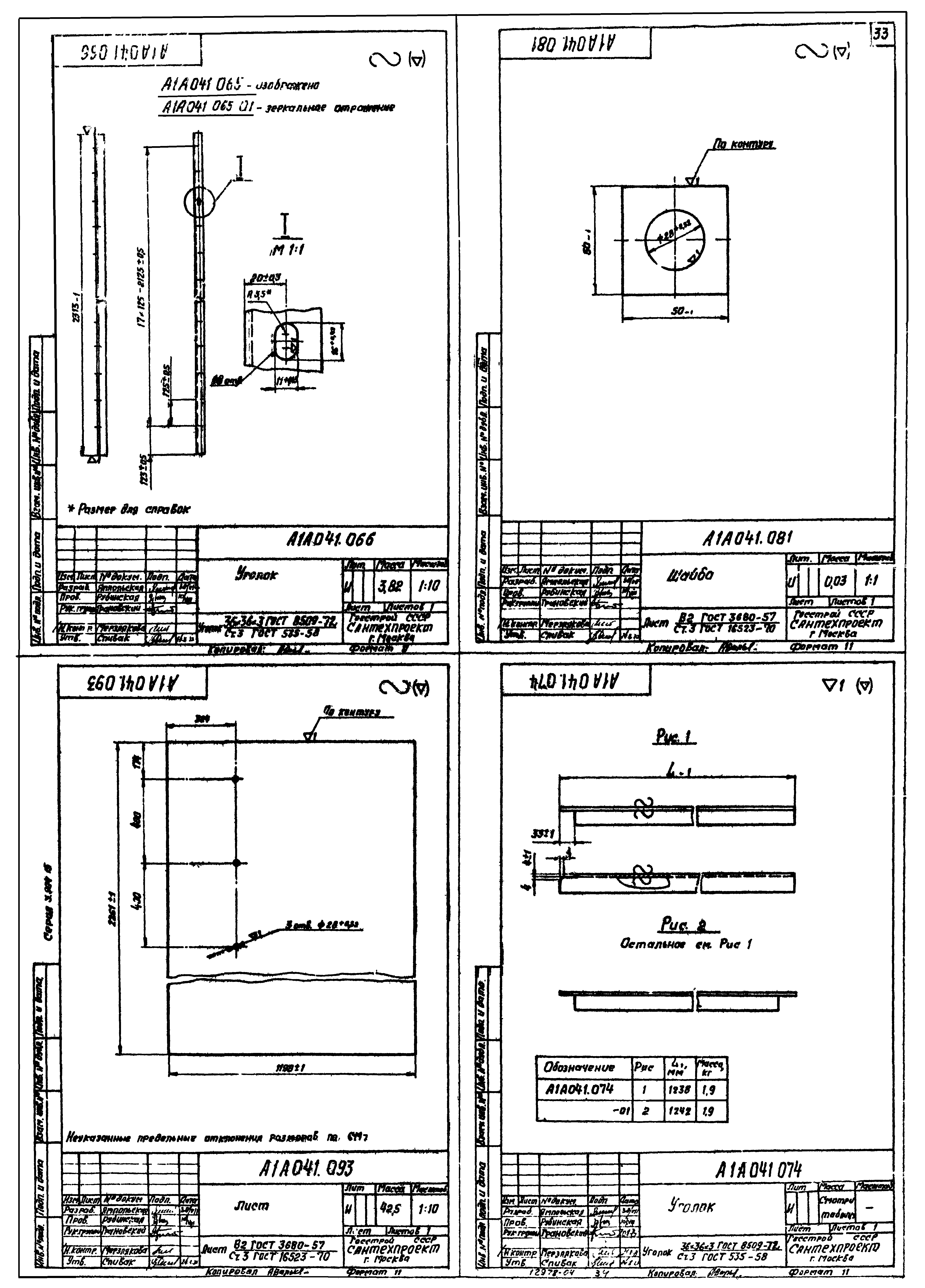
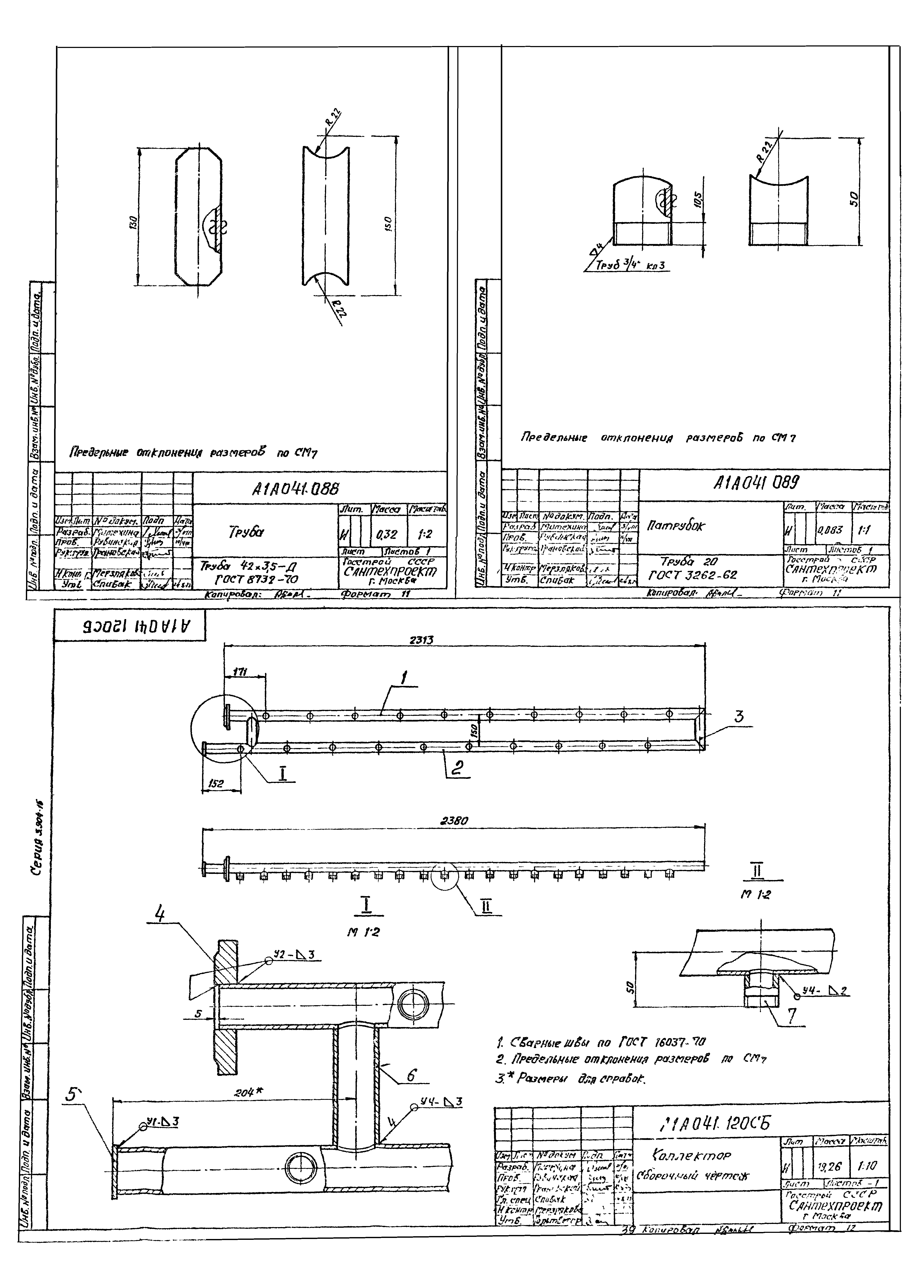
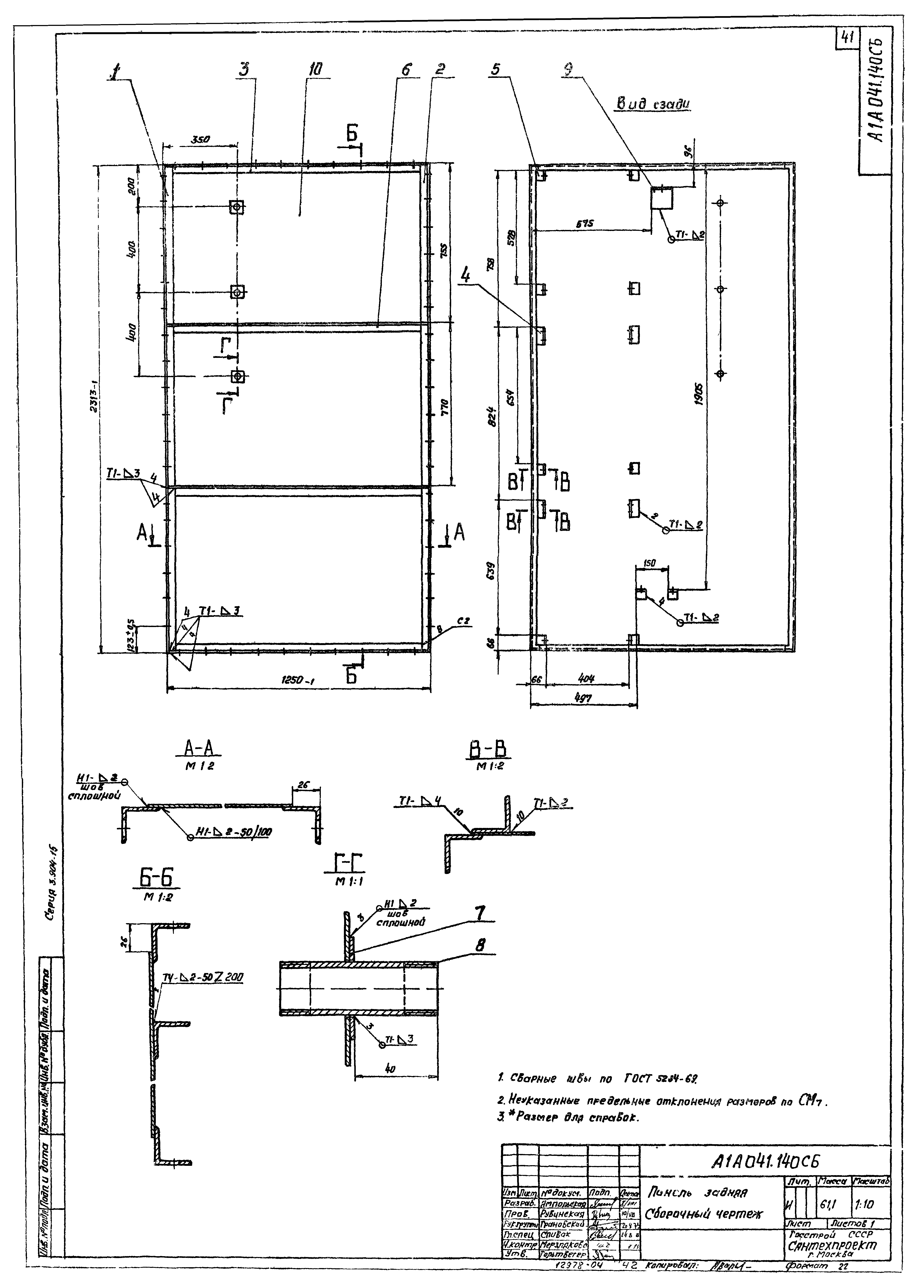
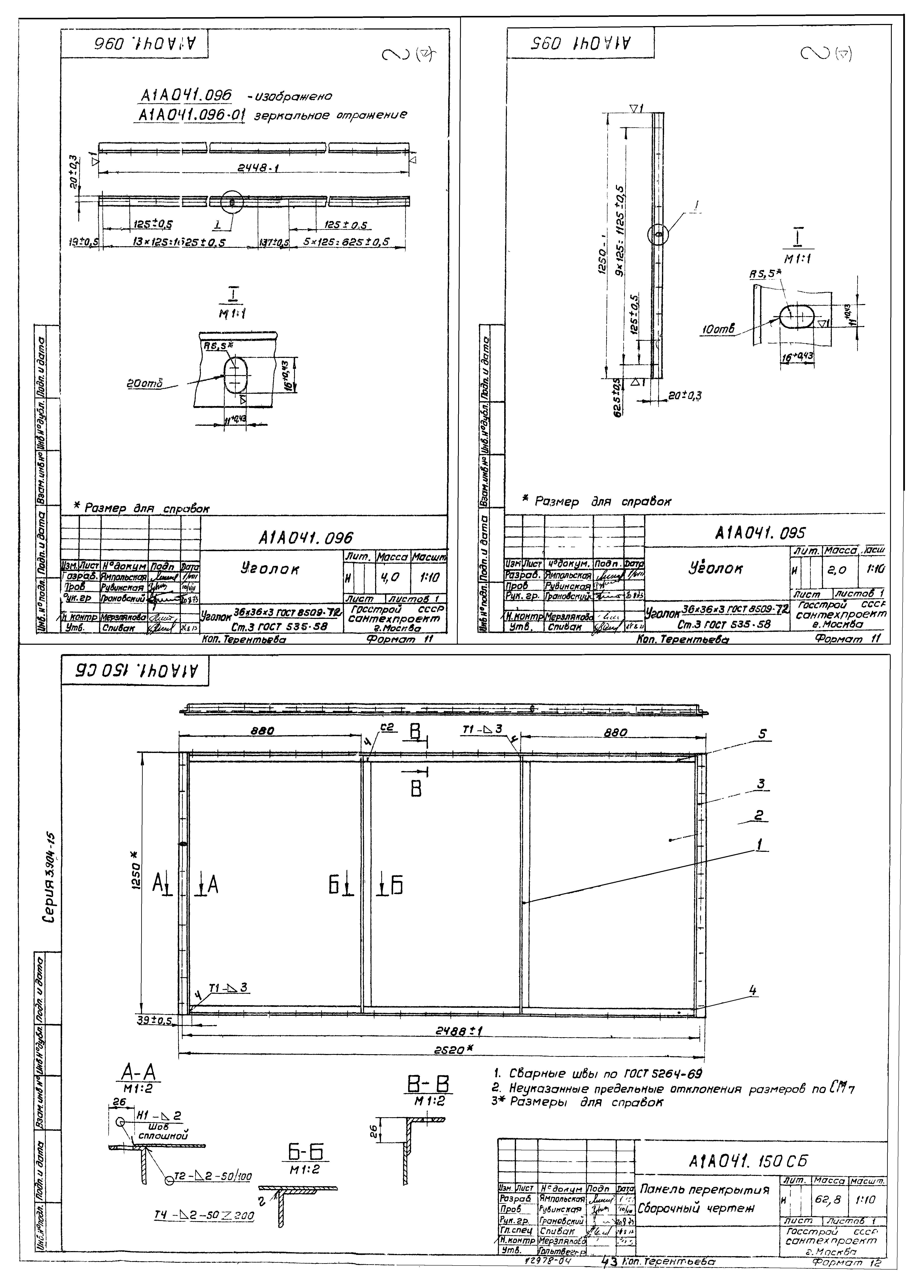
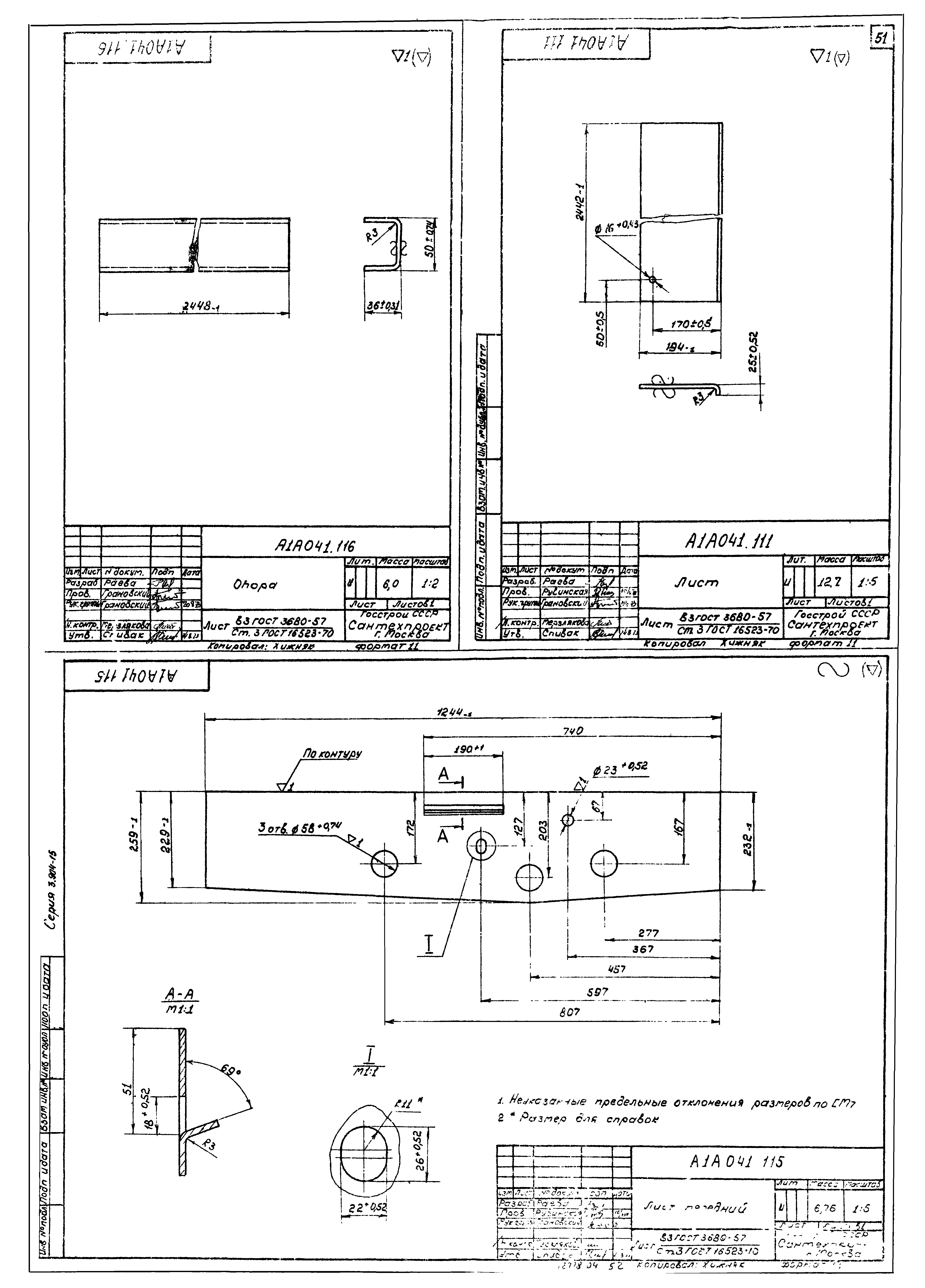
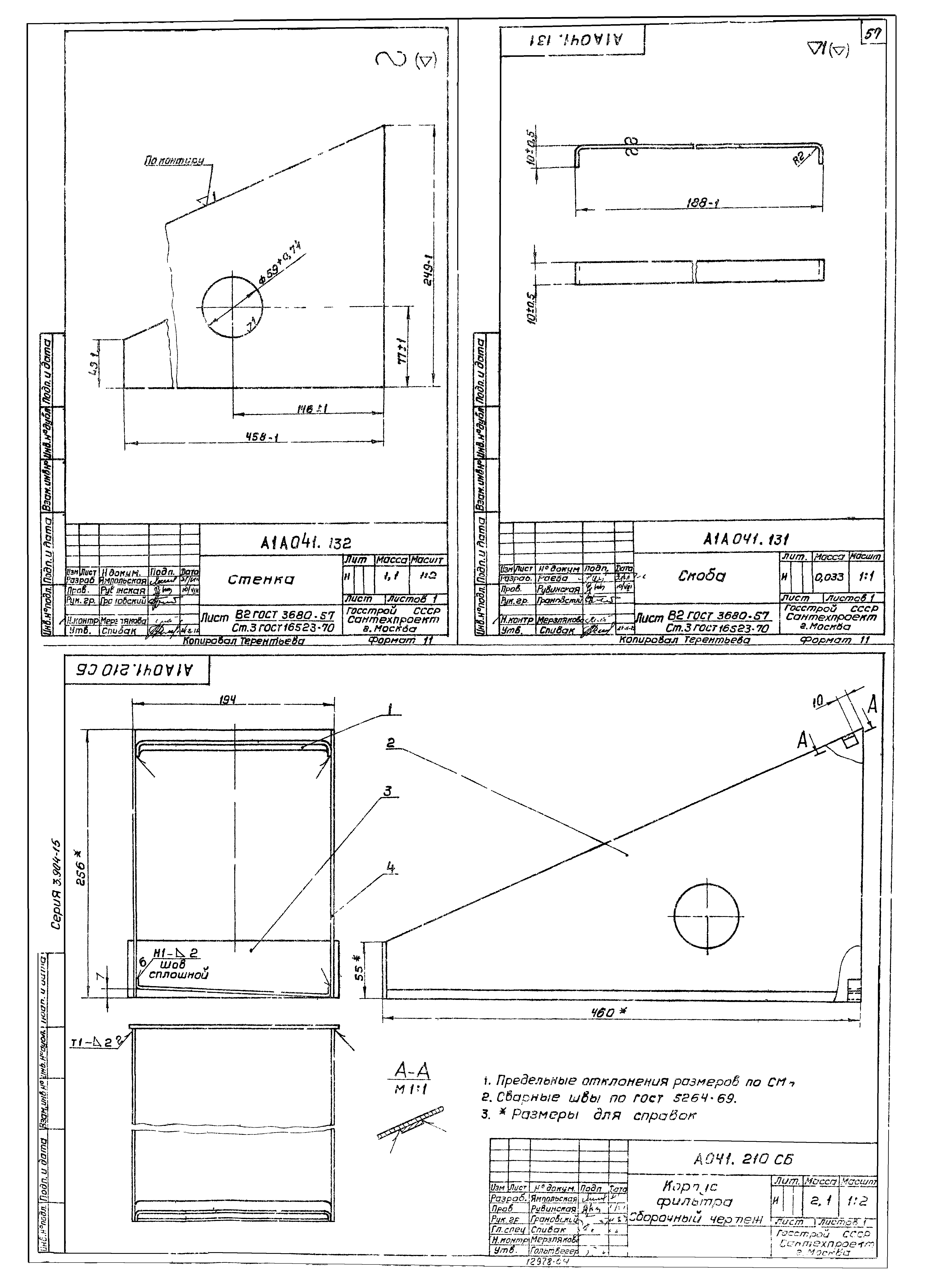
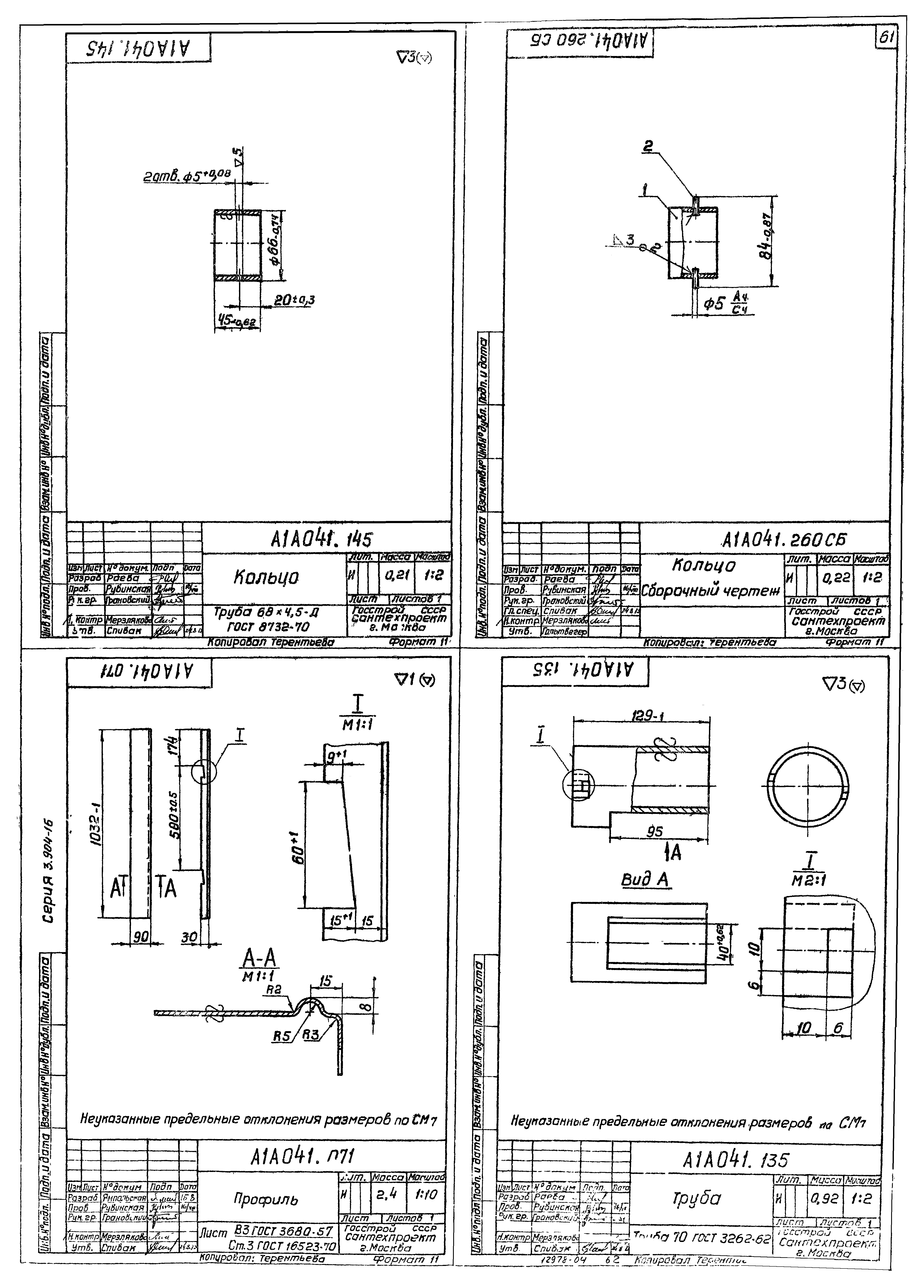
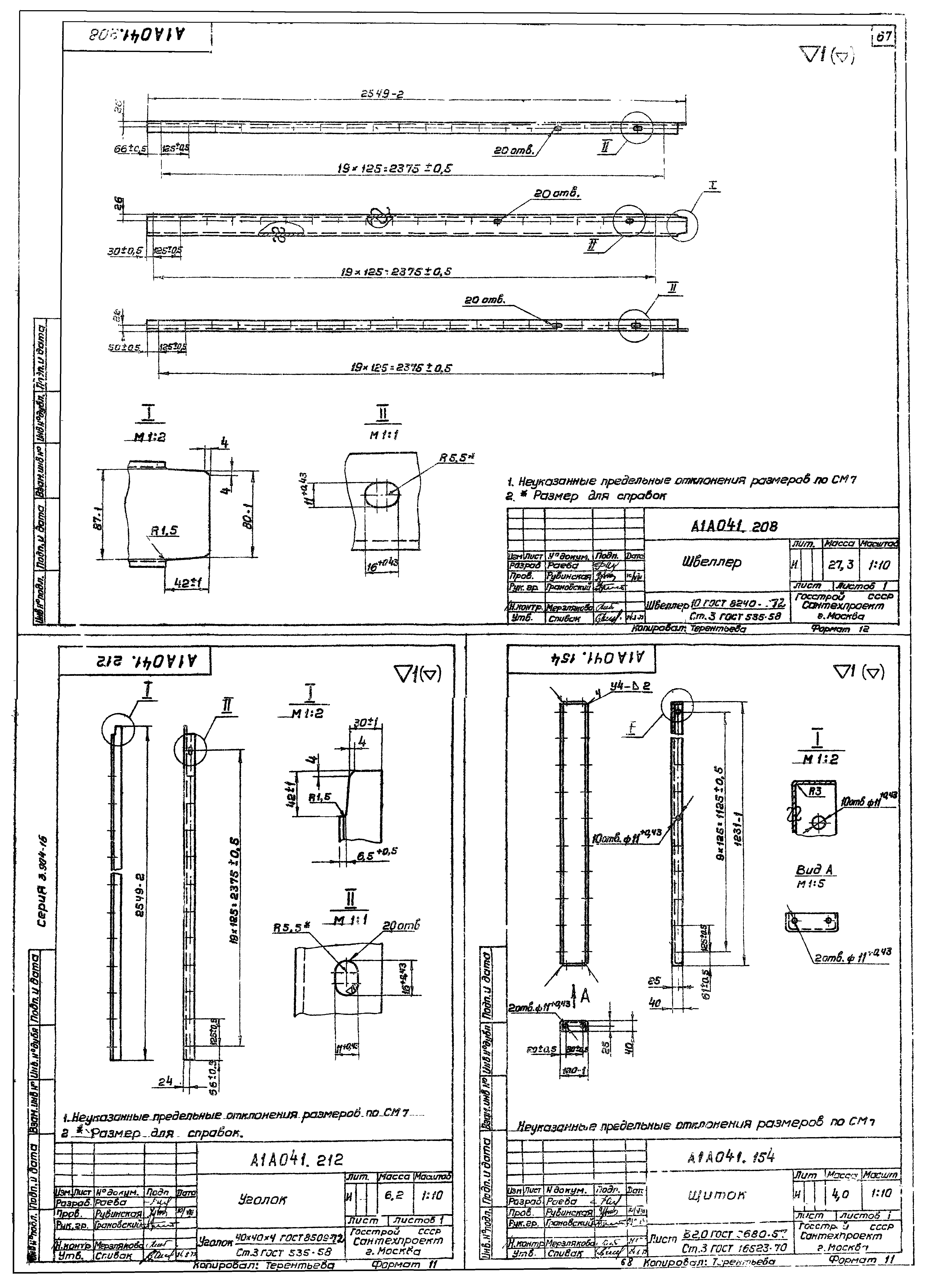
| Оглавление: | 3.904-15 Содержание 3.904-15 А1АО41.000ПЗ Пояснительная записка 3.904-15 А1АО41.000 Приточная вентиляционная камера типа 1ПК50 с секцией орошения 3.904-15 А1АО42.000 Приточная вентиляционная камера типа 1ПК50 с фильтром 3.904-15 А1АО43.000 Приточная вентиляционная камера типа 1ПК50 3.904-15 А1АО41.010 Секция соединительная 3.904-15 А1АО41.020 Панель перекрытия 3.904-15 А1АО41.030 Панель передняя 3.904-15 А1АО41.040 Панель задняя 3.904-15 А1АО41.050 Панель торцевая 3.904-15 А1АО41.060 Конфузор 3.904-15 А1АО41.070 Сектор 3.904-15 А1АО41.080 Решетка ограждающая 3.904-15 А1АО41.090 Секция орошения 3.904-15 А1АО41.100 Панель передняя 3.904-15 А1АО41.110 Коллектор 3.904-15 А1АО41.120 Коллектор 3.904-15 А1АО41.130 Стояк 3.904-15 А1АО41.140 Панель задняя 3.904-15 А1АО41.150 Панель перекрытия 3.904-15 А1АО41.160 Узел подачи воды к форсункам 3.904-15 А1АО41.170 Поддон 3.904-15 А1АО41.180 Каркас 3.904-15 А1АО41.190 Ограничитель уровня воды 3.904-15 А1АО41.200 Патрубок 3.904-15 А1АО41.210 Корпус фильтра 3.904-15 А1АО41.220 Труба 3.904-15 А1АО41.230 Труба 3.904-15 А1АО41.240 Опора 3.904-15 А1АО41.250 Фильтр 3.904-15 А1АО41.260 Кольцо 3.904-15 А1АО41.270 Патрубок с фланцем 3.904-15 А1АО41.280 Секция калориферная 3.904-15 А1АО41.290 Рама 3.904-15 А1АО41.300 Щиток |
| Разработан: | ГПИ Сантехпроект Госстроя СССР |
| Утверждён: | 26.09.1974 Главпромстройпроект Госстроя СССР (42) |
| Чем заменён: |
|












































































