Скачать Серия 3.904-15 Выпуск 1-10. Конструкции камер. Рабочие чертежи. Установка резервных вентиляторов для приточных вентиляционных камер типа 1ПКДата актуализации: 01.01.2021
|
| Обозначение: | Серия 3.904-15 |
| Обозначение англ: | Series 3.904-15 |
| Статус: | не действует |
| Название рус.: | Выпуск 1-10. Конструкции камер. Рабочие чертежи. Установка резервных вентиляторов для приточных вентиляционных камер типа 1ПК |
| Дата добавления в базу: | 01.09.2013 |
| Дата актуализации: | 01.01.2021 |
| Дата введения: | 01.12.1976 |
| Дата окончания срока действия: | 01.10.1982 |
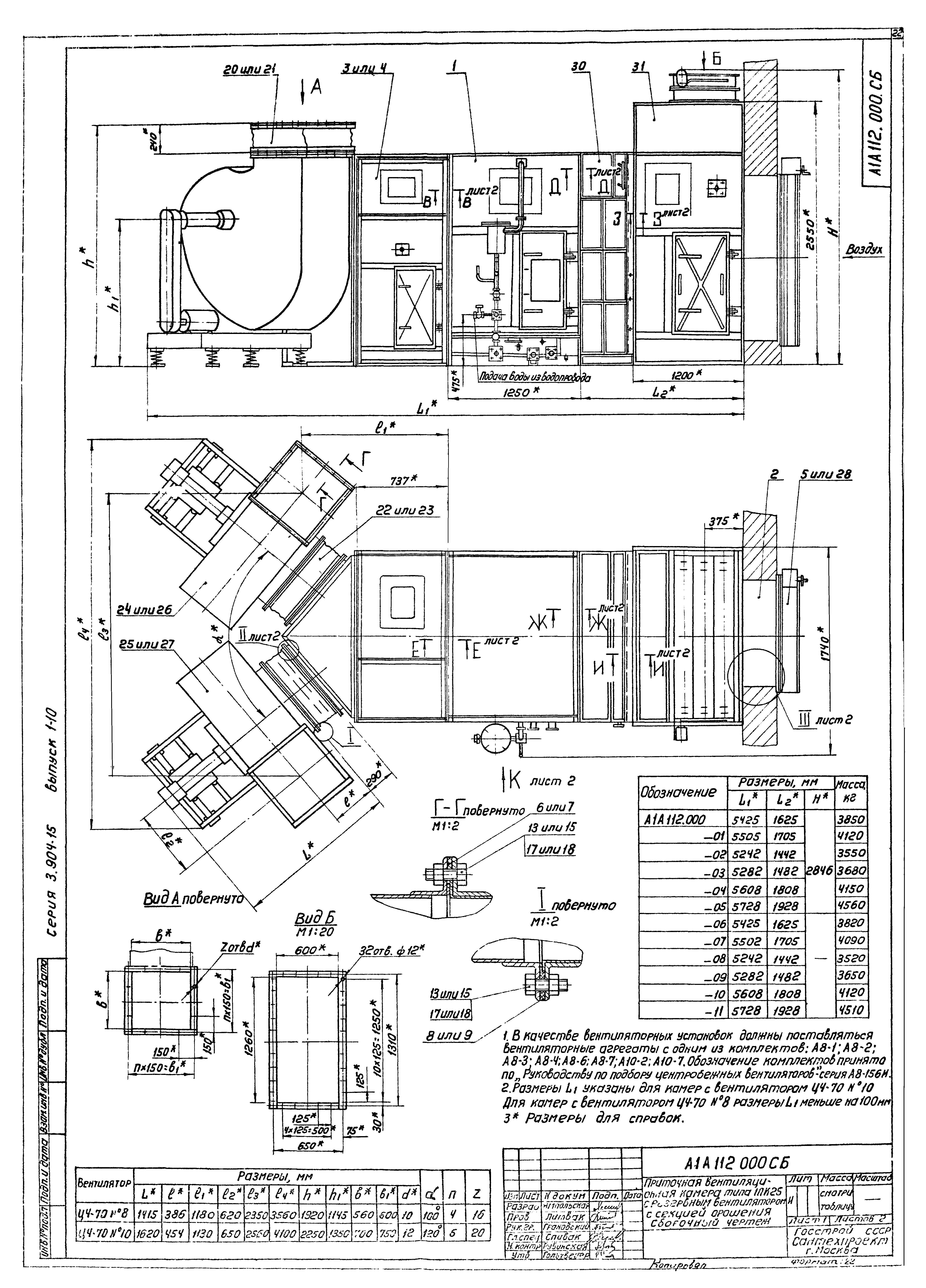
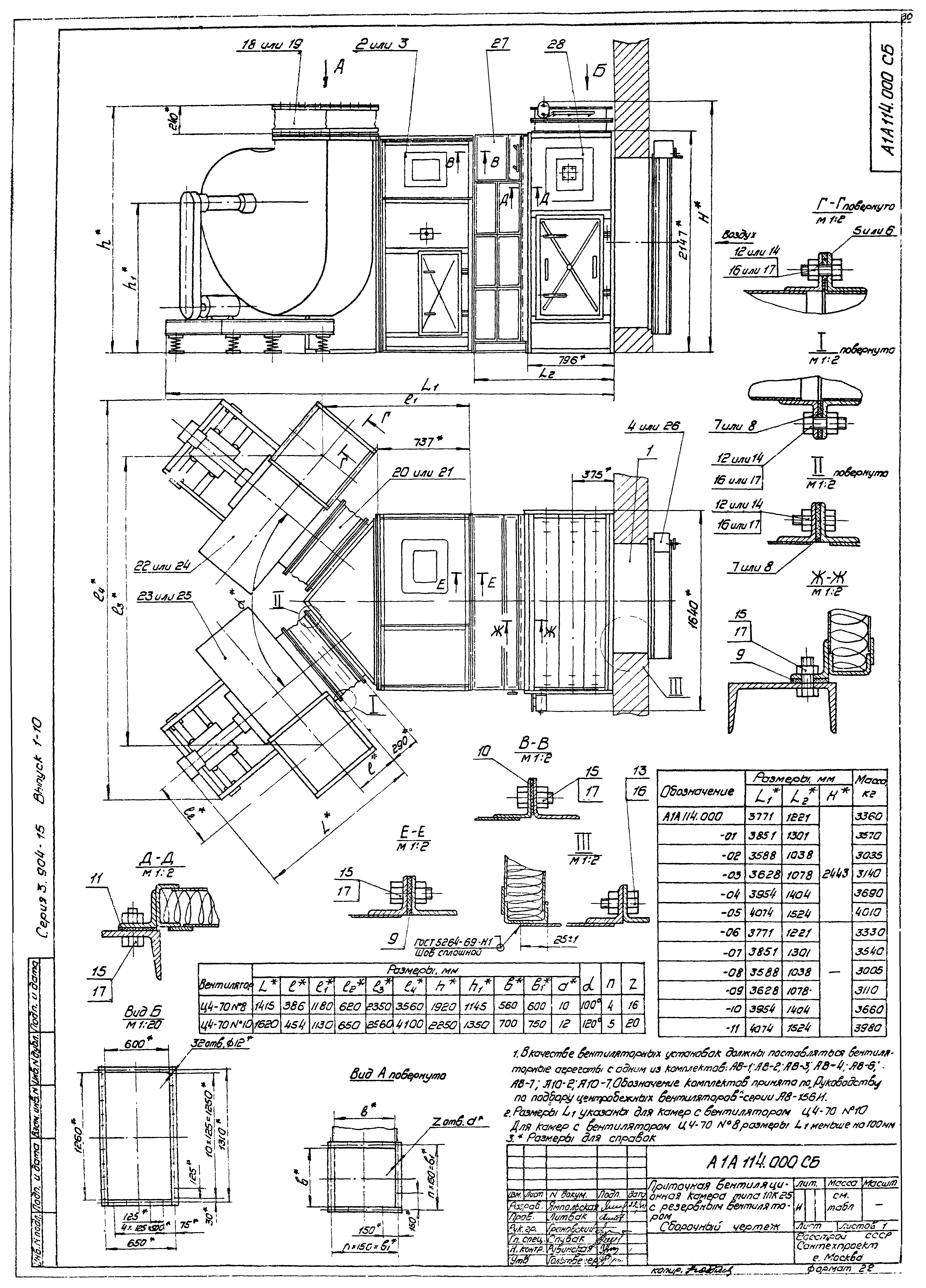
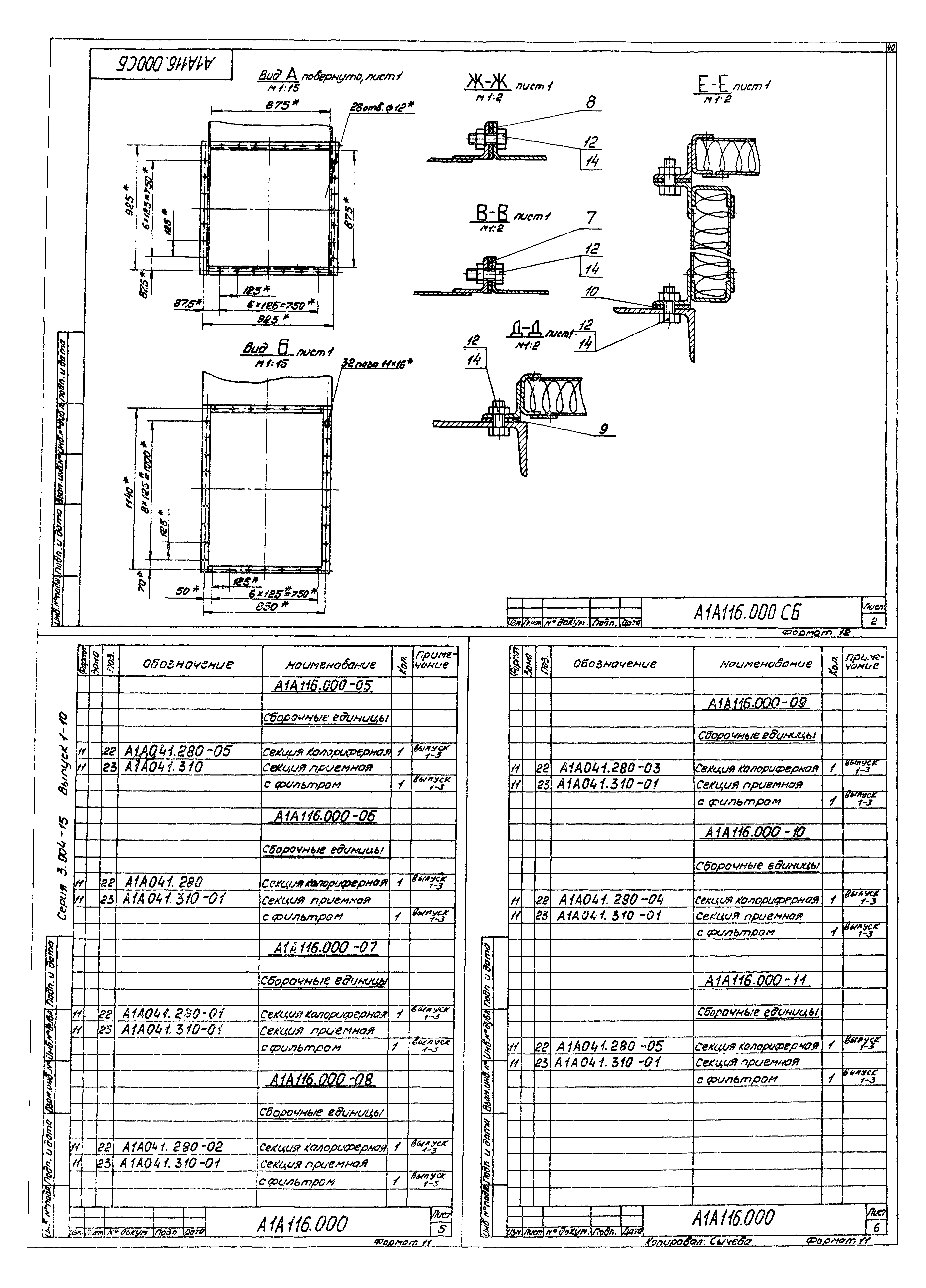
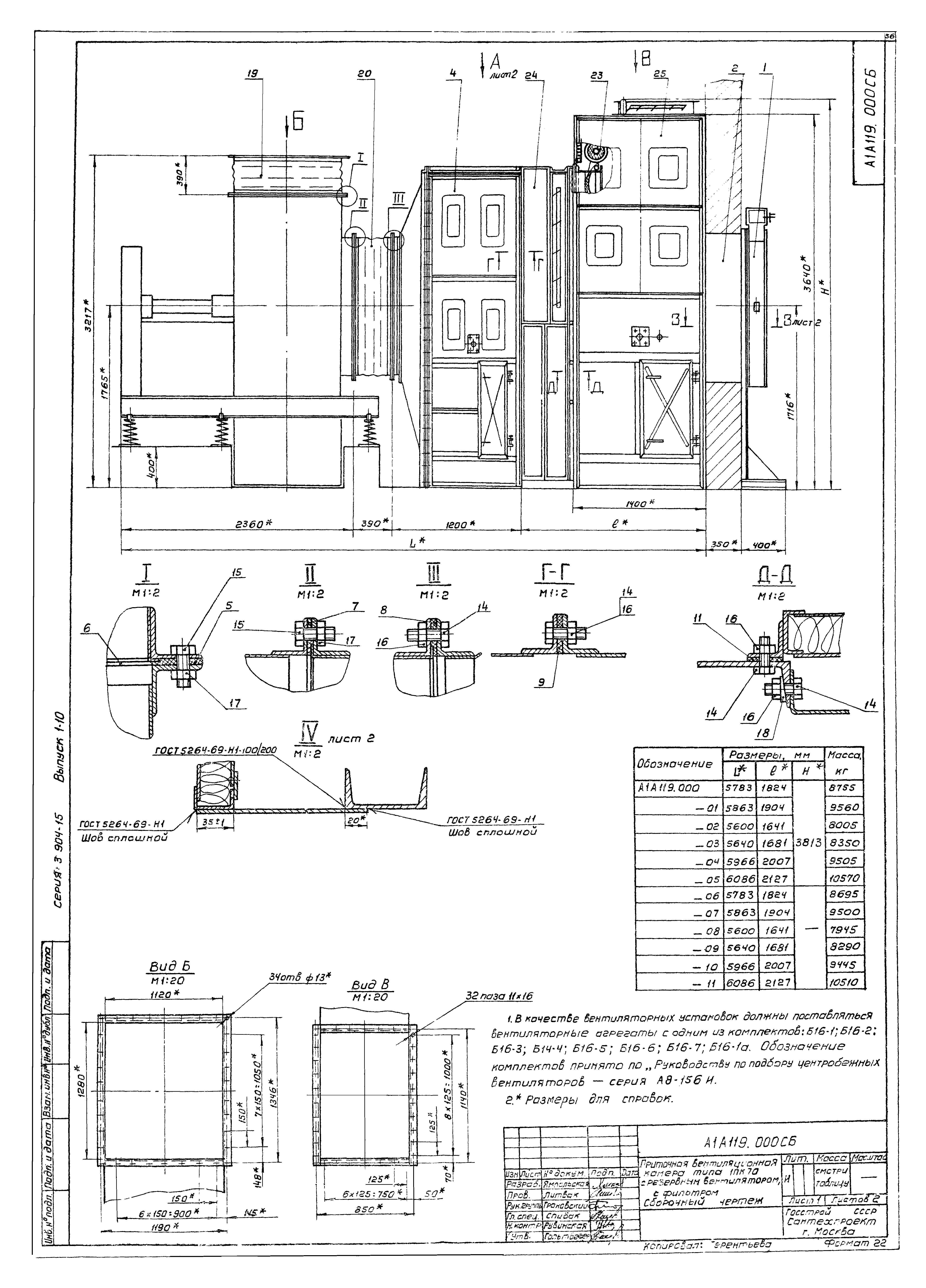
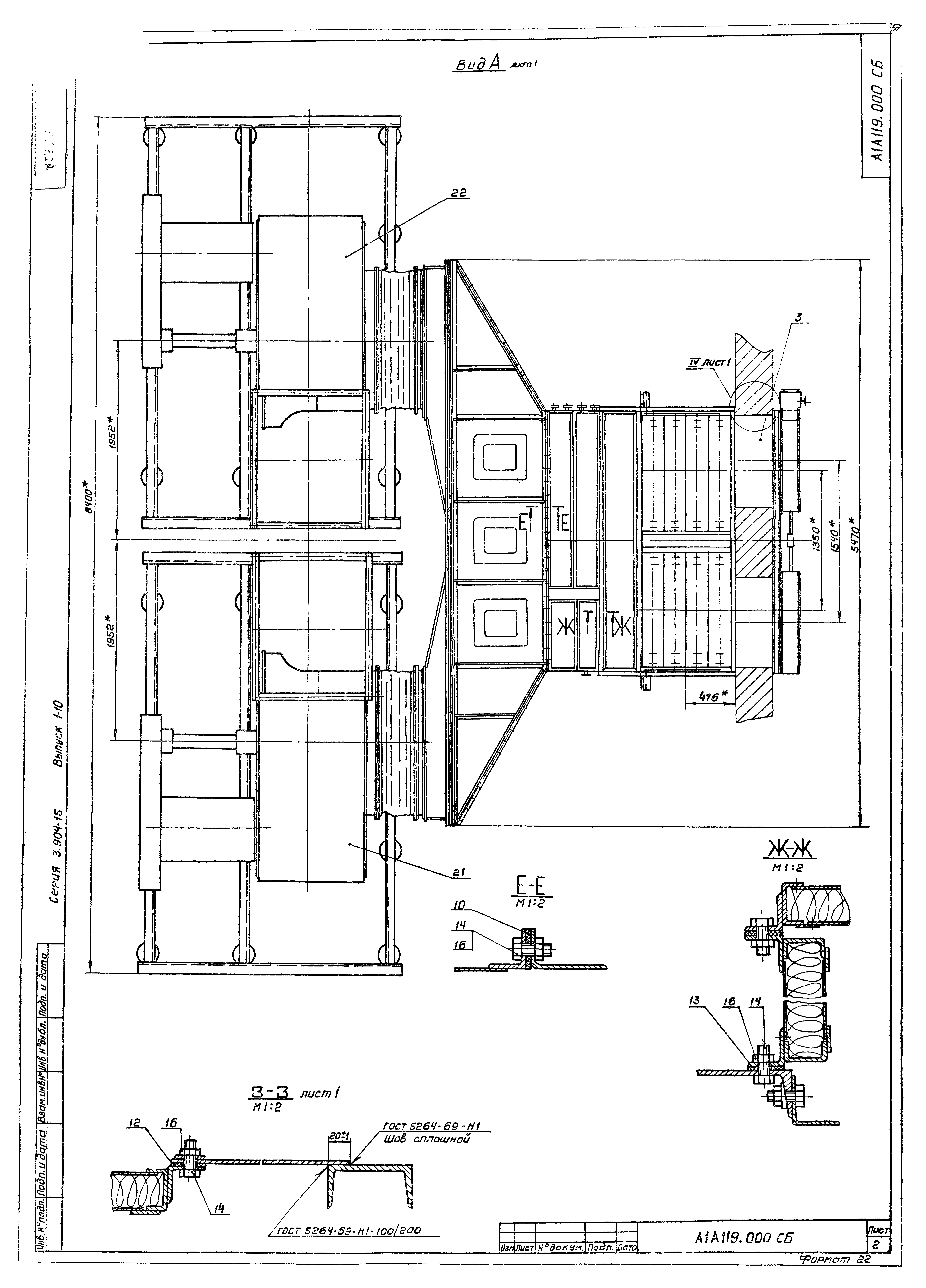
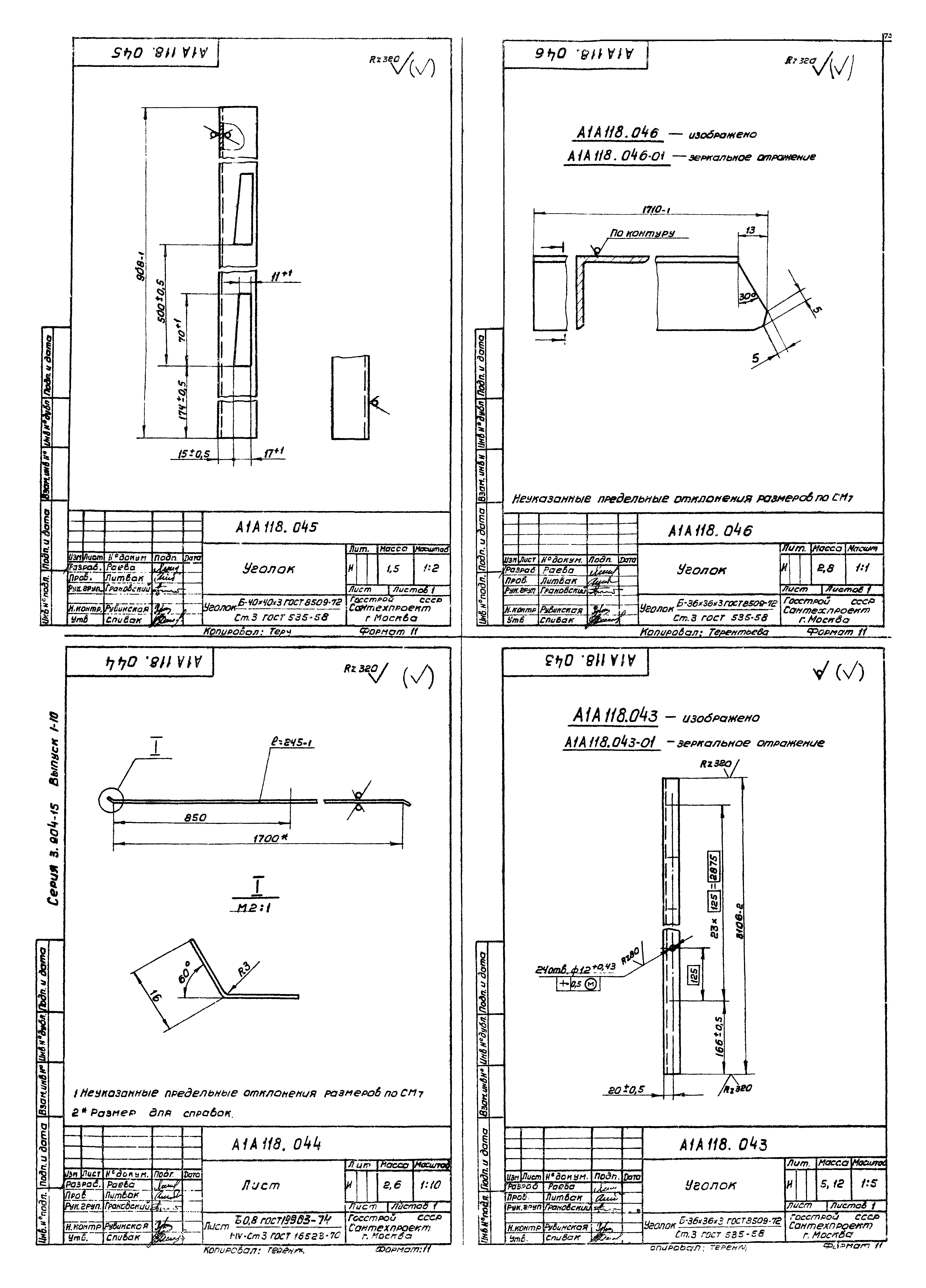
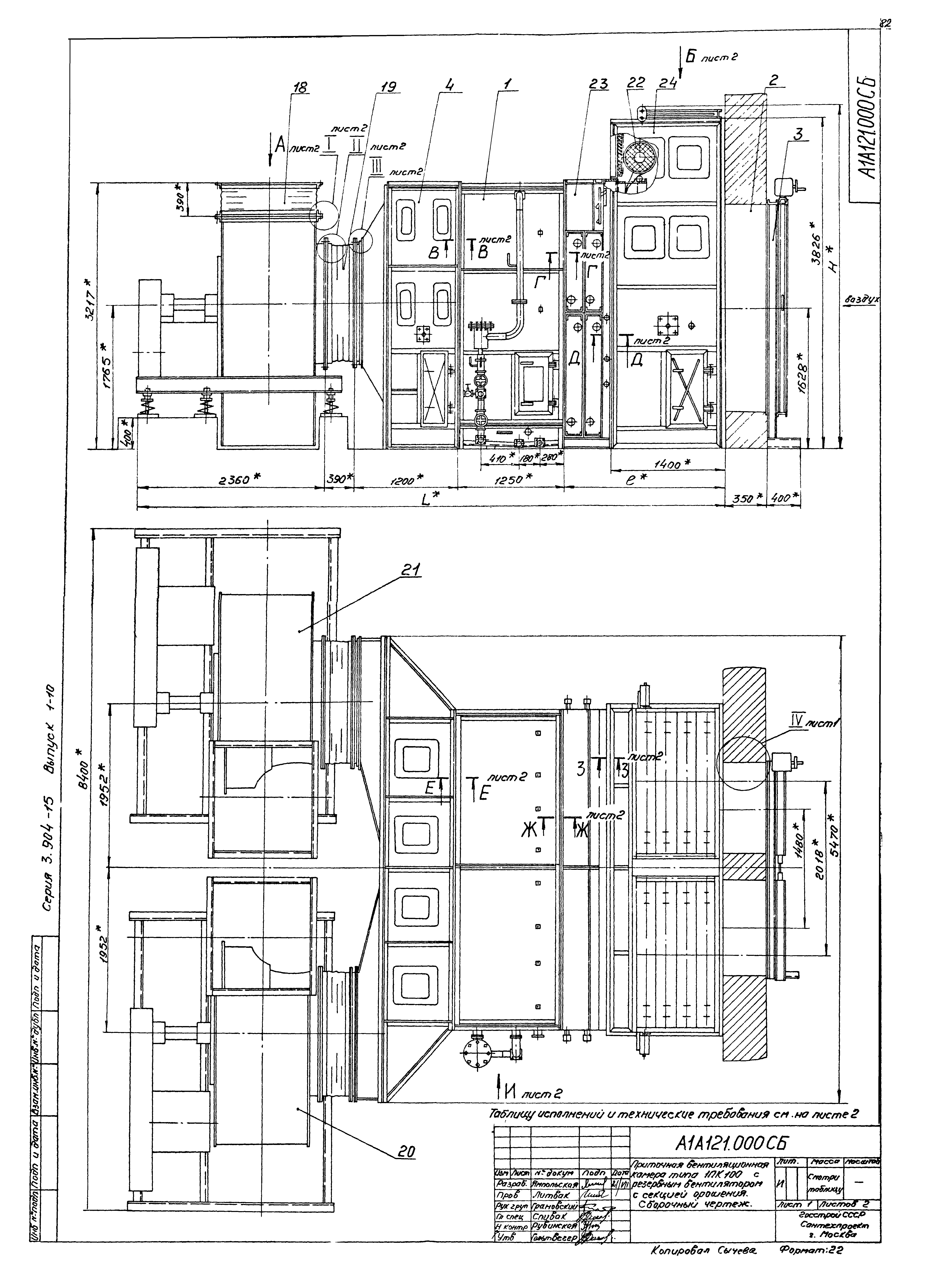
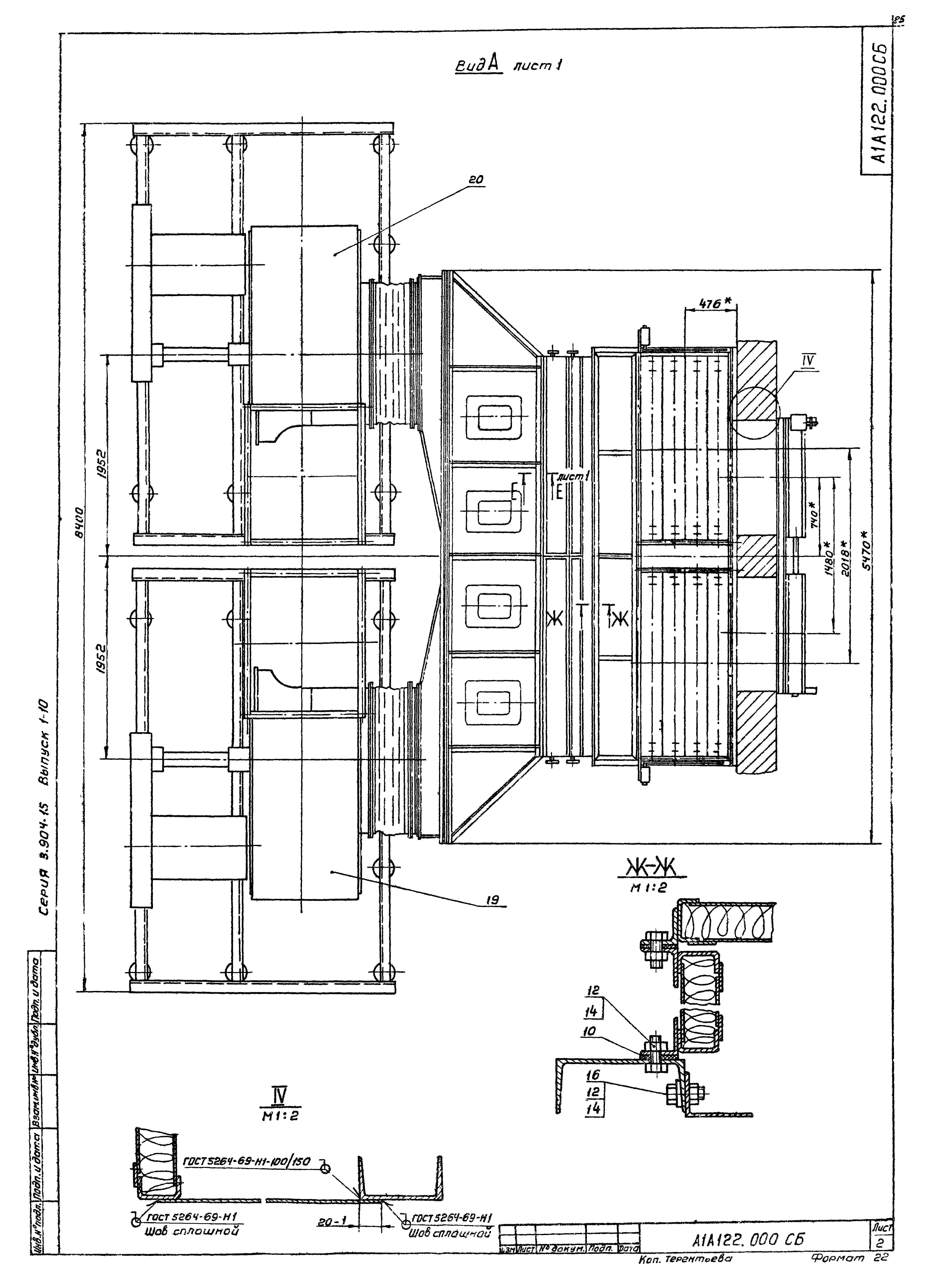
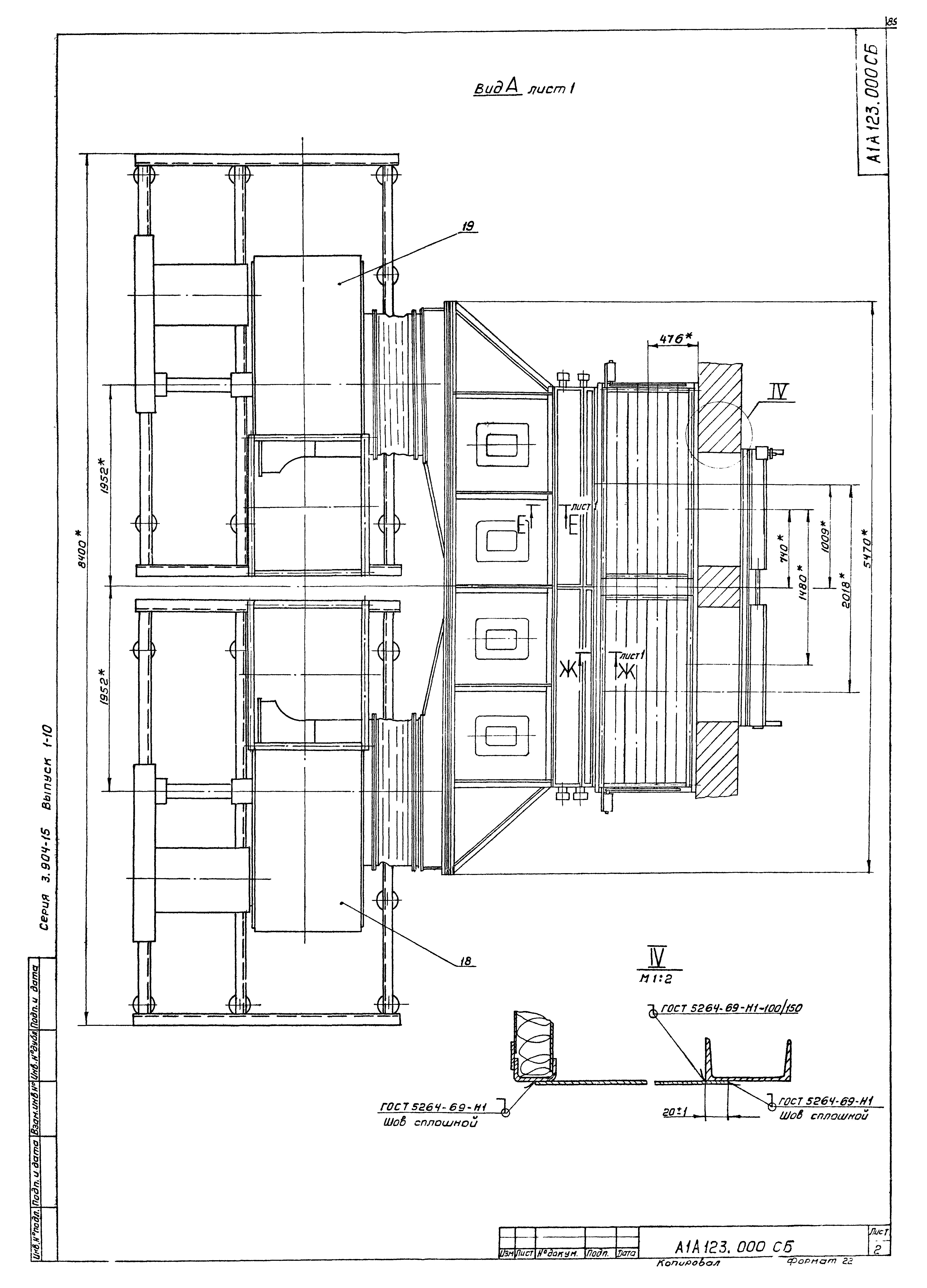
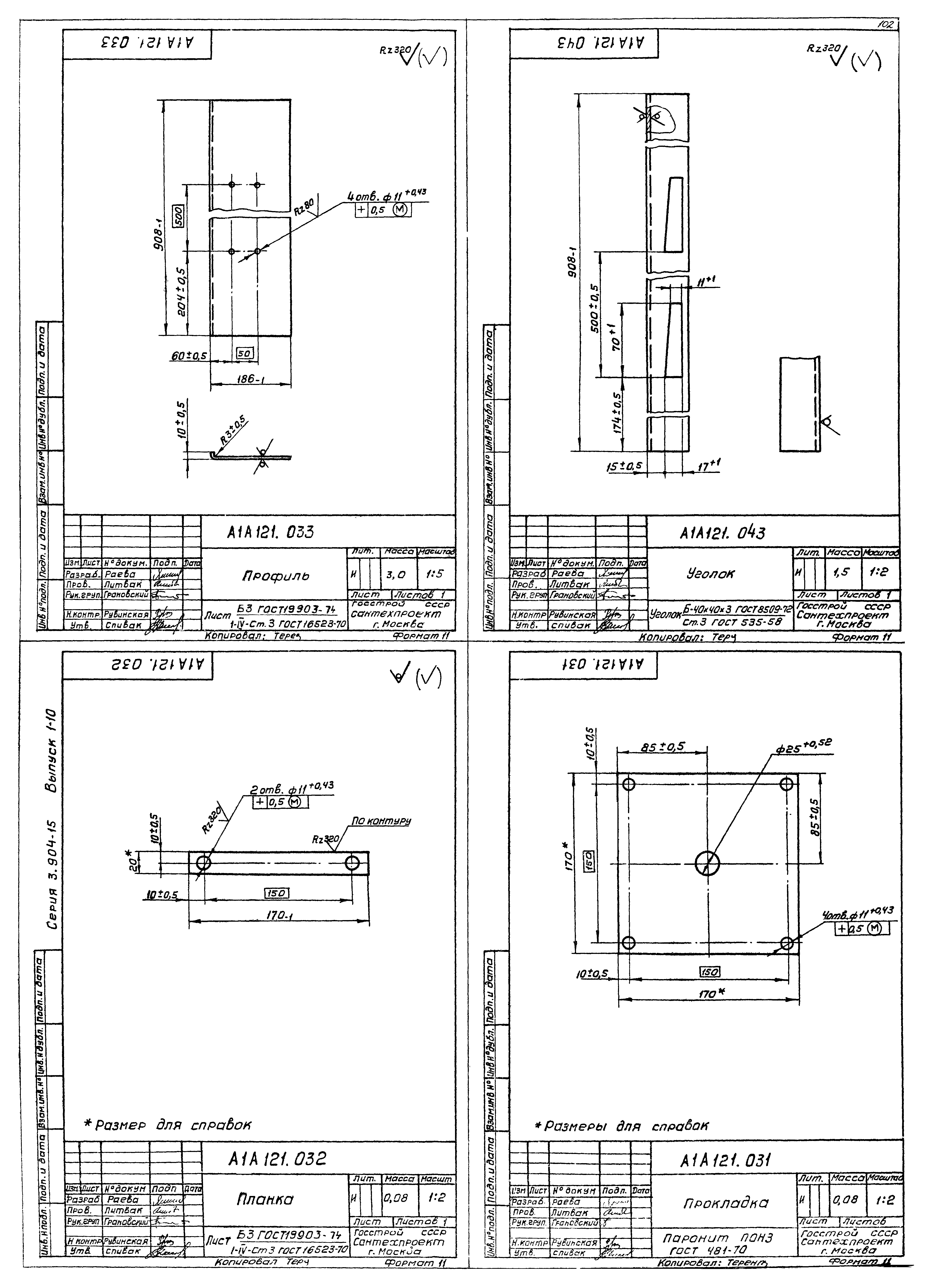
| Оглавление: | 3.904-15 Содержание альбома 3.904-15 А1АО41.000ТО Техническое описание 3.904-15 А1А109.000 Приточная вентиляционная камера типа 1ПК10 с резервным вентилятором с секцией орошения 3.904-15 А1А109.025 Профиль 3.904-15 А1А109.000 СБ Приточная вентиляционная камера типа 1ПК10 с резервным вентилятором с секцией орошения. Сборочный чертеж 3.904-15 А1А110.000 Приточная вентиляционная камера типа 1ПК10 с резервным вентилятором с фильтром 3.904-15 А1А109.019 Уголок 3.904-15 А1А109.023 Сектор 3.904-15 А1А109.018 Уголок 3.904-15 А1А110.000 СБ Приточная вентиляционная камера типа 1ПК10 с резервным вентилятором с фильтром. Сборочный чертеж 3.904-15 А1А111.000 Приточная вентиляционная камера типа 1ПК10 с резервным вентилятором 3.904-15 А1А109.024 Уголок 3.904-15 А1А111.000 СБ Приточная вентиляционная камера типа 1ПК10 с резервным вентилятором. Сборочный чертеж 3.904-15 А1А109.010 Секция соединительная 3.904-15 А1А109.020 Панель торцевая 3.904-15 А1А109.010 СБ Секция соединительная. Сборочный чертеж 3.904-15 А1А109.020 СБ Панель торцевая. Сборочный чертеж 3.904-15 А1А109.030 Сектор 3.904-15 А1А109.040 Решетка ограждающая 3.904-15 А1А109.022 Скоба 3.904-15 А1А109.023 Лист 3.904-15 А1А109.027 Фланец 3.904-15 А1А109.030 СБ Сектор. Сборочный чертеж 3.904-15 А1А109.040 СБ Решетка ограждающая 3.904-15 А1А109.032 Пруток 3.904-15 А1А109.026 Лист 3.904-15 А1А112.000 Приточная вентиляционная камера типа 1ПК25 с резервным вентилятором с секцией орошения 3.904-15 А1А112.022 Скоба 3.904-15 А1А112.000 СБ Приточная вентиляционная камера типа 1ПК25 с резервным вентилятором с секцией орошения. Сборочный чертеж 3.904-15 А1А112.024 Уголок 3.904-15 А1А112.025 Профиль 3.904-15 А1А113.000 Приточная вентиляционная камера типа 1ПК25 с резервным вентилятором с фильтром 3.904-15 А1А112.019 Уголок 3.904-15 А1А113.000 СБ Приточная вентиляционная камера типа 1ПК25 с резервным вентилятором с фильтром. Сборочный чертеж 3.904-15 А1А114.000 Приточная вентиляционная камера типа 1ПК25 с резервным вентилятором 3.904-15 А1А112.010 Секция соединительная 3.904-15 А1А112.018 Уголок 3.904-15 А1А114.000 СБ Приточная вентиляционная камера типа 1ПК25 с резервным вентилятором. Сборочный чертеж 3.904-15 А1А112.010 СБ Секция соединительная. Сборочный чертеж 3.904-15 А1А112.020 Панель торцевая 3.904-15 А1А112.030 Сектор 3.904-15 А1А112.040 Решетка ограждающая 3.904-15 А1А112.020 СБ Панель торцевая. Сборочный чертеж 3.904-15 А1А112.030 СБ Сектор. Сборочный чертеж 3.904-15 А1А112.027 Фланец 3.904-15 А1А112.040 СБ Решетка ограждающая. Сборочный чертеж 3.904-15 А1А112.028 Кольцо 3.904-15 А1А112.031 Пруток 3.904-15 А1А115.000 Приточная вентиляционная камера типа 1ПК50 с резервным вентилятором с секцией орошения 3.904-15 А1А115.000 СБ Приточная вентиляционная камера типа 1ПК50 с резервным вентилятором с секцией орошения. Сборочный чертеж 3.904-15 А1А116.000 Приточная вентиляционная камера типа 1ПК50 с резервным вентилятором с фильтром 3.904-15 А1А116.000 СБ Приточная вентиляционная камера типа 1ПК50 с резервным вентилятором с фильтром. Сборочный чертеж 3.904-15 А1А117.000 Приточная вентиляционная камера типа 1ПК50 с резервным вентилятором 3.904-15 А1А115.018 Уголок 3.904-15 А1А115.028 Кольцо 3.904-15 А1А115.029 Пруток 3.904-15 А1А117.000 СБ Приточная вентиляционная камера типа 1ПК50 с резервным вентилятором. Сборочный чертеж 3.904-15 А1А115.010 Секция соединительная 3.904-15 А1А115.020 Панель торцевая 3.904-15 А1А115.030 Сектор 3.904-15 А1А115.010 СБ Секция соединительная. Сборочный чертеж 3.904-15 А1А115.020 СБ Панель торцевая. Сборочный чертеж 3.904-15 А1А115.027 Фланец 3.904-15 А1А115.026 Лист 3.904-15 А1А115.030 СБ Сектор. Сборочный чертеж 3.904-15 А1А115.040 Решетка ограждающая 3.904-15 А1А115.019 Уголок 3.904-15 А1А115.040 СБ Решетка ограждающая. Сборочный чертеж 3.904-15 А1А115.022 Скоба 3.904-15 А1А115.023 Лист 3.904-15 А1А115.024 Профиль 3.904-15 А1А115.025 Уголок 3.904-15 А1А118.000 Приточная вентиляционная камера типа 1ПК70 с резервным вентилятором с секцией орошения 3.904-15 А1А119.000 Приточная вентиляционная камера типа 1ПК70 с резервным вентилятором с фильтром 3.904-15 А1А118.000 СБ Приточная вентиляционная камера типа 1ПК70 с резервным вентилятором с секцией орошения. Сборочный чертеж 3.904-15 А1А119.000 СБ Приточная вентиляционная камера типа 1ПК70 с резервным вентилятором с фильтром. Сборочный чертеж 3.904-15 А1А120.000 Приточная вентиляционная камера типа 1ПК70 с резервным вентилятором 3.904-15 А1А118.010 Секция соединительная 3.904-15 А1А120.000 Приточная вентиляционная камера типа 1ПК70 с резервным вентилятором 3.904-15 А1А118.010 СБ Секция соединительная. Сборочный чертеж 3.904-15 А1А118.020 Панель перекрытия 3.904-15 А1А118.030 Панель передняя 3.904-15 А1А118.040 Панель задняя 3.904-15 А1А118.053 Лист 3.904-15 А1А118.055 Лист 3.904-15 А1А118.020 СБ Панель перекрытия. Сборочный чертеж 3.904-15 А1А118.030 СБ Панель передняя. Сборочный чертеж 3.904-15 А1А118.040 СБ Панель задняя. Сборочный чертеж 3.904-15 А1А118.050 Панель торцевая 3.904-15 А1А118.060 Сектор 3.904-15 А1А118.070 Фланец 3.904-15 А1А118.050 СБ Панель торцевая. Сборочный чертеж 3.904-15 А1А118.060 СБ Сектор. Сборочный чертеж 3.904-15 А1А118.080 Решетка ограждающая 3.904-15 А1А118.027 Лист 3.904-15 А1А118.024 Лист 3.904-15 А1А118.070 СБ Фланец. Сборочный чертеж 3.904-15 А1А118.080 СБ Решетка ограждающая. Сборочный чертеж 3.904-15 А1А118.031 Уголок 3.904-15 А1А118.029 Лист 3.904-15 А1А118.026 Уголок 3.904-15 А1А118.025 Уголок 3.904-15 А1А118.038 Уголок 3.904-15 А1А118.033 Планка 3.904-15 А1А118.032 Прокладка 3.904-15 А1А118.036 Лист 3.904-15 А1А118.042 Лист 3.904-15 А1А118.034 Профиль 3.904-15 А1А118.045 Уголок 3.904-15 А1А118.046 Уголок 3.904-15 А1А118.044 Лист 3.904-15 А1А118.043 Уголок 3.904-15 А1А118.047 Планка 3.904-15 А1А118.052 Лист 3.904-15 А1А118.039 Лист 3.904-15 А1А118.058 Уголок 3.904-15 А1А118.059 Уголок 3.904-15 А1А118.057 Уголок 3.904-15 А1А118.056 Лист 3.904-15 А1А118.062 Фланец 3.904-15 А1А118.061 Лист 3.904-15 А1А118.063 Патрубок 3.904-15 А1А118.049 Скоба 3.904-15 А1А121.000 Приточная вентиляционная камера типа 1ПК100 с резервным вентилятором с секцией орошения 3.904-15 А1А122.000 Приточная вентиляционная камера типа 1ПК100 с резервным вентилятором с фильтром 3.904-15 А1А121.000 СБ Приточная вентиляционная камера типа 1ПК100 с резервным вентилятором с секцией орошения. Сборочный чертеж 3.904-15 А1А122.000 СБ Приточная вентиляционная камера типа 1ПК100 с резервным вентилятором с фильтром. Сборочный чертеж 3.904-15 А1А123.000 Приточная вентиляционная камера типа 1ПК100 с резервным вентилятором 3.904-15 А1А121.062 Пруток 3.904-15 А1А121.061 Фланец 3.904-15 А1А121.059 Лист 3.904-15 А1А123.000 СБ Приточная вентиляционная камера типа 1ПК100 с резервным вентилятором. Сборочный чертеж 3.904-15 А1А121.010 Секция соединительная 3.904-15 А1А121.020 Панель перекрытия 3.904-15 А1А118.028 Уголок 3.904-15 А1А121.010 СБ Секция соединительная. Сборочный чертеж 3.904-15 А1А121.030 Панель передняя 3.904-15 А1А121.040 Панель задняя 3.904-15 А1А121.050 Панель торцевая 3.904-15 А1А121.038 Лист 3.904-15 А1А121.020 СБ Панель перекрытия. Сборочный чертеж 3.904-15 А1А121.030 СБ Панель передняя. Сборочный чертеж 3.904-15 А1А121.040 СБ Панель задняя. Сборочный чертеж 3.904-15 А1А121.050 СБ Панель торцевая. Сборочный чертеж 3.904-15 А1А121.060 Сектор 3.904-15 А1А121.070 Фланец 3.904-15 А1А121.080 Решетка ограждающая 3.904-15 А1А121.060 СБ Сектор. Сборочный чертеж 3.904-15 А1А121.080 СБ Решетка ограждающая. Сборочный чертеж 3.904-15 А1А121.070 СБ Фланец. Сборочный чертеж 3.904-15 А1А121.046 Планка 3.904-15 А1А121.027 Уголок 3.904-15 А1А121.029 Уголок 3.904-15 А1А121.028 Лист 3.904-15 А1А121.025 Уголок 3.904-15 А1А121.026 Лист 3.904-15 А1А121.024 Уголок 3.904-15 А1А121.033 Профиль 3.904-15 А1А121.043 Уголок 3.904-15 А1А121.032 Планка 3.904-15 А1А121.031 Прокладка 3.904-15 А1А121.037 Уголок 3.904-15 А1А121.035 Лист 3.904-15 А1А121.044 Лист 3.904-15 А1А121.045 Уголок 3.904-15 А1А121.042 Уголок 3.904-15 А1А121.041 Лист 3.904-15 А1А121.054 Лист 3.904-15 А1А121.055 Лист 3.904-15 А1А121.052 Лист 3.904-15 А1А121.051 Лист 3.904-15 А1А121.057 Уголок 3.904-15 А1А121.056 Уголок 3.904-15 А1А121.058 Уголок 3.904-15 А1А121.048 Скоба |
| Разработан: | ГПИ Сантехпроект Госстроя СССР |
| Утверждён: | 16.11.1976 Главпромстройпроект Госстроя СССР (75) |
| Чем заменён: |
|










































































































