Скачать Серия 3.904-15 Выпуск 1-12. Часть I. Конструкции камер. Рабочие чертежи. Приточная вентиляционная камера типа 1ПК150 уменьшенной высотыДата актуализации: 01.01.2021
|
| Обозначение: | Серия 3.904-15 |
| Обозначение англ: | Series 3.904-15 |
| Статус: | не действует |
| Название рус.: | Выпуск 1-12. Часть I. Конструкции камер. Рабочие чертежи. Приточная вентиляционная камера типа 1ПК150 уменьшенной высоты |
| Дата добавления в базу: | 01.09.2013 |
| Дата актуализации: | 01.01.2021 |
| Дата введения: | 15.03.1978 |
| Дата окончания срока действия: | 01.10.1982 |
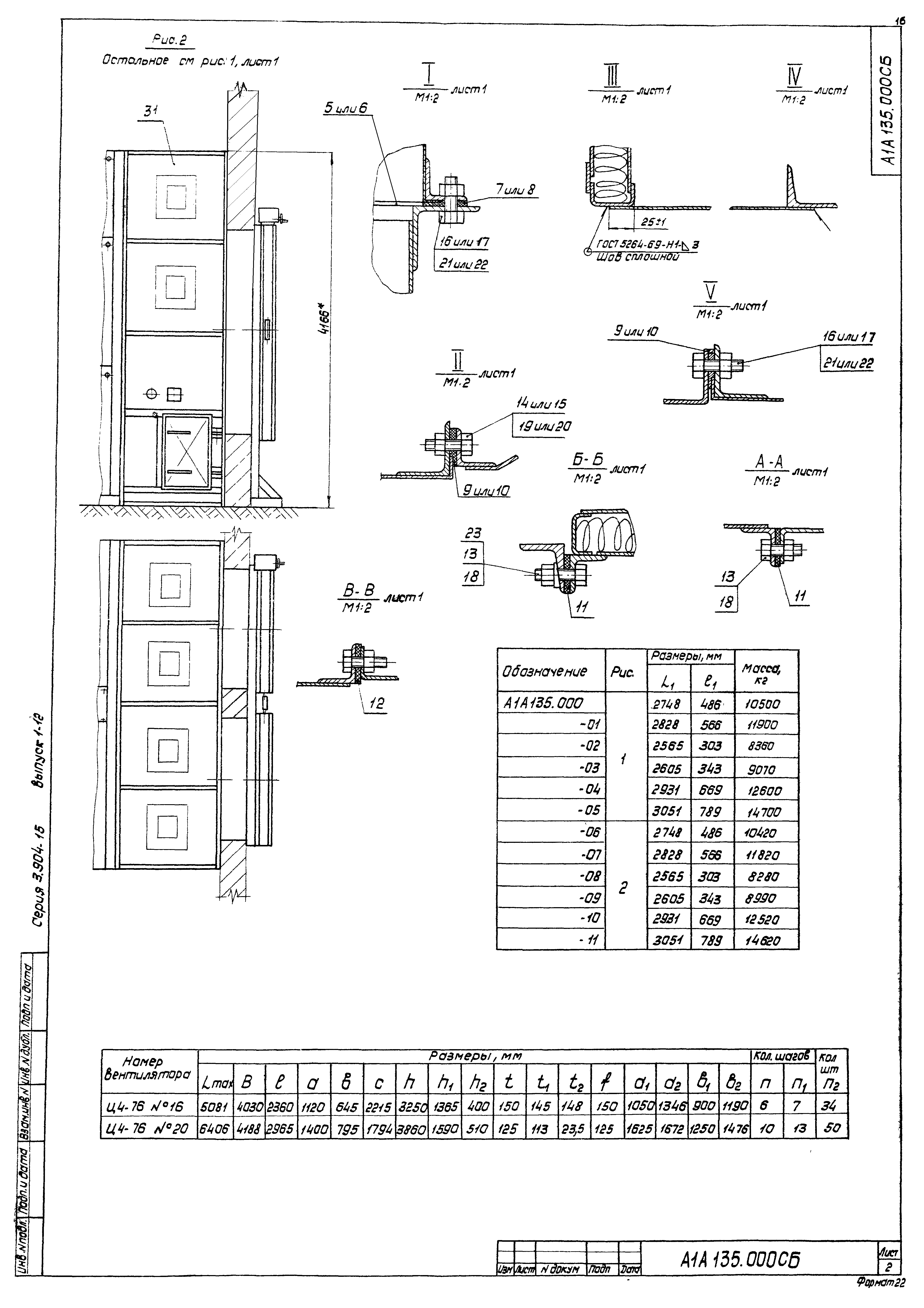
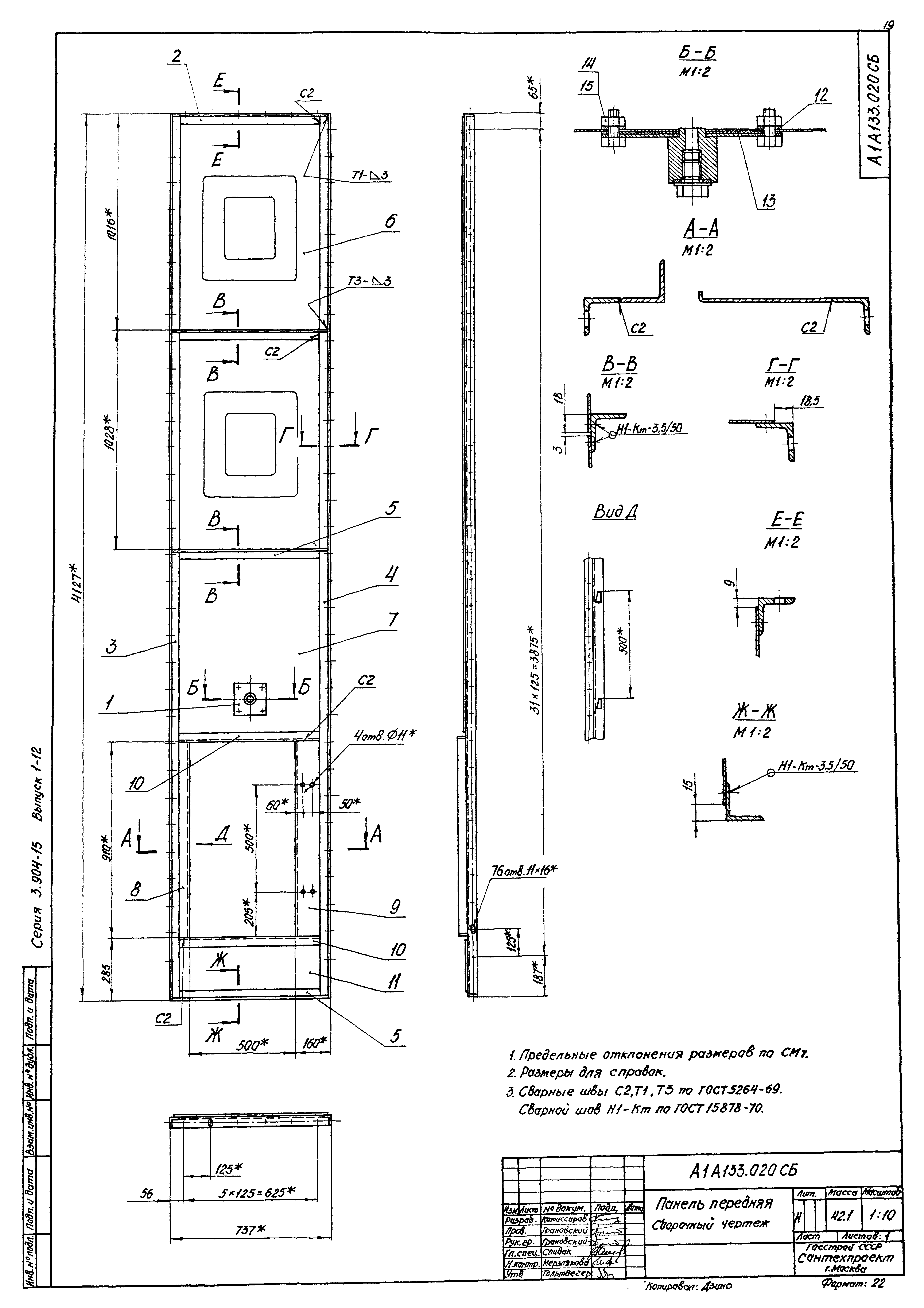
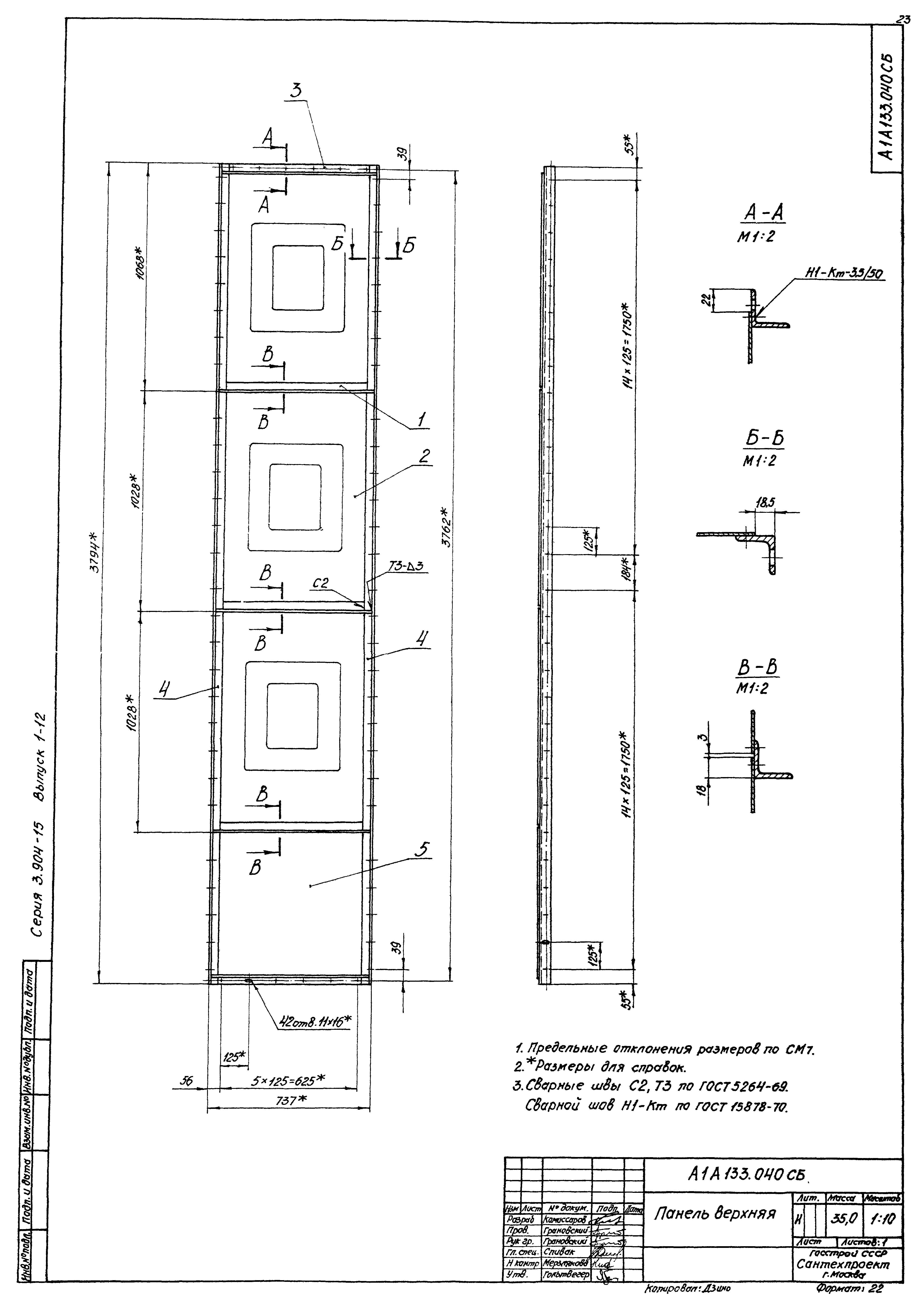
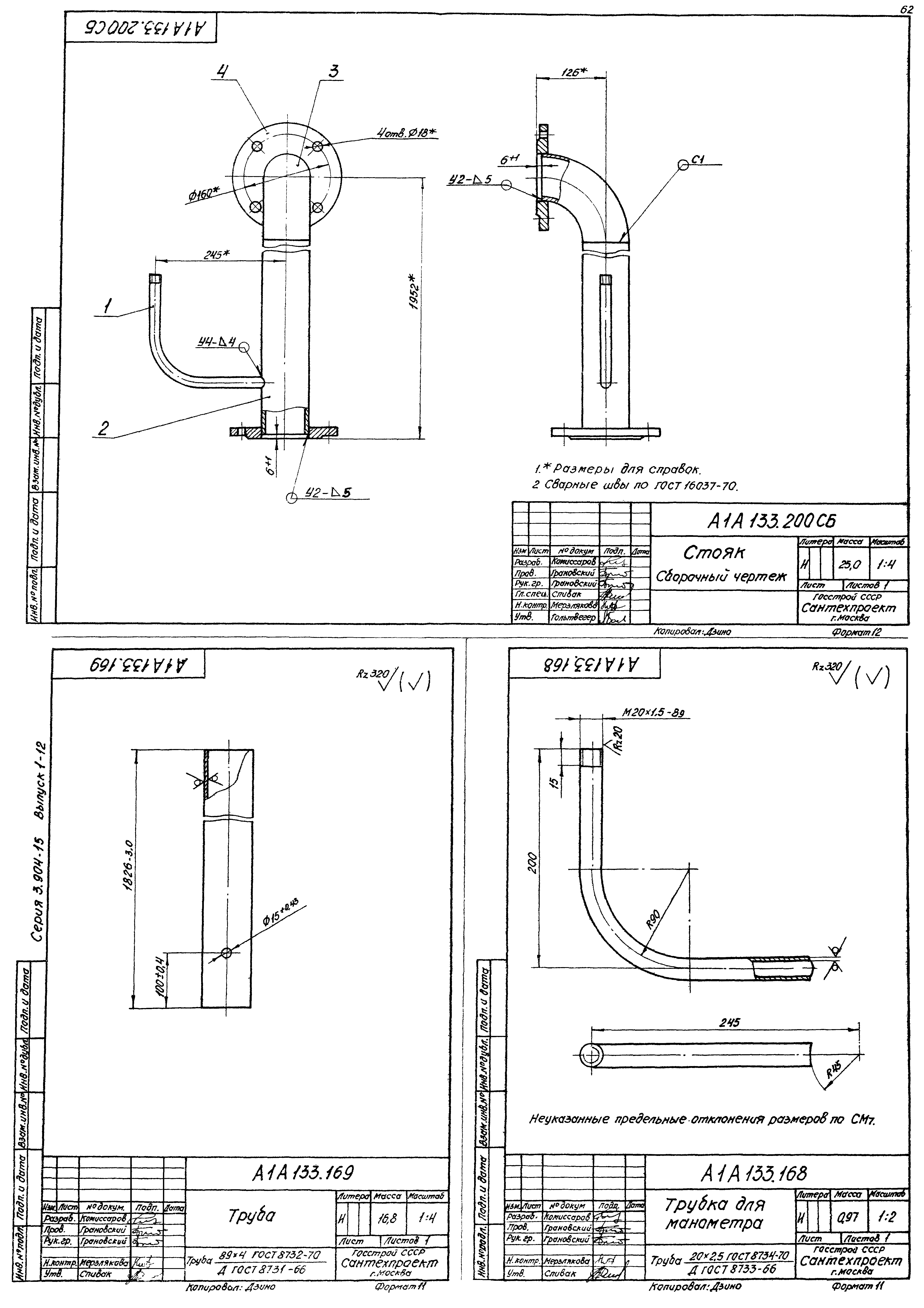
| Оглавление: | 3.904-15 Содержание 3.904-15 А1А133.000ТО Приточная вентиляционная камера типа 1ПК15ОА с секцией орошения. Техническое описание 3.904-15 А1А133.000 Приточная вентиляционная камера типа 1ПК15ОА с секцией орошения 3.904-15 А1А133.000 СБ Приточная вентиляционная камера типа 1ПК15ОА с секцией орошения. Сборочный чертеж 3.904-15 А1А134.000 Приточная вентиляционная камера типа 1ПК15ОА с фильтром 3.904-15 А1А134.000 СБ Приточная вентиляционная камера типа 1ПК15ОА с фильтром. Сборочный чертеж 3.904-15 А1А135.000 Приточная вентиляционная камера типа 1ПК15ОА 3.904-15 А1А135.000 СБ Приточная вентиляционная камера типа 1ПК15ОА. Сборочный чертеж 3.904-15 А1А133.010 Секция соединительная 3.904-15 А1А133.020 Панель передняя 3.904-15 А1А133.010 СБ Секция соединительная. Сборочный чертеж 3.904-15 А1А133.020 СБ Панель передняя. Сборочный чертеж 3.904-15 А1А133.029 Лист 3.904-15 А1А133.031 Уголок 3.904-15 А1А133.032 Профиль 3.904-15 А1А133.035 Планка 3.904-15 А1А133.030 Панель задняя 3.904-15 А1А133.040 Панель верхняя 3.904-15 А1А133.025 Уголок 3.904-15 А1А133.026 Уголок 3.904-15 А1А133.030 СБ Панель задняя. Сборочный чертеж 3.904-15 А1А133.040 СБ Панель верхняя. Сборочный чертеж 3.904-15 А1А133.036 Прокладка 3.904-15 А1А133.037 Уголок 3.904-15 А1А133.038 Уголок 3.904-15 А1А133.041 Уголок 3.904-15 А1А133.050 Панель торцевая 3.904-15 А1А133.050 СБ Панель торцевая. Сборочный чертеж 3.904-15 А1А133.044 Уголок 3.904-15 А1А133.045 Уголок 3.904-15 А1А133.046 Уголок 3.904-15 А1А133.047 Уголок 3.904-15 А1А133.043 Хомут 3.904-15 А1А133.048 Уголок 3.904-15 А1А133.049 Лист 3.904-15 А1А133.060 Конфузор 3.904-15 А1А133.070 Решетка 3.904-15 А1А133.080 Решетка 3.904-15 А1А133.027 Уголок 3.904-15 А1А133.060 СБ Конфузор. Сборочный чертеж 3.904-15 А1А133.071 Фланец 3.904-15 А1А133.072 Фланец 3.904-15 А1А133.073 Конфузор 3.904-15 А1А133.070 СБ Решетка. Сборочный чертеж 3.904-15 А1А133.080 СБ Решетка. Сборочный чертеж 3.904-15 А1А133.074 Кольцо 3.904-15 А1А133.075 Пруток 3.904-15 А1А133.100 Секция оросительная 3.904-15 А1А133.028 Лист 3.904-15 А1А133.100 СБ Секция оросительная. Сборочный чертеж 3.904-15 А1А133.082 Уголок 3.904-15 А1А133.083 Уголок 3.904-15 А1А133.087 Отбойник 3.904-15 А1А133.088 Шайба 3.904-15 А1А133.081 Уголок 3.904-15 А1А133.084 Хомут 3.904-15 А1А133.085 Кронштейн 3.904-15 А1А133.086 Крюк 3.904-15 А1А133.110 Поддон 3.904-15 А1А133.120 Каркас поддона 3.904-15 А1А133.110 СБ Поддон. Сборочный чертеж 3.904-15 А1А133.095 Направляющая 3.904-15 А1А133.096 Швеллер опорный 3.904-15 А1А133.097 Лист ходовой 3.904-15 А1А133.099 Водозабор 3.904-15 А1А133.101 Стенка 3.904-15 А1А133.103 Бобышка 3.904-15 А1А133.104 Пробка 3.904-15 А1А133.106 Трубка 3.904-15 А1А133.120 СБ Каркас поддона. Сборочный чертеж 3.904-15 А1А133.111 Лист задний 3.904-15 А1А133.112 Лист передний 3.904-15 А1А133.113 Уголок 3.904-15 А1А133.114 Уголок 3.904-15 А1А133.115 Опора 3.904-15 А1А133.116 Днище 3.904-15 А1А133.117 Корыто 3.904-15 А1А133.118 Стойка 3.904-15 А1А133.119 Стойка 3.904-15 А1А133.121 Уголок 3.904-15 А1А133.122 Профиль 3.904-15 А1А133.123 Уголок 3.904-15 А1А133.124 Стойка 3.904-15 А1А133.125 Стойка 3.904-15 А1А133.129 Пластина 3.904-15 А1А133.130 Колено 3.904-15 А1А133.140 Фильтр 3.904-15 А1А133.150 Перелив 3.904-15 А1А133.160 Каркас фильтра 3.904-15 А1А133.130 СБ Колено. Сборочный чертеж 3.904-15 А1А133.140 СБ Фильтр. Сборочный чертеж 3.904-15 А1А133.132 Полоса 3.904-15 А1А133.133 Ручка 3.904-15 А1А133.150 СБ Перелив. Сборочный чертеж 3.904-15 А1А133.135 Воронка 3.904-15 А1А133.136 Патрубок 3.904-15 А1А133.137 Труба 3.904-15 А1А133.160 СБ Каркас фильтра. Сборочный чертеж 3.904-15 А1А133.139 Стенка задняя 3.904-15 А1А133.141 Стенка боковая 3.904-15 А1А133.170 Панель передняя 3.904-15 А1А133.180 Панель задняя 3.904-15 А1А133.190 Панель верхняя 3.904-15 А1А133.170 СБ Панель передняя. Сборочный чертеж 3.904-15 А1А133.146 Уголок 3.904-15 А1А133.147 Шайба 3.904-15 А1А133.148 Трубка 3.904-15 А1А133.149 Уголок 3.904-15 А1А133.151 Профиль 3.904-15 А1А133.152 Профиль 3.904-15 А1А133.153 Профиль 3.904-15 А1А133.157 Кронштейн 3.904-15 А1А133.154 Рамка 3.904-15 А1А133.155 Лист 3.904-15 А1А133.158 Уголок 3.904-15 А1А133.159 Профиль 3.904-15 А1А133.142 Стенка боковая 3.904-15 А1А133.143 Поперечина 3.904-15 А1А133.156 Лист 3.904-15 А1А133.162 Козырек 3.904-15 А1А133.180 СБ Панель задняя. Сборочный чертеж 3.904-15 А1А133.190 СБ Панель верхняя. Сборочный чертеж 3.904-15 А1А133.167 Лист 3.904-15 А1А133.163 Кронштейн 3.904-15 А1А133.164 Лист 3.904-15 А1А133.165 Уголок 3.904-15 А1А133.166 Уголок 3.904-15 А1А133.200 Стояк 3.904-15 А1А133.210 Коллектор 3.904-15 А1А133.220 Гребенка 3.904-15 А1А133.172 Труба 3.904-15 А1А133.200 СБ Стояк. Сборочный чертеж 3.904-15 А1А133.168 Трубка для манометра 3.904-15 А1А133.169 Труба 3.904-15 А1А133.210 СБ Коллектор. Сборочный чертеж 3.904-15 А1А133.220 СБ Гребенка. Сборочный чертеж 3.904-15 А1А133.174 Патрубок 3.904-15 А1А133.175 Патрубок 3.904-15 А1А133.176 Патрубок 3.904-15 А1А133.177 Заглушка 3.904-15 А1А133.210 Блок сепараторов 3.904-15 А1А133.171 Стояк 3.904-15 А1А133.230 СБ Блок сепараторов. Сборочный чертеж 3.904-15 А1А133.240 Сепаратор в сборе 3.904-15 А1А133.250 Опора 3.904-15 А1А133.173 Труба 3.904-15 А1А133.240 СБ Сепаратор в сборе. Сборочный чертеж 3.904-15 А1А133.186 Гребенка 3.904-15 А1А133.187 Сепаратор 3.904-15 А1А133.188 Лист боковой 3.904-15 А1А133.250 СБ Опора. Сборочный чертеж 3.904-15 А1А133.192 Корыто 3.904-15 А1А133.193 Кронштейн 3.904-15 А1А133.181 Уголок 3.904-15 А1А133.182 Уголок 3.904-15 А1А133.191 Швеллер |
| Разработан: | ГПИ Сантехпроект Госстроя СССР |
| Утверждён: | 14.02.1978 Главпромстройпроект Госстроя СССР (7) |
| Чем заменён: |
|






































































