Скачать Серия 3.904-15 Выпуск 1-12. Часть II. Конструкции камер. Рабочие чертежи. Приточная вентиляционная камера типа 1ПК150 уменьшенной высотыДата актуализации: 01.01.2021
|
| Обозначение: | Серия 3.904-15 |
| Обозначение англ: | Series 3.904-15 |
| Статус: | не действует |
| Название рус.: | Выпуск 1-12. Часть II. Конструкции камер. Рабочие чертежи. Приточная вентиляционная камера типа 1ПК150 уменьшенной высоты |
| Дата добавления в базу: | 01.09.2013 |
| Дата актуализации: | 01.01.2021 |
| Дата введения: | 15.03.1978 |
| Дата окончания срока действия: | 01.10.1982 |
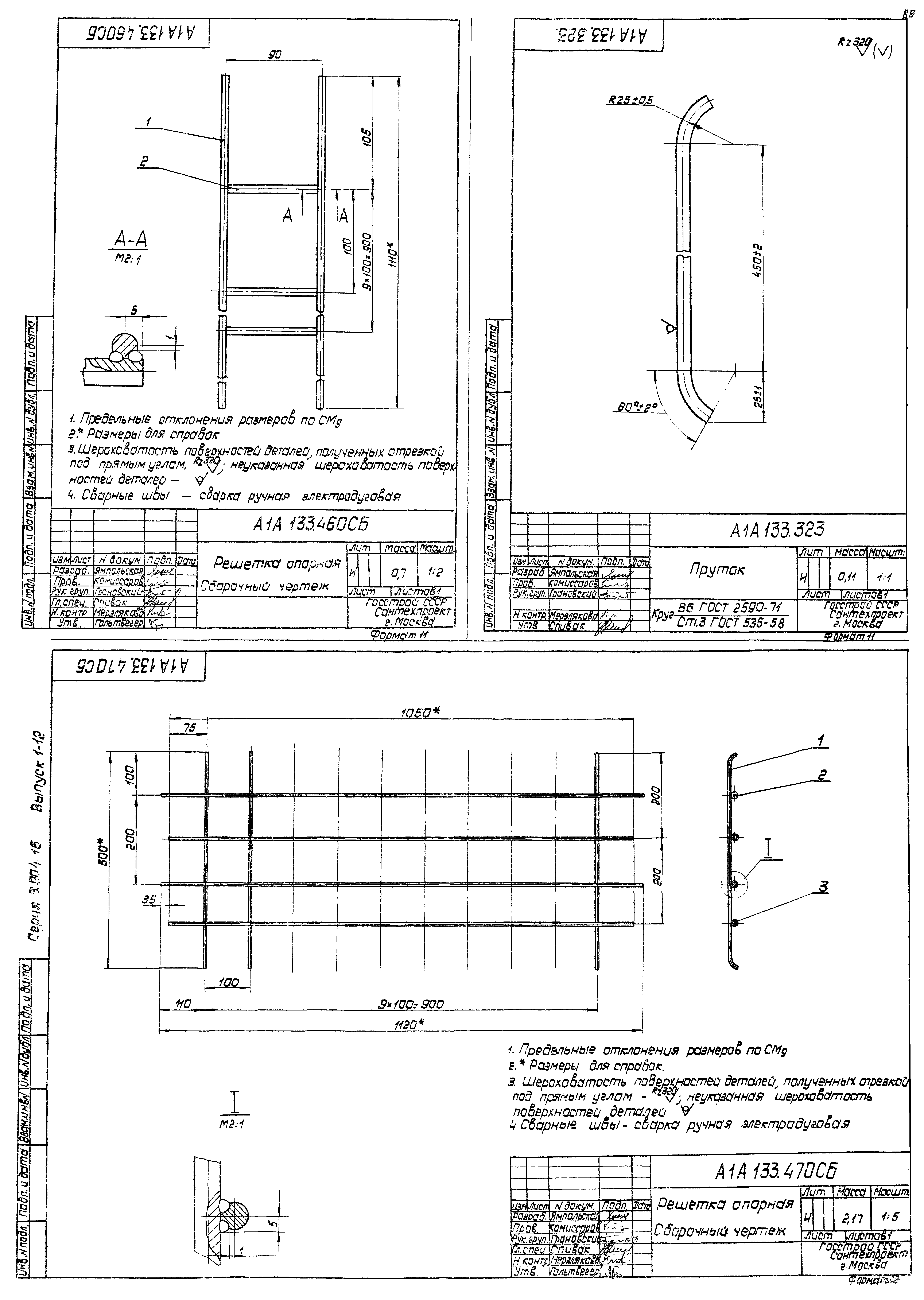
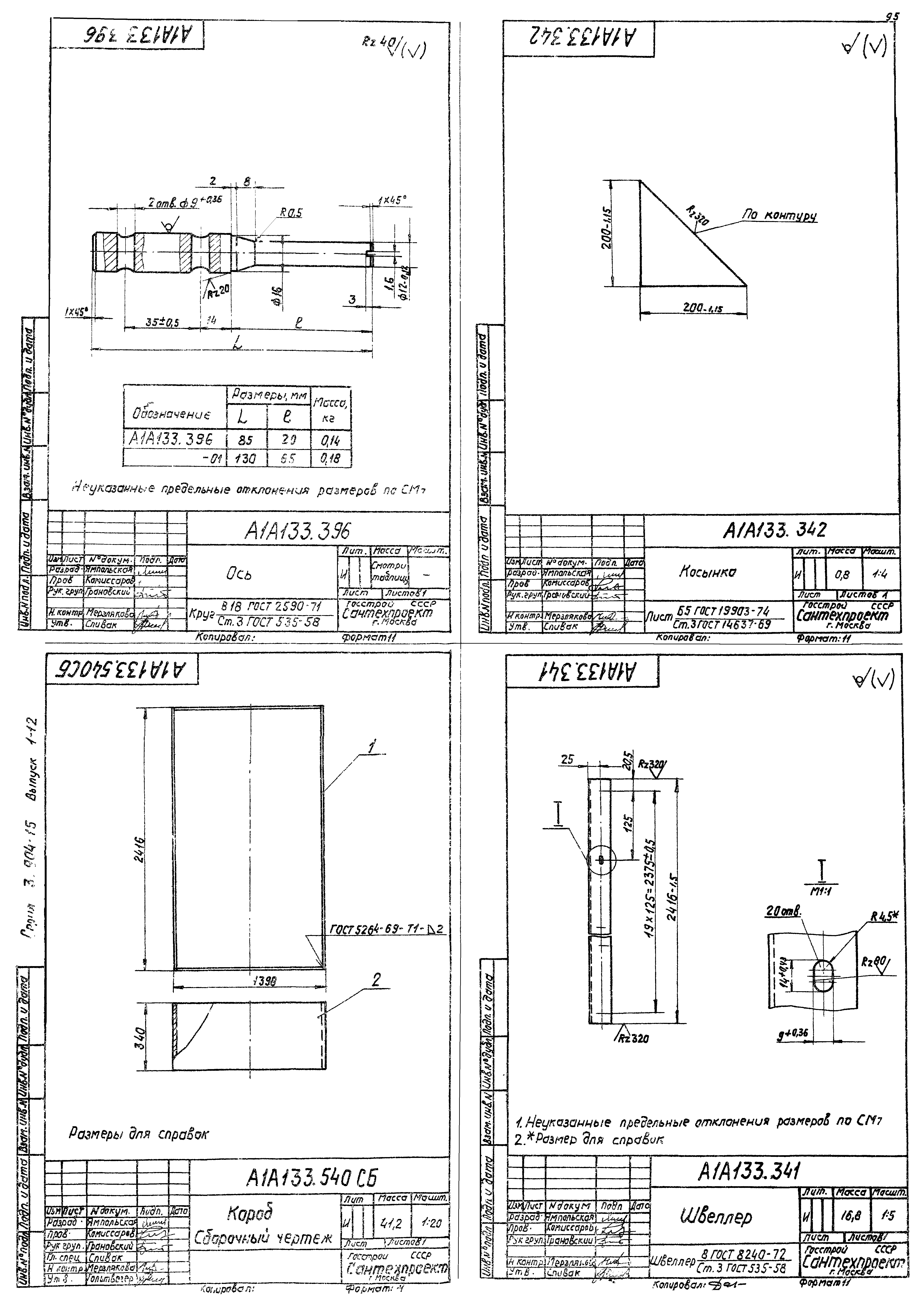
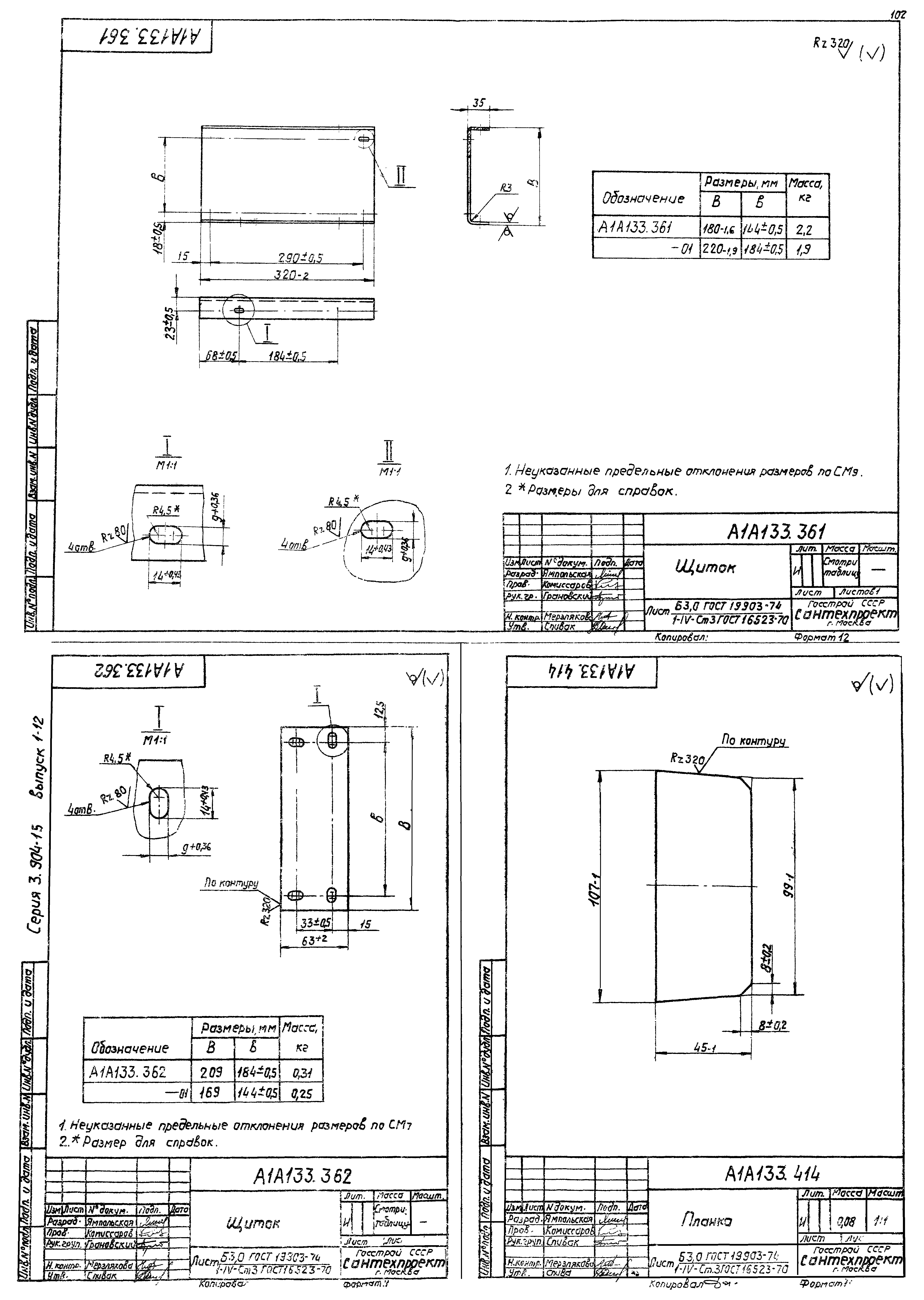
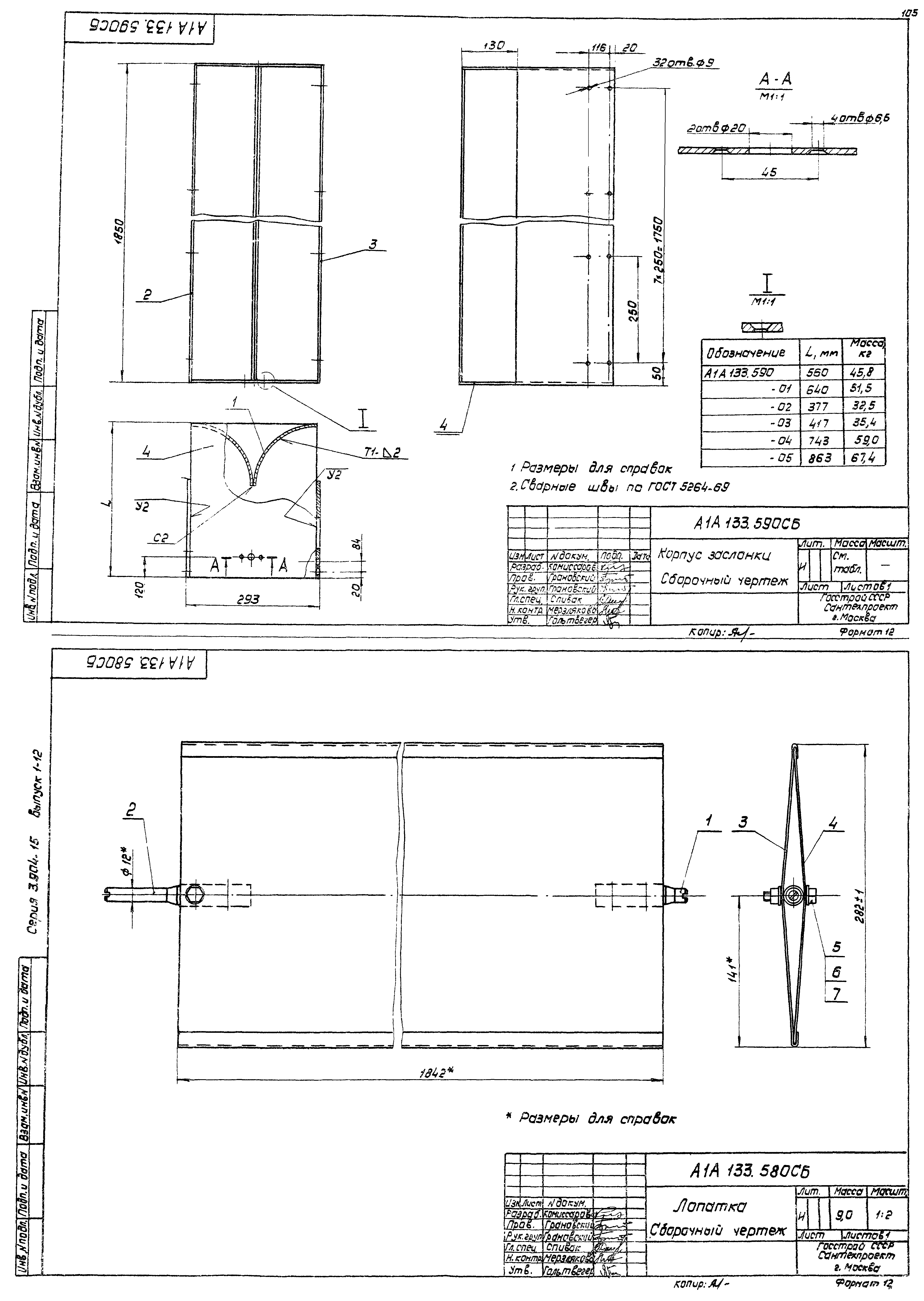
| Оглавление: | 3.904-15 Содержание 3.904-15 А1А133.400 Секция фильтра с фильтрующим материалом типа ФРНК 3.904-15 А1А133.276 Скоба 3.904-15 А1А133.277 Уголок 3.904-15 А1А133.400 СБ Секция фильтра с фильтрующим материалом типа ФРНК. Сборочный чертеж 3.904-15 А1А133.271 Направляющая 3.904-15 А1А133.272 Лист 3.904-15 А1А133.273 Днище 3.904-15 А1А133.381 Планка 3.904-15 А1А133.285 Планка 3.904-15 А1А133.410 Панель верхняя 3.904-15 А1А133.420 Панель боковая 3.904-15 А1А133.278 Крюк 3.904-15 А1А133.279 Стопор 3.904-15 А1А133.410 СБ Панель верхняя. Сборочный чертеж 3.904-15 А1А133.420 СБ Панель боковая. Сборочный чертеж 3.904-15 А1А133.286 Уголок 3.904-15 А1А133.287 Уголок 3.904-15 А1А133.288 Профиль 3.904-15 А1А133.289 Лист 3.904-15 А1А133.295 Уголок 3.904-15 А1А133.296 Уголок 3.904-15 А1А133.297 Уголок 3.904-15 А1А133.303 Полоса 3.904-15 А1А133.430 Прижим 3.904-15 А1А133.440 Решетка опорная 3.904-15 А1А133.306 Крючок 3.904-15 А1А133.307 Ось 3.904-15 А1А133.430 СБ Прижим. Сборочный чертеж 3.904-15 А1А133.440 СБ Решетка опорная. Сборочный чертеж 3.904-15 А1А133.311 Пруток 3.904-15 А1А133.450 Секция фильтра с фильтрующим материалом типа ФСВУ 3.904-15 А1А133.331 Полоса 3.904-15 А1А133.332 Ребро 3.904-15 А1А133.450 СБ Секция фильтра с фильтрующим материалом типа ФСВУ. Сборочный чертеж 3.904-15 А1А133.315 Направляющая 3.904-15 А1А133.460 Решетка опорная 3.904-15 А1А133.470 Решетка опорная 3.904-15 А1А133.480 Решетка опорная 3.904-15 А1А133.204 Штырь 3.904-15 А1А133.460 СБ Решетка опорная. Сборочный чертеж 3.904-15 А1А133.470 СБ Решетка опорная. Сборочный чертеж 3.904-15 А1А133.323 Пруток 3.904-15 А1А133.480 СБ Решетка опорная. Сборочный чертеж 3.904-15 А1А133.490 Прижим 3.904-15 А1А133.490 СБ Прижим. Сборочный чертеж 3.904-15 А1А133.520 Установка утепленных клапанов 3.904-15 А1А133.530 Рама 3.904-15 А1А133.540 Короб 3.904-15 А1А133.305 Ушко 3.904-15 А1А133.520 СБ Установка утепленных клапанов. Сборочный чертеж 3.904-15 А1А133.530 СБ Рама. Сборочный чертеж 3.904-15 А1А133.343 Швеллер 3.904-15 А1А133.344 Швеллер 3.904-15 А1А133.346 Швеллер 3.904-15 А1А133.347 Швеллер 3.904-15 А1А133.540 СБ Короб. Сборочный чертеж 3.904-15 А1А133.341 Швеллер 3.904-15 А1А133.342 Косынка 3.904-15 А1А133.396 Ось 3.904-15 А1А133.560 Секция калориферная 3.904-15 А1А133.570 Заслонка воздушная обводная 3.904-15 А1А133.391 Упор 3.904-15 А1А133.392 Рычаг 3.904-15 А1А133.560 СБ Секция калориферная. Сборочный чертеж 3.904-15 А1А133.401 Лист боковой 3.904-15 А1А133.361 Щиток 3.904-15 А1А133.362 Щиток 3.904-15 А1А133.414 Планка 3.904-15 А1А133.570 СБ Заслонка воздушная обводная. Сборочный чертеж 3.904-15 А1А133.580 Лопатка 3.904-15 А1А133.590 Корпус заслонки 3.904-15 А1А133.393 Сектор 3.904-15 А1А133.580СБ Лопатка. Сборочный чертеж 3.904-15 А1А133.590 СБ Корпус заслонки. Сборочный чертеж 3.904-15 А1А133.394 Шайба 3.904-15 А1А133.395 Корпус подшипника 3.904-15 А1А133.397 Перо 3.904-15 А1А133.398 Перо 3.904-15 А1А133.600 Рама 3.904-15 А1А133.600 СБ Рама. Сборочный чертеж 3.904-15 А1А133.399 Отбойник 3.904-15 А1А133.402 Лист 3.904-15 А1А133.405 Стойка боковая 3.904-15 А1А133.419 Пробка 3.904-15 А1А133.406 Стойка боковая 3.904-15 А1А133.412 Швеллер нижний 3.904-15 А1А133.425 Швеллер боковой 3.904-15 А1А133.407 Стойка средняя 3.904-15 А1А133.427 Швеллер средний 3.904-15 А1А133.428 Швеллер средний 3.904-15 А1А133.413 Швеллер 3.904-15 А1А133.423 Наконечник переходной 3.904-15 А1А133.424 Лист нижний 3.904-15 А1А133.408 Балка 3.904-15 А1А133.426 Швеллер боковой 3.904-15 А1А133.415 Бобышка 3.904-15 А1А133.416 Заглушка 3.904-15 А1А133.418 Бобышка под термометр 3.904-15 А1А133.422 Трубка 3.904-15 А1А133.620 Секция приемная 3.904-15 А1А133.455 Лист 3.904-15 А1А133.620 СБ Секция приемная. Сборочный чертеж 3.904-15 А1А133.630 Панель передняя 3.904-15 А1А133.630 СБ Панель передняя. Сборочный чертеж 3.904-15 А1А133.446 Лист 3.904-15 А1А133.459 Профиль 3.904-15 А1А133.467 Профиль 3.904-15 А1А133.473 Шайба 3.904-15 А1А133.447 Уголок 3.904-15 А1А133.462 Скоба 3.904-15 А1А133.463 Профиль 3.904-15 А1А133.472 Уголок 3.904-15 А1А133.453 Лист 3.904-15 А1А133.454 Лист 3.904-15 А1А133.506 Уголок 3.904-15 А1А133.507 Уголок 3.904-15 А1А133.640 Панель задняя 3.904-15 А1А133.650 Панель торцевая 3.904-15 А1А133.508 Уголок 3.904-15 А1А133.640 СБ Панель задняя. Сборочный чертеж 3.904-15 А1А133.650 СБ Панель торцевая. Сборочный чертеж 3.904-15 А1А133.660 Сектор 3.904-15 А1А133.670 Сектор боковой 3.904-15 А1А133.660 СБ Сектор. Сборочный чертеж 3.904-15 А1А133.670 СБ Сектор боковой. Сборочный чертеж 3.904-15 А1А133.505 Уголок 3.904-15 А1А133.509 Уголок 3.904-15 А1А133.680 Сектор центральный 3.904-15 А1А133.690 Панель перекрытия 3.904-15 А1А133.700 Панель перекрытия утепленная 3.904-15 А1А133.680 СБ Сектор центральный. Сборочный чертеж 3.904-15 А1А133.481 Уголок 3.904-15 А1А133.482 Уголок 3.904-15 А1А133.690 СБ Панель перекрытия. Сборочный чертеж 3.904-15 А1А133.700 СБ Панель перекрытия утепленная. Сборочный чертеж |
| Разработан: | ГПИ Сантехпроект Госстроя СССР |
| Утверждён: | 14.02.1978 Главпромстройпроект Госстроя СССР (7) |
| Чем заменён: |
|































































