Скачать Серия 3.904-15 Выпуск 1-13. Конструкции камер. Рабочие чертежи. Приемные секции с различным расположением рециркуляционных отверстийДата актуализации: 01.01.2021
|
| Обозначение: | Серия 3.904-15 |
| Обозначение англ: | Series 3.904-15 |
| Статус: | не действует |
| Название рус.: | Выпуск 1-13. Конструкции камер. Рабочие чертежи. Приемные секции с различным расположением рециркуляционных отверстий |
| Дата добавления в базу: | 01.09.2013 |
| Дата актуализации: | 01.01.2021 |
| Дата введения: | 15.03.1978 |
| Дата окончания срока действия: | 01.10.1982 |
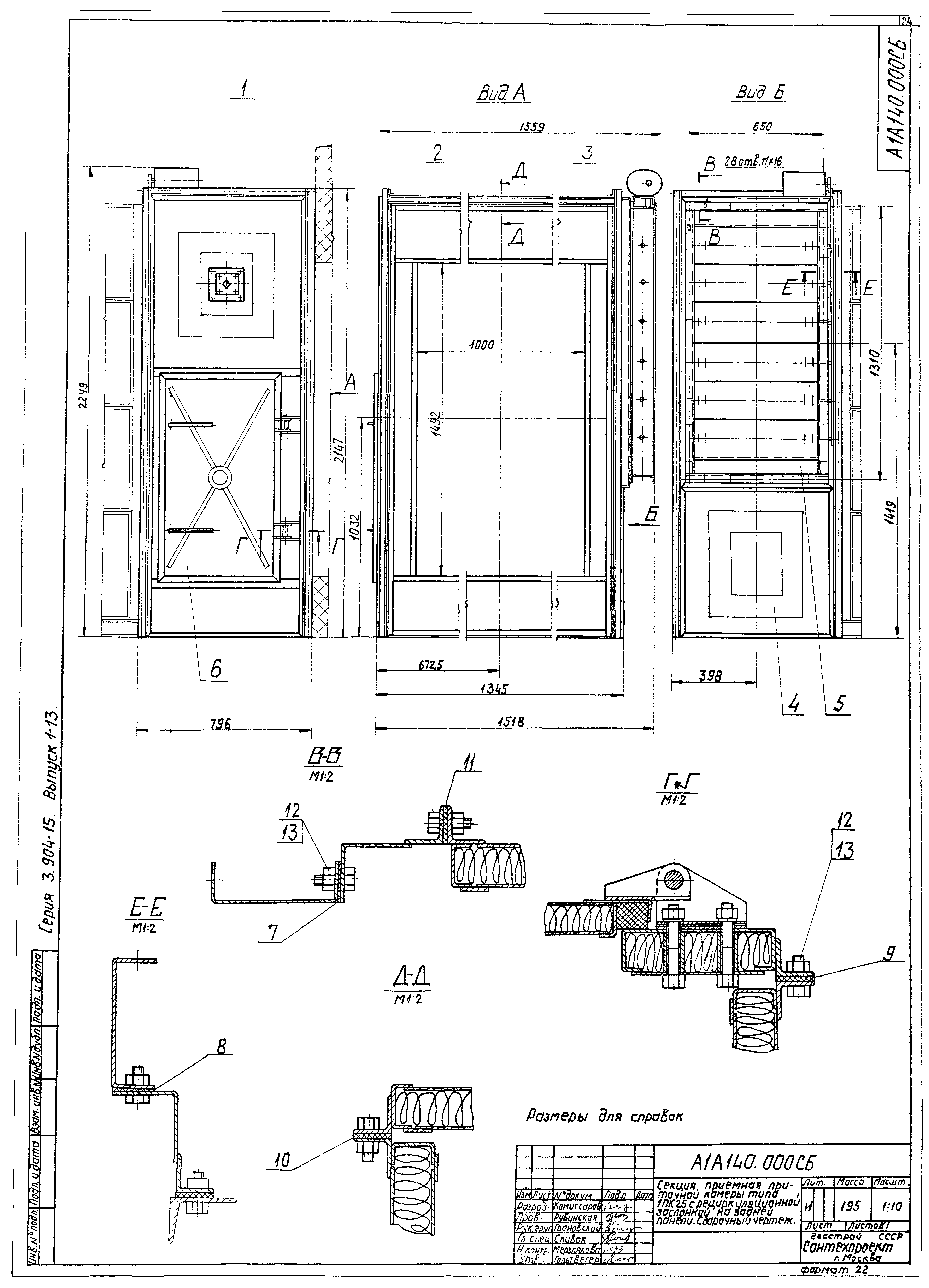
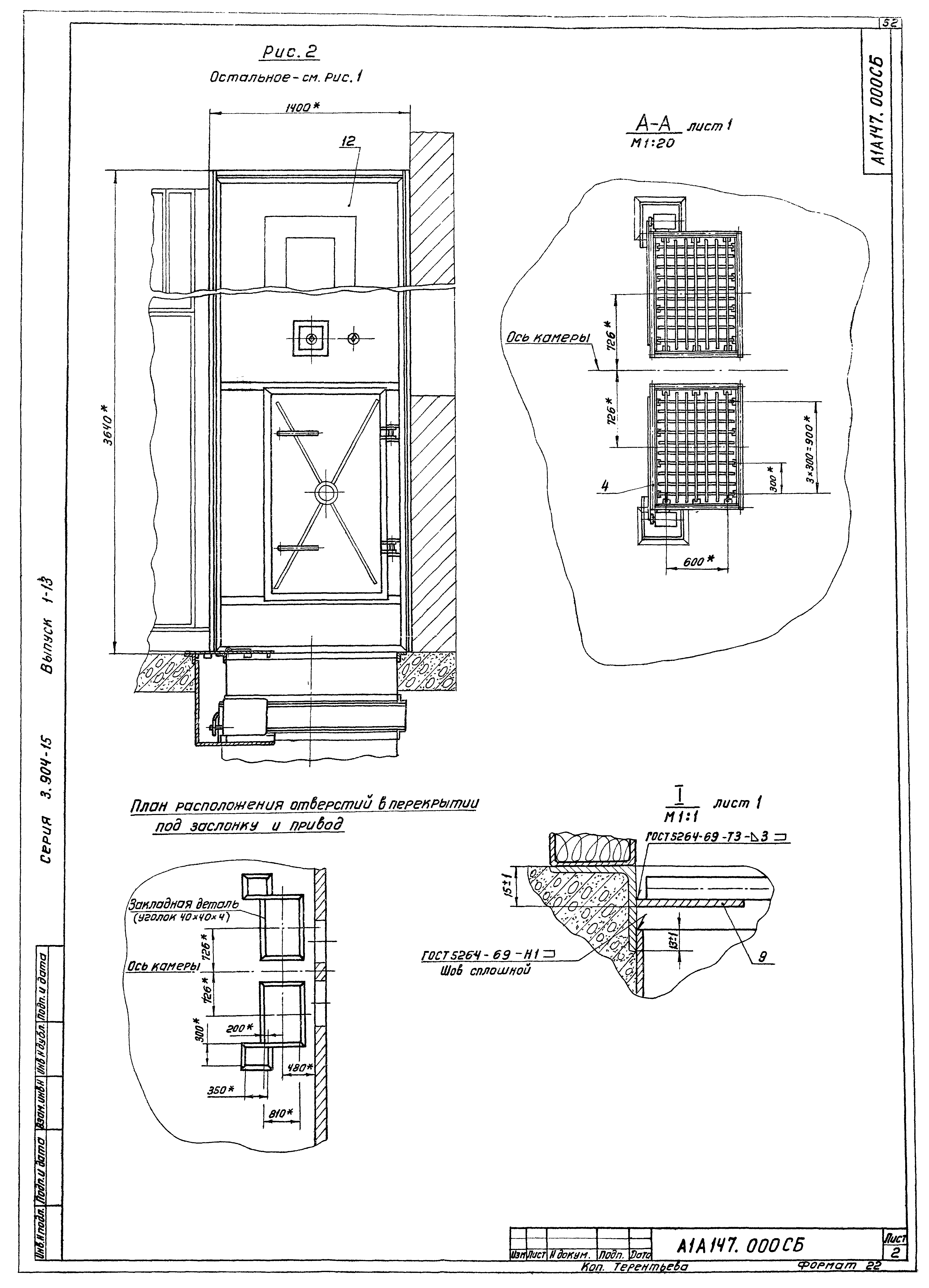
| Оглавление: | 3.904-15 Содержание 3.904-15 А1А136.000ТО Секция приемная с фильтром приточной камеры типа 1ПК10 с рециркуляционной заслонкой на задней панели. Техническое описание 3.904-15 А1А136.000 Секция приемная с фильтром приточной камеры типа 1ПК10 с рециркуляционной заслонкой на задней панели 3.904-15 А1А136.010 Панель задняя 3.904-15 А1А136.000 СБ Секция приемная с фильтром приточной камеры типа 1ПК10 с рециркуляционной заслонкой на задней панели. Сборочный чертеж 3.904-15 А1А136.010 СБ Панель задняя 3.904-15 А1А136.012 Угольник 3.904-15 А1А136.013 Угольник 3.904-15 А1А136.014 Профиль 3.904-15 А1А137.000 Секция приемная приточной камеры типа 1ПК10 с рециркуляционной заслонкой на задней панели 3.904-15 А1А137.000 СБ Секция приемная приточной камеры типа 1ПК10 с рециркуляционной заслонкой на задней панели. Сборочный чертеж 3.904-15 А1А138.000 Секция приемная приточной камеры типа 1ПК10 с нижним расположением рециркуляционной заслонки 3.904-15 А1А138.010 Патрубок 3.904-15 А1А138.000 СБ Секция приемная приточной камеры типа 1ПК10 с нижним расположением рециркуляционной заслонки. Сборочный чертеж 3.904-15 А1А138.020 Крышка 3.904-15 А1А138.030 Решетка 3.904-15 А1А138.040 Корыто 3.904-15 А1А138.010 СБ Патрубок. Сборочный чертеж 3.904-15 А1А138.020 СБ Крышка. Сборочный чертеж 3.904-15 А1А138.030 СБ Решетка. Сборочный чертеж 3.904-15 А1А138.035 Хомут 3.904-15 А1А138.036 Ручка 3.904-15 А1А138.040 СБ Корыто 3.904-15 А1А138.055 Профиль 3.904-15 А1А138.056 Корыто 3.904-15 А1А139.000 Секция приемная с фильтром приточной камеры типа 1ПК25 с рециркуляционной заслонкой на задней панели 3.904-15 А1А139.010 Панель задняя 3.904-15 А1А139.000 СБ Секция приемная с фильтром приточной камеры типа 1ПК25 с рециркуляционной заслонкой на задней панели. Сборочный чертеж 3.904-15 А1А139.010 СБ Панель задняя. Сборочный чертеж 3.904-15 А1А139.011 Лист 3.904-15 А1А140.000 Секция приемная приточной камеры типа 1ПК25 с рециркуляционной заслонкой на задней панели 3.904-15 А1А140.000 СБ Секция приемная приточной камеры типа 1ПК25 с рециркуляционной заслонкой на задней панели. Сборочный чертеж 3.904-15 А1А141.000 Секция приемная приточной камеры типа 1ПК25 с нижним расположением рециркуляционной заслонки 3.904-15 А1А140.010 Панель задняя 3.904-15 А1А136.011 Угольник 3.904-15 А1А140.000 СБ Панель задняя. Сборочный чертеж 3.904-15 А1А141.000 СБ Секция приемная приточной камеры типа 1ПК25 с нижним расположением рециркуляционной заслонки. Сборочный чертеж 3.904-15 А1А142.000 Секция приемная с фильтром приточной камеры типа 1ПК50 с рециркуляционной заслонкой на задней панели 3.904-15 А1А142.010 Панель задняя 3.904-15 А1А142.000 СБ Секция приемная с фильтром приточной камеры типа 1ПК50 с рециркуляционной заслонкой на задней панели. Сборочный чертеж 3.904-15 А1А144.012 Корыто 3.904-15 А1А145.011 Лист 3.904-15 А1А142.010 СБ Панель задняя. Сборочный чертеж 3.904-15 А1А143.000 Секция приемная приточной камеры типа 1ПК50 с рециркуляционной заслонкой на задней панели 3.904-15 А1А143.010 Панель задняя. Сборочный чертеж 3.904-15 А1А143.000 СБ Секция приемная приточной камеры типа 1ПК50 с рециркуляционной заслонкой на задней панели. Сборочный чертеж 3.904-15 А1А143.010 СБ Панель задняя. Сборочный чертеж 3.904-15 А1А144.000 Секция приемная приточной камеры типа 1ПК50 с нижним расположением рециркуляционной заслонки 3.904-15 А1А144.010 Корыто 3.904-15 А1А144.000 СБ Секция приемная приточной камеры типа 1ПК50 с нижним расположением рециркуляционной заслонки. Сборочный чертеж 3.904-15 А1А144.010 СБ Корыто. Сборочный чертеж 3.904-15 А1А144.011 Профиль 3.904-15 А1А145.000 Секция приемная с фильтром приточной камеры типа 1ПК70 с рециркуляционной заслонкой на задней панели 3.904-15 А1А145.010 Панель задняя 3.904-15 А1А151.006 Уголок 3.904-15 А1А151.007 Уголок 3.904-15 А1А145.000 СБ Секция приемная с фильтром приточной камеры типа 1ПК70 с рециркуляционной заслонкой на задней панели. Сборочный чертеж 3.904-15 А1А145.010 СБ Панель задняя. Сборочный чертеж 3.904-15 А1А146.000 Секция приемная приточной камеры типа 1ПК70 с рециркуляционной заслонкой на задней панели 3.904-15 А1А146.010 Панель задняя 3.904-15 А1А147.000 Секция приемная приточной камеры типа 1ПК70 с нижним расположением рециркуляционной заслонки 3.904-15 А1А148.000 Секция приемная с фильтром приточной камеры типа 1ПК100 с рециркуляционной заслонкой на задней панели 3.904-15 А1А148.010 Панель задняя 3.904-15 А1А146.000 СБ Секция приемная с фильтром приточной камеры типа 1ПК70 с рециркуляционной заслонкой на задней панели. Сборочный чертеж 3.904-15 А1А146.010 Панель задняя 3.904-15 А1А147.000 СБ Секция приемная приточной камеры типа 1ПК70 с нижним расположением рециркуляционной заслонки. Сборочный чертеж 3.904-15 А1А148.000 СБ Секция приемная с фильтром приточной камеры типа 1ПК100 с рециркуляционной заслонкой на задней панели. Сборочный чертеж 3.904-15 А1А148.010 СБ Панель задняя. Сборочный чертеж 3.904-15 А1А149.000 Секция приемная приточной камеры типа 1ПК100 с рециркуляционной заслонкой на задней панели 3.904-15 А1А149.010 Панель задняя 3.904-15 А1А149.000 СБ Секция приемная приточной камеры типа 1ПК100 с рециркуляционной заслонкой на задней панели. Сборочный чертеж 3.904-15 А1А149.010 СБ Панель задняя. Сборочный чертеж 3.904-15 А1А150.000 Секция приемная приточной камеры типа 1ПК100 с нижним расположением рециркуляционной заслонки 3.904-15 А1А151.000 Секция приемная приточной камеры типа 1ПК100 с рециркуляционной заслонкой на задней панели 3.904-15 А1А150.000 СБ Секция приемная приточной камеры типа 1ПК100 с нижним расположением рециркуляционной заслонки. Сборочный чертеж 3.904-15 А1А151.000 СБ Секция приемная приточной камеры типа 1ПК100 с рециркуляционной заслонкой на задней панели. Сборочный чертеж 3.904-15 А1А151.010 Панель задняя 3.904-15 А1А152.000 Секция приемная приточной камеры типа 1ПК150 с нижним расположением рециркуляционной заслонки 3.904-15 А1А151.000 СБ Панель задняя. Сборочный чертеж 3.904-15 А1А152.000 СБ Секция приемная приточной камеры типа 1ПК150 с нижним расположением рециркуляционной заслонки. Сборочный чертеж 3.904-15 А1А151.005 Кронштейн 3.904-15 А1А151.008 Ушко 3.904-15 А1А151.015 Уголок 3.904-15 А3Д079.000 Заслонка воздушная рециркуляционная с электроприводом 3.904-15 А3Д079.000 СБ Заслонка воздушная рециркуляционная с электроприводом. Сборочный чертеж 3.904-15 А3Д079.001 Упор 3.904-15 А3Д079.002 Корпус подшипника 3.904-15 А3Д079.003 Шайба 3.904-15 А3Д079.010 Корпус 3.904-15 А3Д079.020 Система тяг и рычагов 3.904-15 А3Д079.030 Лопатка 3.904-15 А3Д079.010 СБ Корпус. Сборочный чертеж 3.904-15 А3Д079.020 СБ Система тяг и рычагов. Сборочный чертеж 3.904-15 А3Д079.030 СБ Лопатка. Сборочный чертеж 3.904-15 А3Д079.006 Профиль 3.904-15 А3Д079.007 Профиль 3.904-15 А3Д079.011 Тяга 3.904-15 А3Д079.012 Тяга 3.904-15 А3Д079.013 Серьга 3.904-15 А3Д079.014 Палец 3.904-15 А3Д079.009 Ось 3.904-15 А3Д079.015 Полуось 3.904-15 А3Д079.016 Полуось 3.904-15 А3Д079.017 Перо 3.904-15 А3Д079.018 Перо |
| Разработан: | ГПИ Сантехпроект Госстроя СССР |
| Утверждён: | 14.02.1978 Главпромстройпроект Госстроя СССР (7) |
| Чем заменён: |
|














































































