Скачать Серия 3.904-15 Выпуск 1-14. Конструкции камер. Рабочие чертежи. Калориферные секции с центральным расположением обводных заслонокДата актуализации: 01.01.2021
|
| Обозначение: | Серия 3.904-15 |
| Обозначение англ: | Series 3.904-15 |
| Статус: | не действует |
| Название рус.: | Выпуск 1-14. Конструкции камер. Рабочие чертежи. Калориферные секции с центральным расположением обводных заслонок |
| Дата добавления в базу: | 01.09.2013 |
| Дата актуализации: | 01.01.2021 |
| Дата введения: | 15.03.1977 |
| Дата окончания срока действия: | 01.10.1982 |
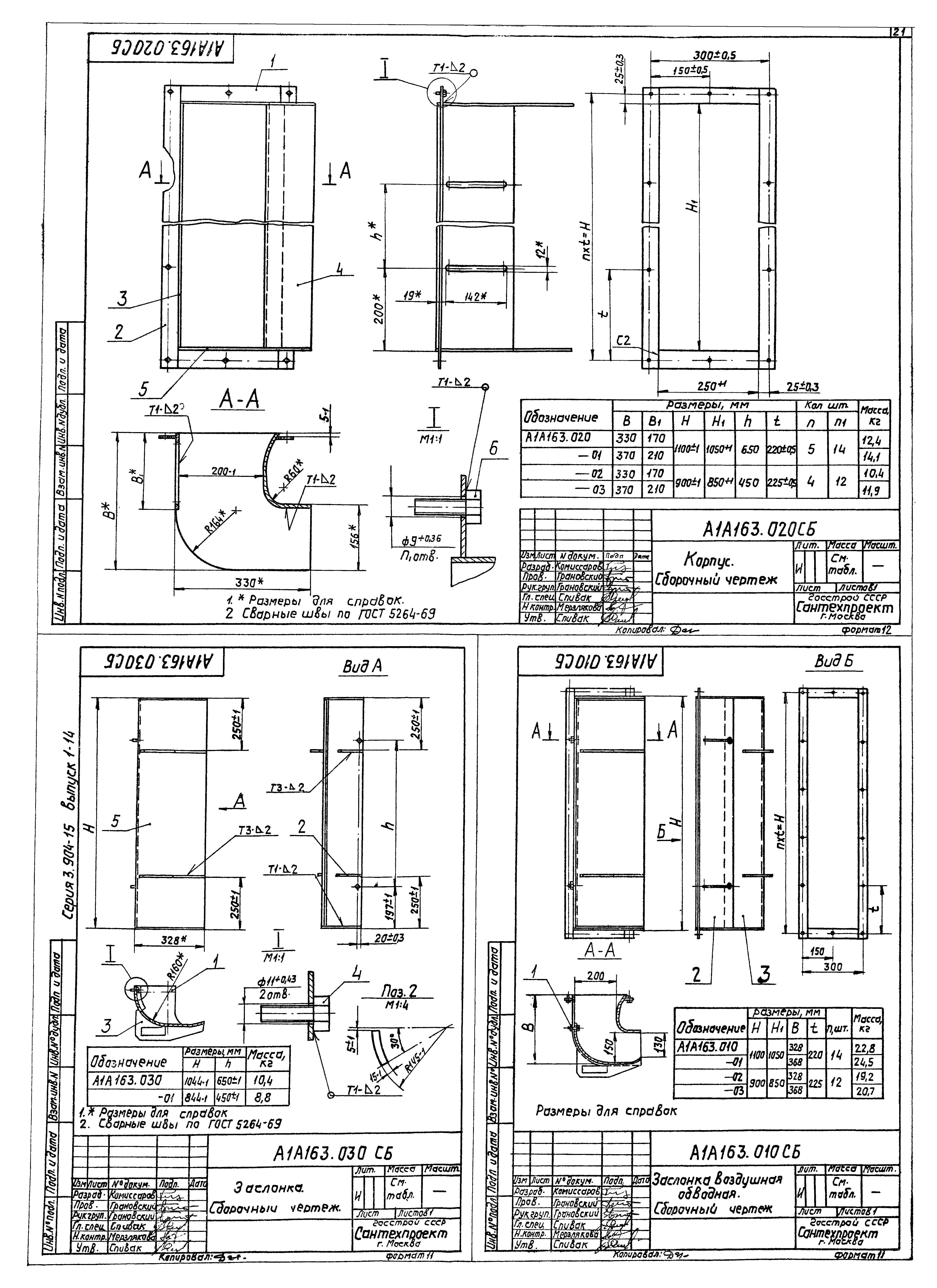
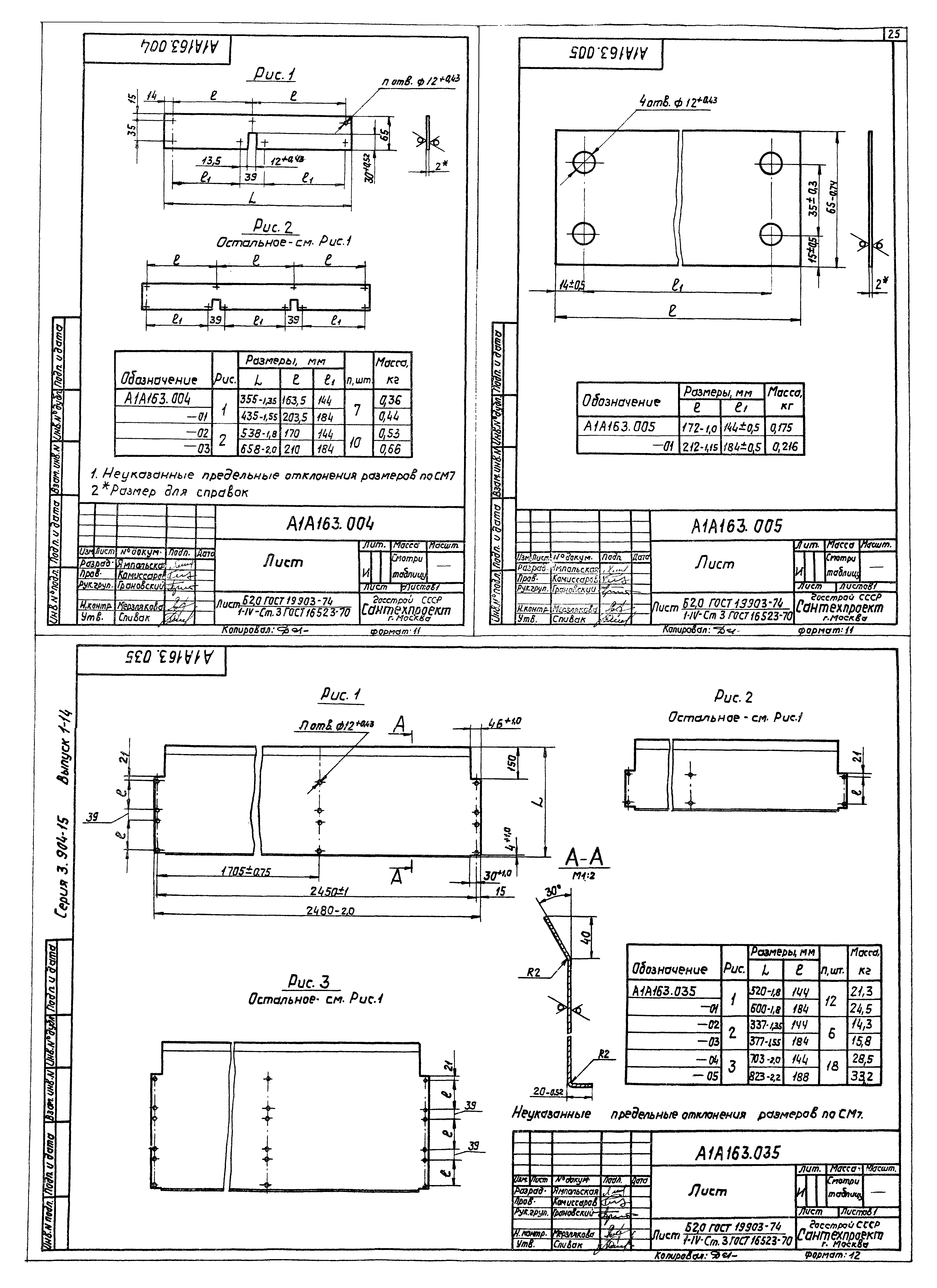
| Оглавление: | 3.904-15 Содержание 3.904-15 А1А180.000ТО Секция калориферная с центральным расположением обводных заслонок для приточных камер 1ПК10-1ПК100. Техническое описание 3.904-15 А1А161.000 Секция калориферная для приточной камеры 1ПК10 3.904-15 А1А161.010 Элемент регулирующий 3.904-15 А1А161.000 СБ Секция калориферная для приточной камеры 1ПК10. Сборочный чертеж 3.904-15 А1А161.010 Корпус 3.904-15 А1А161.001 Щиток 3.904-15 А1А161.002 Щиток 3.904-15 А1А161.010 СБ Элемент регулирующий. Сборочный чертеж 3.904-15 А1А161.020 СБ Корпус. Сборочный чертеж 3.904-15 А1А161.004 Стенка 3.904-15 А1А161.005 Планка 3.904-15 А1А161.030 Рамка 3.904-15 А1А161.013 Уголок 3.904-15 А1А161.030 СБ Рамка. Сборочный чертеж 3.904-15 А1А161.040 Рама 3.904-15 А1А161.006 Ручка 3.904-15 А1А161.040 СБ Рама. Сборочный чертеж 3.904-15 А1А161.007 Лист 3.904-15 А1А161.008 Лист 3.904-15 А1А161.046 Лист 3.904-15 А1А161.041 Швеллер 3.904-15 А1А161.042 Швеллер 3.904-15 А1А161.045 Швеллер 3.904-15 А1А162.000 Секция калориферная для приточной камеры 1ПК25 3.904-15 А1А162.010 Рама 3.904-15 А1А162.006 Швеллер 3.904-15 А1А162.000 СБ Секция калориферная для приточной камеры 1ПК25. Сборочный чертеж 3.904-15 А1А162.010 СБ Рама. Сборочный чертеж 3.904-15 А1А163.000 Секция калориферная для приточной камеры 1ПК50 3.904-15 А1А163.010 Заслонка воздушная обводная 3.904-15 А1А163.020 Корпус 3.904-15 А1А163.000 СБ Секция калориферная для приточной камеры 1ПК50. Сборочный чертеж 3.904-15 А1А163.030 Заслонка 3.904-15 А1А163.001 Лист 3.904-15 А1А163.003 Щиток боковой 3.904-15 А1А163.010 СБ Заслонка воздушная обводная. Сборочный чертеж 3.904-15 А1А163.020 СБ Корпус. Сборочный чертеж 3.904-15 А1А163.030 СБ Заслонка. Сборочный чертеж 3.904-15 А1А163.013 Стенка 3.904-15 А1А163.014 Лист 3.904-15 А1А163.021 Лист 3.904-15 А1А163.023 Ручка 3.904-15 А1А163.040 Рама 3.904-15 А1А163.040 СБ Рама. Сборочный чертеж 3.904-15 А1А163.004 Лист 3.904-15 А1А163.005 Лист 3.904-15 А1А163.035 Лист 3.904-15 А1А163.015 Лист 3.904-15 А1А163.031 Швеллер 3.904-15 А1А163.034 Швеллер 3.904-15 А1А163.036 Стойка 3.904-15 А1А164.000 Секция калориферная для приточной камеры 1ПК70 3.904-15 А1А164.001 Лист 3.904-15 А1А165.001 Щиток 3.904-15 А1А164.000 СБ Секция калориферная для приточной камеры 1ПК70. Сборочный чертеж 3.904-15 А1А165.000 Секция калориферная для приточной камеры 1ПК100 3.904-15 А1А165.010 Щиток 3.904-15 А1А165.001 Щиток 3.904-15 А1А165.000 СБ Секция калориферная для приточной камеры 1ПК100. Сборочный чертеж 3.904-15 А1А165.020 Рама 3.904-15 А1А165.003 Щиток 3.904-15 А1А165.020 СБ Рама. Сборочный чертеж 3.904-15 А1А165.004 Щиток 3.904-15 А1А165.012 Швеллер 3.904-15 А1А165.013 Швеллер 3.904-15 А1А165.018 Лист |
| Разработан: | ГПИ Сантехпроект Госстроя СССР |
| Утверждён: | 14.02.1977 Главпромстройпроект Госстроя СССР (7) |
| Чем заменён: |
|



































