Скачать Типовой проект 902-2-378.83 Альбом I. Технологическая и санитарно-техническая частиДата актуализации: 01.01.2021
|
| Обозначение: | Типовой проект 902-2-378.83 |
| Обозначение англ: | 902-2-378.83 |
| Статус: | действует |
| Название рус.: | Альбом I. Технологическая и санитарно-техническая части |
| Дата добавления в базу: | 01.09.2013 |
| Дата актуализации: | 01.01.2021 |
| Дата введения: | 10.08.1983 |
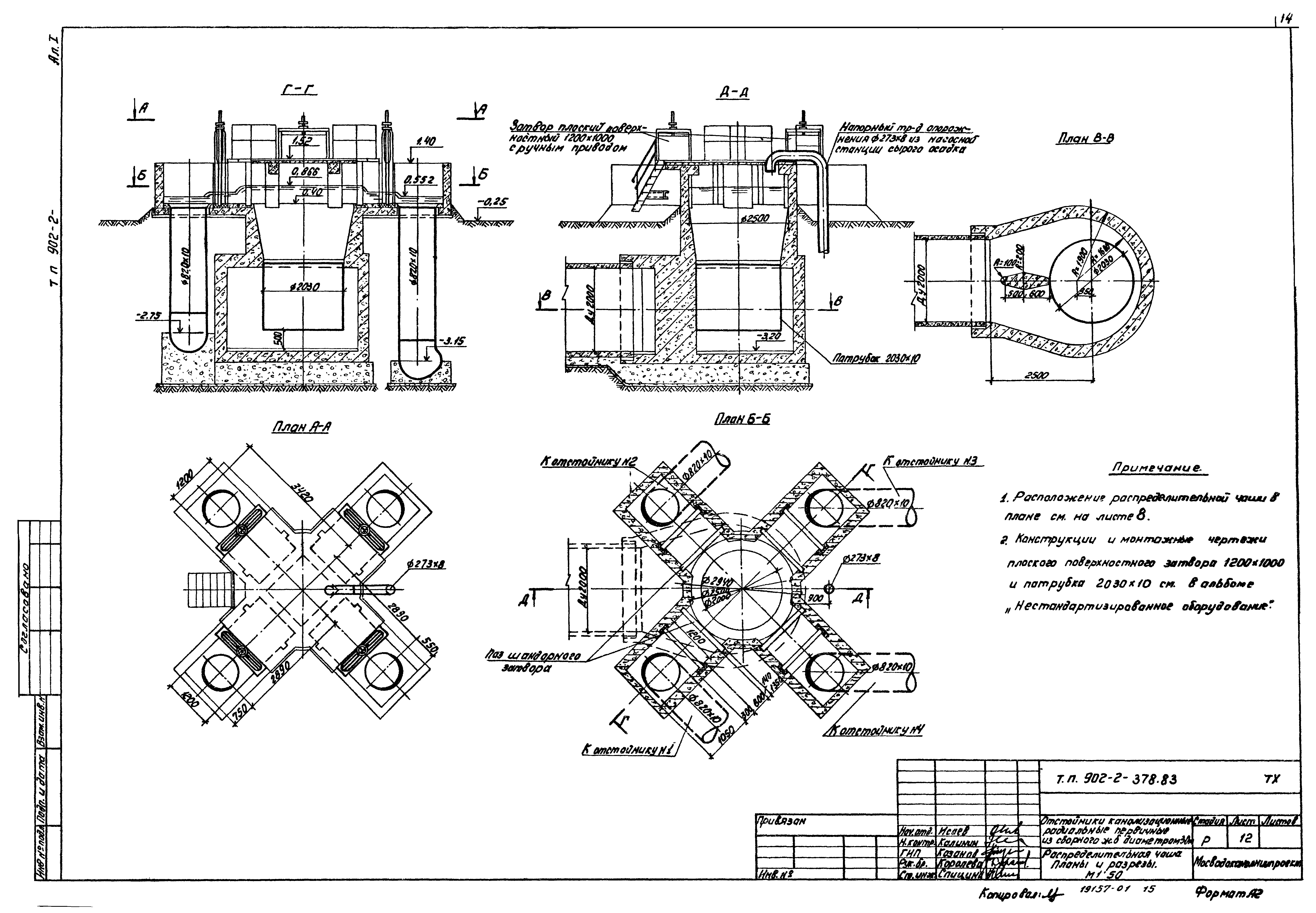
| Оглавление: | ТП 902-2-378.83 Содержание альбома ТП 902-2-378.83-ТХ Технологическая часть ТП 902-2-378.83-ТХ-1-7 Общие данные ТП 902-2-378.83-ТХ-8 План группы отстойников М1:200 ТП 902-2-378.83-ТХ-9 Отстойник №1. План, разрез М1:100 ТП 902-2-378.83-ТХ-10 Насосная станция сырого осадка. Планы и разрезы М1:100 ТП 902-2-378.83-ТХ-11 Насосная станция сырого осадка. Аксонометрическая схема технологических трубопроводов ТП 902-2-378.83-ТХ-12 Распределительная чаша. Планы, разрезы М1:50 ТП 902-2-378.83-ТХ-13 Жиросборники. Планы, разрезы М1:50 ТП 902-2-378.83-ТХ-14 Профили подводящих трубопроводов М1:100 ТП 902-2-378.83-ТХ-15 Профили подводящих трубопроводов М1:100 ТП 902-2-378.83-ТХ-16 Профили всасывающих трубопроводов сырого осадка от отстойников №1 и №4 М1:100 ТП 902-2-378.83-ТХ-17 Профили всасывающих трубопроводов сырого осадка от отстойников №2 и №3 М1:100 ТП 902-2-378.83-ТХ-18 Профили жиропроводов, промывных вод трубопровода опорожнения ТП 902-2-378.83-ВК Внутренние водопровод и канализация ТП 902-2-378.83-ВК-1 Общие данные ТП 902-2-378.83-ВК-2 Насосная станция сырого осадка. План и схемы систем ТП 902-2-378.83-ОВ Отопление и вентиляция ТП 902-2-378.83-ОВ-1 Насосная станция сырого осадка. Общие данные ТП 902-2-378.83-ОВ-2 Насосная станция сырого осадка. Отопление и вентиляция. Планы на отм. -4.200 и 0.000. Схемы системы отопления ТП 902-2-378.83-ОВ-3 Насосная станция сырого осадка. Венткамера. План. Разрез 1-1. Спецификация отопительно-вентиляционной установки ТП 902-2-378.83-ОВ-4 Насосная станция сырого осадка. Узел управления. Спецификация. Схема обвязки калорифера. Схема системы П1 |
| Разработан: | МосводоканалНИИпроект |
| Утверждён: | 10.08.1983 МосводоканалНИИпроект (192) |


























