Скачать Типовой проект 902-2-378.83 Альбом IX. Нестандартизированное оборудование. Устройство для удаления плавающих веществДата актуализации: 01.01.2021
|
| Обозначение: | Типовой проект 902-2-378.83 |
| Обозначение англ: | 902-2-378.83 |
| Статус: | действует |
| Название рус.: | Альбом IX. Нестандартизированное оборудование. Устройство для удаления плавающих веществ |
| Дата добавления в базу: | 01.09.2013 |
| Дата актуализации: | 01.01.2021 |
| Дата введения: | 10.08.1983 |
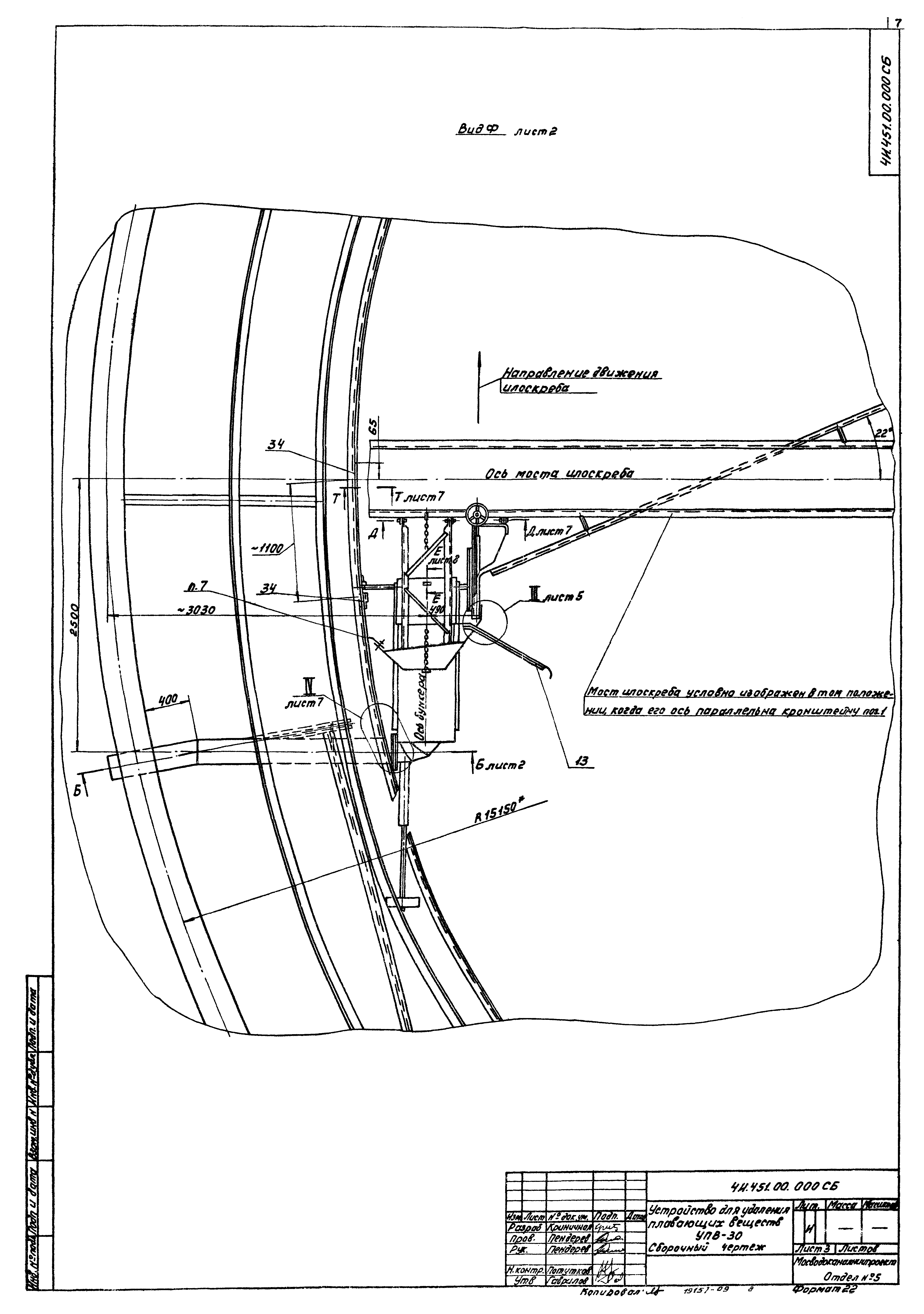
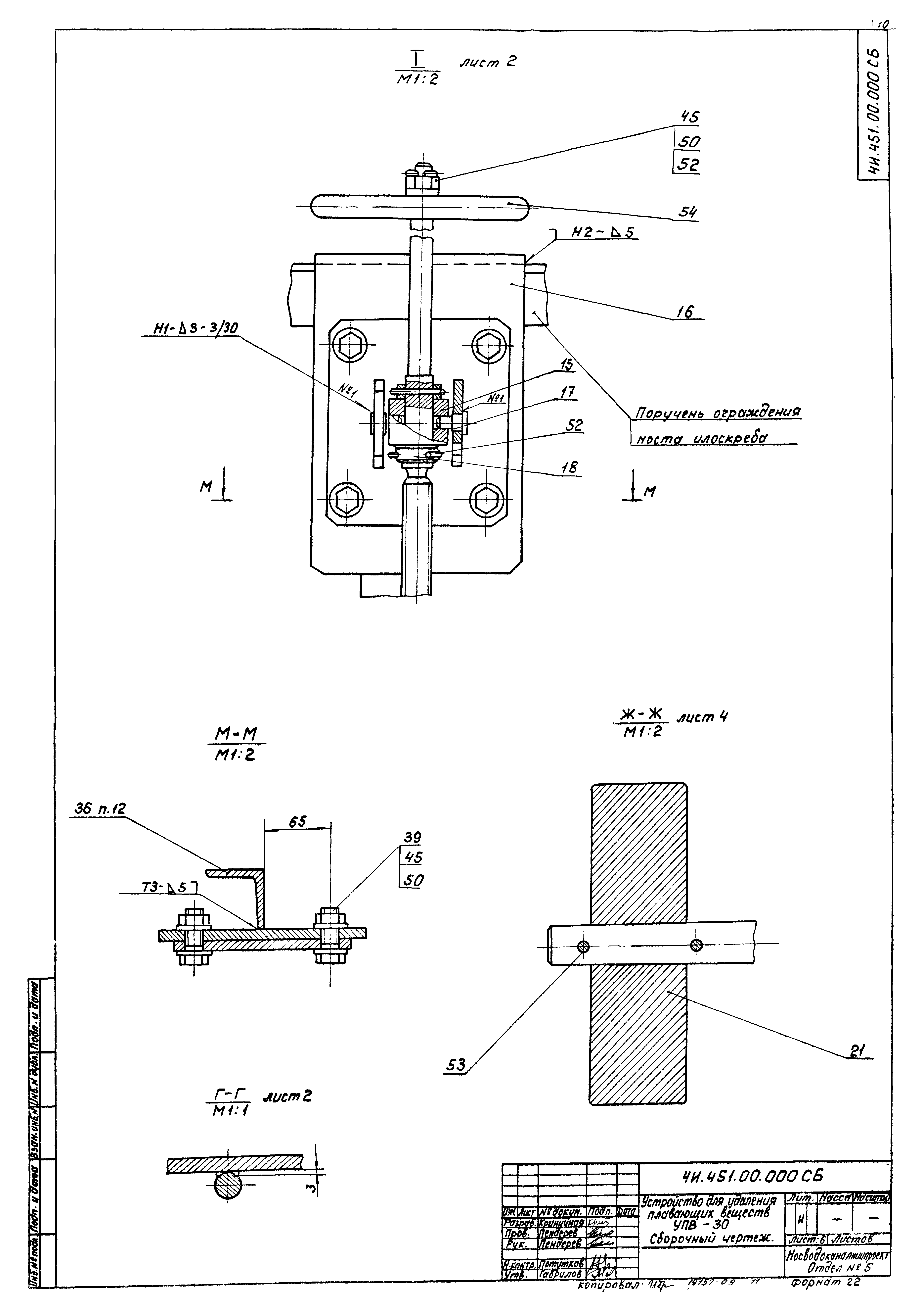
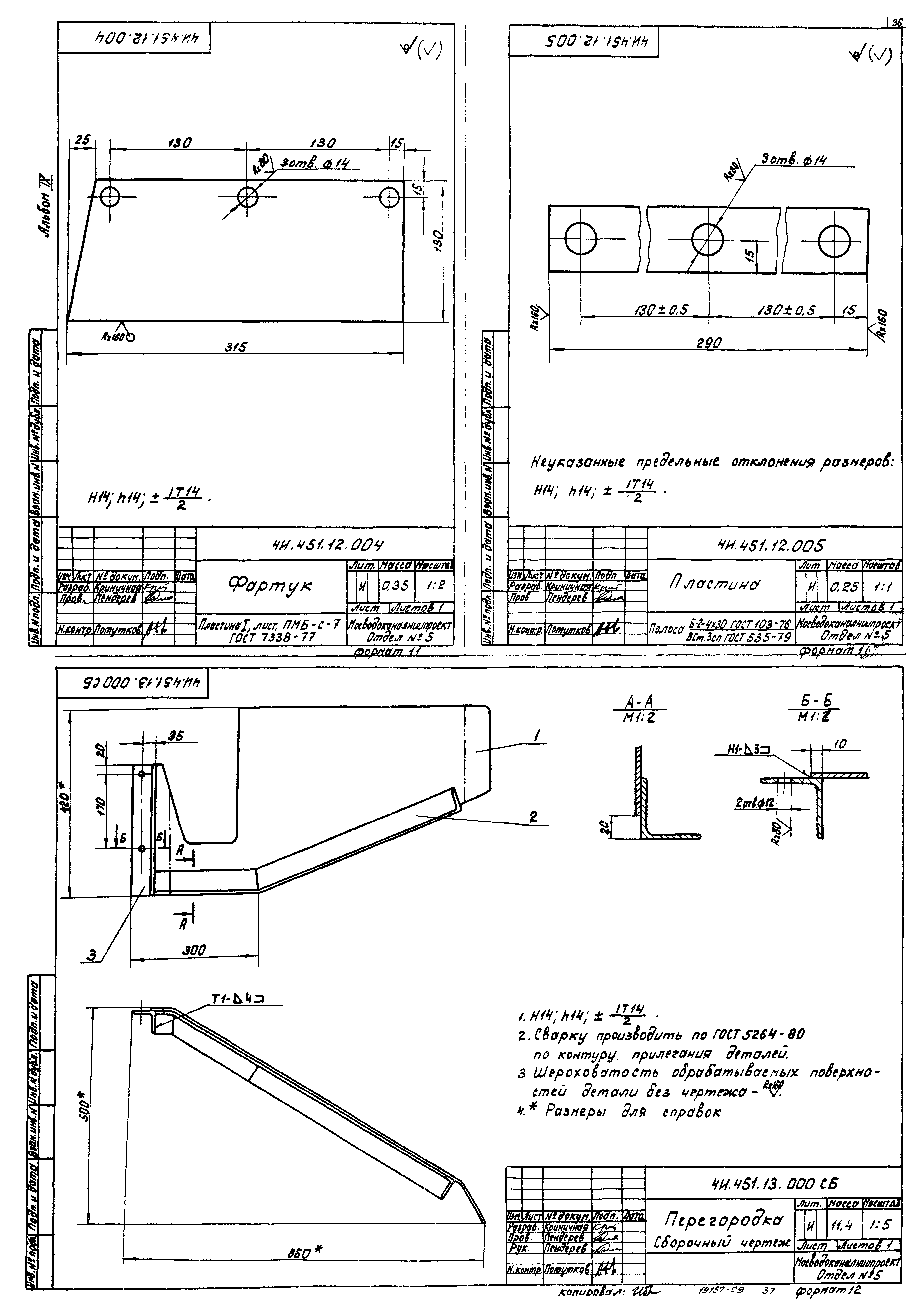
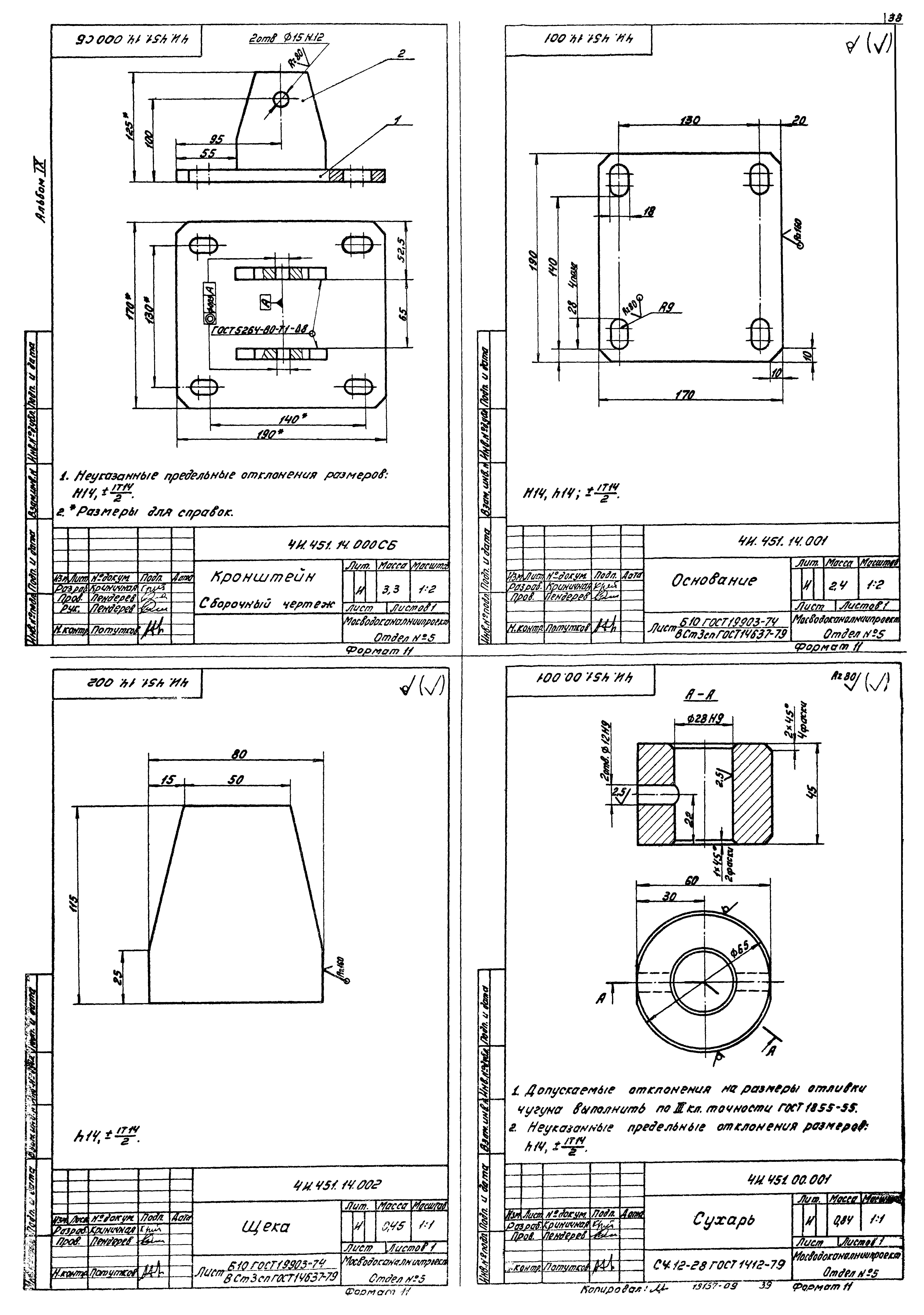
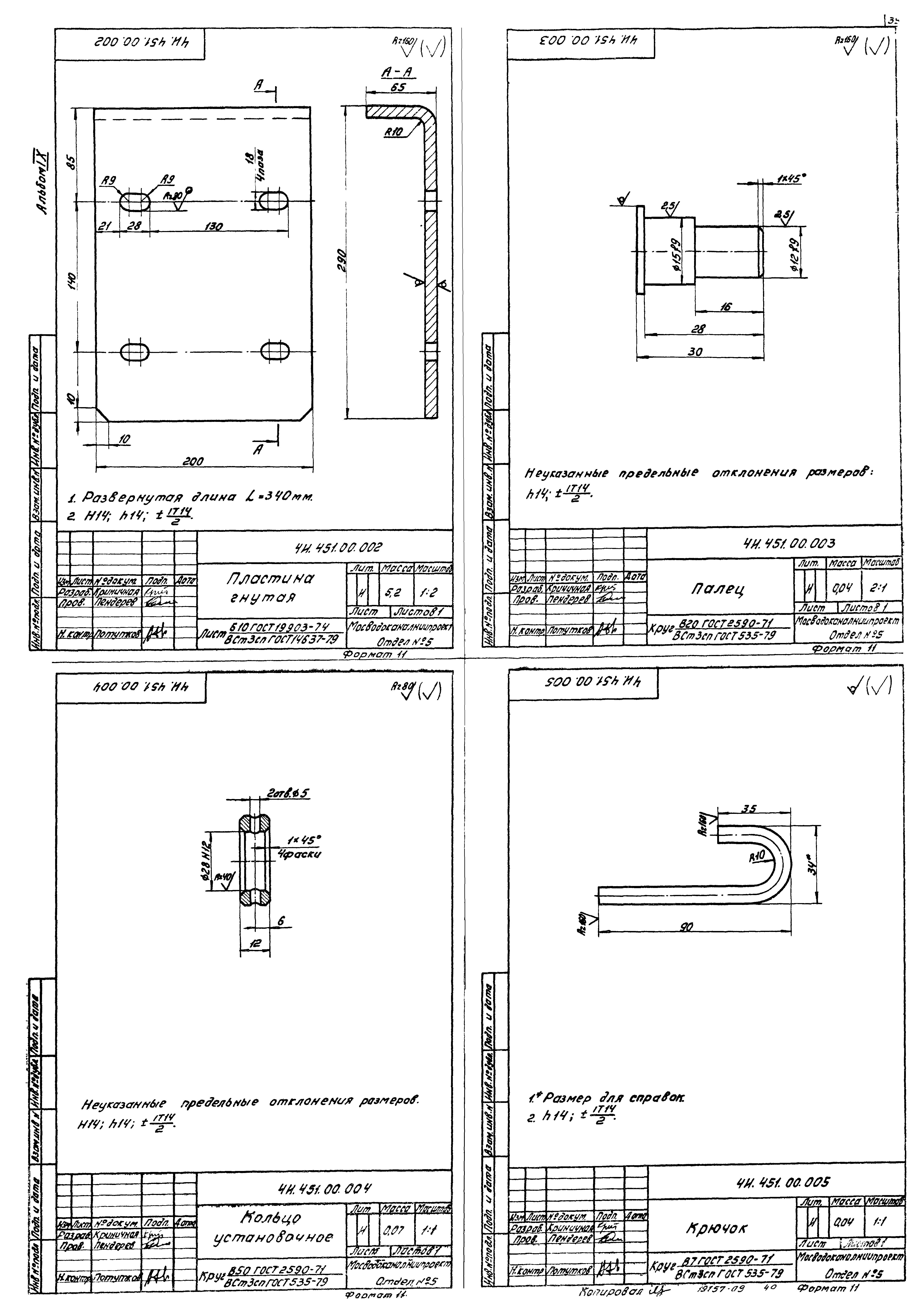
| Оглавление: | ТП 902-2-378.83 Титульный лист ТП 902-2-378.83 Содержание альбома ТП 902-2-378.83 4И.451.00.000 ВП Устройство для удаления плавающих веществ УПВ-30. Ведомость покупных изделий ТП 902-2-378.83 4И.451.00.000 Устройство для удаления плавающих веществ УПВ-30. Спецификация. Лист 1-4 ТП 902-2-378.83 4И.451.00.000 СБ Устройство для удаления плавающих веществ УПВ-30. Спецификация. Лист 1 ТП 902-2-378.83 4И.451.00.000 СБ Устройство для удаления плавающих веществ УПВ-30. Спецификация. Лист 2 ТП 902-2-378.83 4И.451.00.000 СБ Устройство для удаления плавающих веществ УПВ-30. Спецификация. Лист 3 ТП 902-2-378.83 4И.451.00.000 СБ Устройство для удаления плавающих веществ УПВ-30. Спецификация. Лист 4 ТП 902-2-378.83 4И.451.00.000 СБ Устройство для удаления плавающих веществ УПВ-30. Спецификация. Лист 5 ТП 902-2-378.83 4И.451.00.000 СБ Устройство для удаления плавающих веществ УПВ-30. Спецификация. Лист 6 ТП 902-2-378.83 4И.451.00.000 СБ Устройство для удаления плавающих веществ УПВ-30. Спецификация. Лист 7 ТП 902-2-378.83 4И.451.00.000 СБ Устройство для удаления плавающих веществ УПВ-30. Спецификация. Лист 8 ТП 902-2-378.83 4И.451.01.000 СБ Кронштейн ТП 902-2-378.83 4И.451.01.000 Кронштейн. Спецификация ТП 902-2-378.83 4И.451.01.100 Раструб. Спецификация ТП 902-2-378.83 4И.451.01.100 СБ Раструб ТП 902-2-378.83 4И.451.01.101 Фланец ТП 902-2-378.83 4И.451.01.001 Пластина ТП 902-2-378.83 4И.451.01.002 Ребро ТП 902-2-378.83 4И.451.01.003 Патрубок ТП 902-2-378.83 4И.451.01.004 Патрубок ТП 902-2-378.83 4И.451.02.000 СБ Отвод ТП 902-2-378.83 4И.451.02.000 Отвод. Спецификация ТП 902-2-378.83 4И.451.02.100 Полусекция. Спецификация ТП 902-2-378.83 4И.451.02.100 СБ Полусекция ТП 902-2-378.83 4И.451.02.101 Втулка ТП 902-2-378.83 4И.451.02.102 Полусекция ТП 902-2-378.83 4И.451.02.001 Секция ТП 902-2-378.83 4И.451.02.002 Полусекция ТП 902-2-378.83 4И.451.03.000 Бункер. Спецификация. Лист 1-2 ТП 902-2-378.83 4И.451.03.001 Патрубок ТП 902-2-378.83 4И.451.03.000 СБ Бункер ТП 902-2-378.83 4И.451.03.002 Лист направляющий ТП 902-2-378.83 4И.451.03.003 Лист направляющий ТП 902-2-378.83 4И.451.03.004 Окантовка ТП 902-2-378.83 4И.451.03.005 Стенка боковая ТП 902-2-378.83 4И.451.03.006 Угольник ТП 902-2-378.83 4И.451.03.007 Переход косой ТП 902-2-378.83 4И.451.04.008 Ушко ТП 902-2-378.83 4И.451.04.000 Вилка. Спецификация ТП 902-2-378.83 4И.451.04.000 СБ Вилка ТП 902-2-378.83 4И.451.04.001 Основание ТП 902-2-378.83 4И.451.04.002 Полоса гнутая ТП 902-2-378.83 4И.451.05.000 Подвеска. Спецификация ТП 902-2-378.83 4И.451.05.000 СБ Подвеска ТП 902-2-378.83 4И.451.05.001 Ушко ТП 902-2-378.83 4И.451.06.000 Скребок полупогружной. Спецификация. Лист 1-2 ТП 902-2-378.83 4И.451.06.000 СБ Скребок полупогружной ТП 902-2-378.83 4И.451.06.001 Полоса ТП 902-2-378.83 4И.451.06.002 Подвеска ТП 902-2-378.83 4И.451.06.003 Угольник ТП 902-2-378.83 4И.451.06.004 Фартук ТП 902-2-378.83 4И.451.07.000 Рычаг. Спецификация ТП 902-2-378.83 4И.451.07.000 СБ Рычаг ТП 902-2-378.83 4И.451.07.001 Угольник ТП 902-2-378.83 4И.451.07.002 Ушко ТП 902-2-378.83 4И.451.07.003 Накладка ТП 902-2-378.83 4И.451.08.000 Штанга. Спецификация ТП 902-2-378.83 4И.451.08.000 СБ Штанга ТП 902-2-378.83 4И.451.08.001 Шпиндель ТП 902-2-378.83 4И.451.08.002 Гайка ходовая ТП 902-2-378.83 4И.451.08.003 Ушко ТП 902-2-378.83 4И.451.09.000 Ось. Спецификация ТП 902-2-378.83 4И.451.09.000 СБ Ось ТП 902-2-378.83 4И.451.09.001 Пруток ТП 902-2-378.83 4И.451.10.000 Кулачок. Спецификация ТП 902-2-378.83 4И.451.10.000 СБ Кулачок ТП 902-2-378.83 4И.451.10.001 Пластина ТП 902-2-378.83 4И.451.11.000 Поплавок. Спецификация. Лист 1-2 ТП 902-2-378.83 4И.451.11.000 СБ Поплавок ТП 902-2-378.83 4И.451.11.001 Валик ТП 902-2-378.83 4И.451.11.002 Стенка торцевая ТП 902-2-378.83 4И.451.11.003 Стенка продольная ТП 902-2-378.83 4И.451.11.004 Бобышка ТП 902-2-378.83 4И.451.11.005 Пробка ТП 902-2-378.83 4И.451.12.000 Скребок качающийся. Спецификация ТП 902-2-378.83 4И.451.12.000 СБ Скребок качающийся ТП 902-2-378.83 4И.451.12.001 Стенка вертикальная ТП 902-2-378.83 4И.451.12.002 Лист верхний ТП 902-2-378.83 4И.451.12.003 Угольник ТП 902-2-378.83 4И.451.12.004 Фартук ТП 902-2-378.83 4И.451.12.005 Пластина ТП 902-2-378.83 4И.451.13.000 СБ Перегородка ТП 902-2-378.83 4И.451.13.000 Перегородка. Спецификация ТП 902-2-378.83 4И.451.13.001 Лист ТП 902-2-378.83 4И.451.13.002 Угольник ТП 902-2-378.83 4И.451.14.000 Кронштейн. Спецификация ТП 902-2-378.83 4И.451.14.000 СБ Кронштейн ТП 902-2-378.83 4И.451.14.001 Основание ТП 902-2-378.83 4И.451.14.002 Щека ТП 902-2-378.83 4И.451.00.001 Сухарь ТП 902-2-378.83 4И.451.00.002 Пластина гнутая ТП 902-2-378.83 4И.451.00.003 Палец ТП 902-2-378.83 4И.451.00.004 Кольцо установочное ТП 902-2-378.83 4И.451.00.005 Крючок ТП 902-2-378.83 4И.451.00.006 Петля ТП 902-2-378.83 4И.451.00.007 Противовес ТП 902-2-378.83 4И.451.00.008 Ось ТП 902-2-378.83 4И.451.00.009 Ушко ТП 902-2-378.83 4И.451.00.011 Ушко ТП 902-2-378.83 4И.451.00.012 Фланец накидной ТП 902-2-378.83 4И.451.00.013 Прокладка ТП 902-2-378.83 4И.451.00.014 Балка ТП 902-2-378.83 4И.451.00.015 Ограничитель ТП 902-2-378.83 4И.451.00.016 Ребро |
| Разработан: | МосводоканалНИИпроект |
| Утверждён: | 10.08.1983 МосводоканалНИИпроект (192) |











































