Скачать Типовой проект А-II,III,IV-300-326.86 Альбом 2. Архитектурные решения. Конструкции железобетонныеДата актуализации: 01.01.2021
|
| Обозначение: | Типовой проект А-II,III,IV-300-326.86 |
| Обозначение англ: | А-II,III,IV-300-326.86 |
| Статус: | не определен законодательством |
| Название рус.: | Альбом 2. Архитектурные решения. Конструкции железобетонные |
| Дата добавления в базу: | 01.09.2013 |
| Дата актуализации: | 01.01.2021 |
| Дата введения: | 23.09.1986 |
| Дата окончания срока действия: | 30.06.2003 |
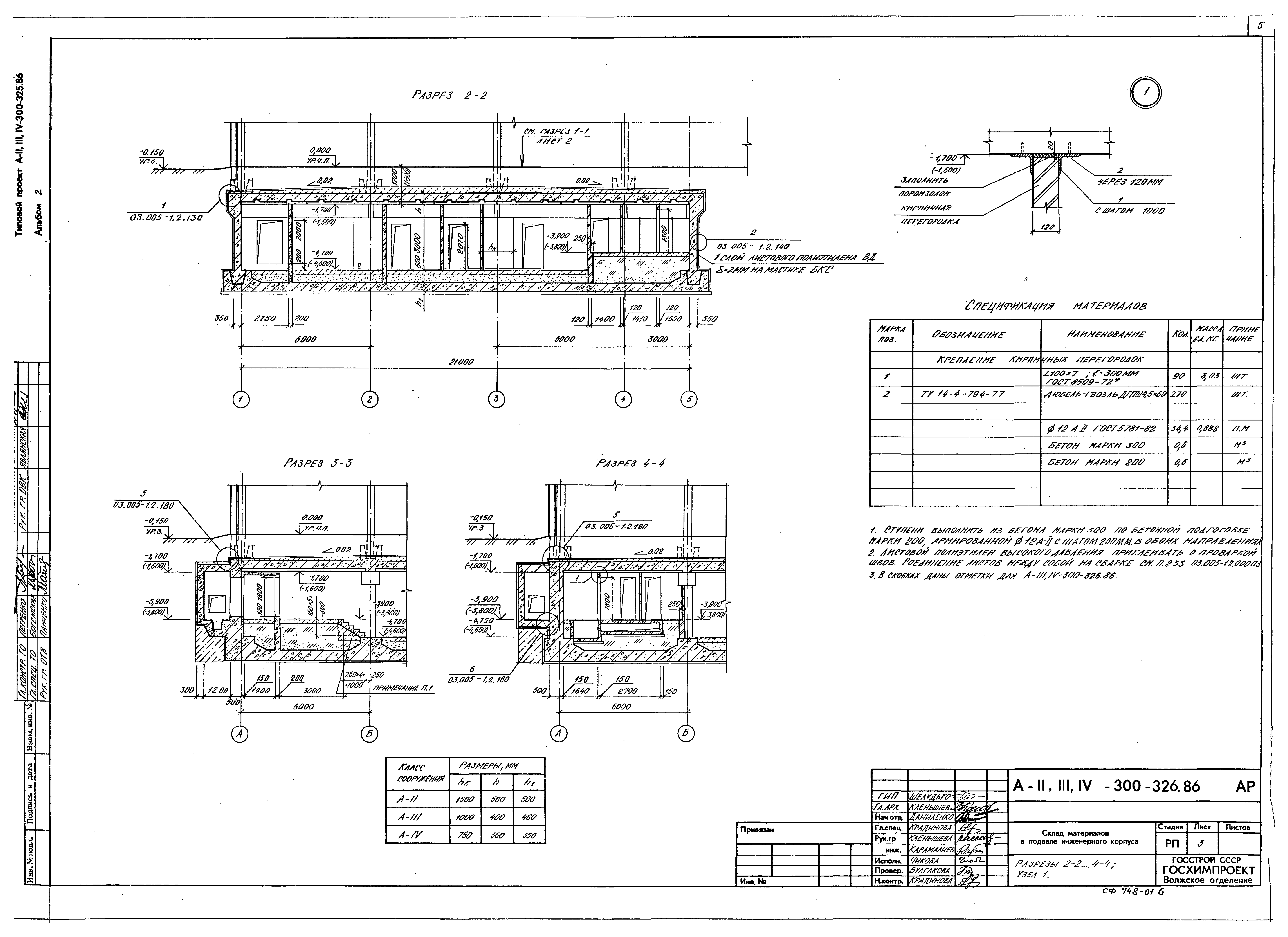
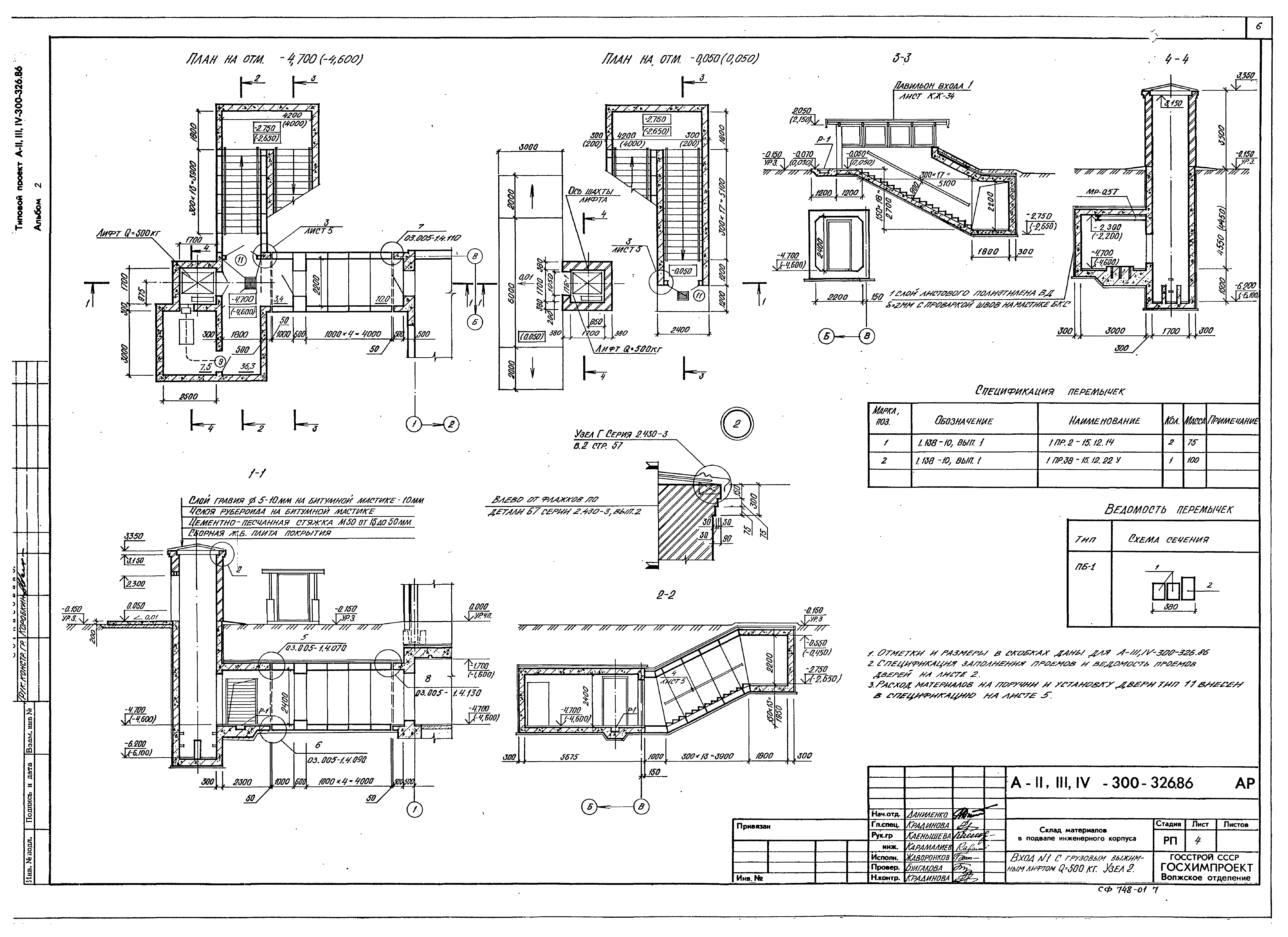
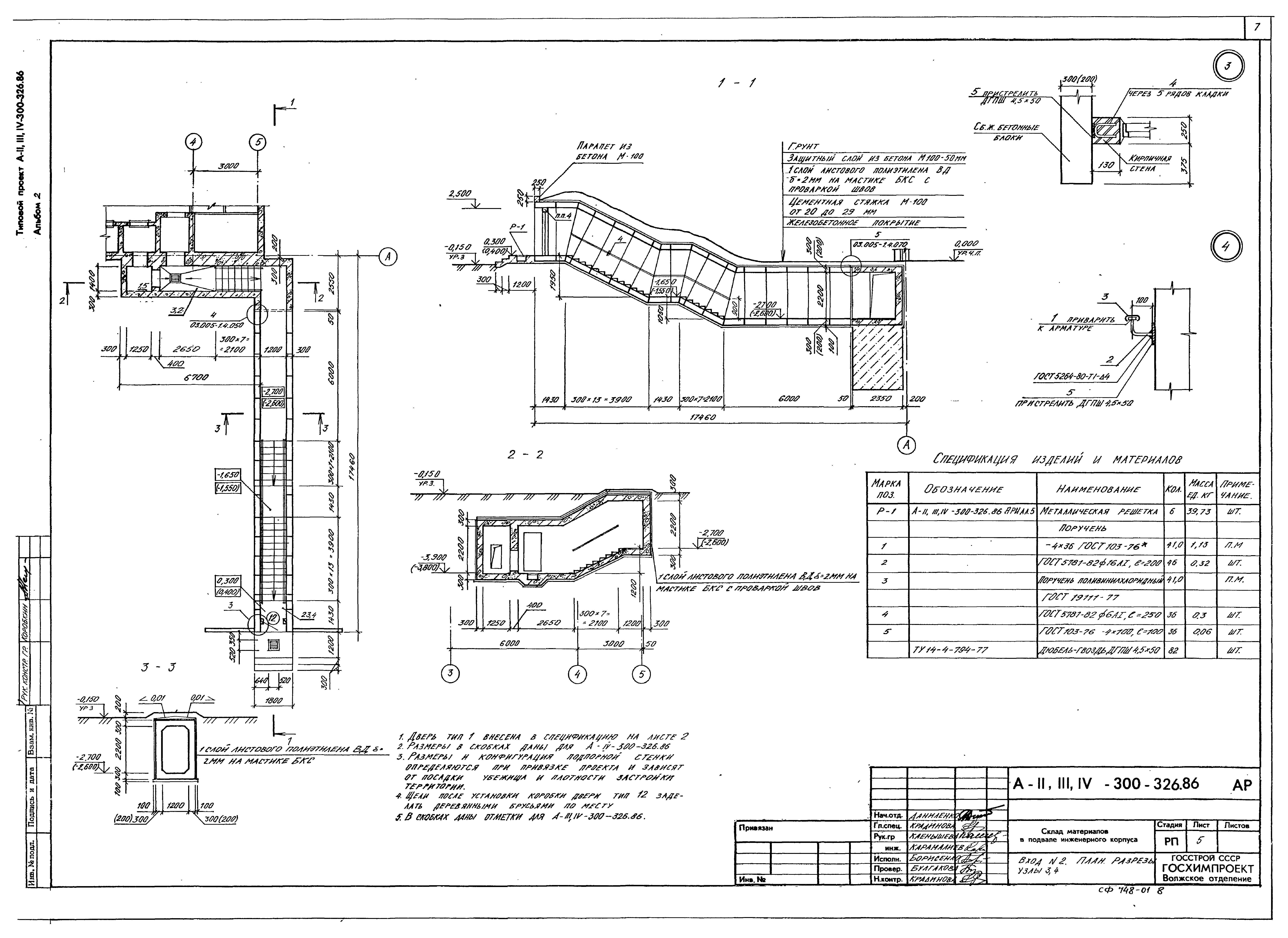
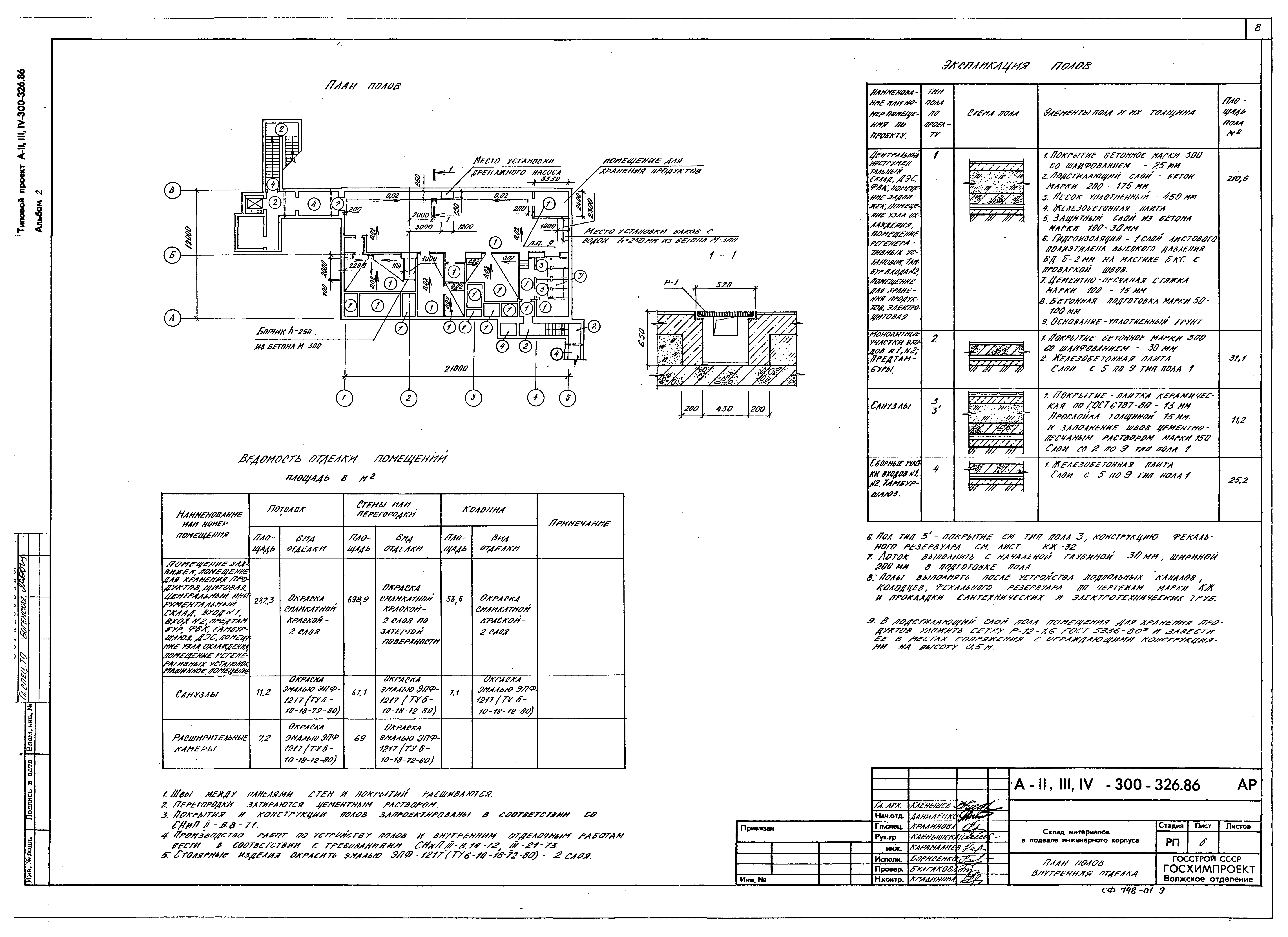
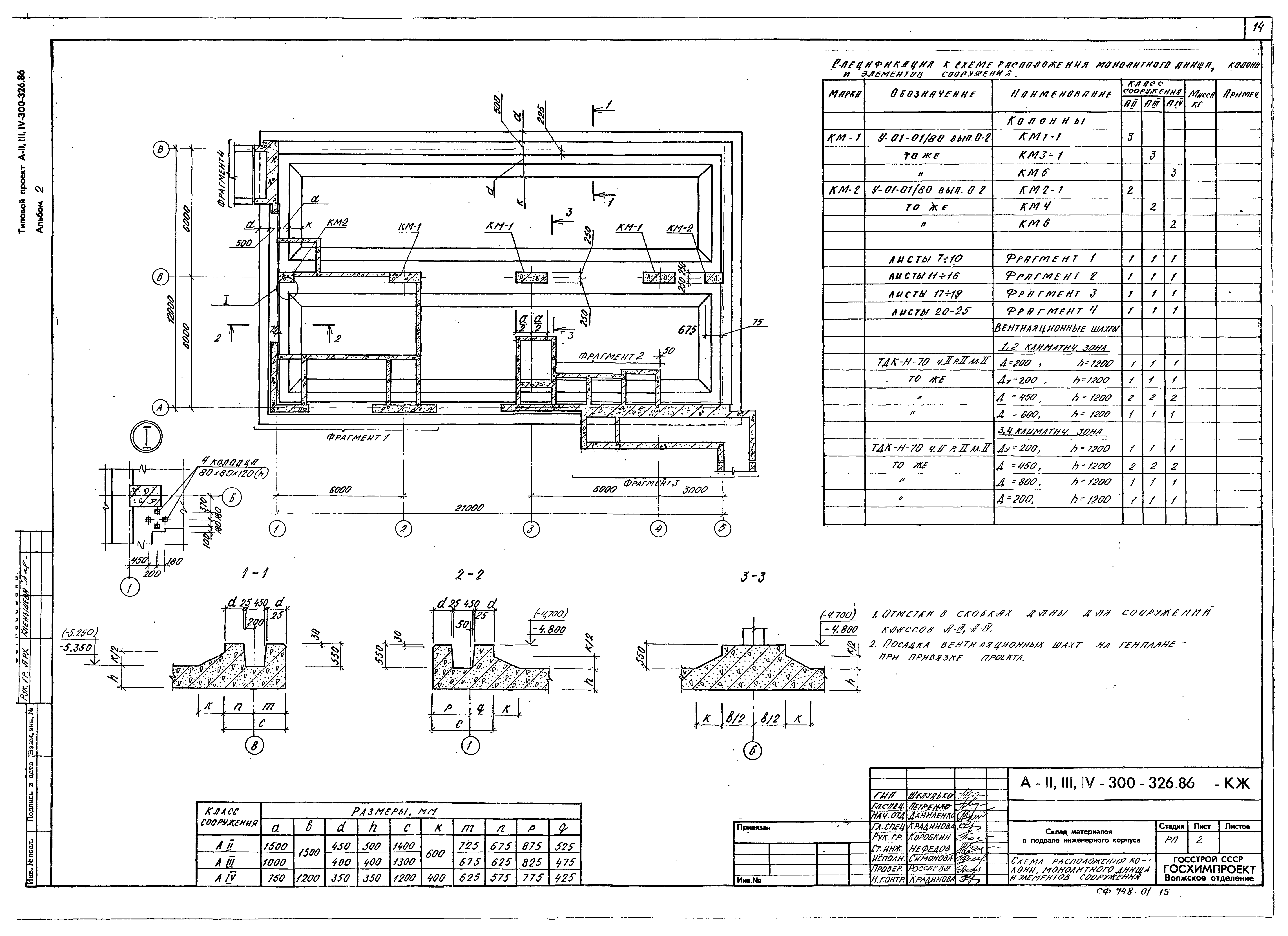
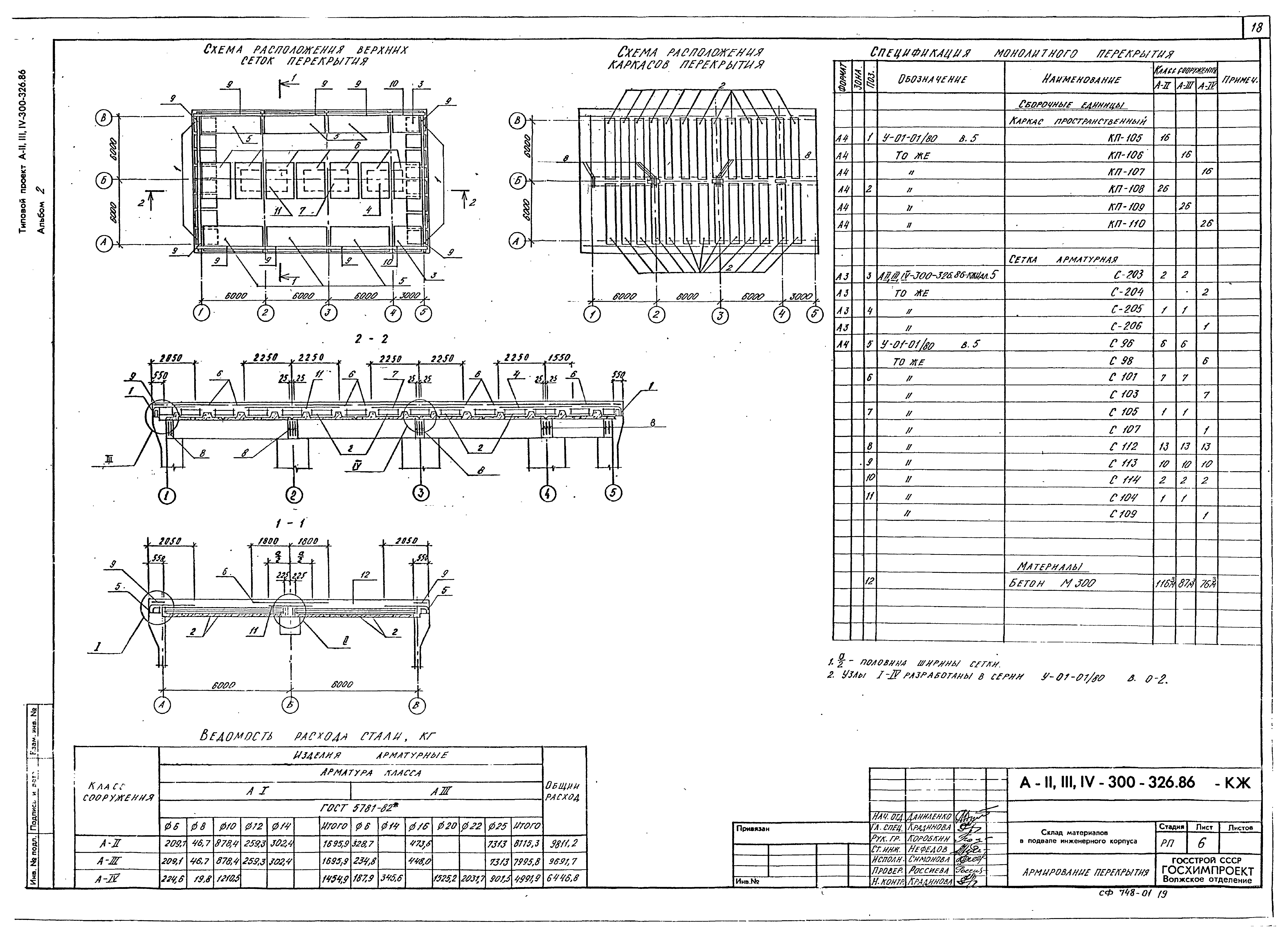
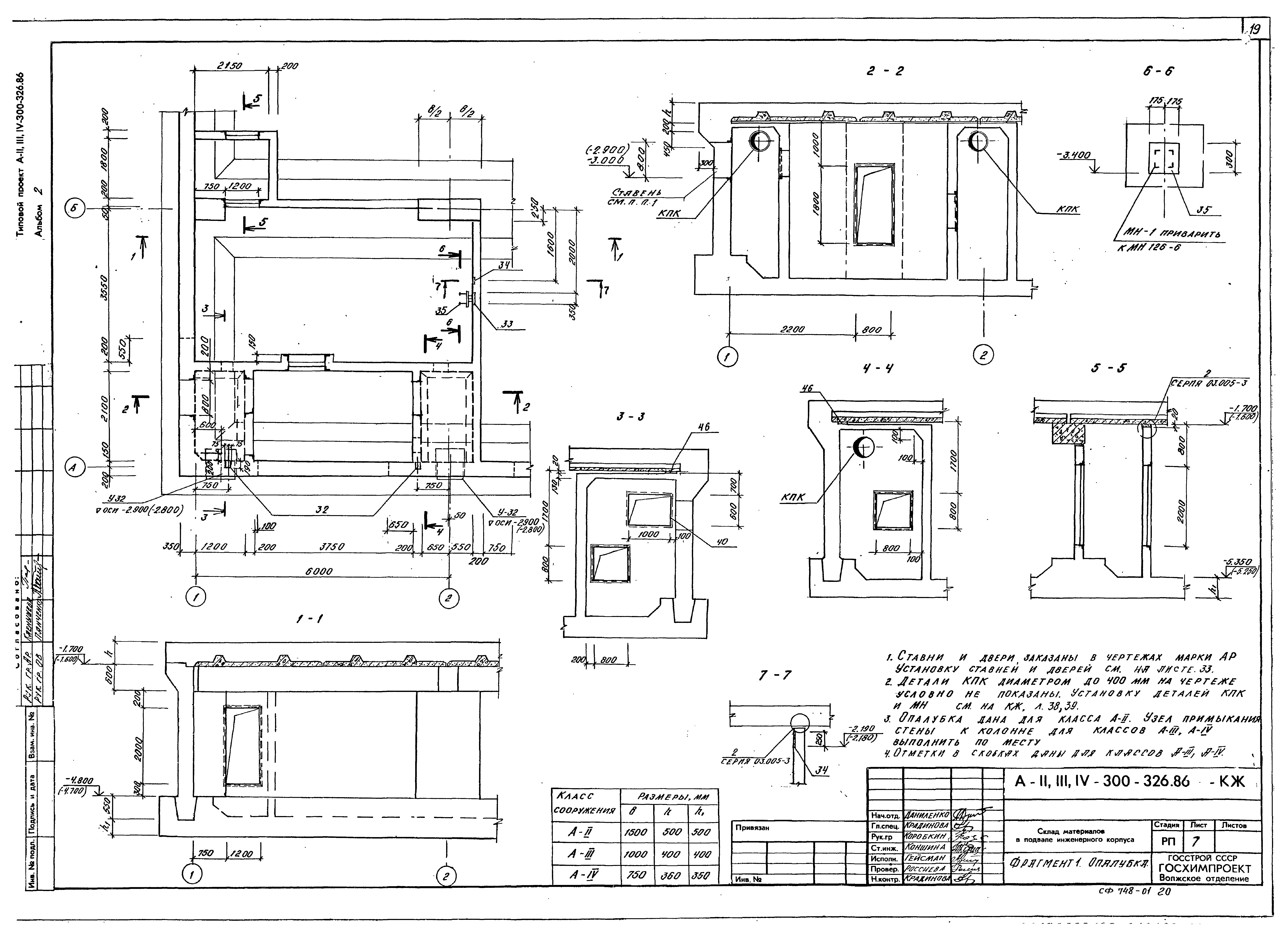
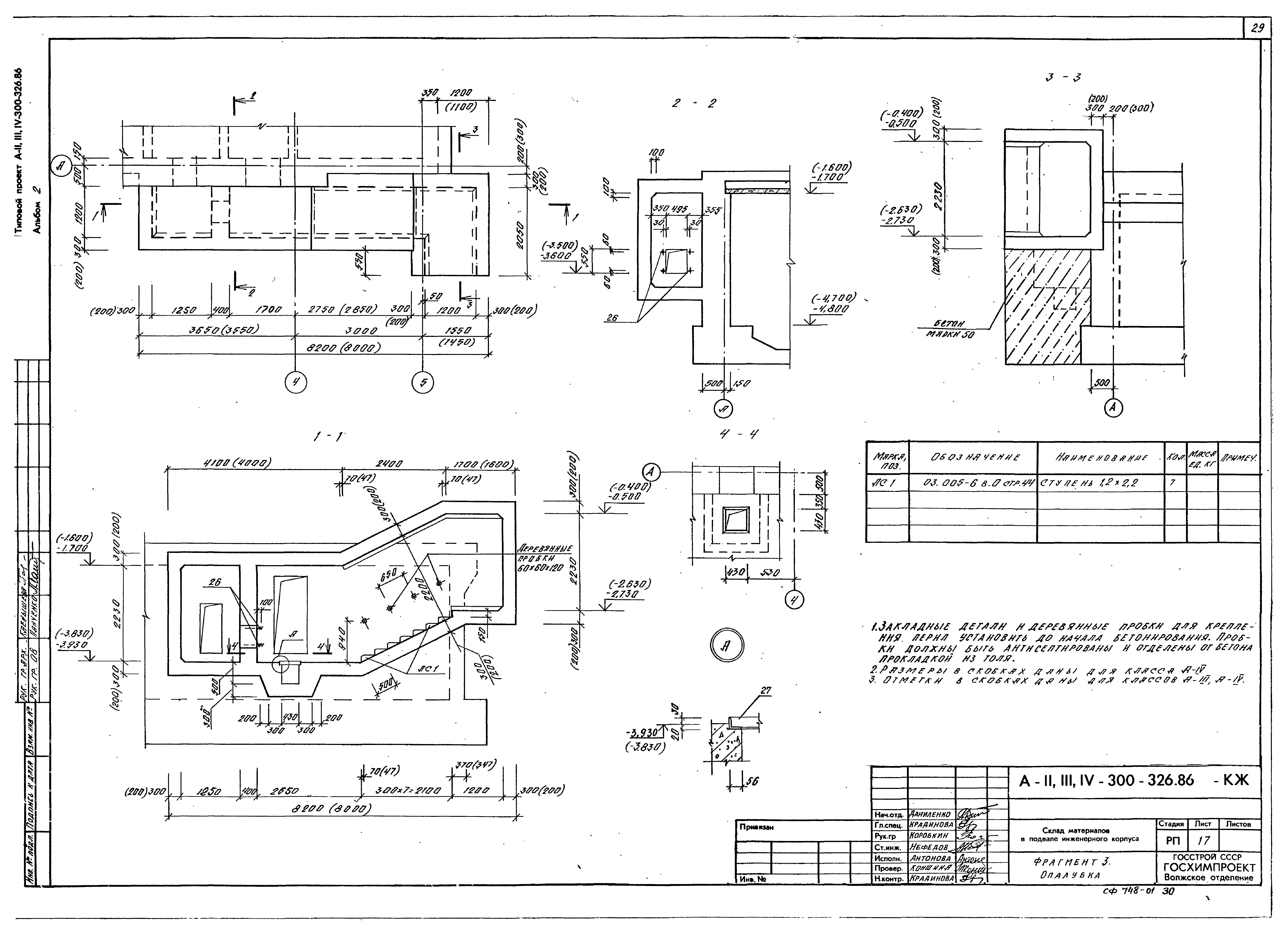
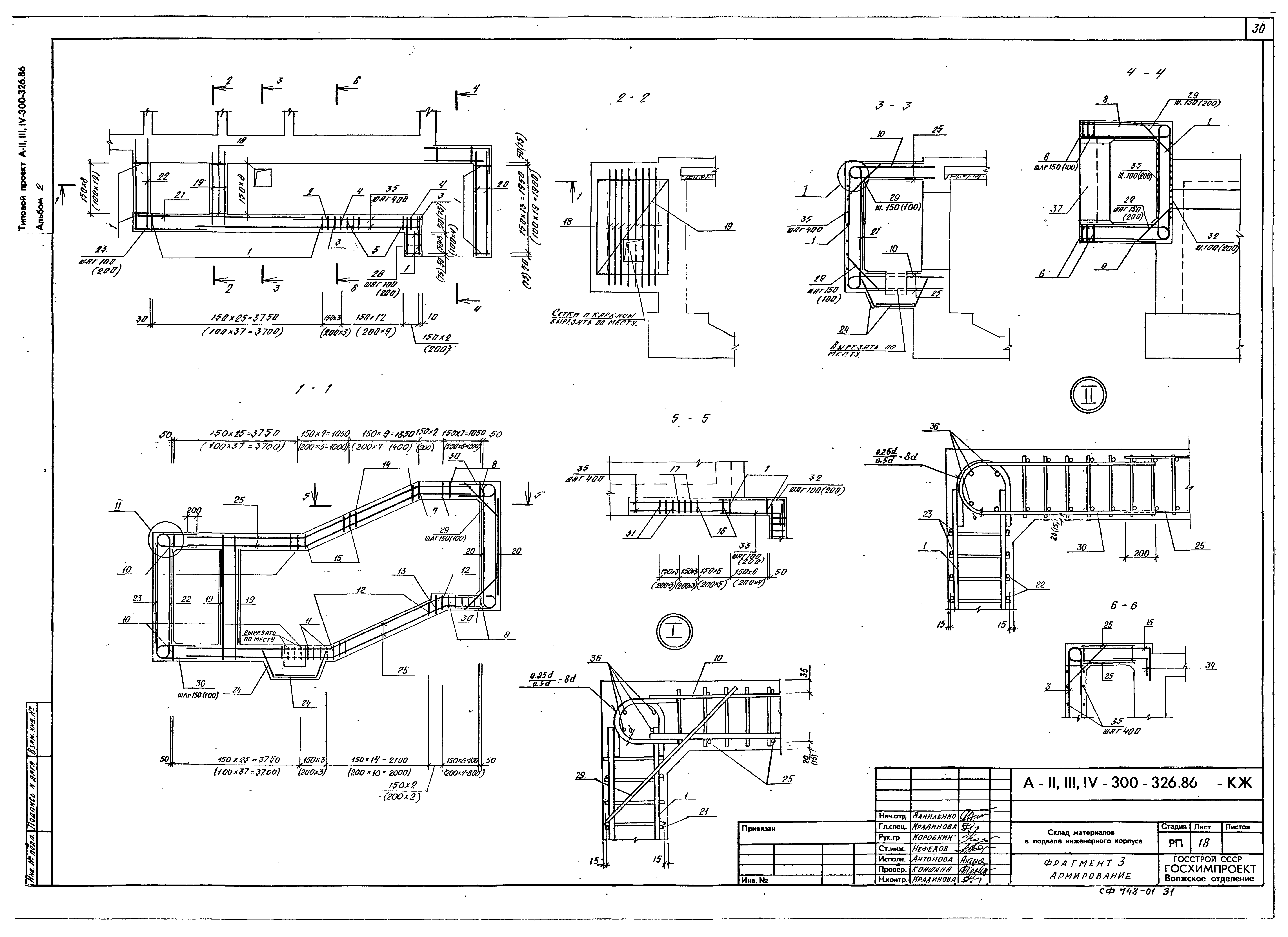
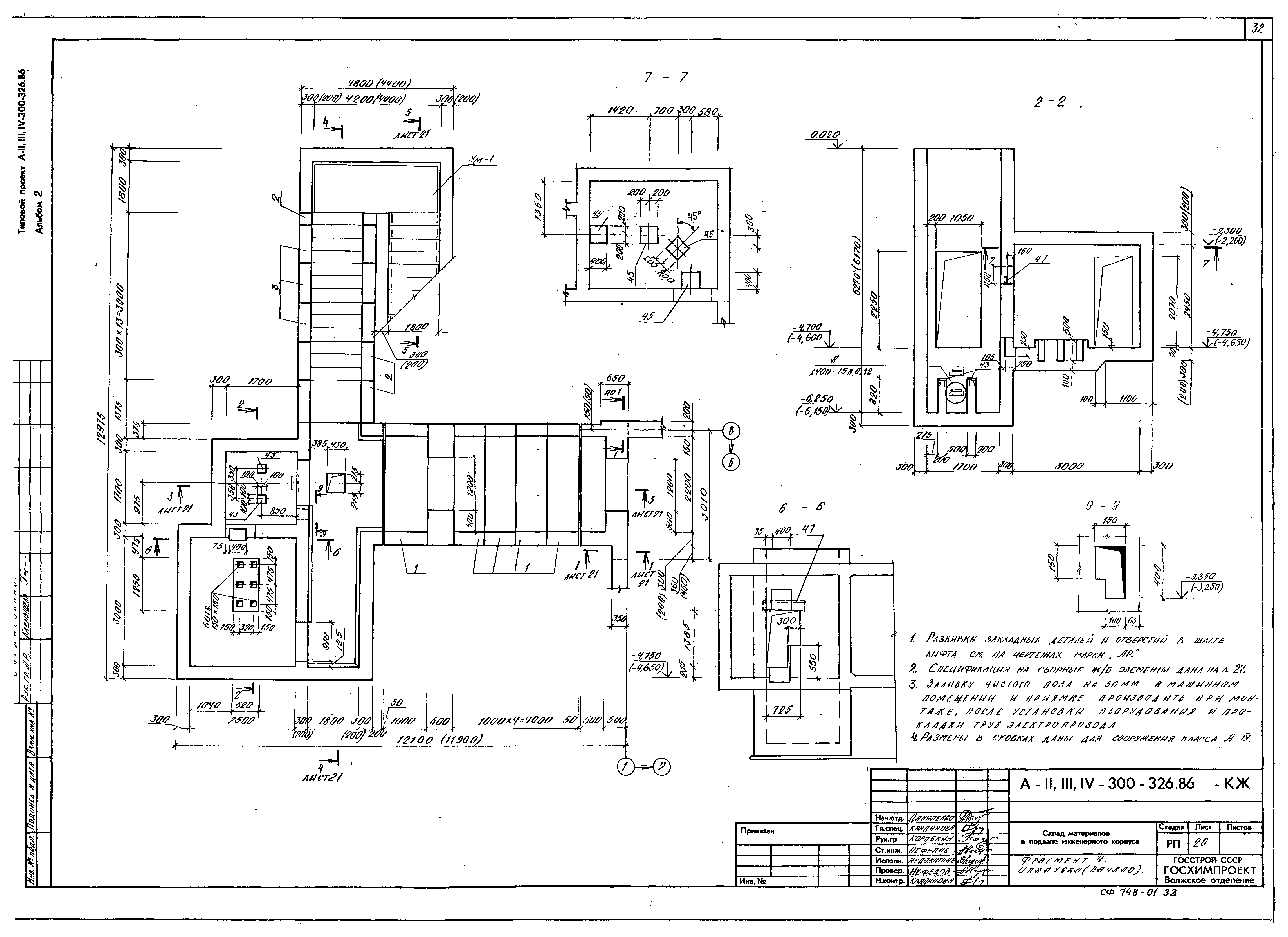
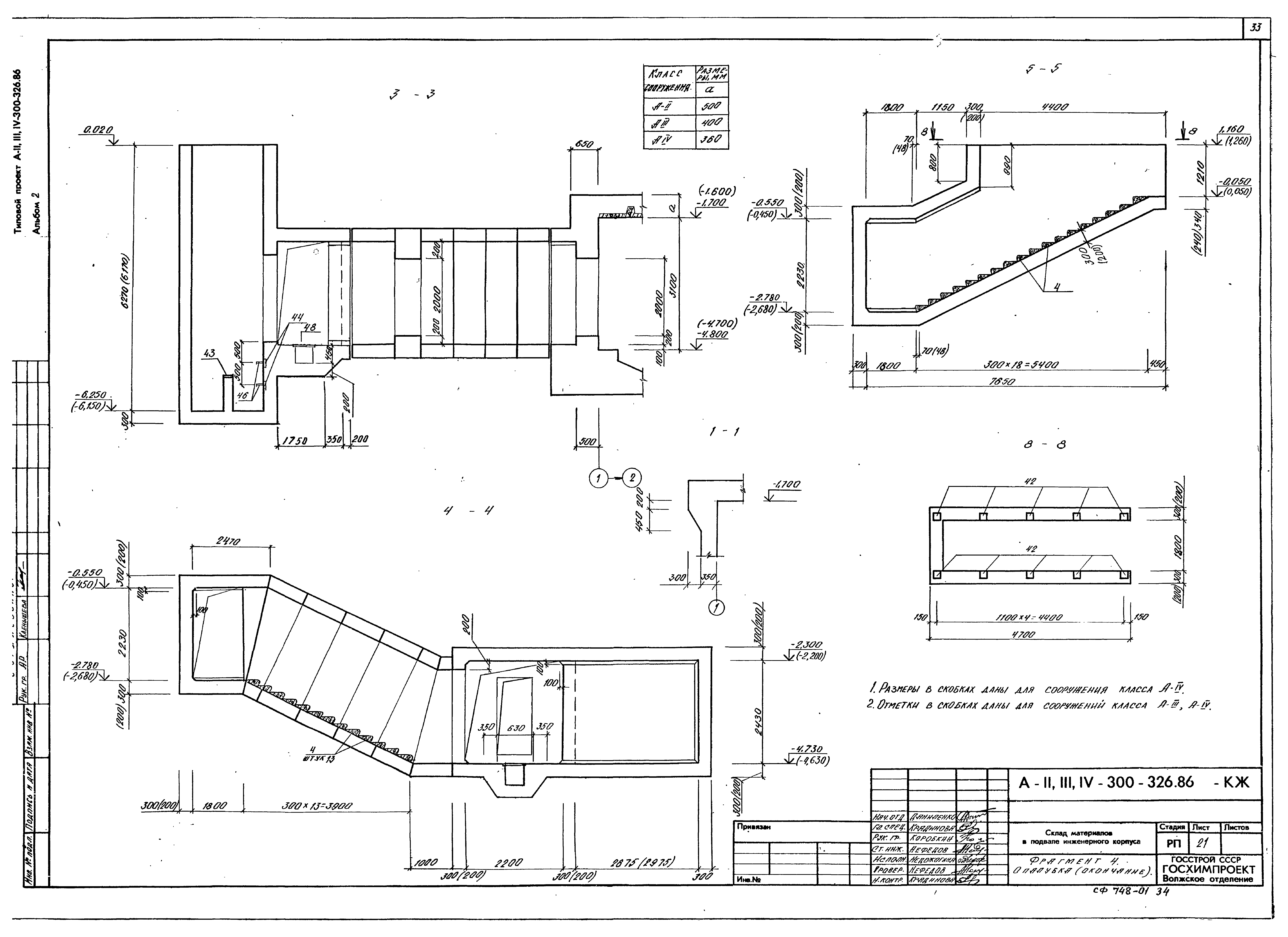
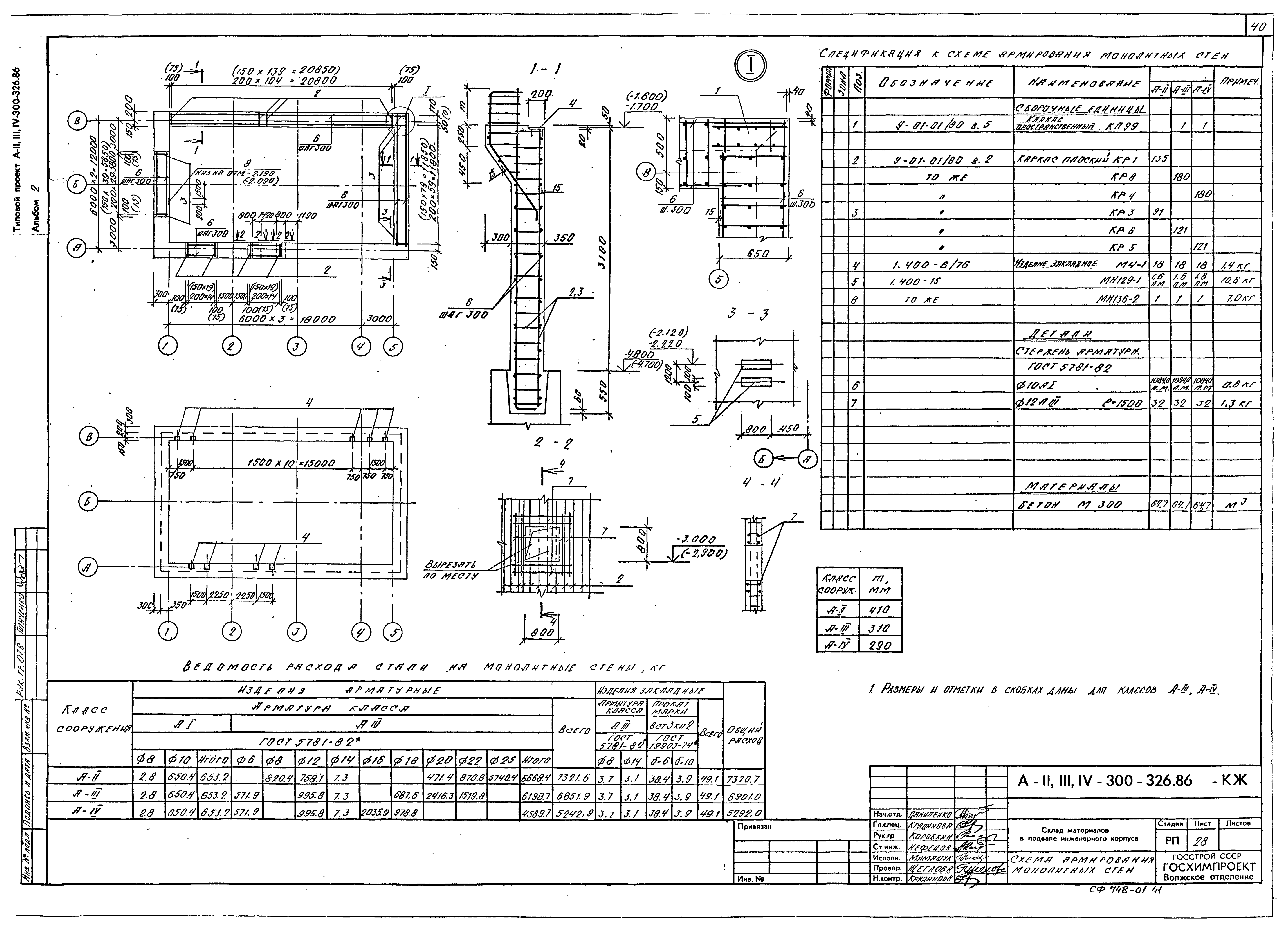
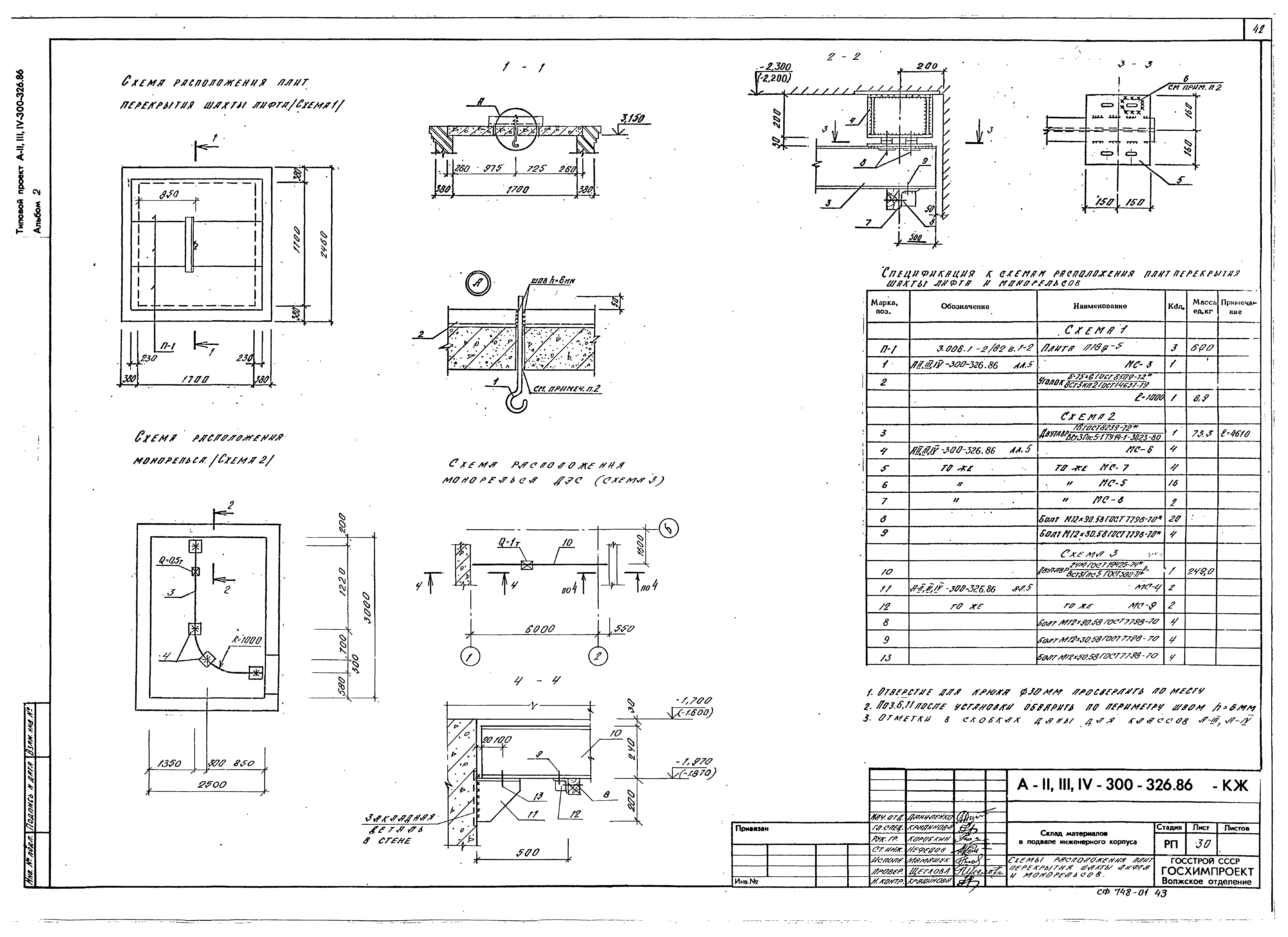
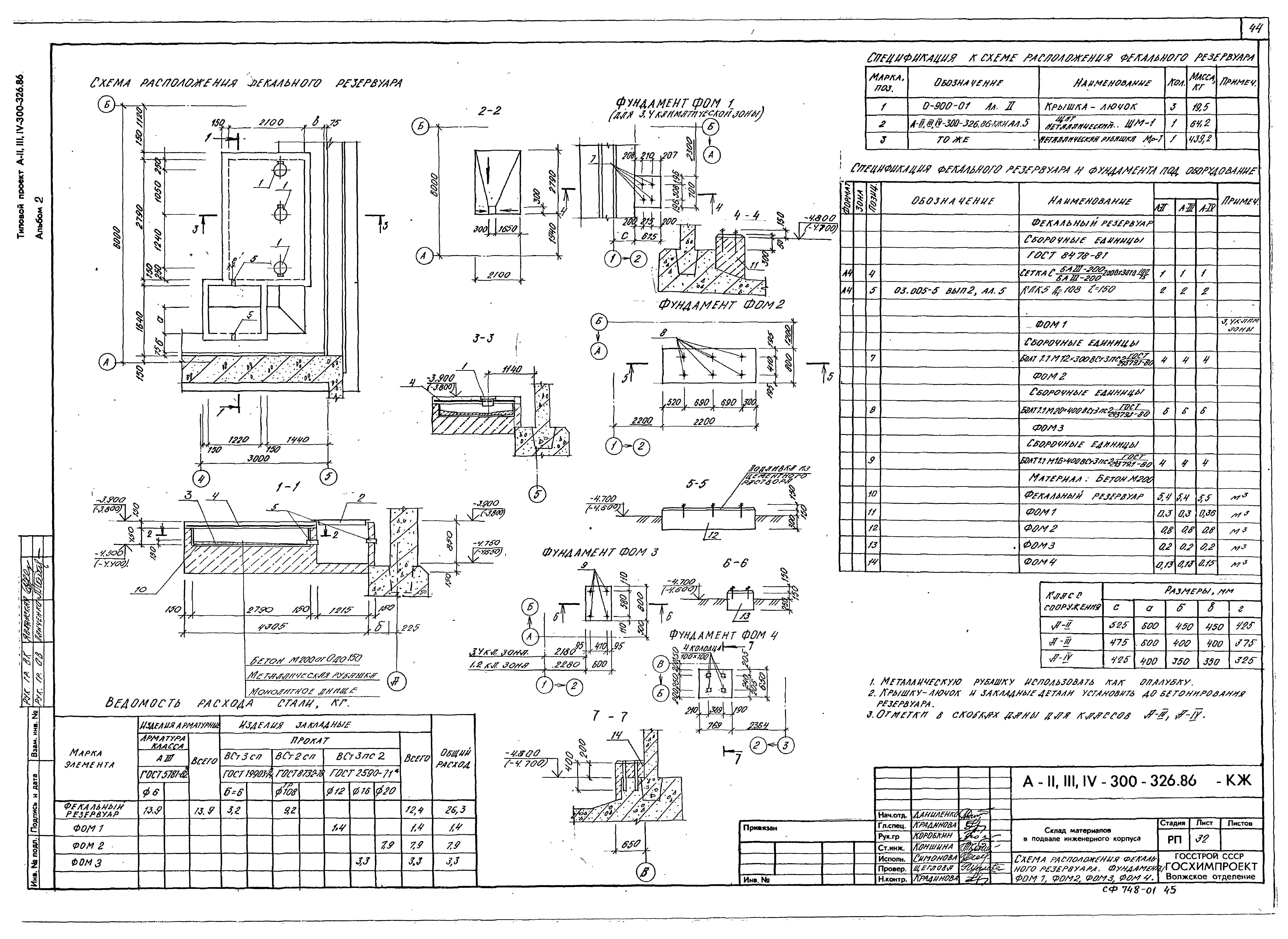
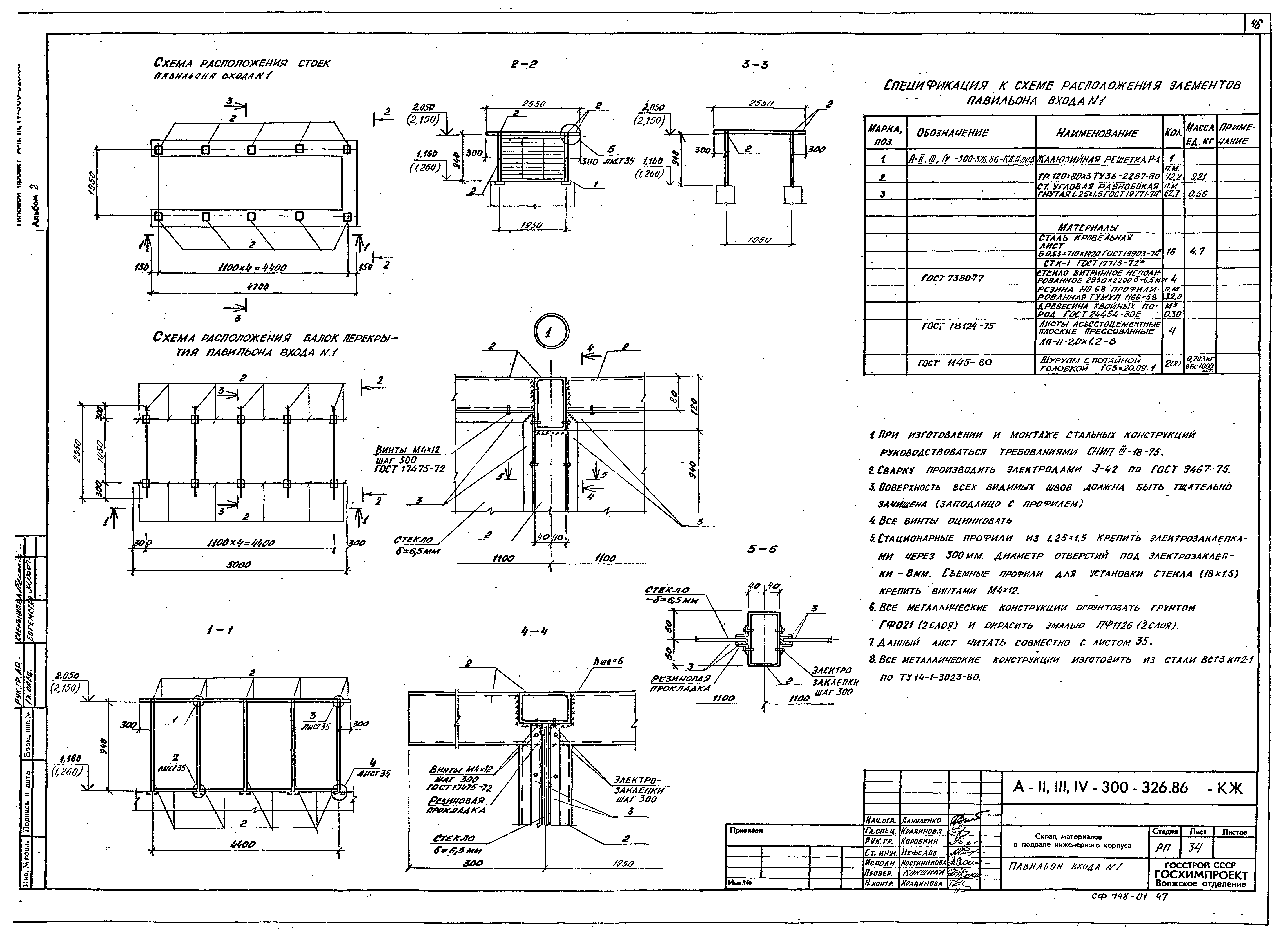
| Оглавление: | ТП А-II,III,IV-300-326.86 Титульный лист ТП А-II,III,IV-300-326.86 Содержание ТП А-II,III,IV-300-326.86-АР Архитектурные решения АР ТП А-II,III,IV-300-326.86-АР-1 Общие данные ТП А-II,III,IV-300-326.86-АР-2 Разрез 1-1. План на отм. -4.700(-4.600) ТП А-II,III,IV-300-326.86-АР-3 Разрезы 2-2...4-4. Узел 1 ТП А-II,III,IV-300-326.86-АР-4 Вход №1 с грузовым выжимным лифтом Q=500 кг. Узел 2 ТП А-II,III,IV-300-326.86-АР-5 Вход №2. План. Разрезы. Узлы 3,4 ТП А-II,III,IV-300-326.86-АР-6 План полов. Внутренняя отделка ТП А-II,III,IV-300-326.86-АР-7 Грузовой выжимной лифтом Q=500 кг. План. Развертка стен. Узел 5 ТП А-II,III,IV-300-326.86-АР-8 План с нанесением сантехнических отверстий. Схема расположения элементов кирпичных и щитовых перегородок. Узел 6 ТП А-II,III,IV-300-326.86-АР-9 План с расстановкой нар ТП А-II,III,IV-300-326.86-АР-10 Схема генерального плана с вводами коммуникаций ТП А-II,III,IV-300-326.86-КЖ Конструкции железобетонные ТП А-II,III,IV-300-326.86-КЖ-1 Общие данные ТП А-II,III,IV-300-326.86-КЖ-2 Схема расположения монолитного днища и колонн ТП А-II,III,IV-300-326.86-КЖ-3 Армирование монолитного днища (начало) ТП А-II,III,IV-300-326.86-КЖ-4 Армирование монолитного днища (окончание) ТП А-II,III,IV-300-326.86-КЖ-5 Схема расположения сборных элементов сооружения ТП А-II,III,IV-300-326.86-КЖ-6 Армирование перекрытия ТП А-II,III,IV-300-326.86-КЖ-7 Фрагмент 1. Опалубка ТП А-II,III,IV-300-326.86-КЖ-8 Фрагмент 1. Армирование (начало) ТП А-II,III,IV-300-326.86-КЖ-9 Фрагмент 1. Армирование (окончание) ТП А-II,III,IV-300-326.86-КЖ-10 Фрагмент 1. Спецификация ТП А-II,III,IV-300-326.86-КЖ-11 Фрагмент 2. Опалубка ТП А-II,III,IV-300-326.86-КЖ-12 Фрагмент 2. Армирование (начало) ТП А-II,III,IV-300-326.86-КЖ-13 Фрагмент 2. Армирование (окончание) ТП А-II,III,IV-300-326.86-КЖ-14 Фрагмент 2. Узлы ТП А-II,III,IV-300-326.86-КЖ-15 Фрагмент 2. Спецификация (начало) ТП А-II,III,IV-300-326.86-КЖ-16 Фрагмент 2. Спецификация (окончание) ТП А-II,III,IV-300-326.86-КЖ-17 Фрагмент 3. Опалубка ТП А-II,III,IV-300-326.86-КЖ-18 Фрагмент 3. Армирование ТП А-II,III,IV-300-326.86-КЖ-19 Фрагмент 3. Спецификация ТП А-II,III,IV-300-326.86-КЖ-20 Фрагмент 4. Опалубка (начало) ТП А-II,III,IV-300-326.86-КЖ-21 Фрагмент 4. Опалубка (окончание) ТП А-II,III,IV-300-326.86-КЖ-22 Фрагмент 4. Армирование (начало) ТП А-II,III,IV-300-326.86-КЖ-23 Фрагмент 4. Армирование (окончание) ТП А-II,III,IV-300-326.86-КЖ-24 Фрагмент 4. Спецификация (начало) ТП А-II,III,IV-300-326.86-КЖ-25 Фрагмент 4. Спецификация (окончание) ТП А-II,III,IV-300-326.86-КЖ-26 УМ 1. Армирование ТП А-II,III,IV-300-326.86-КЖ-27 УМ 1. Спецификация ТП А-II,III,IV-300-326.86-КЖ-28 Схема армирования монолитных стен ТП А-II,III,IV-300-326.86-КЖ-29 Монолитная балка БМ-1 ТП А-II,III,IV-300-326.86-КЖ-30 Схемы расположения плит перекрытия шахты лифта и монорельсов ТП А-II,III,IV-300-326.86-КЖ-31 Схема расположения элементов входа №2 ТП А-II,III,IV-300-326.86-КЖ-32 Схема расположения фекального резервуара. Фундаменты ФОМ1,ФОМ2,ФОМ3,ФОМ4 ТП А-II,III,IV-300-326.86-КЖ-33 Детали установки дверей ДУ-I-8,ДУ-III-5 и ставней ТП А-II,III,IV-300-326.86-КЖ-34 Павильон входа № 1 ТП А-II,III,IV-300-326.86-КЖ-35 Павильон входа № 1. Узлы ТП А-II,III,IV-300-326.86-КЖ-36 Схема расположения гравийных охладителей по оси "А" ТП А-II,III,IV-300-326.86-КЖ-37 Схема расположения гравийных охладителей по оси 1 ТП А-II,III,IV-300-326.86-КЖ-38 Схема расположения узлов ввода коммуникаций А-II ТП А-II,III,IV-300-326.86-КЖ-39 Схема расположения узлов ввода коммуникаций для класса А-III,А-IV ТП А-II,III,IV-300-326.86-КЖ-40 Деталь установки двери ДУ-IV-2 ТП А-II,III,IV-300-326.86-КЖ-41 Схема герметизации сооружения |
| Разработан: | Госхимпроект |
| Утверждён: | 19.08.1986 Госстрой СССР (Государственный комитет Совета Министров СССР по делам строительства) (USSR Gosstroy 42) |





















































