Скачать 19.0022.1 Переходные железобетонные опоры ВЛИ 0,4 кВ с самонесущими изолированными проводамиДата актуализации: 01.01.2021
|
| Обозначение: | 19.0022.1 |
| Обозначение англ: | 19.0022.1 |
| Статус: | не определен законодательством |
| Название рус.: | Переходные железобетонные опоры ВЛИ 0,4 кВ с самонесущими изолированными проводами |
| Дата добавления в базу: | 01.09.2013 |
| Дата актуализации: | 01.01.2021 |
| Дата введения: | 01.01.1999 |
| Дата окончания срока действия: | 30.06.2003 |
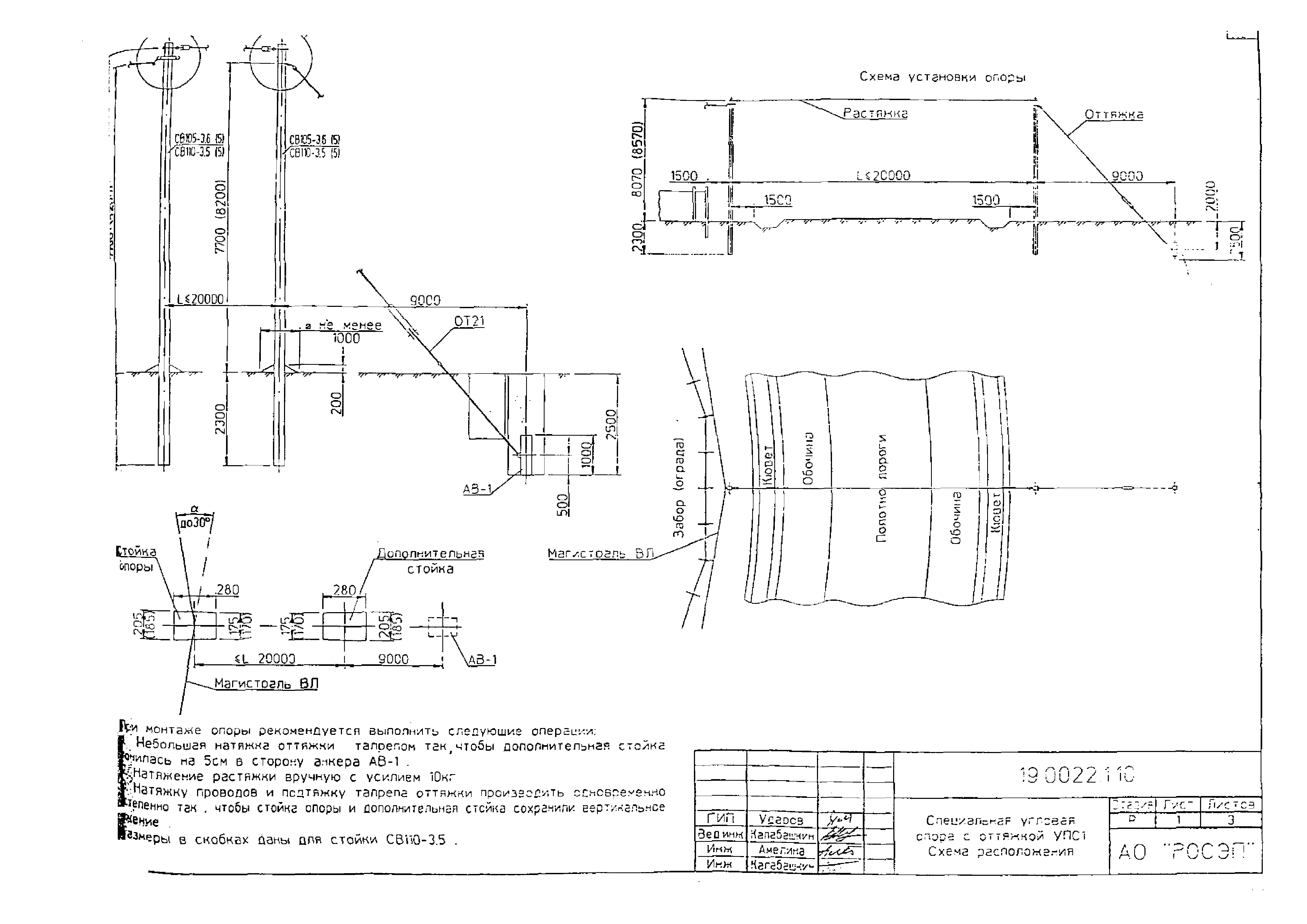
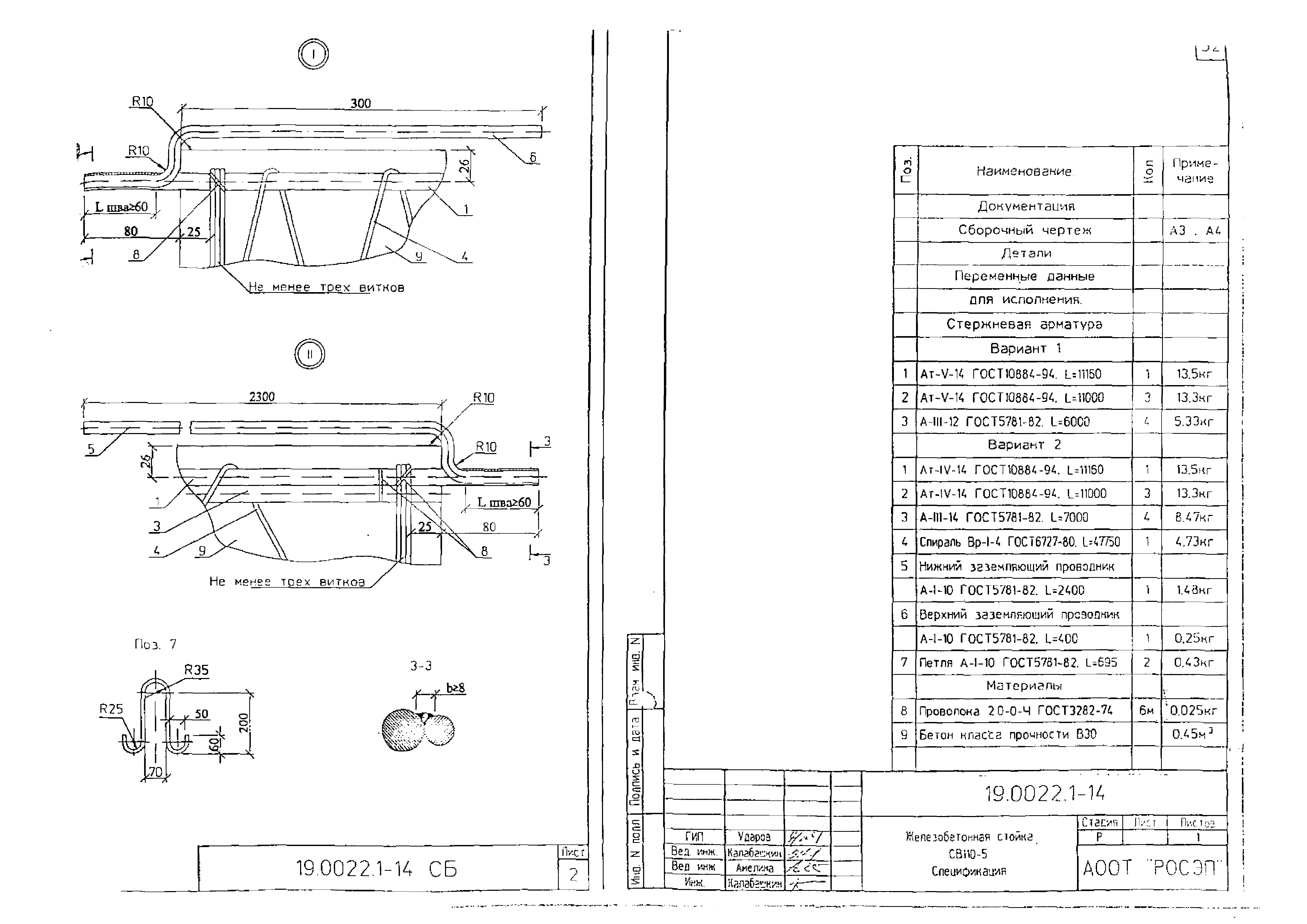
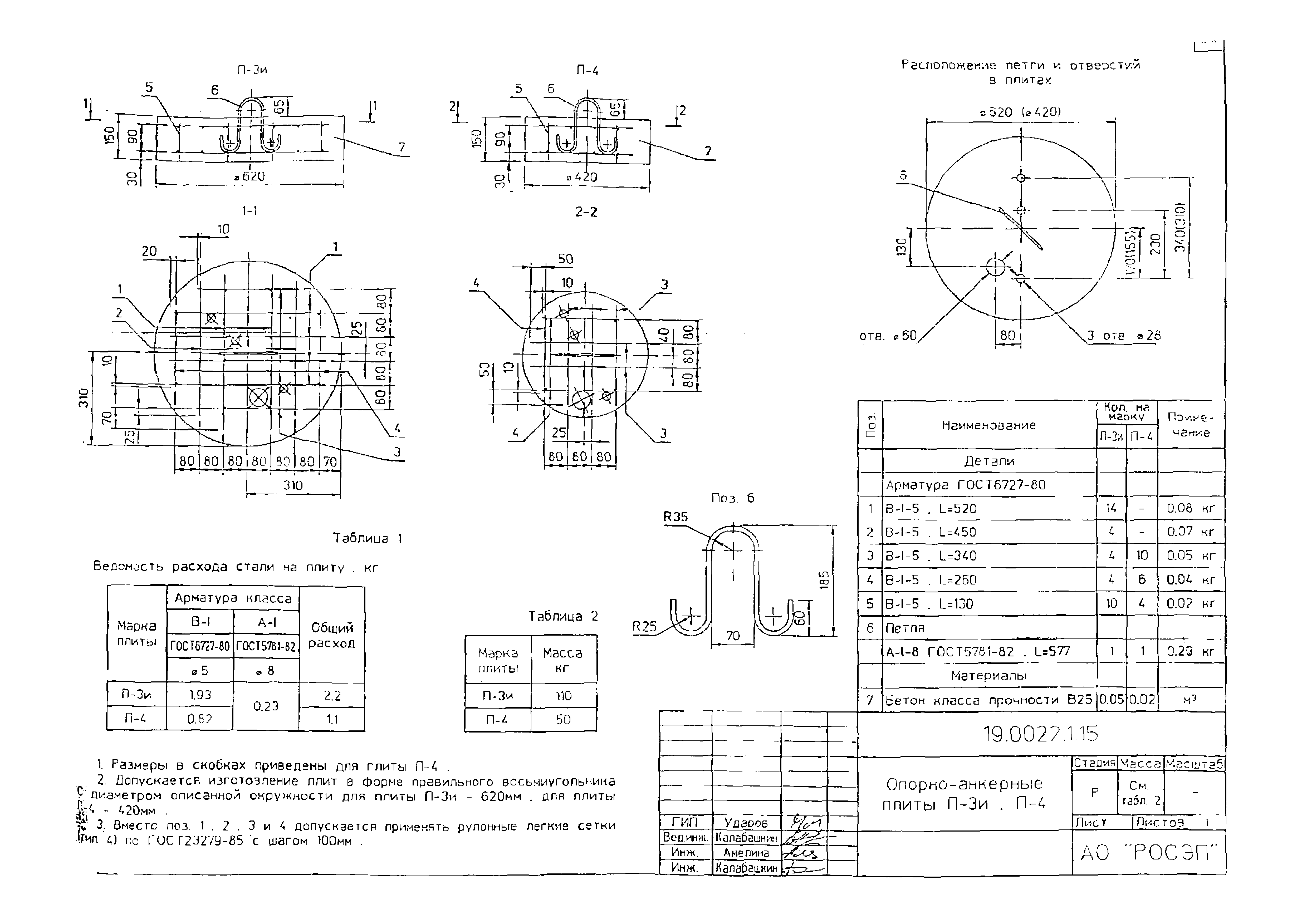
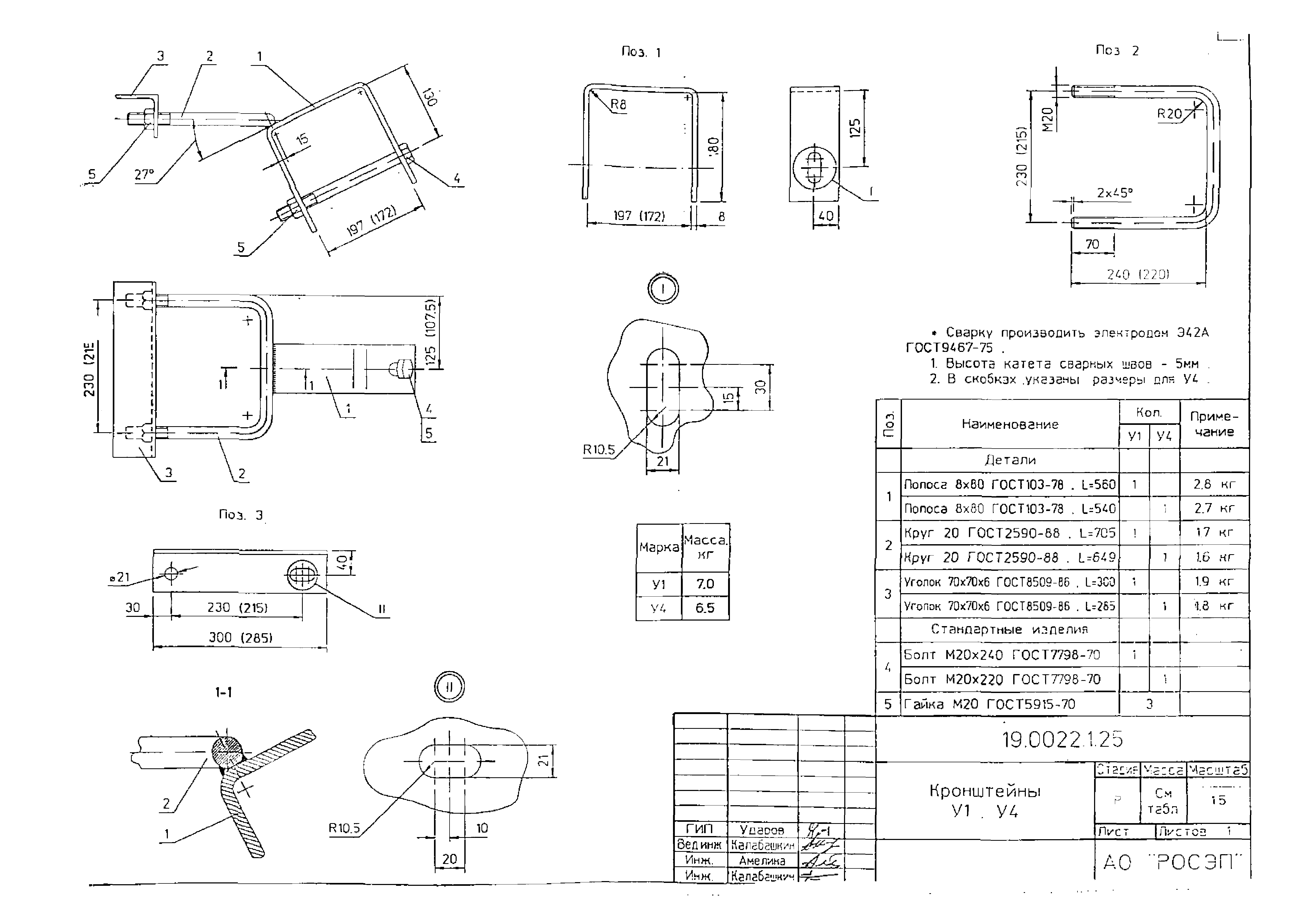
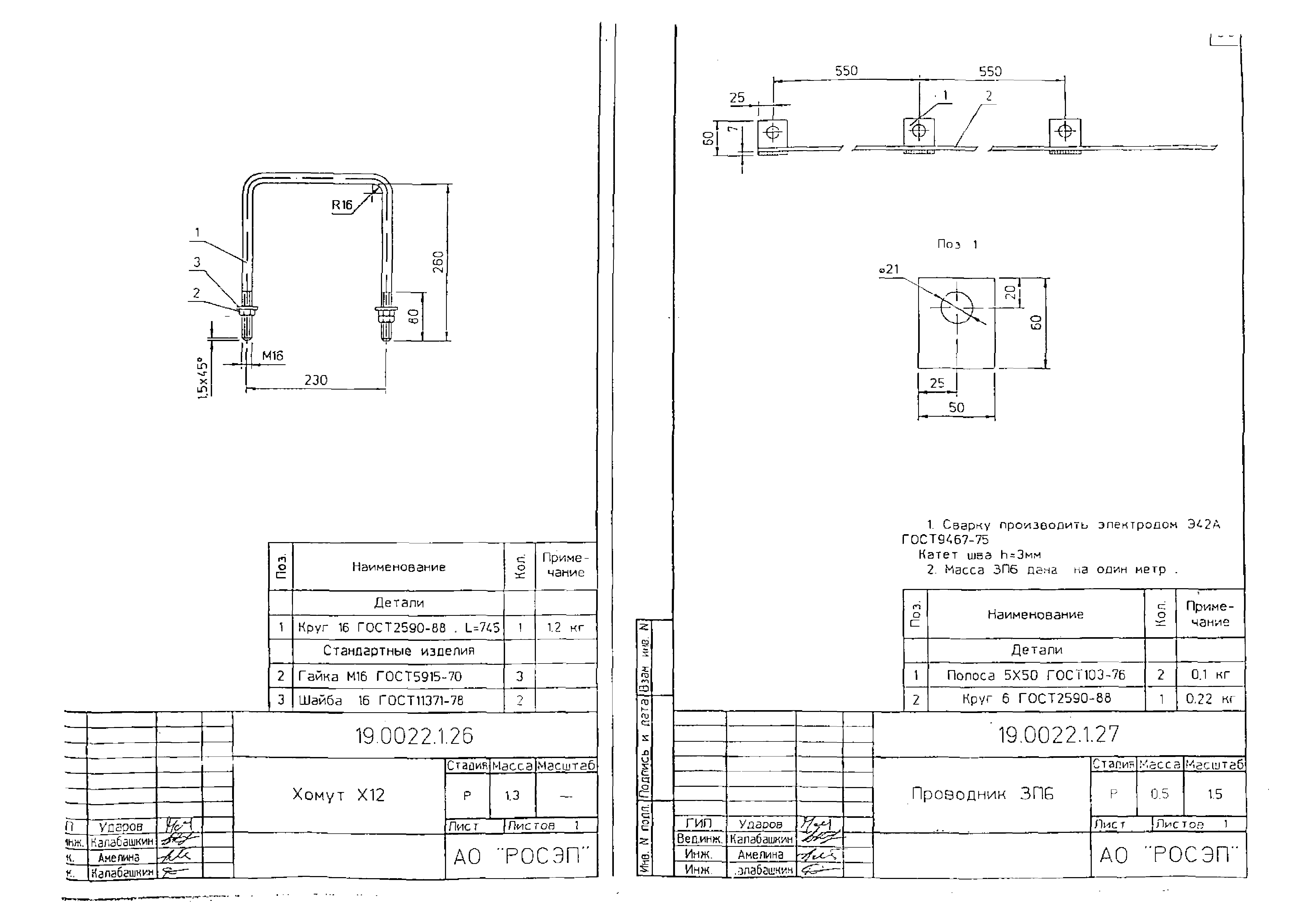
| Оглавление: | 19.0022.1.00 Содержание 19.0022.1.ПЗ Предложения по применению переходных опор ВЛ 0.4 кВ с изолированными проводами 19.0022.1.01 Номенклатура опор 19.0022.1.02 Одноцепная переходная промежуточная опора ПП7. 19.0022.1.03 Двухцепная переходная промежуточная опора ПП8 19.0022.1.04 Одноцепная переходная анкерная опора ПА7 19.0022.1.05 Двухцепная переходная анкерная опора ПА8 19.0022.1.06 Одноцепная переходная угловая анкерная опора ПУА7 19.0022.1.07 Двухцепная переходная угловая анкерная опора ПУА8 19.0022.1.08 Одноцепная переходная ответвительная анкерная опора ПОА7 19.0022.1.09 Двухцепная переходная ответвительная анкерная опора ПОА8 19.0022.1.10 Специальная угловая опора с оттяжной УПС1 19.0022.1.10 СБ Железобетонная стойка СВ105-3.6. Сборочный чертеж . 19.0022.1.11 Железобетонная стойка СВ105-3.6. Спецификация 19.0022.1.11 СБ Железобетонная стойка СВ110-3.5. Сборочный чертеж . 19.0022.1.12 Железобетонная стойка СВ110-3.5. Спецификация 19.0022.1.12 СБ Железобетонная стойка СВ105-5. Сборочный чертеж . 19.0022.1.13 Железобетонная стойка СВ105-5. Спецификация 19.0022.1.13 СБ Железобетонная стойка СВ110-5. Сборочный чертеж . 19.0022.1.14 Железобетонная стойка СВ110-5. Спецификация 19.0022.1.15 Опорно-анкерные плиты П-3и,П-4 19.0022.1.16 Анкер АВ1 19.0022.1.17 Траверса ТН18 19.0022.1.18 Траверса ТН19 19.0022.1.19 Траверса ТН27 19.0022.1.20 Оттяжка ОТ20 19.0022.1.21 Растяжка ОТ19 19.0022.1.22 Стяжка Г1 19.0022.1.23 Ригель Г7 19.0022.1.24 Кронштейн ОТ22 . 19.0022.1.25 Кронштейны У1, У4 . 19.0022.1.26 Хомут Х12 19.0022.1.27 Проводник 3П6 19.0022.1.28 Анкерной болт ОТ21 19.0022.1.29 Траверса ТН28 |
| Разработан: | АО РОСЭП |
| Утверждён: | 01.01.1999 АООТ РОСЭП |
































































