Скачать Типовой проект 902-1-84.84 Альбом VII. Электрооборудование и автоматизация. Технологический контрольДата актуализации: 01.01.2021
|
| Обозначение: | Типовой проект 902-1-84.84 |
| Обозначение англ: | 902-1-84.84 |
| Статус: | заменен |
| Название рус.: | Альбом VII. Электрооборудование и автоматизация. Технологический контроль |
| Дата добавления в базу: | 01.09.2013 |
| Дата актуализации: | 01.01.2021 |
| Дата введения: | 18.04.1984 |
| Дата окончания срока действия: | 01.12.1991 |
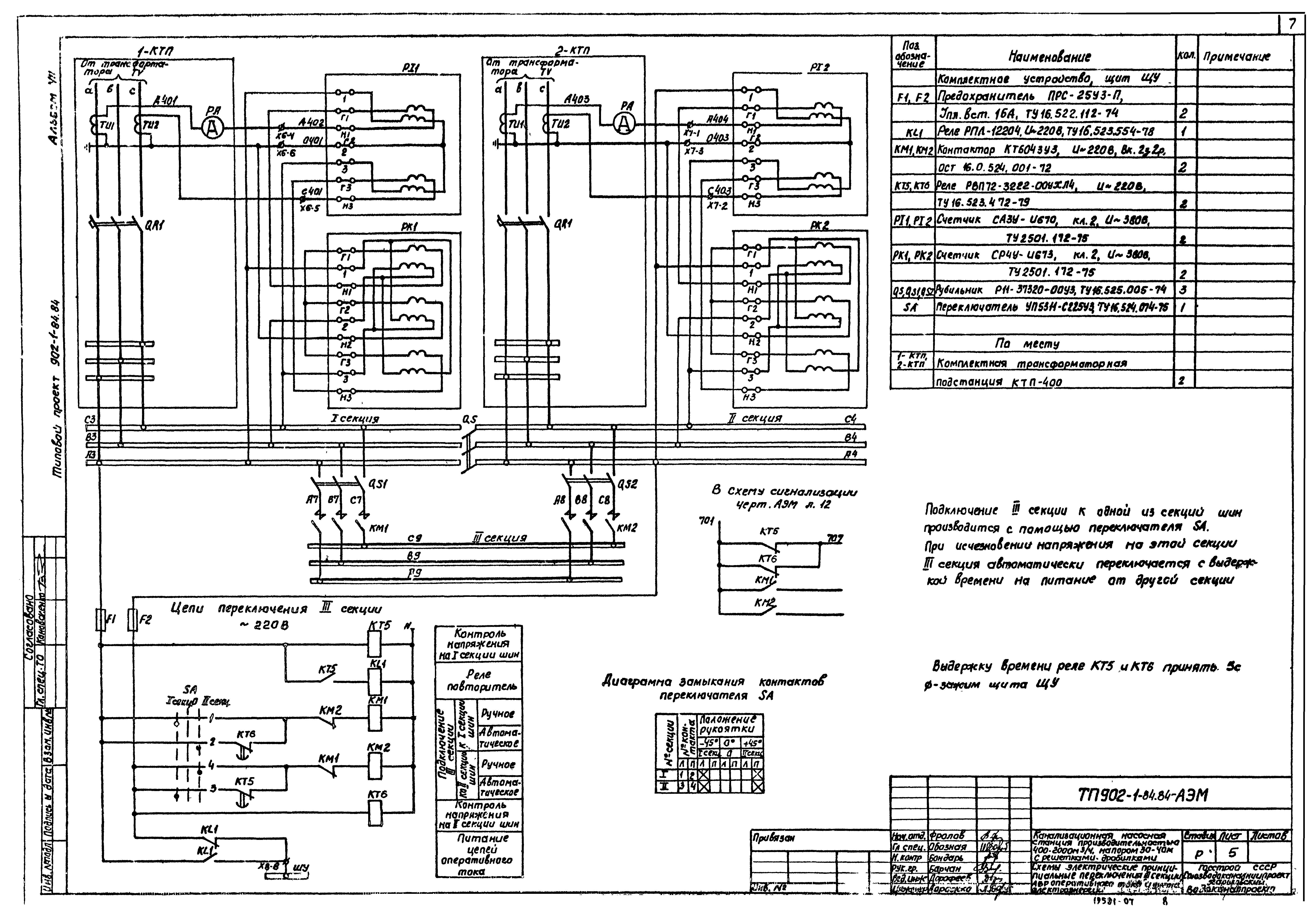
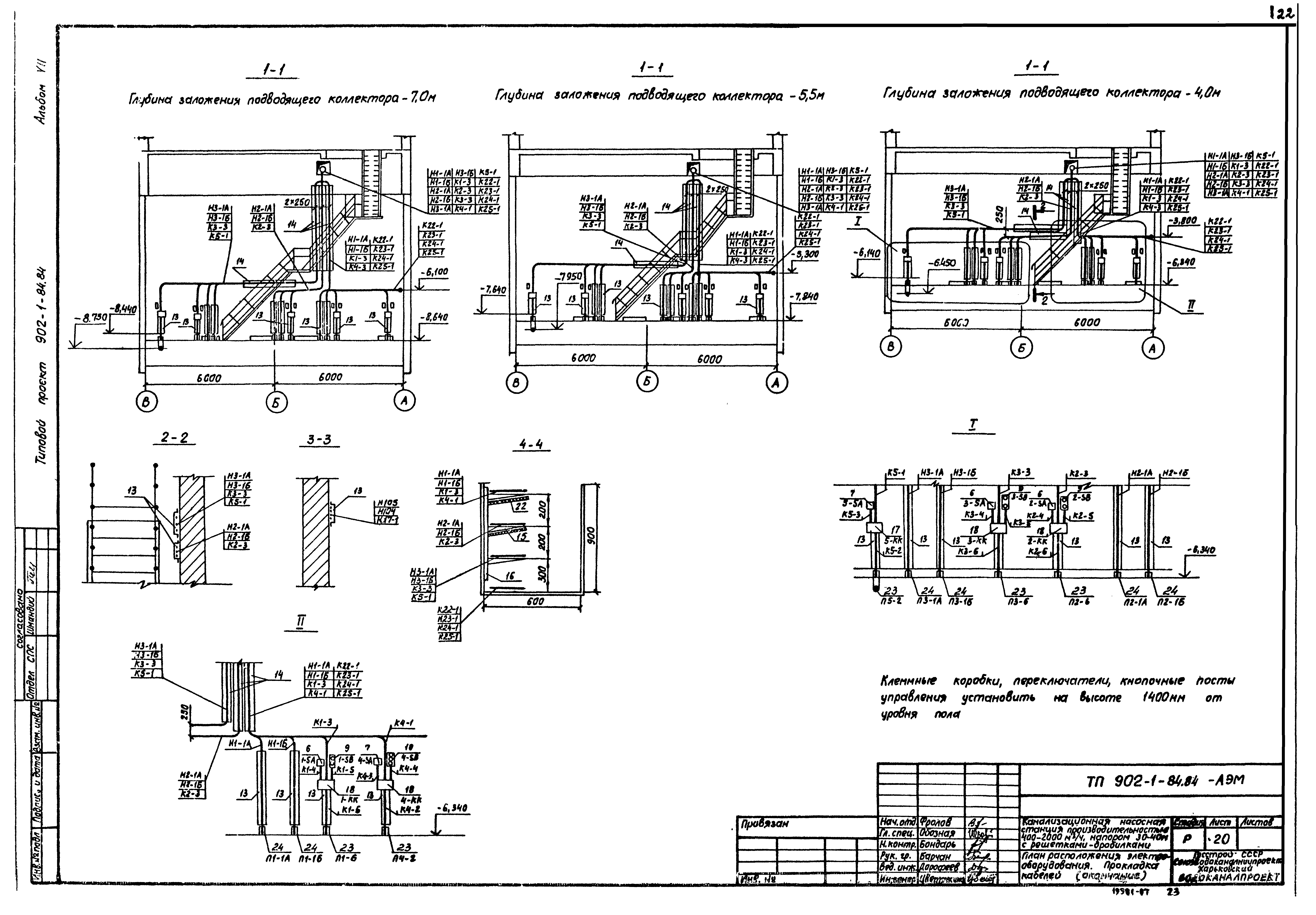
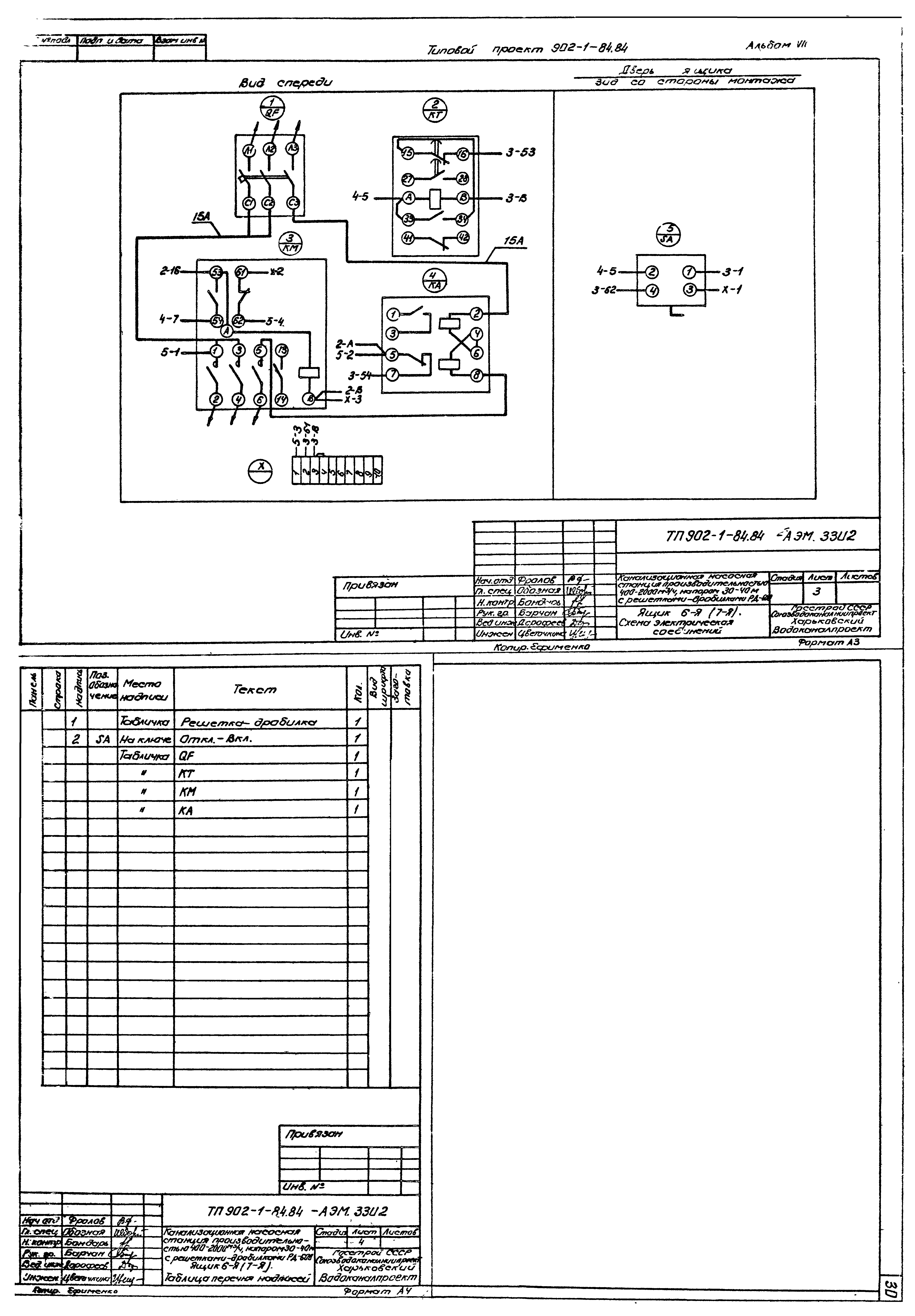
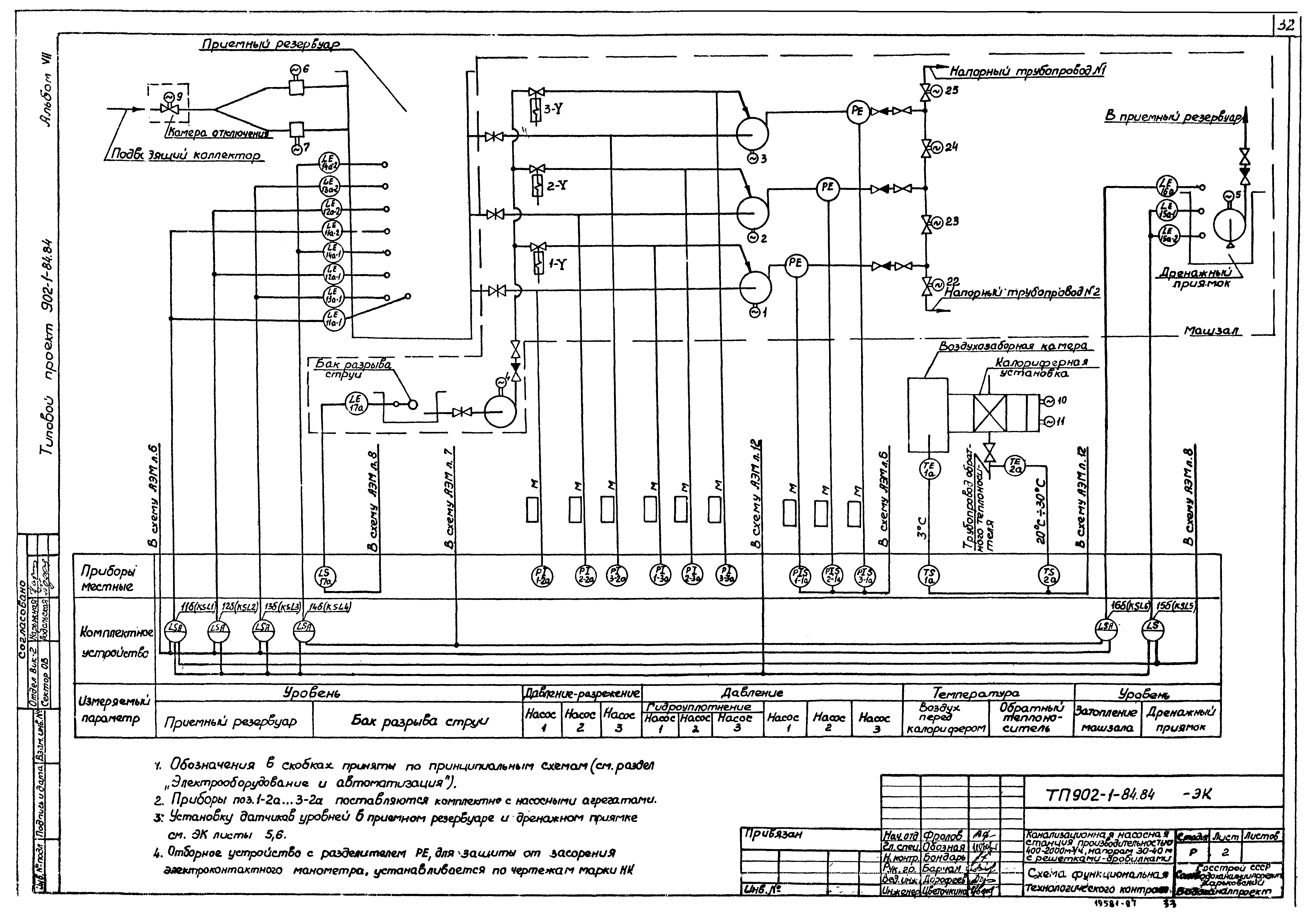
| Оглавление: | ТП 902-1-84.84 Содержание альбома ТП 902-1-84.84-АЭМ Основной комплект марки АЭМ ТП 902-1-84.84-АЭМ-1,2 Общие данные ТП 902-1-84.84-АЭМ-3,4 Схема электрическая принципиальная однолинейная распределительной сети ~380/220 В ТП 902-1-84.84-АЭМ-5 Схемы электрические принципиальные переключения III секции, АВР оперативного тока и учета электроэнергии ТП 902-1-84.84-АЭМ-6 Схема электрическая принципиальная управления насосами перекачки стоков ТП 902-1-84.84-АЭМ-7 Схема электрическая принципиальная управления задвижкой на подводящем коллекторе ТП 902-1-84.84-АЭМ-8 Схемы электрические принципиальные управления насосом гидроуплотнения, дренажным насосом и решетками-дробилками ТП 902-1-84.84-АЭМ-9 Схемы электрические принципиальные управления задвижками на напорном коллекторе ТП 902-1-84.84-АЭМ-10 Схемы электрические принципиальные управления вентиляторами ТП 902-1-84.84-АЭМ-11 Схемы электрические принципиальные контроля уровней ТП 902-1-84.84-АЭМ-12 Схемы электрические принципиальные сигнализации ТП 902-1-84.84-АЭМ-13,14 Схема подключения электрооборудования ТП 902-1-84.84-АЭМ-15 Схема подключения щита ЩУ ТП 902-1-84.84-АЭМ-16 Схема подключения шкафа ШУС ТП 902-1-84.84-АЭМ-17 Кабельный журнал ТП 902-1-84.84-АЭМ-18-20 План расположения электрооборудования. Прокладка кабелей ТП 902-1-84.84-АЭМ-21 Электроосвещение ТП 902-1-84.84-АЭМ-22 Заземление и зануление ТП 902-1-84.84-АЭМ-23 План прокладки троллейного шинопровода ТП 902-1-84.84-АЭМ-24 Прокладка коробов. План и разрез ТП 902-1-84.84-АЭМ.ЗМ Задание МЭЗ марки АЭМ.ЗМ ТП 902-1-84.84-АЭМ.ВР Ведомость объемов электромонтажных и строительных работ марки АЭМ.ВР ТП 902-1-84.84-АЭМ.33И1 Задания заводам-изготовителям марки АЭМ.33И1 ТП 902-1-84.84-АЭМ.33И1-1 Опросный лист для заказа комплектных трансформаторных подстанций КТП-400-□/0.4кВ ТП 902-1-84.84-АЭМ.33И2 Задания заводам-изготовителям марки АЭМ.33И2 ТП 902-1-84.84-АЭМ.33И2-1.1;1.2 Ящик 6-Я(7-Я). Технические данные аппаратов ТП 902-1-84.84-АЭМ.33И2-2 Ящик 6-Я(7-Я). Чертеж общего вида ТП 902-1-84.84-АЭМ.33И2-3 Ящик 6-Я(7-Я). Схема электрическая соединений ТП 902-1-84.84-АЭМ.33И2-4 Ящик 6-Я(7-Я). Таблица перечня надписей ТП 902-1-84.84-ЭК Основной комплект марки ЭК ТП 902-1-84.84-ЭК-1 Общие данные ТП 902-1-84.84-ЭК-2 Схема функциональная технологического контроля ТП 902-1-84.84-ЭК-3,4 Схема соединений внешних проводок. План расположения ТП 902-1-84.84-ЭК-5 Статив датчиков ст.2. Монтажный чертеж ТП 902-1-84.84-ЭК-6 Статив датчиков ст.1. Монтажный чертеж ТП 902-1-84.84-ЭК-7 Кронштейн. Монтажный чертеж ТП 902-1-84.84-ЭК-8 Стойка. Монтажный чертеж ТП 902-1-84.84-ЭК.ВР Ведомость объемов электромонтажных и строительных работ марки ЭК.ВР |
| Разработан: | Харьковский Водоканалпроект |
| Утверждён: | 05.12.1983 СоюзводоканалНИИпроект (SoyuzvodokanalNIIproject 75) |
| Чем заменён: |





































