Скачать Типовой проект 807-11-3 Альбом II. Часть 1. Архитектурно-строительные решения. Конструкции железобетонные. Вариант со сборным железобетонным каркасом и панельными стенамиДата актуализации: 01.01.2021
|
| Обозначение: | Типовой проект 807-11-3 |
| Обозначение англ: | 807-11-3 |
| Статус: | не определен законодательством |
| Название рус.: | Альбом II. Часть 1. Архитектурно-строительные решения. Конструкции железобетонные. Вариант со сборным железобетонным каркасом и панельными стенами |
| Дата добавления в базу: | 01.09.2013 |
| Дата актуализации: | 01.01.2021 |
| Дата введения: | 21.09.1981 |
| Дата окончания срока действия: | 30.06.2003 |
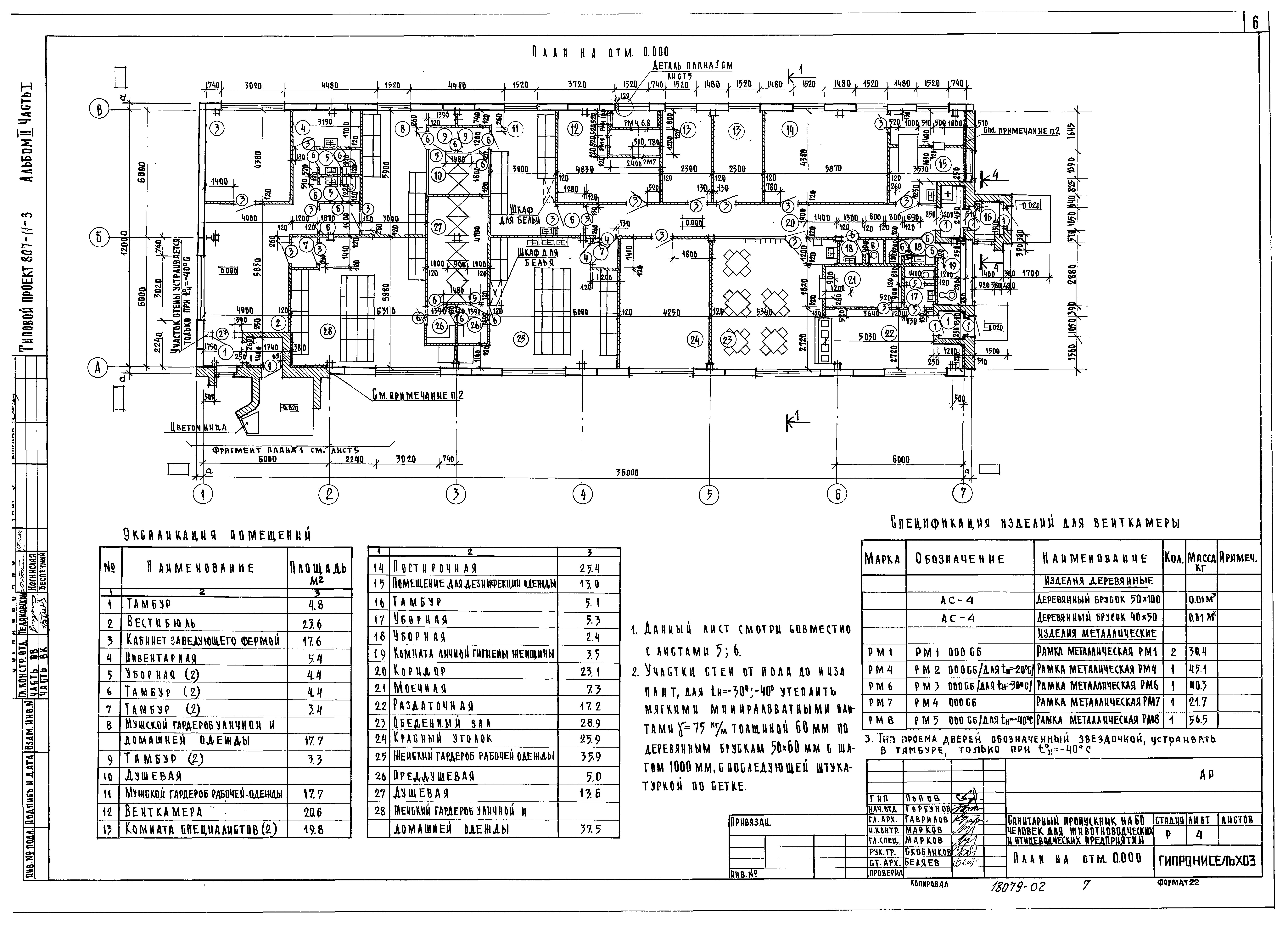
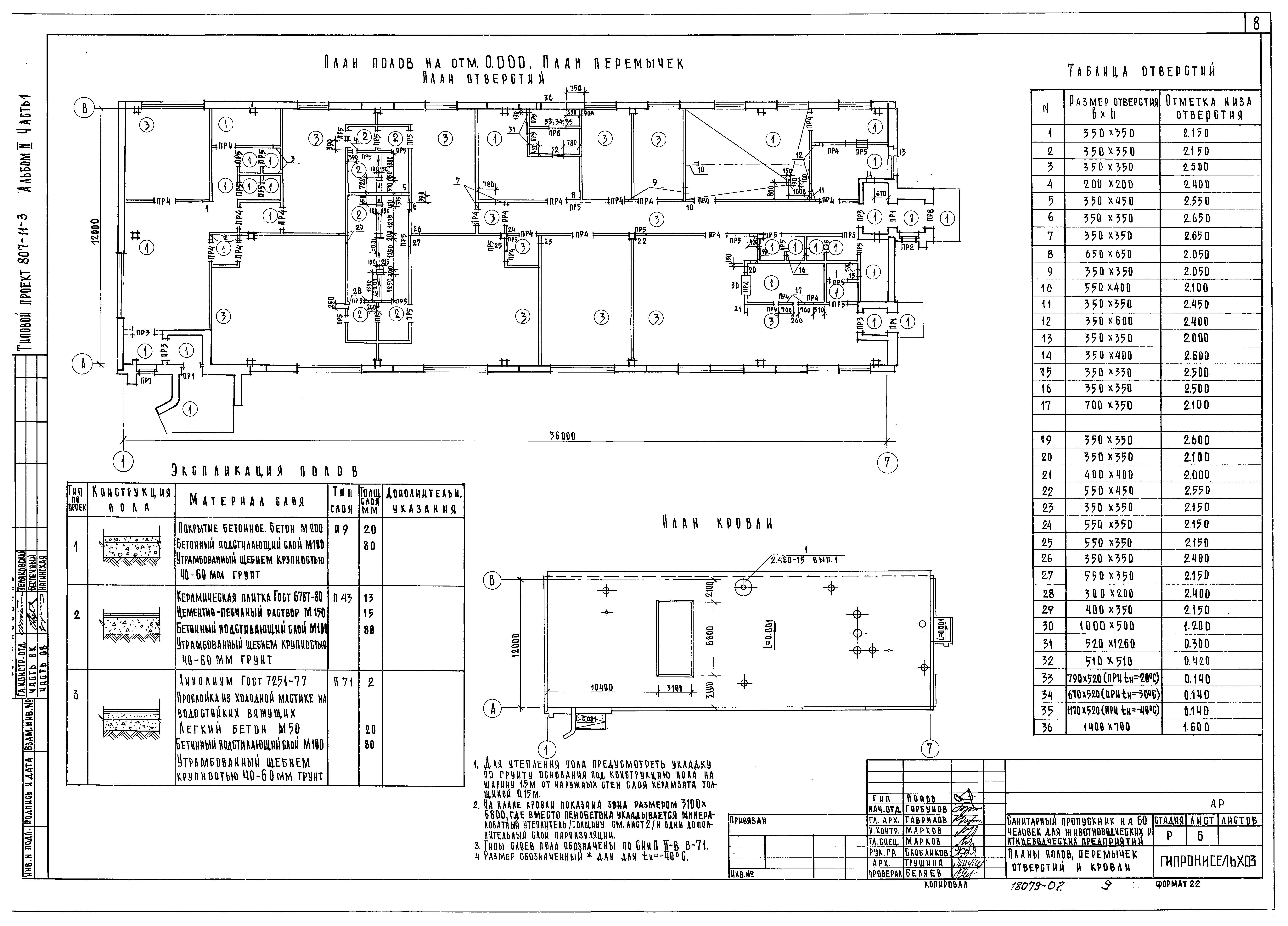
| Оглавление: | ТП 807-11-3 Содержание альбома ТП 807-11-3-АР-1 Общие данные (начало) ТП 807-11-3-АР-2 Общие данные (окончание) ТП 807-11-3-АР-3 Фасады ТП 807-11-3-АР-4 План на отм. 0.000. Разрез 1-1 ТП 807-11-3-АР-5 Фрагмент фасада 1-2 ТП 807-11-3-АР-6 План полов, перемычек, отверстий и кровли ТП 807-11-3-КЖ-1 Общие данные ТП 807-11-3-КЖ-2 Схема расположения фундаментов и фундаментных балок ТП 807-11-3-КЖ-3 Узлы и сечения фундаментов ТП 807-11-3-КЖ-4 Схема расположения колонн, балок и плит покрытия ТП 807-11-3-КЖ-5 Схема расположения панелей стен ТП 807-11-3-КЖ-6 Спецификация к схемам расположения панелей стен |
| Разработан: | ФГНУ НПЦ Гипронисельхоз |
| Утверждён: | 21.08.1981 Главсельстройпроект Минсельхоза СССР (Glavselstroyproject, USSR Minselkhoz 88) |














