Скачать Типовой проект 807-11-3 Альбом II. Часть 2. Архитектурно-строительные решения. Конструкции железобетонные. Вариант с кирпичными стенамиДата актуализации: 01.01.2021
|
| Обозначение: | Типовой проект 807-11-3 |
| Обозначение англ: | 807-11-3 |
| Статус: | не определен законодательством |
| Название рус.: | Альбом II. Часть 2. Архитектурно-строительные решения. Конструкции железобетонные. Вариант с кирпичными стенами |
| Дата добавления в базу: | 01.09.2013 |
| Дата актуализации: | 01.01.2021 |
| Дата введения: | 21.09.1981 |
| Дата окончания срока действия: | 30.06.2003 |
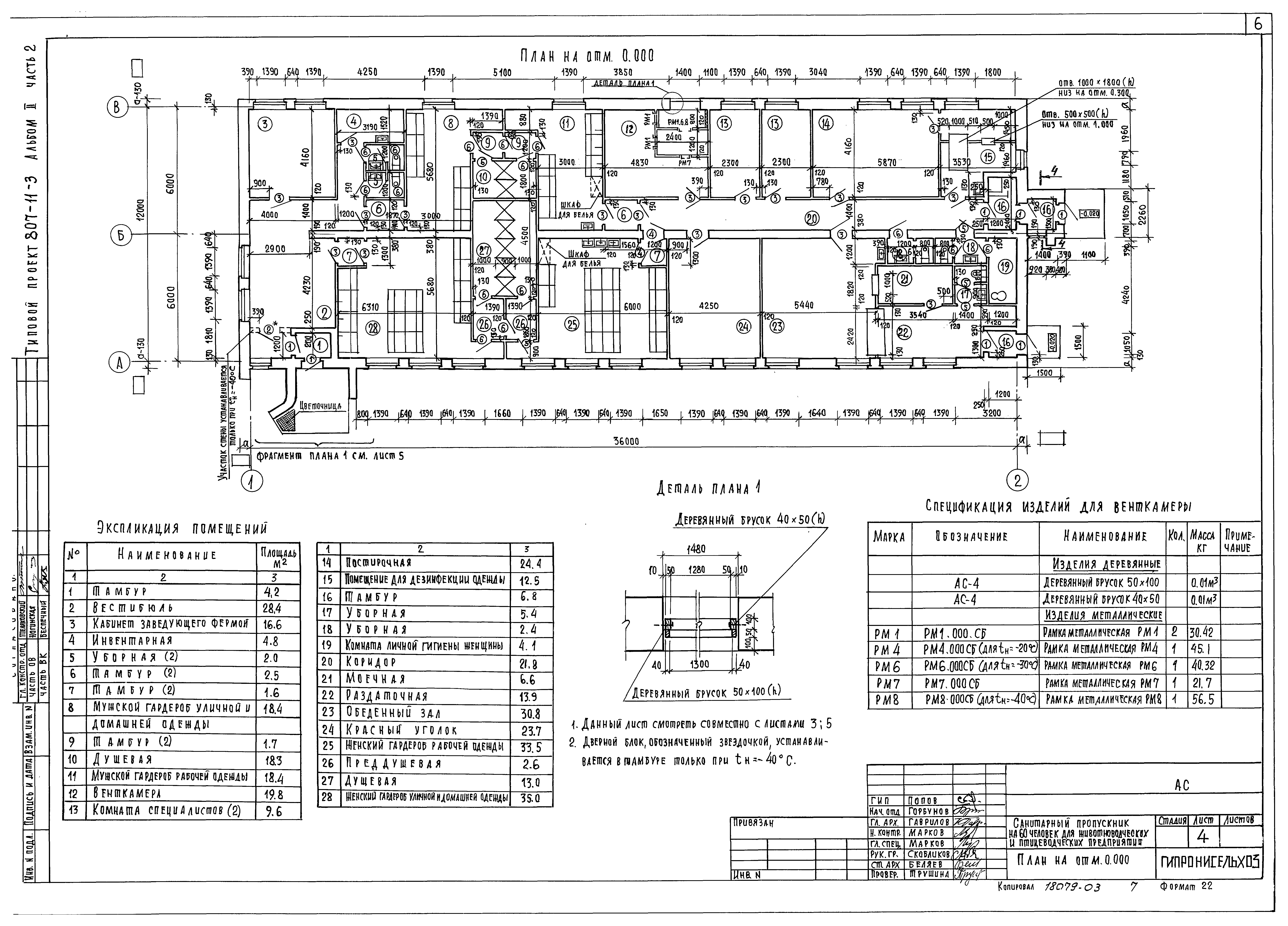
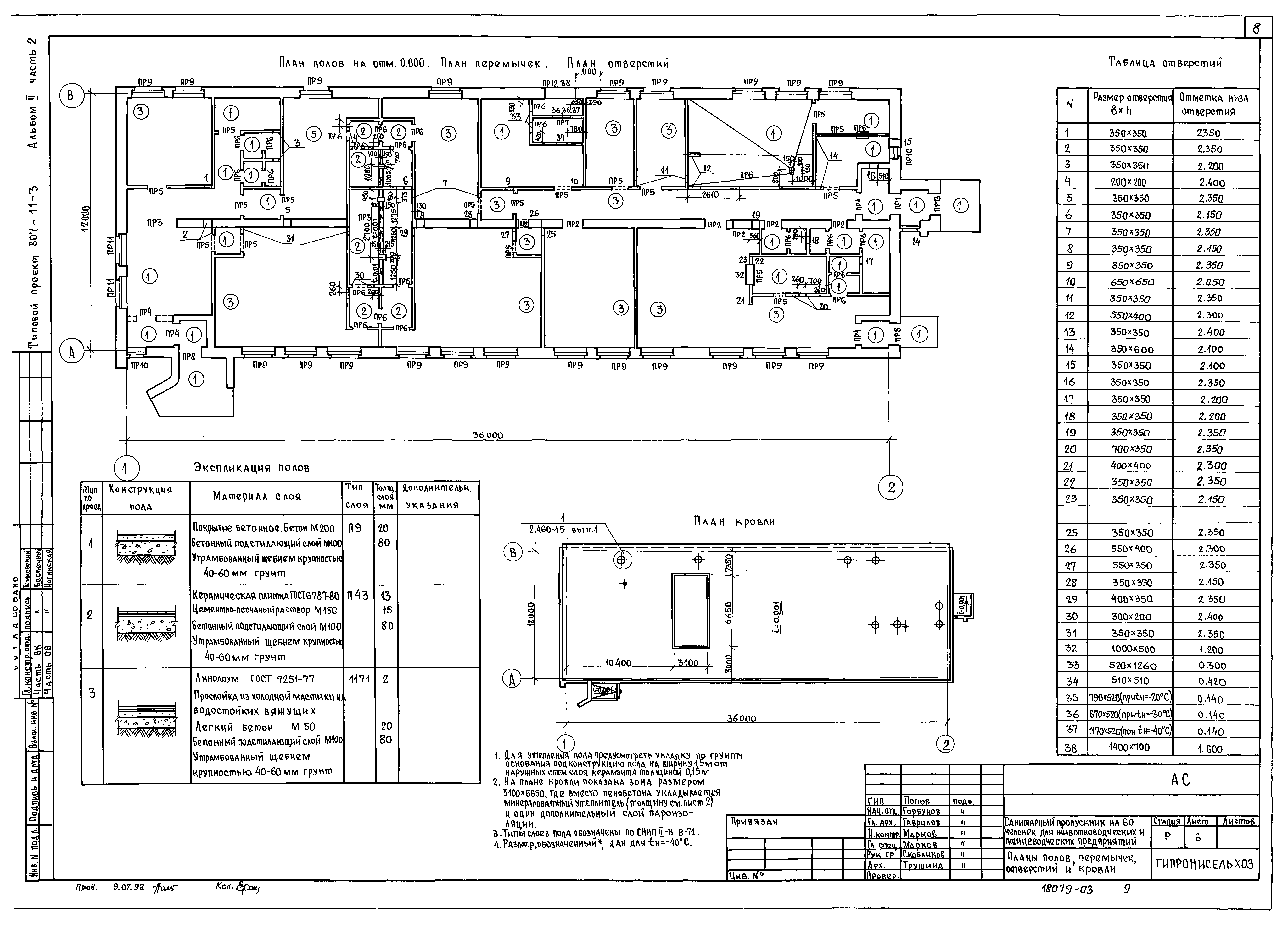
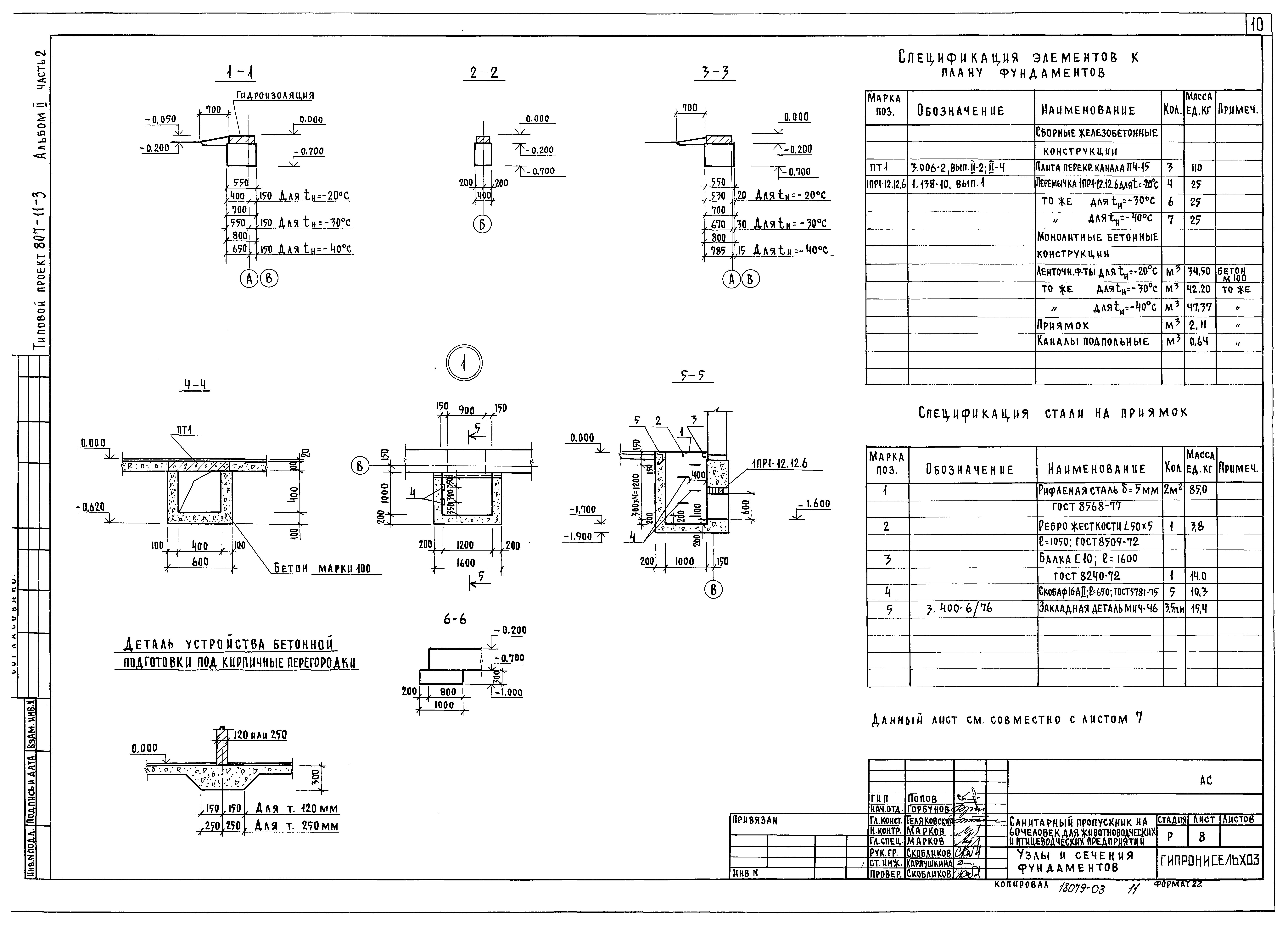
| Оглавление: | ТП 807-11-3 Содержание альбома ТП 807-11-3-АС-1 Общие данные (начало) ТП 807-11-3-АС-2 Общие данные (окончание) ТП 807-11-3-АС-3 Фасады ТП 807-11-3-АС-4 План на отм. 0.000 ТП 807-11-3-АС-5 Фрагмент плана 1. Фрагмент фасада 1. Разрез 1-1 ТП 807-11-3-АС-6 Планы полов, перемычек, отверстий и кровли ТП 807-11-3-АС-7 План фундаментов ТП 807-11-3-АС-8 Узлы и сечения фундаментов ТП 807-11-3-АС-9 Схема расположения плит перекрытия |
| Разработан: | ФГНУ НПЦ Гипронисельхоз |
| Утверждён: | 21.08.1981 Главсельстройпроект Минсельхоза СССР (Glavselstroyproject, USSR Minselkhoz 88) |











