Скачать Типовой проект 807-11-17.85 Альбом II. Часть 1. Изделия индустриального изготовления. Двухслойные стеновые легкобетонные панели повышенной заводской готовности для сельскохозяйственных зданий при tн = -30 градусов ЦельсияДата актуализации: 01.01.2021
|
| Обозначение: | Типовой проект 807-11-17.85 |
| Обозначение англ: | 807-11-17.85 |
| Статус: | не определен законодательством |
| Название рус.: | Альбом II. Часть 1. Изделия индустриального изготовления. Двухслойные стеновые легкобетонные панели повышенной заводской готовности для сельскохозяйственных зданий при tн = -30 градусов Цельсия |
| Дата добавления в базу: | 01.09.2013 |
| Дата актуализации: | 01.01.2021 |
| Дата введения: | 19.07.1984 |
| Дата окончания срока действия: | 30.06.2003 |
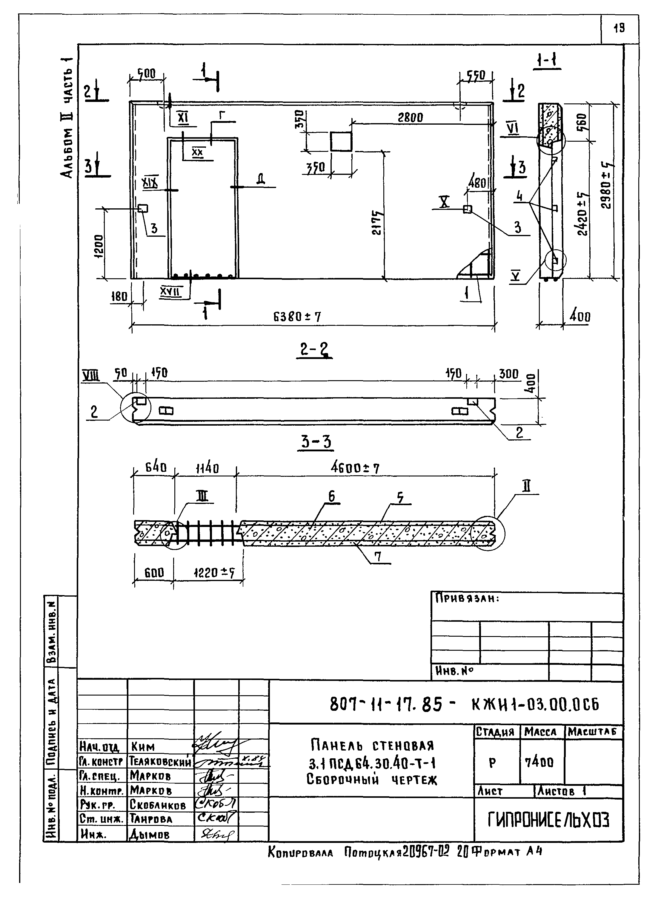
| Оглавление: | ТП 807-11-17.85 Содержание альбома ТП 807-11-17.85-КЖИ1-ТУ1 Технические условия ТП 807-11-17.85-КЖИ1-ТУ2 Технические условия ТП 807-11-17.85-КЖИ1-ДН Номенклатура сборных железобетонных элементов и расход материалов ТП 807-11-17.85-КЖИ1-01.00.0 Панель стеновая 4ПСД60.30.40-Т-1 ТП 807-11-17.85-КЖИ1-01.00.0 СБ Панель стеновая 4ПСД60.30.40-Т-1. Сборочный чертеж ТП 807-11-17.85-КЖИ1-02.00.0 Панель стеновая 4ПСД64.30.40-Т-1 ТП 807-11-17.85-КЖИ1-02.00.0 СБ Панель стеновая 2ПСД64.30.40-Т-1. Сборочный чертеж ТП 807-11-17.85-КЖИ1-03.00.0 Панель стеновая 3.1ПСД64.30.40-Т-1 ТП 807-11-17.85-КЖИ1-03.00.0 СБ Панель стеновая 3.1ПСД64.30.40-Т-1. Сборочный чертеж ТП 807-11-17.85-КЖИ1-04.00.0 Панель стеновая ПСД64.30.40-Т-1 ТП 807-11-17.85-КЖИ1-04.00.0 СБ Панель стеновая ПСД64.30.40-Т-1. Сборочный чертеж ТП 807-11-17.85-КЖИ1-05.00.0 Панель стеновая 4ПСД64.30.40-Т-1 ТП 807-11-17.85-КЖИ1-05.00.0 СБ Панель стеновая 4ПСД64.30.40-Т-1. Сборочный чертеж ТП 807-11-17.85-КЖИ1-06.00.0 Панель стеновая 4ПСД60.30.40-Т-2 ТП 807-11-17.85-КЖИ1-06.00.0 СБ Панель стеновая 4ПСД60.30.40-Т-2. Сборочный чертеж ТП 807-11-17.85-КЖИ1-07.00.0 Панель стеновая 4.1ПСД60.30.40-Т-1 ТП 807-11-17.85-КЖИ1-07.00.0 СБ Панель стеновая 4.1ПСД60.30.40-Т-1. Сборочный чертеж ТП 807-11-17.85-КЖИ1-08.00.0 Панель стеновая ПСД6.30.40-Т-2 ТП 807-11-17.85-КЖИ1-08.00.0 СБ Панель стеновая ПСД6.30.40-Т-2. Сборочный чертеж ТП 807-11-17.85-КЖИ1-00.01.0 Каркас пространственный КП1 ТП 807-11-17.85-КЖИ1-00.01.0 СБ Каркас пространственный КП1. Сборочный чертеж ТП 807-11-17.85-КЖИ1-00.02.0 Каркас пространственный КП2 ТП 807-11-17.85-КЖИ1-00.02.0 СБ Каркас пространственный КП2. Сборочный чертеж ТП 807-11-17.85-КЖИ1-00.03.0 Каркас пространственный КП3 ТП 807-11-17.85-КЖИ1-00.03.0 СБ Каркас пространственный КП3. Сборочный чертеж ТП 807-11-17.85-КЖИ1-00.04.0 Каркас пространственный КП4 ТП 807-11-17.85-КЖИ1-00.04.0 СБ Каркас пространственный КП4. Сборочный чертеж ТП 807-11-17.85-КЖИ1-00.05.0 Каркас пространственный КП5 ТП 807-11-17.85-КЖИ1-00.05.0 СБ Каркас пространственный КП5. Сборочный чертеж ТП 807-11-17.85-КЖИ1-00.06.0 Каркас пространственный КП6 ТП 807-11-17.85-КЖИ1-00.06.0 СБ Каркас пространственный КП6. Сборочный чертеж ТП 807-11-17.85-КЖИ1-00.07.0 Каркас пространственный КП7 ТП 807-11-17.85-КЖИ1-00.07.0 СБ Каркас пространственный КП7. Сборочный чертеж ТП 807-11-17.85-КЖИ1-00.08.0 Каркасы плоские КР1;КР2 ТП 807-11-17.85-КЖИ1-00.09.0 Каркасы плоские КР3;КР4 ТП 807-11-17.85-КЖИ1-00.10.0 Каркас плоский КР5 ТП 807-11-17.85-КЖИ1-00.11.0 Каркас плоский КР6 ТП 807-11-17.85-КЖИ1-09.00.0 Панель стеновая 2ПСД6.30.40-Т-1 ТП 807-11-17.85-КЖИ1-10.00.0 Панель стеновая 1ПСД6.30.40-Т-1 ТП 807-11-17.85-КЖИ1-11.00.0 Панель стеновая ПСД12.30.40-Т-1 ТП 807-11-17.85-КЖИ1-12.00.0 Панель стеновая ПСД6.30.40-Т-1 ТП 807-11-17.85-КЖИ1-ВМ Ведомость расхода стали на один элемент |
| Разработан: | ФГНУ НПЦ Гипронисельхоз |
| Утверждён: | 19.04.1983 Главсельстройпроект Минсельхоза СССР (Glavselstroyproject, USSR Minselkhoz 33) |
























































