Скачать Типовой проект 807-13-5.84 Альбом I. Пояснительная записка. Технология производства. Архитектурно-строительные решения. Отопление и вентиляция. Внутренние водопровод и канализация. Силовое электрооборудованиеДата актуализации: 01.01.2021
|
| Обозначение: | Типовой проект 807-13-5.84 |
| Обозначение англ: | 807-13-5.84 |
| Статус: | не определен законодательством |
| Название рус.: | Альбом I. Пояснительная записка. Технология производства. Архитектурно-строительные решения. Отопление и вентиляция. Внутренние водопровод и канализация. Силовое электрооборудование |
| Дата добавления в базу: | 01.09.2013 |
| Дата актуализации: | 01.01.2021 |
| Дата введения: | 09.04.1984 |
| Дата окончания срока действия: | 30.06.2003 |
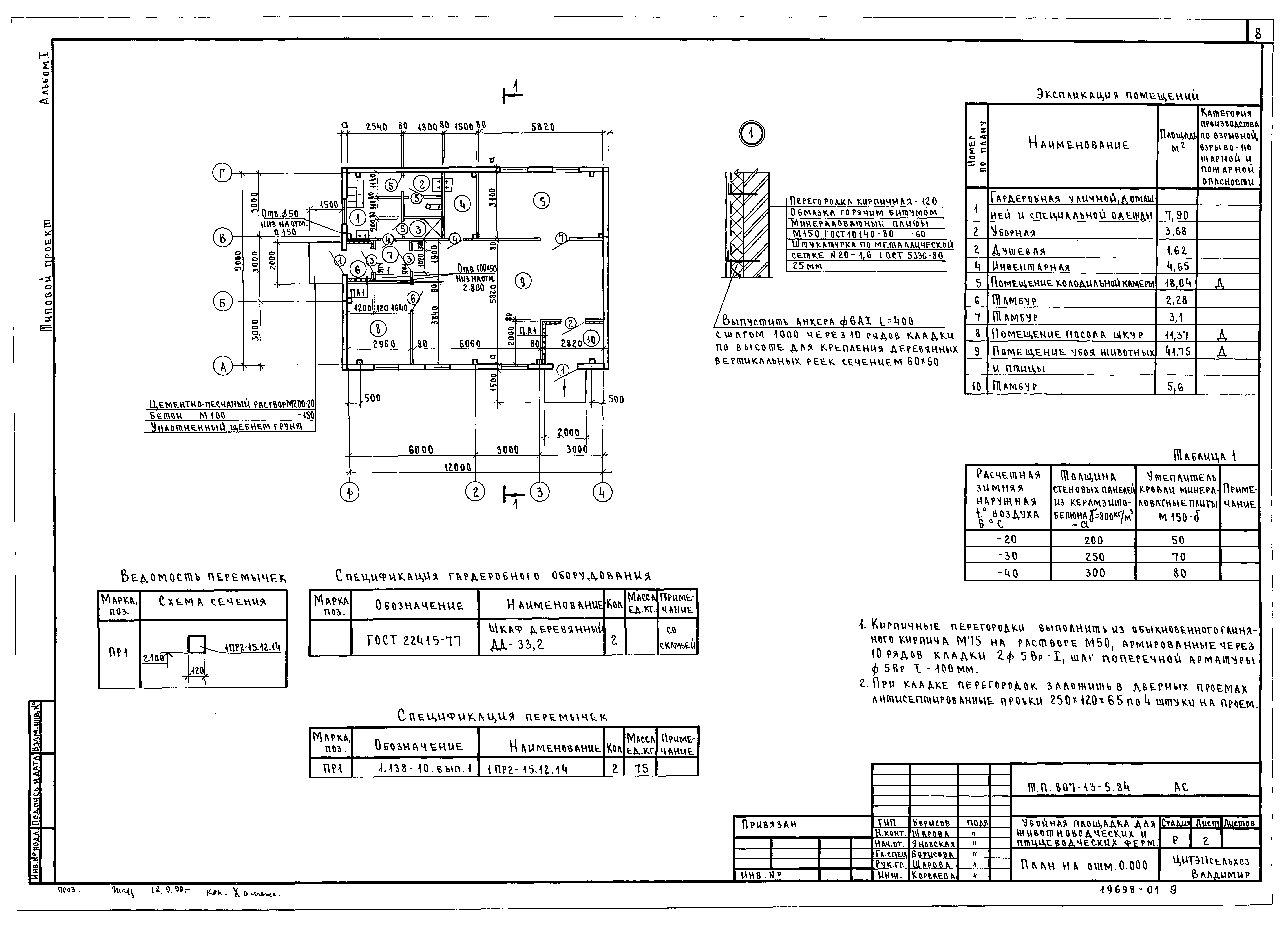
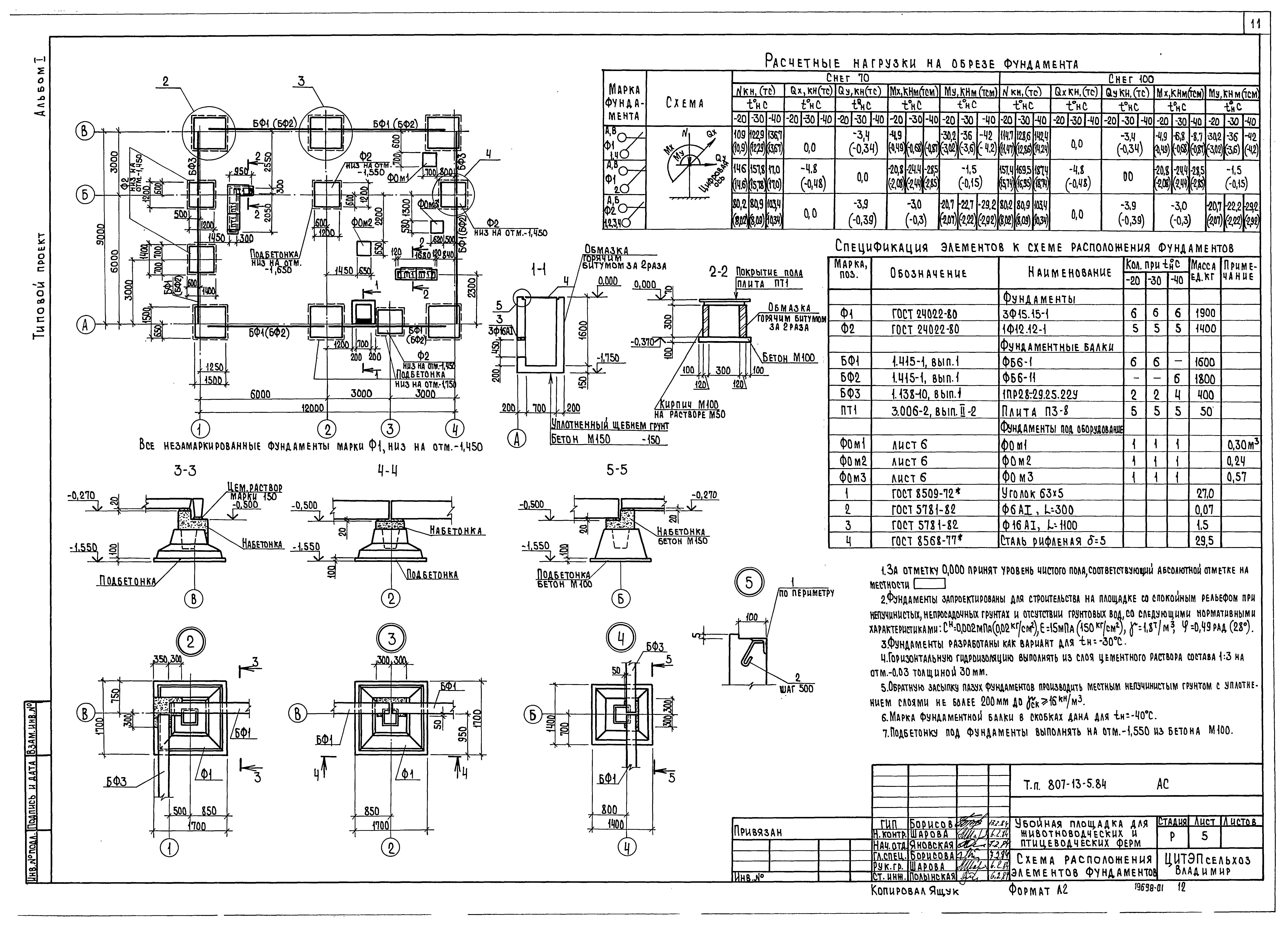
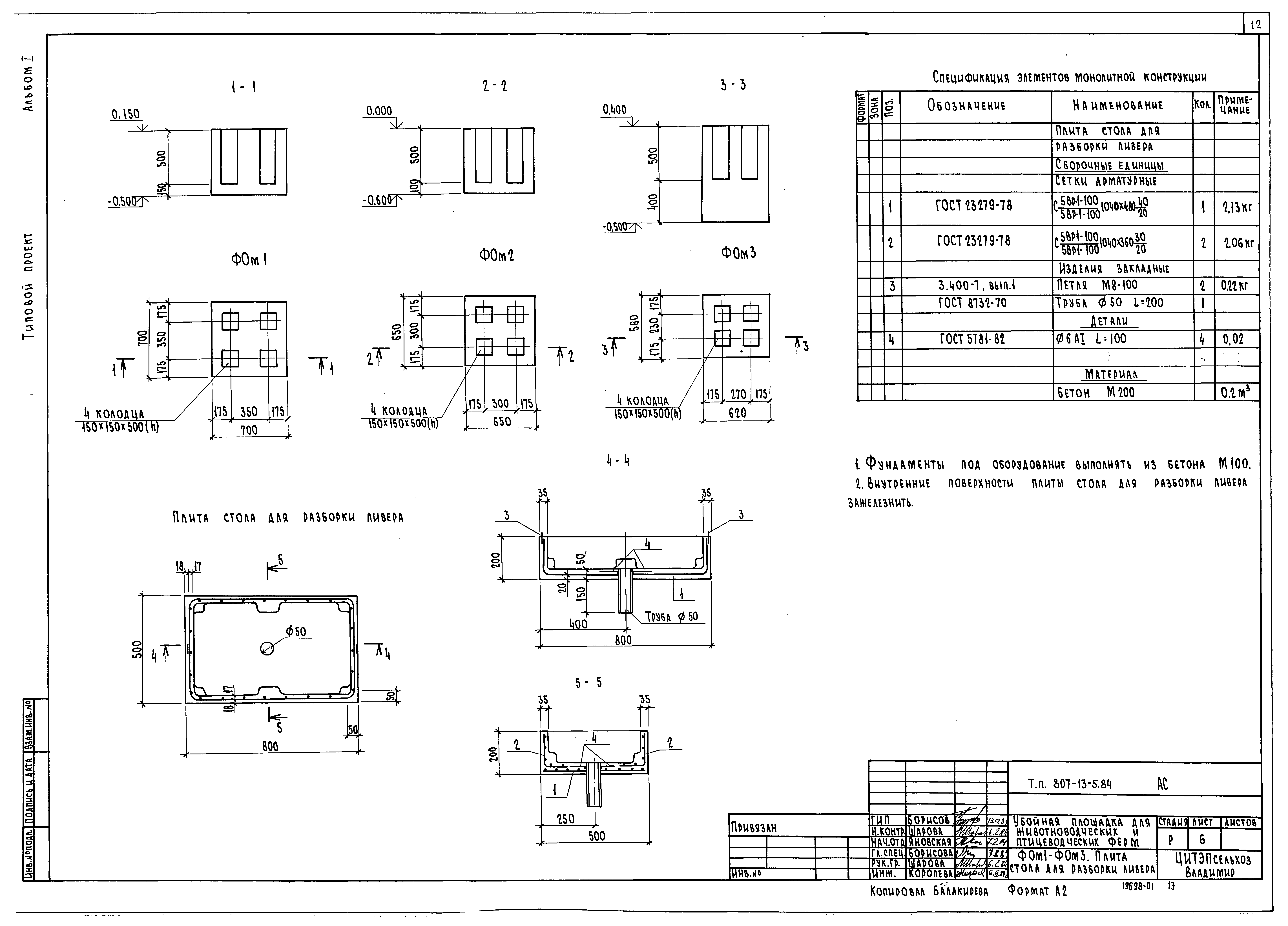
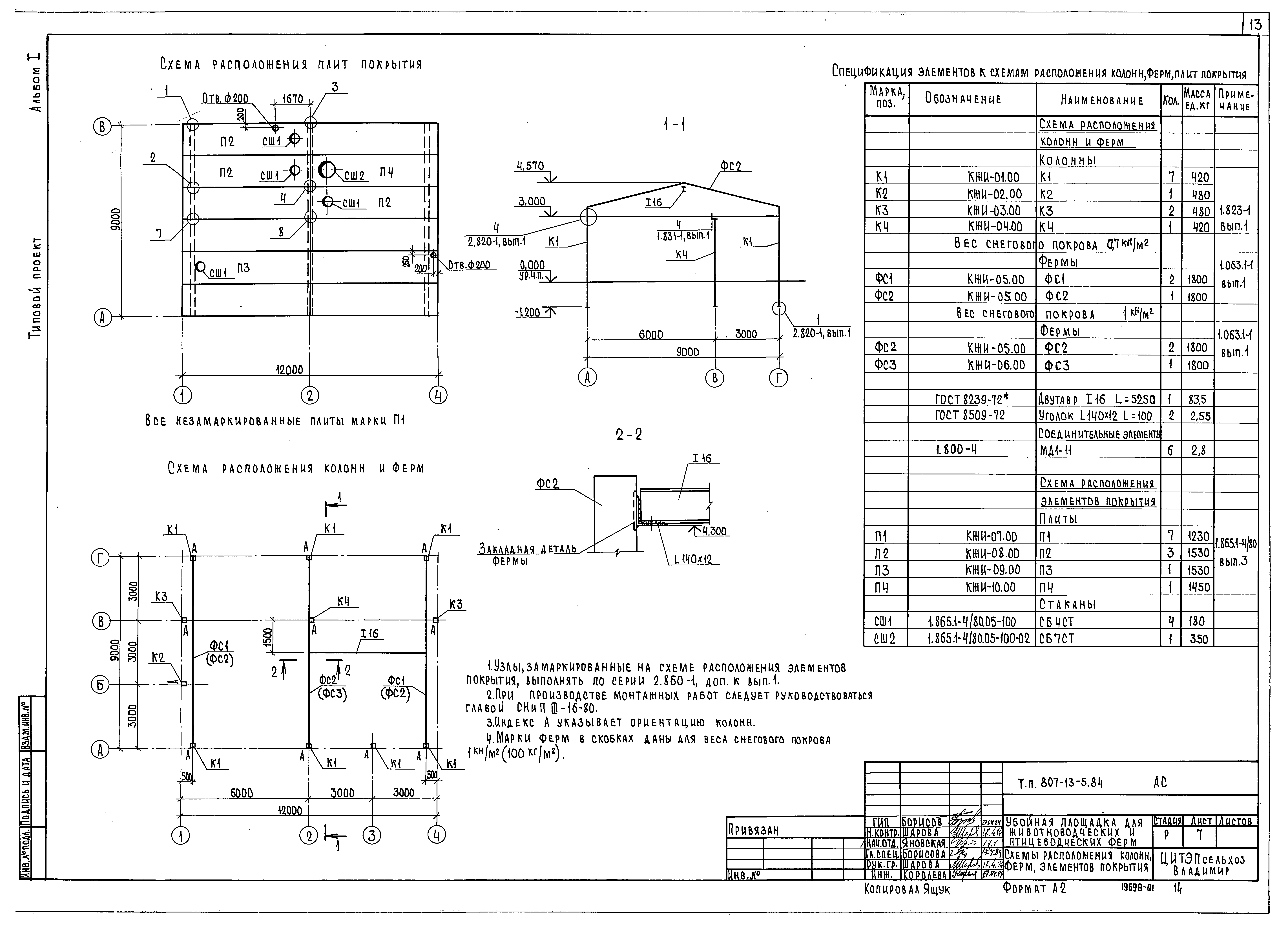
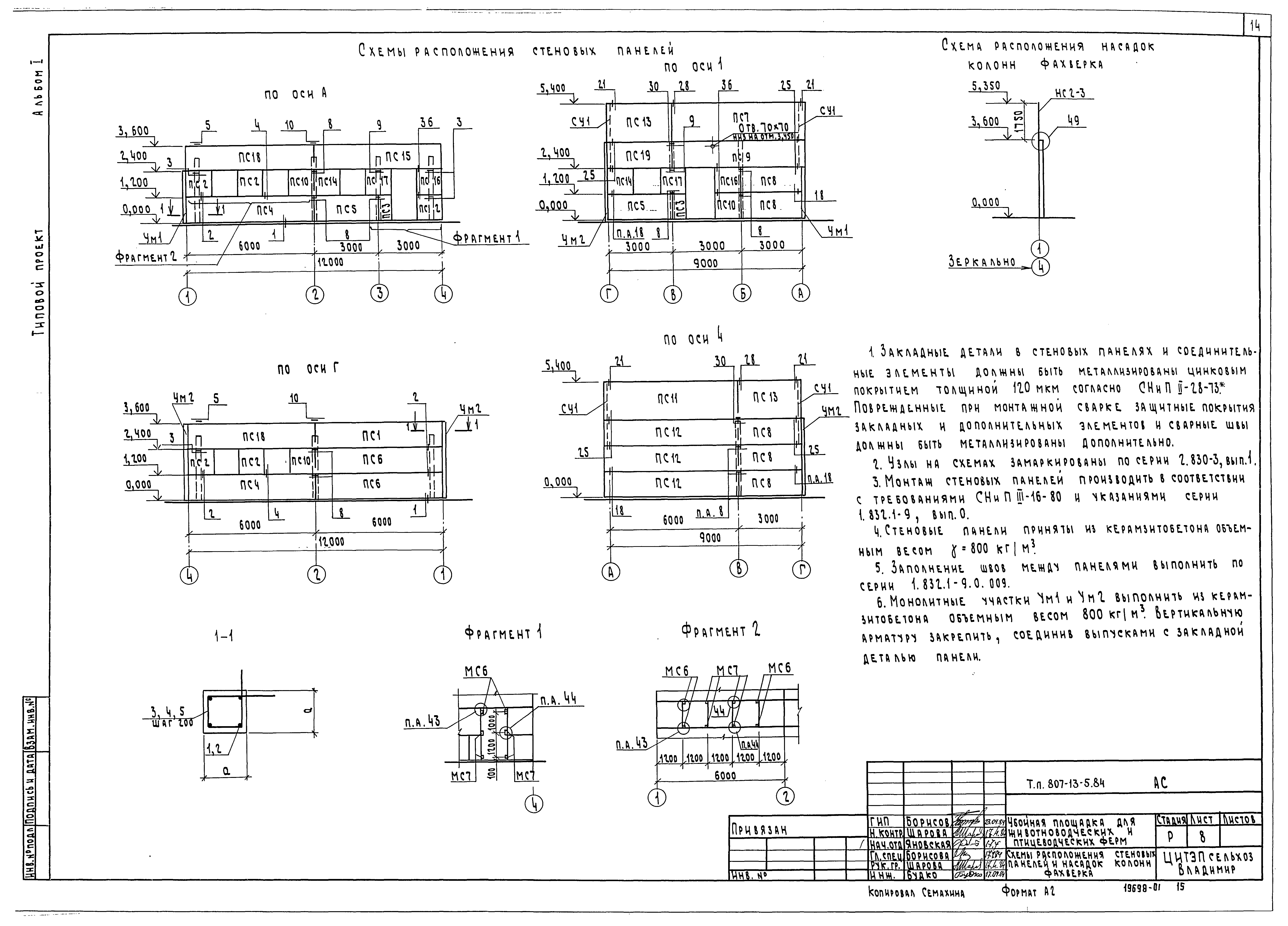
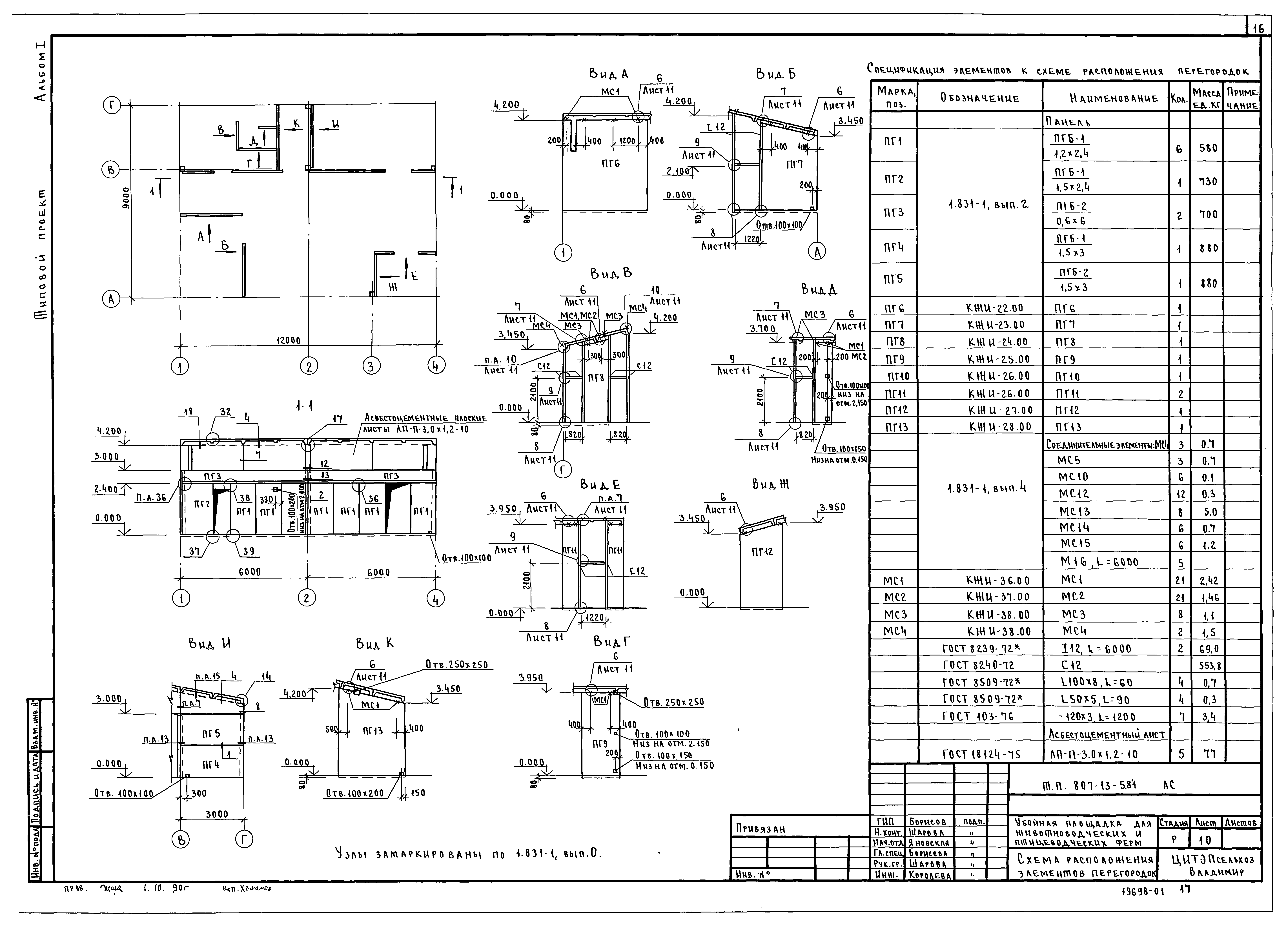
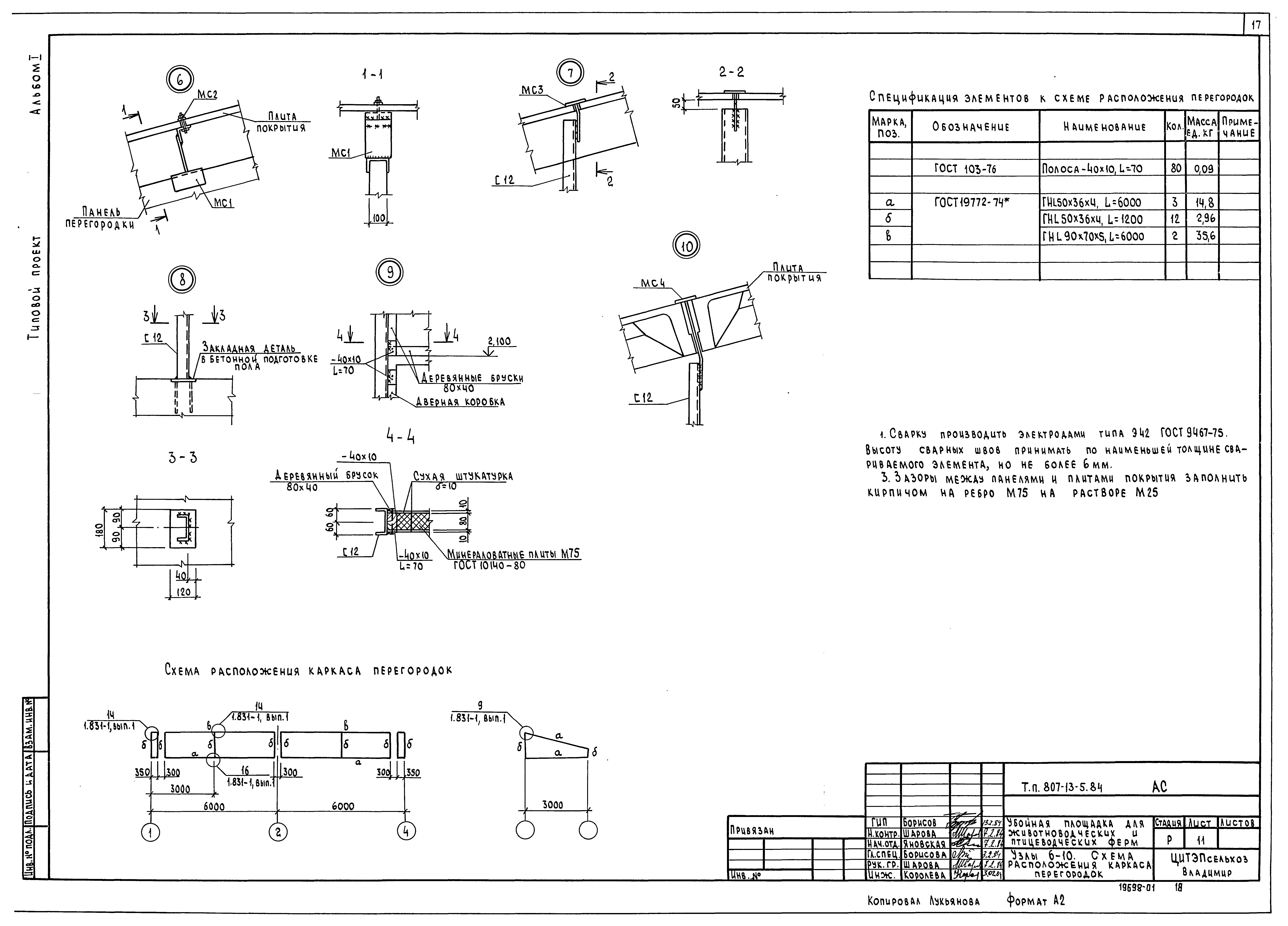
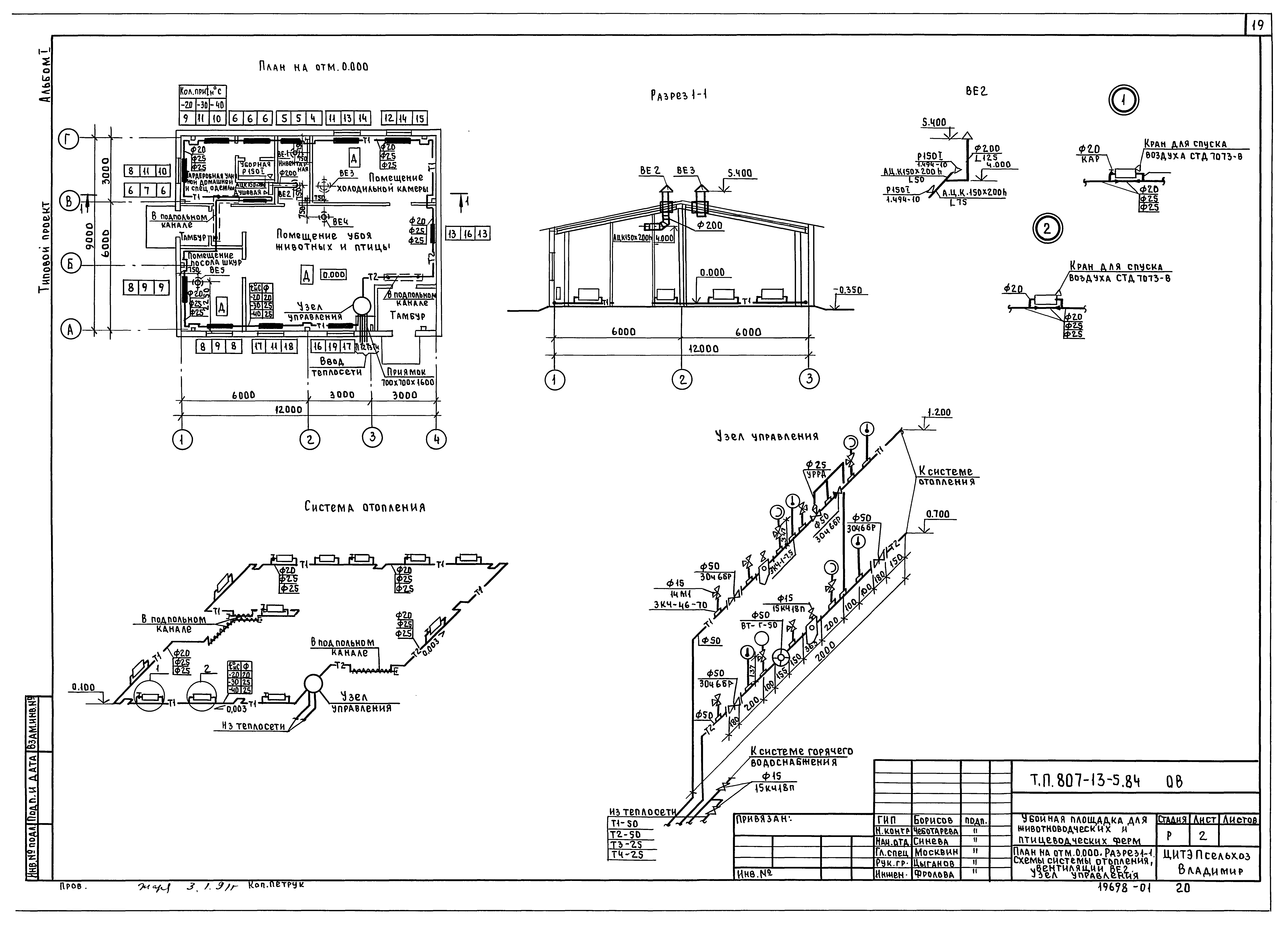
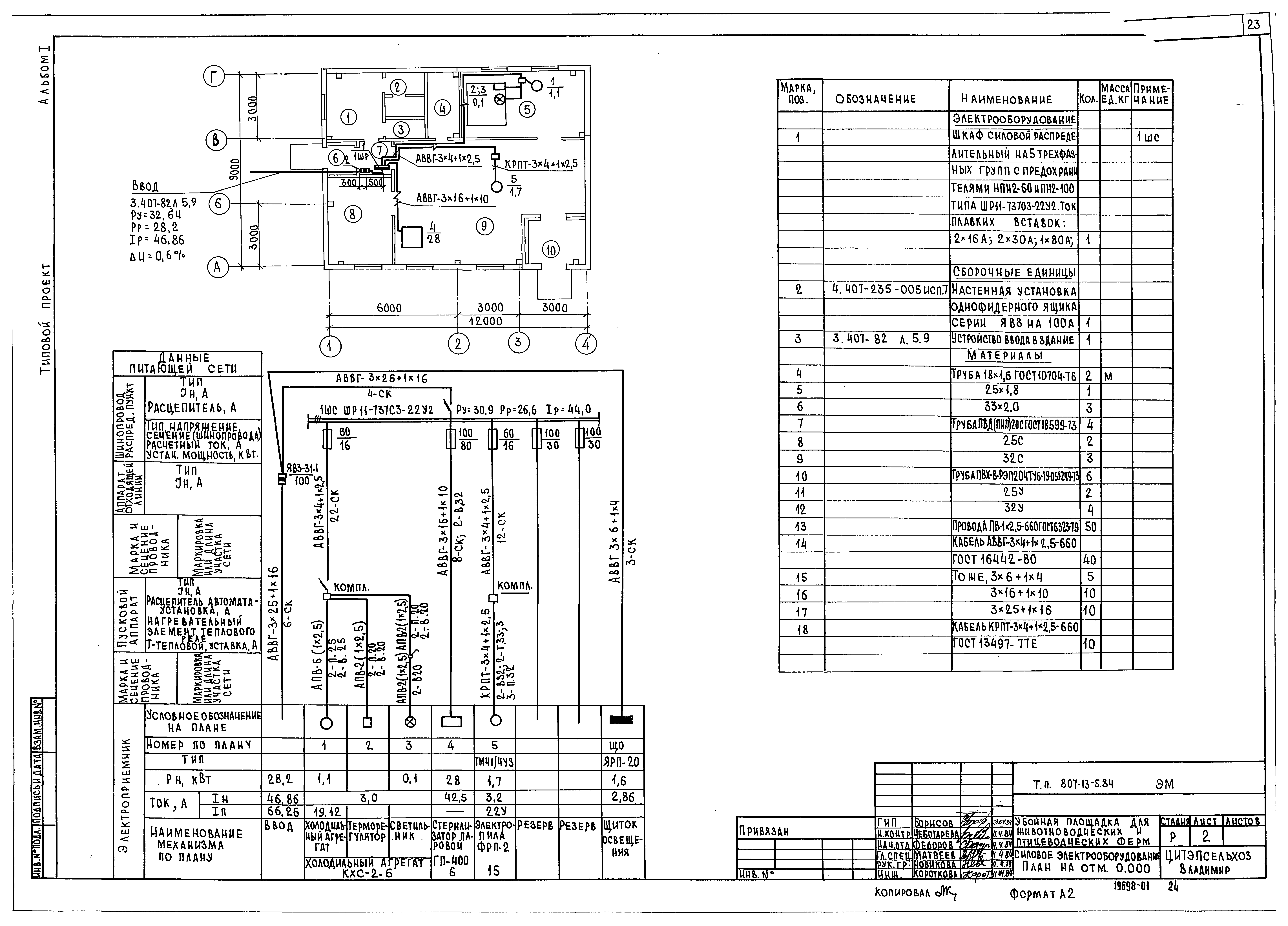
| Оглавление: | ТП 807-13-5.84 Содержание ТП 807-13-5.84-ПЗ-1 Пояснительная записка ТП 807-13-5.84-ПЗ-2 Пояснительная записка ТП 807-13-5.84-ПЗ-3 Пояснительная записка ТП 807-13-5.84-ТХ-1 Общие данные. План на отм. 0.000 ТП 807-13-5.84-АС-1 Общие данные ТП 807-13-5.84-АС-2 План на отм. 0.000. Разрез 1-1 (стены из панелей повышенной заводской готовности) ТП 807-13-5.84-АС-3 Разрез 1-1. Фасады 1-4,4-1,Г-А. Схема заполнения оконных проемов ТП 807-13-5.84-АС-4 План полов. План кровли ТП 807-13-5.84-АС-5 Схема расположения элементов фундаментов ТП 807-13-5.84-АС-6 ФОМ1-ФОМ3. Плита стола для разборки ливера ТП 807-13-5.84-АС-7 Схемы расположения колонн, ферм, элементов покрытия ТП 807-13-5.84-АС-8 Схемы расположения стеновых панелей и насадок колонн фахверка ТП 807-13-5.84-АС-9 Спецификация элементов к схемам расположения стеновых панелей ТП 807-13-5.84-АС-10 Схема расположения элементов перегородок ТП 807-13-5.84-АС-11 Узлы 6-10. Схема расположения каркаса перегородок ТП 807-13-5.84-ОВ-1 Общие данные ТП 807-13-5.84-ОВ-2 План на отм. 0.000. Разрез 1-1. Схемы системы отопления, вентиляции ВЕ2. Узел управления ТП 807-13-5.84-ВК-1 Общие данные ТП 807-13-5.84-ВК-2 План на отм. 0.000. Схемы системы В1,Т3,К1,К3,К13,К14 ТП 807-13-5.84-ЭМ-1 Общие данные ТП 807-13-5.84-ЭМ-2 Силовое электрооборудование. План на отм. 0.000 ТП 807-13-5.84-ЭМ-3 Электрическое освещение. План на отм. 0.000 |
| Разработан: | ЦИТЭПсельхозпром |
| Утверждён: | 31.01.1984 Минсельхоз СССР (USSR Minselkhoz 5-ЭГ) |
























