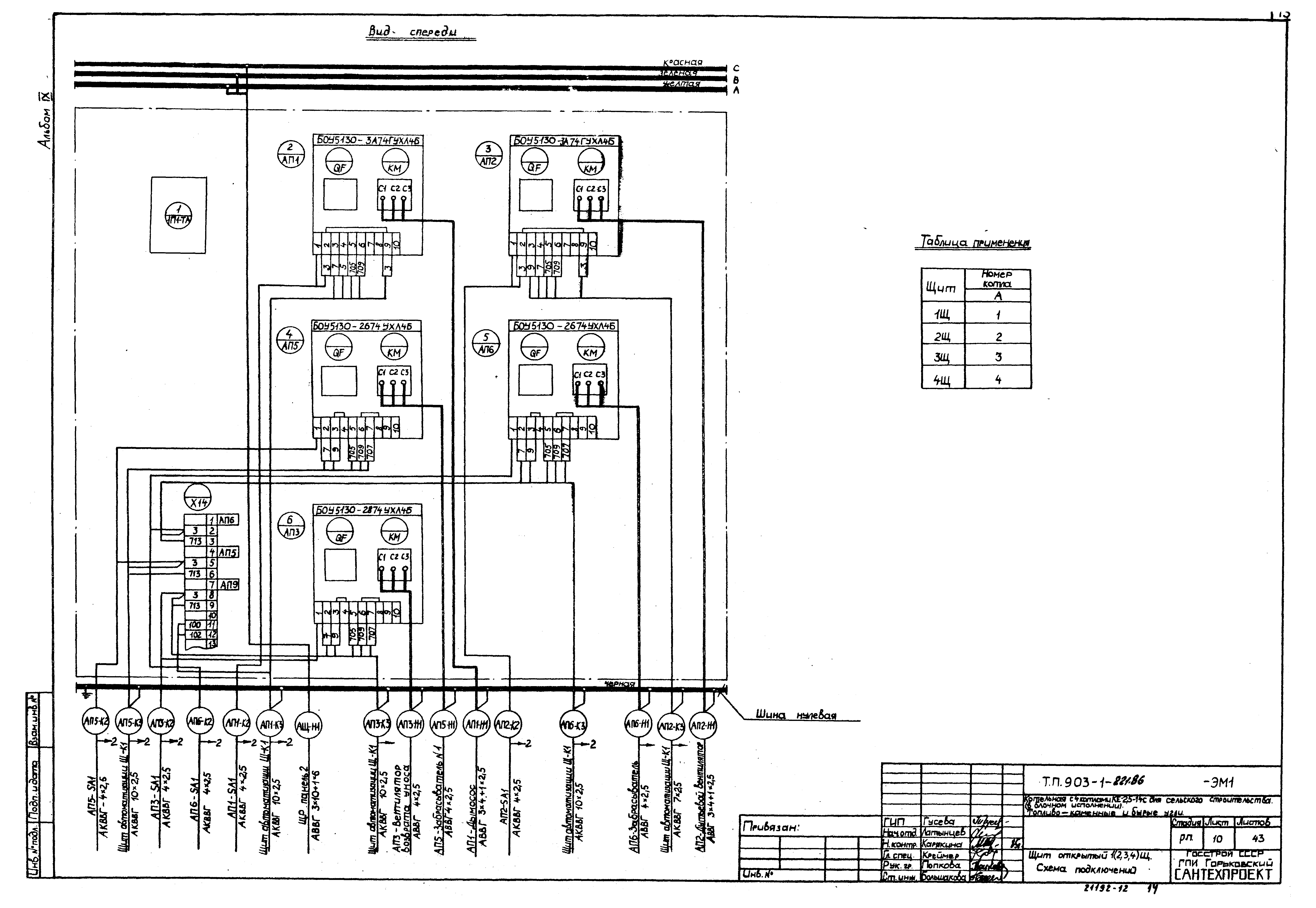
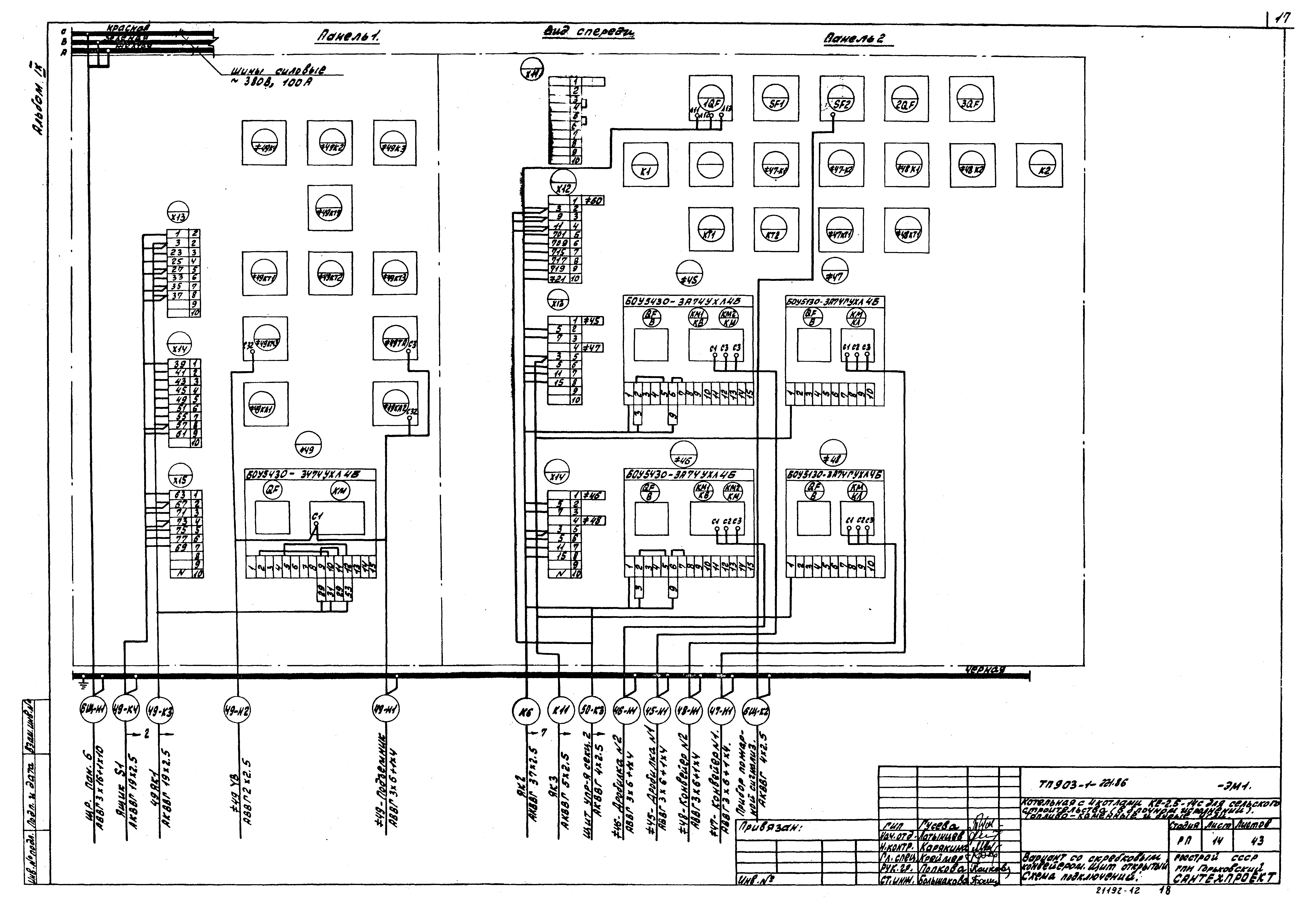
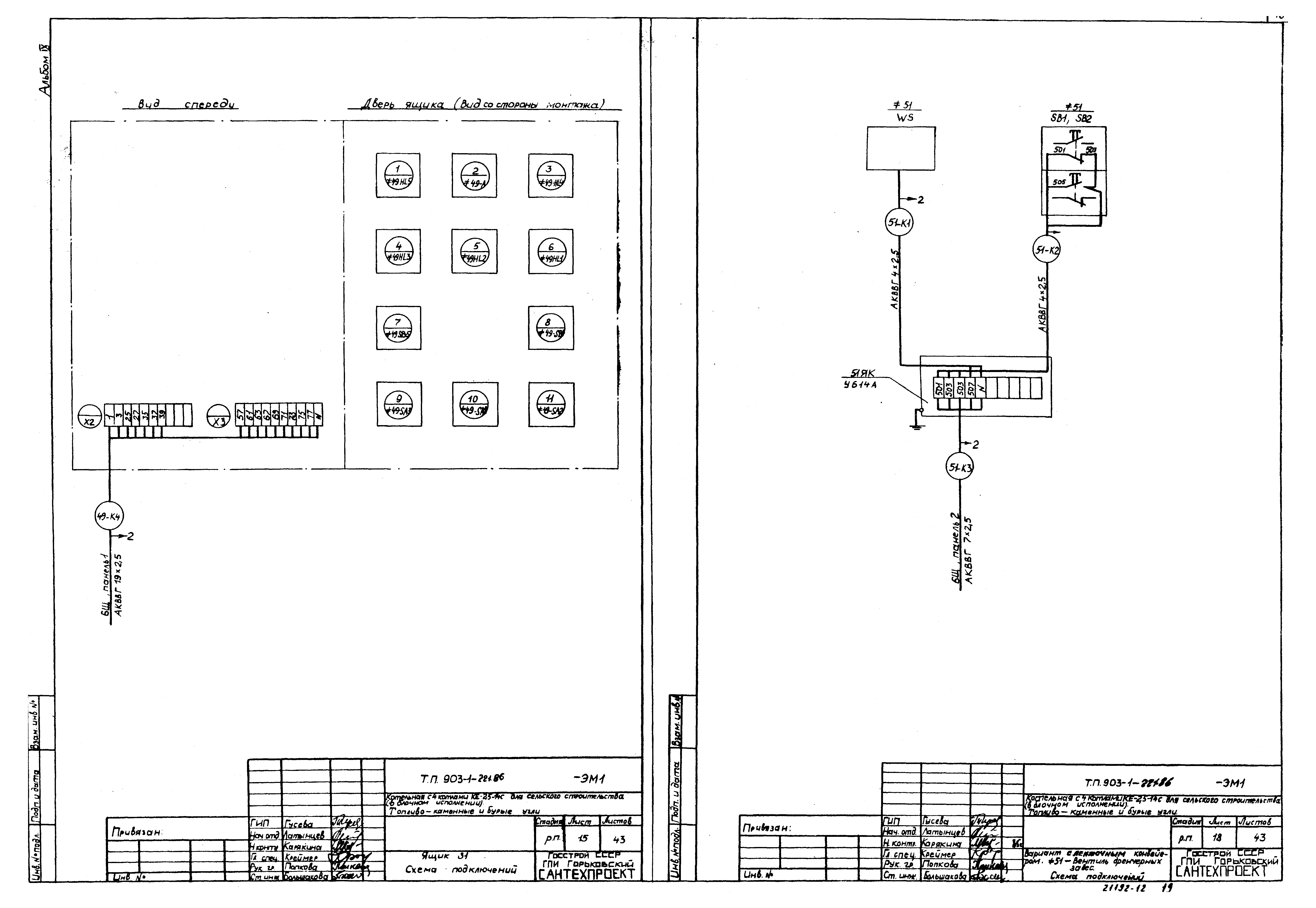
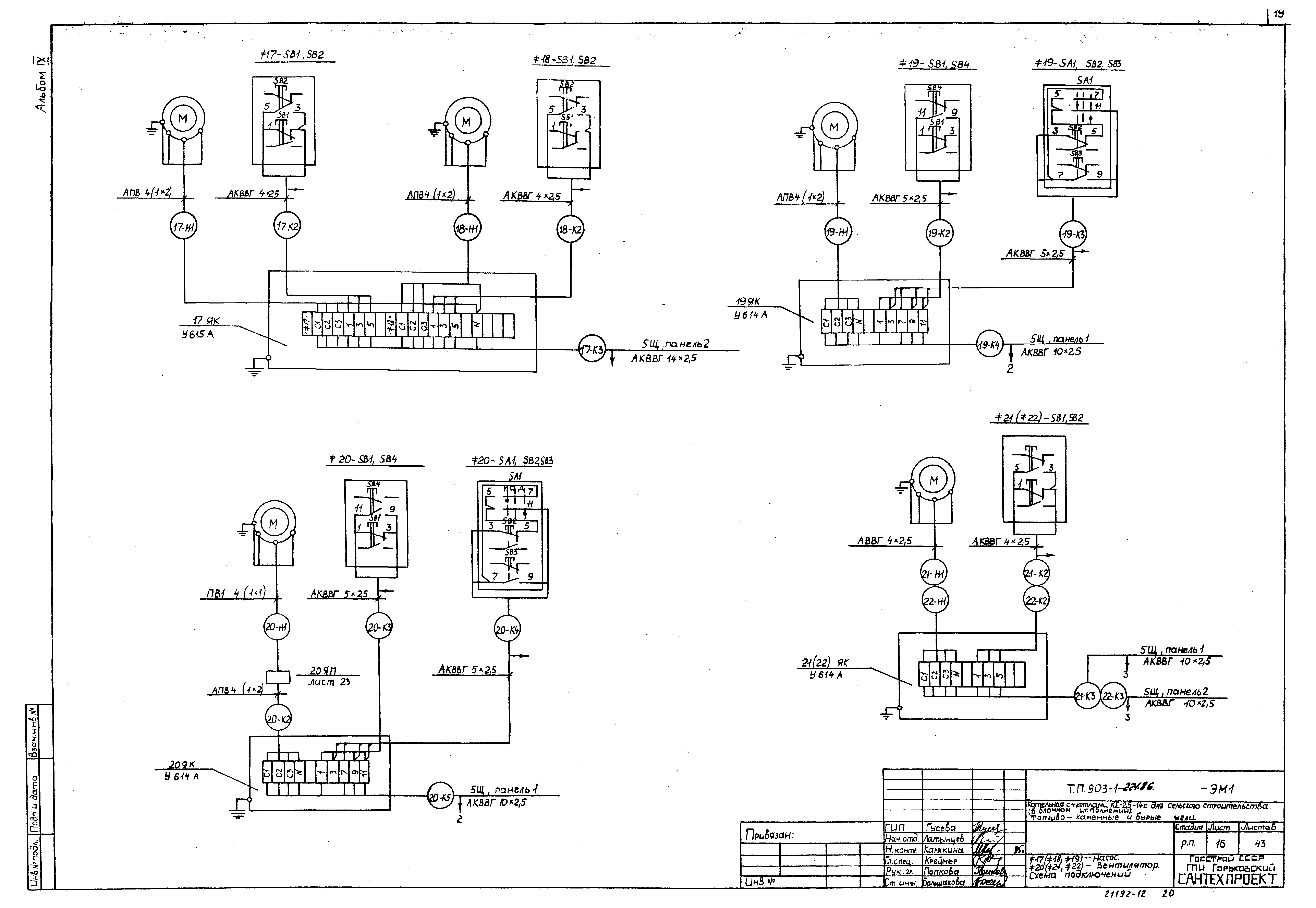
Скачать Типовой проект 903-1-221.86 Альбом 9. Силовое электрооборудование. Электрическое освещение. Связь и сигнализацияДата актуализации: 01.01.2021
|
| Обозначение: | Типовой проект 903-1-221.86 |
| Обозначение англ: | 903-1-221.86 |
| Статус: | не определен законодательством |
| Название рус.: | Альбом 9. Силовое электрооборудование. Электрическое освещение. Связь и сигнализация |
| Дата добавления в базу: | 01.09.2013 |
| Дата актуализации: | 01.01.2021 |
| Дата введения: | 18.12.1985 |
| Дата окончания срока действия: | 30.06.2003 |
| Разработан: | Горьковский Сантехпроект |
| Утверждён: | 26.11.1985 Минсельхоз СССР (USSR Minselkhoz 93-ЭГ) |















































































