Скачать 21.0003 Подвеска самонесущих изолированных проводов ВЛИ 0,4 кВ на существующих железобетонных опорах ВЛ 0,4 кВ с неизолированными проводамиДата актуализации: 01.01.2021
|
| Обозначение: | 21.0003 |
| Обозначение англ: | 21.0003 |
| Статус: | не определен законодательством |
| Название рус.: | Подвеска самонесущих изолированных проводов ВЛИ 0,4 кВ на существующих железобетонных опорах ВЛ 0,4 кВ с неизолированными проводами |
| Дата добавления в базу: | 01.09.2013 |
| Дата актуализации: | 01.01.2021 |
| Дата введения: | 01.01.2001 |
| Дата окончания срока действия: | 30.06.2003 |
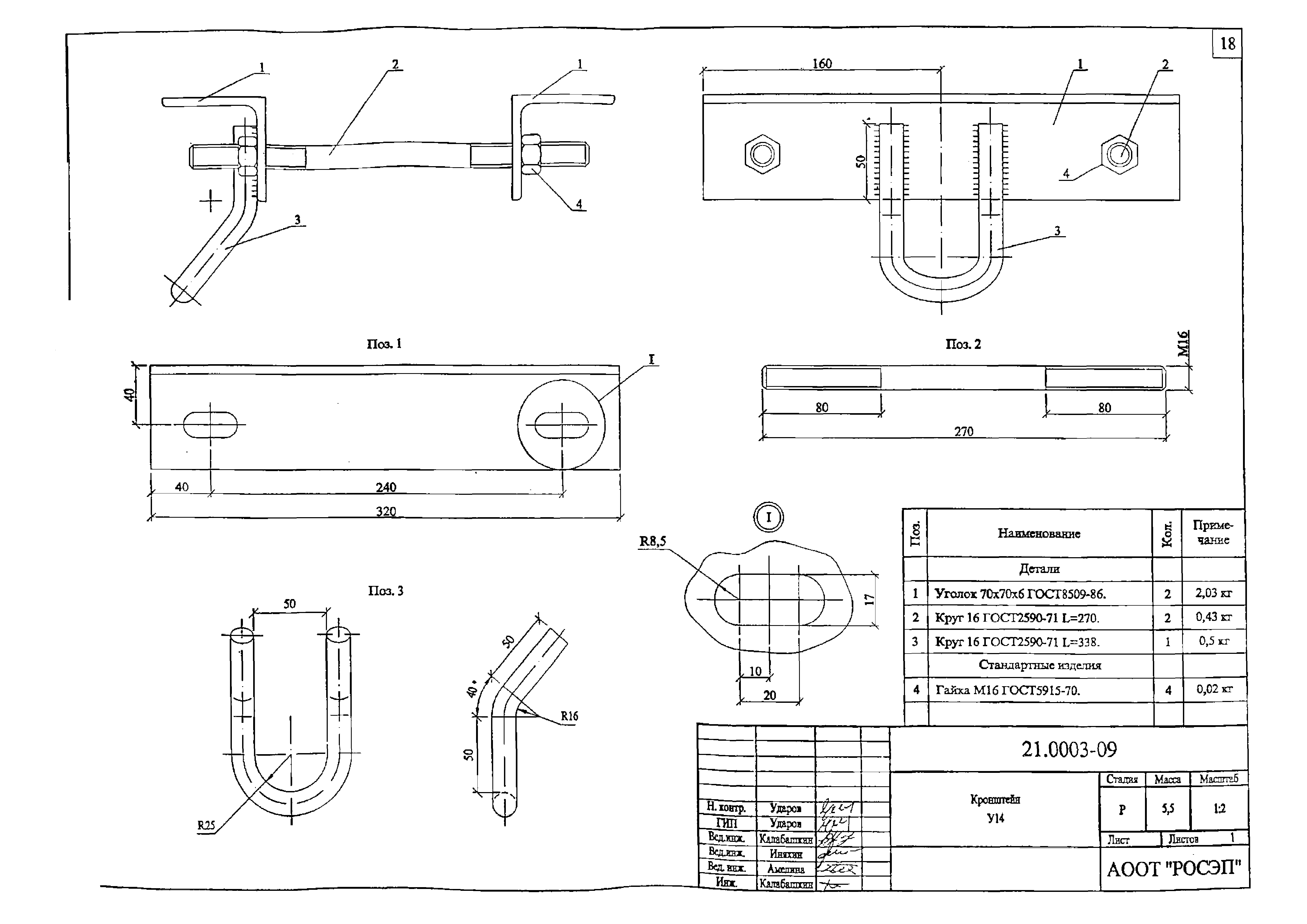
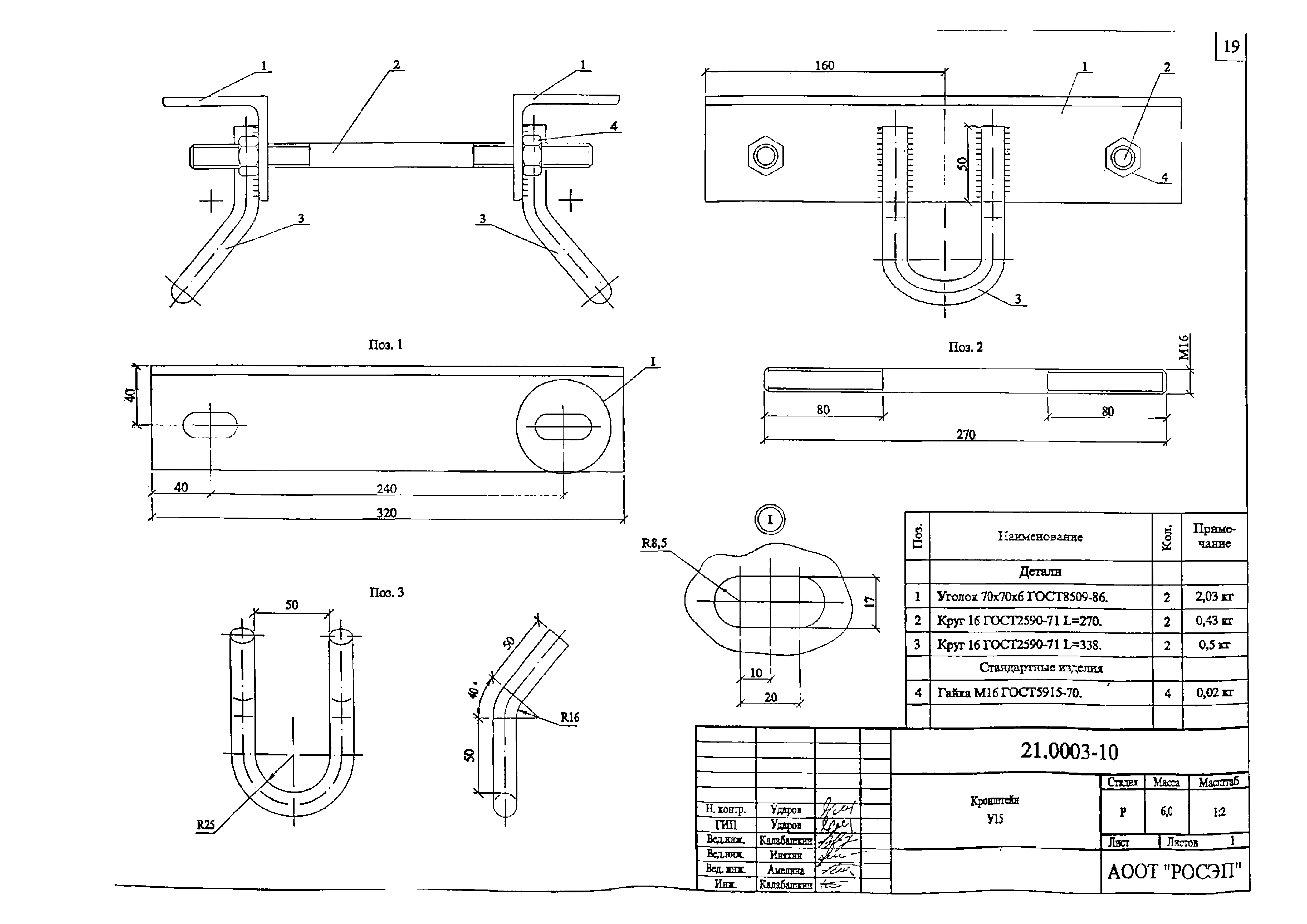
| Оглавление: | 21.0003-00 Содержание. 21.0003-ПЗ Пояснительная записка. 21.0003-01 Номенклатура опор. 21.0003-02 Подвеска ПС1 СИП на промежуточной опоре П3. 21.0003-03 Подвеска ПС2 СИП на концевой опоре К3. 21.0003-04 Подвеска ПС3 СИП на угловой промежуточной опоре УП3. 21.0003-05 Подвеска ПС4 СИП на угловой анкерной опоре УА3. 21.0003-06 Подвеска ПС5 СИП на угловой анкерной опоре УА3. 21.0003-07 Анкер АЦ-1. 21.0003-08 Кронштейн У3. 21.0003-09 Кронштейн У14. 21.0003-10 Кронштейн У15. 21.0003-11 Крепление анкера ОТ25. 21.0003-12 Оттяжка ОТ26 21.0003-13 Проводник 3П2. 21.0003-14 Хомут X11 21.0003-15 Траверса ТН28. 21.0003-16 Траверса ТН29. |
| Разработан: | АООТ РОСЭП |
| Утверждён: | 01.01.2001 АООТ РОСЭП |























