Скачать Типовой проект 902-2-473.89 Альбом 2. Технологические решения. Отопление и вентиляция. Внутренний водопровод и канализацияДата актуализации: 01.01.2021
|
| Обозначение: | Типовой проект 902-2-473.89 |
| Обозначение англ: | 902-2-473.89 |
| Статус: | не определен законодательством |
| Название рус.: | Альбом 2. Технологические решения. Отопление и вентиляция. Внутренний водопровод и канализация |
| Дата добавления в базу: | 01.09.2013 |
| Дата актуализации: | 01.01.2021 |
| Дата введения: | 06.09.1989 |
| Дата окончания срока действия: | 30.06.2003 |
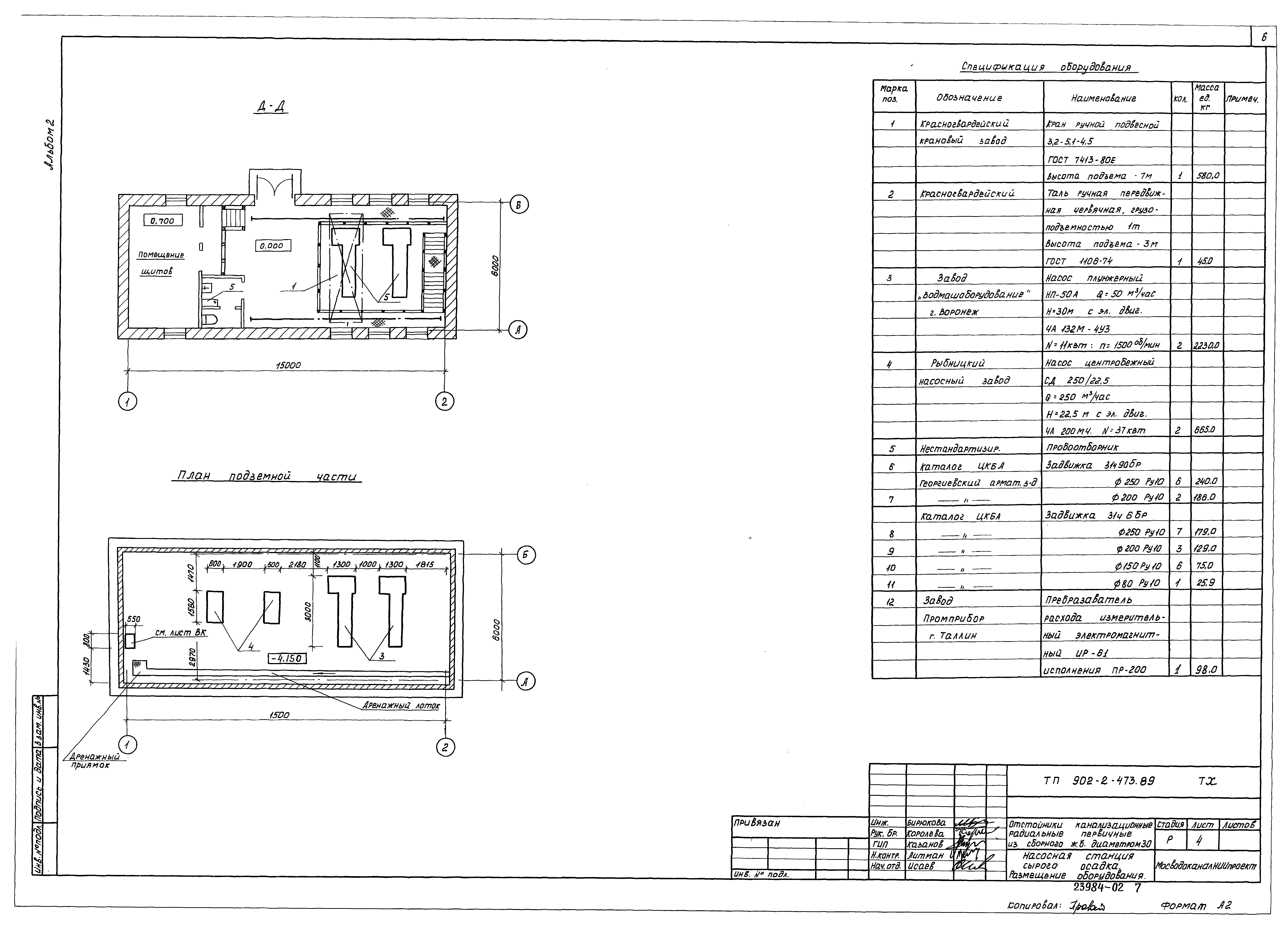
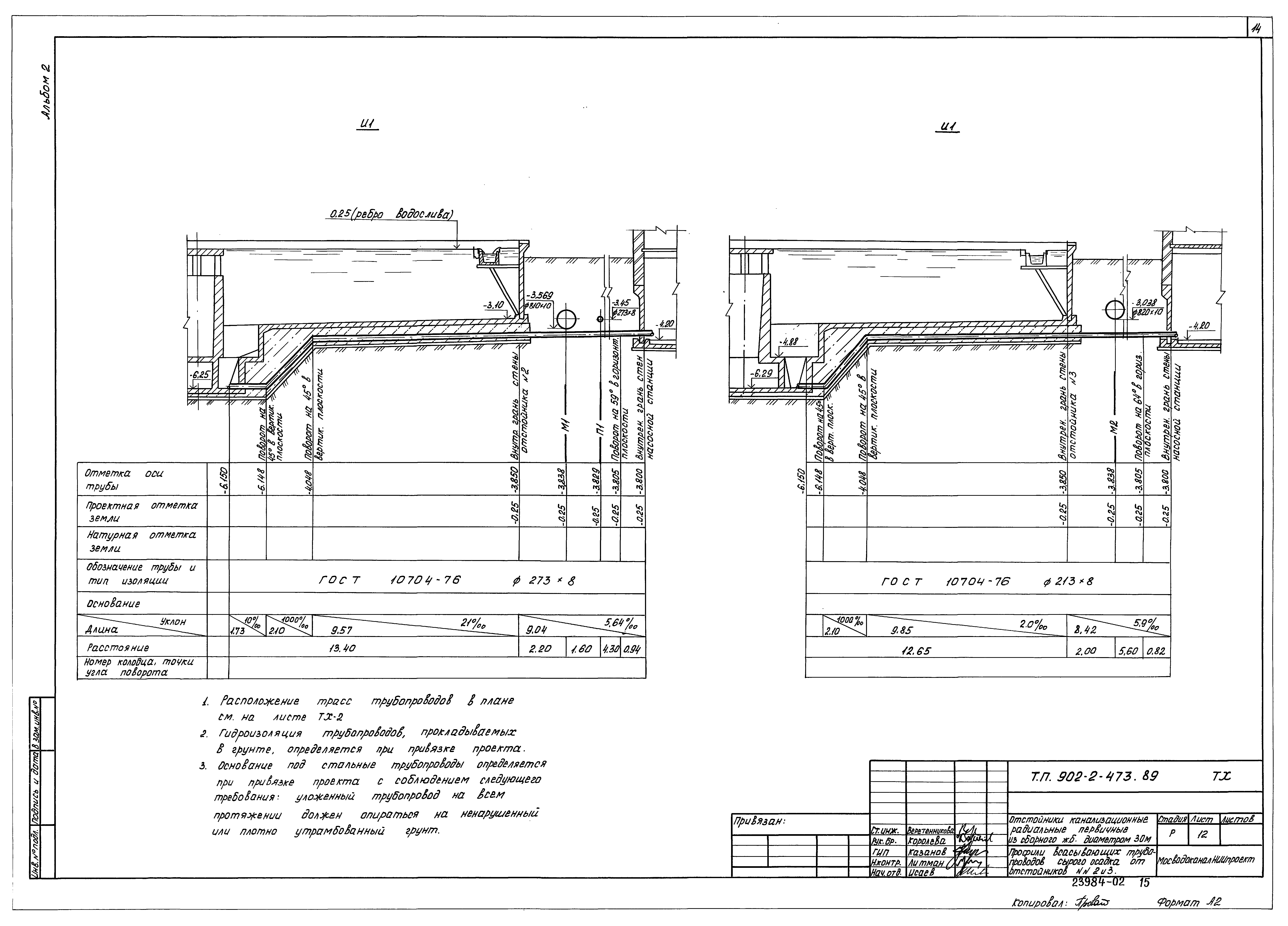
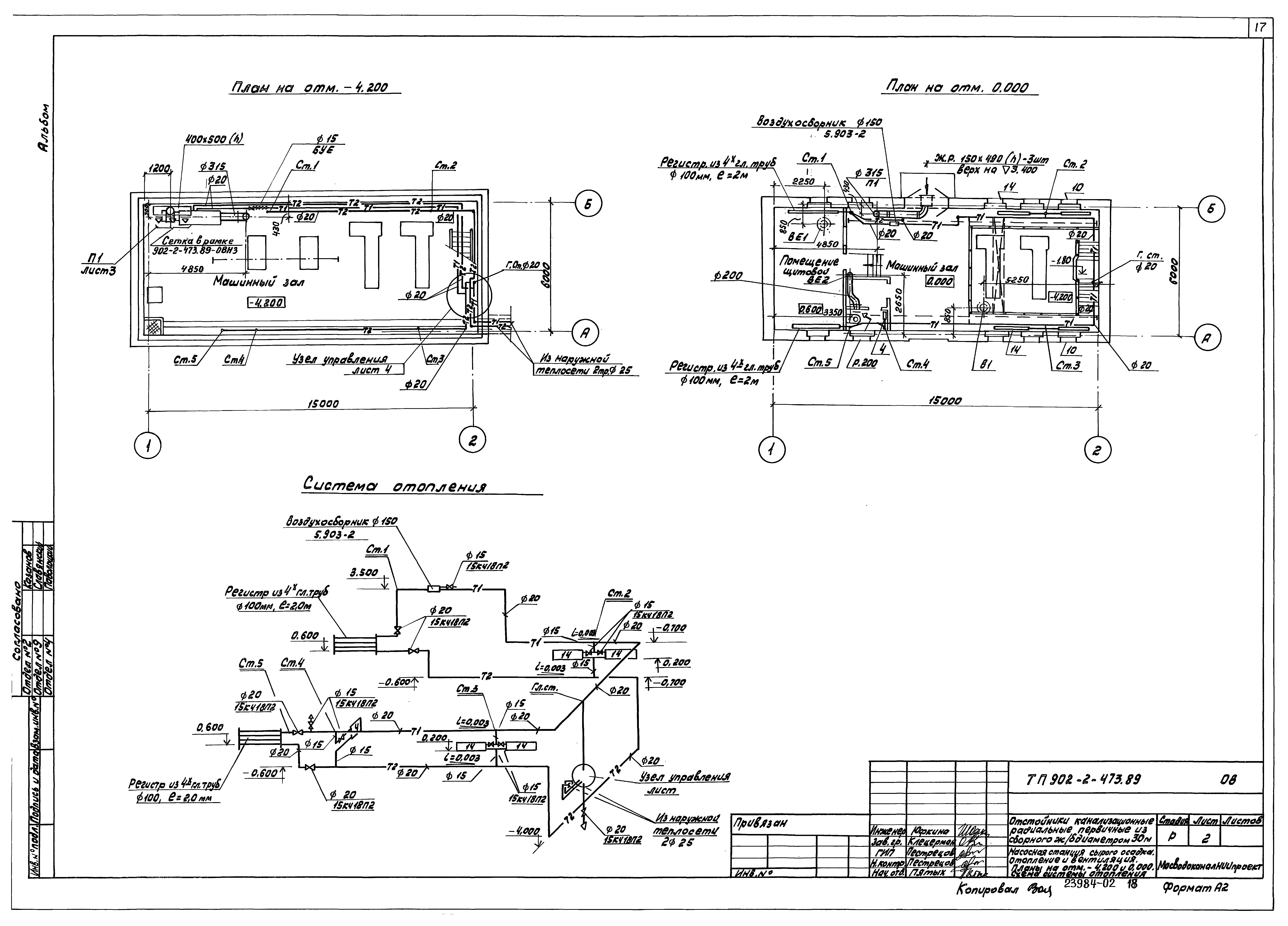
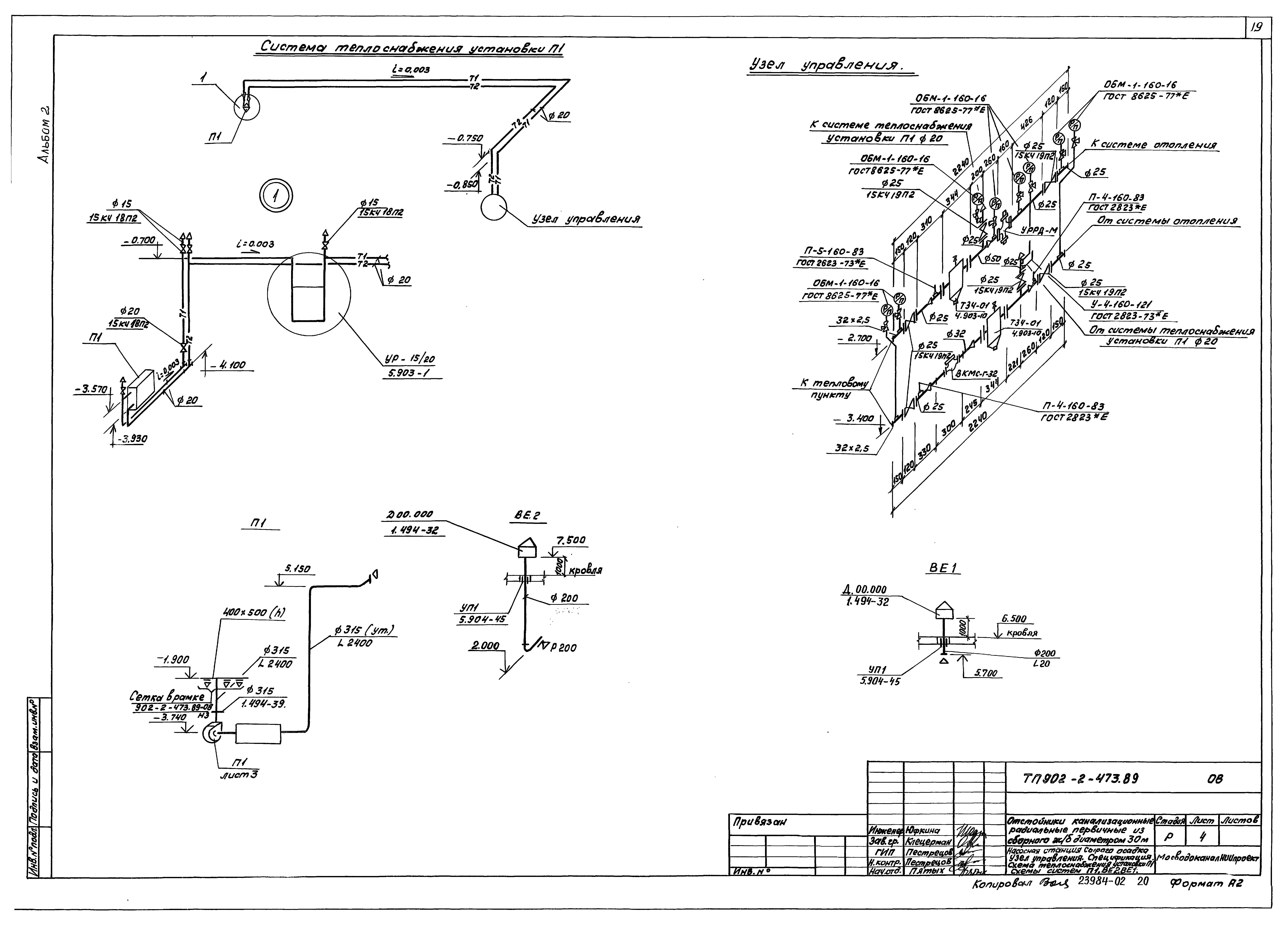
| Оглавление: | ТП 902-2-473.89 Содержание альбома ТП 902-2-473.89-ТХ Технологические решения ТП 902-2-473.89-ТХ-1 Общие данные ТП 902-2-473.89-ТХ-2 План группы отстойников М1:200 ТП 902-2-473.89-ТХ-3 Отстойник №1. План. Разрезы М1:100 ТП 902-2-473.89-ТХ-4 Насосная станция сырого осадка. Планы размещения оборудования ТП 902-2-473.89-ТХ-5 Насосная станция сырого осадка. Планы. Разрезы ТП 902-2-473.89-ТХ-6 Насосная станция сырого осадка. Технологическая схема ТП 902-2-473.89-ТХ-7 Распределительная чаша. Планы и разрезы М1:50 ТП 902-2-473.89-ТХ-8 Жиросборник. Планы и разрезы М1:50 ТП 902-2-473.89-ТХ-9 Профили подводящих трубопроводов М1:100 ТП 902-2-473.89-ТХ-10 Профили отводящих трубопроводов М1:100 ТП 902-2-473.89-ТХ-11 Профили всасывающих трубопроводов сырого осадка от отстойников №1 и №4 М1:100 ТП 902-2-473.89-ТХ-12 Профили всасывающих трубопроводов сырого осадка от отстойников №2 и №3 М1:100 ТП 902-2-473.89-ТХ-13 Профили жиропроводов, трубопровода промывных вод и трубопровода опорожнения ТП 902-2-473.89-ОВ Отопление и вентиляция ТП 902-2-473.89-ОВ-1 Насосная станция сырого осадка. Общие данные ТП 902-2-473.89-ОВ-2 Насосная станция. Отопление и вентиляция. Планы на отм. -4.200 и 0.000. Схема системы отопления ТП 902-2-473.89-ОВ-3 Насосная станция. Венткамера. План. Разрез 1-1. Спецификация отопительно-вентиляционной установки ТП 902-2-473.89-ОВ-4 Насосная станция. Узел управления. Спецификация. Схема системы теплоснабжения установки П1. Схемы системы П1,ВЕ2,ВЕ1 ТП 902-2-473.89-ОВН1 Переходы утепленные ТП 902-2-473.89-ОВН2 Переход неутепленный ТП 902-2-473.89-ОВН3 Сетка в рамке ТП 902-2-473.89-ВК Внутренние водопровод и канализация ТП 902-2-473.89-ВК-2 Общие данные ТП 902-2-473.89-ВК-3 Насосная станция сырого осадка. Внутренний водопровод и канализация. Планы и схемы системы |
| Разработан: | МосводоканалНИИпроект |
| Утверждён: | 18.08.1989 Мосгорисполком (Mosgorispolkom 1583) |























