Скачать Типовой проект 902-2-473.89 Альбом 3. Отстойники. Конструкции железобетонные. Конструкции металлическиеДата актуализации: 01.01.2021
|
| Обозначение: | Типовой проект 902-2-473.89 |
| Обозначение англ: | 902-2-473.89 |
| Статус: | не определен законодательством |
| Название рус.: | Альбом 3. Отстойники. Конструкции железобетонные. Конструкции металлические |
| Дата добавления в базу: | 01.09.2013 |
| Дата актуализации: | 01.01.2021 |
| Дата введения: | 06.09.1989 |
| Дата окончания срока действия: | 30.06.2003 |
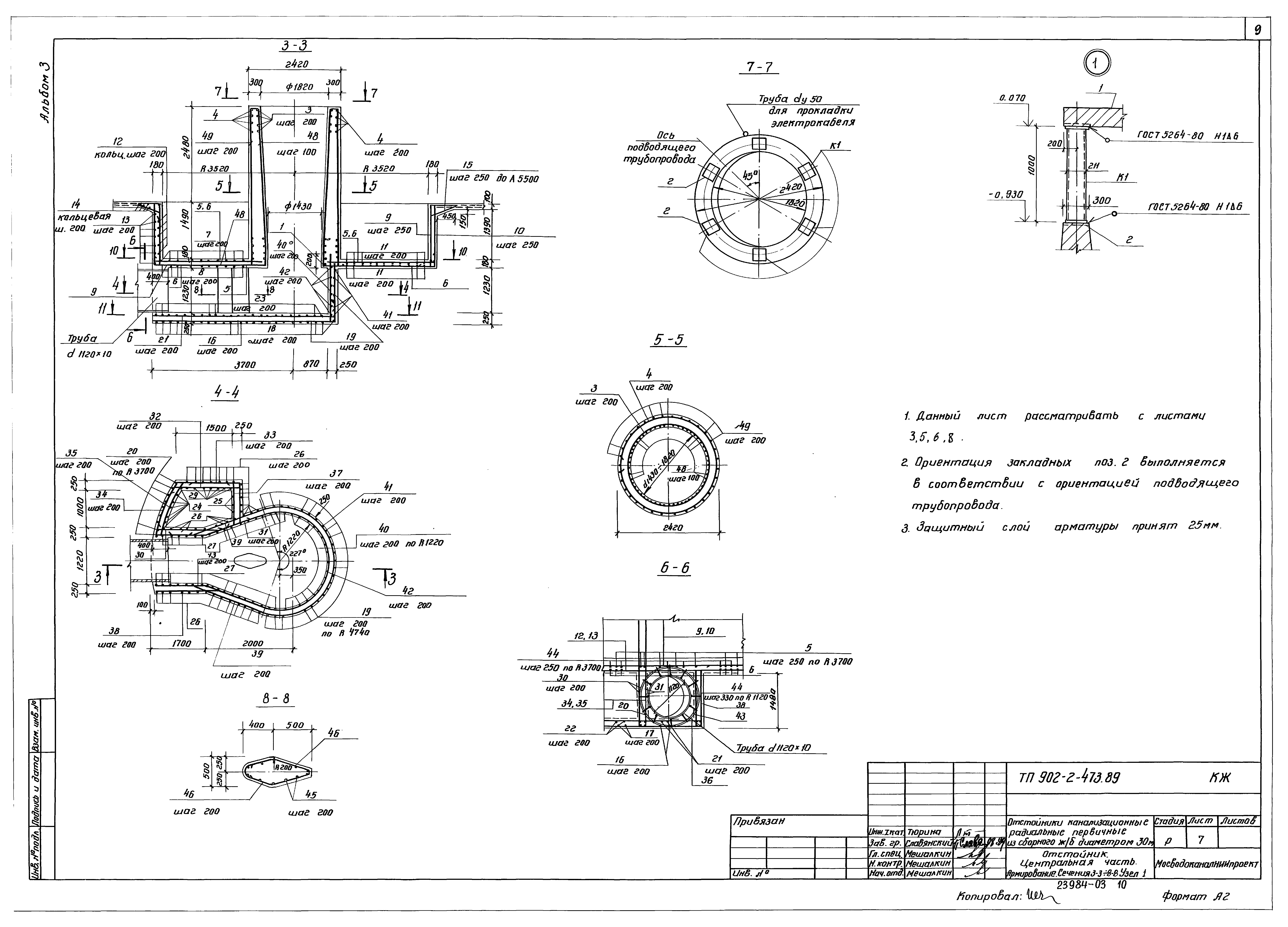
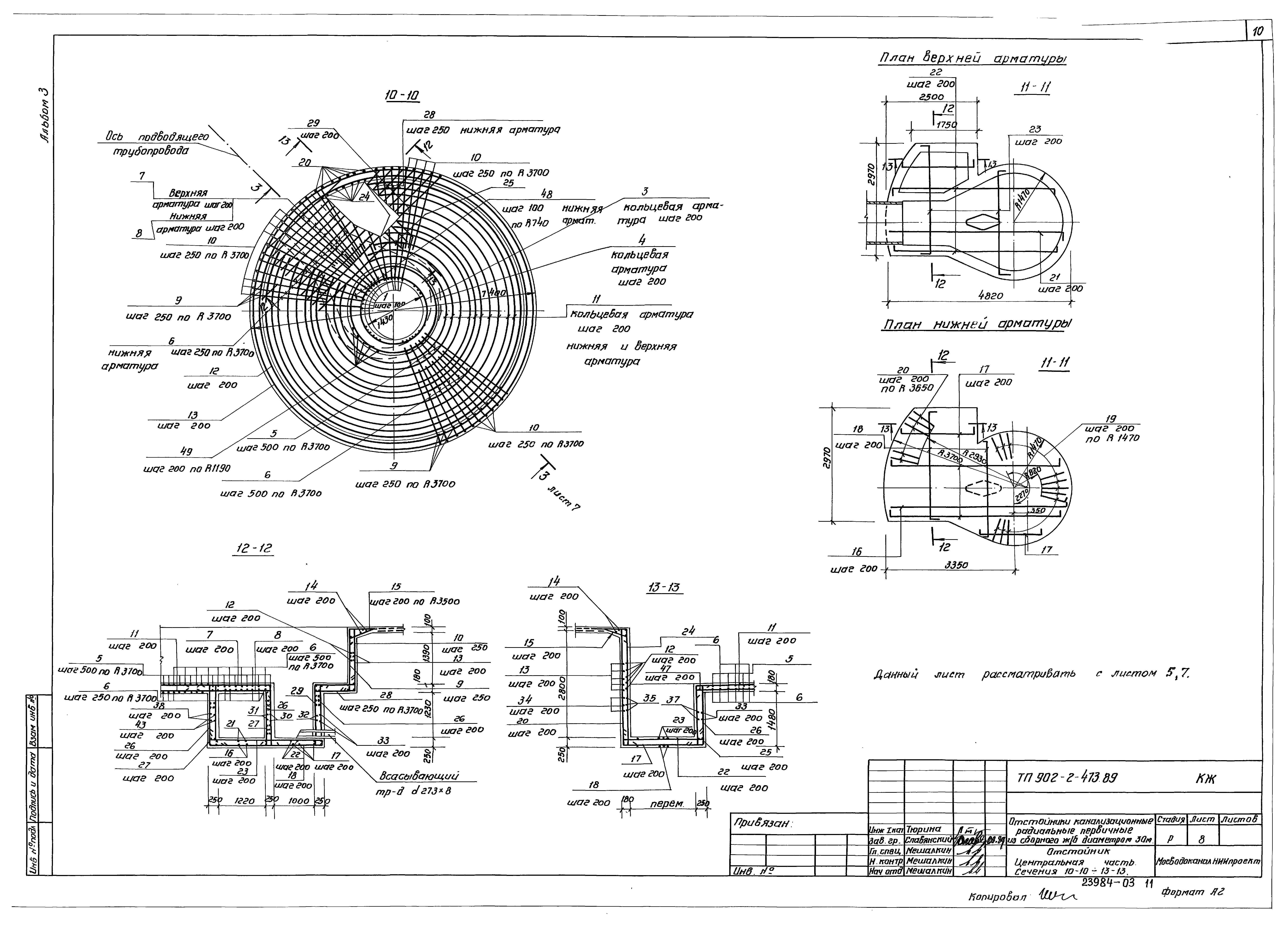
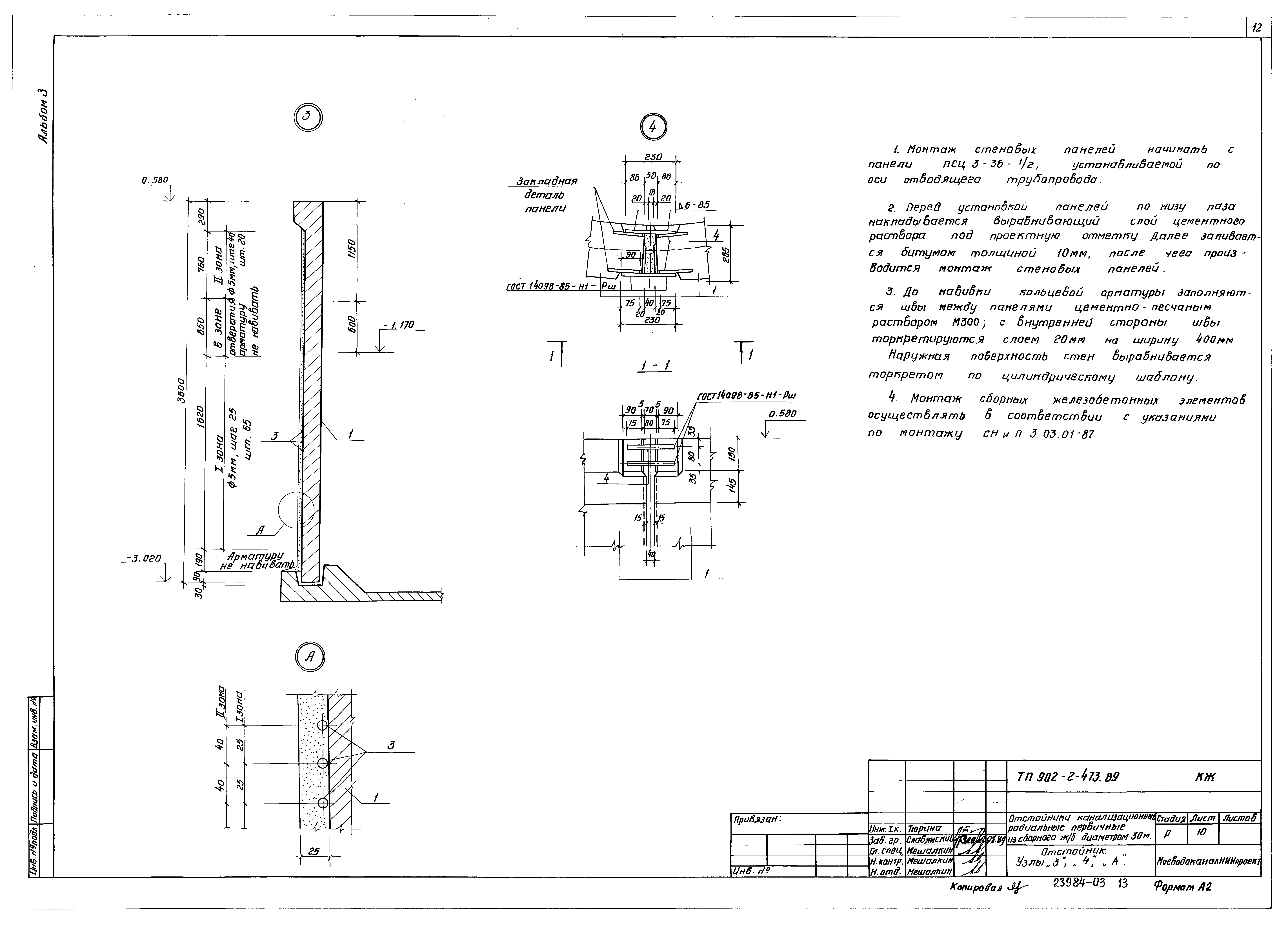
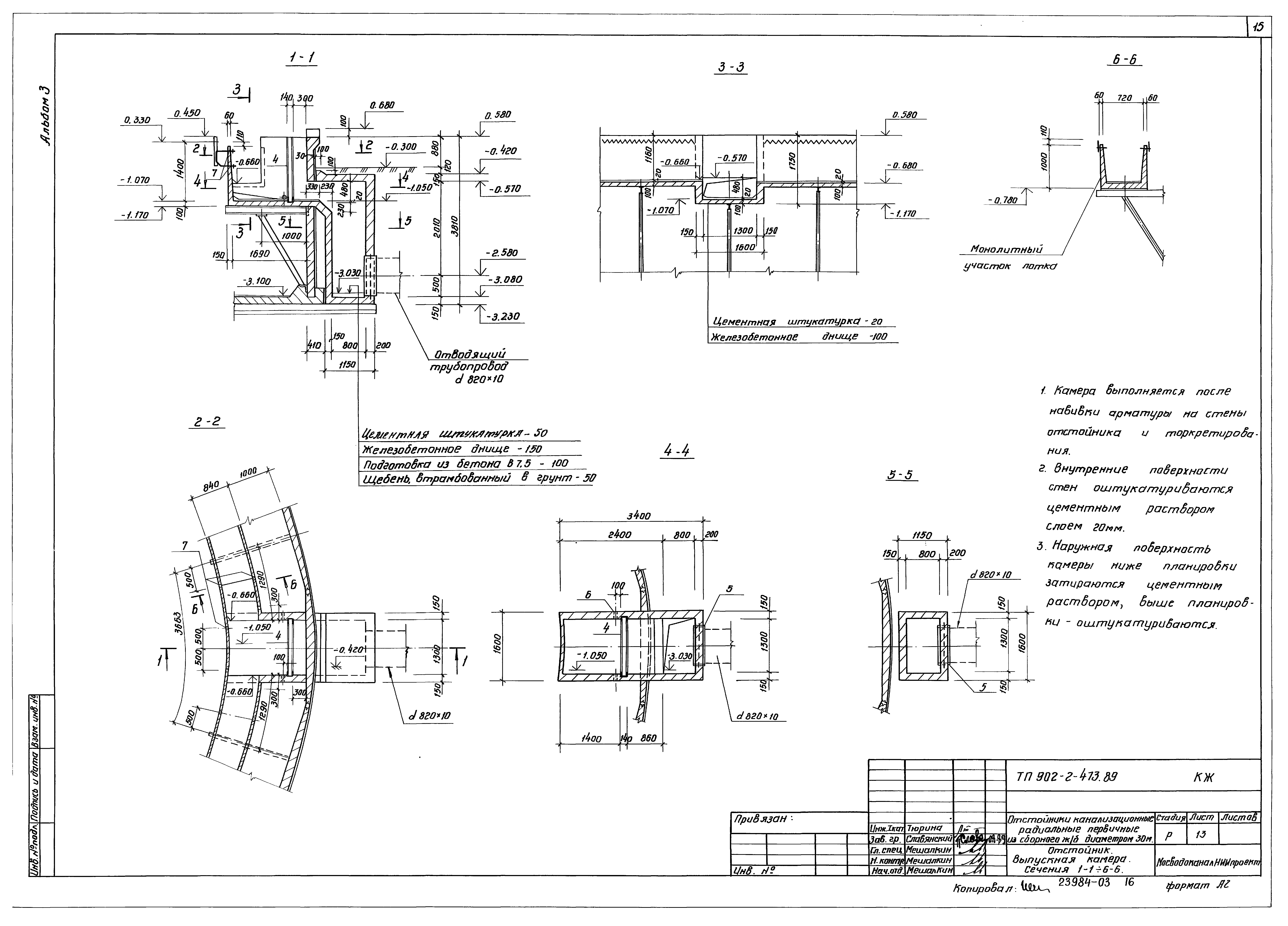
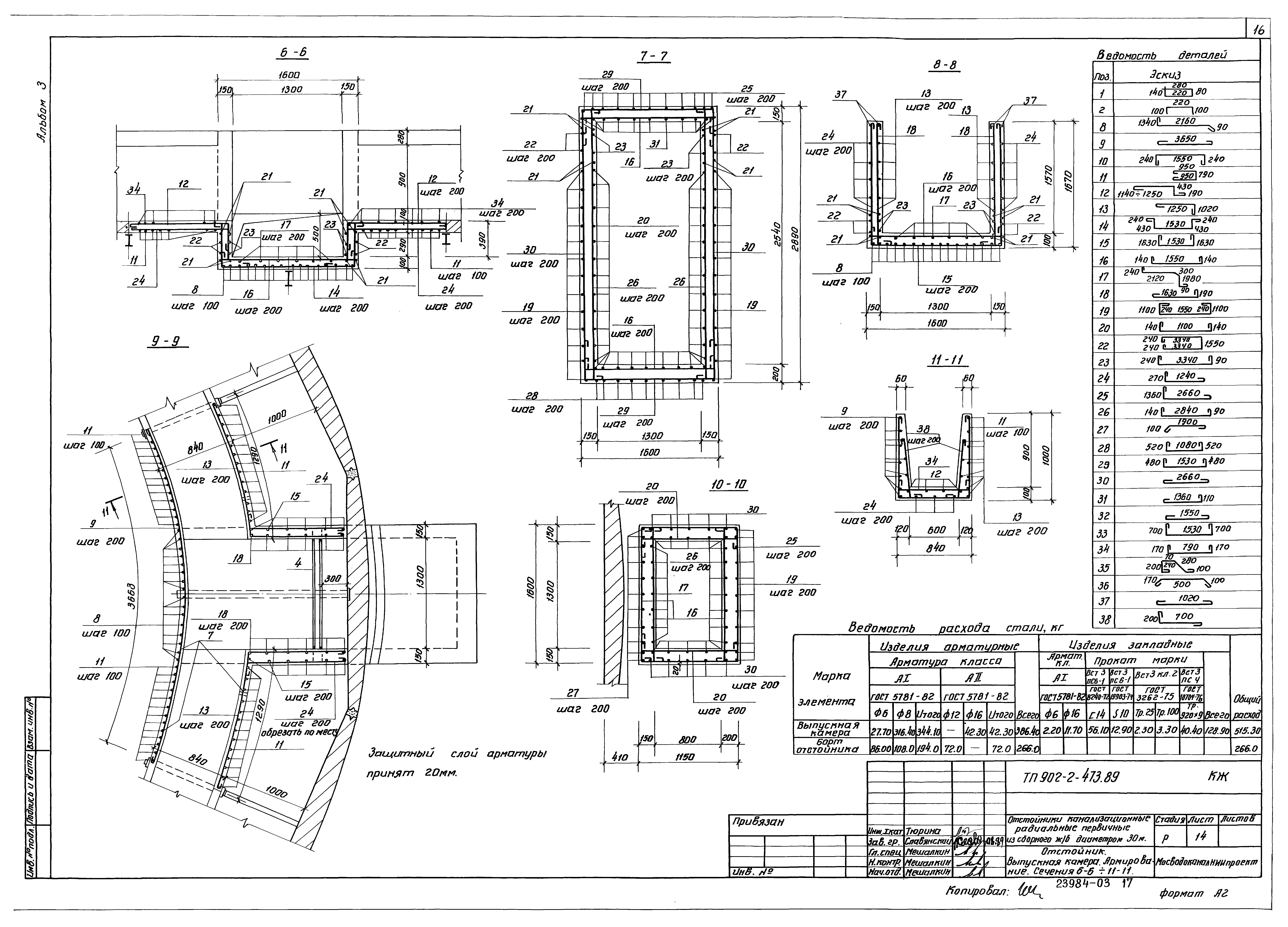
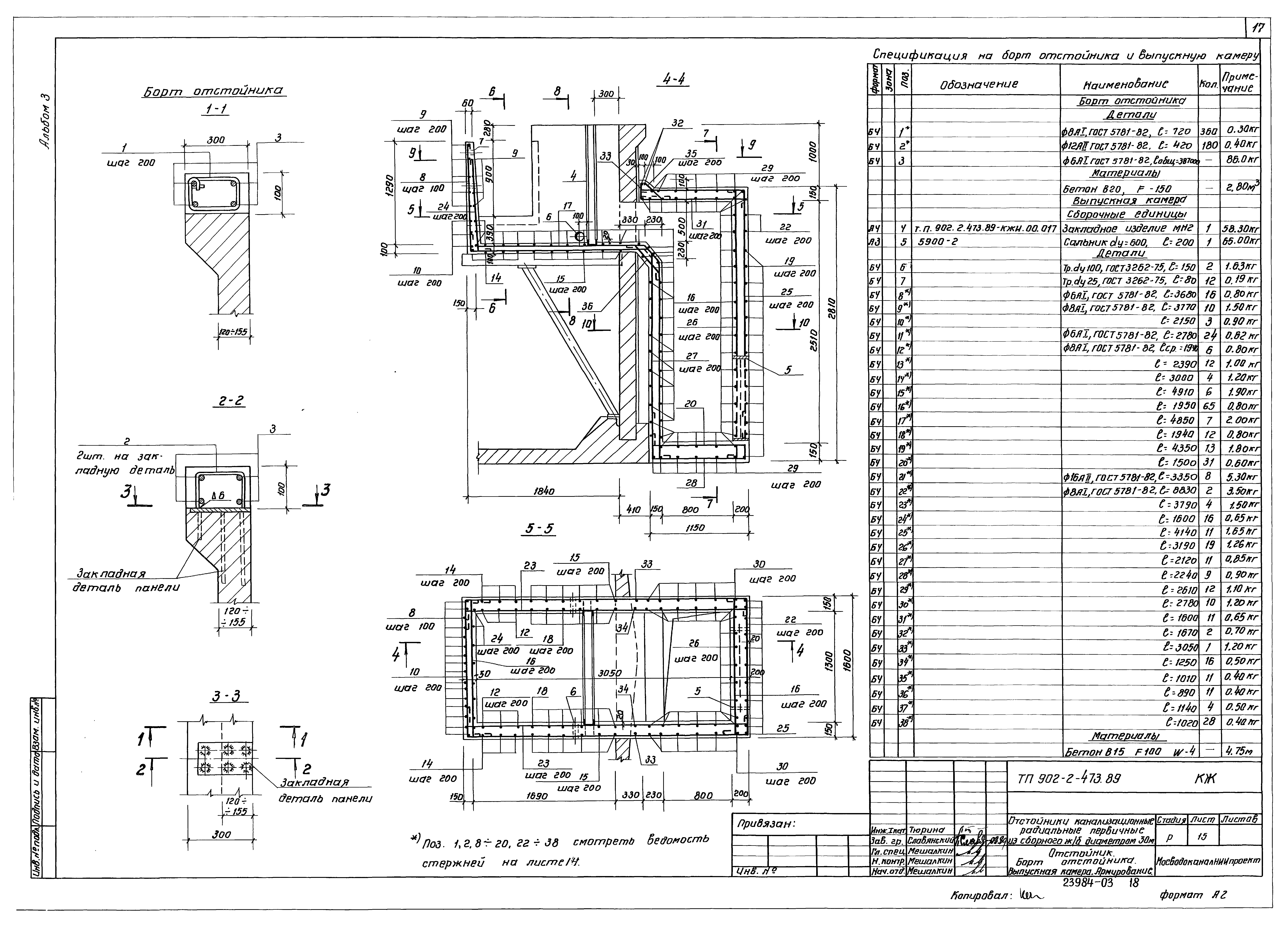
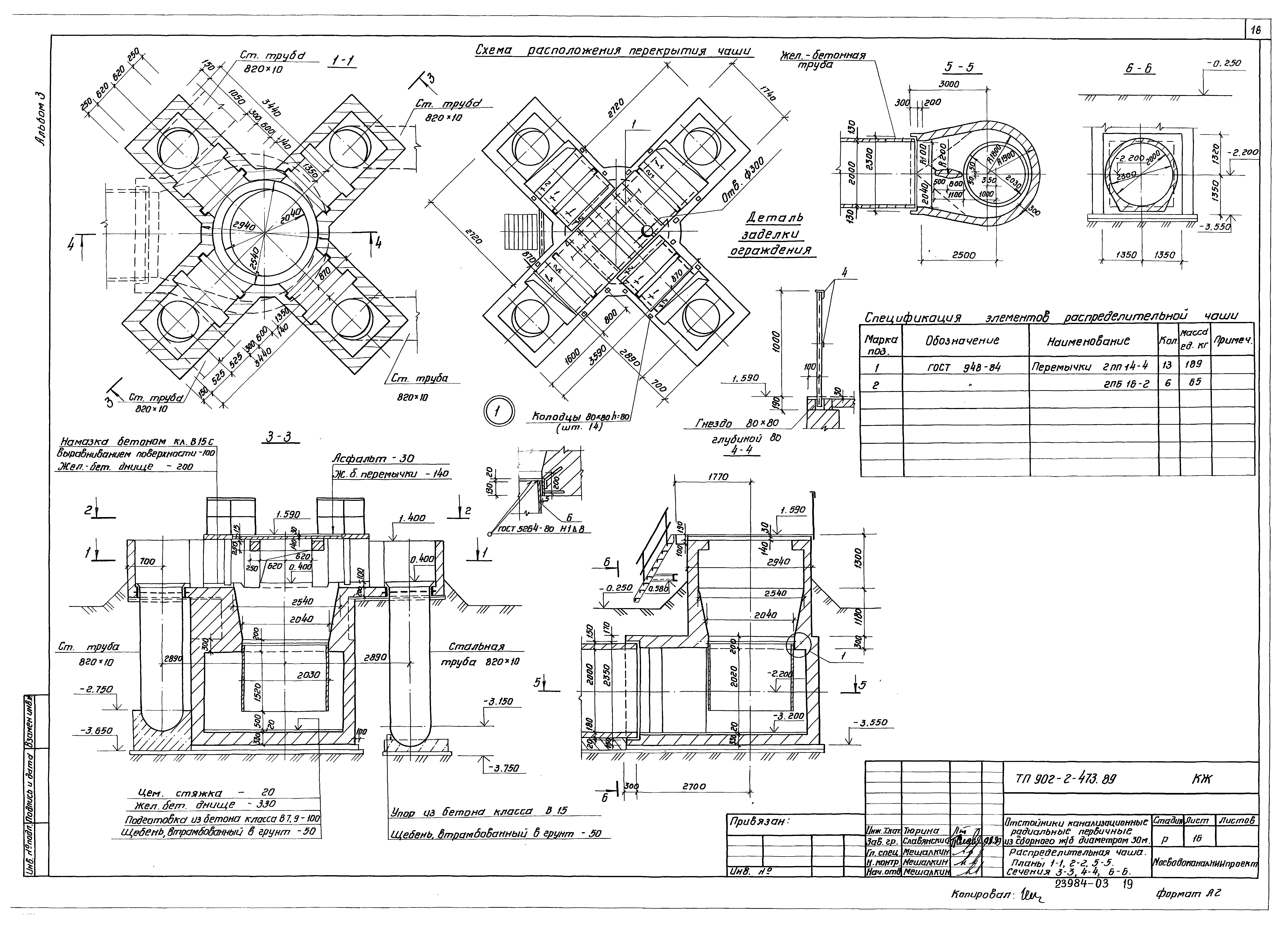
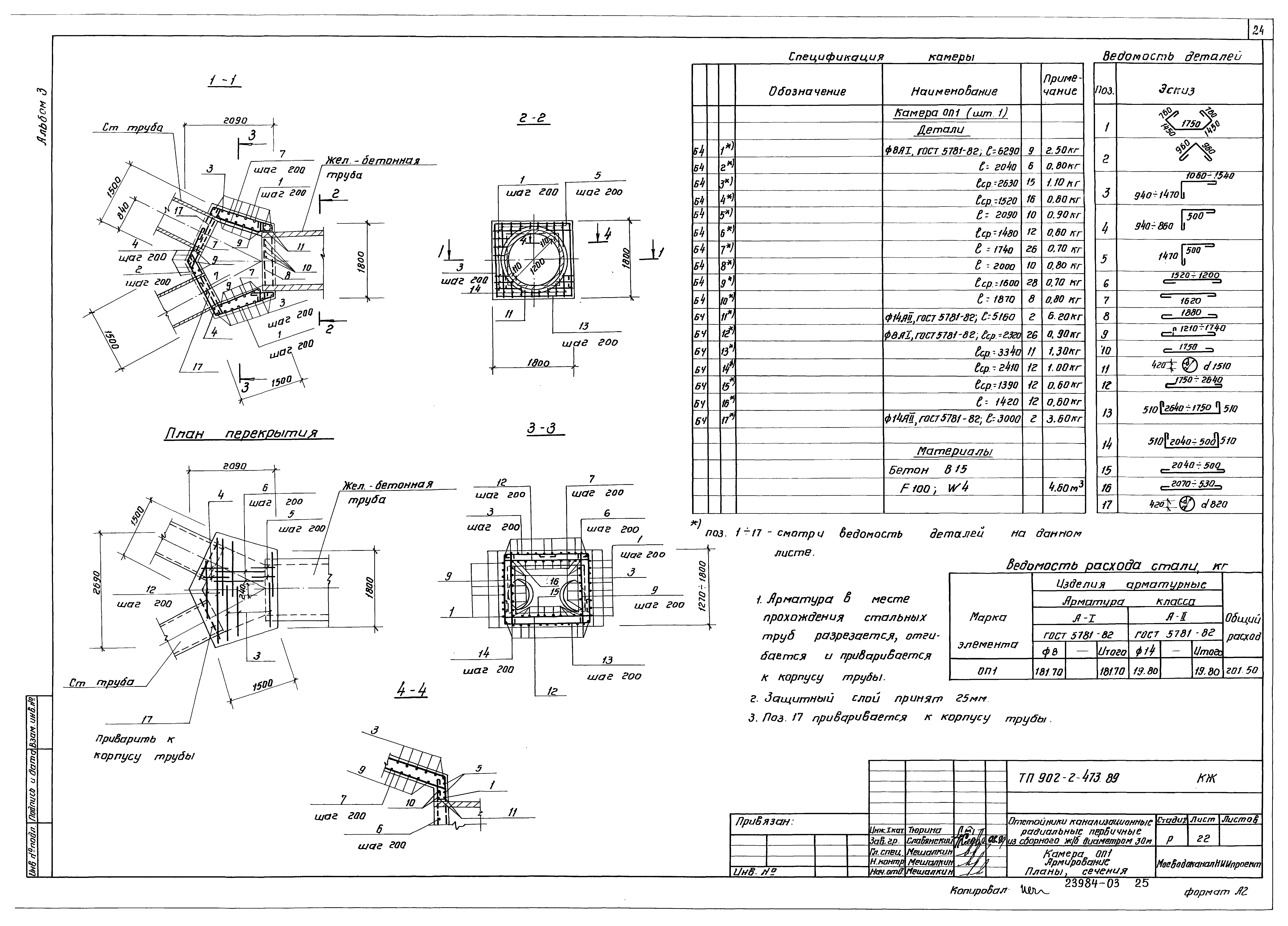
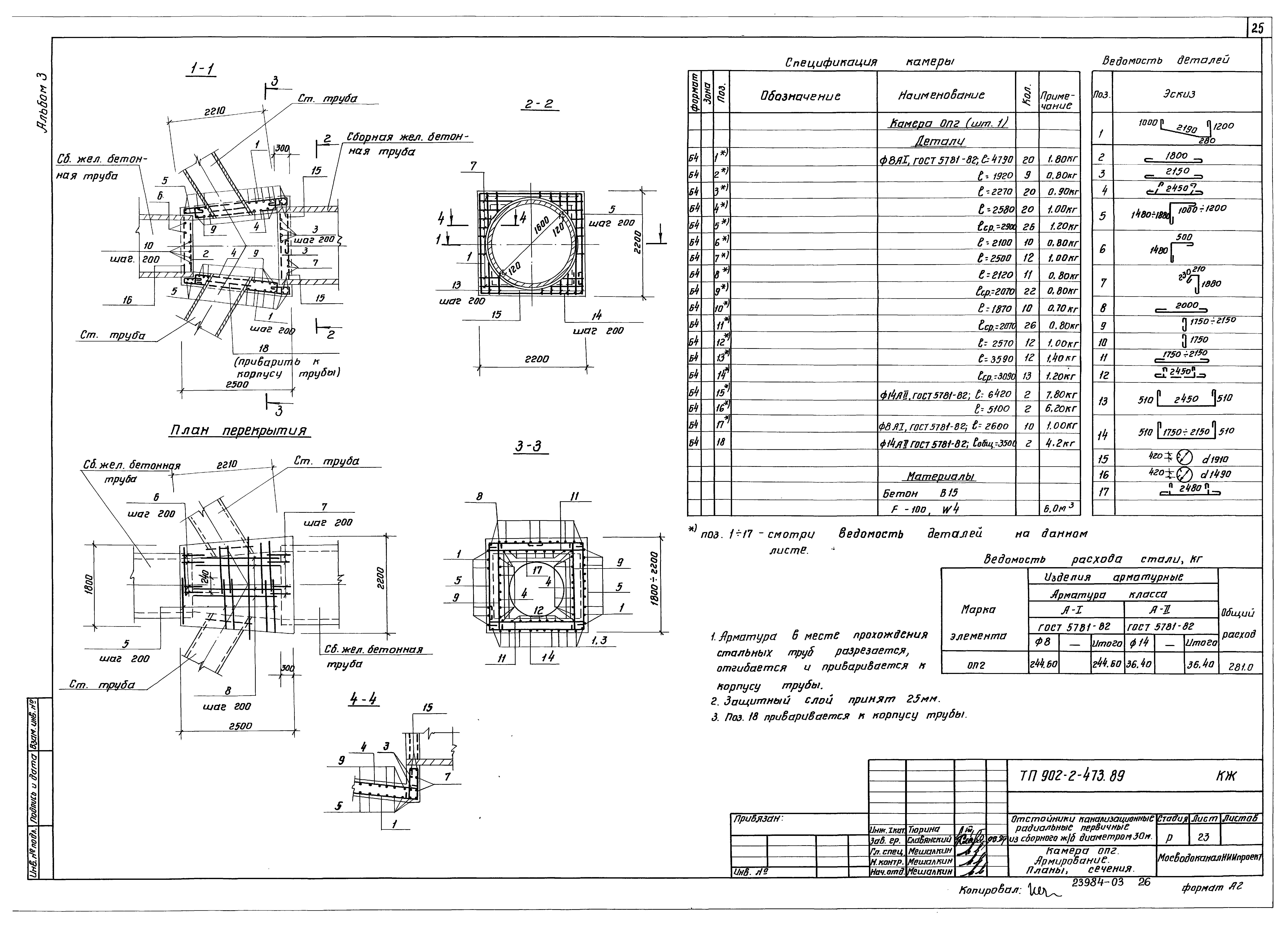
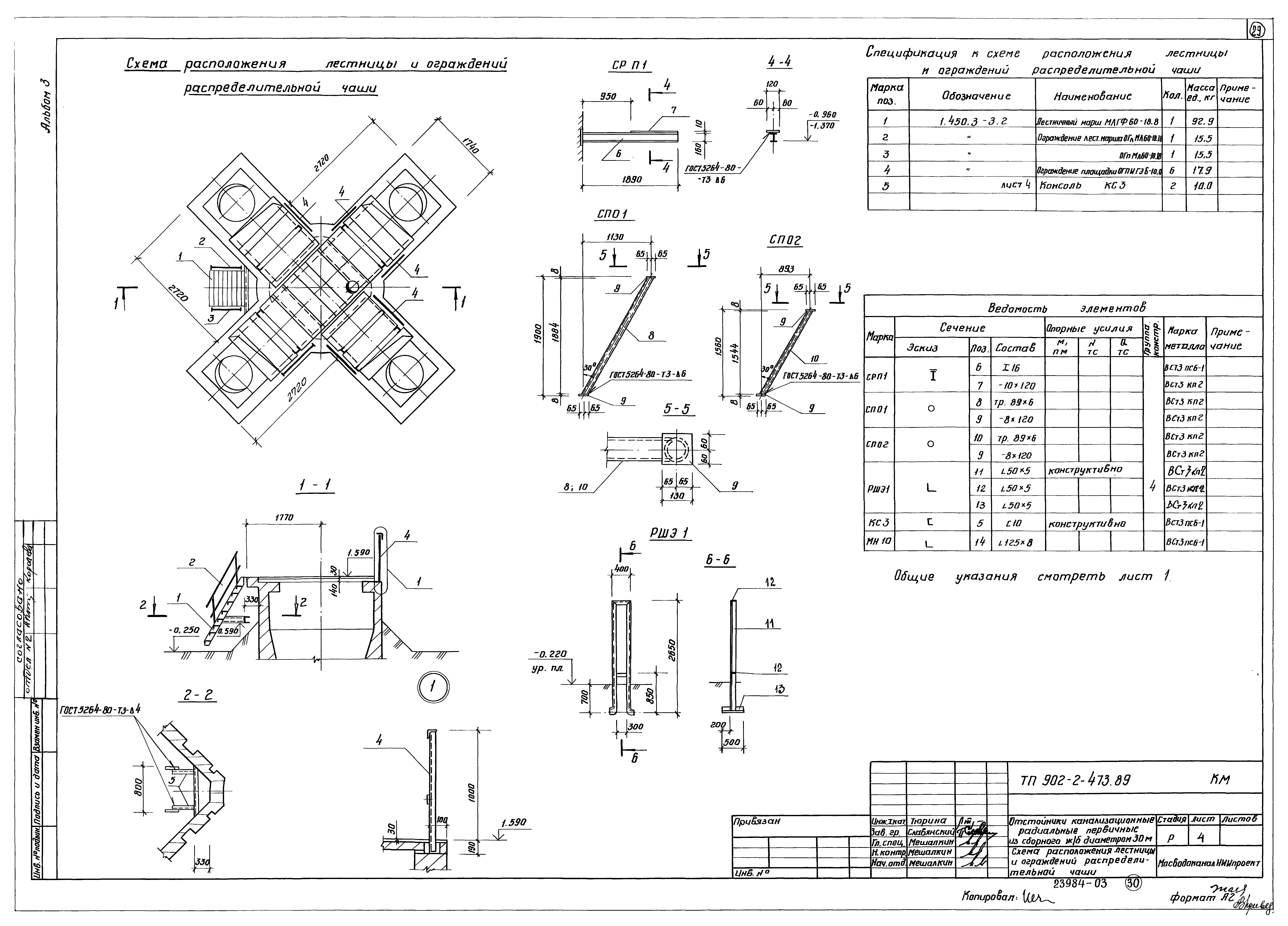
| Оглавление: | ТП 902-2-473.89 Титульный лист ТП 902-2-473.89 Содержание альбома ТП 902-2-473.89-КЖ Конструкции железобетонные КЖ ТП 902-2-473.89-КЖ-1 Общие данные ТП 902-2-473.89-КЖ-2 План группы отстойников и коммуникации ТП 902-2-473.89-КЖ-3 Отстойник. План 1-1. Сечения 2-2;3-3 ТП 902-2-473.89-КЖ-4 Отстойник. Центральная часть. Сечения 4-4÷8-8. Узел 1 ТП 902-2-473.89-КЖ-5 Отстойник. Спецификация центральной части и днища. Ведомости ТП 902-2-473.89-КЖ-6 Отстойник. Днище. Армирование. Планы. Сечения 1-1,2-2. Узел 1 ТП 902-2-473.89-КЖ-7 Отстойник. Центральная часть. Армирование. Сечения 3-3÷8-8. Узел 1 ТП 902-2-473.89-КЖ-8 Отстойник. Центральная часть. Сечения 10-10÷13-13 ТП 902-2-473.89-КЖ-9 Отстойник. Схема расположения стеновых панелей. Узлы 1;2. Сечения 1-1;2-2 ТП 902-2-473.89-КЖ-10 Отстойник. Узлы 3,4,А ТП 902-2-473.89-КЖ-11 Отстойник. Схема расположения лотков ТП 902-2-473.89-КЖ-12 Отстойник. Сечения 1-1;5-5. Узел 1 ТП 902-2-473.89-КЖ-13 Отстойник. Выпускная камера. Сечения 1-1,6-6 ТП 902-2-473.89-КЖ-14 Отстойник. Выпускная камера. Армирование. Сечения 6-6÷11-11 ТП 902-2-473.89-КЖ-15 Отстойник. Борт отстойника. Выпускная камера. Армирование ТП 902-2-473.89-КЖ-16 Распределительная чаша. Планы 1-1,2-2,5-5. Сечения 3-3,4-4,6-6 ТП 902-2-473.89-КЖ-17 Распределительная чаша. Армирование. Сечения 1-1,4-4 ТП 902-2-473.89-КЖ-18 Распределительная чаша. Армирование. Сечения 5-5÷11-11 ТП 902-2-473.89-КЖ-19 Жиросборник Ж1,Ж2. Планы. Сечения ТП 902-2-473.89-КЖ-20 Жиросборник Ж1,Ж2. Армирование. Планы. Сечения ТП 902-2-473.89-КЖ-21 Камеры ОП1 и ОП2. Планы. Сечения ТП 902-2-473.89-КЖ-22 Камеры ОП1. Армирование. Планы. Сечения ТП 902-2-473.89-КЖ-23 Камеры ОП2. Армирование. Планы. Сечения ТП 902-2-473.89-КМ Конструкции металлические КМ ТП 902-2-473.89-КМ-1 Общие данные (начало) ТП 902-2-473.89-КМ-2 Общие данные (окончание) ТП 902-2-473.89-КМ-3 Схема расположения ригелей отстойника ТП 902-2-473.89-КМ-4 Схема расположения ригелей лестницы и ограждений распределительной чаши |
| Разработан: | МосводоканалНИИпроект |
| Утверждён: | 18.08.1989 Мосгорисполком (Mosgorispolkom 1583) |





























