Скачать Типовой проект 902-2-475.89 Альбом 3. Конструкции железобетонные. Конструкции металлическиеДата актуализации: 01.01.2021
|
| Обозначение: | Типовой проект 902-2-475.89 |
| Обозначение англ: | 902-2-475.89 |
| Статус: | не определен законодательством |
| Название рус.: | Альбом 3. Конструкции железобетонные. Конструкции металлические |
| Дата добавления в базу: | 01.09.2013 |
| Дата актуализации: | 01.01.2021 |
| Дата введения: | 16.10.1989 |
| Дата окончания срока действия: | 30.06.2003 |
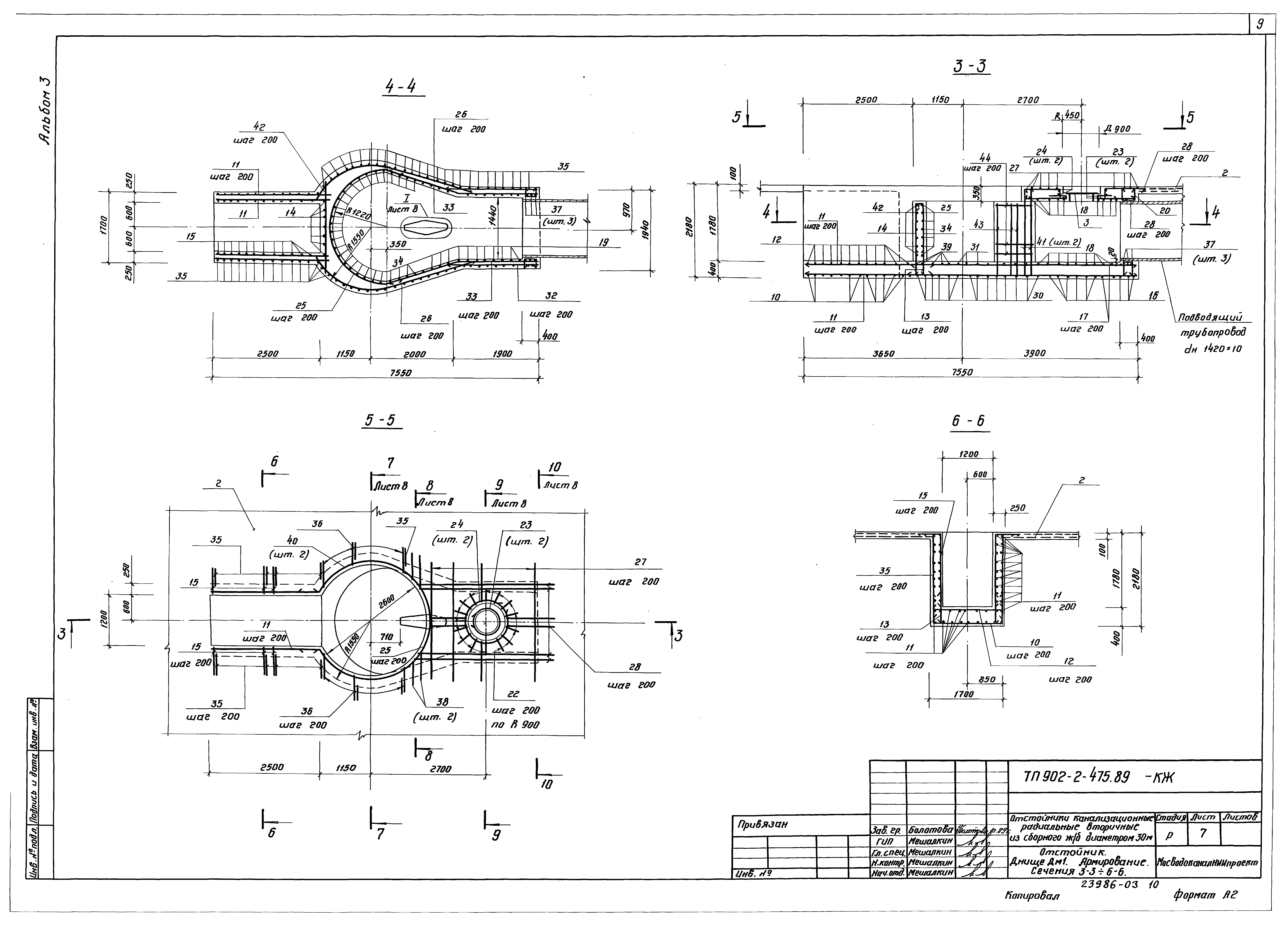
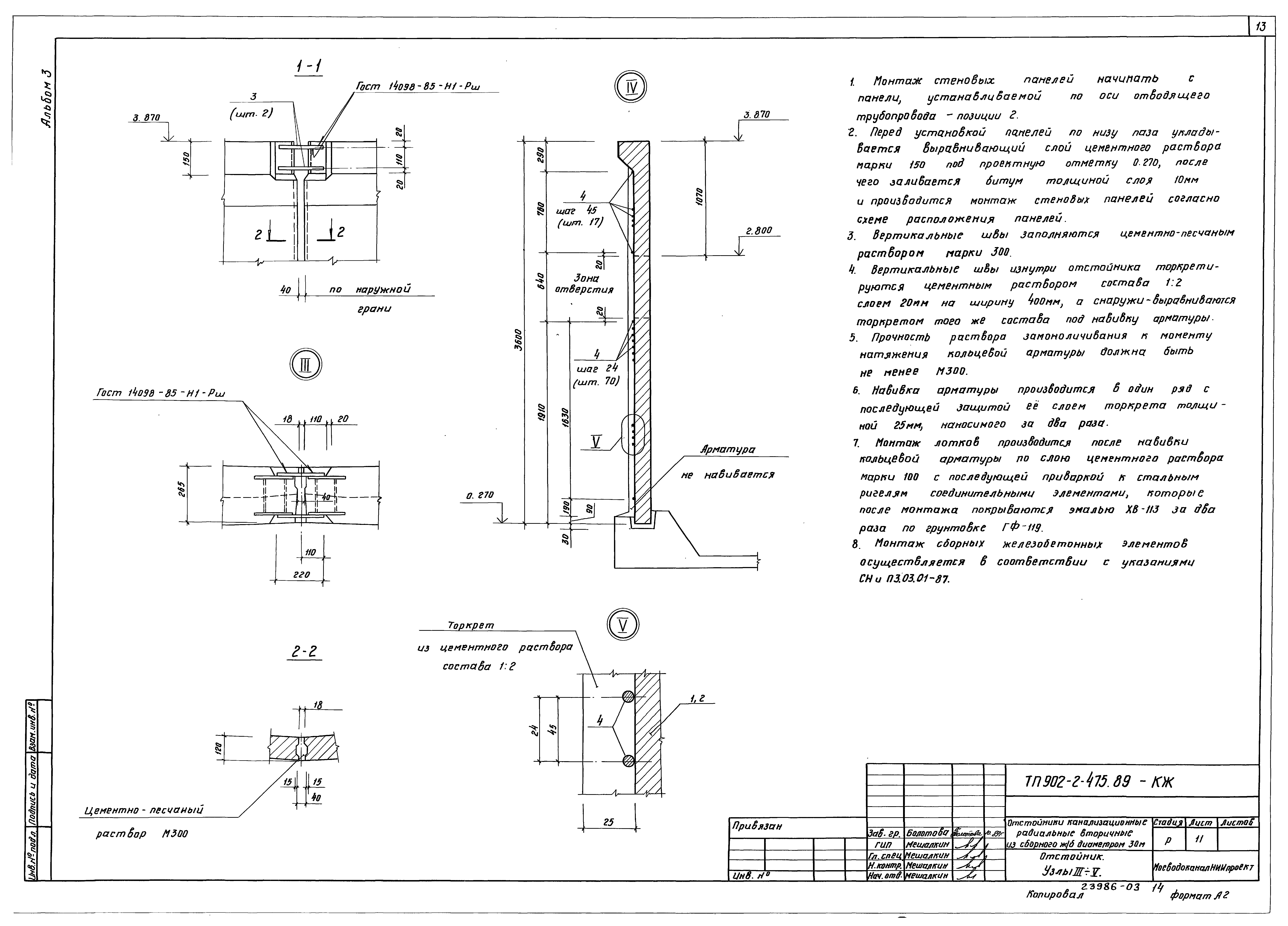
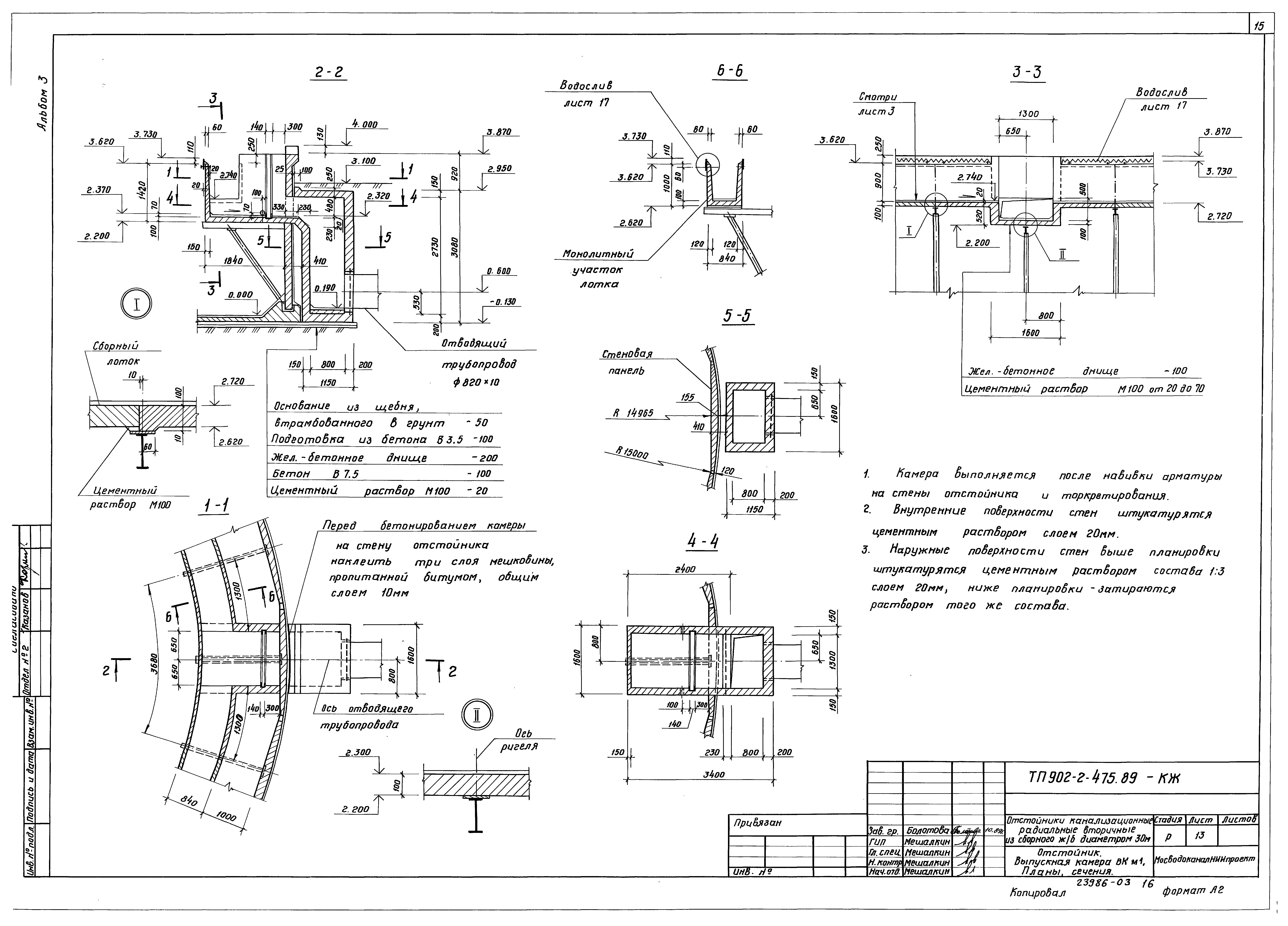
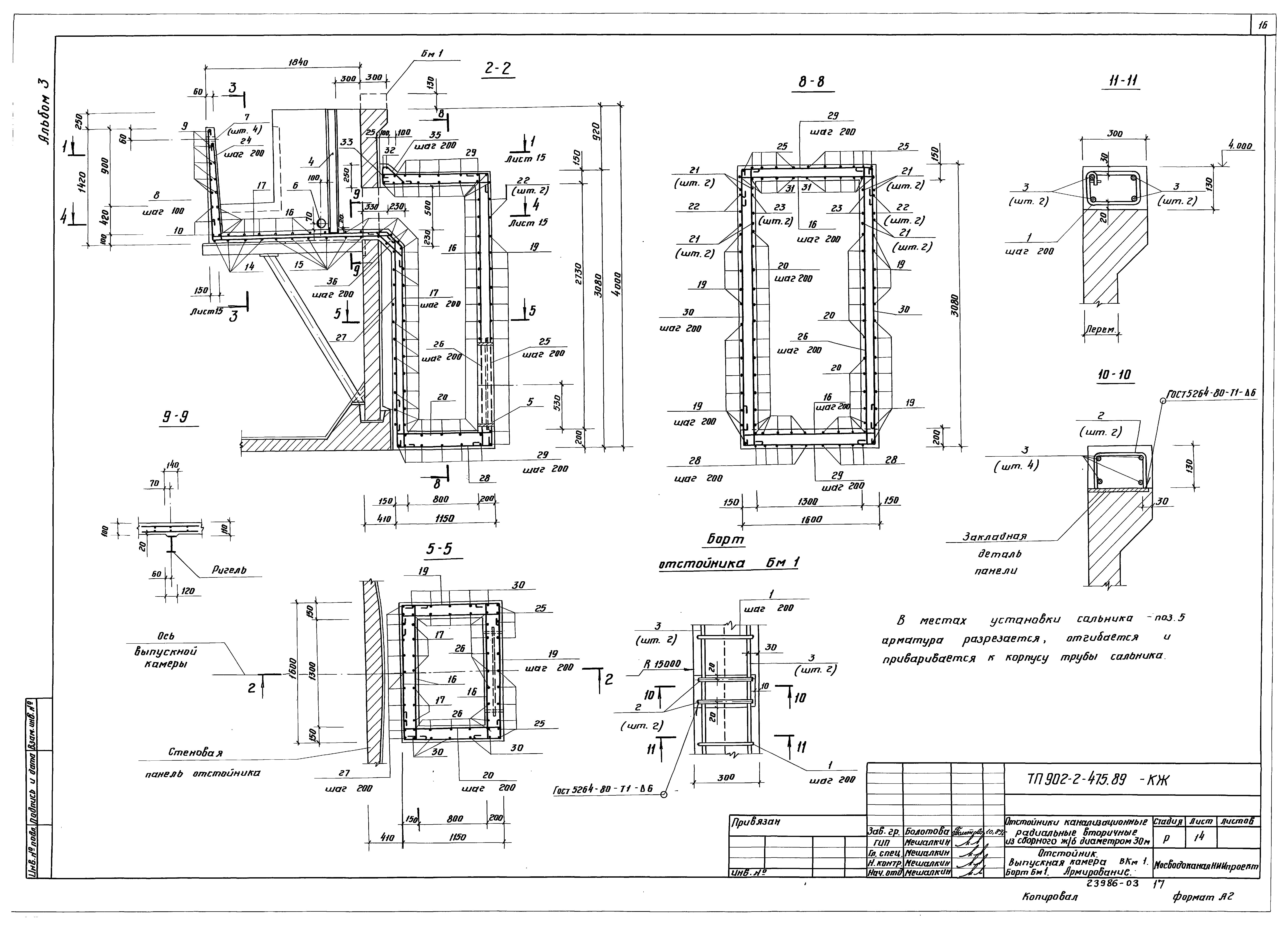
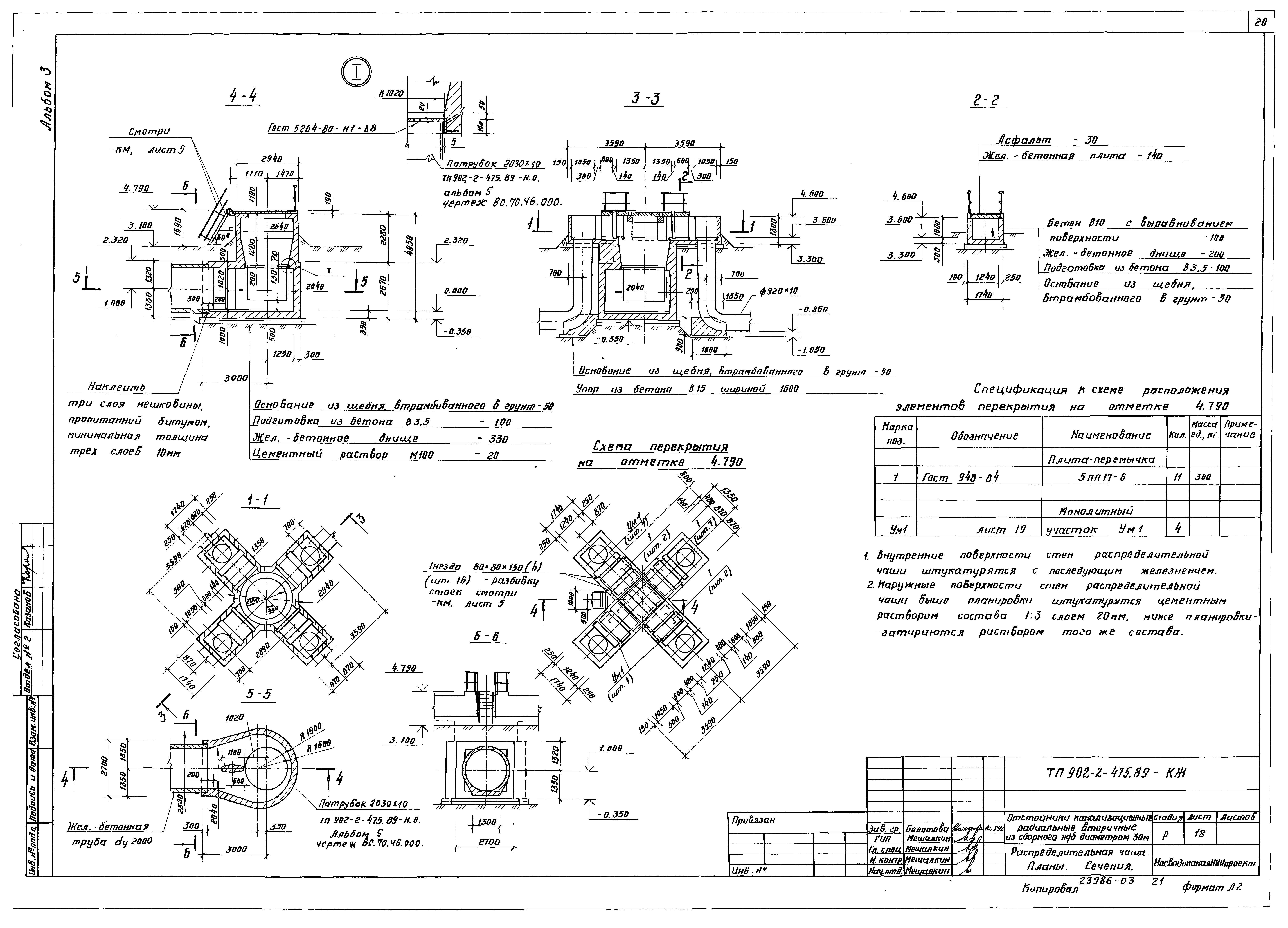
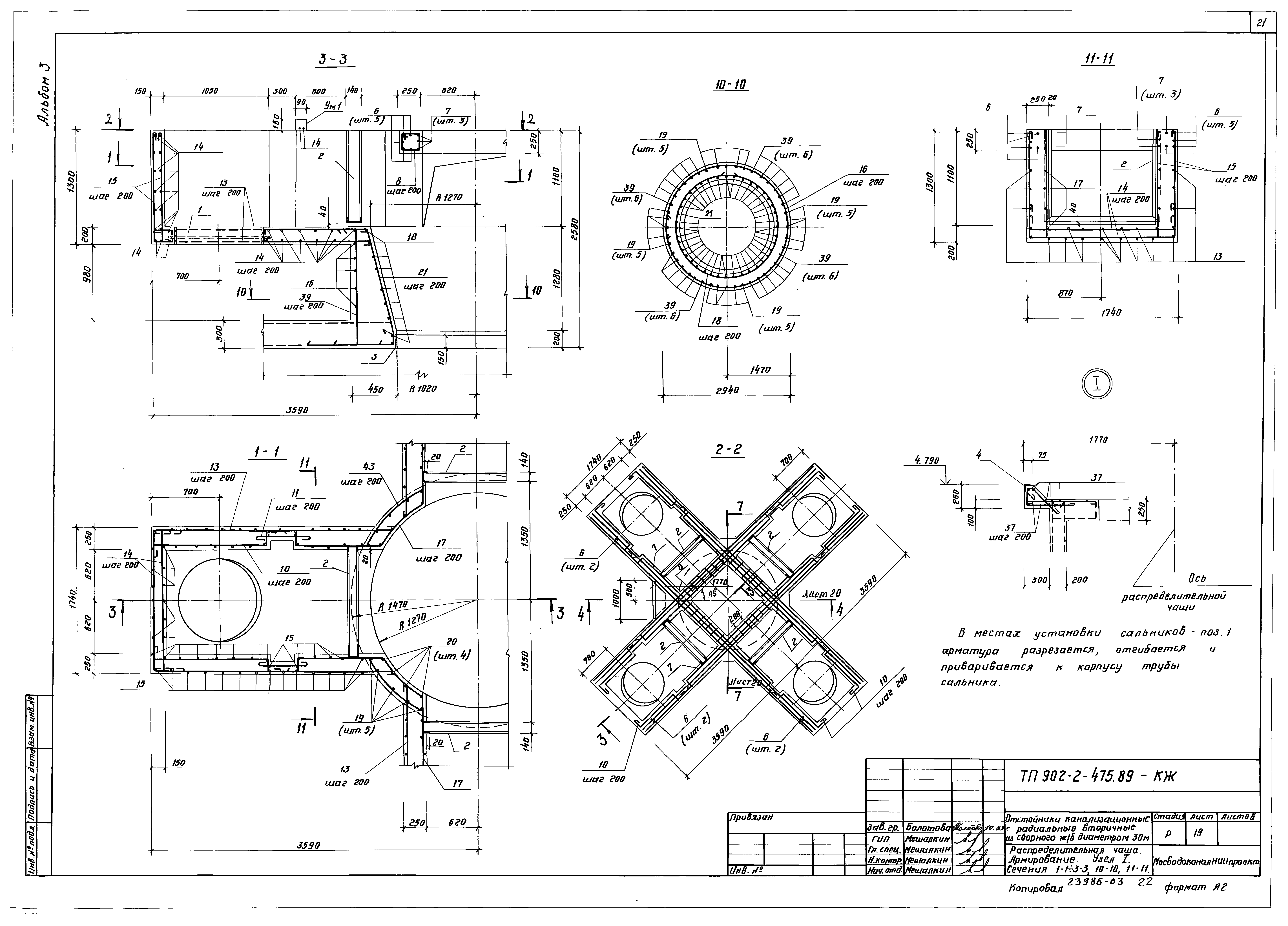
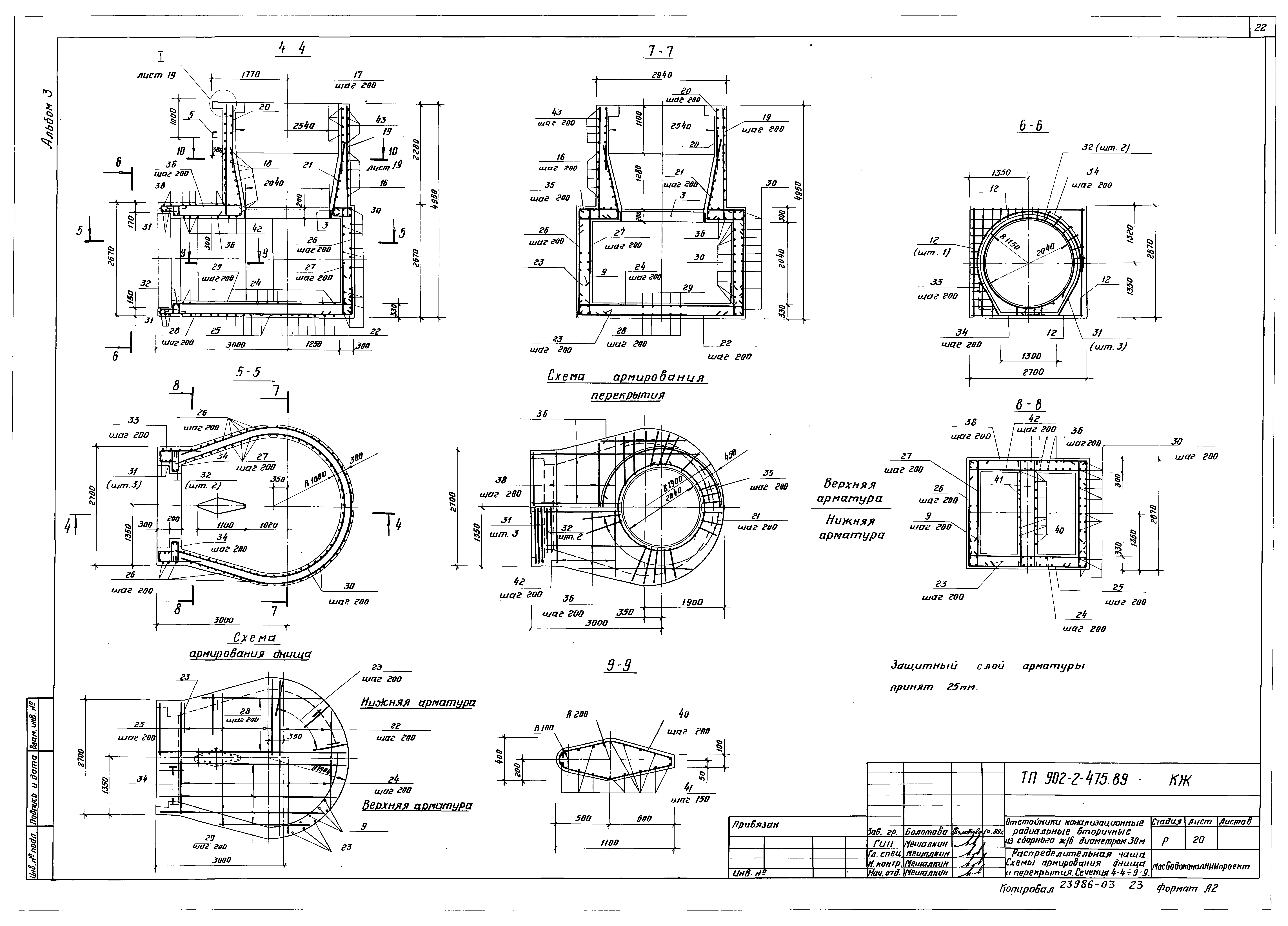
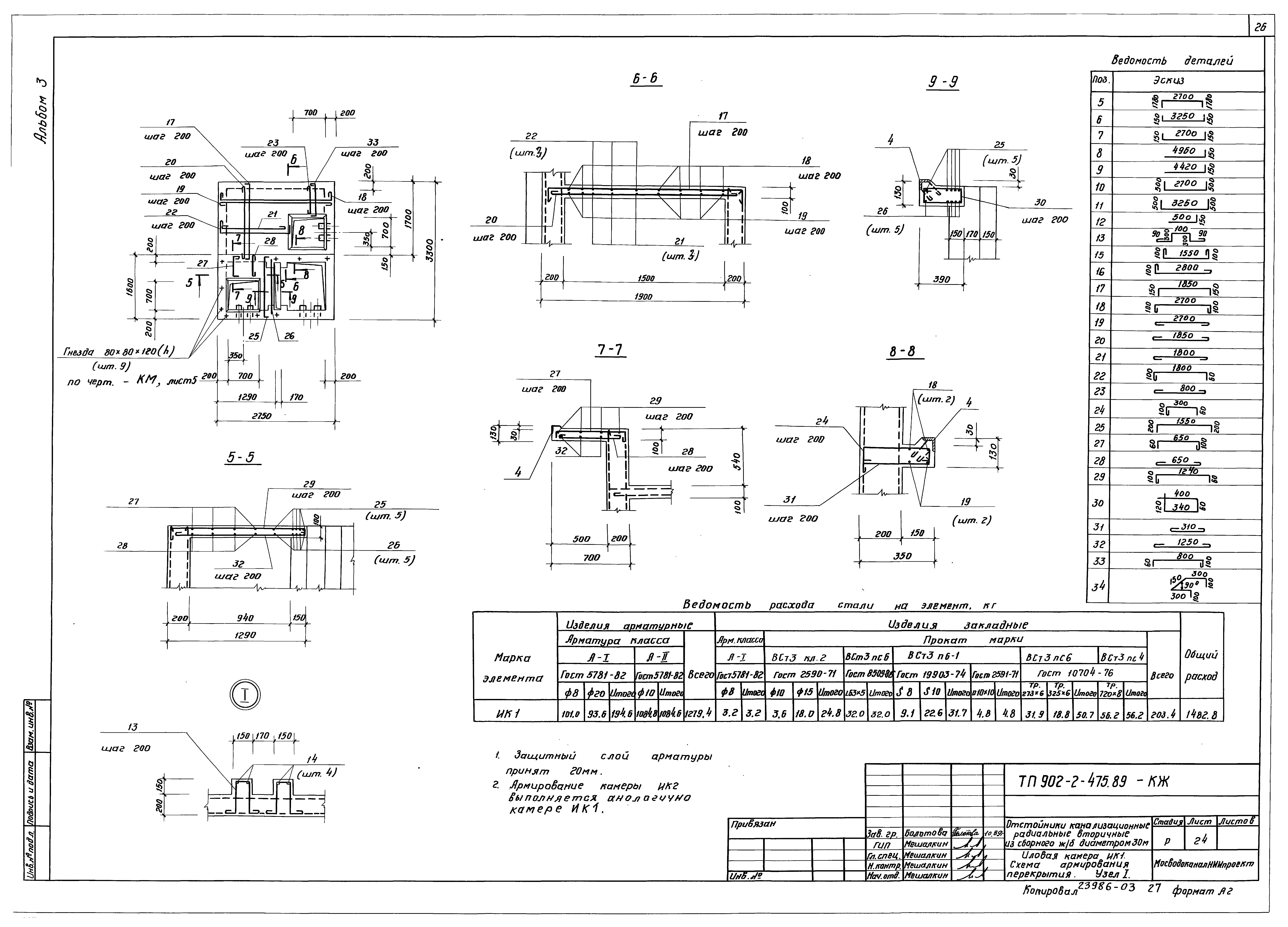
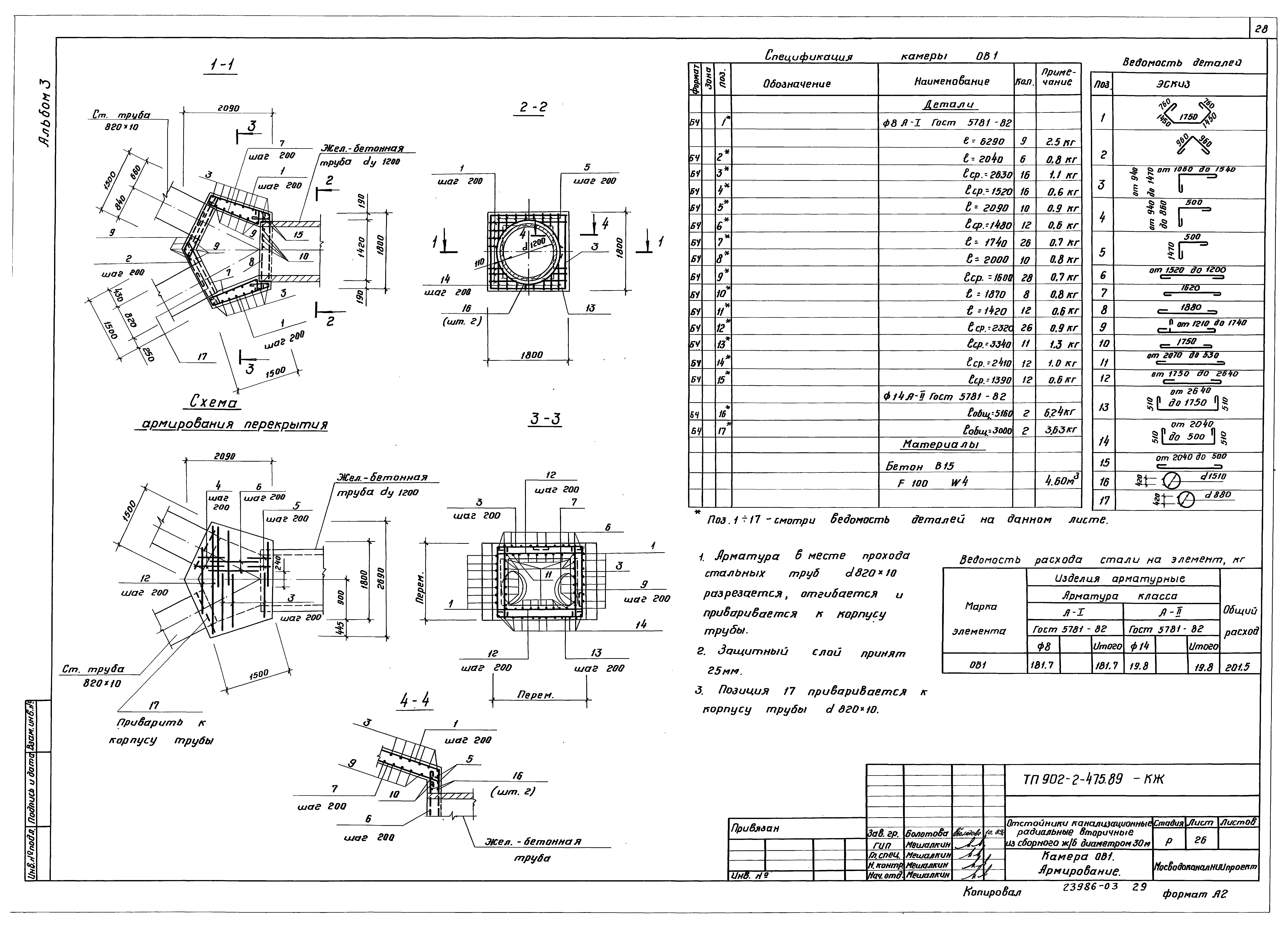
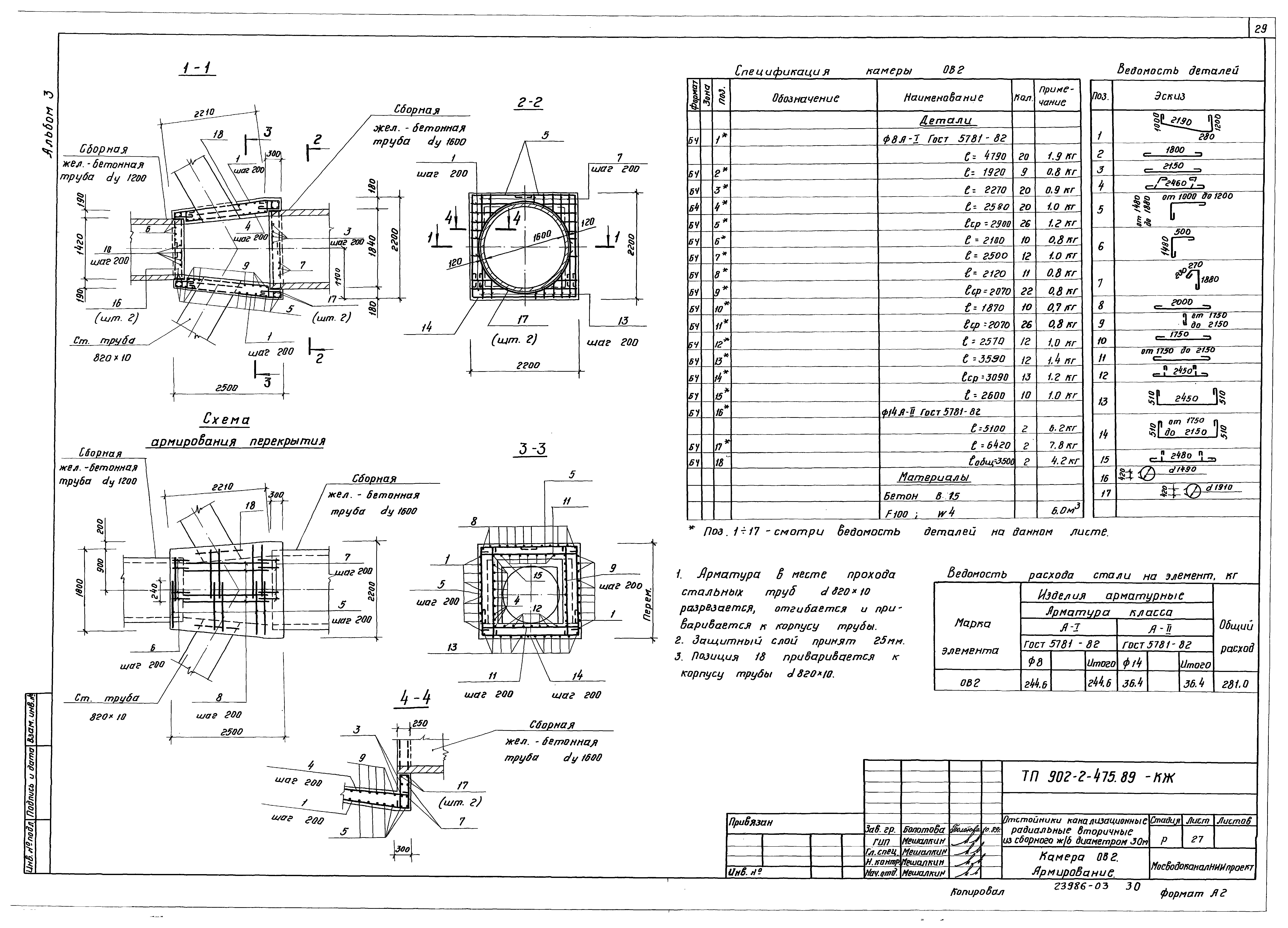
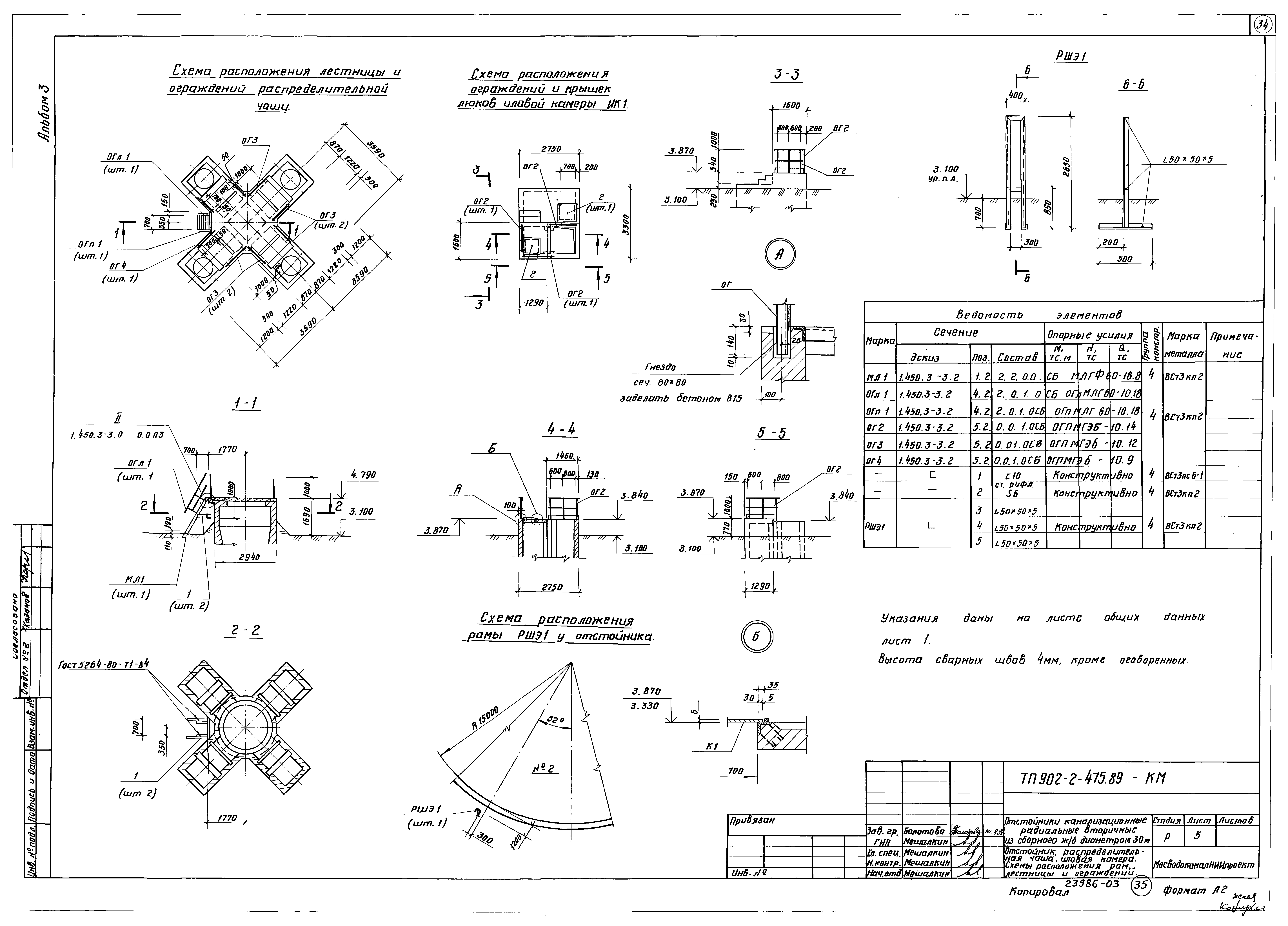
| Оглавление: | ТП 902-2-475.89 Титульный лист ТП 902-2-475.89 Содержание альбома ТП 902-2-475.89-КЖ Конструкции железобетонные КЖ ТП 902-2-475.89-КЖ-1 Общие данные ТП 902-2-475.89-КЖ-2 Схема группы отстойников ТП 902-2-475.89-КЖ-3 Отстойник. План. Сечение ТП 902-2-475.89-КЖ-4 Отстойник. Сечения 3-3÷5-5 ТП 902-2-475.89-КЖ-5 Отстойник. Сечения 6-6÷12-12 ТП 902-2-475.89-КЖ-6 Отстойник. Днище Дм1. Опалубка и армирование ТП 902-2-475.89-КЖ-7 Отстойник. Днище Дм1. Армирование. Сечения 3-3÷6-6 ТП 902-2-475.89-КЖ-8 Отстойник. Днище Дм1. Армирование. Сечения 7-7÷10-10. Узел 1 ТП 902-2-475.89-КЖ-9 Отстойник. Днище Дм1. Армирование. Спецификации ТП 902-2-475.89-КЖ-10 Отстойник. Схема расположения стеновых панелей ТП 902-2-475.89-КЖ-11 Отстойник. Узлы 3-5 ТП 902-2-475.89-КЖ-12 Отстойник. Схема расположения лотков и борта отстойника БМ1 ТП 902-2-475.89-КЖ-13 Отстойник. Выпускная камера ВКМ1. Планы. Сечения ТП 902-2-475.89-КЖ-14 Отстойник. Выпускная камера ВКМ1. Борт отстойника БМ1. Армирование ТП 902-2-475.89-КЖ-15 Отстойник. Выпускная камера ВКМ1. Армирование ТП 902-2-475.89-КЖ-16 Отстойник. Выпускная камера ВКМ1. Борт отстойника БМ1. Армирование. Спецификации ТП 902-2-475.89-КЖ-17 Отстойник. Схема расположения водослива ТП 902-2-475.89-КЖ-18 Распределительная чаша. Планы. Сечения ТП 902-2-475.89-КЖ-19 Распределительная чаша. Армирование. Узел 1. Сечения 1-1÷3-3,10-10,11-11 ТП 902-2-475.89-КЖ-20 Распределительная чаша. Схемы армирования днища и перекрытия. Сечения 4-4÷9-9 ТП 902-2-475.89-КЖ-21 Распределительная чаша. Армирование. Спецификации ТП 902-2-475.89-КЖ-22 Иловая камера ИК1. Планы. Сечения ТП 902-2-475.89-КЖ-23 Иловая камера ИК1. Армирование ТП 902-2-475.89-КЖ-24 Иловая камера ИК1. Схема армирования перекрытия. Узел ТП 902-2-475.89-КЖ-25 Камеры ОВ1 и ОВ2. Планы. Сечения ТП 902-2-475.89-КЖ-26 Камера ОВ1. Армирование ТП 902-2-475.89-КЖ-27 Камера ОВ2. Армирование ТП 902-2-475.89-КМ Конструкции металлические КМ ТП 902-2-475.89-КМ-1 Общие данные (начало) ТП 902-2-475.89-КМ-2 Общие данные (продолжение) ТП 902-2-475.89-КМ-3 Общие данные (окончание) ТП 902-2-475.89-КМ-4 Отстойник. Схема расположения ригелей и подкосов ТП 902-2-475.89-КМ-5 Отстойник, распределительная чаша, иловая камера. Схемы расположения рам, лестницы и ограждений |
| Разработан: | МосводоканалНИИпроект |
| Утверждён: | 09.10.1989 Мосгорисполком (Mosgorispolkom 2147) |
| Заменяет собой: |


































