Скачать Типовой проект 902-2-476.89 Альбом 3. Конструкции железобетонныеДата актуализации: 01.01.2021
|
| Обозначение: | Типовой проект 902-2-476.89 |
| Обозначение англ: | 902-2-476.89 |
| Статус: | не определен законодательством |
| Название рус.: | Альбом 3. Конструкции железобетонные |
| Дата добавления в базу: | 01.09.2013 |
| Дата актуализации: | 01.01.2021 |
| Дата введения: | 16.10.1989 |
| Дата окончания срока действия: | 30.06.2003 |
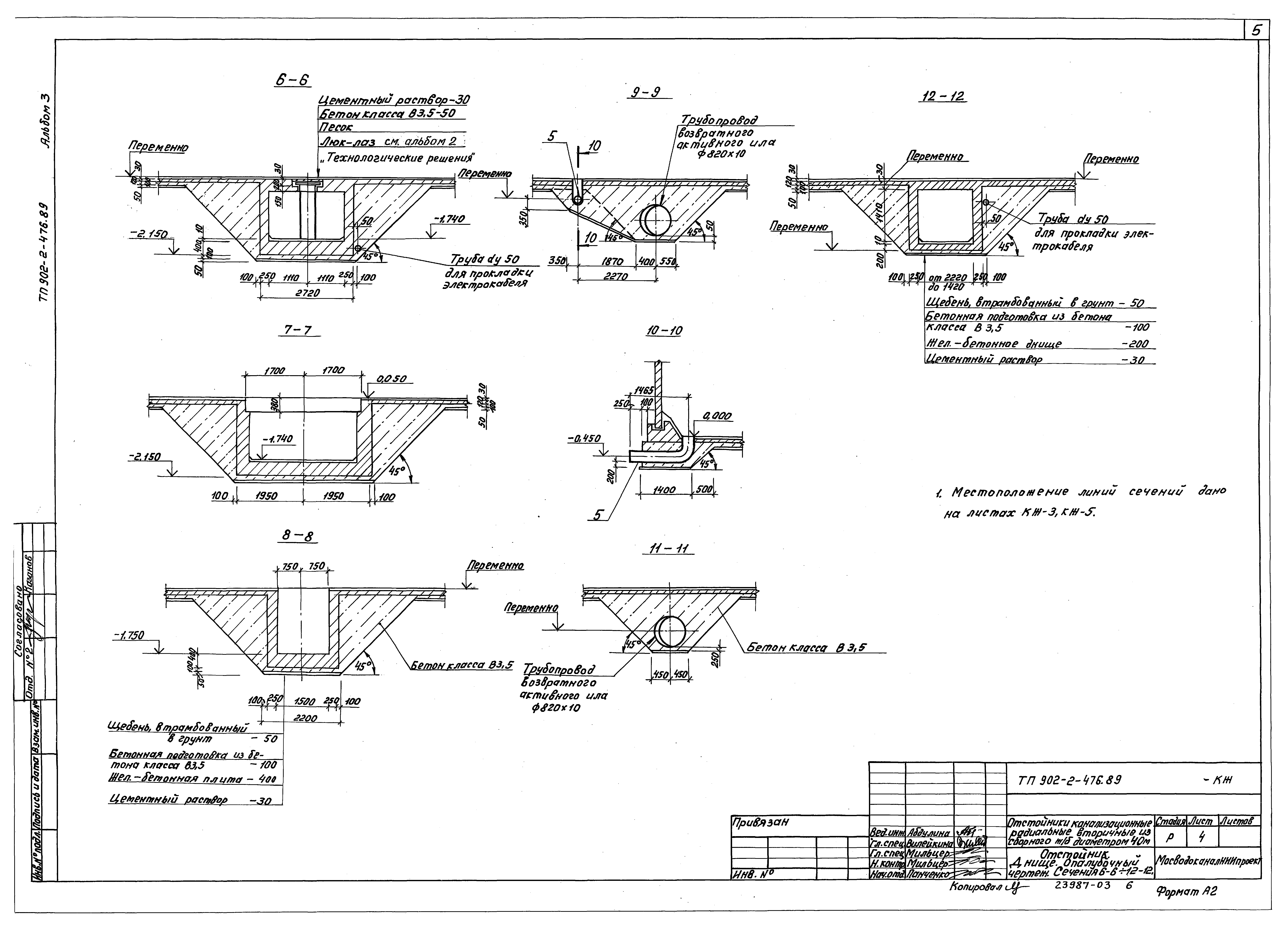
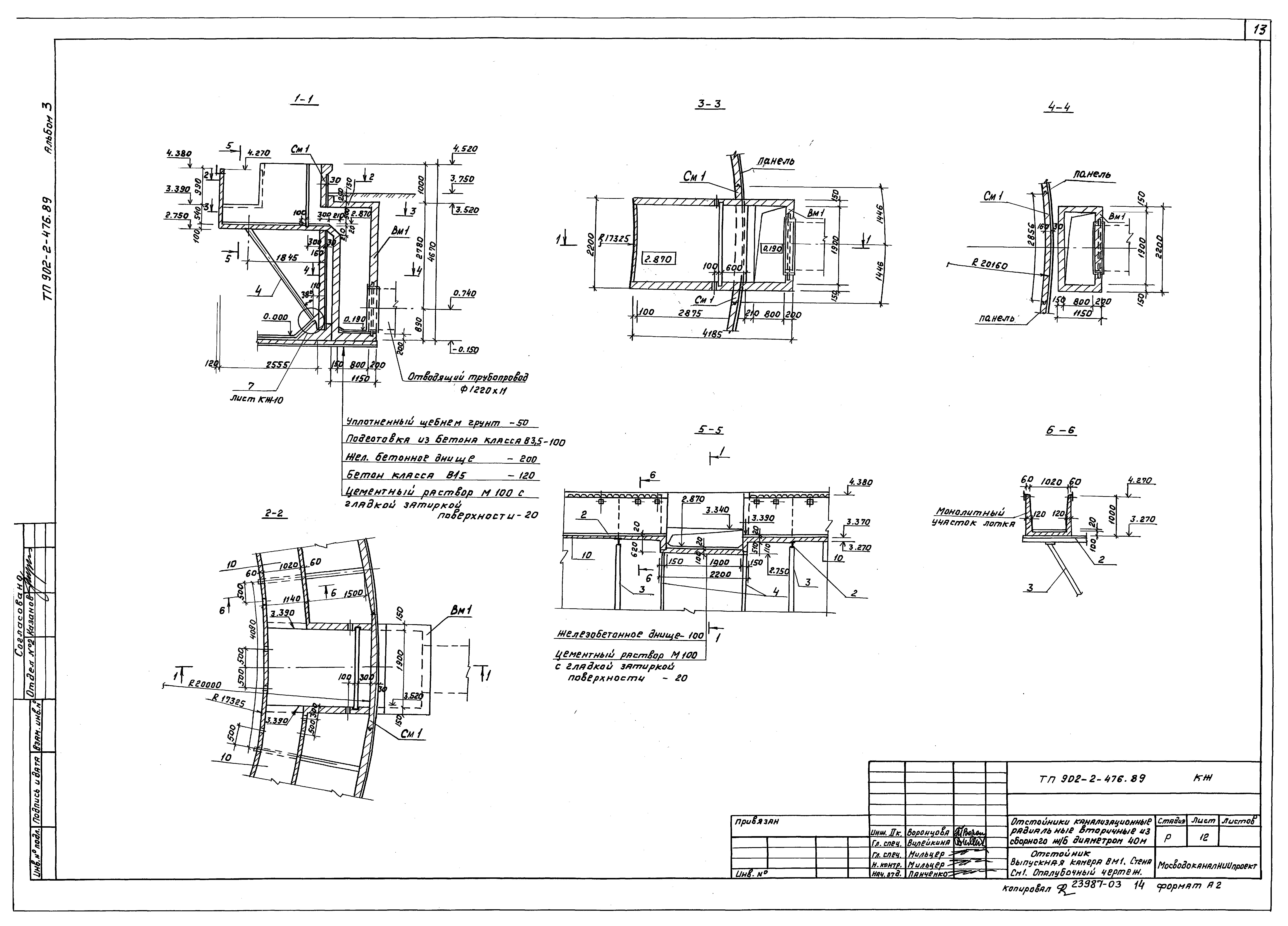
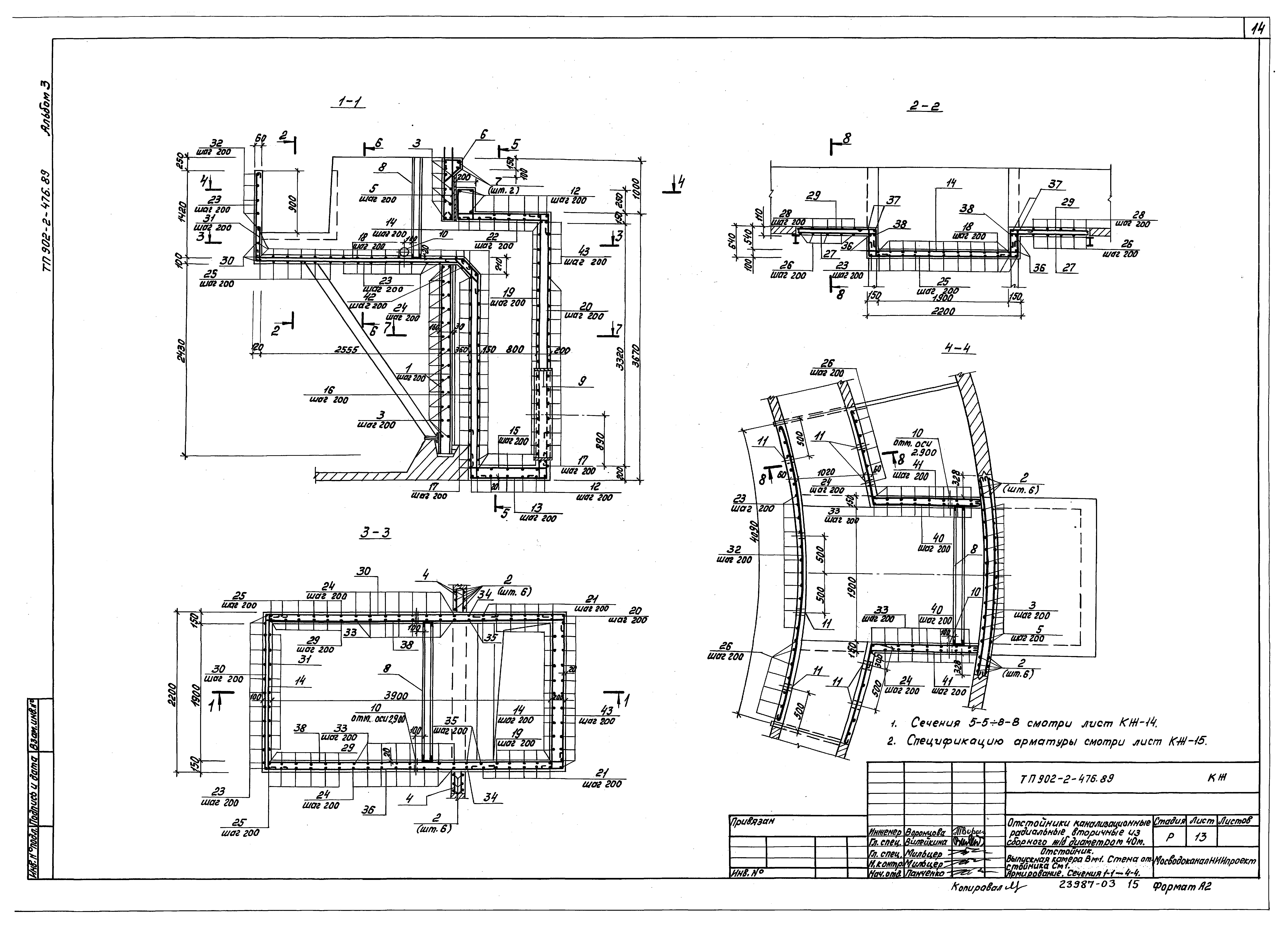
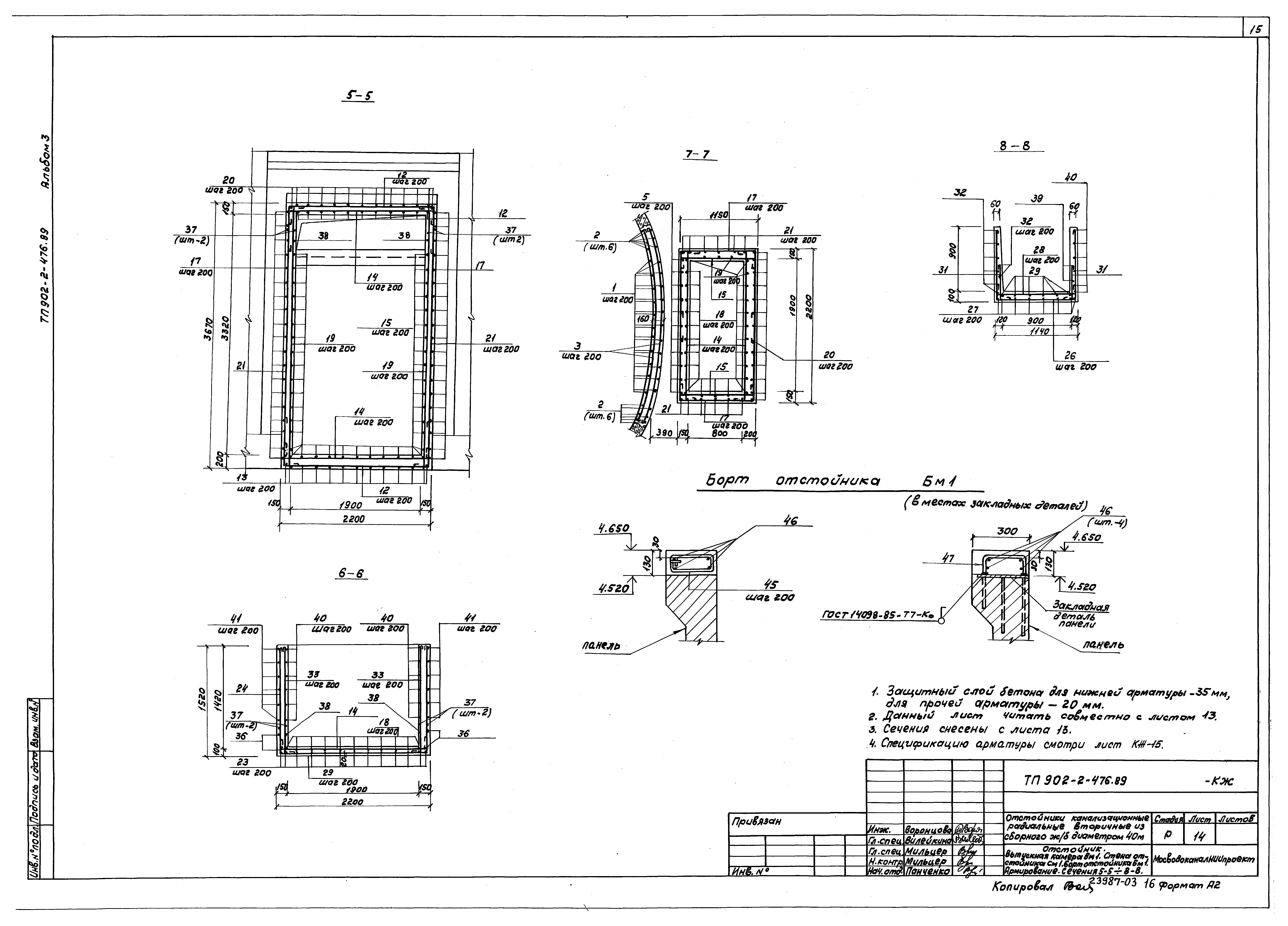
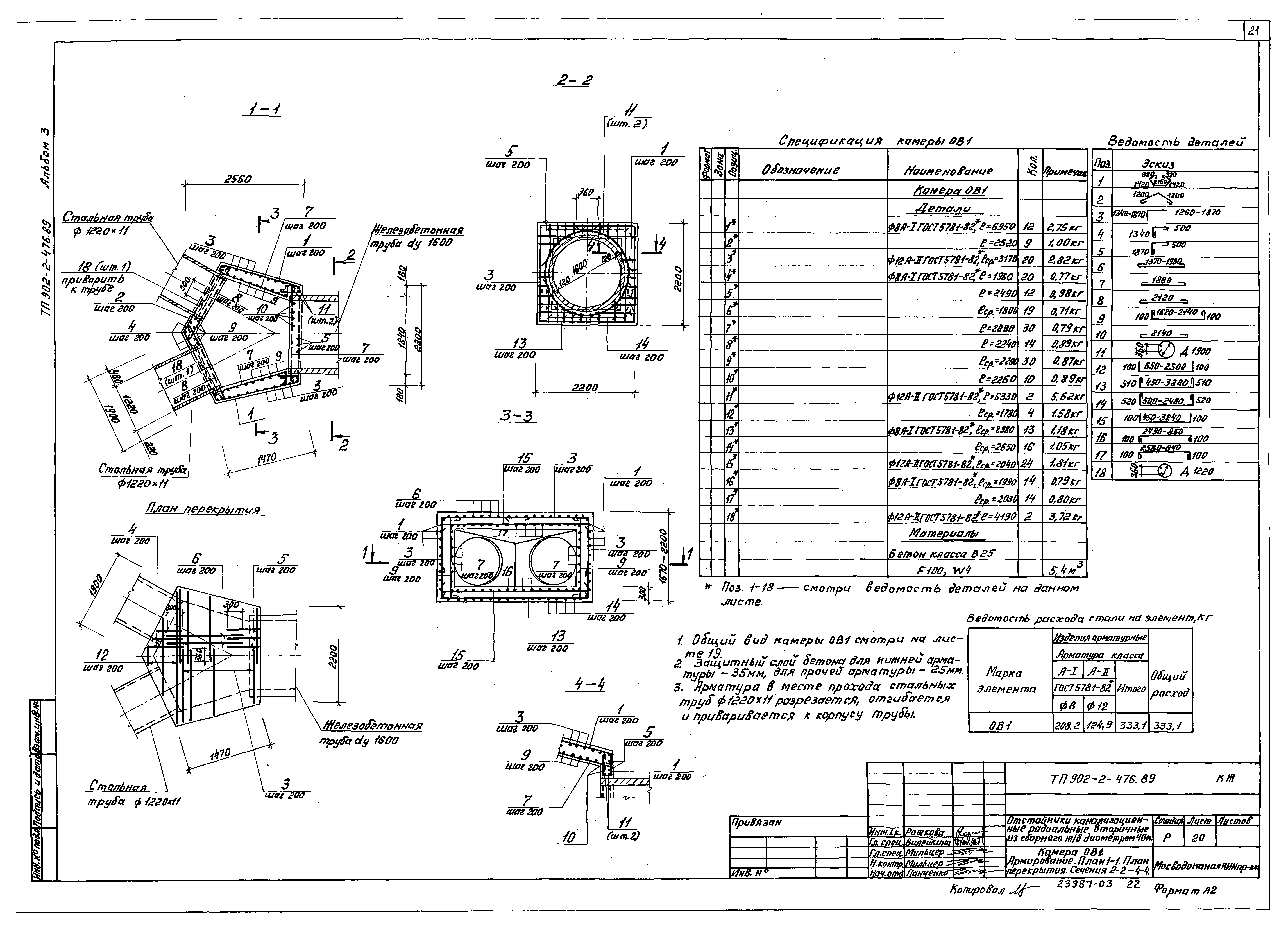
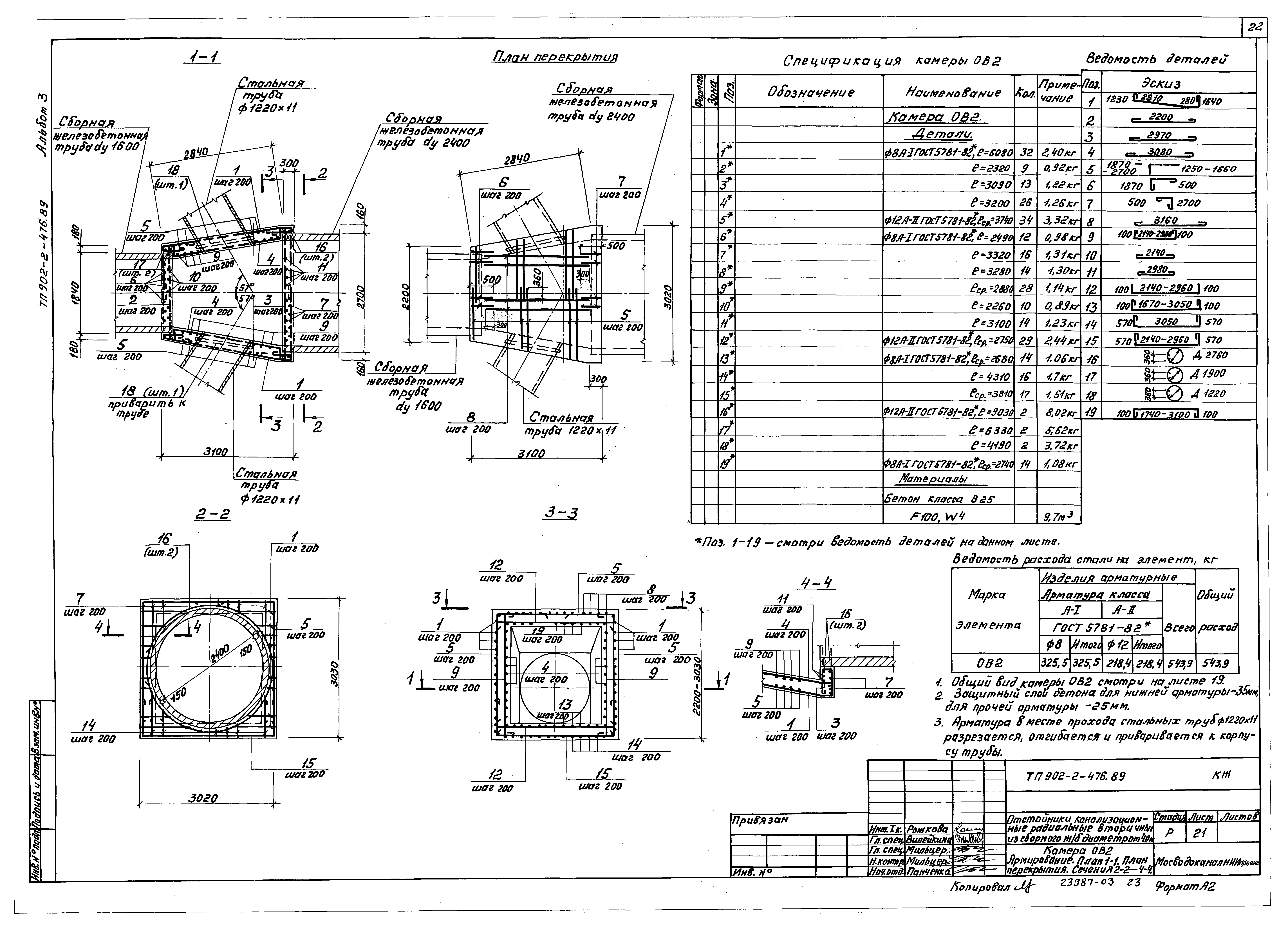
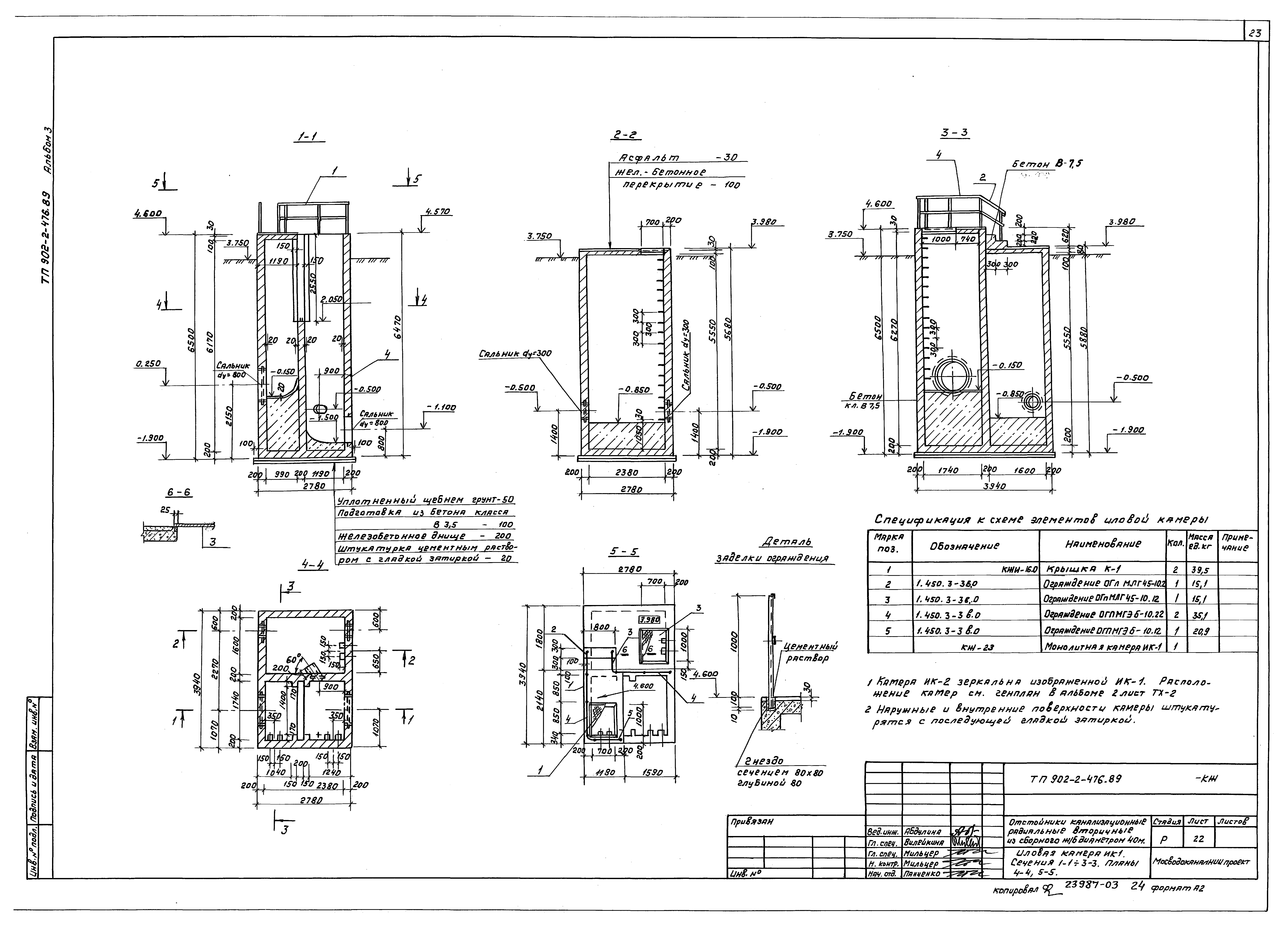
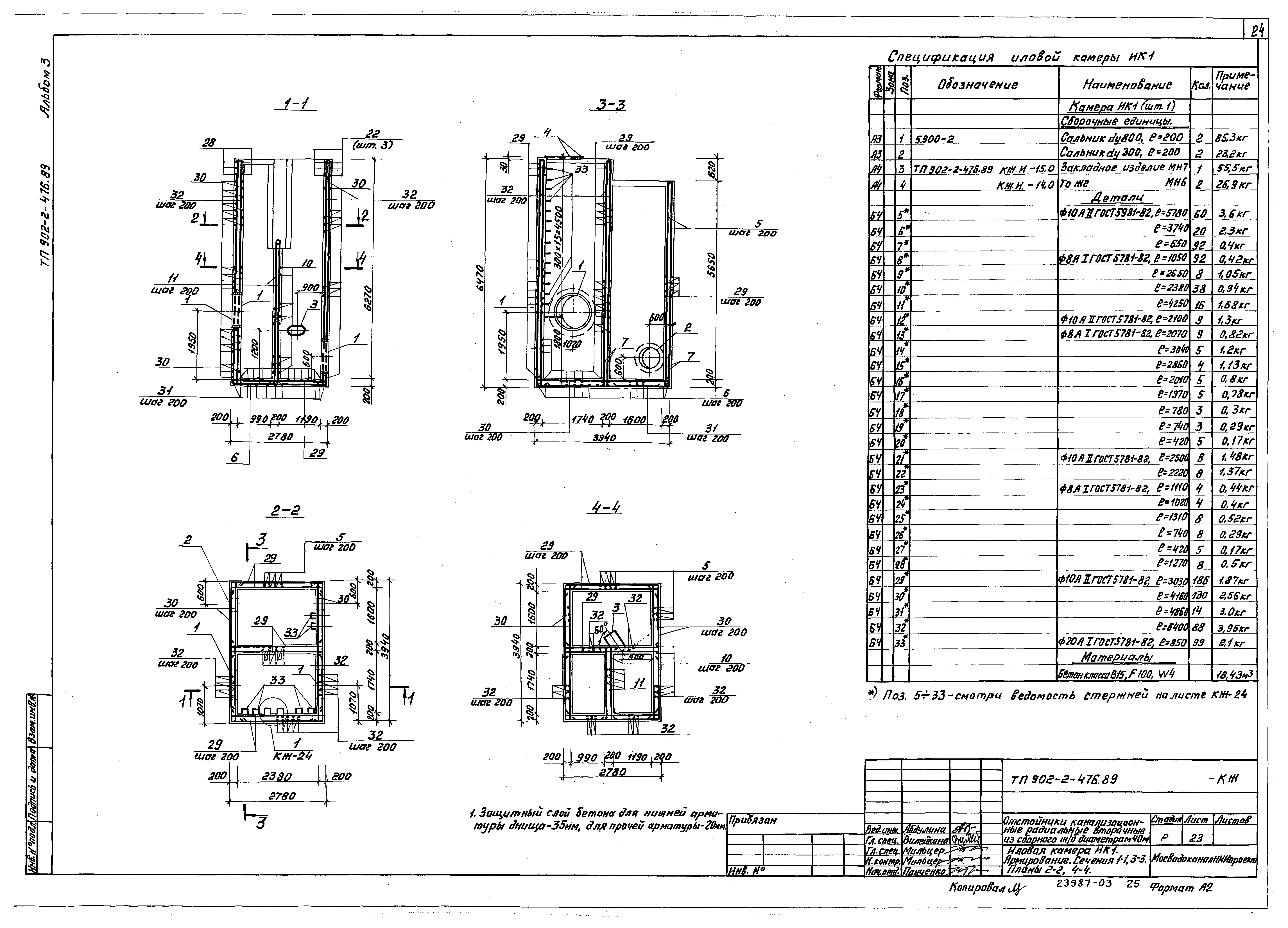
| Оглавление: | ТП 902-2-476.89-КЖ-1 Общие данные ТП 902-2-476.89-КЖ-2 Отстойник. Общие виды ТП 902-2-476.89-КЖ-3 Отстойник. Днище. Опалубочный чертеж. Сечения 3-3÷5-5 ТП 902-2-476.89-КЖ-4 Отстойник. Днище. Опалубочный чертеж. Сечения 6-6÷12-12 ТП 902-2-476.89-КЖ-5 Отстойник. Днище. Опалубка и армирование. Узел 1 ТП 902-2-476.89-КЖ-6 Отстойник. Днище. Армирование. Сечения 2-2÷6-6. Узел 2 ТП 902-2-476.89-КЖ-7 Отстойник. Днище. Армирование. План 8-8. Сечения 7-7,9-9÷11-11 ТП 902-2-476.89-КЖ-8 Отстойник. Днище. Армирование. Спецификация ТП 902-2-476.89-КЖ-9 Отстойник. Схема расположения стеновых панелей. Узлы 1,2. Сечение 1-1 ТП 902-2-476.89-КЖ-10 Отстойник. Узлы 4-7. Деталь навивки кольцевой арматуры ТП 902-2-476.89-КЖ-11 Отстойник. Схема расположения лотков. Узел 8. Сечения 1-1÷4-4 ТП 902-2-476.89-КЖ-12 Отстойник. Выпускная камера ВМ1. Стена СМ1. Опалубочный чертеж ТП 902-2-476.89-КЖ-13 Отстойник. Выпускная камера ВМ1. Стена отстойника СМ1. Армирование. Сечения 1-1÷4-4 ТП 902-2-476.89-КЖ-14 Отстойник. Выпускная камера ВМ1. Стена отстойника СМ1. Борт отстойника БМ1. Армирование. Сечения 5-5÷8-8 ТП 902-2-476.89-КЖ-15 Отстойник. Выпускная камера ВМ1. Стена отстойника СМ1. Борт отстойника БМ1. Армирование. Спецификация ТП 902-2-476.89-КЖ-16 Распределительная чаша. Планы 1-1;2-2;5-5. Сечения 3-3;4-4;6-6÷8-8. Узел 1 ТП 902-2-476.89-КЖ-17 Распределительная чаша. Армирование. Сечения 1-1÷6-6. Узел 1 ТП 902-2-476.89-КЖ-18 Распределительная чаша. Армирование. Сечения 7-7÷14-14. Узел 2-4 ТП 902-2-476.89-КЖ-19 Камеры ОВ1 и ОВ2. Планы, сечения ТП 902-2-476.89-КЖ-20 Камера ОВ1. Армирование. План 1-1. План перекрытия. Сечения 2-2÷4-4 ТП 902-2-476.89-КЖ-21 Камера ОВ2. Армирование. План 1-1. План перекрытия. Сечения 2-2÷4-4 ТП 902-2-476.89-КЖ-22 Иловая камера ИК1. Сечения 1-1÷3-3. Планы 4-4 и 5-5 ТП 902-2-476.89-КЖ-23 Иловая камера ИК1. Армирование. Сечения 1-1,3-3. Планы 2-2,4-4 ТП 902-2-476.89-КЖ-24 Иловая камера ИК1. Армирование. План перекрытия. Сечения. Узел 1 |
| Разработан: | МосводоканалНИИпроект |
| Утверждён: | 09.10.1989 Мосгорисполком (Mosgorispolkom 2148) |

























