Скачать Типовой проект 902-9-4 Альбом I. Архитектурно-строительная часть (вариант - стены панельные)Дата актуализации: 01.01.2021
|
| Обозначение: | Типовой проект 902-9-4 |
| Обозначение англ: | 902-9-4 |
| Статус: | действует |
| Название рус.: | Альбом I. Архитектурно-строительная часть (вариант - стены панельные) |
| Дата добавления в базу: | 01.09.2013 |
| Дата актуализации: | 01.01.2021 |
| Дата введения: | 01.03.1974 |
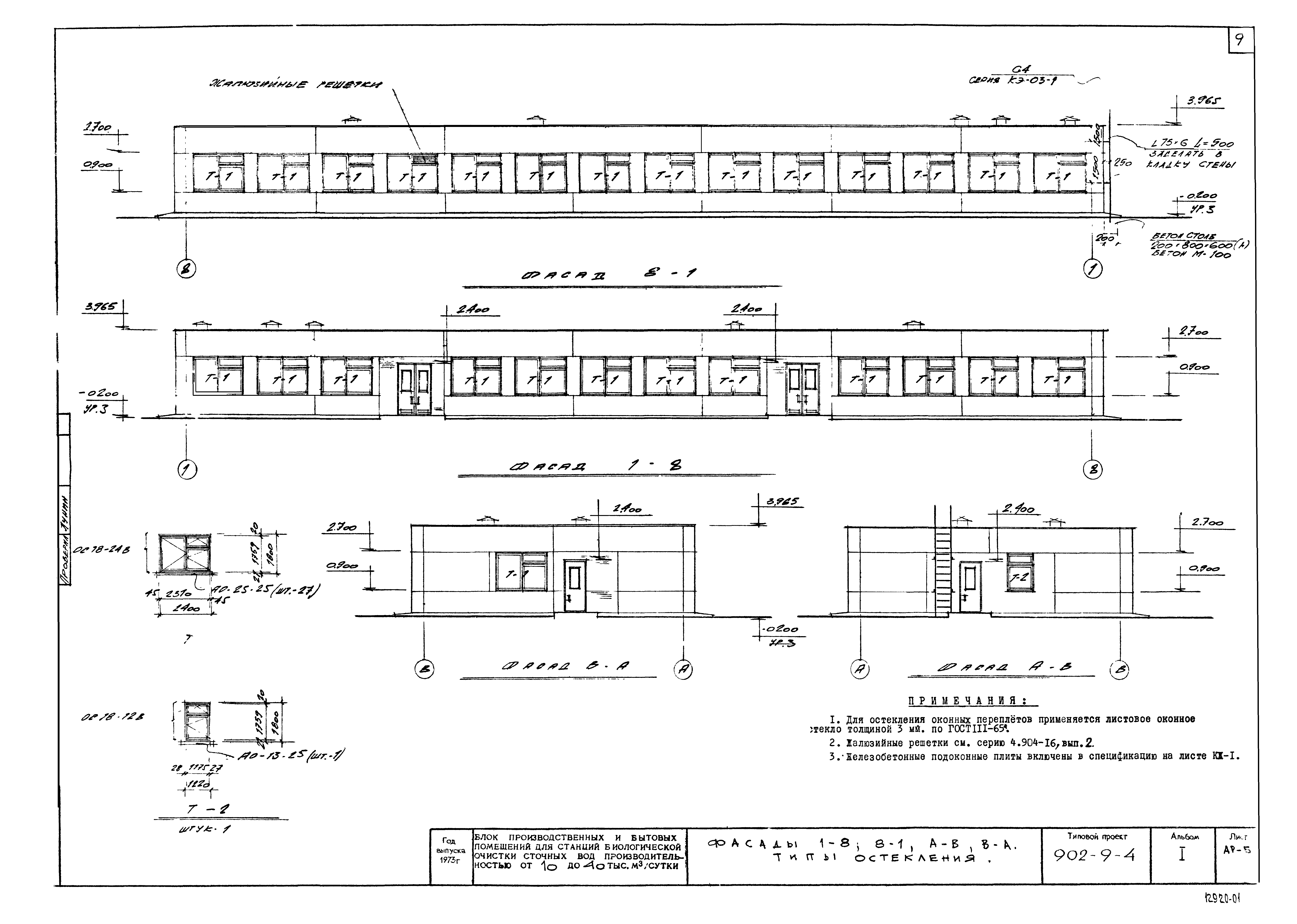
| Оглавление: | ТП 902-9-4 Содержание ТП 902-9-4 Пояснительная записка. ТП 902-9-4 Пояснительная записка /окончание/. ТП 902-9-4-АР Чертежи марки "АР" ТП 902-9-4-АР-1 План кровли. Спецификации. Перечень листов марки "АР". Основные строительные показатели. ТП 902-9-4-АР-2 План на отм. ±0.000. Спецификация проемов и изделий дверей. ТП 902-9-4-АР-3 Элементы планов, сечения, узел "А". ТП 902-9-4-АР-4 Разрезы 1-1,2-2 ТП 902-9-4-АР-5 Фасады 1-8, 8-1, А-В, В-А. Типы остекления. ТП 902-9-4-АР-6 План раскладки асбестоцементных листов подшивного потолка. ТП 902-9-4-АР-7 Планы полов. Экспликация полов. Ведомость внутренних отделочных работ ТП 902-9-4-АР-8 План раскладки металлических балок подшивного потолка. ТП 902-9-4-АР-9 Перегородки из cтекора КП-1÷КП-4 ТП 902-9-4-АР-10 Обвязки к перегородкам КП-1÷КП-4. ТП 902-9-4-КЖ Чертежи марки "КЖ" ТП 902-9-4-КЖ-1 Заглавный лист к чертежам марки "КЖ" ТП 902-9-4-КЖ-2 Заглавный лист к чертежам марки "КЖ" /окончание/ ТП 902-9-4-КЖ-3 План фундаментов . ТП 902-9-4-КЖ-4 Монтажная схема колонн и ригелей. ТП 902-9-4-КЖ-5 Монтажные схемы стеновых панелей. ТП 902-9-4-КЖ-6 Монтажная схема плит покрытия. ТП 902-9-4-КЖ-7 Опалубка плит с отверстиями. ТП 902-9-4-КЖ-8 Закладные детали МИ-1÷МИ5,МЗ-1,МЗ-2. Анкера А-1,А-2,А-3. Рамка РМ-50 |
| Разработан: | Госхимпроект |
| Утверждён: | 25.02.1974 СоюзводоканалНИИпроект (SoyuzvodokanalNIIproject 39) |























