Скачать Типовой проект 902-9-4 Альбом III. Санитарно-техническая часть (вариант - стены панельные)Дата актуализации: 01.01.2021
|
| Обозначение: | Типовой проект 902-9-4 |
| Обозначение англ: | 902-9-4 |
| Статус: | действует |
| Название рус.: | Альбом III. Санитарно-техническая часть (вариант - стены панельные) |
| Дата добавления в базу: | 01.09.2013 |
| Дата актуализации: | 01.01.2021 |
| Дата введения: | 01.03.1974 |
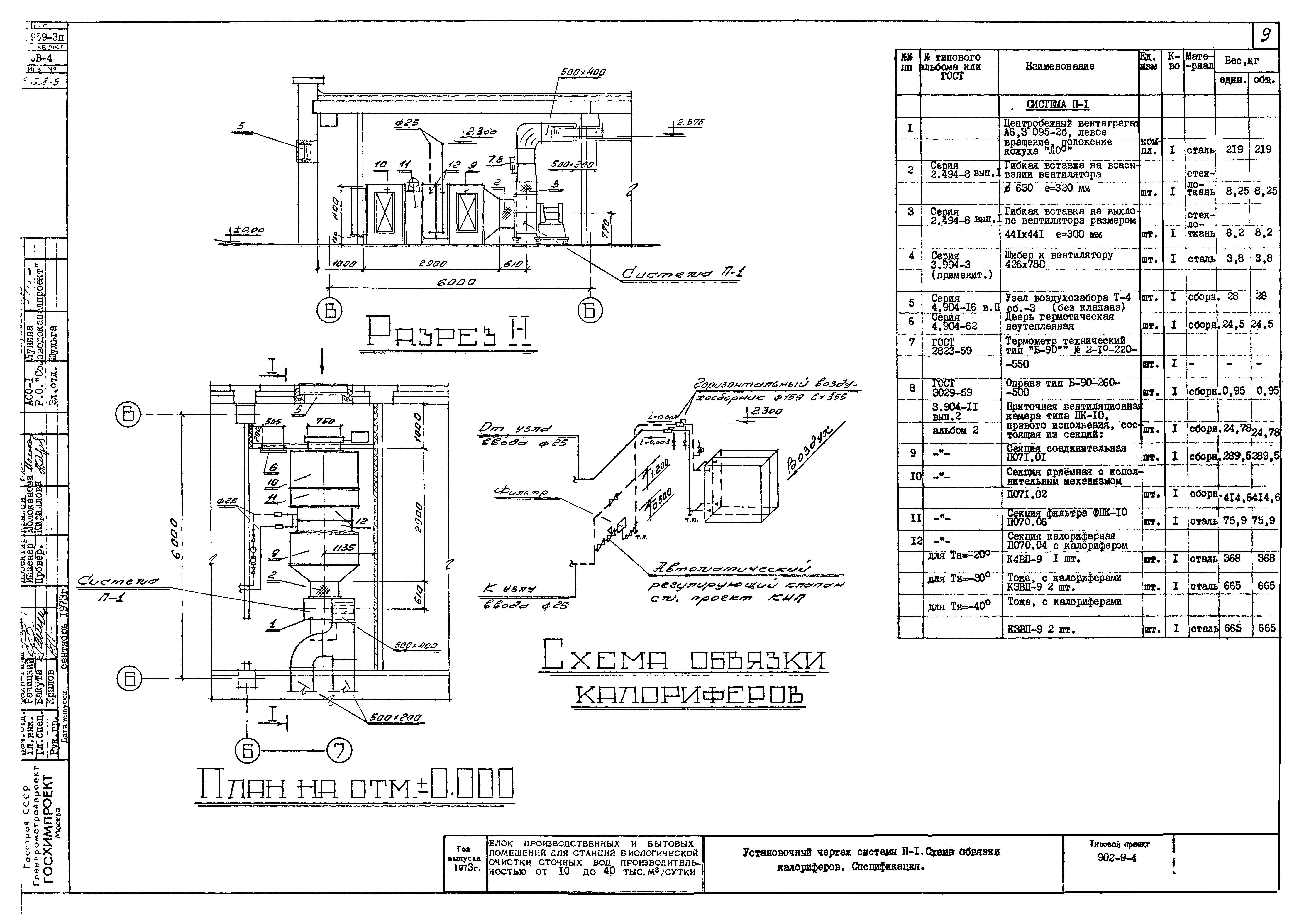
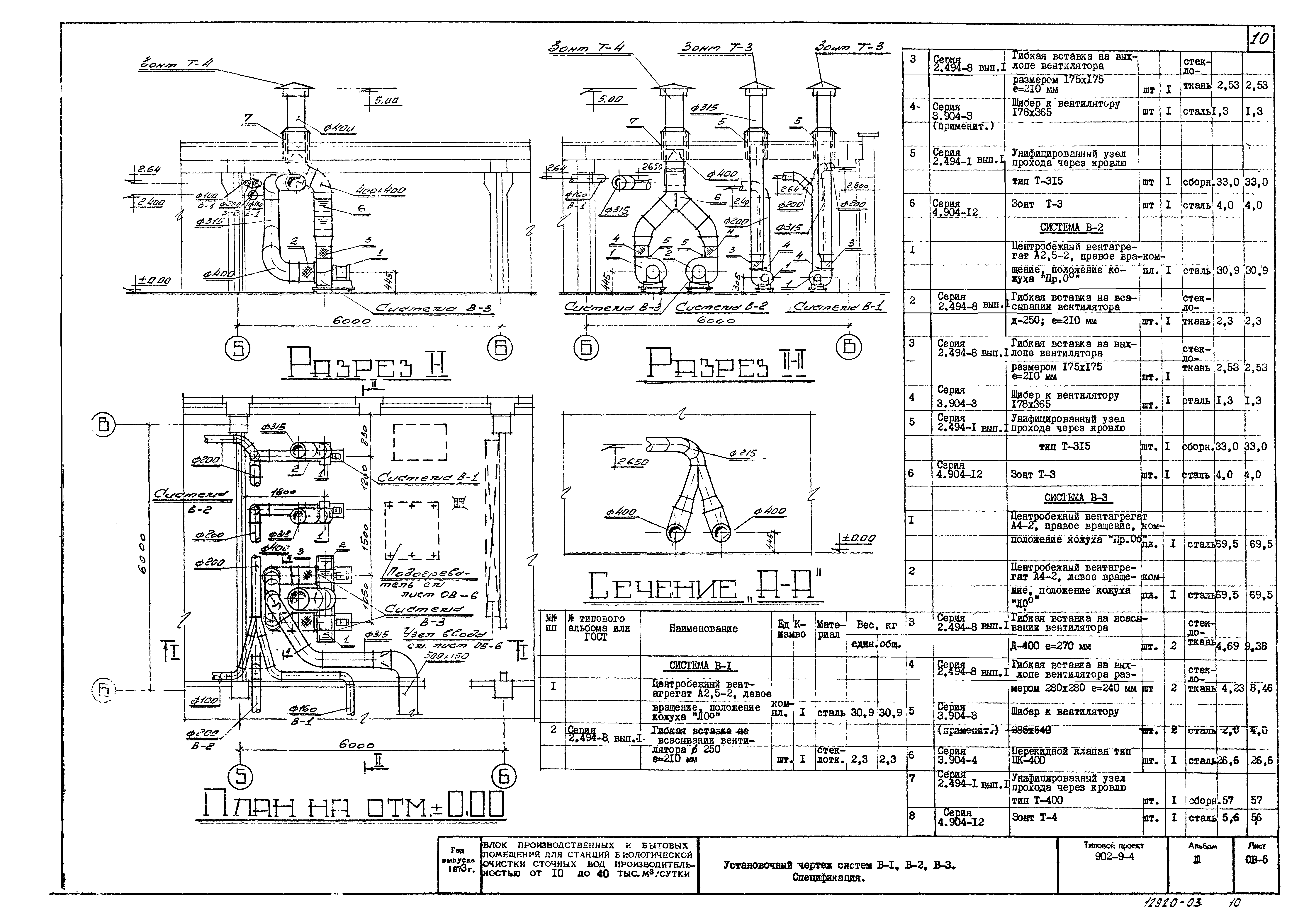
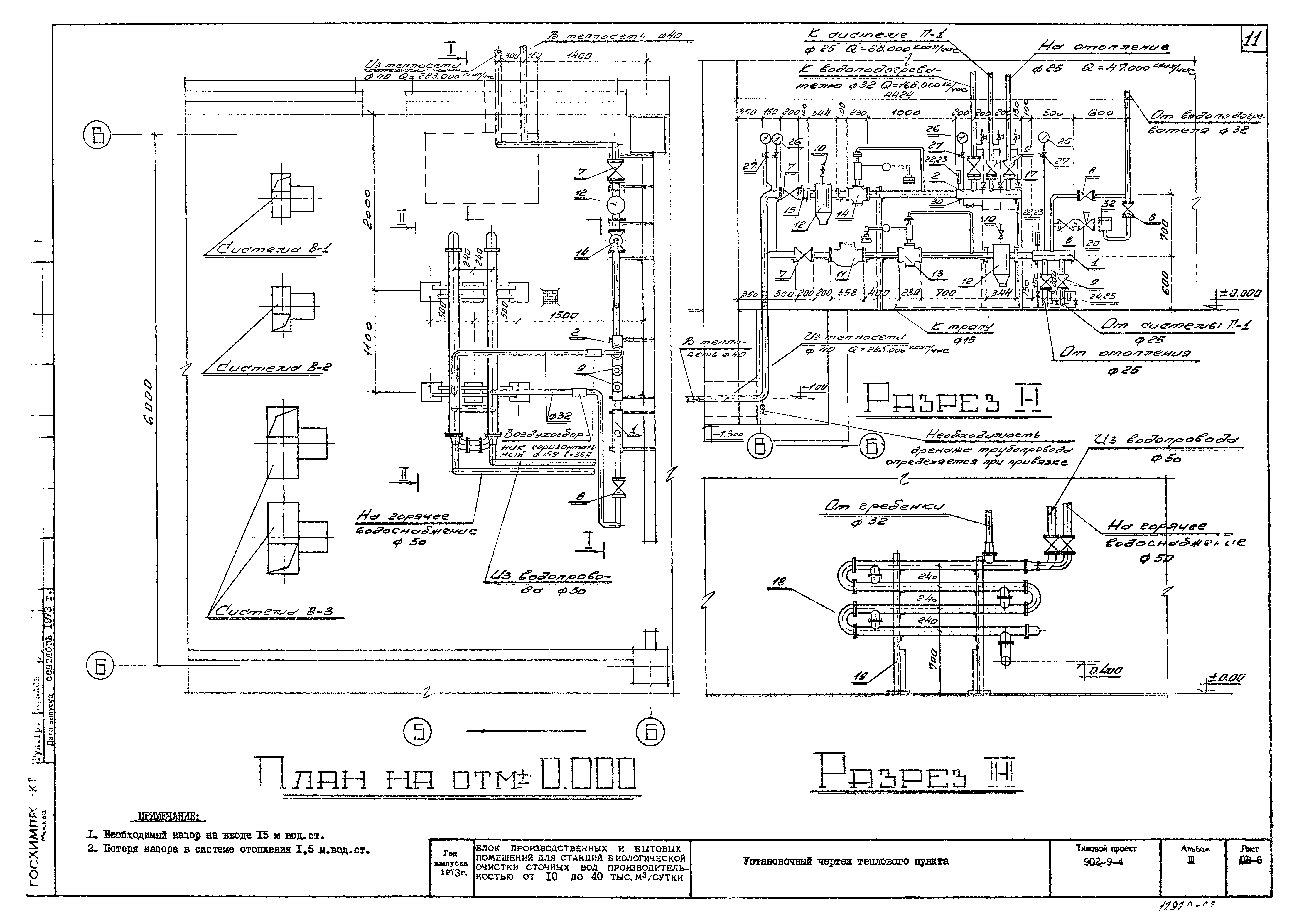
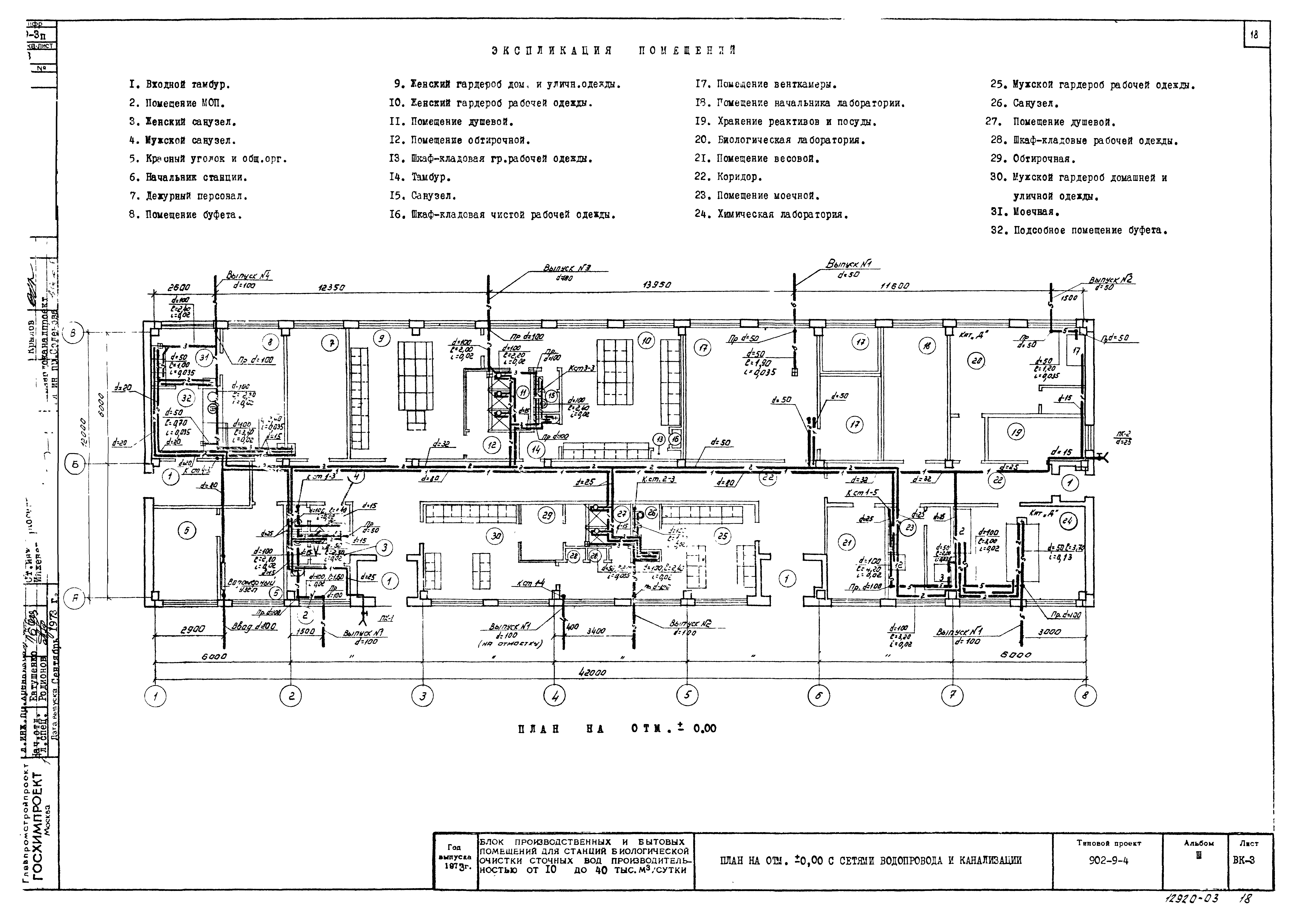
| Оглавление: | ТП 902-9-4 Содержание альбома ТП 902-9-4 Пояснительная записка ТП 902-9-4-ОВ Отопление и вентиляция ТП 902-9-4-ОВ-1 Характеристика отопительно-вентиляционного оборудования. Таблица объемов воздуха, удаляемого местными отсосами. ТП 902-9-4-ОВ-2 Таблица воздушных балансов помещений ТП 902-9-4-ОВ-3 План на отм .±0.00. Отопление и вентиляция . ТП 902-9-4-ОВ-4 Установочный чертеж системы II-I. Схема обвязки калориферов. Спецификация ТП 902-9-4-ОВ-5 Установочный чертеж систем B-1, В-2, В-3. Спецификация ТП 902-9-4-ОВ-6 Установочный чертеж теплового пункта ТП 902-9-4-ОВ-7 Схема отопления, схема обвязки водоподогревателя ТП 902-9-4-ОВ-8 Схемы вентиляции систем П-1, B-1, B-2, В-3, В-4, В-5, EB-1, ЕВ-2 ТП 902-9-4-ОВ-9 Сводная спецификация (лист № 1) ТП 902-9-4-ОВ-10 Сводная спецификация (лист № 2) ТП 902-9-4-ВК Водопровод и канализация ТП 902-9-4-ВК-1 План корпуса. Кровли. Условные обозначения. Расчетная схема. Расчеты сетей. ТП 902-9-4-ВК-2 Расчетные расходы воды, бытовых и производственных сточных вод. ТП 902-9-4-ВК-3 План на отм. ±0.00 с сетями водопровода и канализации. ТП 902-9-4-ВК-4 Схемы сетей хозяйственно-производственного водопровода и водопровода горячей воды ТП 902-9-4-ВК-5 Схемы сетей бытовой канализации, производственной канализации, внутренних водостоков и незагрязненных сточных вод ТП 902-9-4-ВК-6 Спецификация ТП 902-9-4-ВК-7 Спецификация (продолжение) |
| Разработан: | Госхимпроект |
| Утверждён: | 25.02.1974 СоюзводоканалНИИпроект (SoyuzvodokanalNIIproject 39) |





















