Скачать Типовой проект 902-9-4 Альбом V. Технологическая и электротехническая частиДата актуализации: 01.01.2021
|
| Обозначение: | Типовой проект 902-9-4 |
| Обозначение англ: | 902-9-4 |
| Статус: | действует |
| Название рус.: | Альбом V. Технологическая и электротехническая части |
| Дата добавления в базу: | 01.09.2013 |
| Дата актуализации: | 01.01.2021 |
| Дата введения: | 01.03.1974 |
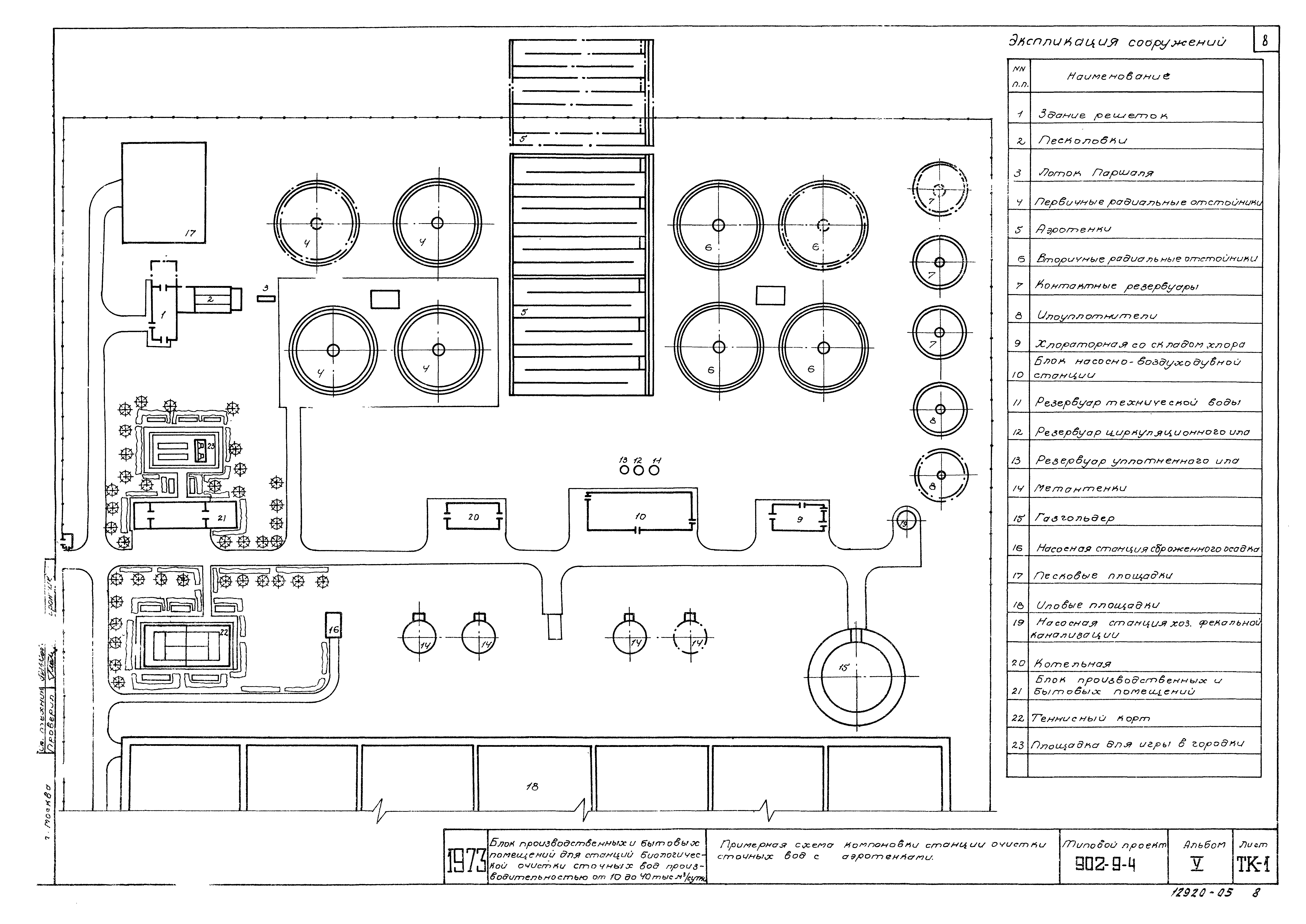
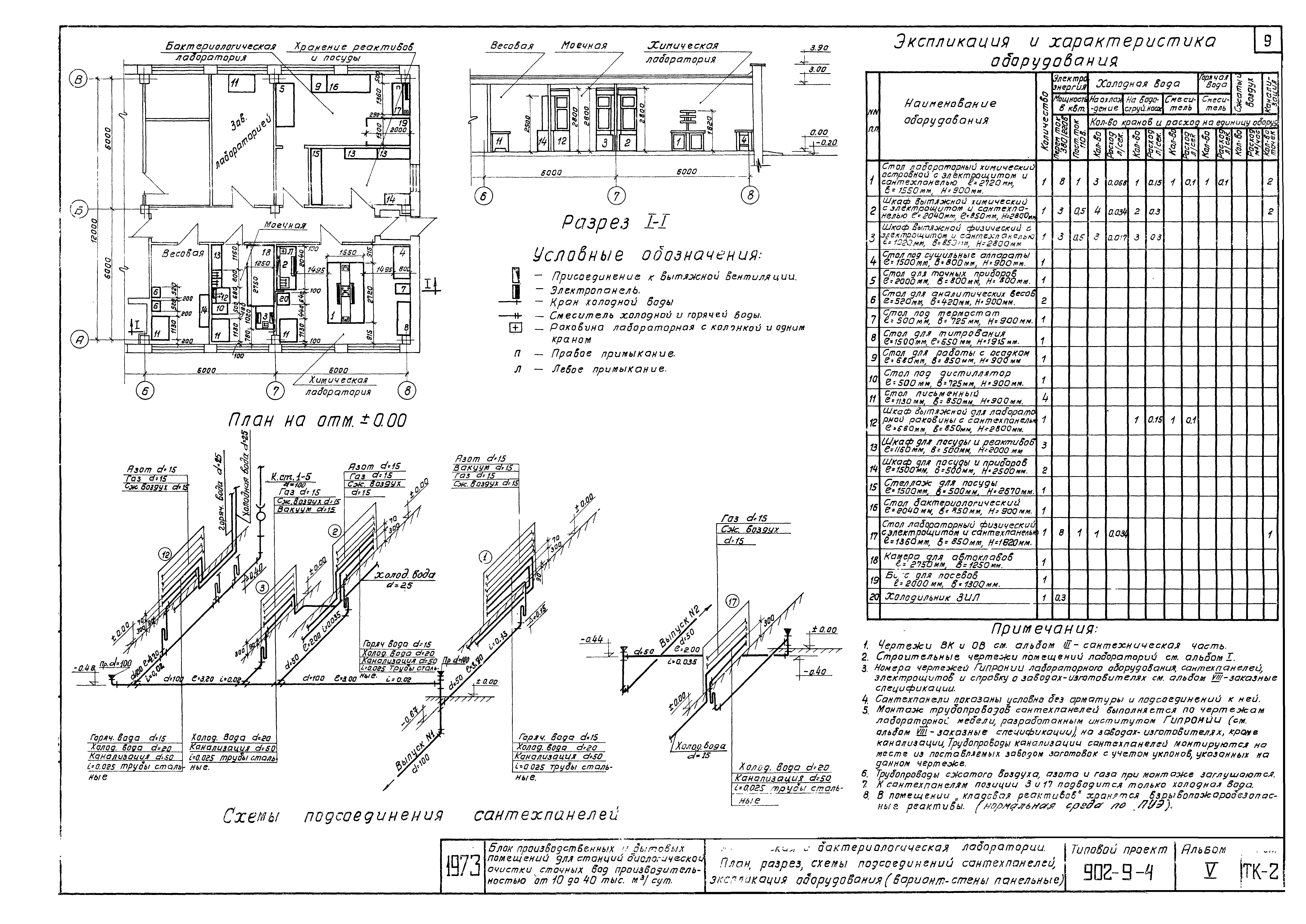
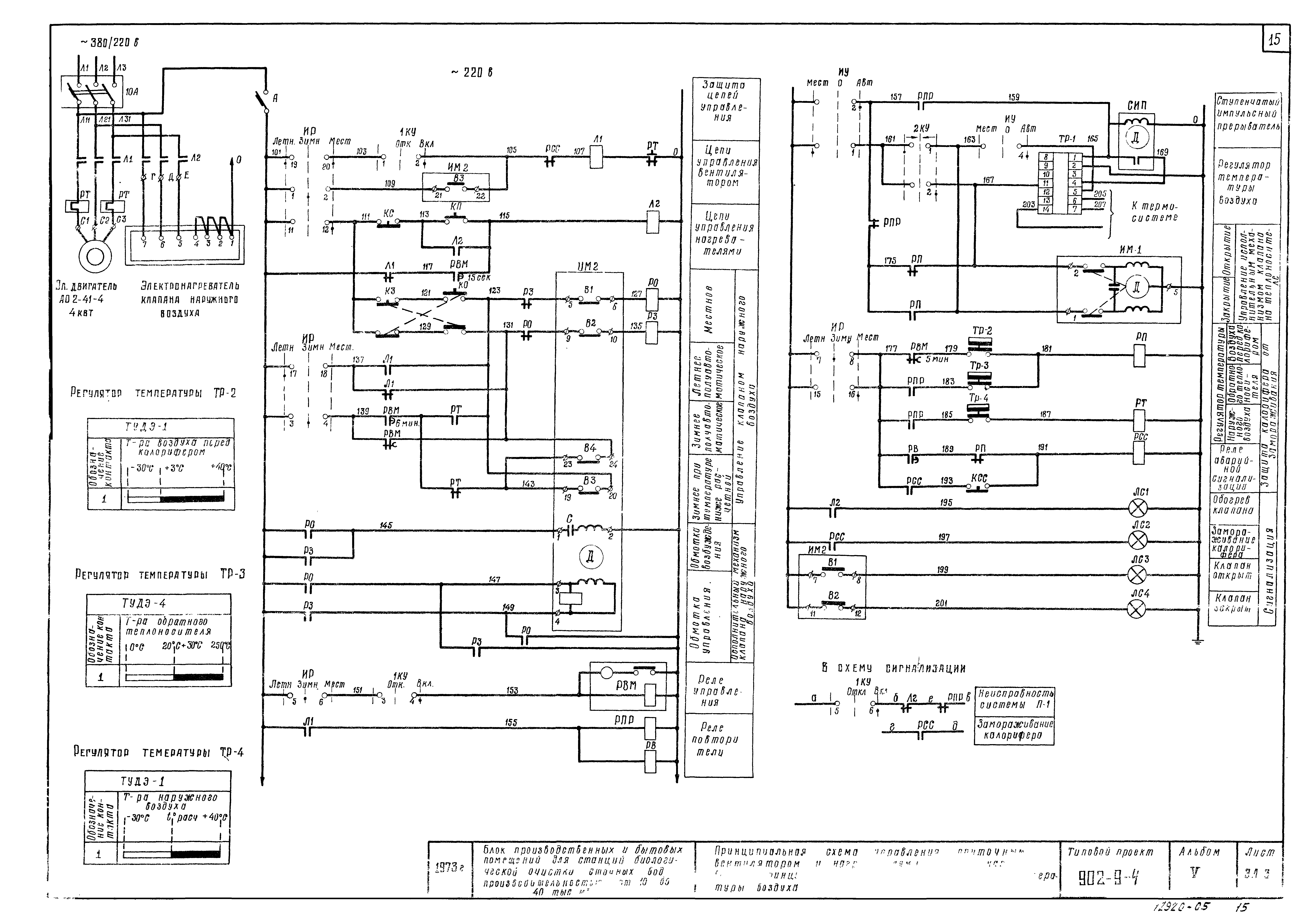
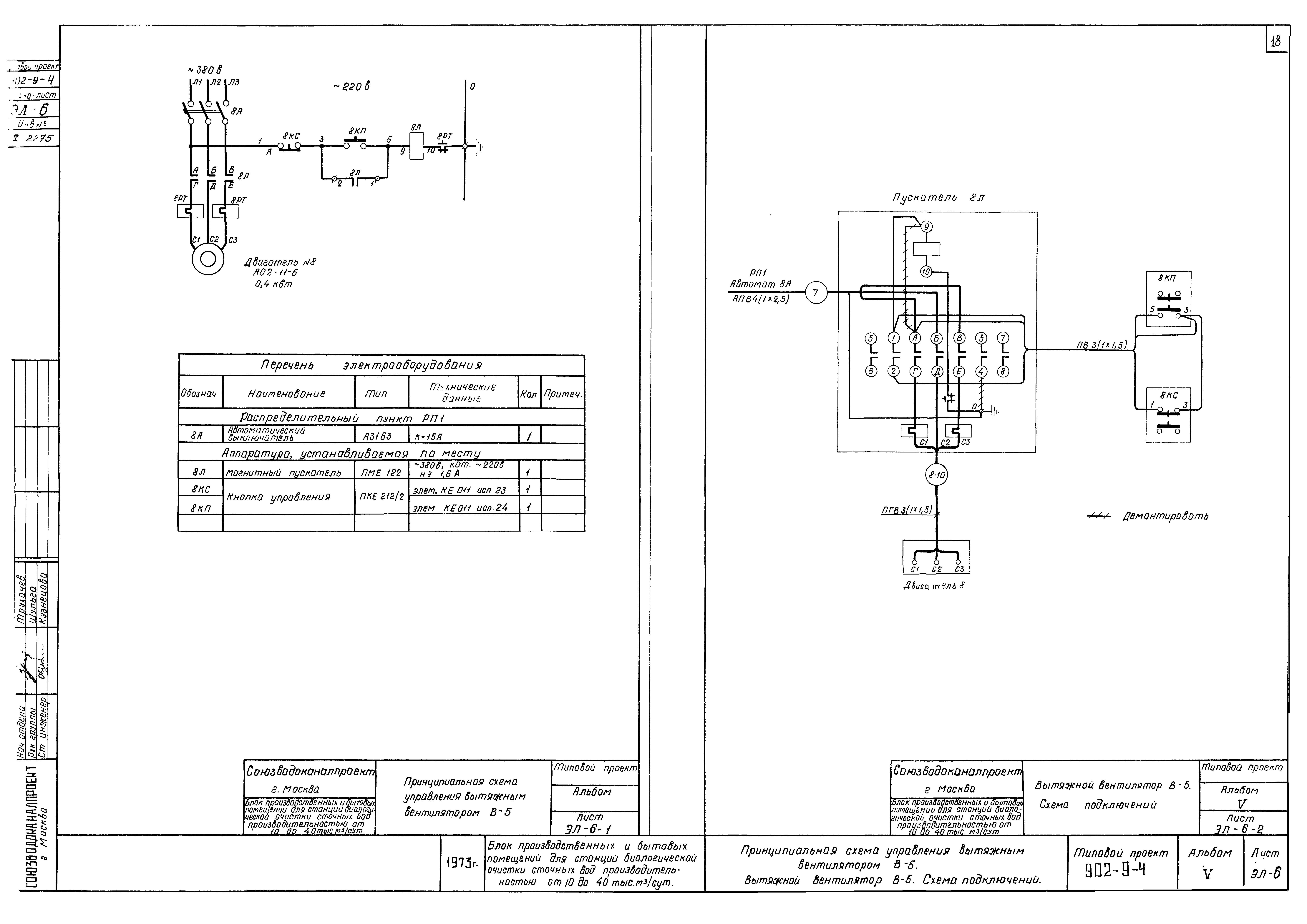
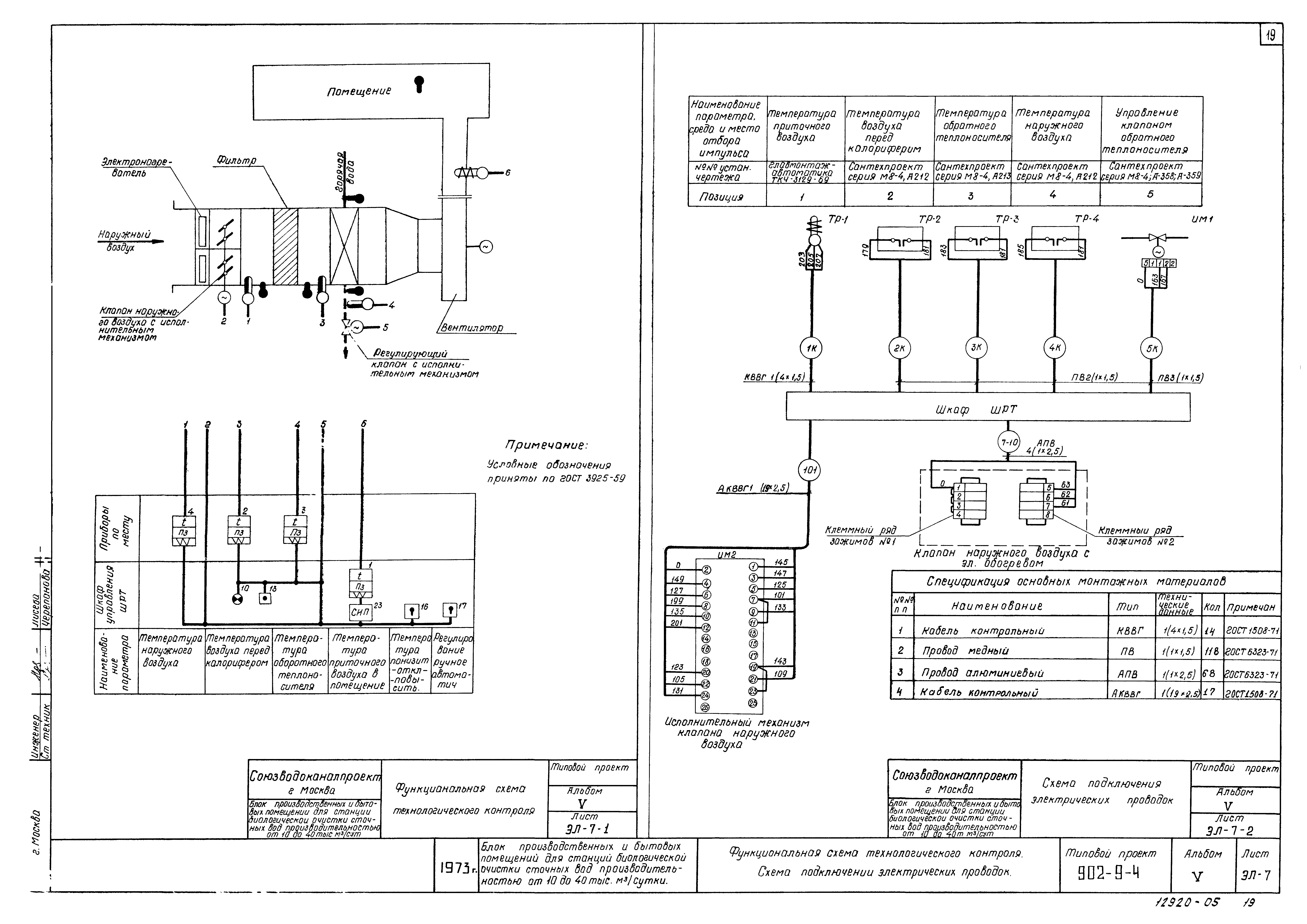
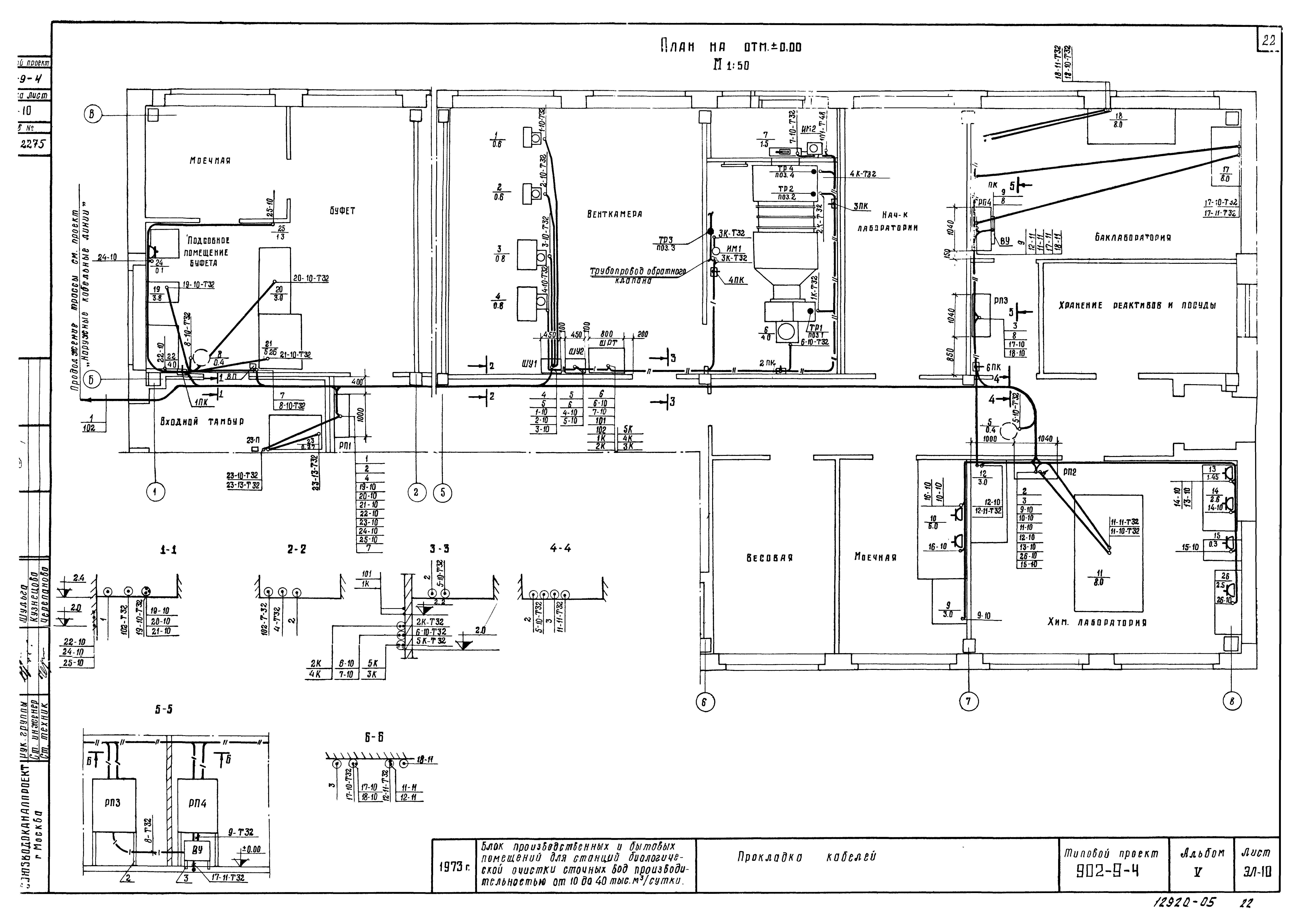
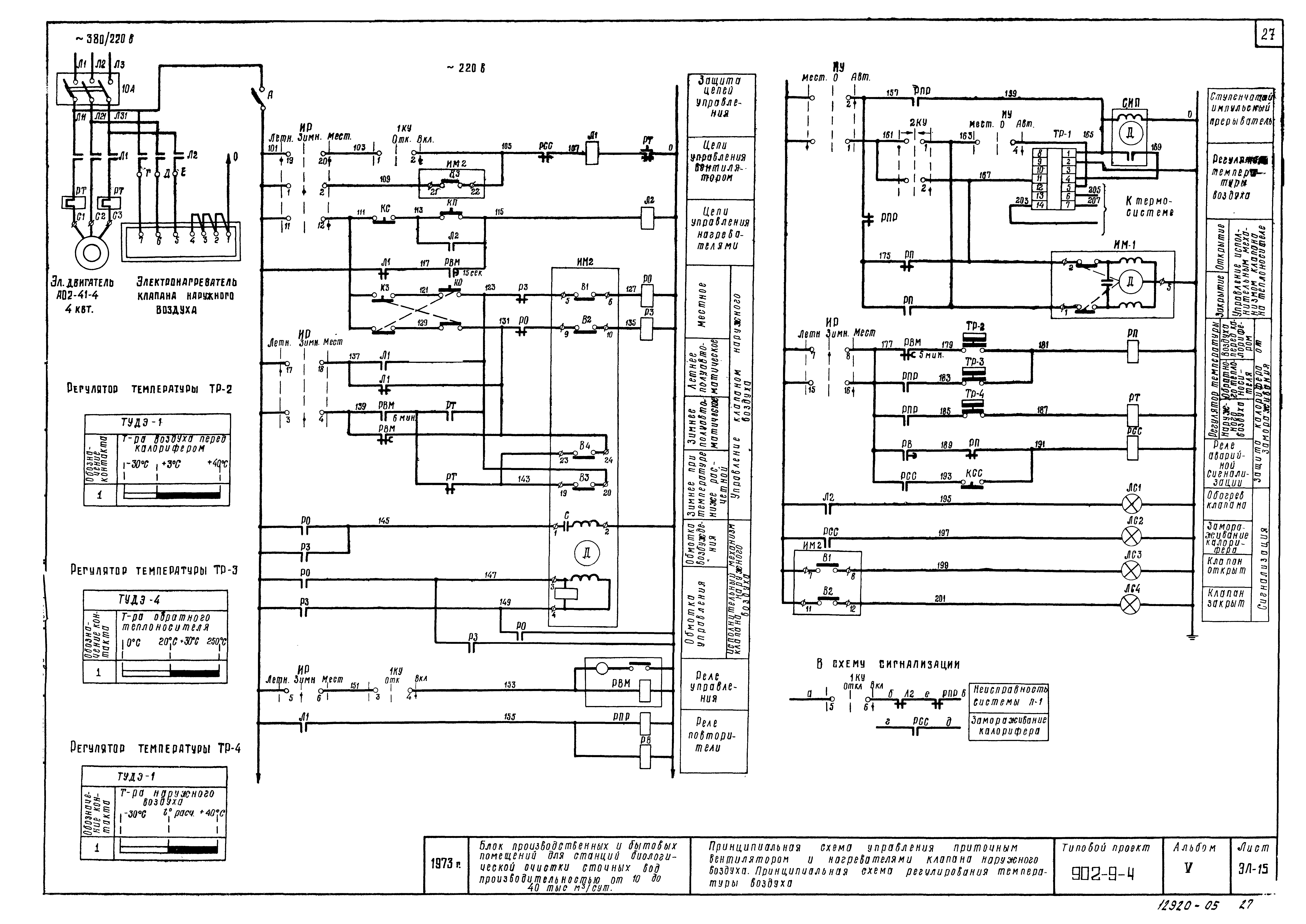
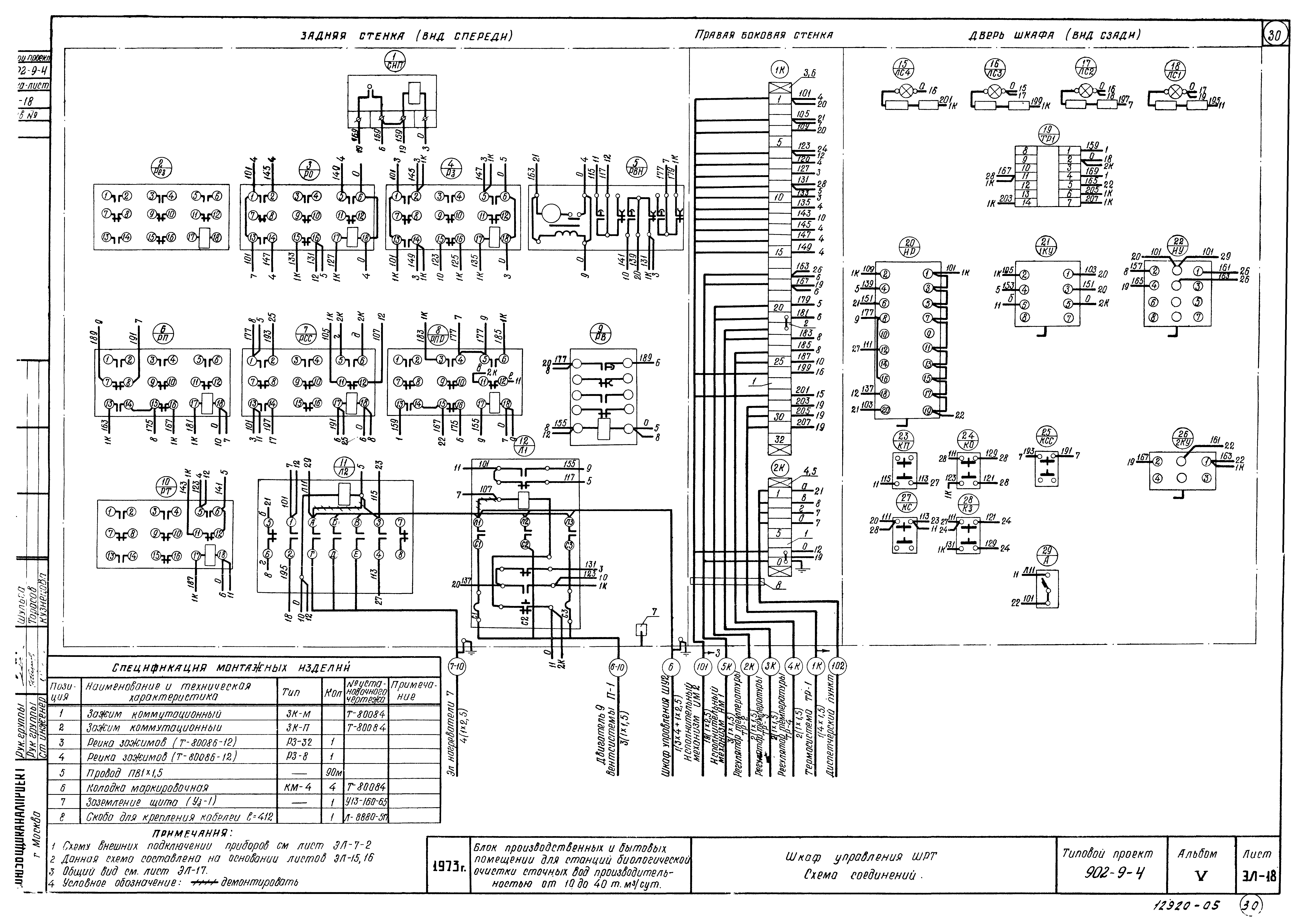
| Оглавление: | ТП 902-9-4 Содержание альбома ТП 902-9-4 Пояснительная записка ТП 902-9-4-ТК Технологическая часть ТП 902-9-4-ТК-1 Примерная схема компоновки станции очистки сточных вод с аэротенками ТП 902-9-4-ТК-2 Химическая и бактериологическая лаборатории. План, разрез, схемы подсоединений сантехпанелей, экспликация оборудования (вариант - стены панельные) ТП 902-9-4-ТК-3 Химическая и бактериологическая лаборатории. План, разрез, схемы подсоединений сантехпанелей, экспликация оборудования (вариант - стены кирпичные) ТП 902-9-4-ТК-4 План 1 этажа буфета на 8 мест с расстановкой и привязкой подводок электроэнергии и воды к технологическому оборудованию. Спецификация технологического оборудования (Вариант - стены панельные) ТП 902-9-4-ТК-5 План 1 этажа буфета на 8 мест с расстановкой и привязкой подводок электроэнергии и воды к технологическому оборудованию. Спецификация технологического оборудования (Вариант - стены кирпичные) ТП 902-9-4-ЭЛ Электротехническая часть ТП 902-9-4 Раздел 1 ТП 902-9-4 Чертежи монтажной зоны. Листы ЭЛ-1-ЭЛ-14 ТП 902-9-4-ЭЛ-1 Принципиальная схема силовой сети ТП 902-9-4-ЭЛ-2 Принципиальная схема силовой сети ТП 902-9-4-ЭЛ-3 Принципиальная схема управления приточным вентилятором и нагревателями наружного воздуха. Принципиальная схема регулирования температуры воздуха ТП 902-9-4-ЭЛ-4 Принципиальная схема управления приточным вентилятором и нагревателями клапана наружного воздуха. Принципиальная схема регулирования температуры воздуха ТП 902-9-4-ЭЛ-5 Принципиальная схема управления вытяжными вентиляторами В-1-В-4. Шкафы управления. Схема подключений ТП 902-9-4-ЭЛ-5-1 Принципиальная схема управления вытяжными вентиляторами В-1-В-4 ТП 902-9-4-ЭЛ-5-2 Шкафы управления. Схема подключений ТП 902-9-4-ЭЛ-6 Принципиальная схема управления вытяжным вентилятором В-5. Вытяжной вентилятор В-5. Схема подключений. ТП 902-9-4-ЭЛ-6-1 Принципиальная схема управления вытяжным вентилятором В-5 ТП 902-9-4-ЭЛ-6-2 Вытяжной вентилятор В-5. Схема подключений ТП 902-9-4-ЭЛ-7 Функциональная схема технологического контроля. Схема подключений электрических проводок ТП 902-9-4-ЭЛ-7-1 Функциональная схема технологического контроля ТП 902-9-4-ЭЛ-7-2 Схема подключений электрических проводок ТП 902-9-4-ЭЛ-8 Шкаф управления ШРТ. Общий вид ТП 902-9-4-ЭЛ-9 Шкаф управления ШРТ. Схема соединений ТП 902-9-4-ЭЛ-10 Прокладка кабелей ТП 902-9-4-ЭЛ-11 Прокладка кабелей ТП 902-9-4-ЭЛ-11-1 Прокладка кабелей ТП 902-9-4-ЭЛ-11-2 Прокладка труб в полах ТП 902-9-4-ЭЛ-12 Кабельный журнал ТП 902-9-4-ЭЛ-13 Кабельный журнал ТП 902-9-4-ЭЛ-14 Электрическое освещение. План ТП 902-9-4 Раздел 2 ТП 902-9-4 Задание заводу Главмонтажавтоматики, листы ЭЛ-15-ЭЛ-18 ТП 902-9-4-ЭЛ-15 Принципиальная схема управления приточным вентилятором и нагревателями клапана наружного воздуха. Принципиальная схема регулирования температуры воздуха ТП 902-9-4-ЭЛ-16 Принципиальная схема управления приточным вентилятором и нагревателями клапана наружного воздуха. Принципиальная схема регулирования температуры воздуха ТП 902-9-4-ЭЛ-17 Шкаф управления ШРТ. Общий вид ТП 902-9-4-ЭЛ-18 Шкаф управления ШРТ. Схема соединений |
| Разработан: | Союзводоканалниипроект |
| Утверждён: | 25.02.1974 СоюзводоканалНИИпроект (SoyuzvodokanalNIIproject 39) |






























