Скачать Типовой проект 903-2-11 Альбом I. Часть 1. Мазутонасосная. Части: тепломеханическая, автоматизация, электротехническая, санитарно-техническая, тепловые сетиДата актуализации: 01.01.2021
|
| Обозначение: | Типовой проект 903-2-11 |
| Обозначение англ: | 903-2-11 |
| Статус: | не действует |
| Название рус.: | Альбом I. Часть 1. Мазутонасосная. Части: тепломеханическая, автоматизация, электротехническая, санитарно-техническая, тепловые сети |
| Дата добавления в базу: | 01.09.2013 |
| Дата актуализации: | 01.01.2021 |
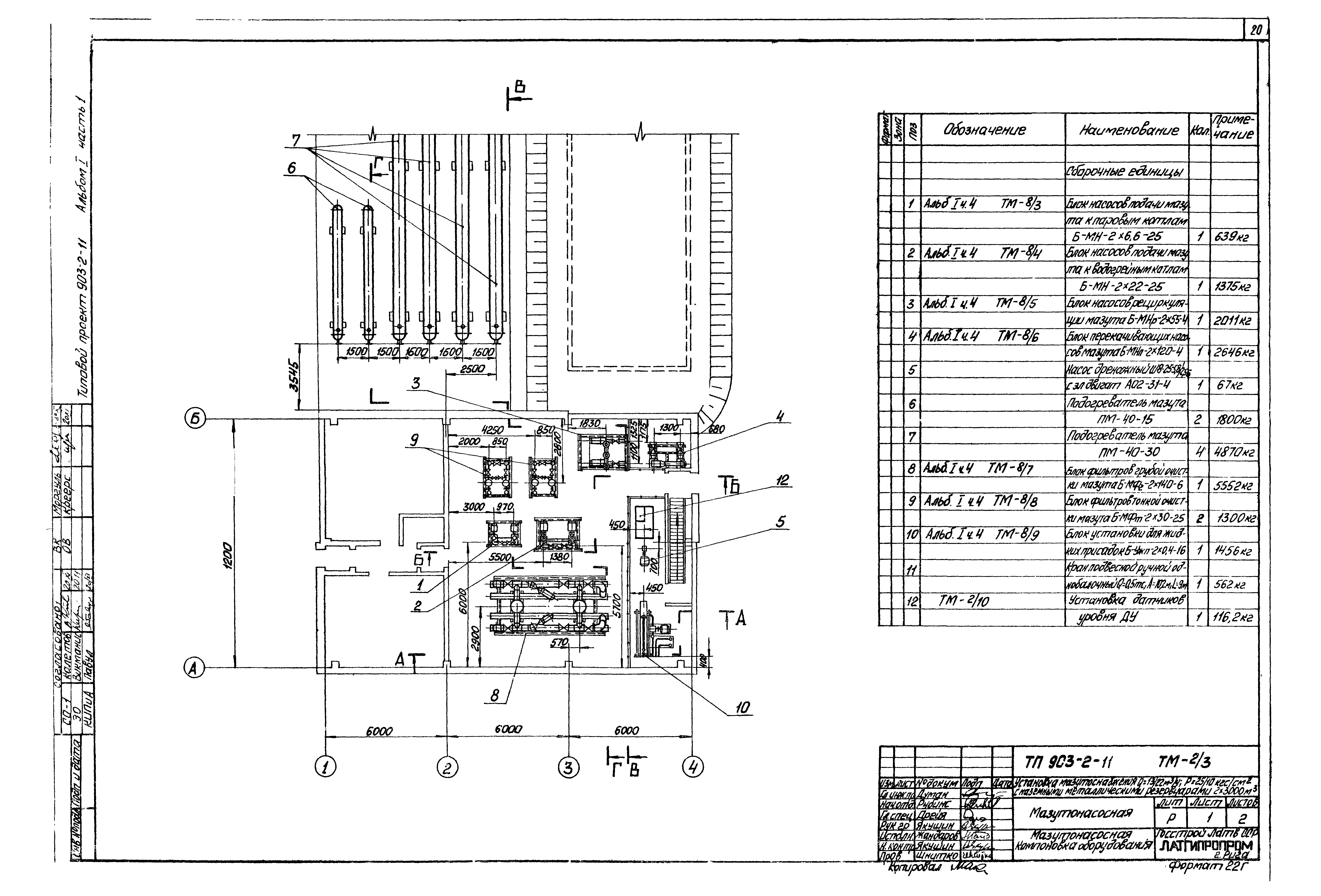
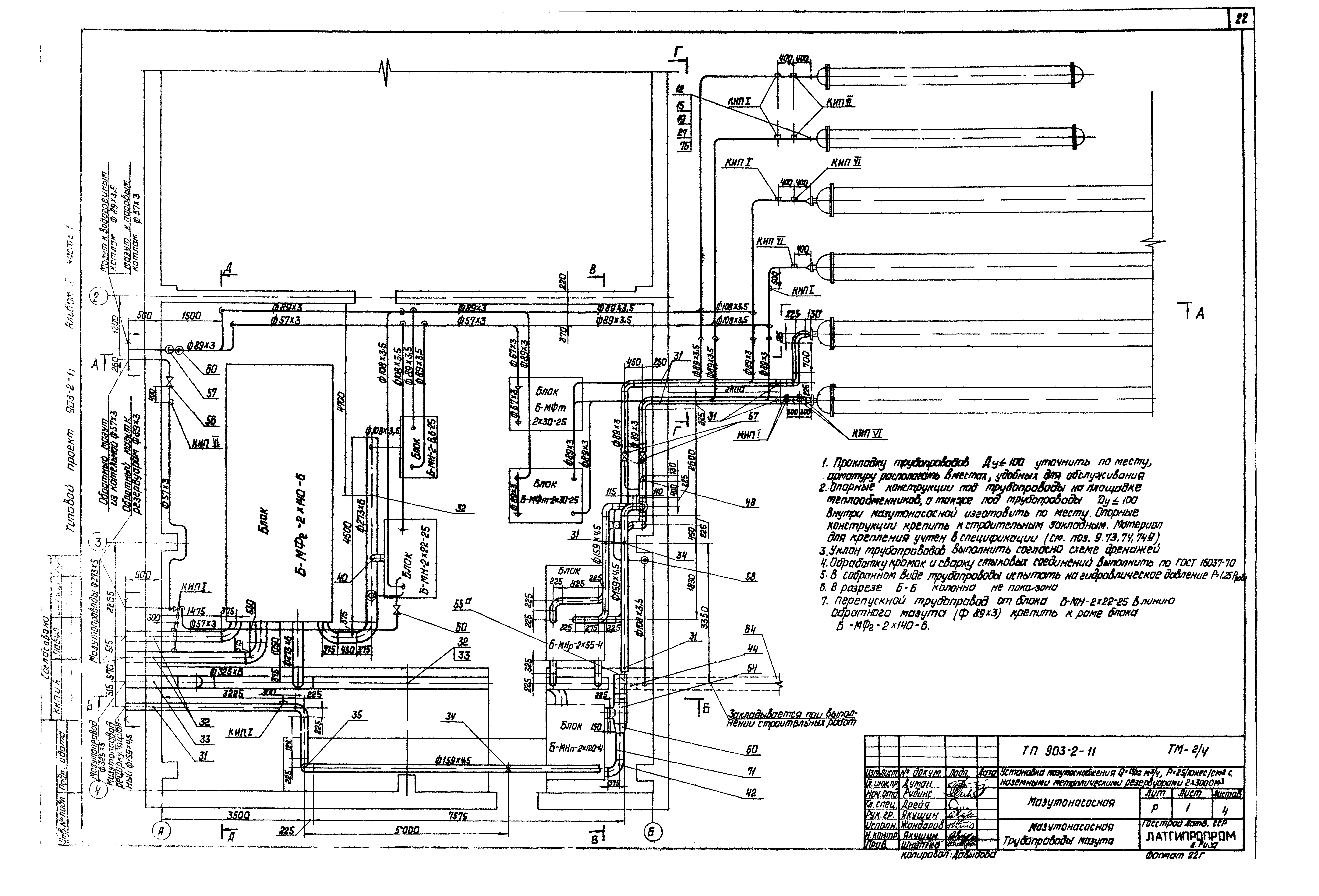
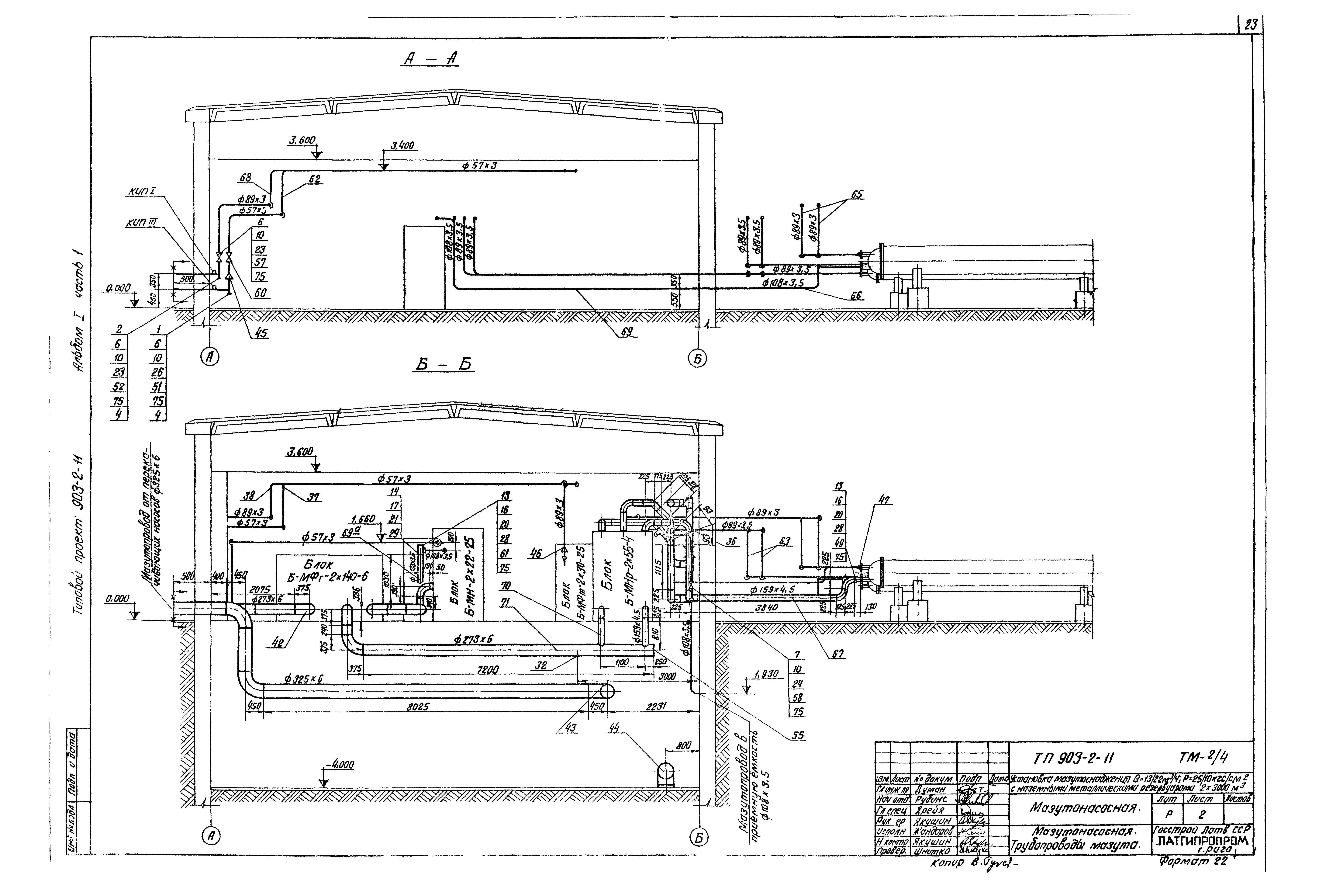
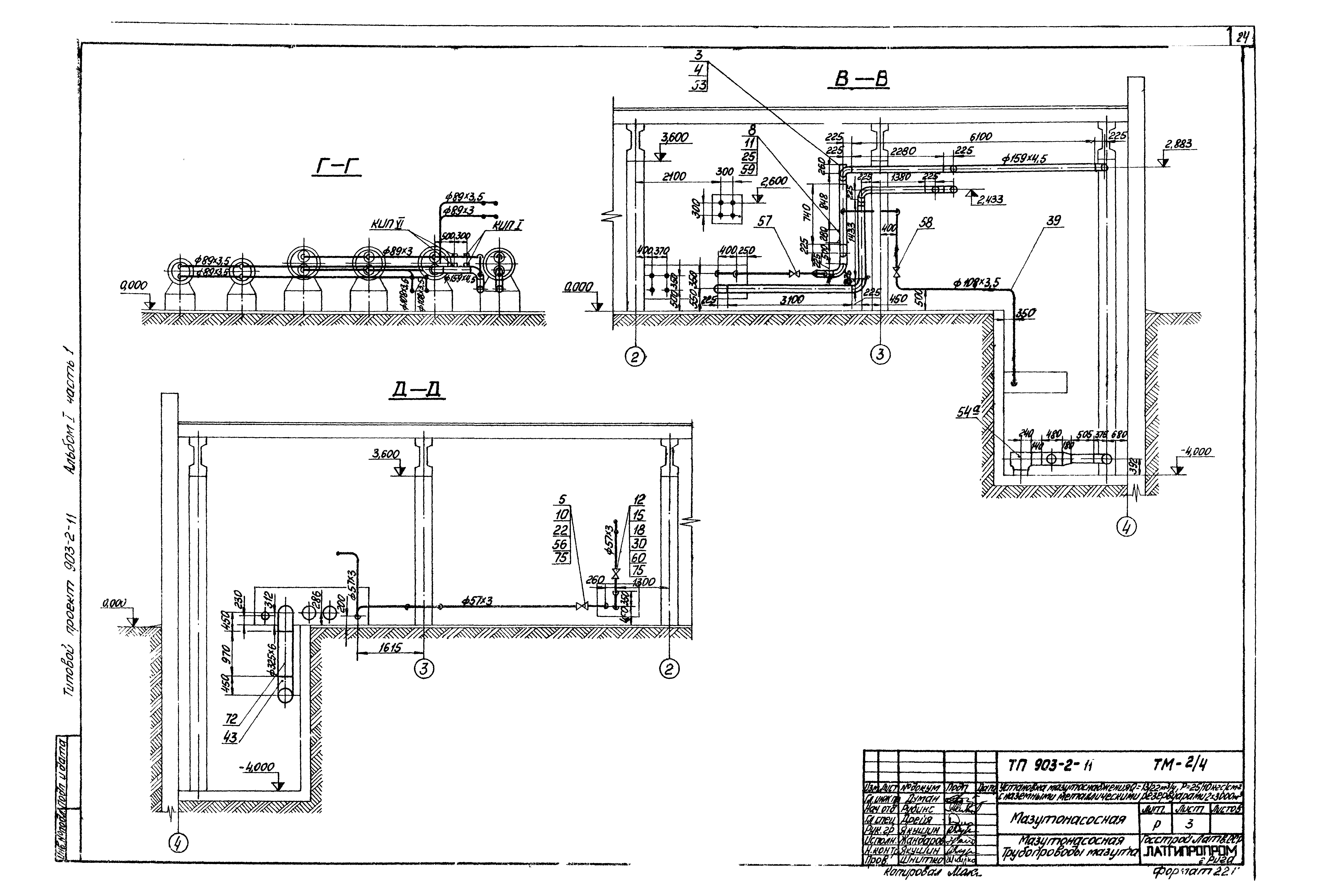
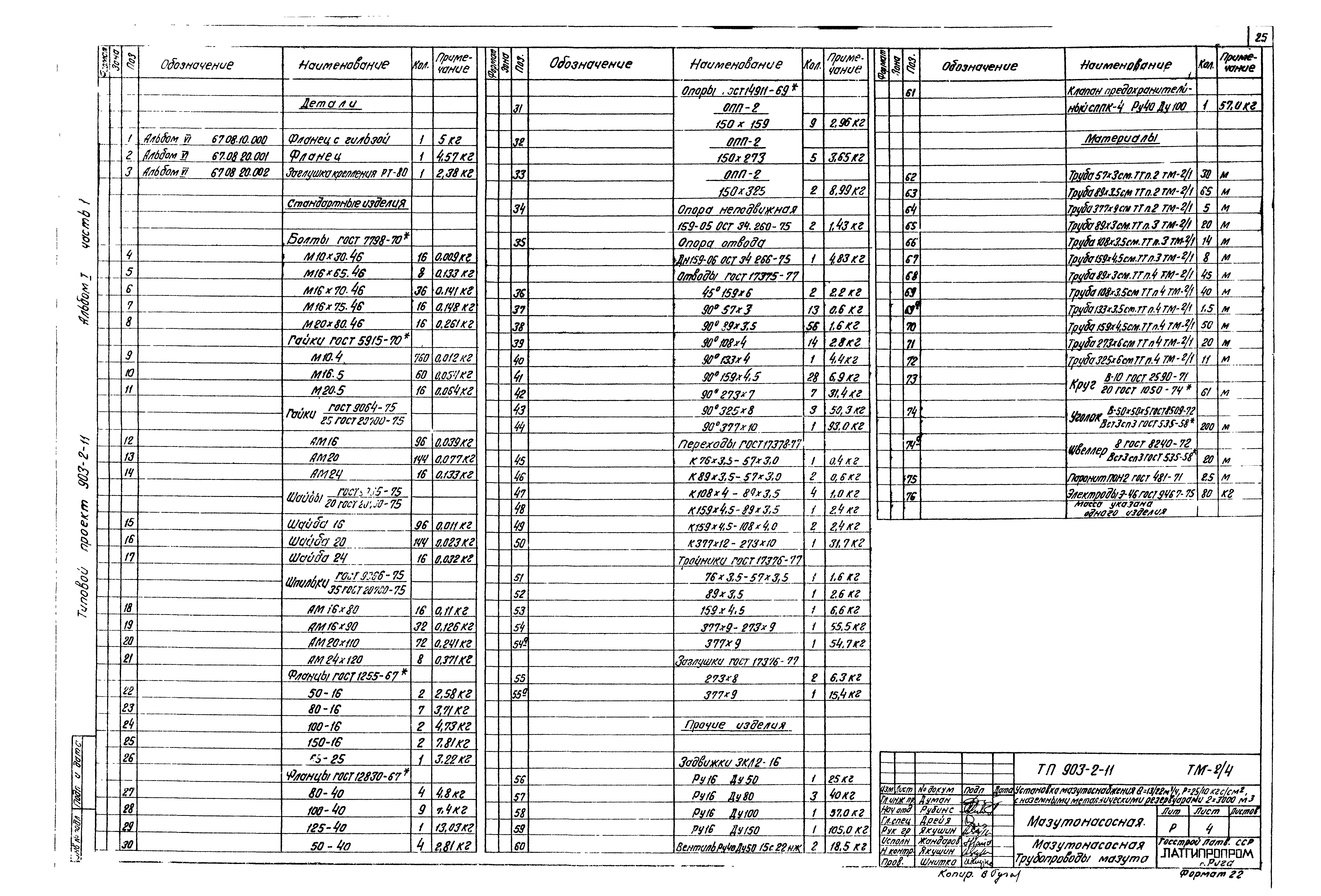
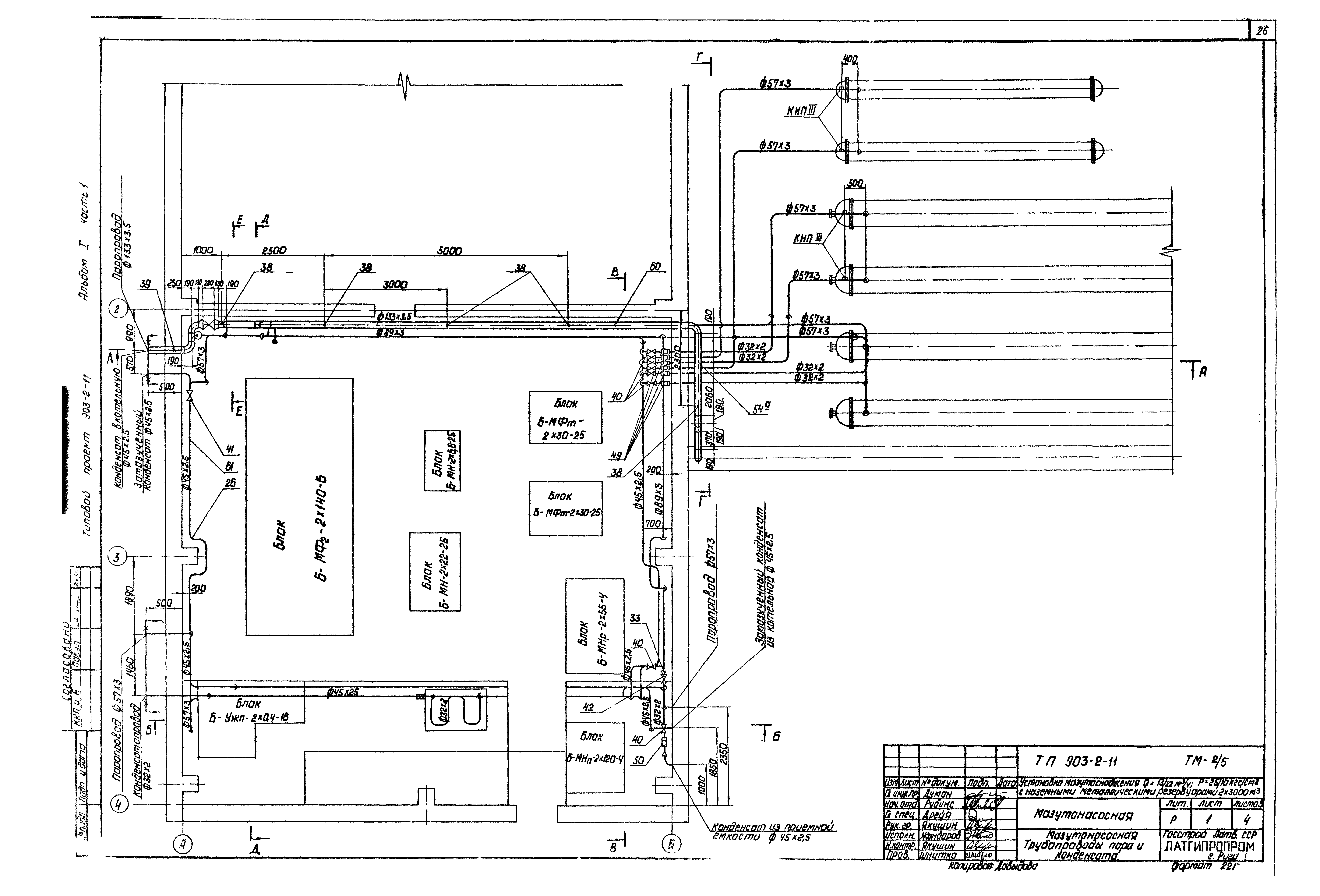
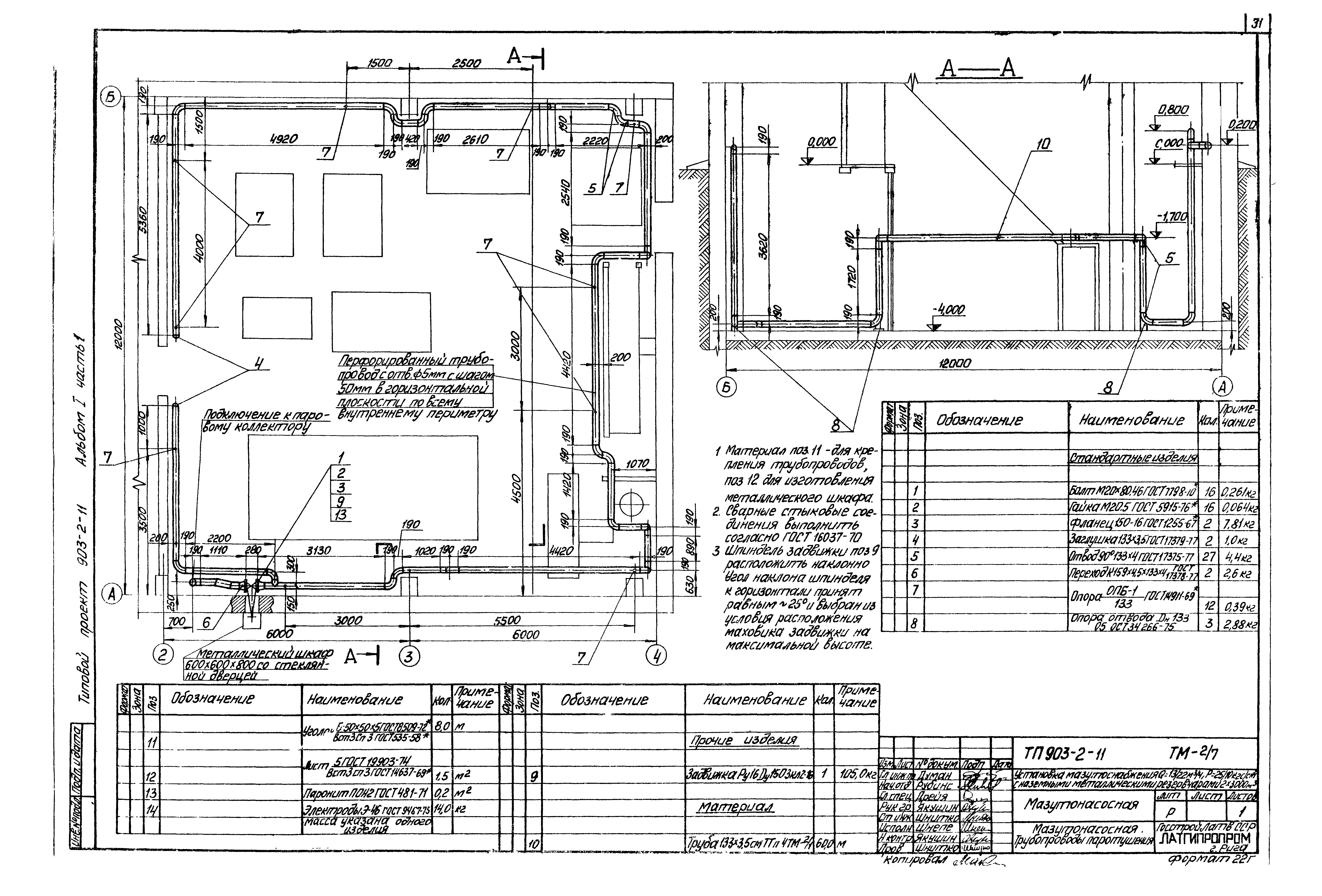
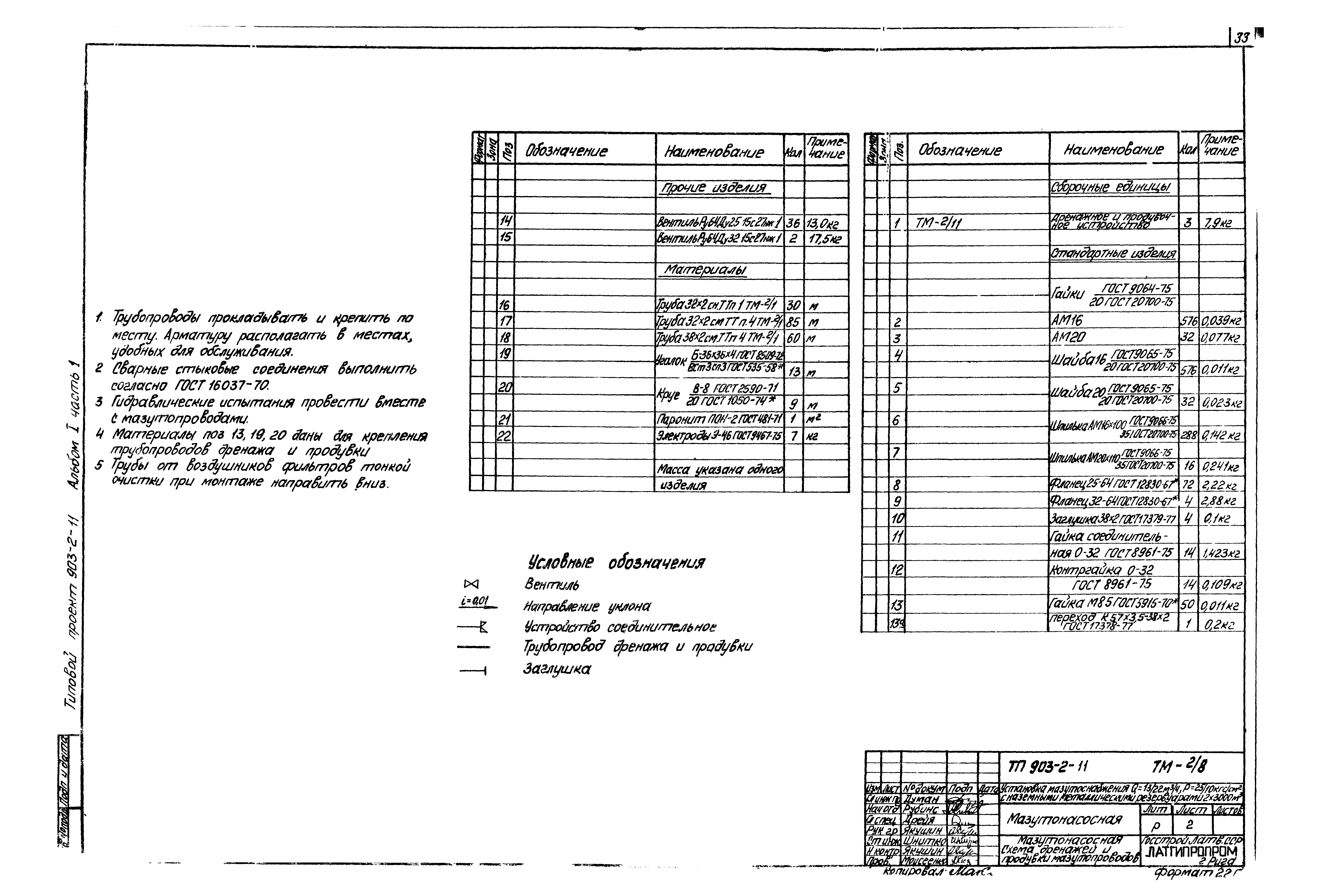
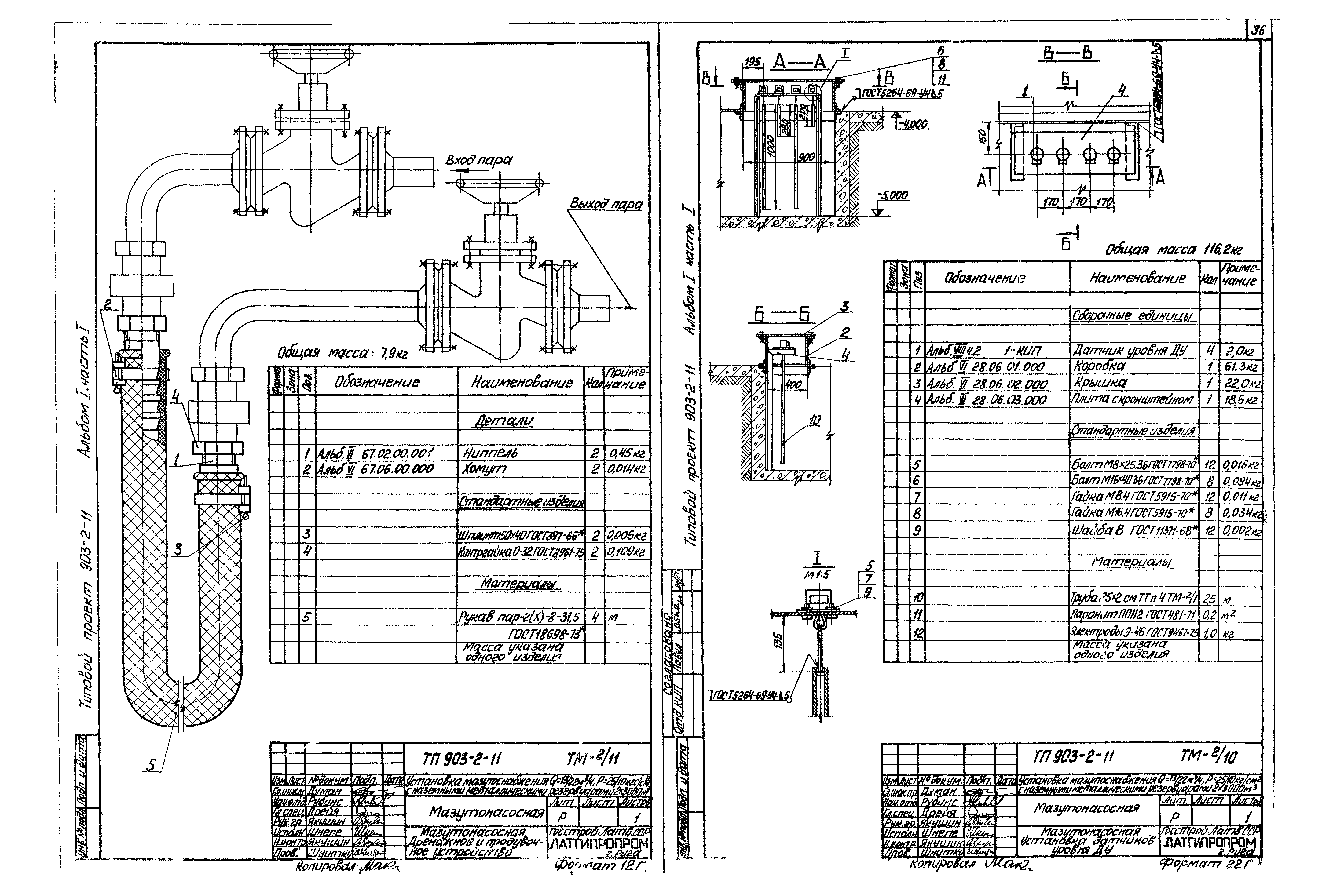
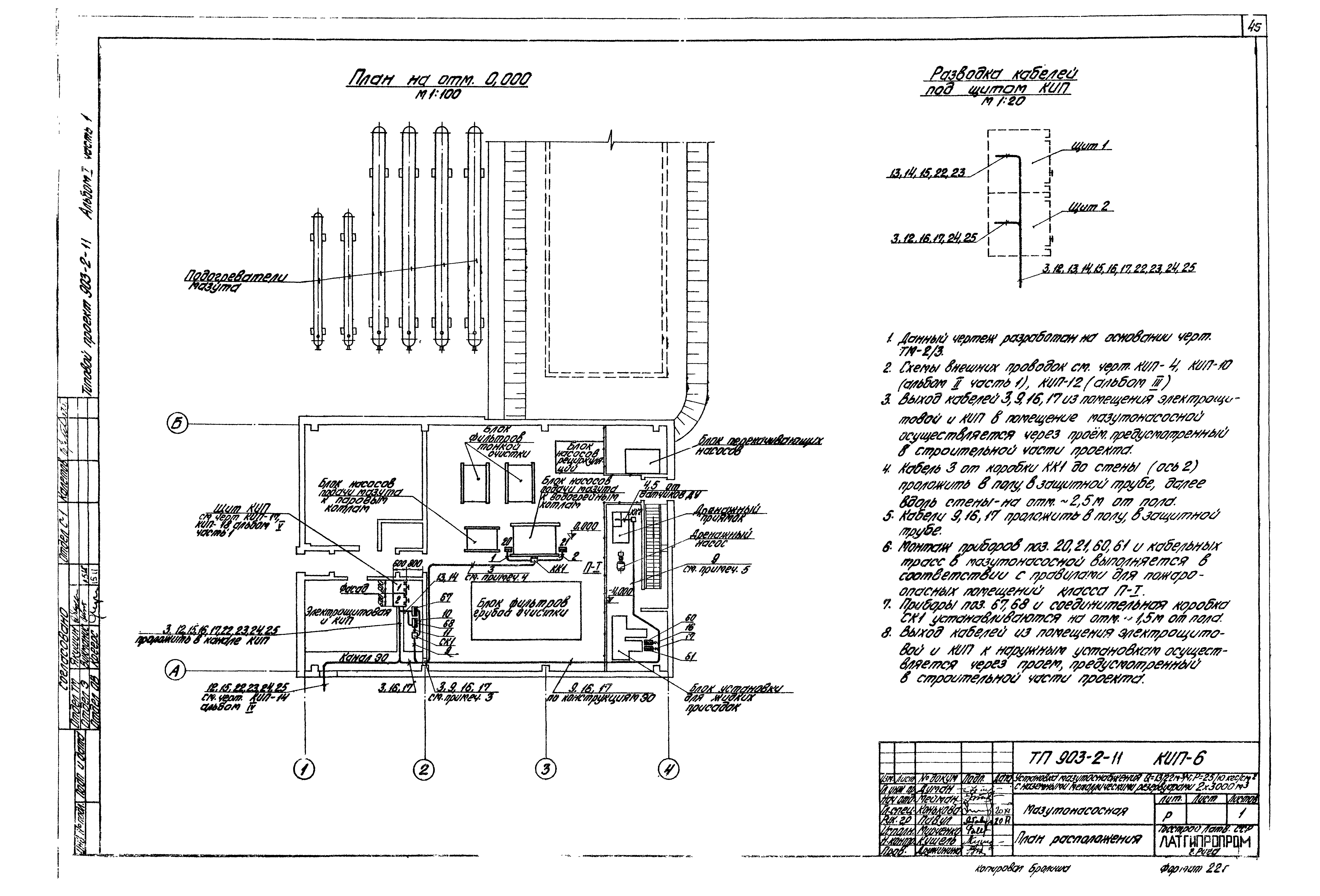
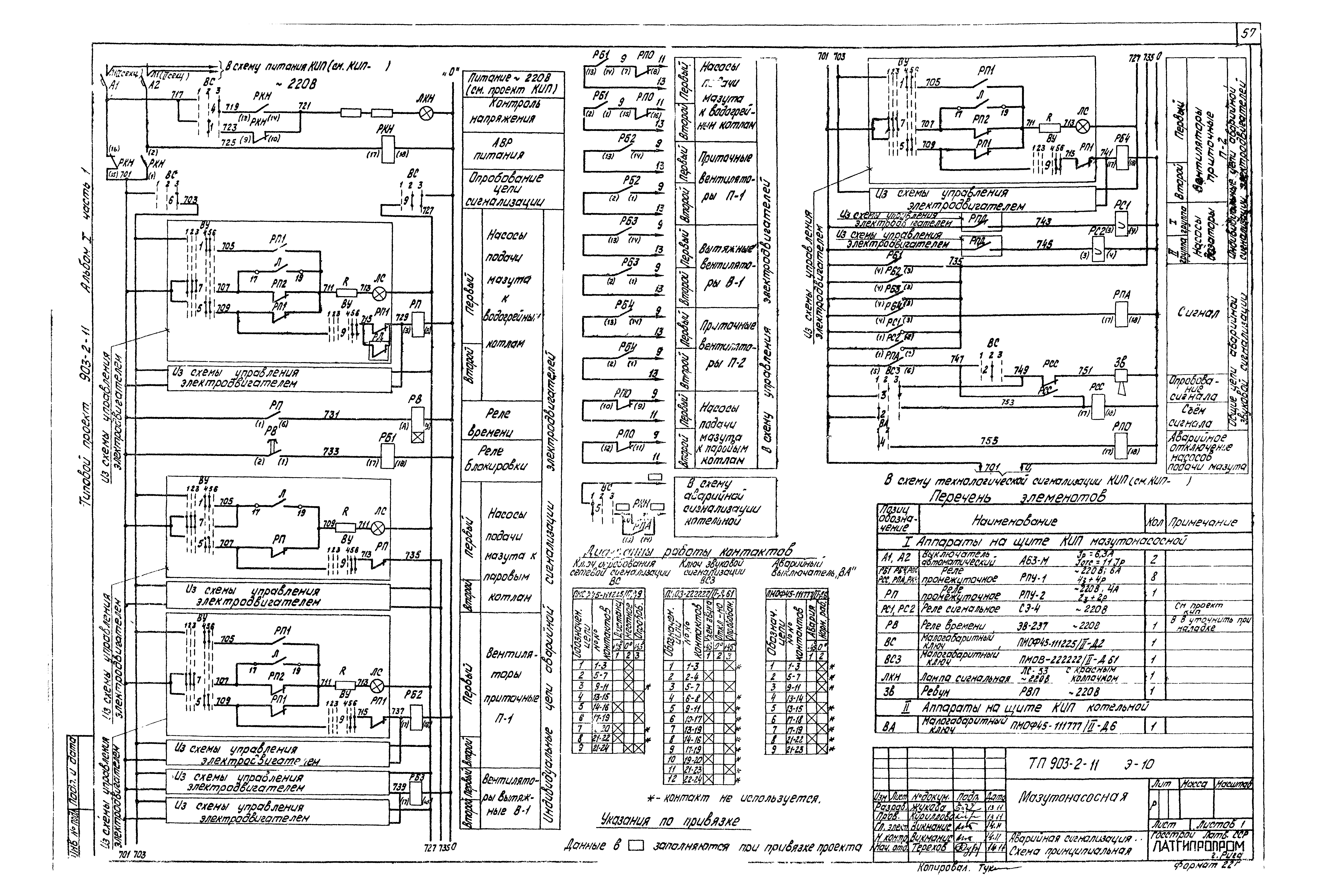
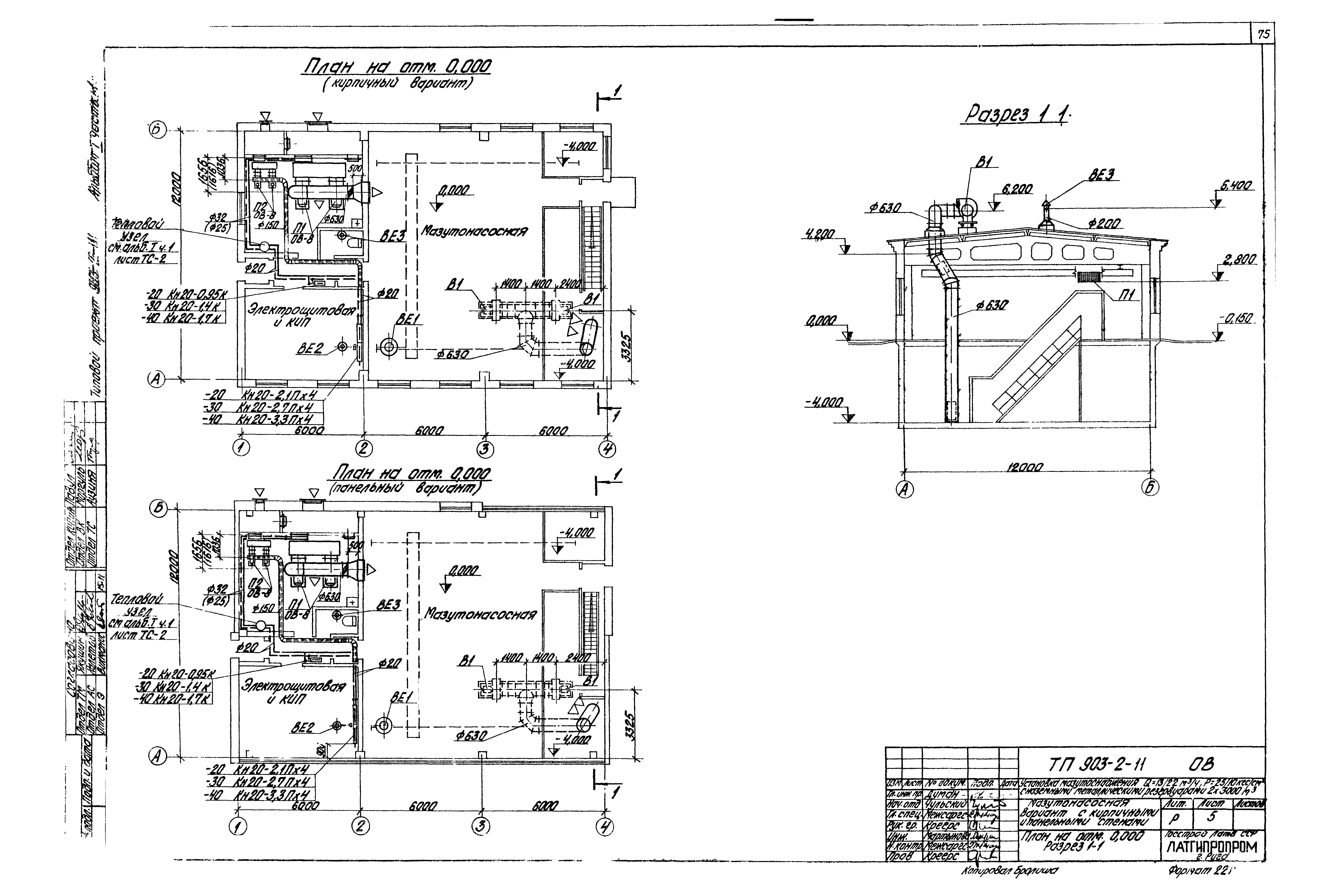
| Оглавление: | ТП 903-2-11 Содержание альбома ТП 903-2-11 Пояснительная записка ТП 903-2-11-ТМ Тепломеханическая часть ТП 903-2-11-ТМ Общая часть ТП 903-2-11-ТМ-1/1 Общая часть. Общие данные (начало) ТП 903-2-11-ТМ-1/1 Общая часть. Общие данные (продолжение) ТП 903-2-11-ТМ-1/1 Общая часть. Общие данные (окончание) ТП 903-2-11-ТМ-1/2 Общая часть. Компоновка сооружений мазутного хозяйства ТП 903-2-11-ТМ-1/3 Общая часть. Схема трубопроводов мазутного хозяйства ТП 903-2-11-ТМ-1/4 Общая часть. Схема трубопроводов жидких присадок ТП 903-2-11-ТМ Мазутонасосная ТП 903-2-11-ТМ-2/1 Мазутонасосная. Общие данные (начало) ТП 903-2-11-ТМ-2/1 Мазутонасосная. Общие данные (продолжение) ТП 903-2-11-ТМ-2/1 Мазутонасосная. Общие данные (окончание) ТП 903-2-11-ТМ-2/2 Мазутонасосная. Перечень изолируемых поверхностей ТП 903-2-11-ТМ-2/3 Мазутонасосная. Компоновка оборудования ТП 903-2-11-ТМ-2/4 Мазутонасосная. Трубопроводы мазута ТП 903-2-11-ТМ-2/5 Мазутонасосная. Трубопроводы пара и конденсата ТП 903-2-11-ТМ-2/6 Мазутонасосная. Трубопроводы жидких присадок и дренажа ТП 903-2-11-ТМ-2/7 Мазутонасосная. Трубопроводы паротушения ТП 903-2-11-ТМ-2/8 Мазутонасосная. Схема дренажей и продувки мазутопроводов ТП 903-2-11-ТМ-2/9 Мазутонасосная. Схема дренажей и продувки паропроводов ТП 903-2-11-ТМ-2/10 Мазутонасосная. Установка датчиков уровня Ду ТП 903-2-11-ТМ-2/11 Мазутонасосная. Дренажное и продувочное устройство ТП 903-2-11-ТМ-2/12 Мазутонасосная. Таблица крепежных материалов ТП 903-2-11-КИП Автоматизация ТП 903-2-11-КИП-1 Общие данные (начало) ТП 903-2-11-КИП-1 Общие данные (окончание) ТП 903-2-11-КИП-2 Схема функциональная ТП 903-2-11-КИП-3 Схемы электрические питания и сигнализации ТП 903-2-11-КИП-4 Схема внешних проводок ТП 903-2-11-КИП-5 Схема подключения ТП 903-2-11-КИП-6 План расположения ТП 903-2-11-КИП-7 Пожарная сигнализация ТП 903-2-11-Э Электротехническая часть ТП 903-2-11-Э-1 Общие данные (начало) ТП 903-2-11-Э-1 Общие данные (окончание) ТП 903-2-11-Э-2 Питающая и распределительная сеть ~380 В. Принципиальная однолинейная схема ЩСУ ТП 903-2-11-Э-3 План силовой электроустановки ТП 903-2-11-Э-4 Функциональная схема блокировок насосов подачи мазута к водогрейным котлам приточных и вытяжных вентиляторов ТП 903-2-11-Э-5 Насос подачи мазута к водогрейным котлам. Схема принципиальная ТП 903-2-11-Э-6 Насос подачи мазута к паровым котлам. Схема принципиальная ТП 903-2-11-Э-7 Вентилятор приточный П-1. Вентилятор вытяжной В-1. Схема принципиальная ТП 903-2-11-Э-8 Вентилятор приточный П-2. Схема принципиальная ТП 903-2-11-Э-9 Насос перекачивающий. Насос-дозатор. Схемы принципиальные ТП 903-2-11-Э-10 Аварийная сигнализация. Схема принципиальная ТП 903-2-11-Э-11 Насос дренажный. Механизм, управляемый по месту. Схемы принципиальные ТП 903-2-11-Э-12 Вентиль на паропроводе. Схема принципиальная ТП 903-2-11-Э-13 Схема подключений ЩСУ ТП 903-2-11-Э-14 Кабельный журнал ТП 903-2-11-Э-15 План осветительной электроустановки ТП 903-2-11-ЭС Слаботочные устройства ТП 903-2-11-ЭС-1 Слаботочные сети на отм. 0.000 ТП 903-2-11-ВК Водоснабжение и канализация ТП 903-2-11-ВК-1 Общие данные (начало) ТП 903-2-11-ВК-2 Общие данные (окончание) ТП 903-2-11-ВК-3 План на отм. 0.000 ТП 903-2-11-ВК-4 Схемы систем В1;К1;К13;К14 ТП 903-2-11-ОВ Отопление и вентиляция ТП 903-2-11-ОВ-1 Общие данные (начало) ТП 903-2-11-ОВ-2 Общие данные (продолжение) ТП 903-2-11-ОВ-3 Общие данные (продолжение) ТП 903-2-11-ОВ-4 Общие данные (окончание) ТП 903-2-11-ОВ-5 План на отм. 0.000. Разрез 1-1 ТП 903-2-11-ОВ-6 Вариант с пристройкой для хранения пожарного инвентаря. План на отм. 0.000. Разрез 1-1. Схемы ТП 903-2-11-ОВ-7 Схемы ТП 903-2-11-ОВ-8 Отопительно-вентиляционная установка П1 и П2 ТП 903-2-11-ОВ-9 Коробка воздухораспределительная ТП 903-2-11-ОВ-10 Рамка ТП 903-2-11-ОВ-11 Рамка для навески герметических дверей ТП 903-2-11-ТС Тепловые сети ТП 903-2-11-ТС-1 Общие данные ТП 903-2-11-ТС-2 Тепловой пункт. План, развертка 1-1. Разрезы 2-2;3-3 |
| Разработан: | Латгипропром |
| Утверждён: | 16.11.1978 Госстрой Латвийской ССР (290) |



















































































