Скачать Типовой проект 320-58 Альбом I. СооруженияДата актуализации: 01.01.2021
|
| Обозначение: | Типовой проект 320-58 |
| Обозначение англ: | 320-58 |
| Статус: | не определен законодательством |
| Название рус.: | Альбом I. Сооружения |
| Дата добавления в базу: | 01.09.2013 |
| Дата актуализации: | 01.01.2021 |
| Дата введения: | 20.12.1977 |
| Дата окончания срока действия: | 30.06.2003 |
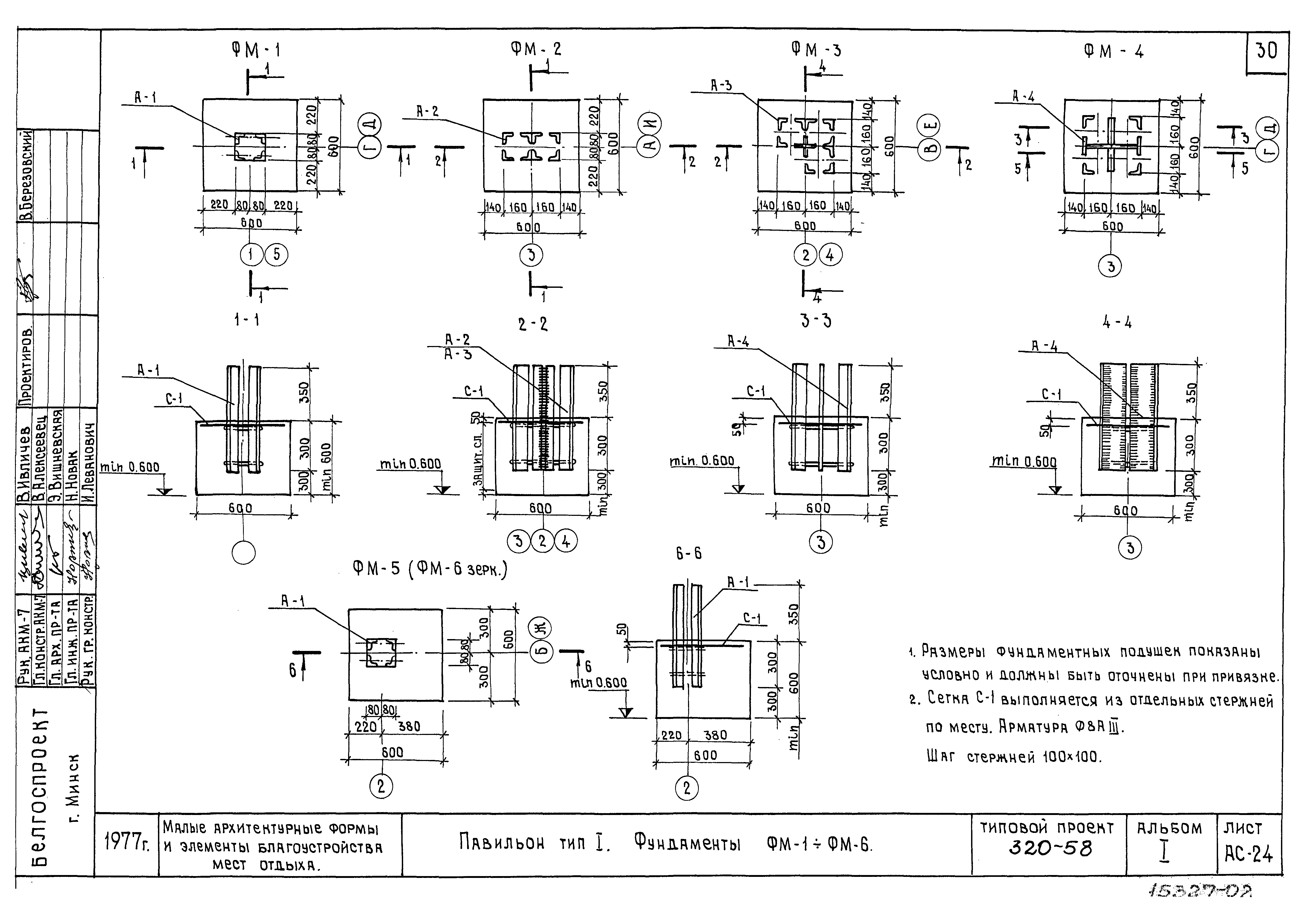
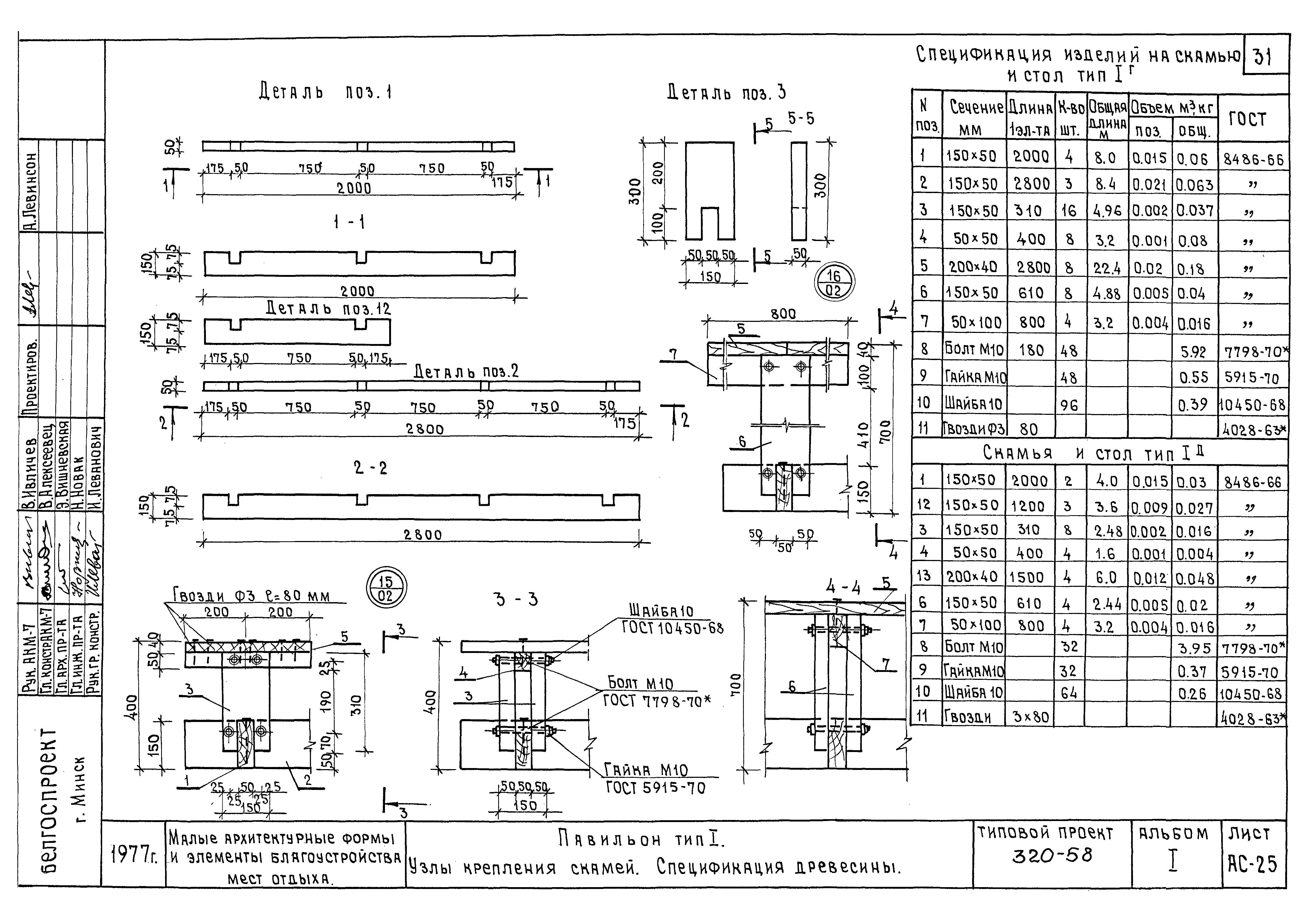
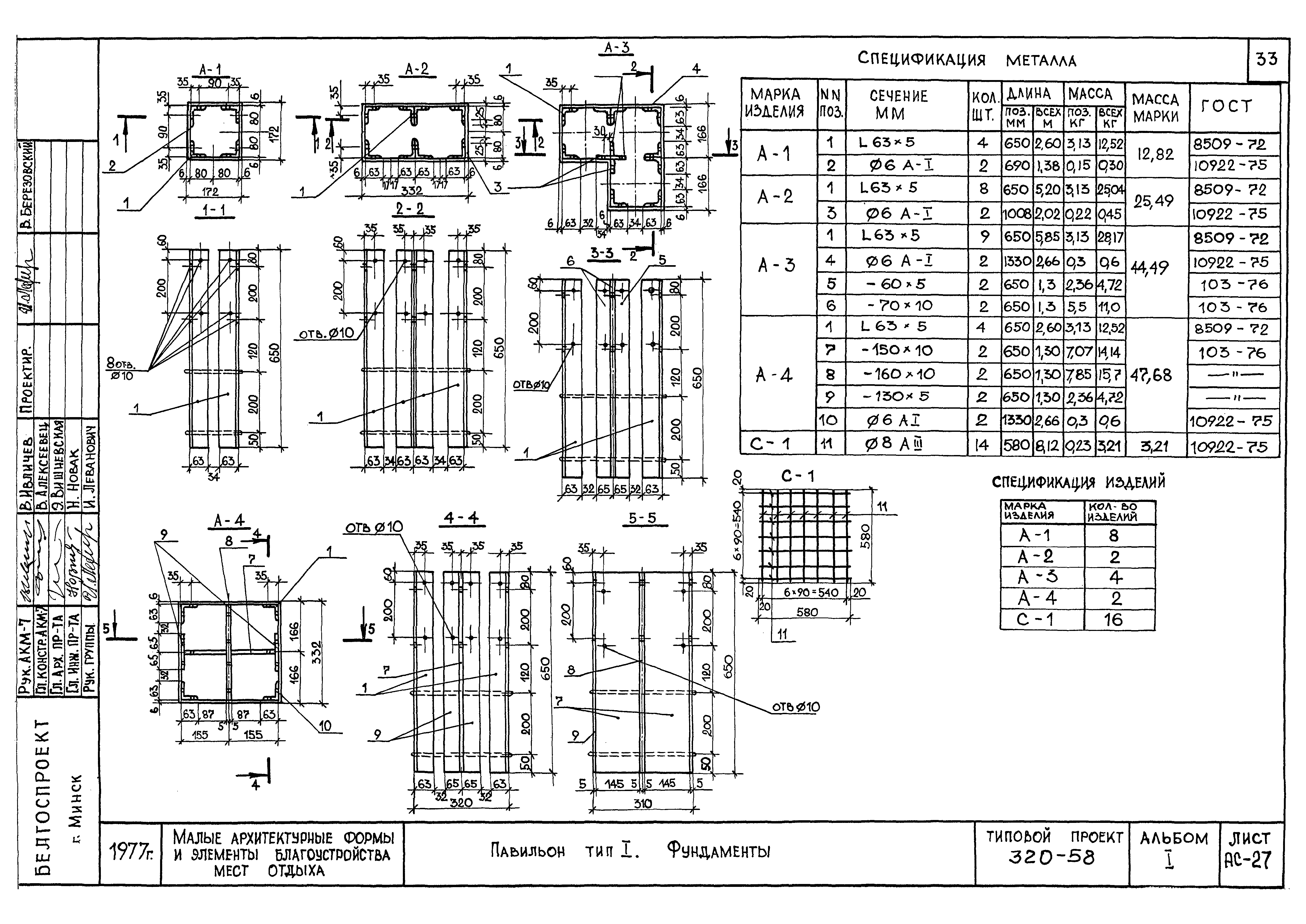
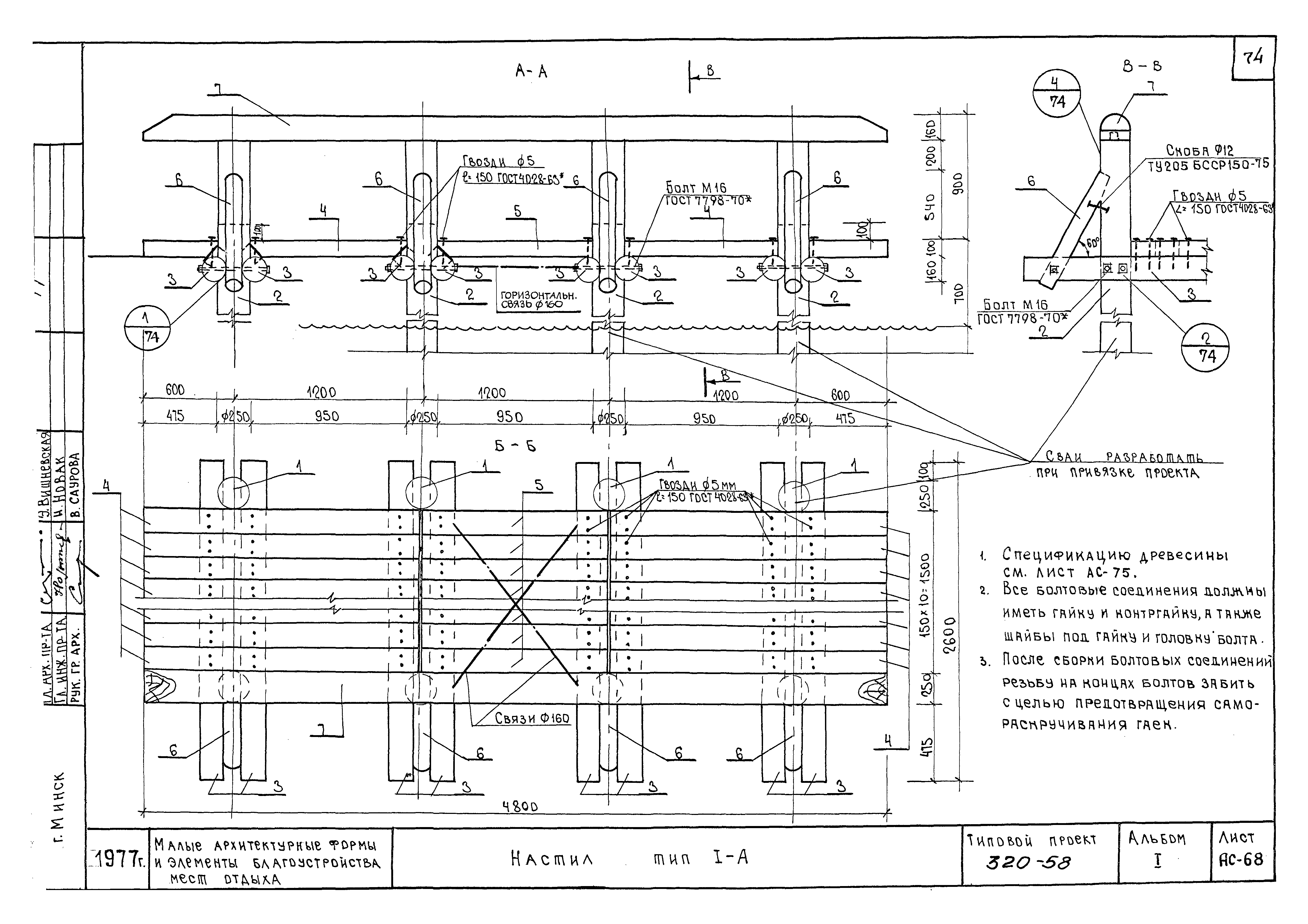
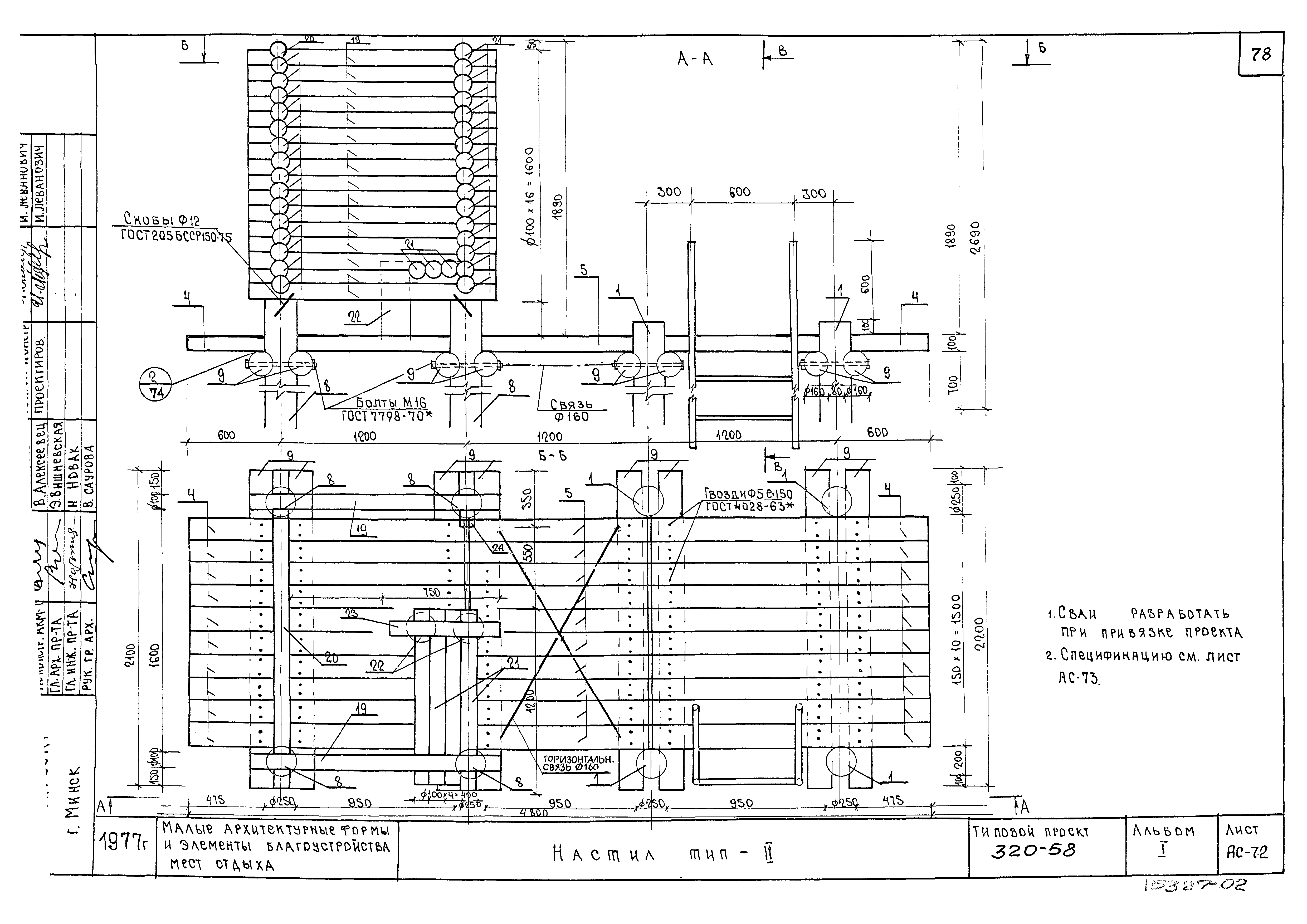
| Оглавление: | ТП 320-58 Содержание альбома ТП 320-58 Пояснительная записка ТП 320-58-АС-01 Павильон тип 1, тип 1-А ТП 320-58-АС-02 Павильоны тип 1-Б. Спецификация. План кровли павильона тип 1 ТП 320-58-АС-03 Павильон тип 1-В ТП 320-58-АС-04 Павильон тип 1. Схема блокировки ТП 320-58-АС-05 Павильон тип 1. Щит покрытия ТП 320-58-АС-06 Павильон тип 1. Узлы ТП 320-58-АС-07 Павильон тип 1. Деревянный щит ДЩ-1. Узлы 7-10 ТП 320-58-АС-08 Павильон тип 1. Деревянный щит ДЩ-1. Узел 4 ТП 320-58-АС-09 Павильон тип 1. Деревянный щит ДЩ-1. Узел 3 ТП 320-58-АС-10 Павильон тип 1. Деревянный щит ДЩ-1. Узел 1,2 ТП 320-58-АС-11 Павильон тип 1. План фундаментов ТП 320-58-АС-12 Павильон тип 1. План фундаментов ТП 320-58-АС-13 Павильон тип 1. Деревянные изделия ТП 320-58-АС-14 Павильон тип 1. Деревянные изделия ТП 320-58-АС-15 Павильон тип 1. Деревянные изделия ТП 320-58-АС-16 Павильон тип 1. Деревянные изделия ТП 320-58-АС-17 Павильон тип 1. Деревянные изделия ТП 320-58-АС-18 Павильон тип 1. Металлические соединительные детали ТП 320-58-АС-19 Павильон тип 1. Металлическая соединительная деталь ММ-1-70 ТП 320-58-АС-20 Павильон тип 1. Металлические соединительные детали ТП 320-58-АС-21 Павильон тип 1. Металлические соединительные детали ТП 320-58-АС-22 Павильон тип 1. Металлические соединительные детали ТП 320-58-АС-23 Павильон тип 1. Металлические соединительные детали ТП 320-58-АС-24 Павильон тип 1. Фундаменты ФМ1-ФМ6 ТП 320-58-АС-25 Павильон тип 1. Узлы крепления скамей. Спецификация древесины ТП 320-58-АС-26 Павильон тип 1. Щиты ограждения ЩО-2, ЩО-3, ЩО-4 ТП 320-58-АС-27 Павильон тип 1. Фундаменты ТП 320-58-АС-28 Павильон тип 1. Щит ограждения ЩО-1. Узлы 12,13. Колонны К-2,К-3 ТП 320-58-АС-29 Павильон тип 2. Общий вид ТП 320-58-АС-30 Павильон тип 2. План кровли. Разрез ТП 320-58-АС-31 Павильон тип 2. Узлы ТП 320-58-АС-32 Павильон тип 2-А ТП 320-58-АС-33 Павильон тип 3. Общий вид ТП 320-58-АС-34 Павильон тип 3-А,3-Б ТП 320-58-АС-35 Павильон тип 3. План фундаментов ТП 320-58-АС-36 Павильон тип 3. Покрытия ТП 320-58-АС-37 Павильон тип 3. Узлы 1;2 ТП 320-58-АС-38 Теневые зонты тип 1А, 1В. План кровли. Фасад. Узлы ТП 320-58-АС-39 Зонты теневые тип 1А, 1Б. План. Узел 6 ТП 320-58-АС-40 Зонты теневые тип 1А, 1Б. Фундамент ФМ-1. Металлические изделия ММ-1-76 ТП 320-58-АС-41 Теневой зонт тип 1А с набивной для переодевания. Схемы блокировки зонтов тип 1,1А ТП 320-58-АС-42 Теневой зонт тип 2-А ТП 320-58-АС-43 Теневой зонт тип 2-А. Узлы 1, 2, 3 ТП 320-58-АС-44 Теневой зонт тип 2-Б ТП 320-58-АС-45 Теневой зонт тип 2-Б ТП 320-58-АС-46 Теневой зонт тип 2-Б. Узлы. Спецификация ТП 320-58-АС-47 Теневой зонт тип 3 ТП 320-58-АС-48 Теневой зонт тип 3. Схема стропил ТП 320-58-АС-49 Теневой зонт тип 3. Узлы 1, 2, 3 ТП 320-58-АС-50 Теневой зонт тип 3. Детали ТП 320-58-АС-51 Пешеходный мост тип 1. Спецификация ТП 320-58-АС-52 Пешеходный мост тип 1. Фасад ТП 320-58-АС-53 Пешеходный мост тип 1. План ТП 320-58-АС-54 Пешеходный мост тип 1. Боковой фасад ТП 320-58-АС-55 Пешеходный мост тип 1. Узел 1 ТП 320-58-АС-56 Пешеходный мост тип 1. Узел 2 ТП 320-58-АС-57 Пешеходный мост тип 1. Узел 3 ТП 320-58-АС-58 Пешеходный мост тип 1. Узел 6 ТП 320-58-АС-59 Пешеходный мост тип 2. Спецификация ТП 320-58-АС-60 Пешеходный мост тип 2 ТП 320-58-АС-61 Пешеходный мост тип 2. Сечение 1-1 ТП 320-58-АС-62 Пешеходный мост тип 2. Узел 1 ТП 320-58-АС-63 Пешеходный мост тип 2. Узлы 2 и 4 ТП 320-58-АС-64 Пешеходный мост тип 3 ТП 320-58-АС-65 Пешеходный мост тип 3. Сечение В-В ТП 320-58-АС-66 Пешеходный мост тип 3. Сечение 2-2. Сетки С-1;С-2. Спецификация ТП 320-58-АС-67 Пешеходный мост тип 3. Опалубка ТП 320-58-АС-68 Настил тип 1-А ТП 320-58-АС-69 Настил тип 1-Б ТП 320-58-АС-70 Настил тип 1-В ТП 320-58-АС-71 Настил тип 1-В. Виды А-А;В-В ТП 320-58-АС-72 Настил тип 2 ТП 320-58-АС-73 Настил тип 2. Вид В-В. Спецификация ТП 320-58-АС-74 Настилы тип 1-А; 1-Б; 1-В; 2. Узлы ТП 320-58-АС-75 Настилы тип 1-А; 1-Б; 1-В; 2. Спецификация ТП 320-58-АС-76 Варианты компоновки настилов ТП 320-58-АС-77 Туалет тип 1. План. Фасад ТП 320-58-АС-78 Туалет тип 1. Разрез 1-1; 3-3 ТП 320-58-АС-79 Туалет тип 1. Разрез 2-2; 4-4 ТП 320-58-АС-80 Туалет тип 1. Разрез. Крыльцо ТП 320-58-АС-81 Туалет тип 1. План фундаментов ТП 320-58-АС-82 Туалет тип 1. План перекрытия на отм. 0.000 ТП 320-58-АС-83 Туалет тип 1. Узлы 1, 2 ТП 320-58-АС-84 Туалет тип 1. План кровли ТП 320-58-АС-85 Туалет тип 1. План монолитного перекрытия ТП 320-58-АС-86 Туалет тип 1. Закладные детали ТП 320-58-АС-87 Туалет тип 1. План армирования. Перекрытия на отм. 0.150 ТП 320-58-АС-88 Туалет тип 1. Армирование лотка ТП 320-58-АС-89 Туалет тип 2 ТП 320-58-АС-90 Туалет тип 3 ТП 320-58-АС-91 Туалет тип 2. Планы перекрытия и стропил ТП 320-58-АС-92 Туалет тип 2. Развертки стен ТП 320-58-АС-93 Туалет тип 2, 3. Узлы ТП 320-58-АС-94 Туалет тип 3. План стропил ТП 320-58-АС-95 Туалет тип 3. Развертки стен ТП 320-58-АС-96 Теневые зонты (шалаши и навесы). Рекомендации ТП 320-58-АС-97 Теневые зонты (шалаши и навесы). Рекомендации ТП 320-58-АС-98 Теневые зонты (шалаши и навесы). Рекомендации ТП 320-58-АС-99 Теневые зонты (шалаши и навесы). Рекомендации ТП 320-58-АС-100 Питьевые источники (водные устройства из естественного камня). Рекомендации ТП 320-58-АС-101 Колодец тип 1. Рекомендации ТП 320-58-АС-102 Колодец тип 2. Рекомендации ТП 320-58-АС-103 Мостик и деревянные пешеходы. Рекомендации ТП 320-58-АС-104 Мостик и деревянные пешеходы. Рекомендации ТП 320-58-АС-105 Пешеходные парковые мостики. Рекомендации ТП 320-58-АС-106 Лесные пешеходные мостики. Рекомендации |
| Разработан: | Белгоспроект |
| Утверждён: | 03.06.1977 Госстрой БССР (BSSR Gosstroy 69) |















































































































