Скачать Типовой проект 902-2-258 Альбом X. Производственный корпус. Электротехническая часть (из ТП 902-2-260)Дата актуализации: 01.01.2021
|
| Обозначение: | Типовой проект 902-2-258 |
| Обозначение англ: | 902-2-258 |
| Статус: | действует |
| Название рус.: | Альбом X. Производственный корпус. Электротехническая часть (из ТП 902-2-260) |
| Дата добавления в базу: | 01.09.2013 |
| Дата актуализации: | 01.01.2021 |
| Дата введения: | 29.12.1975 |
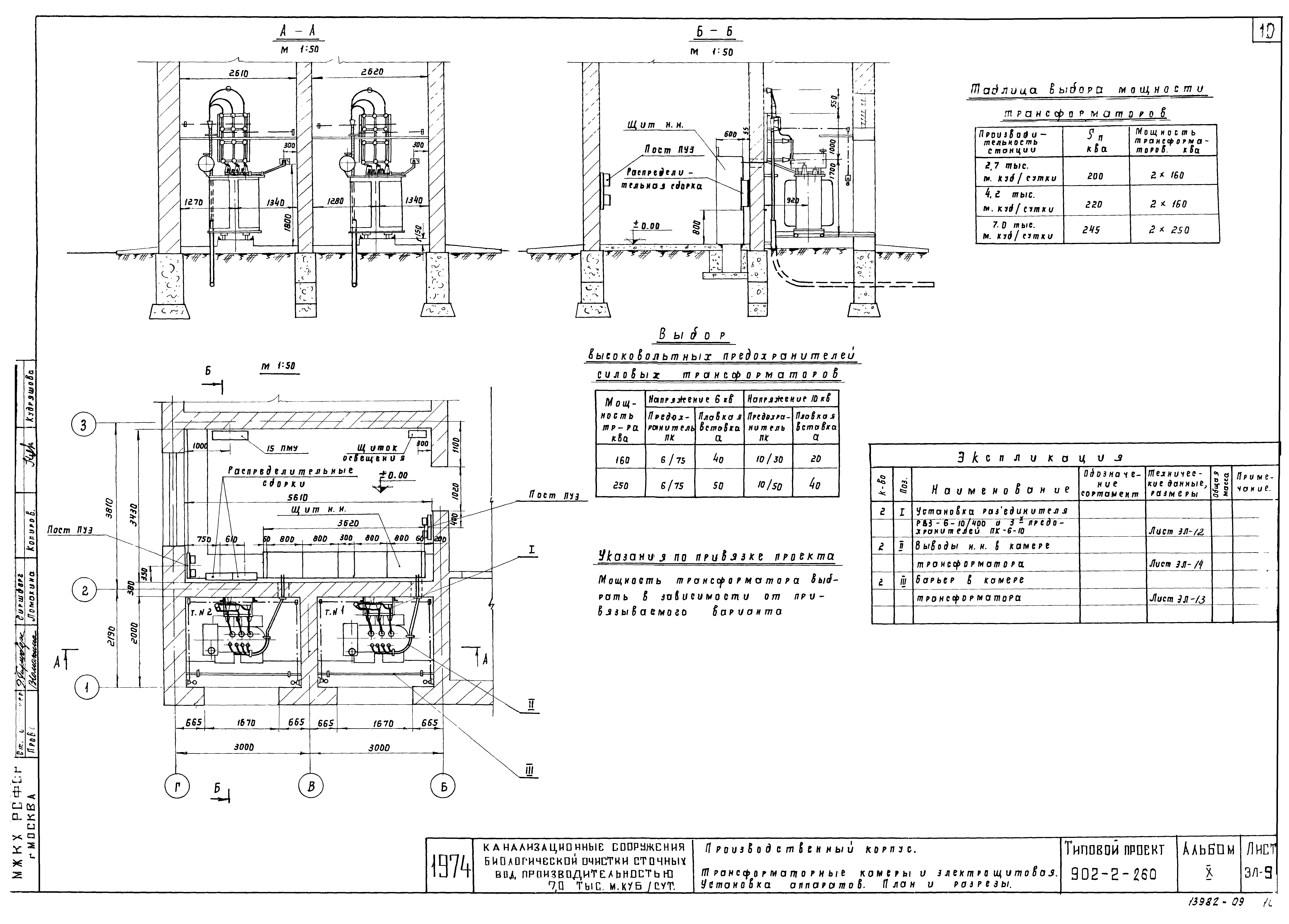
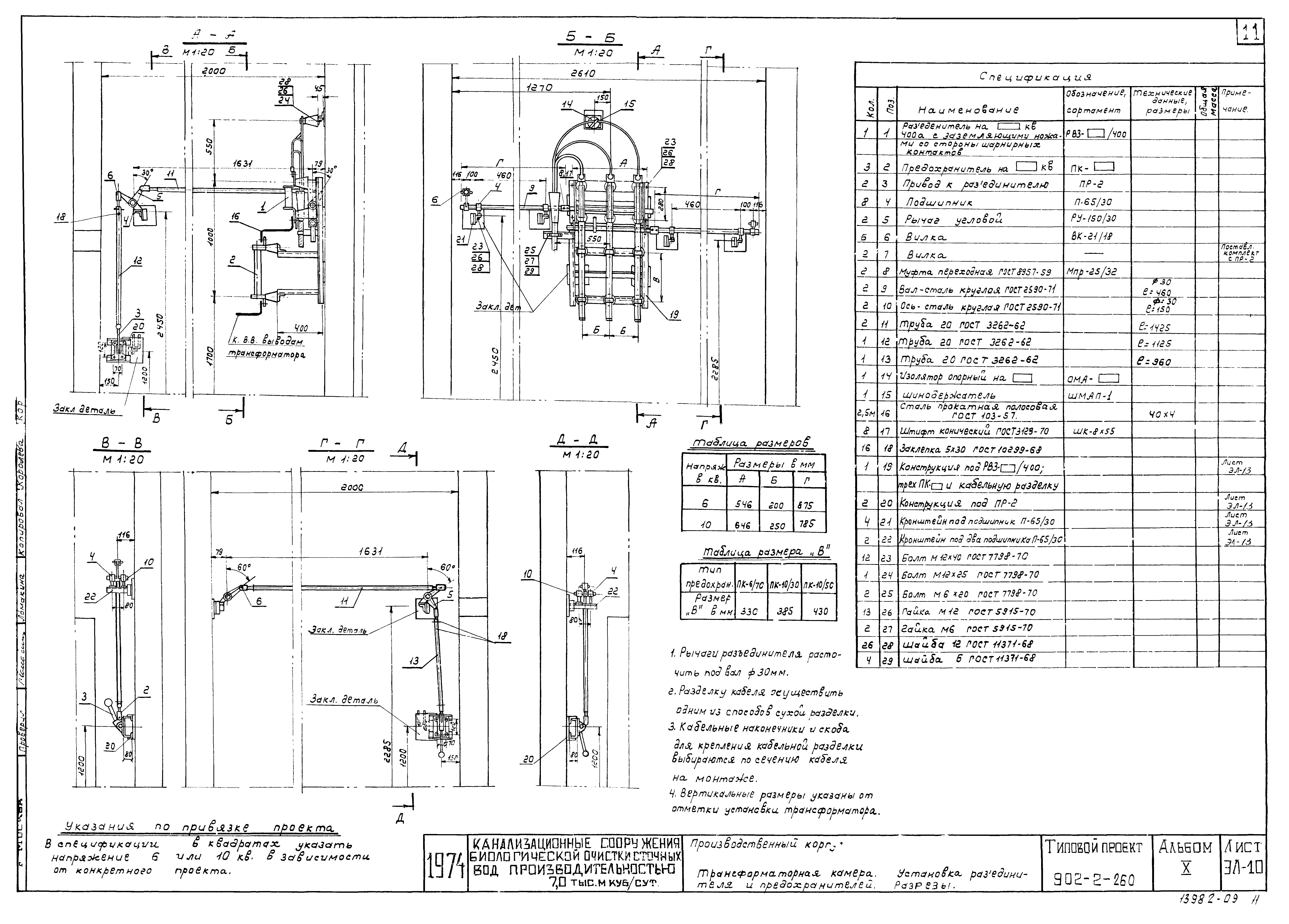
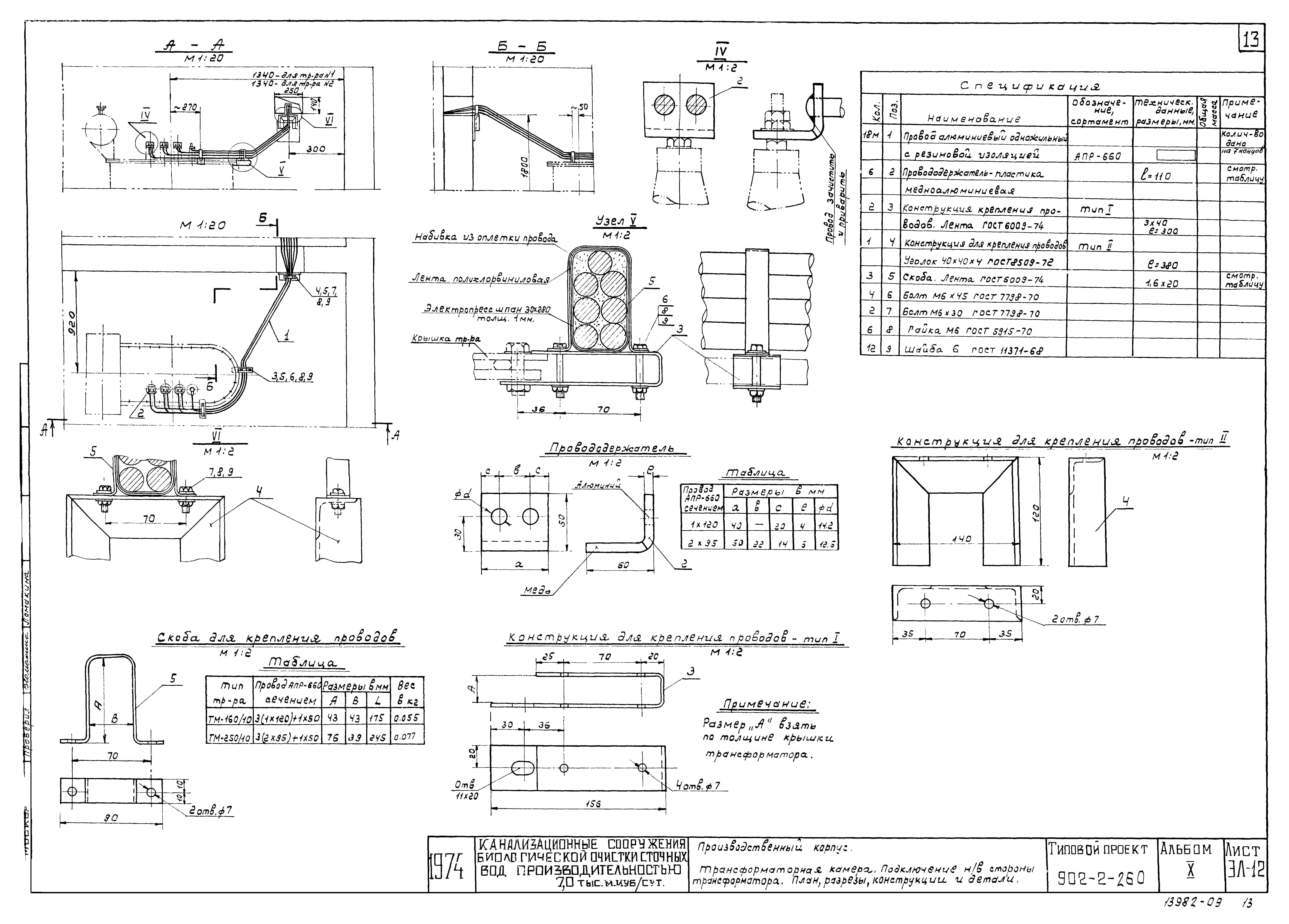
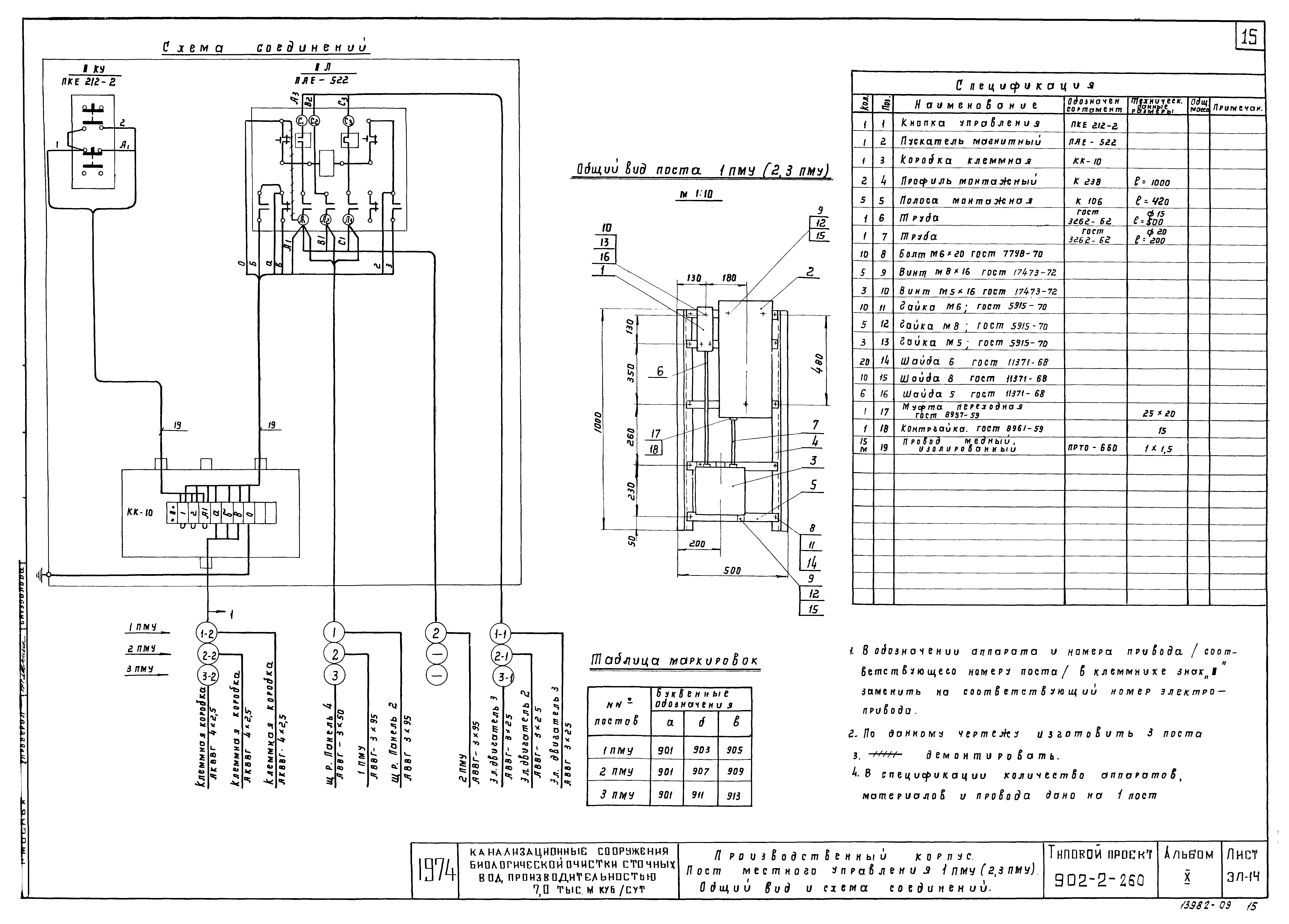
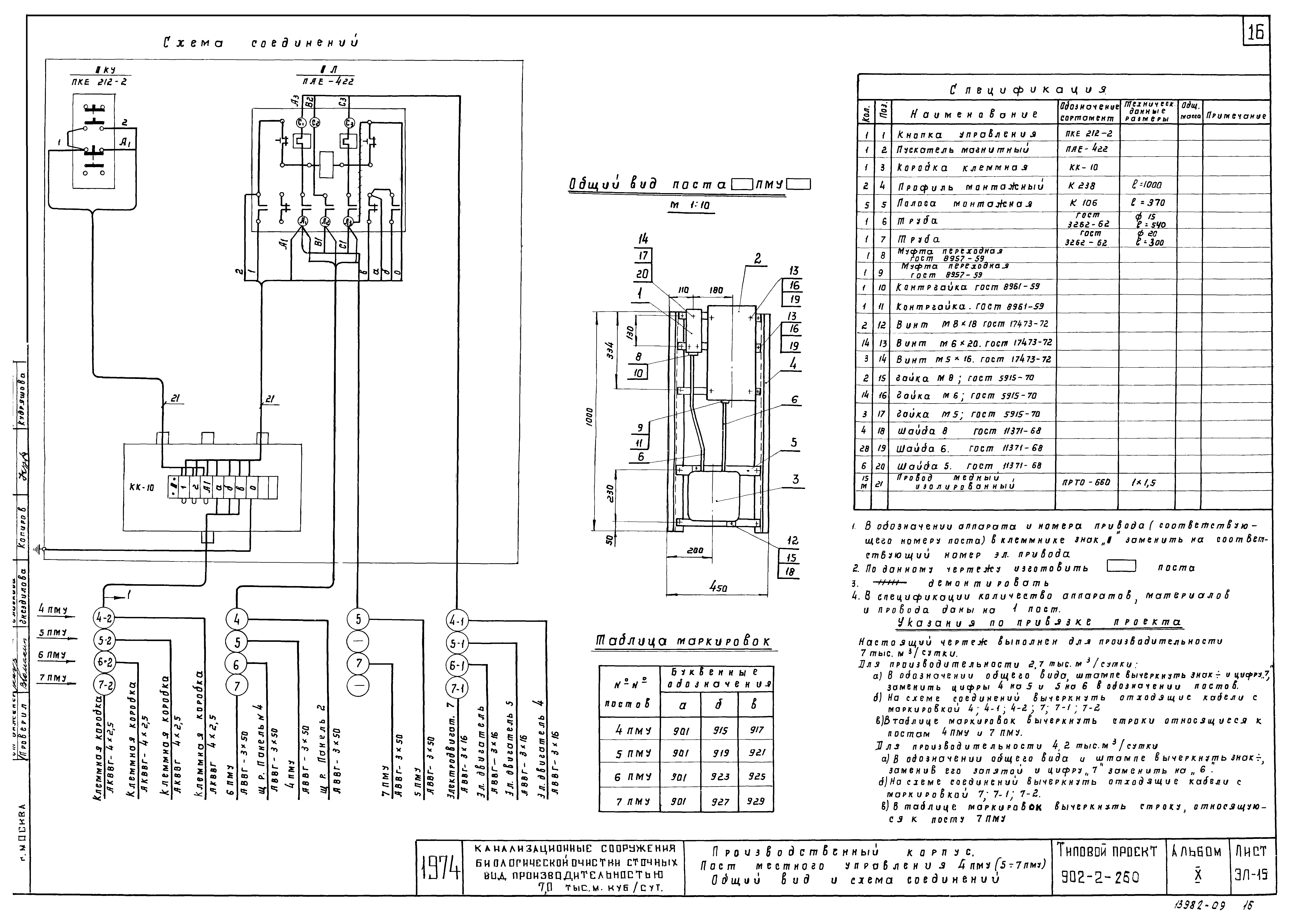
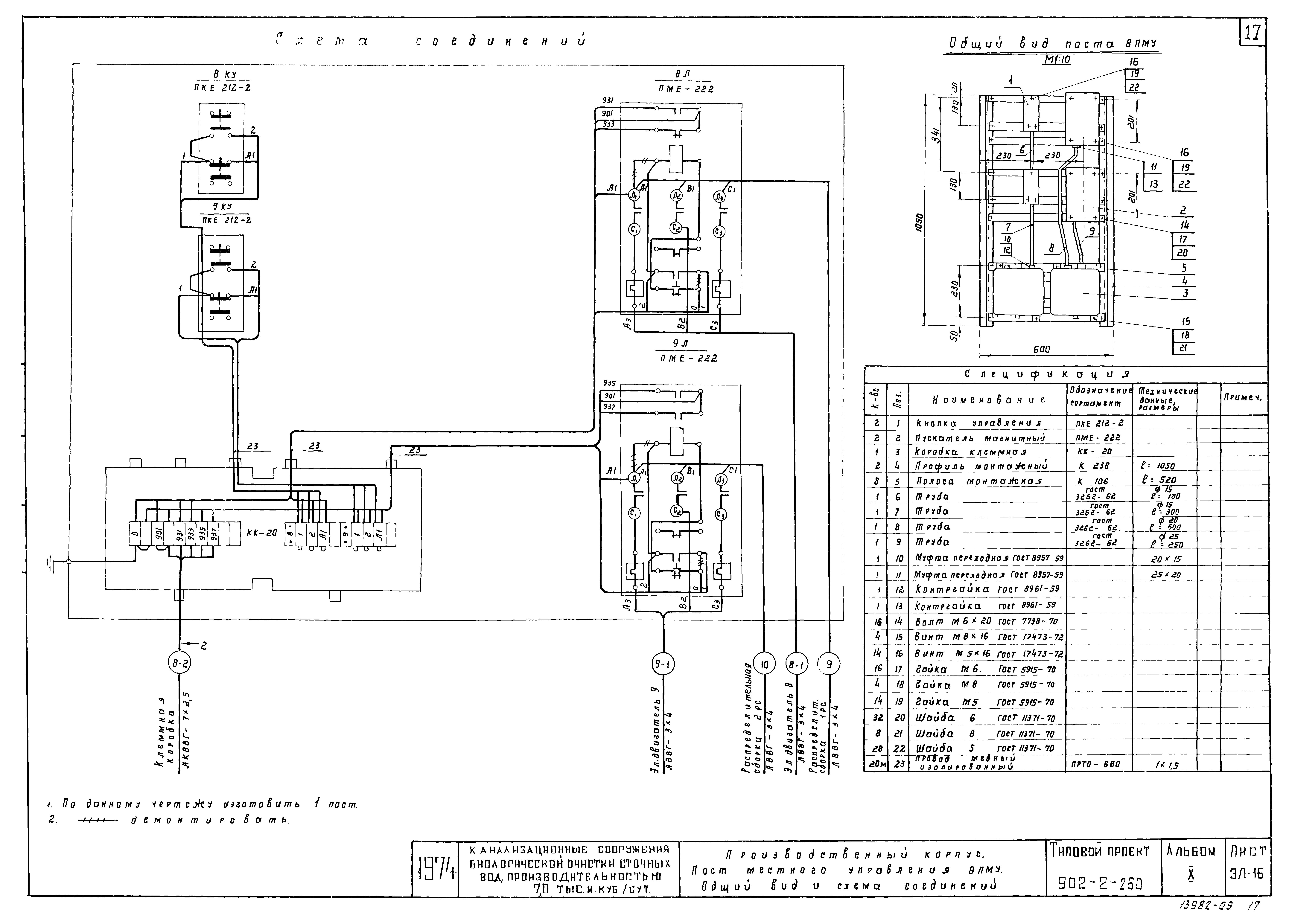
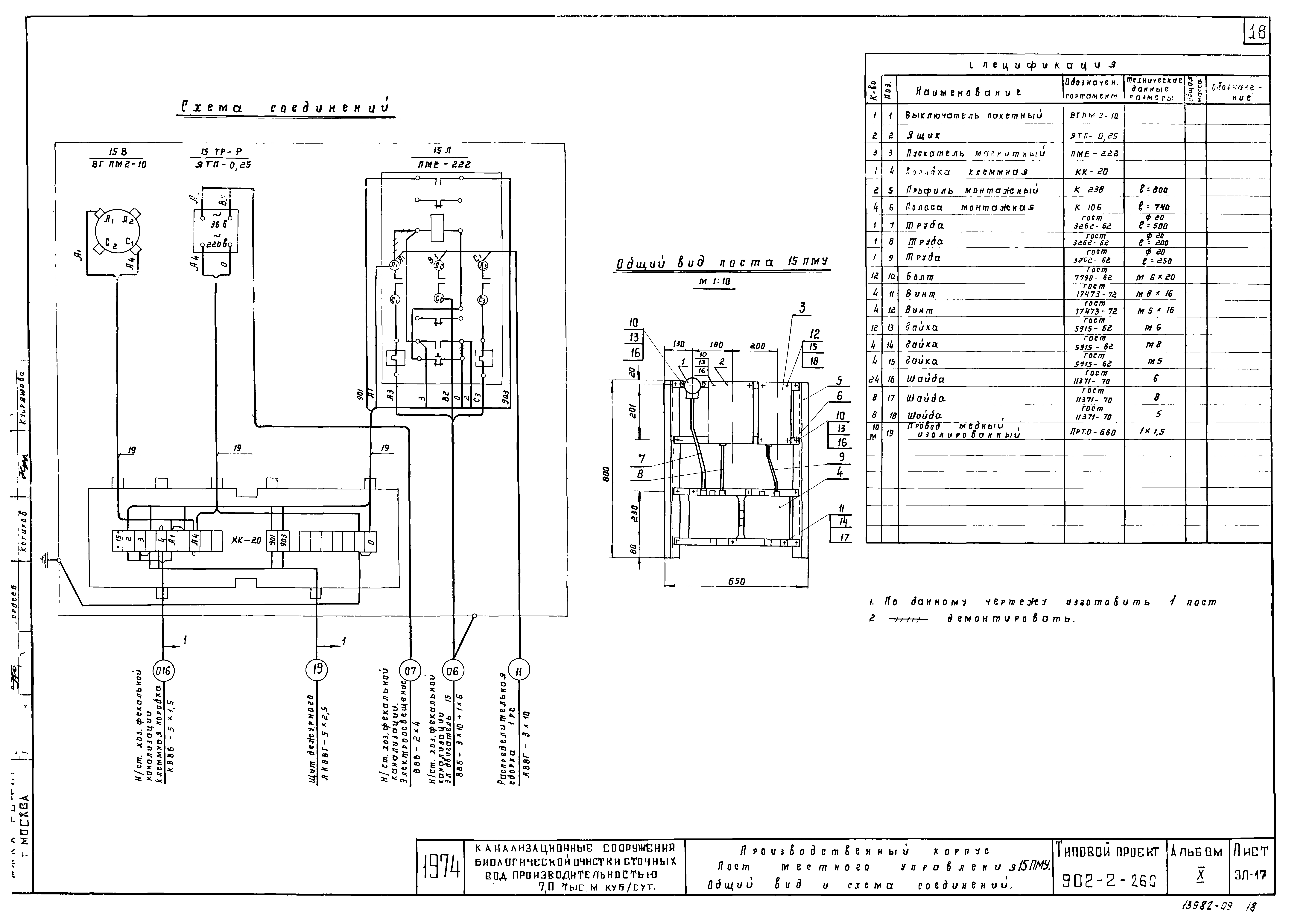
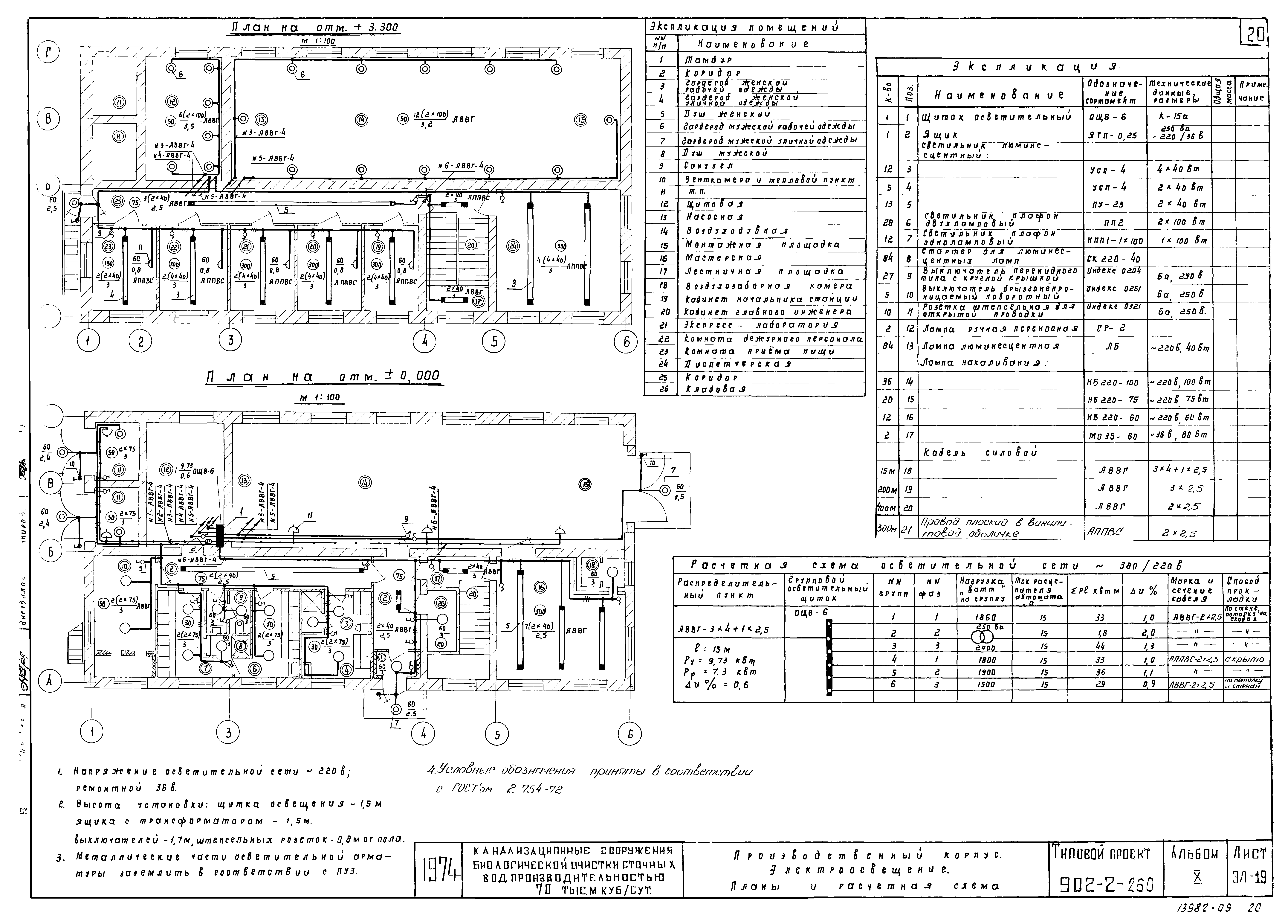
| Оглавление: | ТП 902-2-260-ЭЛ-1 Содержание альбома ТП 902-2-260 Раздел 1. Электросиловое оборудование и управление электроприводами ТП 902-2-260-ЭЛ-2 Содержание раздела 1. Принципиальная однолинейная схема 6 (10 кВ) ТП 902-2-260-ЭЛ-3 Принципиальная однолинейная схема 380/220 В. Лист 1 ТП 902-2-260-ЭЛ-4 Принципиальная однолинейная схема 380/220 В. Лист 2 ТП 902-2-260-ЭЛ-5 Принципиальная схема управления агрегатами ТП 902-2-260-ЭЛ-6 Принципиальная схема сигнализации ТП 902-2-260-ЭЛ-7 Кабельный журнал ТП 902-2-260-ЭЛ-8 Производственный корпус станции производительностью 70 тыс. м. куб/сутки. Прокладка кабелей и труб. Заземление. Планы на отм. ±0.000 и +3.000. Разрезы ТП 902-2-260-ЭЛ-9 Трансформаторные камеры и электрощитовая. Установка аппаратов. План и разрезы ТП 902-2-260-ЭЛ-10 Трансформаторная камера. Установка разъединителя и предохранителей. Разрезы ТП 902-2-260-ЭЛ-11 Трансформаторная камера. Конструкция под разъединитель с приводом и предохранителями. Барьер. Общие виды и детали ТП 902-2-260-ЭЛ-12 Трансформаторная камера. Подключение н/в стороны трансформатора. План, разрезы, конструкции и детали ТП 902-2-260-ЭЛ-13 Схема внешних соединений отдельностоящего оборудования ТП 902-2-260-ЭЛ-14 Пост местного управления 1ПМУ(2,3ПМУ). Общий вид и схема соединений ТП 902-2-260-ЭЛ-15 Пост местного управления 4ПМУ(5-7ПМУ). Общий вид и схема соединений ТП 902-2-260-ЭЛ-16 Пост местного управления 8ПМУ. Общий вид и схема соединений ТП 902-2-260-ЭЛ-17 Пост местного управления 15ПМУ. Общий вид и схема соединений ТП 902-2-260-ЭЛ-18 Схема учета электроэнергии. Пост учета электроэнергии ПУЭ. Общий вид и схема соединений ТП 902-2-260-ЭЛ-19 Электроосвещение. Планы и расчетная схема ТП 902-2-260-ЭЛ-20 Производственный корпус станции производительностью 70 тыс. м. куб/сутки. Строительное задание на проемы и закладные детали ТП 902-2-260-ЭЛ-21 Опросный лист для заказа панелей ЩО-□ ТП 902-2-260 Раздел 2. Технологический контроль и слаботочные устройства ТП 902-2-260-ЭА-1 Принципиальная схема технологического контроля, схема внешних соединений и схема питания приборов ТП 902-2-260-ЭА-2 Трассы кабельных и трубных проводок ТП 902-2-260-ЭС-1 Слаботочные устройства на полуэтажных планах |
| Разработан: | Гипрокоммунводоканал Минжилкомхоза РСФСР |
| Утверждён: | 20.06.1975 МЖКХ РСФСР (10ТД) |
| Издан: | ЦИТП Госстроя СССР (CITP, Gosstroy (USSR) 1976 г. ) |

























